Middle Floor Studio in Benalmadena Costa في Benalmadena Costa — استوديو
استوديو

Middle Floor Studio in Benalmadena Costa

استوديو في بنالمدانا كوستا، مالاجا، بمساحة 31 متر مربع مع شرفة تطل على البحر. يقع المشروع في منطقة حضرية على مقربة من البحر مباشرة، ويوفر إمكانية الوصول إلى مختلف المرافق والخدمات الأساسية. يتميز المبنى بوجود استقبال على مدار الساعة ومسبح مشترك كبير مع منزلقات مائية وحديقات، مما يجعله خياراً مناسباً للاستثمار أو كمنزل عطلات.

يبدأ من €192,000
1
الحمامات
31 m²
مساحة المعيشة
يبدأ من €192,000
السعر المبدئي
0.3 km
مسافة الشاطئ
جاهز للتسليم
حالة البناء

ملخص

  • استوديو بمساحة 31 متر مربع مع شرفة 6 متر مربع تطل على البحر
  • يقع على بعد 458 متر فقط من شاطئ سانتا آنا
  • مجهز بمطبخ صغير وخزائن مدمجة وحمام كامل
  • يتمتع بوصول إلى مسبح مشترك ومناطق ترفيهية
  • موقع مثالي للتأجير قصير الأجل كاستثمار سياحي

مقارنة إقليمية

عند مقارنة هذا الاستوديو في بنالمدانا مع المشاريع المماثلة في المناطق المجاورة، نلاحظ أنه يتميز بسعر تنافسي يبدأ من 192,000 يورو، بينما يبدأ سعر مشروع أكوامار في توريه ديل مار من 219,950 يورو، ومشروع لانتانا ريزيدنسيال في ميخاس من 205,000 يورو، ومشروع إثيرنا هومز 2 في إستيبونا من 259,000 يورو. يتميز موقع بنالمدانا بأنه أكثر حضرية وتوفراً للخدمات من توريه ديل مار، وأقل تكلفة من إستيبونة المعروفة بمشاريعها الفاخرة. في حين توفر ميخاس طابعاً أكثر هدوءاً، تقدم بنالمدانا مزيجاً فريداً من الحياة الحضرية النابضة بالحياة والوصول السهل إلى الشاطئ، مما يجعلها خياراً متوازناً للمستثمرين الذين يبحثون عن تأجير سياحي مستمر طوال العام.

الأسئلة الشائعة

هل يمكن تأجير الاستوديو للإقامة قصيرة الأجل؟
نعم، يسمح بتأجير الوحدة قصيرة الأجل، مما يجعلها خياراً مناسباً للاستثمار في قطاع السياحة.
كم تبعد الوحدة عن أقرب مطار؟
يقع مطار مالاجا كوستا ديل سول على بعد 9.5 كم فقط من الاستوديو.
ما هي مساحة الشرفة الخارجية؟
الشرفة الخارجية مساحتها 6 متر مربع وتطل مباشرة على البحر.
كيف يتسع سعر المشروع مقارنة بالمنطقة؟
يبدأ سعر الاستوديو من 192,000 يورو، وهو أقل من متوسط أسعار المشاريع المماثلة في المنطقة المجاورة.
ما هي المرافق المشتركة المتوفرة في المبنى؟
يحتوي المبنى على استقبال يعمل على مدار الساعة ومسبح مشترك كبير مع منزلقات مائية وحديقات.
ما هي التكاليف الإضافية الشهرية أو السنوية؟
تتضمن التكاليف الإضافية رسوم الصيانة الشهرية للمناطق المشتركة والمرافق وضرائب الممتلكات السنوية.
هل المشروع جاهز للانتقال الفوري؟
نعم، المشروع مكتمل البناء بالفعل وجاهز للانتقال الفوري دون انتظار فترات البناء.
هل يحتاج السكان إلى سيارة للتنقل في المنطقة؟
لا، يقع الاستوديو في موقع مركزي مع إمكانية الوصول المشي إلى معظم المرافق، كما تتوفر وسائل النقل العام بشكل جيد في المنطقة.

تحليل المشروع

أهم خصائص الموقع، والوحدات، ومراحل المشروع، ونقاط الاهتمام.

الموقع

يقع الاستوديو في قلب بنالمدانا كوستا، على بعد 458 متر فقط من شاطئ سانتا آنا. يتمتع بموقع مركزي يوفر إمكانية الوصول المشي إلى الشاطئ والمرافق المحيطة، مع إطلالات مباشرة على البحر من الشرفة الخاصة.

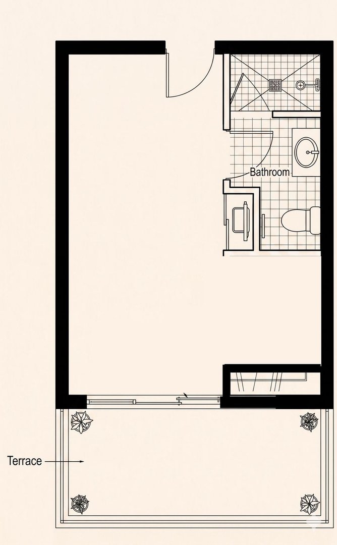
المخططات

يحتوي الاستوديو على مساحة معيشة تتناسب مع الأفراد أو الأزواج، مع مطبخ صغير وخزائن مدمجة توفير مساحة تخزين كافية. الحمام مجهز بالكامل والشرفة الخارجية تقدم مساحة إضافية للاستمتاع بالهواء الطلق والإطلالات البحرية.

حالة المشروع

المشروع مكتمل البناء بالفعل، مما يعني إمكانية الانتقال الفوري دون انتظار فترات البناء. حالة الممتلكات جيدة والصيانة تتم بانتظام في المبنى لضمان الحفاظ على جودة المرافق المشتركة.

نقاط هامة

الاستوديو لا يحتوي على غرف نوم منفصلة، مما يجعله أقل ملاءمة للأسر التي تحتاج إلى مساحات نوم خاصة. كما أن المساحة الداخلية محدودة بـ 31 متر مربع فقط، مما قد لا يكون كافياً للأفراد الذين يحتاجون إلى مساحات واسعة.

نمط الحياة

يناسب هذا الاستوديو الأفراد أو الأزواج الذين يبحثون عن منزل عطلات في إسبانيا مع إمكانية الاستثمار من خلال التأجير قصير الأجل. كما أنه مثالي للمتقاعدين الذين يرغبون في قضاء فصل الشتاء في مناخ دافئ تحت الشمس الإسبانية. للمهنيين العاملين عن بعد، يقدم الموقع ميزة الإقامة في بيئة ساحلية مع الحفاظ على الاتصال بالبنية التحتية الحضرية الضرورية. بالنسبة للمستثمرين، يوفر المشروع فرصة للدخل من التأجير السياحي نظراً لموقعه المركزي وقربه من الشاطئ والمرافق.

الجودة والتشطيبات

يتميز الاستوديو بحالة جيدة مع تشطيبات عملية تناسب الاستخدام اليومي والإجازات. يحتوي على خزائن مدمجة توفر حلول تخزين فعالة في المساحة المحدودة، والحمام مجهز بالكامل مع مستلزمات أساسية. الشرفة المغطاة تحمي من أشعة الشمس المباشرة وتسمح بالاستمتاع بالإطلالات البحرية في معظم أوقات اليوم. تم تصميم المبنى بجودة بناء جيدة مع صيانة منتظمة للمناطق المشتركة مثل المسبح والحدائق، مما يضمن الحفاظ على قيمة الممتلكات على المدى الطويل.

البيئة ونمط الحياة

السعر والتوفر

يبدأ سعر الاستوديو من 192,000 يورو، وهو أقل من المشاريع المماثلة في المناطق المجاورة مثل أكوامار في توريه ديل مار (بدءاً من 219,950 يورو) ولانتانا ريزيدنسيال في ميخاس (بدءاً من 205,000 يورو). يجعل هذا التسعير المشروع خياراً جذاباً للمشترين الذين يبحثون عن استثمار ساحلي بأسعار معقولة في منطقة بنالمدانا.

€192,000
السعر المبدئي
31 m²
مساحة المعيشة
1
الحمامات
€180
ضريبة النفايات/سنوياً

البيئة المحيطة

يقدم هذا الاستوديو نمط حياة ساحلي حضري حيث يمكن للسكان الاستمتاع بالقرب من الشاطئ والمرافق الحضرية في نفس الوقت. يبدأ اليوم المشمس بإطلالات البحر من الشرفة، ثم الاستمتاع بوجبة الإفطار قبل التوجه للشاطئ القريب على بعد دقائق مشياً. بعد الظهر، يمكن استكشاف المقاهي والمطاعم المحيطة أو التمتع بالاسترخاء في المسبح المشترك. في المساء، تتوفر خيارات متنوعة للتسوق والترفيه في المركز التجاري القريب. مع وجود 32 عطلة محلية سنوياً، هناك دائماً مناسبة للاحتفال والاستمتاع بالثقافة الإسبانية الأصيلة.

طلب معلومات

الموقع والبيئة: Benalmadena Costa

البيئة والوصول

يقع الاستوديو في بيئة حضرية نابضة بالحياة مع توفر جميع الخدمات الأساسية على مسافة قريبة. يوجد سوبر ماركت على بعد 118 متر فقط وصيدلية على بعد 157 متر، مما يسهل الحياة اليومية للسكان. يمكن الوصول إلى محطة القطار في بنالمدانا - أرويو دي لا مييل على بعد 1.2 كم، ويتوفر 7 خطوط حافلات و50 محطة حافلات في المنطقة المحيطة. يوجد مستشفى على بعد 2.8 كم للرعاية الصحية، وعدة مراكز رياضية مثل نادي الراكيت على بعد 0.9 كم والبلدية فيرجن ديل كارمن على بعد 3.4 كم.

الخريطة والموقع

يظهر المشروع على الخريطة في موقع متميز في بنالمدانا كوستا، بالقرب من الشاطئ مباشرة. يمكن رؤية القرب من الشواطئ الرئيسية والمرافق الحضرية، بالإضافة إلى موقعه الاستراتيجي بين مالاجا وفويرغيرولا، مما يجعله نقطة انطلاق مثالية لاستكشاف المنطقة بأكملها.

A garden filled with various cacti and succulents, showcasing a vibrant and diverse plant collection.

الموقع الإقليمي

يقع المشروع في بنالمدانا كوستا، وهي جزء من بلدية بنالمدانا في مقاطعة مالاجا. تشكل بنالمدانا جزءاً من منطقة كوستا ديل سول السياحية الشهيرة، وتقع على بعد حوالي 12 كم غرب مالاجا المدينة و20 كم شرق فويرغيرولا. يقع المشروع في المنطقة الساحلية المركزية من بنالمدانا، مما يمنحه سهولة الوصول إلى كل من المدينة والمناطق المحيطة.

المرافق والوصول

يقع الاستوديو بالقرب من ثلاثة شواطئ رئيسية: شاطئ سانتا آنا على بعد 458 متر، وشاطئ بنالمدانا على بعد 681 متر، وشاطئ بيل بيل على بعد 690 متر. يمكن الوصول إلى مطار مالاجا كوستا ديل سول على بعد 9.5 كم، مما يسهل الوصول للرحلات الدولية. يوجد ثلاثة ملاعب جولف قريبة: بنالمدانا بيتش بوت على بعد 2.9 كم، وكامبو دي جولف ميغويل أنخيل خيمينيث على بعد 5.3 كم، ونادي جولف مالاجا بارادور على بعد 8.2 كم.

مسافة الشاطئ 0.3 km
Malaga-Costa del Sol (AGP) 9 km
Gibraltar (GIB) 89 km
Benalmadena - Arroyo de la Miel 1.2 km
El Pinillo 2 km

المصدر: OpenStreetMap, Google Maps

Exterior view of a municipal building with wooden doors and a sign reading "Museo Municipal.

الطبيعة والمناخ

Diamond-shaped sign with crown, castle, and water, featuring "Benalmadena" text.

يتمتع الموقع بمتوسط درجة حرارة سنوي يبلغ 18.7 درجة مئوية، مع مدى ترمومتري يتراوح بين 12-26 درجة مئوية خلال العام. تسجل المنطقة حوالي 3,888 ساعة من أشعة الشمس سنوياً، مما يجعلها واحدة من أكثر المناطق مشمساً في أوروبا. يستمر موسم السباحة لمدة 5 أشهر حيث تصل درجة حرارة الماء إلى 20 درجة مئوية أو أكثر. يرتفع المشروع 35 متراً فوق مستوى سطح البحر، مع وجود منحدر بدرجة 7.3% باتجاه الشاطئ، مما يمنح الموقع إطلالات أفضل على البحر.

3888 ساعات الشمس/سنة
5 موسم السباحة (أشهر)
18.7°C متوسط الحرارة السنوي
35m الارتفاع

المصدر: Open-Meteo (2020–2025 متوسط)

الشواطئ والترفيه

تتوفر العديد من الشواطئ عالية الجودة بالقرب من المشروع، بما في ذلك شاطئ سانتا آنا وشاطئ بيل بيل الشهيرين. يمكن للسكان الاستمتاع بالأنشطة المائية المختلفة على طول ساحل بنالمدانا. كما يوجد في المنطقة ثلاثة ملاعب جولف، مما يوفر خيارات ترفيهية لمحبي هذه الرياضة. تتوفر مرافق رياضية متنوعة مثل نادي الراكيت والبلدية فيرجن ديل كارمن، بالإضافة إلى مناظر طبيعية يمكن استكشافها من عدة نقاط مراقبة قريبة مثل ميرادور لوس كانيونيس على بعد 2.8 كم.

شواطئ

  • Playa de Santa Ana 0.3 km
  • Playa de Bil Bil 0.5 km
  • Playa Malapesquera 0.7 km
  • Playa del Arroyo de la Miel y los Melilleros 1 km
  • Playa de las Verdas 1.3 km
  • Playa de Torre Vigía 1.9 km

Golf

  • Golf Benalmadena Pitch& Putt 3 km
  • Campo de Golf Miguel Ángel Jiménez 5.4 km
  • Club de Golf Málaga Parador 8.3 km
  • Lauro Golf 11.2 km

المصدر: OpenStreetMap

Alt text: White stupa with golden spire, steps leading up, clear blue sky, mountainous background.

الموقع الإقليمي

يقع المشروع في بنالمدانا كوستا، وهي جزء من بلدية بنالمدانا في مقاطعة مالاجا. تشكل بنالمدانا جزءاً من منطقة كوستا ديل سول السياحية الشهيرة، وتقع على بعد حوالي 12 كم غرب مالاجا المدينة و20 كم شرق فويرغيرولا. يقع المشروع في المنطقة الساحلية المركزية من بنالمدانا، مما يمنحه سهولة الوصول إلى كل من المدينة والمناطق المحيطة.

دليل المنطقة: Benalmadena Costa

حقائق أساسية

المناخ

الشهر متوسط الحرارة معدل الأمطار
يناير 11.7°C 62 mm
فبراير 12.1°C 64 mm
مارس 14.1°C 53 mm
أبريل 16.0°C 36 mm
مايو 18.2°C 33 mm
يونيو 22.3°C 7 mm
يوليو 25.7°C 1 mm
أغسطس 26.0°C 2 mm
سبتمبر 22.8°C 9 mm
أكتوبر 19.0°C 52 mm
نوفمبر 15.1°C 77 mm
ديسمبر 12.4°C 71 mm

المرافق القريبة

192 restaurant
5 school
28 pharmacy
22 bank
43 cafe
8 dentist

الارتفاع والتضاريس

35m الارتفاع
0.3 km مسافة الشاطئ
7.3% الانحدار إلى الشاطئ

حاد

معالم قريبة

مراكز رياضية

نقاط مشاهدة

Ev Charging

شواطئ

ملاعب الغولف

موانئ ترفيهية

النقل والوصول

9 km Malaga-Costa del Sol (AGP)
89 km Gibraltar (GIB)
397 km Alicante-Elche (ALC)
1.2 km Benalmadena - Arroyo de la Miel
2 km El Pinillo
3.9 km Torremuelle

تفاصيل المشروع

المشروع Middle Floor Studio in Benalmadena Costa
المدينة Benalmadena Costa
المنطقة Costa del Sol
السعر المبدئي €192,000
مساحة المعيشة 31 m²
السعر لكل م² €6,193 / m²
التراس 6 m²
الحمامات 1
موقف سيارات لا
مسبح نعم
حديقة نعم
حالة البناء key_ready
مسافة الشاطئ 0.3 km
تاريخ الإنجاز 1975
ضريبة النفايات/سنوياً €180
تاريخ النشر 2026-04-24

Ref: VL688699

المصدر: Wikipedia, Wikidata, INE, Junta de Andalucía

Omar Al-Nasser
Omar Al-Nasser
خبير عقاري

عمر الناصر يفهم بعمق احتياجات العملاء الناطقين بالعربية، ويرشدهم بثقة في سوق العقارات الإسباني. هو يضمن عملية شراء سلسة ومحترمة ثقافيًا.

AI-assisted multilingual representative. Your inquiry is handled by our real support team.

رد خلال 24 ساعة

مهتم؟

اترك بياناتك واحصل على معلومات عن التوفر، والأسعار، والمخططات.

المواصفات الفنية
يقع المشروع على ارتفاع 35 متراً فوق مستوى سطح البحر
سجل المنطقة 3,888 ساعة من أشعة الشمس سنوياً
يوجد 800 عملية معاملات عقارية في المنطقة
متوسط دخل المقاطعة 16,450 يورو

Conversation history

Ask a question to start