3 Bed Penthouse in Benalmadena في Benalmadena — بنتهاوس
بنتهاوس

بنتهاوس للبيع في بنالمادينا

يوفر هذا البنتهاوس في بنالمادينا فرصة فريدة لاحتضان أسلوب الحياة المتوسطي. يقع العقار في منطقة حضرية نابضة بالحياة ولكنه على بعد خطوات من الشاطئ، ويتميز بإطلالات خلابة على البحر. إنه يمزج بين الراحة الحديثة والموقع المناسب، مما يجعله خيارًا مثاليًا لأولئك الذين يبحثون عن منزل على ساحل إسبانيا المشمس. تضمن المرافق التي يسهل الوصول إليها والاتصال الممتاز بالنقل أن تكون منطقة جذابة.

€1,260,000
3
غرف النوم
3
الحمامات
313 m²
مساحة المعيشة
€1,260,000
Prijs
0.6 km
مسافة الشاطئ

تحليل المشروع

أهم خصائص الموقع، والوحدات، ومراحل المشروع، ونقاط الاهتمام.

الموقع

يقع العقار في منطقة حضرية في بنالمادينا، ويتمتع بإطلالات على البحر. في حين أنه يوفر بيئة هادئة، إلا أنه يقع على مسافة قريبة من المرافق، مما يضمن سهولة الحياة اليومية والترفيه.

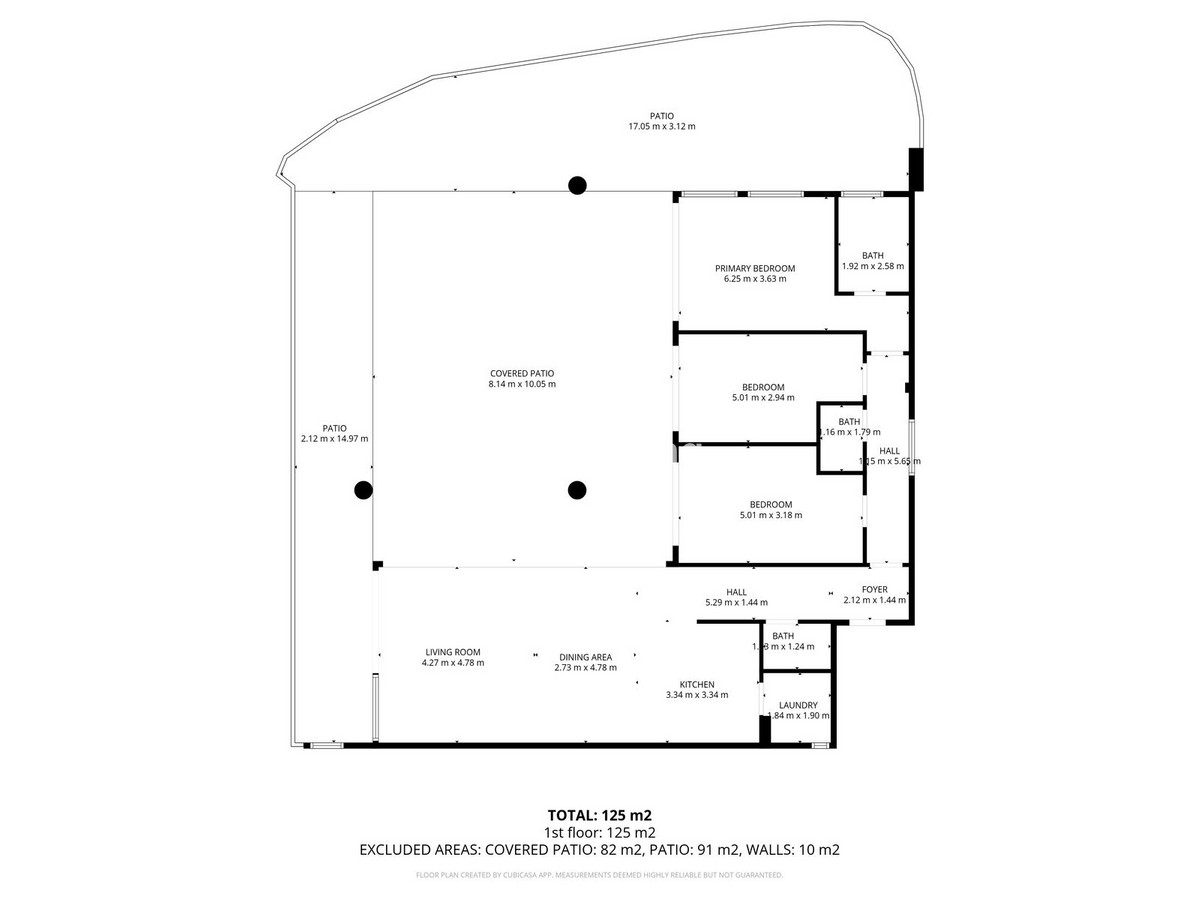
المخططات

يعد هذا البنتهاوس مثاليًا لأولئك الذين يبحثون عن الراحة الحديثة والمناظر الخلابة. يتميز بشرفة واسعة مع جاكوزي خاص وإمكانية الوصول المباشر إلى المسبح المشترك، مما يوفر مساحة مثالية للاسترخاء والترفيه.

حالة المشروع

يمثل المشروع بنية حديثة، مع مواد عالية الجودة وتشطيبات راقية. إنه في حالة ممتازة ومصمم لتعظيم المناظر وراحة العيش.

نقاط هامة

يقع العقار في منطقة حضرية، وقد يكون تطويره مرتبطًا بقيود تتعلق بالمباني المجاورة والمناطق المشتركة. على الرغم من الإطلالات البحرية، قد يؤثر القرب المباشر للمناطق المطورة على الخصوصية في مناطق معينة.

نمط الحياة

يعد هذا البنتهاوس في بنالمادينا خيارًا ممتازًا لأولئك الذين يبحثون عن منزل يوفر مزيجًا من الهدوء والراحة. إنه مثالي للعائلات، حيث يوفر مساحة واسعة ووسائل راحة للجميع. بالنسبة للمستثمرين الذين يبحثون عن منزل للعطلات، فإن موقعه القريب من الشواطئ وملاعب الجولف والمرافق يجعله خيارًا جذابًا مع إمكانات تأجير قوية. إن الاستمتاع بالشمس والقرب من البحر والتشطيبات عالية الجودة تجعله مناسبًا لأولئك الذين يبحثون عن نمط الحياة المتوسطي.

الجودة والتشطيبات

يتميز البنتهاوس بمواد عالية الجودة وتشطيبات حديثة. يوفر 3 غرف نوم و 3 حمامات مجهزة بالكامل، مما يضمن الراحة والملاءمة. تفتح منطقة المعيشة الفسيحة مباشرة على الشرفة، مما يخلق تجربة معيشة سلسة داخلية وخارجية. تم تجهيز الشرفة بجاكوزي خاص، مما يجعلها مثالية للاسترخاء. تم تجهيز العقار أيضًا بتكييف الهواء وخزائن مدمجة ومصعد، مما يعزز الراحة والملاءمة بشكل أكبر.

البيئة ونمط الحياة

السعر والتوفر

يبدأ سعر هذا البنتهاوس الفريد من 1,260,000 يورو. يوفر العقار 3 غرف نوم و 3 حمامات، ويقدم مساحة معيشة واسعة تبلغ 313 مترًا مربعًا. يقع في منطقة مرغوبة، ويجعل مزيجه النادر من الخصوصية والإطلالات البحرية خيارًا جذابًا. بفضل تشطيباته عالية الجودة وموقعه الاستراتيجي، من المتوقع أن يجذب هذا العقار أولئك الذين يبحثون عن نمط حياة فاخر على الواجهة البحرية.

€1,260,000
Prijs
3
غرف النوم
313 m²
مساحة المعيشة
3
الحمامات
€166
ضريبة النفايات/سنوياً

البيئة المحيطة

يقع هذا العقار في بنالمادينا ضمن بيئة حضرية نابضة بالحياة، على بعد مسافة قصيرة سيرًا على الأقدام من المتاجر والمطاعم والشواطئ. تضم المنطقة 185 مطعمًا و 27 صيدلية و 44 مقهى، مما يوفر وفرة من الخيارات للحياة اليومية. يبلغ متوسط درجة الحرارة بين 12 و 26 درجة مئوية، مما يجعله مثاليًا للاستمتاع بالأنشطة الخارجية على مدار العام. تضمن وسائل النقل المريحة، بما في ذلك 9 خطوط نقل عام و 15 محطة حافلات، سهولة التنقل. يضمن الموقع المرتفع للممتلكات واتجاهها الجنوبي أشعة الشمس الوفيرة والمناظر البحرية الساحرة.

طلب معلومات

الموقع والبيئة: Benalmadena

البيئة والوصول

تدور الحياة في بنالمادينا حول الراحة وأسلوب الحياة المتوسطي. يبلغ عدد سكان المنطقة حوالي 78,338 نسمة، وتضم 185 مطعمًا و 27 صيدلية و 44 مقهى، مما يضمن أن الضروريات اليومية في متناول اليد. يقع شاطئ مالابيسكيرا على بعد 229 مترًا فقط، وشاطئ سانتا آنا على بعد 588 مترًا، مما يوفر سهولة الوصول لعشاق الشاطئ. تقع العديد من ملاعب الجولف، بما في ذلك ملعب جولف بينالمادينا بيتش آند بت (3.4 كم)، على بعد مسافة قصيرة بالسيارة، مما يجعلها مكانًا مثاليًا لعشاق الجولف.

الخريطة والموقع

توضح الخريطة موقع بنالمادينا، مع تسليط الضوء على قرب العقار من الشواطئ والمطاعم والمتاجر ووسائل النقل العام. كما أنها تبرز موقعها النسبي بالنسبة لمطار ملقا وملاعب الجولف الرئيسية، مما يدل على سهولة الوصول إليها.

A garden filled with various cacti and succulents, showcasing a vibrant and diverse plant collection.

الموقع الإقليمي

تقع بنالمادينا في الأندلس بجنوب إسبانيا، وهي جزء من كوستا ديل سول، وتقع بين توريمولينوس وفيونخيرولا. تقع على بعد حوالي 12 كم غرب مدينة ملقا، مما يوفر موقعًا مثاليًا للاستمتاع بالحياة الساحلية مع الحفاظ على سهولة الوصول إلى المراكز الحضرية. تشتهر المنطقة بشواطئها الجميلة وحياتها الليلية النابضة بالحياة ومجموعة متنوعة من الأنشطة الخارجية.

المرافق والوصول

يتمتع البنتهاوس بموقع متميز، حيث يقع على بعد 229 مترًا فقط من شاطئ بلايا مالابيسكيرا. كما أنه قريب من المطاعم (185) والصيدليات (27) والبنوك (22)، وكلها على مسافة قريبة. تقع على بعد 9.3 كم من مطار ملقا (AGP)، مما يسهل السفر الدولي. تقع العديد من ملاعب الجولف، بما في ذلك ملعب جولف بينالمادينا بيتش آند بت، على بعد أقل من 5 كم. وسائل النقل العام متاحة بسهولة مع 9 خطوط حافلات و 15 محطة حافلات.

مسافة الشاطئ 0.6 km
Malaga-Costa del Sol (AGP) 9 km
Gibraltar (GIB) 88 km
Benalmadena - Arroyo de la Miel 0.8 km
El Pinillo 2 km

المصدر: OpenStreetMap, Google Maps

Exterior view of a municipal building with wooden doors and a sign reading "Museo Municipal.

الطبيعة والمناخ

Diamond-shaped sign with crown, castle, and water, featuring "Benalmadena" text.

تتمتع منطقة بنالمادينا بمناخ متوسطي، بمتوسط درجات حرارة تتراوح بين 12 درجة مئوية و 26 درجة مئوية. تستمتع المنطقة بما يقرب من 3888 ساعة من ضوء الشمس سنويًا، مما يجعلها مثالية للأنشطة الخارجية. يمتد موسم السباحة عادة لمدة 4 أشهر، مع بقاء درجة حرارة الماء فوق 20 درجة مئوية. يقع العقار على ارتفاع 53 مترًا فوق مستوى سطح البحر، ويوفر اتجاهه الجنوبي إطلالات بحرية واسعة.

3888 ساعات الشمس/سنة
4 موسم السباحة (أشهر)
18.6°C متوسط الحرارة السنوي
53m الارتفاع

المصدر: Open-Meteo (2020–2025 متوسط)

الشواطئ والترفيه

تتميز بنالمادينا بقربها من الشواطئ، حيث يقع شاطئ بلايا مالابيسكيرا على بعد 229 مترًا فقط، وشاطئ بلايا دي سانتا آنا على بعد 588 مترًا. تضم المنطقة أيضًا شاطئين حاصلين على العلم الأزرق: كارفاخال وفوينتي دي لا سالود. يمكن لعشاق الرياضة العثور على العديد من المراكز الرياضية في مكان قريب، بما في ذلك نادي راكيتا (0.7 كم) وبوليديبورتيفو أرويو دي لا مييل (1.0 كم). يمكن لعشاق الجولف الاستمتاع باللعب في العديد من ملاعب الجولف القريبة.

شواطئ

  • Playa de Santa Ana 0.6 km
  • Playa de Bil Bil 0.7 km
  • Playa Malapesquera 1 km
  • Playa del Arroyo de la Miel y los Melilleros 1 km
  • Playa de las Verdas 1.3 km
  • Playa de Torre Vigía 1.9 km

Golf

  • Golf Benalmadena Pitch& Putt 2.7 km
  • Campo de Golf Miguel Ángel Jiménez 5.4 km
  • Club de Golf Málaga Parador 8.3 km
  • Lauro Golf 10.9 km

مرافق رياضية

219 المرافق المتاحة

المصدر: Blue Flag 2026, OpenStreetMap, CSD

Alt text: White stupa with golden spire, steps leading up, clear blue sky, mountainous background.

الموقع الإقليمي

تقع بنالمادينا في الأندلس بجنوب إسبانيا، وهي جزء من كوستا ديل سول، وتقع بين توريمولينوس وفيونخيرولا. تقع على بعد حوالي 12 كم غرب مدينة ملقا، مما يوفر موقعًا مثاليًا للاستمتاع بالحياة الساحلية مع الحفاظ على سهولة الوصول إلى المراكز الحضرية. تشتهر المنطقة بشواطئها الجميلة وحياتها الليلية النابضة بالحياة ومجموعة متنوعة من الأنشطة الخارجية.

دليل المنطقة: Benalmadena

Benalmádena is a town in Andalusia in southern Spain, 12 km west of Málaga, on the Costa del Sol between Torremolinos and Fuengirola.

حقائق أساسية

27.2 km² المساحة

المناخ

الشهر متوسط الحرارة معدل الأمطار
يناير 11.6°C 62 mm
فبراير 11.9°C 64 mm
مارس 13.9°C 53 mm
أبريل 15.9°C 36 mm
مايو 18.1°C 33 mm
يونيو 22.2°C 7 mm
يوليو 25.6°C 1 mm
أغسطس 25.9°C 2 mm
سبتمبر 22.7°C 9 mm
أكتوبر 18.9°C 52 mm
نوفمبر 15.0°C 77 mm
ديسمبر 12.3°C 71 mm

المرافق القريبة

185 restaurant
5 school
27 pharmacy
22 bank
44 cafe
8 dentist

الارتفاع والتضاريس

53m الارتفاع
0.6 km مسافة الشاطئ
6.7% الانحدار إلى الشاطئ

حاد

معالم قريبة

مراكز رياضية

نقاط مشاهدة

Ev Charging

شواطئ

ملاعب الغولف

موانئ ترفيهية

النقل والوصول

9 km Malaga-Costa del Sol (AGP)
88 km Gibraltar (GIB)
398 km Alicante-Elche (ALC)
0.8 km Benalmadena - Arroyo de la Miel
2 km El Pinillo
3.7 km Torremuelle

تفاصيل المشروع

المشروع 3 Bed Penthouse in Benalmadena
المدينة Benalmadena
المنطقة Costa del Sol
Prijs €1,260,000
مساحة المعيشة 313 m²
السعر لكل م² €4,025 / m²
التراس 171 m²
غرف النوم 3
الحمامات 3
موقف سيارات نعم
مسبح نعم
حديقة لا
حالة البناء for_sale
مسافة الشاطئ 0.6 km
تاريخ الإنجاز 2019
ضريبة النفايات/سنوياً €166
تاريخ النشر 2026-04-19

Ref: VL646920

المصدر: Wikipedia, Wikidata, INE, Junta de Andalucía

ملخص

  • بنتهاوس واسع من 3 غرف نوم مع إطلالات مفتوحة على البحر.
  • شرفة واسعة مع جاكوزي خاص وإمكانية الوصول المباشر إلى المسبح المشترك.
  • يقع في منطقة حضرية في بنالمادينا، بالقرب من الشواطئ والمرافق.
  • تشطيبات حديثة وعالية الجودة لأسلوب حياة فاخر.
  • موقع مريح، على بعد 9.3 كم فقط من مطار ملقا.

مقارنة إقليمية

مقارنة بالعقارات الفاخرة الأخرى في بنالمادينا مثل Marina Golden Bay (بسعر يبدأ من 1,038,000 يورو)، و Macan Beach Residences (بسعر يبدأ من 1,040,000 يورو)، و Casatalaya (بسعر يبدأ من 900,000 يورو)، يبدأ سعر هذا البنتهاوس من 1,260,000 يورو. على الرغم من السعر الأعلى، فإن ميزاته الفريدة، مثل الجاكوزي الخاص، والوصول المباشر إلى المسبح المشترك، والموقع النادر الذي يوفر إطلالات بحرية مفتوحة، قد تبرر قيمته الأعلى. توفر منطقة بنالمادينا حياة حضرية نابضة بالحياة مع العديد من المطاعم والمتاجر والشواطئ، مما يجعلها وجهة عقارية جذابة. مقارنة بالعقارات الأخرى التي تم بناؤها حديثًا أو تم تجديدها في المنطقة، يقدم هذا البنتهاوس بيئة راسخة ومتطورة مع جاذبيتها المتأصلة.

الأسئلة الشائعة

ما مقدار الخصوصية التي يوفرها هذا البنتهاوس؟
يزعم أن العقار لا يوجد به جيران مباشرون ويوفر خصوصية جيدة في منطقة ذات إطلالات بحرية مفتوحة. تتميز الشرفة بجاكوزي خاص وإمكانية الوصول المباشر إلى المسبح المشترك.
كيف يمكن الوصول إلى العقار؟
يمكن الوصول إلى العقار بسهولة عبر 9 خطوط نقل عام و 15 محطة حافلات. يقع مطار ملقا (AGP) على بعد 9.3 كم فقط (جويًا)، مما يسهل السفر الدولي. أقرب محطة قطار هي Benalmadena - Arroyo de la Miel (0.8 كم).
ما هي كفاءة الطاقة للعقار؟
لم يتم تقديم تفاصيل كفاءة الطاقة للعقار.
كيف هو سوق العقارات في بنالمادينا؟
تعد بنالمادينا منطقة شهيرة على كوستا ديل سول، وتجذب المشترين المحليين والدوليين. توفر المنطقة العديد من وسائل الراحة والشواطئ والأنشطة، وعادة ما يظل سوق العقارات نشطًا.
ما هي المرافق القريبة؟
يقع العقار في منطقة حضرية تضم 185 مطعمًا و 27 صيدلية و 22 بنكًا و 44 مقهى، وكلها تقع على مسافة قريبة. توجد أيضًا مراكز رياضية ومناطق تسوق قريبة.
ما هي التكاليف المحتملة بخلاف سعر الشراء؟
قد تشمل التكاليف الإضافية المحتملة ضرائب الشراء ورسوم كاتب العدل ورسوم التسجيل ورسوم إدارة المجتمع والضرائب البلدية (IBI). يوصى بالحصول على تفاصيل التكلفة المفصلة.
ما هي عملية شراء العقارات في إسبانيا؟
تتضمن عملية الشراء عادةً تقديم عرض، وعقد اتفاقية مؤقتة، وتعيين محامٍ، والحصول على رقم NIE، وفتح حساب بنكي، وإجراء العناية الواجبة، والتوقيع النهائي على الصك، والتسجيل في السجل المناسب.
كيف هو المناخ في بنالمادينا؟
تتمتع بنالمادينا بمناخ متوسطي، بمتوسط درجات حرارة سنوية تتراوح بين 12 درجة مئوية و 26 درجة مئوية. تشتهر المنطقة بساعات الشمس الساطعة، مع ما يقرب من 3888 ساعة من ضوء الشمس سنويًا.
Maiko
Maiko
خبير عقاري

مايكو خبير عقاري متخصص في سوق الإسكان الإسباني. بفضل معرفته العميقة بمنطقة كوستا ديل سول، وكوستا بلانكا، والمناطق الساحلية الشهيرة الأخرى في إسبانيا، يساعد المشترين في العثور على العقار المناسب. يقوم بتحليل العروض بناءً على الموقع والقيمة السوقية وجودة البناء وقابلية السكن، ويقدم نصائح صادقة وقائمة على البيانات طوال عملية الشراء.

رد خلال 24 ساعة

مهتم؟

اترك بياناتك واحصل على معلومات عن التوفر، والأسعار، والمخططات.

المواصفات الفنية
تبلغ مساحة العقار 313 مترًا مربعًا.
يحتوي على جاكوزي خاص.
يقع على بعد 229 مترًا من شاطئ بلايا مالابيسكيرا.
يقع على بعد 3.4 كم من ملعب جولف بينالمادينا بيتش آند بت.
يقع على بعد 9.3 كم من مطار ملقا.

Conversation history

Ask a question to start