2 Bed Ground Floor Apartment in El Paraiso w El Paraiso — Apartament
Apartament

Apartament w El Paraiso, Malaga na sprzedaż

Ten nowo wybudowany apartament na parterze w El Paraiso, Malaga, oferuje harmonijne połączenie nowoczesnego stylu i komfortu. Z dwiema sypialniami i dwiema łazienkami jest idealny dla par lub małych rodzin. Otwarta przestrzeń dzienna ze zintegrowaną kuchnią sprzyja wspólnemu spędzaniu czasu, a prywatny taras zaprasza do relaksu. Kompleks posiada wspólny basen i jest częścią strzeżonego osiedla, co zapewnia bezpieczeństwo i spokój. Bliskość udogodnień i plaży czyni go atrakcyjną opcją na dom wakacyjny lub stałe miejsce zamieszkania.

€565.000
2
Sypialnie
2
Łazienki
113 m²
Powierzchnia
€565.000
Prijs

Analiza projektu

Kluczowe cechy lokalizacji, domów, etapu budowy i uwagi.

Lokalizacja

Apartament znajduje się w El Paraiso, ugruntowanej dzielnicy Costa del Sol, znanej z bliskości pól golfowych i usług. Miejsce to oferuje szybki dostęp do sklepów i restauracji, a plaża znajduje się zaledwie krótki spacer. Ta lokalizacja łączy zalety życia nadmorskiego z wygodą miejskiej infrastruktury.

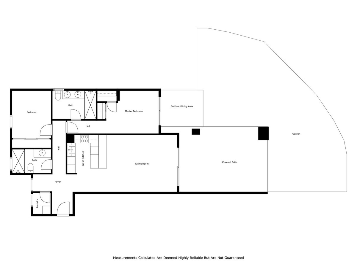
Układ

Ten apartament jest skierowany do kupujących, którzy cenią sobie komfort i funkcjonalność. Dwie sypialnie i dwie łazienki zapewniają wystarczającą przestrzeń. W pełni wyposażona otwarta kuchnia i prywatny taras są idealne dla nowoczesnego stylu życia. Bliskość sklepów, restauracji i plaży sprawia, że jest to praktyczny wybór na co dzień.

Status projektu

Jako nowo wybudowana nieruchomość, ten apartament korzysta z nowoczesnych technik budowlanych i wyposażenia. Niedawna budowa umożliwia natychmiastowe zamieszkanie bez konieczności remontu. Architektura integruje się z otoczeniem, a wykończenia wewnętrzne spełniają aktualne standardy. Kompleks obejmuje wspólne udogodnienia, takie jak basen, i jest zaprojektowany jako bezpieczne osiedle.

Ważne uwagi

Projekt ten nie oferuje bezpośredniego widoku na morze z wszystkich pomieszczeń, a taras ma powierzchnię 90 m². Nie jest on zaprojektowany jako wolnostojąca willa, lecz jako część osiedla z wspólnymi udogodnieniami. Lokalizacja w obszarze miejskim może powodować niewielki wzrost hałasu otoczenia, zwłaszcza w sezonie.

Szczegóły projektu

Projekt 2 Bed Ground Floor Apartment in El Paraiso
Miasto El Paraiso
Region Costa del Sol
Prijs €565.000
Powierzchnia 113 m²
Cena za m² €5.000 / m²
Taras 36 m²
Sypialnie 2
Łazienki 2
Parking Tak
Basen Tak
Ogród Tak
Status budowy for_sale
Zakończenie 2020
Podatek od nieruch./rok €680
Wywóz śmieci/rok €121
Opublikowano 2026-04-18

Ref: VL237845

Źródło: Wikipedia, Wikidata, INE, Junta de Andalucía

Styl życia i okolica

Ten apartament jest odpowiedni dla kupujących, którzy szukają połączenia bliskości plaży i infrastruktury miejskiej. Jeśli preferujesz nowy budynek w bezpiecznym kompleksie ze wspólnym basenem, jest to odpowiednia opcja. Jest idealny dla par lub małych rodzin szukających komfortowego domu wakacyjnego lub stałego miejsca zamieszkania z łatwym dostępem do pól golfowych i terenów rekreacyjnych. Może również zainteresować inwestorów, którzy chcą nabyć nieruchomość pod wynajem w popularnej lokalizacji nadmorskiej.

Jakość i wykończenie

Apartament charakteryzuje się nowoczesną konstrukcją i doskonałą jakością wykończenia. Obejmuje w pełni wyposażoną kuchnię z wysokiej jakości sprzętem AGD i stylowymi armaturami. Łazienki są również wyposażone w nowoczesną armaturę sanitarną i eleganckie powierzchnie. Klimatyzacja zapewnia przyjemne temperatury przez cały rok. Duże okna i orientacja południowo-zachodnia maksymalizują dopływ światła. Wbudowane szafy zapewniają dodatkową przestrzeń do przechowywania. Kompleks jest zaprojektowany jako zamknięte osiedle ze wspólnym basenem, ogrodami i profesjonalną konserwacją.

Okolica i styl życia

Cena i dostępność

Oferowany apartament jest dostępny od 565 000 €. Ten apartament z 2 sypialniami i 2 łazienkami o powierzchni mieszkalnej 113 m² odzwierciedla aktualny poziom cen dla nowych nieruchomości tego typu w El Paraiso. Ceny mogą się różnić w zależności od dokładnej lokalizacji w ramach projektu, piętra i orientacji. Dostępność jest ograniczona, ponieważ jest to pojedyncza jednostka. Szczegółowe informacje o cenach innych dostępnych jednostek, jeśli istnieją, należy uzyskać bezpośrednio.

€565.000
Prijs
2
Sypialnie
113 m²
Powierzchnia
2
Łazienki
€680
Podatek od nieruch./rok
€121
Wywóz śmieci/rok

Okolica i styl życia

El Paraiso, co po hiszpańsku oznacza „Raj”, to region wyróżniający się wieloma udogodnieniami. Apartament znajduje się w strefie miejskiej, co oznacza, że sklepy, restauracje i usługi są łatwo dostępne pieszo. Bliskość plaży umożliwia spontaniczne wycieczki nad morze. Sam kompleks jest częścią bezpiecznego osiedla ze wspólnym basenem, co zapewnia poczucie bezpieczeństwa i relaksu. Średnia roczna temperatura 19,1°C i 3 856 godzin słońca rocznie sprzyjają aktywnemu stylowi życia na świeżym powietrzu. Sezon kąpielowy trwa około 5 miesięcy. Region oferuje również dużą koncentrację pól golfowych i centrów sportowych, które są łatwo dostępne, co czyni go atrakcyjnym miejscem dla entuzjastów sportu.

Poproś o informacje

Lokalizacja i okolica: El Paraiso

Okolica i dojazd

El Paraiso oferuje tętniące życiem otoczenie, w którym miejskie udogodnienia łączą się z aktywnościami rekreacyjnymi. Apartament znajduje się w bezpośrednim sąsiedztwie licznych restauracji (25 w promieniu 2 km), kawiarni (5) i sklepów, co ułatwia codzienne życie. Dla rodzin obecność międzynarodowej szkoły (The International School of Estepona, 0,2 km) jest ważnym czynnikiem. Plaża jest w zasięgu spaceru, co pozwala na relaksujące dni nad morzem. Kilka pól golfowych, w tym El Paraiso Golf Club (ok. 0,7 km), znajduje się również w pobliżu. Centra sportowe, takie jak RozaRossa Tennis and Padel Club (0,3 km), oferują dodatkowe możliwości rekreacyjne.

Mapa i lokalizacja

Mapa pokazuje lokalizację El Paraiso na Costa del Sol. Podkreśla bliskość plaż, pól golfowych i centrów miejskich. Pozycja apartamentu w tym dynamicznym regionie jest podkreślona przez oznaczenie najbliższych udogodnień i linii brzegowej.

Two-story house with a view of the city, featuring a balcony and a rooftop terrace.

Położenie w regionie

El Paraiso znajduje się na zachodnim wybrzeżu Costa del Sol, jednym z najbardziej znanych regionów wybrzeża Hiszpanii. Ta lokalizacja zapewnia dobre połączenie z większymi miastami, takimi jak Marbella i Estepona. Region jest znany przyjemnym klimatem, plażami i bogatą ofertą rekreacyjną. Oferowany apartament korzysta z bliskości pól golfowych i usług, jednocześnie zapewniając dostęp do atrakcji całej Costa del Sol, w tym lotniska w Maladze (ok. 45 km).

Dojazd i udogodnienia

Strategiczna lokalizacja w El Paraiso zapewnia dobrą dostępność. Plaża jest w zasięgu spaceru, z opcjami takimi jak Playa Salduna (1,4 km) i Playa Isdabe (1,5 km). Kilka pól golfowych, w tym El Paraiso Golf Club, znajduje się zaledwie kilka minut spacerem od hotelu (ok. 0,7 km). Supermarkety i apteki znajdują się również w pobliżu (odpowiednio 453 m i 1,1 km). Szpital znajduje się 5,2 km od obiektu. Międzynarodowe lotnisko Malaga-Costa del Sol (AGP) znajduje się 45 km od obiektu, co ułatwia podróżowanie międzynarodowe. W pobliżu znajduje się 6 linii transportu publicznego z 50 przystankami, co umożliwia poruszanie się bez samochodu. Połączenie z siecią drogową jest dobre.

Gibraltar (GIB) 46 km
Malaga-Costa del Sol (AGP) 53 km

Źródło: OpenStreetMap, Google Maps

Alt text: Panoramic view of a small town with lush green hills and scattered clouds.

Natura i klimat

An outdoor concert scene with a pianist on stage, surrounded by a large audience.

Klimat w El Paraiso jest typowo śródziemnomorski, z łagodnymi zimami i ciepłymi latami. Średnia temperatura wynosi 19,1°C. Region notuje około 3 856 słonecznych godzin rocznie, co gwarantuje długie okresy pięknej pogody. Sezon kąpielowy, w którym temperatura wody przekracza 20°C, trwa około 5 miesięcy. Wysokość 41 metrów nad poziomem morza zapewnia przyjemne temperatury i lekki wiatr. Region charakteryzuje się bujną roślinnością, która przyczynia się do atrakcyjności okolicy. Średnia roczna temperatura wynosi od 12°C do 27°C.

3856 Godziny słoneczne/rok
5 Sezon kąpielowy (miesiące)
19.1°C Śr. roczna temperatura
41m Wysokość n.p.m.

Źródło: Open-Meteo (2020–2025 średnia)

Plaże i rekreacja

El Paraiso znajduje się w pobliżu kilku atrakcyjnych plaż. Najbliższe to Playa Salduna (1,4 km), Playa Isdabe (1,5 km) i Playa del Saladillo (1,7 km). Plaże te oferują możliwości uprawiania sportów wodnych i relaksu. Dla golfistów region jest rajem z licznymi polami, w tym El Paraiso Golf Club (ok. 0,7 km) i El Campanario Golf Course (ok. 0,9 km). Miłośnicy sportu znajdą tu również kluby tenisowe i padlowe, takie jak RozaRossa Tennis and Padel Club (0,3 km). Bliskość marin, takich jak Puerto Deportivo José Banus (7,2 km), poszerza ofertę rekreacyjną.

Plaże

  • Salduna 1,4 km
  • Playa Isdabe 1,5 km
  • Playa del Saladillo 1,7 km
  • Playa Atalaya 1,9 km
  • Playa del Sol Villacana 2,3 km
  • Playa de Guadalmansa 3 km

Golf

  • El Paraíso Golf Club 0,7 km
  • El Paraiso Golf Clubhouse 0,9 km
  • El Campanario Golf Course 0,9 km
  • Tramores Golf 1,7 km

Źródło: OpenStreetMap

Położenie w regionie

El Paraiso znajduje się na zachodnim wybrzeżu Costa del Sol, jednym z najbardziej znanych regionów wybrzeża Hiszpanii. Ta lokalizacja zapewnia dobre połączenie z większymi miastami, takimi jak Marbella i Estepona. Region jest znany przyjemnym klimatem, plażami i bogatą ofertą rekreacyjną. Oferowany apartament korzysta z bliskości pól golfowych i usług, jednocześnie zapewniając dostęp do atrakcji całej Costa del Sol, w tym lotniska w Maladze (ok. 45 km).

Przewodnik po regionie: El Paraiso

El Paraíso is Spanish for "The Paradise." The name may refer to:

Kluczowe fakty

Klimat

Miesiąc Średnia temperatura Opady
Styczeń 12.0°C 94 mm
Luty 12.2°C 97 mm
Marzec 14.3°C 85 mm
Kwiecień 16.1°C 56 mm
Maj 18.1°C 43 mm
Czerwiec 22.4°C 11 mm
Lipiec 26.3°C 1 mm
Sierpień 26.8°C 2 mm
Wrzesień 23.1°C 19 mm
Październik 19.1°C 80 mm
Listopad 15.2°C 116 mm
Grudzień 12.6°C 104 mm

Udogodnienia w okolicy

25 restaurant
1 school
4 pharmacy
2 bank
1 park
5 cafe
1 dentist

Wysokość i Teren

41m Wysokość n.p.m.

W pobliżu

Centra sportowe

Pola golfowe

Plaże

Punkty widokowe

Przystanie

Szkoły międzynarodowe

Ev Charging

Transport

46 km Gibraltar (GIB)
53 km Malaga-Costa del Sol (AGP)
444 km Alicante-Elche (ALC)

Podsumowanie

  • Nowy apartament z 2 sypialniami i 2 łazienkami w El Paraiso, Malaga.
  • Zaledwie kilka kroków od plaży i pobliskich udogodnień, takich jak restauracje i sklepy.
  • Udogodnienia: wspólny basen, prywatny taras, klimatyzacja i wbudowane szafy.
  • Bliskość pól golfowych (El Paraiso Golf Club ok. 0,7 km) i centrów sportowych.
  • Dobre połączenie z międzynarodowym lotniskiem w Maladze (45 km) i okolicznymi miastami.

Porównanie regionalne

W porównaniu do innych projektów na Costa del Sol, takich jak Acqua Gardens w Esteponie (od 418 800 €) czy Alba Benalmadena w Benalmadenie (od 699 000 €), ten apartament w El Paraiso plasuje się cenowo w segmencie średnim. Bliskość pól golfowych i odległość spacerowa do plaży to ważne argumenty sprzedażowe, które nie zawsze występują w tym przedziale cenowym. Chociaż projekty takie jak Aby Upper w Esteponie (od 320 000 €) są często bardziej przystępne cenowo, mogą nie oferować takiego samego standardu wykończenia ani korzystnej lokalizacji. Szczególność tego projektu polega na połączeniu jakości nowego budownictwa, dostępu do miasta i bliskości plaży, co czyni go solidnym wyborem dla kupujących poszukujących zrównoważonego stylu życia na wybrzeżu.

Często zadawane pytania

Co oznacza nazwa 'El Paraiso' i jak się ona odzwierciedla w projekcie?
'El Paraiso' oznacza 'Raj'. Region jest znany z przyjemnego klimatu, bliskości Morza Śródziemnego i bujnej roślinności. Projekt oferuje udogodnienia, takie jak wspólny basen, i znajduje się w pobliżu plaż i pól golfowych, co przyczynia się do relaksującego stylu życia.
Jak wygląda połączenie z transportem publicznym?
W pobliżu znajduje się 6 linii transportu publicznego z 50 przystankami, co umożliwia dobrą mobilność bez samochodu.
Jakie systemy ogrzewania i chłodzenia są dostępne?
Apartament jest wyposażony w klimatyzację, która umożliwia zarówno ogrzewanie, jak i chłodzenie.
Czy ten apartament nadaje się do wynajmu?
Lokalizacja w popularnym regionie przybrzeżnym z bliskością usług i plaży sprawia, że apartament jest potencjalnie atrakcyjny na wynajem wakacyjny.
Jakie są dostępne atrakcje rekreacyjne w bezpośrednim sąsiedztwie?
W pobliżu znajdują się liczne restauracje, kawiarnie, pola golfowe (El Paraiso Golf Club), kluby tenisowe i padlowe, a także plaże, takie jak Playa Salduna.
Jakich bieżących kosztów można się spodziewać?
Bieżące koszty obejmują opłaty wspólnotowe za utrzymanie osiedla i basenu, podatki od nieruchomości (IBI) oraz potencjalnie koszty prądu, wody i internetu.
Jaki jest proces zakupu nieruchomości w Hiszpanii?
Proces zakupu zazwyczaj obejmuje rezerwację, podpisanie umowy przedwstępnej (Contrato de Arras), otwarcie konta bankowego, złożenie wniosku o numer NIE, a na końcu podpisanie aktu notarialnego u notariusza.
Jak daleko jest do najbliższego szpitala?
Najbliższy szpital znajduje się 5,2 km od obiektu.
Maiko
Maiko
Ekspert nieruchomości

Maiko jest Twoim ekspertem na hiszpańskim rynku nieruchomości. Dzięki dogłębnej znajomości Costa del Sol, Costa Blanca i innych regionów przybrzeżnych pomaga kupującym znaleźć odpowiednią nieruchomość. Jego analizy opierają się na lokalizacji, wartości rynkowej, jakości budowy i jakości życia, aby uczciwie i w oparciu o dane przeprowadzić Cię przez cały proces zakupu.

Odpowiedź w ciągu 24h

Zainteresowany?

Zostaw dane, a otrzymasz informacje o dostępności, cenach i planach.

Dane techniczne
Powierzchnia mieszkalna: 113 m²
Powierzchnia tarasu: 90 m²
Orientacja: Południowy zachód
Wspólny basen dostępny
Klimatyzacja zainstalowana

Historia rozmowy

Zadaj pytanie, aby zacząć