3 Bed Penthouse Duplex in Aloha في Aloha — بنتهاوس دوبلكس
بنتهاوس دوبلكس

بنتهاوس دوبلكس للبيع في ألوها، مالاغا

يقع هذا البنتهاوس الدوبلكس في منطقة ألوها بمالاغا، ويوفر مساحة معيشة واسعة تضم 3 غرف نوم وحمامين، بمساحة بناء تبلغ 129 مترًا مربعًا. يقع العقار في منطقة حضرية تتميز بسهولة الوصول إلى ملاعب الجولف والمدارس، ويوفر إطلالات على الجبال والحدائق. الشقة مواجهة للجنوب والجنوب الغربي، مما يضمن وفرة من الضوء الطبيعي.

€770,000
3
غرف النوم
2
الحمامات
129 m²
مساحة المعيشة
€770,000
Prijs

تحليل المشروع

أهم خصائص الموقع، والوحدات، ومراحل المشروع، ونقاط الاهتمام.

الموقع

يقع العقار في منطقة حضرية متطورة، بالقرب من العديد من ملاعب الجولف والمؤسسات التعليمية. يقع على ارتفاع 101 متر فوق مستوى سطح البحر، ويوفر موقعًا متميزًا يسهل الوصول إلى المناطق المحيطة مع توفير بيئة معيشية هادئة.

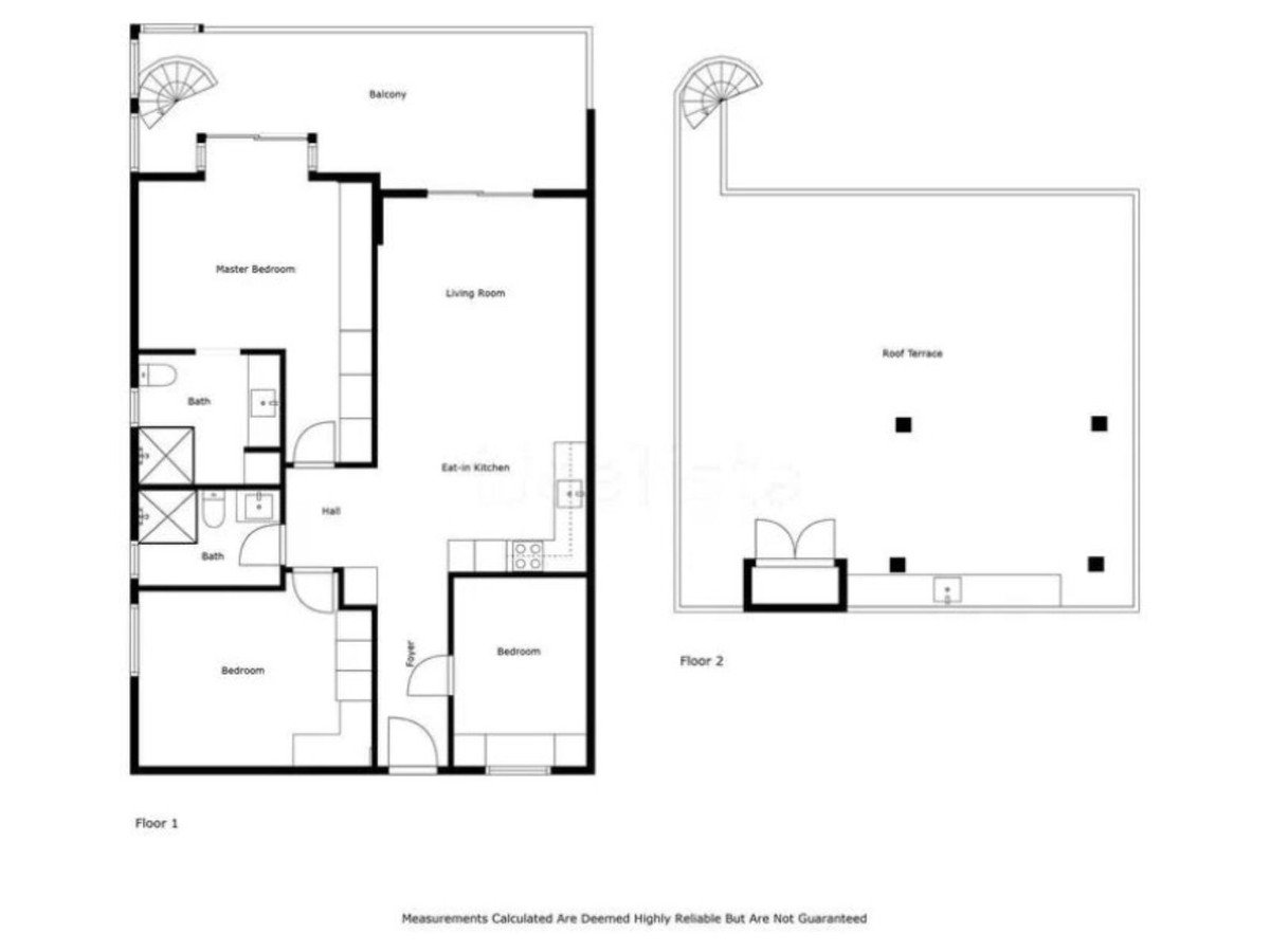
المخططات

يعتبر هذا البنتهاوس الدوبلكس خيارًا مثاليًا للمشترين الذين يبحثون عن الراحة والملاءمة. يوفر مطبخًا مجهزًا بالكامل وتراسًا خاصًا ومنطقة معيشة واسعة، مما يجعله مناسبًا للعائلات أو كمنزل لقضاء العطلات. تلبي المرافق الممتازة والحالة الممتازة للعقار متطلبات جودة الحياة العالية.

حالة المشروع

هذه الشقة هي جزء من سوق إعادة البيع وهي في حالة ممتازة. على الرغم من أنها ليست مشروعًا جديدًا، إلا أن مرافقها ومستوى صيانتها يمكن مقارنتهما بالمباني الجديدة. يوفر المجمع حمام سباحة مشترك وحمام سباحة للأطفال، ويتميز بمنطقة مسيجة آمنة، مما يضمن راحة السكان وسلامتهم.

نقاط هامة

لا يقع العقار مباشرة على الواجهة البحرية، وعلى الرغم من قربه من ملاعب الجولف، إلا أنه قد لا يكون مناسبًا للمشترين الذين يعطون الأولوية لأسلوب الحياة الساحلي. بالإضافة إلى ذلك، في حين يتم توفير مواقف خاصة للسيارات، قد يكون حجم مساحة المرآب المحددة محدودًا.

نمط الحياة

إذا كنت تبحث عن منزل للاستمتاع بالشمس والأنشطة الخارجية على مدار العام، فإن هذا البنتهاوس الدوبلكس في ألوها هو الخيار المثالي. إنه مناسب للمشترين الذين يقدرون الراحة ويرغبون في أن يكونوا على مسافة قريبة من المطاعم والمتاجر والمدارس. يعد القرب من العديد من ملاعب الجولف ميزة كبيرة لعشاق هذه الرياضة. بالإضافة إلى ذلك، يوفر القرب من مطار مالاغا (7.7 كم) سهولة التنقل للمسافرين المتكررين من رجال الأعمال أو العائلات.

الجودة والتشطيبات

تم تقييم حالة هذا البنتهاوس الدوبلكس على أنها 'ممتازة' وهو مجهز بمرافق عالية الجودة. يشمل ميزات مثل تراس مغطى، ومصعد، وخزائن مدمجة، وتلفزيون فضائي. الشقة مزودة بزجاج مزدوج وتوفر اتصالاً بالألياف البصرية، مما يضمن الراحة الحديثة. المطبخ المجهز بالكامل يعني أنه يمكن الانتقال إليه على الفور. تشمل أنظمة التحكم في المناخ تكييف الهواء ومدفأة، مما يسمح بالتكيف مع المواسم المختلفة.

البيئة ونمط الحياة

السعر والتوفر

يبدأ سعر هذا البنتهاوس الدوبلكس من 770,000 يورو، مما يعكس قيمة العقارات السكنية عالية الجودة في منطقة ألوها بمالاغا. تبلغ مساحة العقار 129 مترًا مربعًا ويحتوي على تراس كبير بمساحة 58 مترًا مربعًا، ويشمل 3 غرف نوم وحمامين. يعكس السعر الموقع المتميز للعقار وحالته الممتازة والمرافق الكاملة، بما في ذلك مسبح مجتمعي ومواقف خاصة للسيارات وأثاث كامل.

€770,000
Prijs
3
غرف النوم
129 m²
مساحة المعيشة
2
الحمامات

البيئة المحيطة

تقدم منطقة ألوها نمط حياة حضري يجمع بين الراحة والهدوء. يقع العقار في موقع متميز، على مسافة قريبة سيرًا على الأقدام من المتاجر والمطاعم والمدارس. يبلغ ارتفاع المنطقة 101 متر فوق مستوى سطح البحر، مما يوفر مناخًا محليًا لطيفًا، خاصة خلال أشهر الصيف الحارة. مع ما يقرب من 3833 ساعة من أشعة الشمس سنويًا وموسم سباحة مدته 5 أشهر، توفر المنطقة فرصًا واسعة للأنشطة الخارجية. تضم المنطقة 26 مطعمًا و 44 مقهى ومستشفيين، مما يوفر مجموعة شاملة من الخدمات للسكان.

طلب معلومات

الموقع والبيئة: Aloha

البيئة والوصول

تقدم منطقة ألوها بيئة حضرية نابضة بالحياة مع الحفاظ على قربها من الطبيعة. يقع العقار على مسافة قريبة من المتاجر (207 متر) والصيدليات (128 متر)، مما يجعل الحياة اليومية مريحة للغاية. في حين أن هناك مسافة إلى الشواطئ (أقرب شاطئ بلايا دي لا مالاغويتا حوالي 1.6 كم)، فإن المنطقة تتمتع بشبكة نقل عام جيدة مع 8 خطوط حافلات و 50 محطة. القرب من ملاعب الجولف (أقربها 8.1 كم) يضيف إلى خيارات الترفيه.

الخريطة والموقع

توضح هذه الخريطة الموقع الجغرافي للبنتهاوس الدوبلكس في منطقة ألوها بمالاغا. وتسلط الضوء على سهولة الوصول إلى الشواطئ والمطار وملاعب الجولف ومختلف المرافق الحضرية مثل محلات السوبر ماركت والصيدليات والمستشفيات.

Traditional house with multiple rooms, satellite dishes, and a view of a large building.

الموقع الإقليمي

تقع ألوها في مقاطعة مالاغا، وهي جزء من كوستا ديل سول، المعروفة بمناخها المشمس وفرصها الترفيهية الوفيرة. تقع المنطقة بالقرب من الساحل، وتوفر وسائل الراحة في المدينة مع الاستمتاع أيضًا بالمناظر الجبلية الداخلية. يتيح موقع العقار سهولة الوصول إلى مدينة مالاغا ومطارها الدولي، بينما يقع في منطقة سكنية هادئة نسبيًا.

المرافق والوصول

يتمتع العقار بإمكانية وصول ممتازة، حيث يقع على بعد 7.7 كم فقط (مسافة مستقيمة) من مطار مالاغا (AGP)، مما يسهل السفر الدولي. تقع أقرب محطة قطار على بعد 0.3 كم، وتوفر 8 خطوط مواصلات عامة خدمات محلية. تقع مجموعة متنوعة من المرافق ضمن مسافة قريبة، بما في ذلك 33 صيدلية و 15 بنكًا ومستشفيين. بالنسبة لعشاق الجولف، هناك العديد من ملاعب الجولف القريبة، أقربها على بعد 8.1 كم.

Alicante-Elche (ALC) 288 km
Malaga-Costa del Sol (AGP) 364 km
Gare d'Oran 0.3 km
Gare d'Oran 0.5 km

المصدر: OpenStreetMap, Google Maps

Alt text: "Cozy room with city view, featuring a balcony and modern decor.

الطبيعة والمناخ

A beige van is parked under an archway with a clear blue sky and trees in the background.

تتمتع منطقة ألوها بمناخ البحر الأبيض المتوسط، بمتوسط درجة حرارة سنوية تبلغ 18.7 درجة مئوية، وتصل درجات الحرارة القصوى في الصيف إلى 27 درجة مئوية، بينما تنخفض درجات الحرارة في الشتاء إلى 12 درجة مئوية. يوفر ما يقرب من 3833 ساعة من أشعة الشمس سنويًا، وهو مثالي للأنشطة الخارجية. يمتد موسم السباحة لمدة 5 أشهر، وتصل درجة حرارة المياه إلى 20 درجة مئوية. يوفر موقع العقار على ارتفاع 101 متر فوق مستوى سطح البحر ظروفًا مناخية لطيفة، بعيدًا عن الرطوبة الساحلية.

3833 ساعات الشمس/سنة
5 موسم السباحة (أشهر)
18.7°C متوسط الحرارة السنوي
116m الارتفاع

المصدر: Open-Meteo (2020–2025 متوسط)

الشواطئ والترفيه

في حين أن العقار لا يقع مباشرة على الواجهة البحرية، إلا أنه يبعد 1.6 إلى 1.8 كم فقط (مسافة مستقيمة) عن شواطئ مثل بلايا دي لا مالاغويتا وبلايا دي سان أندريس. تضم المنطقة أيضًا العديد من ملاعب الجولف، بما في ذلك نادي مالاغا بارادور للجولف على بعد 8.1 كم. بالإضافة إلى ذلك، هناك مراكز رياضية وحمامات سباحة قريبة، مما يوفر مجموعة واسعة من خيارات الترفيه والرياضة.

المصدر: OpenStreetMap

Alt text: Spacious room with city view, featuring large windows and modern decor.

الموقع الإقليمي

تقع ألوها في مقاطعة مالاغا، وهي جزء من كوستا ديل سول، المعروفة بمناخها المشمس وفرصها الترفيهية الوفيرة. تقع المنطقة بالقرب من الساحل، وتوفر وسائل الراحة في المدينة مع الاستمتاع أيضًا بالمناظر الجبلية الداخلية. يتيح موقع العقار سهولة الوصول إلى مدينة مالاغا ومطارها الدولي، بينما يقع في منطقة سكنية هادئة نسبيًا.

دليل المنطقة: Aloha

Aloha is the Hawaiian word for love, affection, peace, compassion and mercy, that is commonly used as a greeting. It can be used to welcome or bid farewell to someone also. It has a deeper cultural and spiritual significance for native Hawaiians, who use the term to define a force that holds together existence.

حقائق أساسية

803,329 عدد السكان
101m الارتفاع
64.0 km² المساحة

المناخ

الشهر متوسط الحرارة معدل الأمطار
يناير 11.8°C 60 mm
فبراير 12.0°C 47 mm
مارس 14.2°C 45 mm
أبريل 16.2°C 37 mm
مايو 18.7°C 32 mm
يونيو 22.4°C 6 mm
يوليو 26.1°C 0 mm
أغسطس 26.7°C 1 mm
سبتمبر 23.9°C 9 mm
أكتوبر 19.9°C 35 mm
نوفمبر 16.0°C 55 mm
ديسمبر 12.6°C 59 mm

المرافق القريبة

26 restaurant
12 school
33 pharmacy
15 bank
44 cafe
2 hospital
2 dentist

الارتفاع والتضاريس

116m الارتفاع

معالم قريبة

نقاط مشاهدة

مدارس دولية

مراكز رياضية

مسابح

النقل والوصول

288 km Alicante-Elche (ALC)
364 km Malaga-Costa del Sol (AGP)
422 km Valencia (VLC)
0.3 km Gare d'Oran
0.5 km Gare d'Oran
5.7 km Es Senia
2.6 km الباهيه
2.7 km محطة البرية الباهية
3.7 km La Gare de Morchid

تفاصيل المشروع

المشروع 3 Bed Penthouse Duplex in Aloha
المدينة Aloha
المنطقة Costa del Sol
Prijs €770,000
مساحة المعيشة 129 m²
السعر لكل م² €5,968 / m²
التراس 58 m²
غرف النوم 3
الحمامات 2
موقف سيارات نعم
مسبح نعم
حديقة نعم
حالة البناء for_sale
تاريخ الإنجاز 1991
تاريخ النشر 2026-04-24

Ref: VL562178

المصدر: Wikipedia, Wikidata, INE, Junta de Andalucía

ملخص

  • بنتهاوس دوبلكس في ألوها، مالاغا، بمساحة بناء 129 متر مربع وشرفة 58 متر مربع.
  • 3 غرف نوم، 2 حمام، بحالة ممتازة ومفروشة بالكامل.
  • قريب من ملاعب الجولف والمدارس، مع إطلالات على الجبال والحدائق.
  • مسبح مجتمعي، مرآب خاص، أمن على مدار 24 ساعة.
  • على بعد 7.7 كم من المطار، مع بعض المرافق على مسافة قريبة.

مقارنة إقليمية

مقارنة بـ Acqua Gardens في Estepona (بدءًا من 418,800 يورو) و Aby Upper (بدءًا من 320,000 يورو)، يقع هذا البنتهاوس الدوبلكس في Aloha بسعر 770,000 يورو، وهو موجه نحو الشريحة العليا. عادةً ما توفر العقارات في Estepona مواقع على الواجهة البحرية أو بالقرب منها بأسعار أقل. Alba Benalmadena في Benalmadena (بدءًا من 699,000 يورو) أقرب إلى هذا العقار من حيث السعر والموقع، لكن هذا العقار في Aloha يوفر مزايا أكبر من حيث المساحة ومساحة الشرفة. تشتهر منطقة Aloha بوسائل الراحة الحضرية، وسهولة الوصول إلى ملاعب الجولف، وبيئتها الهادئة نسبيًا، مما يبرر سعر هذا العقار.

الأسئلة الشائعة

ما هو نمط الحياة في منطقة ألوها؟
ألوها هي منطقة حضرية قريبة من ملاعب الجولف والمدارس، وتوفر وسائل الراحة الحضرية مع بيئة هادئة. يبلغ متوسط درجة الحرارة السنوية 18.7 درجة مئوية، مع 3833 ساعة شمس سنويًا.
ما هي المسافة من العقار إلى مطار مالاغا؟
تبلغ المسافة من العقار إلى مطار مالاغا (AGP) 7.7 كيلومترات (خط مستقيم).
ما هي جودة بناء العقار؟
العقار في حالة ممتازة، ويتميز بزجاج مزدوج وأنظمة تحكم في المناخ مثل تكييف الهواء والمدفأة.
ما هي اتجاهات سوق العقارات في منطقة ألوها؟
تعد منطقة ألوها جزءًا من كوستا ديل سول، والمعروفة بعقاراتها السكنية عالية الجودة ووسائل الراحة الملائمة، مما يجذب المشترين الدوليين الذين يبحثون عن نمط حياة مريح.
ما هي المرافق المتوفرة في الجوار؟
تقع محلات السوبر ماركت (207 متر) والصيدليات (128 متر) والمستشفيات (892 متر) على مسافة قريبة سيرًا على الأقدام. تضم المنطقة 26 مطعمًا و 44 مقهى.
ما هي التكاليف الأخرى بخلاف سعر الشراء؟
قد يتم تطبيق ضرائب على الممتلكات ورسوم المجتمع وفواتير الخدمات. تحتاج المبالغ المحددة إلى مزيد من التأكيد.
ما هي عملية الشراء؟
تتضمن عملية الشراء عادةً اتفاقية حجز، وعقد شراء خاص، وتوقيع وثيقة عامة نهائية. يُنصح بالتشاور مع متخصص قانوني.
هل العقار قريب من الشاطئ؟
أقرب شاطئ، بلايا دي لا مالاغويتا، يبعد 1.6 كيلومتر (خط مستقيم) عن العقار.
Omar Al-Nasser
Omar Al-Nasser
خبير عقاري

عمر الناصر يفهم بعمق احتياجات العملاء الناطقين بالعربية، ويرشدهم بثقة في سوق العقارات الإسباني. هو يضمن عملية شراء سلسة ومحترمة ثقافيًا.

AI-assisted multilingual representative. Your inquiry is handled by our real support team.

رد خلال 24 ساعة

مهتم؟

اترك بياناتك واحصل على معلومات عن التوفر، والأسعار، والمخططات.

المواصفات الفنية
العقار عبارة عن إعادة بيع في حالة ممتازة.
يحتوي على مسبح مشترك ومسبح للأطفال.
يوفر مطبخًا مجهزًا وخزائن مدمجة.

Conversation history

Ask a question to start