3 Bed Middle Floor Apartment in Orihuela Costa في Dehesa de Campoamor — شقة
شقة

شقة للبيع في دي هيسا دي كامبو أمور

تقع هذه الشقة في دي هيسا دي كامبو أمور، أوريويلا كوستا، أليكانتي، وهي مسكن مثالي للإقامة على مدار العام أو العطلات. تمتد الشقة على مساحة 73 مترًا مربعًا وهي في حالة جيدة، وتضم ثلاث غرف نوم وحمامًا واحدًا. توفر الشقة إطلالات على المسبح والمناطق الخضراء، وتتميز بشرفة خاصة مثالية للاستمتاع بالمناخ المتوسطي. يوفر المجمع السكني مسبحًا مجتمعيًا ومنطقة للأطفال وملاعب تنس، لتلبية احتياجات الاسترخاء والرياضة. يضمن موقعها المتميز سهولة الوصول إلى الشواطئ والمتاجر والمطاعم، مما يسهل الحياة اليومية.

يبدأ من €215,000
3
غرف النوم
1
الحمامات
73 m²
مساحة المعيشة
يبدأ من €215,000
السعر المبدئي
0.5 km
مسافة الشاطئ
جاهز للتسليم
حالة البناء

تحليل المشروع

أهم خصائص الموقع، والوحدات، ومراحل المشروع، ونقاط الاهتمام.

الموقع

تقع الشقة في منطقة حضرية تتمتع بسهولة الوصول إلى المرافق، مما يوفر الراحة اليومية. على الرغم من وجودها على مسافة من الشواطئ ووسط المدينة، إلا أن العديد من وسائل الراحة تقع على مسافة قريبة سيرًا على الأقدام، مما يجعلها مكانًا مناسبًا للسكن. تعزز المساحات الخضراء المحيطة والمرافق المجتمعية من جودة الحياة في المنطقة.

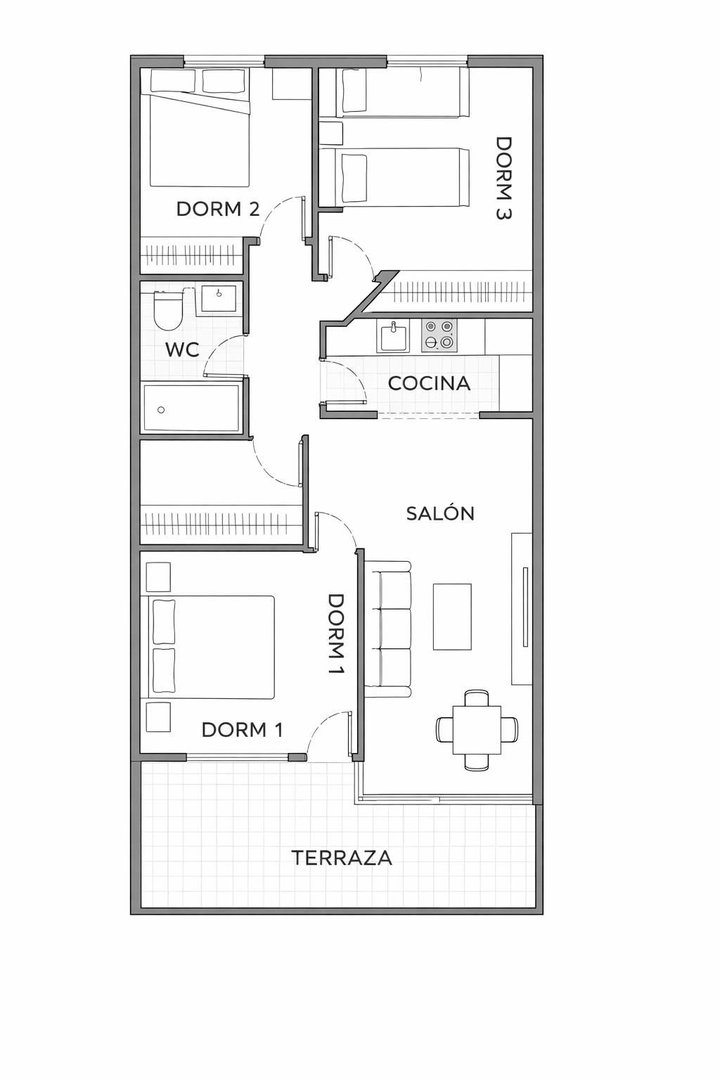
المخططات

توفر هذه الشقة المكونة من ثلاث غرف نوم أماكن إقامة واسعة للعائلات أو الأفراد الذين يحتاجون إلى مساحة إضافية. تجعل غرف النوم المجهزة بالكامل والتجهيزات المفروشة منها خيارًا جاهزًا للانتقال إليه. توفر الشرفة الخاصة مساحة للاسترخاء وتناول الطعام في الهواء الطلق، بينما تلبي المرافق المجتمعية الاحتياجات الترفيهية والرياضية.

حالة المشروع

العقار جاهز للسكن، مما يعني أن المشترين يمكنهم الانتقال على الفور دون انتظار اكتمال عملية البناء. هذه الإتاحة الفورية ميزة كبيرة لأولئك الذين يبحثون عن الانتقال السريع أو يرغبون في الاستمتاع بعقارهم الإسباني في أقرب وقت ممكن. حالة الانتهاء تضمن أن جميع المرافق جاهزة للاستخدام.

نقاط هامة

تقع الشقة في منطقة داخلية، وعلى الرغم من قربها من الشواطئ، إلا أنها ليست عقارًا على الواجهة البحرية. إنها تقع في بيئة حضرية قد لا تكون هادئة مثل المناطق الساحلية. المسافة إلى المطار بعيدة، وعلى الرغم من إمكانية الوصول إلى بعض وسائل الراحة سيرًا على الأقدام، فإن وجود سيارة سيكون أكثر ملاءمة. لم يتم ذكر موقف سيارات خاص، ولكن تم تضمين غرفة تخزين.

تفاصيل المشروع

المشروع 3 Bed Middle Floor Apartment in Orihuela Costa
المدينة Dehesa de Campoamor
المنطقة Costa Blanca
السعر المبدئي €215,000
مساحة المعيشة 73 m²
السعر لكل م² €2,945 / m²
غرف النوم 3
الحمامات 1
موقف سيارات لا
مسبح نعم
حديقة لا
حالة البناء key_ready
مسافة الشاطئ 0.5 km
تاريخ الإنجاز 1970
تاريخ النشر 2026-04-24

Ref: VL024854

المصدر: Wikipedia, Wikidata, INE, Junta de Andalucía

نمط الحياة

هذه الشقة مثالية للأفراد أو العائلات الذين يبحثون عن منزل عطلات أو مكان إقامة دائم في منطقة مشمسة. بالنسبة لأولئك الذين يقدرون الراحة، فإن القرب من محلات السوبر ماركت والصيدليات والمطاعم يمثل ميزة مهمة، حيث يقع العديد منها على مسافة قريبة. توفر غرف النوم الثلاث مساحة كافية لاستضافة الضيوف أو لاستيعاب عائلة متنامية. ستكون ملاعب التنس والمسبح المجتمعي داخل المجمع السكني إضافة جذابة لعشاق التنس والسباحة. سيقدر المشترون الذين يستمتعون بالأنشطة الخارجية والمناخ المتوسطي قربهم من الشواطئ (0.5 كم) وعدد ساعات الشمس الطويلة. في حين أن المنطقة تقع في الداخل، إلا أنها توفر بيئة سكنية هادئة مع الحفاظ على سهولة الوصول إلى المناطق المحيطة. تعني حالة الجاهزية للسكن إمكانية الانتقال السريع، مما يجعلها مثالية لأولئك الذين يتطلعون إلى البدء في الاستمتاع بأسلوب الحياة الإسباني على الفور.

الجودة والتشطيبات

تبلغ مساحة الشقة 73 مترًا مربعًا، وعلى الرغم من عدم توفر تفاصيل حول مواد التشطيب، إلا أن حالتها الجيدة تشير إلى الاهتمام بالعقار. توفر الخزائن المدمجة مساحة تخزين كافية، بينما توفر الشرفة الخاصة منطقة استرخاء خارجية. يشتمل المجمع السكني على مسبح مجتمعي وملاعب تنس، مما يشير عادةً إلى أن هذه المناطق المشتركة مبنية وفقًا لمعايير عالية. تشير حالة الجاهزية للسكن إلى أن كل شيء جاهز ويلبي المعايير المتوقعة. يضيف الأثاث وغرفة التخزين المتضمنان عملية وقيمة إلى العقار. في حين أن مواد التشطيب الراقية المحددة لم تُذكر، فإن الحالة العامة للعقار والمرافق المقدمة تشير إلى بيئة معيشة مريحة وعملية.

البيئة ونمط الحياة

السعر والتوفر

تبدأ أسعار هذه الشقة من 215,000 يورو، مما يجعلها خيارًا جذابًا لدخول سوق العقارات في أوريويلا كوستا. تتميز الشقة بثلاث غرف نوم وحمام واحد، مما يوفر مساحة وقيمة جيدة. نظرًا لأن العقار جاهز للسكن، يمكن للمشترين الانتقال على الفور دون انتظار. يشمل السعر الأثاث وغرفة التخزين، مما يزيد من جاذبيتها. ومع ذلك، فإنه لا يشمل الضرائب، مثل ضريبة نقل الملكية (ITP) التي يتم احتسابها وفقًا لمعدل المجتمع المستقل المعمول به. يوفر هذا العقار فرصة لاقتناء مسكن في منطقة مرغوبة، بسعر يعكس موقعه والمرافق التي يقدمها.

€215,000
السعر المبدئي
3
غرف النوم
73 m²
مساحة المعيشة
1
الحمامات

البيئة المحيطة

توفر هذه الشقة في دي هيسا دي كامبو أمور نمط حياة يجمع بين الراحة والاسترخاء. يقع العقار في منطقة حضرية راسخة، على مسافة قريبة من الضروريات اليومية مثل محلات السوبر ماركت والصيدليات. تقع العديد من الشواطئ على بعد كيلومترات قليلة فقط، مما يوفر فرصًا للاستمتاع بالهواء الطلق والاسترخات على الشاطئ. يضم المجمع السكني مسبحًا مجتمعيًا كبيرًا وملعبين للتنس، مما يوفر للسكان أماكن لممارسة الرياضة والتواصل الاجتماعي في الموقع. المناخ في المنطقة، بمتوسط درجات حرارة يتراوح بين 12 درجة مئوية و 27 درجة مئوية، مشمس للغاية ومثالي للأنشطة الخارجية، مع ما يصل إلى 3846 ساعة من أشعة الشمس سنويًا. على الرغم من المسافة الكبيرة إلى المطار، فإن وسائل النقل العام وشبكات الطرق تضمن سهولة السفر. يوفر الحي مجموعة واسعة من خيارات تناول الطعام، مع 45 مطعمًا في دائرة نصف قطرها 2 كم، مما يوفر للسكان تجارب طعام متنوعة.

طلب معلومات

الموقع والبيئة: Dehesa de Campoamor

البيئة والوصول

يتميز نمط الحياة في دي هيسا دي كامبو أمور بتوازن بين الراحة الحضرية والاسترخات الساحلية. يقع العقار في منطقة حضرية راسخة، على بعد خطوات فقط من المتاجر (625 مترًا) والصيدليات (632 مترًا)، مما يجعله مثاليًا للاحتياجات اليومية. توفر الشواطئ (مثل Playa Barranco Rubio Cala de Campoamor، 0.5 كم) فرصة للاستمتاع بالساحل والمناخ المتوسطي، بينما يسهل الانحدار المعتدل البالغ 5.6% الوصول إلى الشاطئ. يفتخر هذا المجال بأكثر من 3800 ساعة من أشعة الشمس سنويًا، مما يوفر ظروفًا مثالية للأنشطة الخارجية، بينما يضيف موسم السباحة الذي يستمر 5 أشهر إلى فرص الاستجمام. على الرغم من وجود 45 مطعمًا والعديد من المراكز الرياضية، فإن المنطقة تحتفظ بجو هادئ نسبيًا، بعيدًا عن صخب مناطق الجذب السياحي الرئيسية. توفر خيارات النقل العام (8 خطوط) والعديد من المحطات (50) بدائل للتنقل المحلي، ولكن يوصى بالنظر في امتلاك سيارة لمزيد من المرونة.

الخريطة والموقع

توضح هذه الخريطة الموقع الجغرافي للشقة في دي هيسا دي كامبو أمور، وهي منطقة حضرية في أوريويلا كوستا. تسلط الخريطة الضوء على موقعها الملائم بالقرب من الشواطئ والمراسي وملاعب الغولف ومجموعة متنوعة من وسائل الراحة. كما تعرض اتصالات الطرق بالمدن القريبة وشبكات النقل الرئيسية، مما يوفر نظرة شاملة على تخطيط المنطقة.

Alt text: Panoramic view of a highway, mountains, and green fields from a room with large windows.

الموقع الإقليمي

تقع دي هيسا دي كامبو أمور في جنوب مقاطعة أليكانتي، بالقرب من حدود منطقة مرسية المستقلة، وهي جزء من منطقة أوريويلا كوستا. تشتهر المنطقة بقربها من البحر الأبيض المتوسط ​​ومناخها المعتدل، مما يجذب السكان الذين يبحثون عن الشمس وأسلوب الحياة في الهواء الطلق. وهي تقع في موقع استراتيجي يربط العديد من المدن الساحلية والريف الداخلي، وتقدم مناظر طبيعية وأنشطة متنوعة. في حين أن أوريويلا كوستا نفسها تشتهر بشواطئها وملاعب الغولف، فإن البيئة الحضرية لدي هيسا دي كامبو أمور توفر وسائل راحة مثل المتاجر والمطاعم، مع بقائها على مسافة قصيرة بالسيارة من الواجهة البحرية. تقع المنطقة على مسافة معقولة من المدن الكبرى مثل أليكانتي ومرسية، مما يوفر الوصول إلى فرص ثقافية وسياحية أوسع.

المرافق والوصول

يتمتع العقار بموقع يسهل الوصول إليه، حيث يقع على بعد خطوات قليلة من العديد من الشواطئ (مثل Playa Barranco Rubio Cala de Campoamor، 0.5 كم) ومجموعة متنوعة من وسائل الراحة. تقع محلات السوبر ماركت (625 مترًا) والصيدليات (632 مترًا) على مقربة، مما يضمن سهولة الوصول إلى المشتريات اليومية. بالنسبة لعشاق الغولف، تعد المنطقة جنة، حيث تضم ملاعب مرموقة مثل Club de Golf Las Ramblas de Orihuela (3.0 كم)، و Real Club de Golf Campoamor (4.1 كم)، و Club de Golf Villamartín (4.3 كم). تتوفر في المنطقة مرافق لشحن السيارات الكهربائية، حيث تقع أقرب محطة شحن على بعد 1.2 كم. يوفر النقل العام (8 خطوط) والعديد من محطات الحافلات (50) سهولة في التنقل المحلي. ومع ذلك، فإن المسافة الكبيرة نسبيًا إلى المطارات الرئيسية (مثل Alicante-Elche، حوالي 46 كم في خط مستقيم) تعني أن السيارة الخاصة موصى بها. تضيف المراسي القريبة، مثل Puerto Deportivo Miguel Caballero (0.2 كم)، جاذبية لمحبي الرياضات المائية.

مسافة الشاطئ 0.5 km
Alicante-Elche (ALC) 46 km
Valencia (VLC) 178 km

المصدر: OpenStreetMap, Google Maps

Alt text: Panoramic view of a cityscape from a mountainous room with rocky terrain.

الطبيعة والمناخ

Panoramic view of a historic cityscape with a river and lush greenery.

تتمتع دي هيسا دي كامبو أمور بمناخ البحر الأبيض المتوسط ​​مع متوسط ​​درجة حرارة سنوية تبلغ 18.9 درجة مئوية، وتتراوح درجات الحرارة بين 12 درجة مئوية و 27 درجة مئوية. تستقبل المنطقة حوالي 3846 ساعة من ضوء الشمس سنويًا، مما يوفر وفرة من الإضاءة المثالية للأنشطة الخارجية. يستمر موسم السباحة لمدة 5 أشهر تقريبًا، عندما تصل درجة حرارة الماء إلى 20 درجة مئوية أو أعلى، مما يجعله مثاليًا للاسترخاء على الشاطئ أو في المسبح المجتمعي. تقع المنطقة على ارتفاع 28 مترًا فوق مستوى سطح البحر، بالقرب من الساحل ولكن في الداخل، مما يوفر قدرًا من الهدوء. يوفر الانحدار المعتدل البالغ 5.6% باتجاه الشاطئ تحديًا لطيفًا للمشي والاستمتاع بمناظر البحر. في حين لا توجد تفاصيل حول الغطاء النباتي، فإن المنطقة معروفة عادةً بمناطقها الخضراء وملاعب الغولف، مما يشير إلى التركيز على البيئة الطبيعية.

3846 ساعات الشمس/سنة
5 موسم السباحة (أشهر)
18.9°C متوسط الحرارة السنوي
28m الارتفاع

المصدر: Open-Meteo (2020–2025 متوسط)

الشواطئ والترفيه

توفر الشقة مجموعة متنوعة من الشواطئ وخيارات الترفيه. يقع أقرب شاطئ، Playa Barranco Rubio Cala de Campoamor، على بعد 0.5 كم فقط، مما يوفر للسكان سهولة الوصول إلى الشمس والرمال. تقع العديد من الشواطئ الأخرى، بما في ذلك Playa de Campoamor - La Glea (0.6 كم) و Playa de Aguamarina (1.1 كم)، على مسافة قريبة. بالنسبة لعشاق الغولف، تعد المنطقة جنة، حيث تضم ملاعب مشهورة مثل Club de Golf Las Ramblas de Orihuela (3.0 كم)، و Real Club de Golf Campoamor (4.1 كم)، و Club de Golf Villamartín (4.3 كم). يوفر المجمع السكني ملاعب تنس، بينما توفر المراكز الرياضية القريبة (مثل Sport Center Montepiedra، 0.2 كم) وحمامات السباحة (مثل Swimming Pool La Caleta، 1.4 كم) خيارات أخرى للرياضة والترفيه. كما أن القرب من المراسي (مثل Puerto Deportivo Miguel Caballero، 0.2 كم) يضيف جاذبية لمحبي الرياضات المائية.

شواطئ

  • Playa Barranco Rubio Cala de Campoamor 0.5 km
  • Playa de Campoamor - La Glea 0.6 km
  • Playa de Aguamarina 1.1 km
  • Playa Fósil 1.9 km
  • Playa Cala la Caleta 2.2 km
  • Cala de la Lombriz 2.6 km

Golf

  • Club de Golf Las Ramblas de Orihuela 3 km
  • Real Club de Golf Campoamor 4.1 km
  • Club de Golf Villamartín 4.3 km
  • Las Colinas Golf & Country Club 6.1 km

المصدر: OpenStreetMap

Alt text: Spacious room with panoramic mountain view, featuring a balcony and modern amenities.

الموقع الإقليمي

تقع دي هيسا دي كامبو أمور في جنوب مقاطعة أليكانتي، بالقرب من حدود منطقة مرسية المستقلة، وهي جزء من منطقة أوريويلا كوستا. تشتهر المنطقة بقربها من البحر الأبيض المتوسط ​​ومناخها المعتدل، مما يجذب السكان الذين يبحثون عن الشمس وأسلوب الحياة في الهواء الطلق. وهي تقع في موقع استراتيجي يربط العديد من المدن الساحلية والريف الداخلي، وتقدم مناظر طبيعية وأنشطة متنوعة. في حين أن أوريويلا كوستا نفسها تشتهر بشواطئها وملاعب الغولف، فإن البيئة الحضرية لدي هيسا دي كامبو أمور توفر وسائل راحة مثل المتاجر والمطاعم، مع بقائها على مسافة قصيرة بالسيارة من الواجهة البحرية. تقع المنطقة على مسافة معقولة من المدن الكبرى مثل أليكانتي ومرسية، مما يوفر الوصول إلى فرص ثقافية وسياحية أوسع.

دليل المنطقة: Dehesa de Campoamor

Dehesa de Campoamor is a village in the Orihuela Costa district in the municipality of Orihuela. It is located in the south of Alicante province and in the autonomous Valencian community, near the boundary with the autonomous Región de Murcia.

حقائق أساسية

المناخ

الشهر متوسط الحرارة معدل الأمطار
يناير 11.5°C 31 mm
فبراير 11.9°C 21 mm
مارس 14.4°C 27 mm
أبريل 16.4°C 27 mm
مايو 19.3°C 26 mm
يونيو 23.3°C 9 mm
يوليو 26.2°C 3 mm
أغسطس 26.7°C 3 mm
سبتمبر 24.1°C 23 mm
أكتوبر 19.9°C 40 mm
نوفمبر 15.6°C 37 mm
ديسمبر 12.1°C 30 mm

المرافق القريبة

45 restaurant
3 pharmacy
1 bank
4 cafe

الارتفاع والتضاريس

28m الارتفاع
0.5 km مسافة الشاطئ
5.6% الانحدار إلى الشاطئ

معتدل

معالم قريبة

موانئ ترفيهية

مراكز رياضية

Ev Charging

شواطئ

ملاعب الغولف

مسابح

النقل والوصول

46 km Alicante-Elche (ALC)
178 km Valencia (VLC)
358 km Malaga-Costa del Sol (AGP)

ملخص

  • شقة جاهزة للسكن بثلاث غرف نوم بمساحة 73 مترًا مربعًا في دي هيسا دي كامبو أمور.
  • مجمع سكني يتميز بمسبح مجتمعي ومنطقة للأطفال وملاعب تنس.
  • على مسافة قريبة من الشواطئ (0.5 كم) ووسائل الراحة المحلية (محلات السوبر ماركت والصيدليات).
  • متوسط درجة الحرارة 12-27 درجة مئوية، 3846 ساعة شمس سنويًا، مثالية للأنشطة الخارجية.
  • تبدأ الأسعار من 215,000 يورو، وتشمل الأثاث وغرفة التخزين، ولا تشمل الضرائب.

مقارنة إقليمية

مقارنة بالعقارات الأخرى في منطقة أوريويلا كوستا، تقدم هذه الشقة في دي هيسا دي كامبو أمور قيمة جيدة. على سبيل المثال، تبدأ أسعار OCEANIC APARTMENTS في روجاليس من 475,000 يورو، وتبدأ أسعار NUEVA DAYA VILLA في دايا نويفا من 380,000 يورو، وتبدأ أسعار RESIDENTIAL VIVALIFE - KEY READY! في لوماس دي كابو رويج من 369,000 يورو. يشير هذا إلى أن العقار المعروض في دي هيسا دي كامبو أمور، بسعر يبدأ من 215,000 يورو، يتمتع بميزة سعرية كبيرة. في حين أن المشاريع الأخرى قد تقدم بناءً أحدث أو مرافق مختلفة، فإن هذه الشقة جاهزة للسكن ومفروشة بالكامل، مما يجعلها جذابة للمشترين الذين يبحثون عن عقار إسباني ميسور التكلفة. موقعها بالقرب من وسائل الراحة والشواطئ يجعلها جذابة من حيث السعر، خاصة بالنسبة لأولئك الذين يعطون الأولوية للراحة والقدرة على تحمل التكاليف على الموقع الساحلي. إنها توفر مدخلًا أكثر سهولة إلى المنطقة مقارنة بالمشاريع الأكثر تكلفة في المنطقة.

الأسئلة الشائعة

ما مدى قرب الشقة من الشاطئ؟
أقرب شاطئ، Playa Barranco Rubio Cala de Campoamor، يقع على بعد 0.5 كم.
كم من الوقت يستغرق الوصول إلى أقرب مطار؟
أقرب مطار هو أليكانتي-إلچه (ALC)، الذي يقع على بعد حوالي 46 كم (مسافة طيران) من العقار.
ما هي جودة بناء الشقة؟
الشقة جاهزة للسكن وفي حالة جيدة، ولكن لم يتم تقديم تفاصيل محددة حول جودة البناء.
ما هو الوضع الحالي لسوق العقارات في منطقة أوريويلا كوستا؟
تعد منطقة أوريويلا كوستا وجهة سياحية وسكنية شهيرة، وتضم سوق عقارات متنوع يتراوح من الشقق المطلة على البحر إلى فيلات الغولف.
ما هي المرافق المجتمعية التي يوفرها العقار؟
يوفر المجمع السكني الذي تقع فيه الشقة مسبحًا مجتمعيًا كبيرًا ومنطقة للأطفال وملاعب تنس.
ما هي التكاليف الإضافية بخلاف السعر المدرج؟
السعر المدرج لا يشمل الضرائب، مثل ضريبة نقل الملكية (ITP) التي يتم احتسابها وفقًا لمعدل المجتمع المستقل المعمول به.
ما هي عملية الشراء؟
ستتبع عملية الشراء إجراءات معاملات العقارات القياسية في إسبانيا. يمكن الحصول على التفاصيل من مندوب المبيعات.
ما هي وسائل الراحة القريبة من الشقة؟
يوجد بالقرب من الشقة محلات سوبر ماركت وصيدليات ومطاعم وبنوك ومقاهي. تقع أقرب محلات السوبر ماركت والصيدليات على بعد أقل من كيلومتر واحد.
Omar Al-Nasser
Omar Al-Nasser
خبير عقاري

عمر الناصر يفهم بعمق احتياجات العملاء الناطقين بالعربية، ويرشدهم بثقة في سوق العقارات الإسباني. هو يضمن عملية شراء سلسة ومحترمة ثقافيًا.

AI-assisted multilingual representative. Your inquiry is handled by our real support team.

رد خلال 24 ساعة

مهتم؟

اترك بياناتك واحصل على معلومات عن التوفر، والأسعار، والمخططات.

المواصفات الفنية
تبلغ مساحة الشقة 73 مترًا مربعًا.
سنة البناء غير محددة، ولكن العقار جاهز للسكن.
يشمل شرفة خاصة.

Conversation history

Ask a question to start