Land in Sotogrande في Sotogrande — أرض
أرض

أرض للبيع في سو تو جرانده، قادس

تقع هذه الأرض التي تبلغ مساحتها 3315 مترًا مربعًا في سو تو جرانده ألتو، وتوفر إطلالات غير منقطعة على ملعب الجولف والبحيرة. تتمتع الأرض باتجاه جنوبي غربي ممتاز وإطلالات مفتوحة على ملعب الجولف في ألتو كلوب وبحيرته. بفضل كثافة البناء البالغة 33%، تسمح الأرض ببناء ما يقرب من 1000 متر مربع من المساحة المبنية، مما يوفر إمكانية إنشاء منزل حديث واسع. تقع الأرض بالقرب من ملاعب الجولف والمدارس ومختلف المرافق، وقد تم منحها ترخيص البناء، مما يتيح البدء الفوري في الإنشاءات. وهذا يجعلها خيارًا جذابًا للمشترين الذين يبحثون عن أرض متميزة في سو تو جرانده.

€800,000
1000 m²
مساحة المعيشة
€800,000
Prijs
4.4 km
مسافة الشاطئ

تحليل المشروع

أهم خصائص الموقع، والوحدات، ومراحل المشروع، ونقاط الاهتمام.

الموقع

تقع الأرض في منطقة ألمينارا في سو تو جرانده ألتو، بالقرب من المدرسة الدولية لسو تو جرانده. تتمتع بإطلالات مفتوحة على ملعب الجولف والبحيرة، وتحيط بها فيلات عالية الجودة، مما يعزز الطابع السكني للمنطقة.

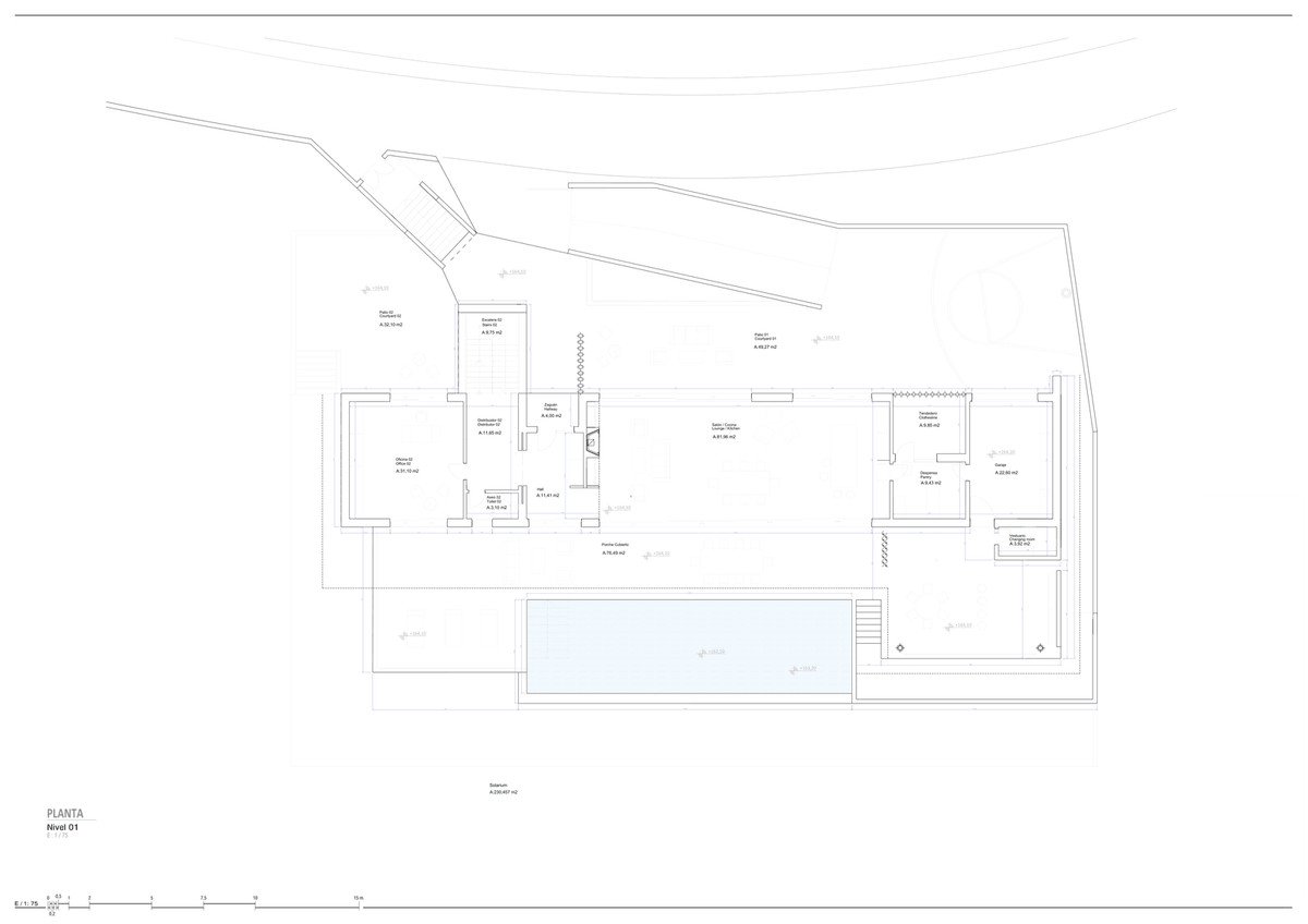
المخططات

تسمح الأرض التي تبلغ مساحتها 3315 مترًا مربعًا ببناء ما يقرب من 1000 متر مربع من المساحة المبنية. يضمن اتجاهها الاستفادة المثلى من ضوء النهار ووضعًا مثاليًا للشرفات وحوض السباحة ومناطق المعيشة الرئيسية. توفر الأرض فرصة لإنشاء منزل حديث واسع.

حالة المشروع

تُباع الأرض مع مشروع معماري كامل من تصميم Casasola Arquitectos، المعروفة بتصميماتها الحديثة الراقية ودمجها بين الهندسة المعمارية والمناظر الطبيعية. تم منح ترخيص البناء بالفعل، مما يسمح ببدء الإنشاءات على الفور.

نقاط هامة

هذه الأرض هي أرض خام بدون أي مبنى قائم. جميع المرافق متوفرة في الموقع، ولكن سيتطلب التوصيل النهائي والتركيبات جهود المشتري. تم تطوير المشروع بواسطة Casasola Arquitectos، ولكن يمكن للمشتري اختيار الاستعانة بمعماري آخر.

نمط الحياة

هذه الأرض في سو تو جرانده مثالية لأولئك الذين يسعون إلى بناء منزل أحلامهم في واحدة من أرقى المناطق السكنية في الأندلس. وهي مناسبة لأولئك الذين يقدرون الخصوصية والمناظر الخلابة (بما في ذلك ملاعب الجولف والبحيرة) والموقع المناسب. بفضل ترخيص البناء الممنوح ومشروع البناء الكامل، فهي مناسبة للمشترين الذين يرغبون في البدء في البناء على الفور وتجنب عمليات التخطيط الطويلة. قربها من ملاعب الجولف والمدارس الدولية والشواطئ يجعلها خيارًا رائعًا للعائلات وعشاق الجولف وأولئك الذين يبحثون عن نمط حياة هادئ ومريح.

الجودة والتشطيبات

بينما هذه أرض، إلا أنها تأتي مع مشروع معماري كامل من تصميم Casasola Arquitectos، المعروفة بتصميماتها الحديثة الراقية ودمجها مع المناظر الطبيعية. يهدف المشروع إلى تحقيق بناء عالي الجودة، مع الاستفادة القصوى من الضوء الطبيعي والإطلالات. تسمح كثافة البناء البالغة 33% بإنشاء منزل كبير يبلغ حوالي 1000 متر مربع. الأرض مزودة بجميع المرافق اللازمة مثل الماء والكهرباء. ستعتمد المواد والتشطيبات النهائية على اختيار المشتري المستقبلي وفقًا للمشروع المعماري أو اختيار مهندس معماري خاص بهم.

البيئة ونمط الحياة

السعر والتوفر

يبلغ سعر الأرض 800,000 يورو. تبلغ مساحة الأرض 3315 مترًا مربعًا، وتسمح ببناء 1000 متر مربع من المساحة المبنية. تبلغ كثافة البناء 33%. الأرض حاصلة على ترخيص بناء وتأتي مع مشروع معماري كامل جاهز للبدء الفوري. يشتهر سوق العقارات في سو تو جرانده بالعقارات عالية الجودة والمجتمع الحصري. تمثل هذه الأرض فرصة لتطوير منزل مخصص في هذه المنطقة المرغوبة.

€800,000
Prijs
1000 m²
مساحة المعيشة

البيئة المحيطة

سو تو جرانده، الواقعة في الأندلس، هي أكبر منطقة سكنية خاصة مملوكة في إسبانيا، وتجمع بين مناظر البحر الأبيض المتوسط والتلال. تشتهر المنطقة بملاعب الجولف والفيلات الفاخرة والجو الهادئ. المناخ معتدل، بمتوسط درجة حرارة سنوية 18.5 درجة مئوية، مع 3836 ساعة من أشعة الشمس سنويًا، مما يجعلها مثالية للأنشطة الخارجية. تقع الأرض على مرتفع، وتوفر مناظر خلابة لملعب الجولف والبحيرة. كونها جزءًا من سو تو جرانده ألتو، فإنها توفر بيئة هادئة مع سهولة الوصول إلى وسائل الراحة مثل ملاعب الجولف والمدارس الدولية وميناء سو تو جرانده.

طلب معلومات

الموقع والبيئة: Sotogrande

البيئة والوصول

تشتهر الحياة في سو تو جرانده بالهدوء والأناقة. توفر المنطقة مجموعة من المرافق الراقية، بما في ذلك ملاعب الجولف ومراكز الفروسية وملاعب التنس والمارينا. تقع الأرض في سو تو جرانده ألتو، بالقرب من نادي سو تو جرانده الملكي للجولف (270 مترًا) ونادي فالديبراما للجولف (3.4 كم). تقع المدرسة الدولية لسو تو جرانده (4.4 كم) وميناء سو تو جرانده (2.8 كم) أيضًا بالقرب. يبلغ طول المسافة إلى الشواطئ مثل بلايا دي لا ألكايديسا حوالي 4.4 كم، وإلى مطار جبل طارق حوالي 14 كم.

الخريطة والموقع

تقع هذه الأرض في سو تو جرانده ألتو، وتوفر مناظر خلابة لملعب الجولف والبحيرة. إنها قريبة من ملاعب الجولف والمدارس وميناء سو تو جرانده. القرب النسبي من الشواطئ ومطار جبل طارق يجعلها خيارًا ذا موقع استراتيجي.

Beachfront room with ocean view, featuring a balcony and sea access.

الموقع الإقليمي

تقع سو تو جرانده، في مقاطعة قادس، وهي أكبر منطقة سكنية خاصة مملوكة في الأندلس. تقع على ساحل البحر الأبيض المتوسط، بالقرب من جبل طارق. تشتهر المنطقة بمناظرها الخلابة وملاعب الجولف ونمط حياتها الفاخر. تقع على بعد حوالي 75 كم من ماربيا وحوالي 120 كم من مالقة، مما يوفر سهولة الوصول إلى وجهات أخرى شهيرة على كوستا ديل سول.

المرافق والوصول

تقع الأرض على بعد 4.4 كم فقط من شاطئ بلايا دي لا ألكايديسا وعلى بعد 2.8 كم من ميناء سو تو جرانده. يقع أقرب سوبر ماركت وصيدلية على بعد 1.7 كم و 1.2 كم على التوالي. يقع مركز صحي على بعد 11 كم. يقع مطار جبل طارق (GIB) على بعد حوالي 14 كم، مما يوفر سهولة الوصول للسفر الدولي. تتوفر 9 خطوط نقل عام و 8 محطات حافلات، ولكن يوصى بامتلاك سيارة لسهولة التنقل. سيجد عشاق الجولف أنفسهم في جنة، مع وجود ريال كلوب دي جولف دي سو تو جرانده (0.8 كم)، ونادي لا كادا دي جولف (2.5 كم)، ونادي فالديبراما دي جولف (3.0 كم) في الجوار.

مسافة الشاطئ 4.4 km
Gibraltar (GIB) 14 km
Malaga-Costa del Sol (AGP) 84 km

المصدر: OpenStreetMap, Google Maps

Aerial view of a coastal town with a river, beach, and greenery.

الطبيعة والمناخ

Aerial view of a coastal resort with multiple swimming pools, beach, and mountainous backdrop.

تتمتع منطقة سو تو جرانده بمناخ البحر الأبيض المتوسط، بمتوسط درجة حرارة سنوية 18.5 درجة مئوية، وصيف معتدل وشتاء دافئ. تتمتع المنطقة بـ 3836 ساعة من أشعة الشمس سنويًا، مما يعني وفرة في ضوء الشمس على مدار العام. تقع الأرض على ارتفاع 44 مترًا فوق مستوى سطح البحر، وتوفر مناظر واسعة. تتمتع المنطقة بموسم سباحة لمدة 5 أشهر، حيث تصل درجة حرارة الماء إلى 20 درجة مئوية أو أعلى. تقع الأرض عند سفوح جبال سييرا ألمينارا، وتحيط بها غابات الفلين وملاعب الجولف الخضراء، مما يوفر مناظر للبحر والجبال.

3836 ساعات الشمس/سنة
5 موسم السباحة (أشهر)
18.5°C متوسط الحرارة السنوي
44m الارتفاع

المصدر: Open-Meteo (2020–2025 متوسط)

الشواطئ والترفيه

تضم المنطقة العديد من الشواطئ الجميلة، أقربها بلايا دي لا ألكايديسا على بعد حوالي 4.4 كم. تشمل الشواطئ القريبة الأخرى بلايا دي لا تشوليرا (8.1 كم) وبلايا دي لا أتونارا (8.5 كم). سو تو جرانده هي جنة لعشاق الجولف، مع ملاعب مثل ريال كلوب دي جولف دي سو تو جرانده (270 مترًا) ونادي لا كادا دي جولف (2.5 كم) ونادي فالديبراما دي جولف (3.4 كم). توجد أيضًا مجموعة متنوعة من المرافق الرياضية في المنطقة، بما في ذلك كومبلجو ديبورتيفو زونا نورتي (2.1 كم) ونادي سانتا ماريا للبولو (2.3 كم). يوفر ميناء سو تو جرانده (2.8 كم) فرصًا للأنشطة البحرية.

شواطئ

  • Playa de La Alcaidesa 4.4 km

Golf

  • Real Club de Golf de Sotogrande 0.8 km
  • Club de Golf La Cañada 2.5 km
  • Club de Golf Valderrama 3 km
  • San Roque Club 3.2 km

مرافق رياضية

66 المرافق المتاحة

المصدر: OpenStreetMap, CSD

Aerial view of a coastal town with a marina, green fields, and mountains in the background.

الموقع الإقليمي

تقع سو تو جرانده، في مقاطعة قادس، وهي أكبر منطقة سكنية خاصة مملوكة في الأندلس. تقع على ساحل البحر الأبيض المتوسط، بالقرب من جبل طارق. تشتهر المنطقة بمناظرها الخلابة وملاعب الجولف ونمط حياتها الفاخر. تقع على بعد حوالي 75 كم من ماربيا وحوالي 120 كم من مالقة، مما يوفر سهولة الوصول إلى وجهات أخرى شهيرة على كوستا ديل سول.

دليل المنطقة: Sotogrande

Sotogrande is the largest privately owned residential development in Andalusia, Spain. It is a private community in the municipality of San Roque. Located 25 km (16 mi) northeast of Gibraltar, Sotogrande is composed of a 25-square-kilometre (9.7 sq mi) stretch from the Mediterranean Sea back into the foothills of Sierra Almenara, providing contrasting views of sea, hills, cork forests and green fairways, including the Rock of Gibraltar and Morocco.

حقائق أساسية

المناخ

الشهر متوسط الحرارة معدل الأمطار
يناير 12.1°C 101 mm
فبراير 12.3°C 109 mm
مارس 13.9°C 90 mm
أبريل 15.7°C 55 mm
مايو 17.7°C 42 mm
يونيو 21.4°C 9 mm
يوليو 24.6°C 1 mm
أغسطس 25.1°C 3 mm
سبتمبر 22.4°C 14 mm
أكتوبر 18.9°C 73 mm
نوفمبر 15.3°C 132 mm
ديسمبر 12.8°C 112 mm

المرافق القريبة

1 pharmacy
2 bank
1 cafe
1 dentist

الارتفاع والتضاريس

44m الارتفاع
4.4 km مسافة الشاطئ
1.0% الانحدار إلى الشاطئ

مسطح

معالم قريبة

مدارس دولية

موانئ ترفيهية

Ev Charging

شواطئ

ملاعب الغولف

مراكز رياضية

النقل والوصول

14 km Gibraltar (GIB)
84 km Malaga-Costa del Sol (AGP)
475 km Alicante-Elche (ALC)

تفاصيل المشروع

المشروع Land in Sotogrande
المدينة Sotogrande
المنطقة Costa del Sol
Prijs €800,000
مساحة المعيشة 1000 m²
السعر لكل م² €800 / m²
موقف سيارات نعم
مسبح نعم
حديقة نعم
حالة البناء for_sale
مسافة الشاطئ 4.4 km
تاريخ الإنجاز 2026
تاريخ النشر 2026-04-24

Ref: VL479444

المصدر: Wikipedia, Wikidata, INE, Junta de Andalucía

ملخص

  • أرض بمساحة 3315 متر مربع في سو تو جرانده ألتو، مع إطلالات على ملعب الجولف والبحيرة.
  • تسمح ببناء حوالي 1000 متر مربع من المساحة المبنية، بكثافة بناء 33%.
  • تأتي مع مشروع معماري كامل من تصميم Casasola Arquitectos وحاصلة على ترخيص بناء.
  • موقع متميز بالقرب من ملاعب الجولف والمدارس الدولية والشواطئ.
  • تقع على بعد حوالي 14 كم من مطار جبل طارق.

مقارنة إقليمية

تعد سو تو جرانده واحدة من أرقى المناطق السكنية في الأندلس، وتشتهر بفيلاتها الفاخرة وملاعب الجولف وأجوائها الهادئة. مقارنة بالمناطق الأخرى في المنطقة، يميل سوق العقارات في سو تو جرانده إلى أن يكون في الطرف الأعلى من حيث الأسعار. على سبيل المثال، تبدأ أسعار لاس فيلاز-سو تو جرانده من 954,000 يورو، بينما تبدأ أسعار أديل سان روكي وسيرينيتي جولف هومز من 536,000 يورو و 549,000 يورو على التوالي. تقع هذه الأرض بسعر 800,000 يورو في مكانة تنافسية في السوق المتميز، وتقدم فرصة فريدة لتطوير منزل مخصص. يبلغ عدد سكان المنطقة 34,310 نسمة (تقديرات 2025)، وتضم 7 فنادق و 1017 سريرًا، مما يشير إلى شعبيتها. توفر المنطقة 66 مرفقًا رياضيًا و 13 مدرسة ابتدائية، مما يوفر للمقيمين ثروة من خيارات الترفيه والتعليم. بالمقارنة مع المناطق المحيطة، توفر سو تو جرانده بيئة خاصة وآمنة للغاية مع جمال طبيعي استثنائي، بما في ذلك ملاعب الجولف والبحر الأبيض المتوسط.

الأسئلة الشائعة

ما هي شروط البناء على هذه الأرض؟
تبلغ كثافة البناء على الأرض 33%، مما يسمح ببناء حوالي 1000 متر مربع من المساحة المبنية. تم الحصول على ترخيص البناء، ويتضمن المشروع المعماري.
ما هي المسافة إلى محاور النقل الرئيسية؟
يقع مطار جبل طارق (GIB) على بعد حوالي 14 كم. يقع مطار ملقا كوستا ديل سول (AGP) على بعد حوالي 84 كم.
ما هي حالة المرافق في الموقع؟
جميع المرافق، مثل الماء والكهرباء، متوفرة في الموقع وجاهزة للتوصيل.
ما هي سمات سوق العقارات في سو تو جرانده؟
تشتهر سو تو جرانده بعقاراتها السكنية الراقية والمرافق الفاخرة والأجواء الهادئة. يجذب السوق المشترين الدوليين الذين يبحثون عن نمط حياة حصري.
ما هي المرافق المتوفرة في الجوار؟
هناك سوبر ماركت (1.7 كم)، وصيدلية (1.2 كم)، وبنكين، ومقهى واحد، وطبيب أسنان واحد في الجوار. تتميز المنطقة أيضًا بالعديد من ملاعب الجولف والمدارس الدولية والمارينا.
ما هي التكاليف المحتملة بخلاف سعر الشراء؟
تشمل التكاليف المحتملة ضرائب الشراء، وتكاليف البناء (بناءً على المشروع المختار)، ورسوم توصيل المرافق، وأي رسوم مجتمعية مستقبلية.
ما هي عملية شراء الأرض؟
تتضمن عملية الشراء عادةً تقديم عرض، وتوقيع خطاب نوايا، وإجراء العناية الواجبة، وتوقيع عقد البيع النهائي، ونقل الملكية النهائي في مكتب كاتب العدل.
كيف هو المناخ في المنطقة؟
تتمتع المنطقة بمناخ البحر الأبيض المتوسط، بمتوسط درجة حرارة سنوية 18.5 درجة مئوية، و 3836 ساعة من أشعة الشمس سنويًا. يستمر موسم السباحة لمدة 5 أشهر.
Omar Al-Nasser
Omar Al-Nasser
خبير عقاري

عمر الناصر يفهم بعمق احتياجات العملاء الناطقين بالعربية، ويرشدهم بثقة في سوق العقارات الإسباني. هو يضمن عملية شراء سلسة ومحترمة ثقافيًا.

AI-assisted multilingual representative. Your inquiry is handled by our real support team.

رد خلال 24 ساعة

مهتم؟

اترك بياناتك واحصل على معلومات عن التوفر، والأسعار، والمخططات.

المواصفات الفنية
مساحة الأرض: 3315 متر مربع
المساحة المبنية المسموح بها: حوالي 1000 متر مربع
كثافة البناء: 33%
متوسط درجة الحرارة: 18.5 درجة مئوية
ساعات الشمس السنوية: 3836

Conversation history

Ask a question to start