2 Bed Penthouse in Torrevieja في Torrevieja — بنتهاوس
بنتهاوس

بنتهاوس بغرفتي نوم للبيع في توريفايخا

يوفر هذا البنتهاوس في توريفايخا مساحة معيشية مريحة مع سهولة الوصول إلى المرافق الحضرية. يقع المنزل بالقرب من الشاطئ ومجموعة متنوعة من الخدمات التي تلبي الاحتياجات اليومية. يوفر هذا المشروع خيارًا جذابًا للمشترين الذين يبحثون عن نمط حياة على الساحل المشمس، وذلك بفضل موقعه المتميز والبنية التحتية الشاملة. البيئة المحيطة نابضة بالحياة وغنية ثقافيًا، مما يجعلها نقطة انطلاق مثالية لتجربة نمط الحياة في جنوب شرق إسبانيا.

€247,000
2
غرف النوم
2
الحمامات
97 m²
مساحة المعيشة
€247,000
Prijs
1 km
مسافة الشاطئ

تحليل المشروع

أهم خصائص الموقع، والوحدات، ومراحل المشروع، ونقاط الاهتمام.

الموقع

يقع هذا البنتهاوس في منطقة حضرية نابضة بالحياة في توريفايخا، على مسافة قريبة سيرًا على الأقدام من الشاطئ وجميع وسائل الراحة. يوفر محيطه راحة الحياة الحضرية مع الحفاظ على أجواء البحر الأبيض المتوسط المريحة، مما يسمح للمقيمين بالاستمتاع بإيقاع الحياة اليومية.

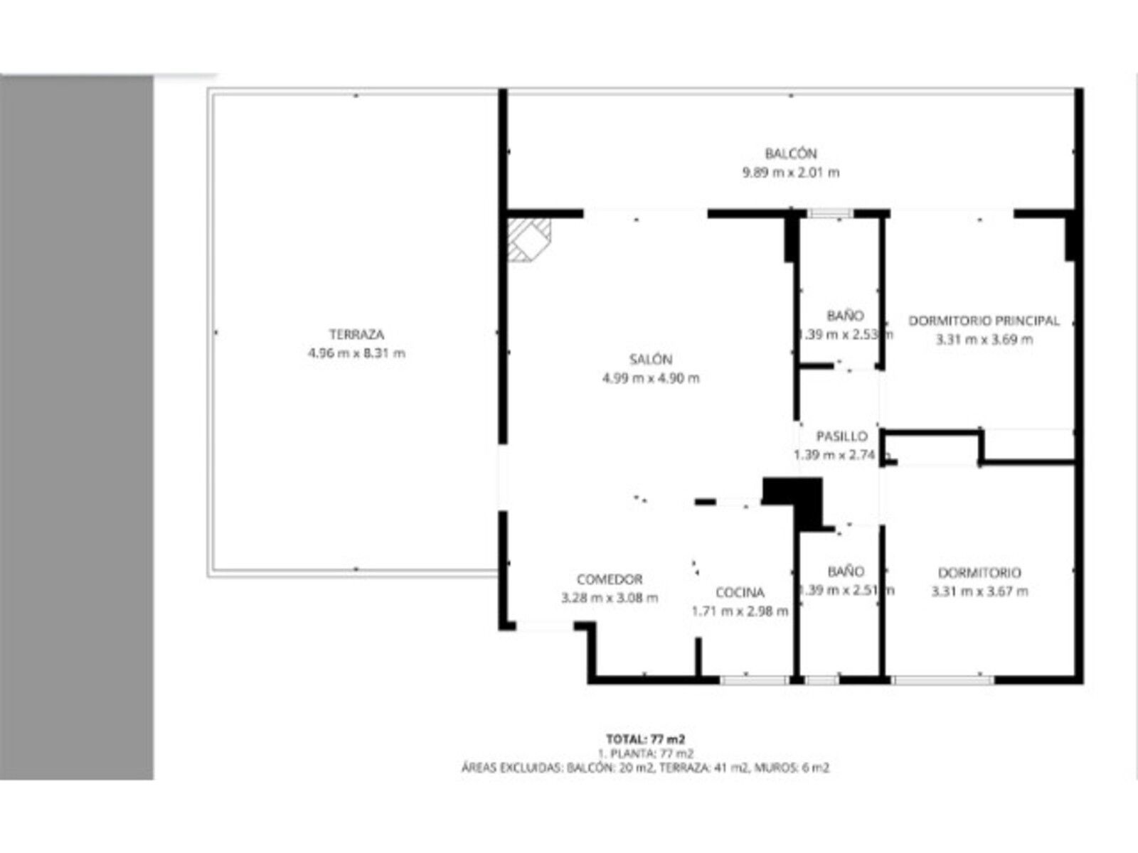
المخططات

هذا العقار مناسب بشكل خاص لأولئك الذين يرغبون في العيش بالقرب من الشاطئ مع سهولة الوصول إلى وسائل الراحة الحضرية. تم تصميم المساكن لتلبية احتياجات السكان المعاصرين، وتوفر مساحة معيشة مريحة ووسائل راحة تسهل الحياة اليومية، كما أن القرب من الشاطئ يوفر فرصًا وفيرة للترفيه.

حالة المشروع

هذا المشروع هو تطوير قائم، ويقدم وحدات بنتهاوس مكتملة وجاهزة للسكن. هذا مريح للمشترين الذين يتطلعون إلى الانتقال الفوري. يلتزم المشروع بمعايير البناء الحديثة، مع التركيز على راحة العيش والوظائف العملية.

نقاط هامة

لا يشمل المشروع حديقة خاصة. بالإضافة إلى ذلك، على الرغم من قربه من الشاطئ، فإن الوصول إلى بعض المرافق البعيدة مثل ملاعب الجولف سيتطلب سيارة. الشقة مزودة بتكييف هواء، ولكن لا يوجد نظام تدفئة مركزي.

نمط الحياة

هذا البنتهاوس مناسب تمامًا لأولئك الذين يبحثون عن مزيج من الراحة الحضرية والحياة على شاطئ البحر. إنه خيار مثالي للعائلات أو الأفراد الذين يقدرون القرب من محلات التسوق والمطاعم والمرافق الطبية. كما أنه يوفر فرصًا رائعة لعشاق الهواء الطلق للاستمتاع بالأنشطة مثل المشي على الشاطئ أو الرياضات المائية في مناخ مشمس. بالإضافة إلى ذلك، فإن القرب من ملاعب الجولف والمراكز الرياضية يجذب عشاق الرياضة. بالنسبة لأولئك الذين يرغبون في الحفاظ على نمط حياة نشط ومريح حتى أثناء العطلات، فإن هذا المكان جذاب بلا شك.

الجودة والتشطيبات

يحتوي البنتهاوس على مساحة معيشة تبلغ 97 مترًا مربعًا، مع تشطيبات تركز على العملية والراحة. الشقة مجهزة بتكييف لضمان بيئة داخلية مريحة على مدار السنة. توفر المطابخ المفتوحة المجهزة بالكامل والأثاث الكامل راحة للمشترين. الحمامات مجهزة بالكامل. تم تصميم جميع النوافذ لتعظيم الإضاءة الطبيعية. التراس هو ميزة رئيسية للشقة، حيث يوفر مساحة إضافية للمعيشة في الهواء الطلق للاسترخاء والاستمتاع بالمناظر. يوجد مصعد في المبنى لتسهيل وصول السكان.

البيئة ونمط الحياة

السعر والتوفر

يبدأ سعر هذا البنتهاوس من 247,000 يورو. يعكس هذا السعر موقعه المتميز في وجهة سياحية شهيرة مثل توريفايخا، بالإضافة إلى ميزاته كبنتهاوس، مثل مساحة التراس الإضافية والمناظر المحتملة. عدد الوحدات المتاحة محدود، لذا يُنصح المشترون المهتمون بالاتصال في أقرب وقت ممكن للحصول على أحدث المعلومات حول التوفر والأسعار المحددة.

€247,000
Prijs
2
غرف النوم
97 m²
مساحة المعيشة
2
الحمامات

البيئة المحيطة

توريفايخا، وهي مدينة ساحلية على البحر الأبيض المتوسط في مقاطعة أليكانتي، تشتهر بأجوائها المفعمة بالحياة ووفرة خدماتها. تضم المدينة العديد من المطاعم والمحلات التجارية والبنوك والمقاهي لتلبية احتياجات السكان المختلفة. يوجد سوبر ماركت على بعد 354 مترًا، ومستشفى على بعد 3.4 كم، مما يضمن سهولة الحياة اليومية. يبلغ متوسط درجة الحرارة هنا ما بين 11 درجة مئوية و 27 درجة مئوية، ويبلغ إجمالي ساعات سطوع الشمس السنوية 3854 ساعة، مما يجعلها مثالية للاستمتاع بالأنشطة الخارجية. تبلغ مساحة المدينة 71.8 كيلومترًا مربعًا، ويبلغ عدد سكانها المقدر بـ 98,533 نسمة (بحلول عام 2025) مجتمعًا متنوعًا. تتمتع المدينة بشبكة مواصلات عامة تضم 12 خطًا و 50 محطة، مما يجعل التنقل مريحًا للغاية. يبلغ عدد الشواطئ الحاصلة على علامة العلم الأزرق 7 شواطئ، مما يؤكد جودة المياه والبيئة الممتازة في المنطقة.

طلب معلومات

الموقع والبيئة: Torrevieja

البيئة والوصول

العيش في توريفايخا يعني الاستمتاع بسهولة الحياة الحضرية. تقع شواطئ مثل Platja del Cura و Playa del Cura على مسافة قريبة سيرًا على الأقدام، على بعد 1.3 كم فقط. تقع محلات السوبر ماركت (354 مترًا) والصيدليات (576 مترًا) والعديد من المطاعم (168) على مقربة، مما يلبي الاحتياجات اليومية. تقع المؤسسات التعليمية (3) والبنوك (24) وعيادات الأسنان (27) أيضًا في المنطقة المحيطة. تضمن شبكة النقل العام المتقدمة التي تضم 12 خطًا و 50 محطة سهولة التنقل، مما يقلل الاعتماد على السيارات الخاصة إلى حد ما.

الخريطة والموقع

توضح هذه الخريطة الموقع الجغرافي للبنتهاوس في توريفايخا. تشمل النقاط المميزة الشاطئ القريب Platja del Cura، ومحلات السوبر ماركت، والصيدليات، بالإضافة إلى ملاعب الجولف والمطار، مما يساعدك على فهم البيئة المحيطة وسهولة الوصول إلى وسائل النقل بشكل مرئي.

Alt text: Modern apartment with city view, balcony, and rooftop terrace.

الموقع الإقليمي

توريفايخا هي جوهرة على ساحل كوستا بلانكا في جنوب شرق إسبانيا، وتقع في مقاطعة أليكانتي. إنها مدينة ساحلية حيوية في مجتمع فالنسيا. تشتهر المنطقة بمناخها المشمس وشواطئها الجميلة وسياحتها النشطة. مقارنة بالبلدات الأكثر هدوءًا في المنطقة، توفر توريفايخا حياة حضرية أكثر كثافة وبنية تحتية متطورة، مما يجعلها مكانًا مثاليًا لتجربة نمط الحياة على البحر الأبيض المتوسط.

المرافق والوصول

يقع هذا البنتهاوس على بعد 1.0 كم فقط من شاطئ Platja del Cura، والذي يمكن الوصول إليه بسهولة سيرًا على الأقدام أو بالسيارة. يقع أقرب سوبر ماركت على بعد حوالي 354 مترًا، والصيدلية على بعد حوالي 576 مترًا. بالنسبة لعشاق الجولف، يقع Club de Golf Villamartín الشهير على بعد حوالي 8.7 كم. يقع مطار أليكانتي-إلش (ALC) على بعد حوالي 35 كم (خط مستقيم)، مما يجعله مناسبًا للسفر الدولي. تشمل شبكة النقل العام المحلية 12 خطًا و 50 محطة، مما يضمن سهولة التنقل.

مسافة الشاطئ 1 km
Alicante-Elche (ALC) 35 km
Valencia (VLC) 168 km

المصدر: OpenStreetMap, Google Maps

A cozy apartment with a balcony, offering a view of palm trees and a clear blue sky.

الطبيعة والمناخ

A cozy apartment with a city view, featuring a balcony and modern decor.

تتمتع توريفايخا بمناخ البحر الأبيض المتوسط، بمتوسط درجة حرارة سنوية 18.7 درجة مئوية. في الصيف، يمكن أن تصل درجات الحرارة إلى 27 درجة مئوية، بينما تظل حوالي 11 درجة مئوية في الشتاء. حوالي 3854 ساعة من أشعة الشمس سنويًا مثالية للأنشطة الخارجية. خمسة أشهر في السنة (مع درجة حرارة مياه ≥20 درجة مئوية) مناسبة للسباحة، مما يسمح للمقيمين بالاستمتاع بالبحر. يبلغ متوسط الارتفاع 22 مترًا فوق مستوى سطح البحر، ويميل المنحدر إلى الشاطئ بنسبة 1.9٪ فقط، وهو مسطح جدًا ومناسب لجميع الفئات العمرية.

3854 ساعات الشمس/سنة
5 موسم السباحة (أشهر)
18.7°C متوسط الحرارة السنوي
22m الارتفاع

المصدر: Open-Meteo (2020–2025 متوسط)

الشواطئ والترفيه

تضم المنطقة 7 شواطئ حاصلة على علامة العلم الأزرق، بما في ذلك كابو سيرفيرا، كالا دي لاس بيتيراس، إل كورا، ولا ماتا، مما يضمن جودة المياه والمرافق. أقرب شاطئ، Platja del Cura، يبعد 1.0 كم فقط. بالنسبة لعشاق الرياضة، توجد عدة ملاعب جولف في الجوار، مثل Club de Golf Villamartín (8.7 كم). بالإضافة إلى ذلك، توجد مراكز رياضية مثل Palacio de Deportes Infanta Cristina (1.3 كم) والعديد من حمامات السباحة، مما يوفر مجموعة واسعة من خيارات الترفيه والرياضة.

شواطئ

  • Platja del Cura Blue Flag 1 km
  • Playa del Cura Blue Flag 1.1 km
  • Cala del Palangre 1.3 km
  • Playa de Los Locos Blue Flag 1.5 km
  • Cala Higuera 2.1 km
  • La zorra 2.3 km

Golf

  • Club de Golf Villamartín 8.8 km
  • Real Club de Golf Campoamor 10.6 km
  • Club de Golf Las Ramblas de Orihuela 11.1 km
  • Las Colinas Golf & Country Club 13.2 km

المصدر: Blue Flag 2026, OpenStreetMap

Alt text: Spacious apartment with city view, modern kitchen, and balcony.

الموقع الإقليمي

توريفايخا هي جوهرة على ساحل كوستا بلانكا في جنوب شرق إسبانيا، وتقع في مقاطعة أليكانتي. إنها مدينة ساحلية حيوية في مجتمع فالنسيا. تشتهر المنطقة بمناخها المشمس وشواطئها الجميلة وسياحتها النشطة. مقارنة بالبلدات الأكثر هدوءًا في المنطقة، توفر توريفايخا حياة حضرية أكثر كثافة وبنية تحتية متطورة، مما يجعلها مكانًا مثاليًا لتجربة نمط الحياة على البحر الأبيض المتوسط.

دليل المنطقة: Torrevieja

Torrevieja is a Mediterranean-seaside city and municipality on the Costa Blanca, in the province of Alicante, Valencian Community, in southeastern Spain. The city is in one of the only Spanish-speaking areas of the Valencian Community.

حقائق أساسية

71.8 km² المساحة

المناخ

الشهر متوسط الحرارة معدل الأمطار
يناير 11.3°C 31 mm
فبراير 11.8°C 21 mm
مارس 14.4°C 27 mm
أبريل 16.5°C 27 mm
مايو 19.5°C 26 mm
يونيو 23.5°C 9 mm
يوليو 26.4°C 3 mm
أغسطس 26.9°C 3 mm
سبتمبر 24.1°C 23 mm
أكتوبر 19.8°C 40 mm
نوفمبر 15.4°C 37 mm
ديسمبر 11.9°C 30 mm

المرافق القريبة

168 restaurant
3 school
26 pharmacy
24 bank
45 cafe
27 dentist

الارتفاع والتضاريس

22m الارتفاع
1 km مسافة الشاطئ
1.9% الانحدار إلى الشاطئ

مسطح

معالم قريبة

موانئ ترفيهية

مراكز رياضية

نقاط مشاهدة

Ev Charging

مسابح

ملاعب الغولف

شواطئ

النقل والوصول

35 km Alicante-Elche (ALC)
168 km Valencia (VLC)
368 km Malaga-Costa del Sol (AGP)

تفاصيل المشروع

المشروع 2 Bed Penthouse in Torrevieja
المدينة Torrevieja
المنطقة Costa Blanca
Prijs €247,000
مساحة المعيشة 97 m²
السعر لكل م² €2,546 / m²
التراس 50 m²
غرف النوم 2
الحمامات 2
موقف سيارات لا
مسبح لا
حديقة لا
حالة البناء for_sale
مسافة الشاطئ 1 km
تاريخ الإنجاز 1989
تاريخ النشر 2026-04-19

Ref: VL656726

المصدر: Wikipedia, Wikidata, INE, Junta de Andalucía

ملخص

  • يقع في وسط توريفايخا، على مسافة قريبة سيرًا على الأقدام من الشاطئ والسوبر ماركت.
  • بنتهاوس بغرفتي نوم وحمامين، مع تراس خاص.
  • يبدأ السعر من 247,000 يورو، مكيف ومفروش.
  • بالقرب من 7 شواطئ حاصلة على علامة العلم الأزرق، توفر فرصًا غنية للترفيه والرياضة.
  • استمتع بمناخ البحر الأبيض المتوسط مع أكثر من 3800 ساعة شمس سنويًا.

مقارنة إقليمية

مقارنة بالمشاريع المجاورة مثل Residencial Onaru (بدءًا من 299,900 يورو) و Eden Beach (بدءًا من 290,000 يورو) و Edificio Sunrise (بدءًا من 279,000 يورو)، يقدم هذا البنتهاوس بسعر يبدأ من 247,000 يورو سعرًا تنافسيًا، خاصة بالنظر إلى موقعه وخصائص البنتهاوس. توريفايخا، كوجهة إقامة وعطلات راسخة، تظهر سوق عقارات مستقر وجذاب. بالمقارنة مع المشاريع الأكثر بعدًا أو الأصغر، توفر هذه المنطقة بنية تحتية حضرية أكثر كثافة وسهولة أكبر في الوصول إلى الشواطئ. تجذب المنطقة عددًا كبيرًا من المشترين الدوليين الباحثين عن الشمس والشواطئ ونمط الحياة المريح، ويظل الطلب على العقارات مرتفعًا. هذا المشروع، كجزء من مبنى قائم، يوفر إمكانية السكن الفوري، مما يميزه عن بعض المشاريع قيد التطوير.

الأسئلة الشائعة

هل المدينة لا تزال نشطة خارج موسم الذروة السياحية؟
تتمتع توريفايخا بعدد كبير من السكان الدائمين، لذلك تظل المدينة نشطة إلى حد ما خارج موسم الذروة السياحية. تظل العديد من المرافق، مثل محلات السوبر ماركت والصيدليات والمطاعم، مفتوحة على مدار العام لتلبية احتياجات السكان المحليين.
هل أحتاج إلى سيارة للعيش هنا؟
نظرًا لقرب العقار من الشاطئ ومحلات السوبر ماركت، بالإضافة إلى نظام النقل العام المتقدم (12 خطًا، 50 محطة)، قد لا تكون السيارة ضرورية. ومع ذلك، قد يتطلب الوصول إلى مرافق أبعد مثل ملاعب الجولف وسيلة نقل.
هل توفر الشقة عزلًا حراريًا وصوتيًا جيدًا؟
الشقة مجهزة بتكييف الهواء، والنوافذ مصممة لتعظيم الإضاءة الطبيعية. لم يتم تقديم مواصفات تقنية محددة للعزل الحراري والصوتي في البيانات؛ يُنصح بالتحقق من تفاصيل البناء بشكل أكبر.
هل هناك إمكانات لزيادة قيمة العقار في هذه المنطقة؟
توريفايخا وجهة سياحية وسكنية شهيرة على كوستا بلانكا مع سوق عقارات مستقر. عادةً ما تتمتع العقارات ذات المواقع المتميزة بإمكانات قيمة طويلة الأجل جيدة، ولكن الزيادة الفعلية تعتمد على تقلبات السوق.
ما هي المرافق الترفيهية للأطفال أو العائلات الموجودة بالقرب؟
توجد في المنطقة عدة مراكز رياضية وحمامات سباحة. في حين أن مناطق لعب الأطفال لم تُذكر بشكل خاص، إلا أن القرب من الشواطئ والمتنزهات الحضرية يوفر عادةً مساحة للأنشطة الترفيهية العائلية.
ما هي التكاليف الأخرى التي يجب مراعاتها بخلاف سعر الشراء؟
بالإضافة إلى سعر الشراء، يجب مراعاة ضريبة الأملاك (IBI) ورسوم المجتمع والضرائب البلدية السنوية وفواتير الطاقة المحتملة. تعتمد المبالغ المحددة على القيمة المقدرة للعقار ولوائح إدارة المجتمع.
ما هي عملية شراء عقار في إسبانيا؟
عادة ما تتضمن عملية الشراء: توقيع عقد الشراء، دفع وديعة، التقدم بطلب للحصول على رقم NIE (رقم هوية المقيم الأجنبي)، فتح حساب بنكي، وأخيرًا، توقيع عقد البيع النهائي أمام كاتب العدل ودفع المبلغ المتبقي.
كم تبعد المدارس الدولية؟
تذكر البيانات 3 مدارس، ولكن لم يتم تحديد ما إذا كانت مدارس دولية. يلزم مزيد من التحقق لتحديد موقع المدارس الدولية والمسافة إليها ضمن نطاق المشروع.
Maiko
Maiko
خبير عقاري

مايكو خبير عقاري متخصص في سوق العقارات الإسبانية. لديه معرفة عميقة بمنطقة كوستا ديل سول وكوستا بلانكا والمناطق الساحلية الشهيرة الأخرى، وهو يساعد المشترين في العثور على العقار المناسب. يقوم بتحليل العروض بناءً على الموقع والقيمة السوقية وجودة البناء وقابلية السكن، ويقدم نصائح صادقة ومبنية على البيانات طوال عملية الشراء.

رد خلال 24 ساعة

مهتم؟

اترك بياناتك واحصل على معلومات عن التوفر، والأسعار، والمخططات.

المواصفات الفنية
تبلغ مساحة البناء الإجمالية للمشروع 97 مترًا مربعًا.
تبلغ المسافة المستقيمة إلى شاطئ Platja del Cura 1.0 كم.
يبعد أقرب سوبر ماركت 354 مترًا.
متوسط درجة الحرارة السنوية 18.7 درجة مئوية.
يوجد 7 شواطئ حاصلة على علامة العلم الأزرق.

Conversation history

Ask a question to start