None في Alicante — فيلا منفصلة
فيلا منفصلة

فيلا فاخرة في أليكانتي للبيع

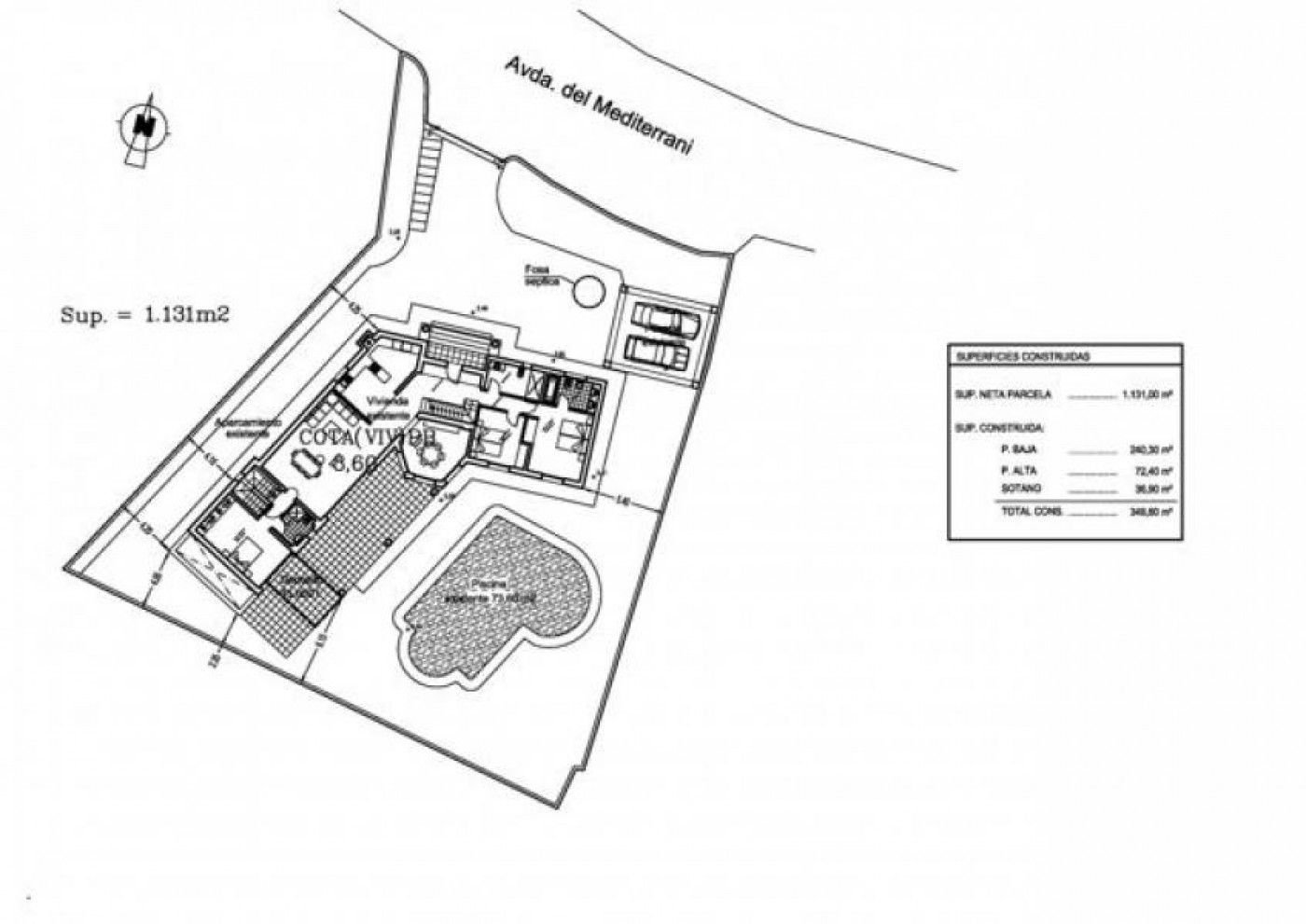
تقع هذه الفيلا الفاخرة التي تبلغ مساحتها 464 مترًا مربعًا على قطعة أرض تبلغ مساحتها 1131 مترًا مربعًا في منطقة حضرية نابضة بالحياة في أليكانتي. العقار جاهز للسكن ويوفر أربع غرف نوم وأربع حمامات، مما يجعله خيارًا جذابًا للمشترين الذين يبحثون عن سهولة العيش على الساحل الإسباني. يوفر موقعه إمكانية الوصول إلى وسائل الراحة الحضرية، وقربه من الشواطئ، ووجود ملاعب الجولف في نفس المنطقة.

يبدأ من €1,350,000
4
غرف النوم
4
الحمامات
464 m²
مساحة المعيشة
يبدأ من €1,350,000
السعر المبدئي
2.1 km
مسافة الشاطئ
جاهز للتسليم
حالة البناء

تحليل المشروع

أهم خصائص الموقع، والوحدات، ومراحل المشروع، ونقاط الاهتمام.

الموقع

يقع العقار في بيئة حضرية، على مقربة من الساحل، مع سهولة الوصول إلى وسائل الراحة الحضرية المختلفة. يقع على بعد مسافة قصيرة من العديد من الشواطئ، مما يوفر للمقيمين فرصة للاستمتاع بالحياة الساحلية. تعتبر المنطقة نقطة متوازنة من حيث الراحة وإمكانية الوصول.

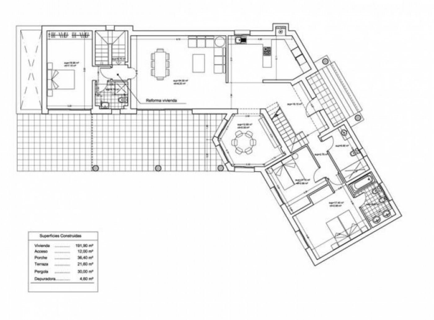
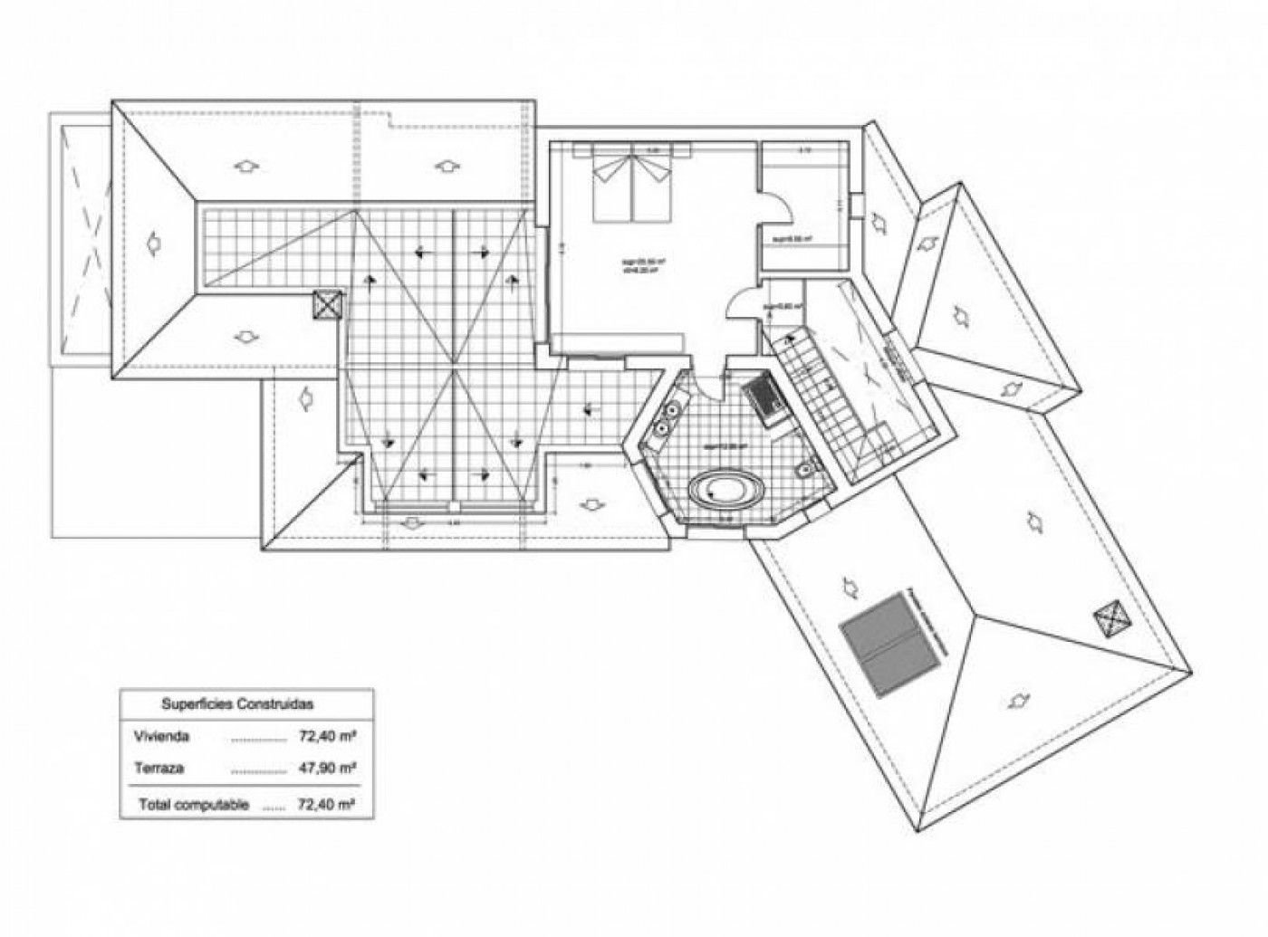
المخططات

تم تصميم هذه الفيلا لتلبية نمط الحياة الحديث. وهي تتميز بغرفة معيشة واسعة ومطبخ مجهز بالكامل وغرف نوم ملحقة بحمامات. تهدف وسائل الراحة الإضافية مثل التراس الخاص والصالة الرياضية إلى تعزيز الراحة والرفاهية.

حالة المشروع

العقار جاهز للسكن، مما يعني أن المشترين يمكنهم الانتقال على الفور دون انتظار الانتهاء من البناء. يوفر هذا ميزة لأولئك الذين يرغبون في الانتقال بسرعة أو البدء في الاستمتاع بحياتهم على ساحل إسبانيا.

نقاط هامة

على الرغم من أن العقار يوفر سهولة العيش في المدينة، إلا أنه يقع في منطقة حضرية راسخة. يجب أن يدرك المشترون المحتملون أنه في حين أن الشواطئ وملاعب الجولف في متناول اليد، إلا أنها على مسافة معينة، ويقع العقار بالقرب من المباني الحضرية الأخرى.

نمط الحياة

هذا العقار مناسب للأفراد أو العائلات التي تبحث عن منزل واسع في مدينة إسبانية نابضة بالحياة. غرف النوم الأربع والحمامات الأربع تجعله مثاليًا للعائلات الكبيرة أو أولئك الذين يستضيفون الضيوف بشكل متكرر. قربه من المتاجر والمطاعم والخدمات الطبية، بالإضافة إلى شبكة النقل العام المريحة، يجعله جذابًا لأولئك الذين يقدرون الراحة. العقار مناسب أيضًا لعشاق الهواء الطلق، نظرًا لقربه من الشواطئ وملاعب الجولف. مع 3873 ساعة من ضوء الشمس سنويًا، يعد مثاليًا لأولئك الذين يتطلعون إلى الاستمتاع بالمناخ المعتدل ونمط الحياة في الهواء الطلق. قد يجذب أيضًا المستثمرين الذين يبحثون عن عقارات راقية في منطقة أليكانتي.

الجودة والتشطيبات

تم بناء الفيلا وفقًا لمعايير عالية مع الاهتمام بالتفاصيل. تتميز بمطبخ مجهز بالكامل ومصمم بشكل عصري، بالإضافة إلى غرفة طعام واسعة تبلغ مساحتها 80 مترًا مربعًا. تم تجهيز غرف النوم بغرف ملابس وحمامات ملحقة، وتوفر وصولاً إلى تراس خاص. يشمل العقار أيضًا صالة شمسية وصالة رياضية، مما يوفر مساحة إضافية للمعيشة والترفيه. يوجد مصعد داخل المبنى، وغرفة تخزين، وقبو، مما يزيد من الوظائف والراحة. توفر منطقة الشواء سهولة تناول الطعام في الهواء الطلق والترفيه.

البيئة ونمط الحياة

السعر والتوفر

يُعرض هذا العقار الفاخر بسعر 1.35 مليون يورو. يحتوي العقار على أربع غرف نوم وأربع حمامات، ويغطي مساحة 1131 مترًا مربعًا، مع مساحة معيشة تبلغ 464 مترًا مربعًا. كفيلا منفصلة، ​​توفر الخصوصية والمساحة. العقار جاهز للسكن، مما يعني أنه متاح للشراء الفوري. بالنسبة لأولئك الذين يبحثون عن عقارات راقية في منطقة أليكانتي، فإن السعر يعكس حجم العقار وموقعه ومرافقه.

€1,350,000
السعر المبدئي
4
غرف النوم
464 m²
مساحة المعيشة
4
الحمامات

البيئة المحيطة

تقع هذه الفيلا في منطقة حضرية راسخة في أليكانتي، وتوفر نمط حياة يجمع بين الراحة والحياة الساحلية. ستدور الأنشطة اليومية حول الاستفادة من المرافق الحضرية القريبة مثل المتاجر والمطاعم والمراكز الرياضية، بالإضافة إلى سهولة الوصول إلى الشواطئ. وتيرة الحياة في المدينة نشطة، مع عدد كبير من المطاعم والمقاهي للاختيار من بينها، بالإضافة إلى الخدمات الطبية في متناول اليد. تبلغ مساحة المنطقة 201.3 كيلومتر مربع، مما يوفر مساحة واسعة للمقيمين. يتراوح متوسط درجة الحرارة بين 11 درجة مئوية و 26 درجة مئوية، مما يجعله مثاليًا للأنشطة الخارجية. مع 3873 ساعة من ضوء الشمس سنويًا، تشتهر هذه المنطقة من إسبانيا بطقسها المشمس، مما يجعلها مثالية للاستمتاع بالشواطئ والجولف.

طلب معلومات

الموقع والبيئة: Alicante

البيئة والوصول

تقع الفيلا في بيئة حضرية توفر سهولة العيش في المدينة. يمكن للمقيمين العثور على سوبر ماركت على بعد 162 مترًا، وصيدلية على بعد 83 مترًا، ومستشفى على بعد 1.5 كيلومتر، مما يضمن سهولة الوصول إلى الضروريات اليومية والخدمات الطبية. يضم هذا المجال 261 مطعمًا و 136 مقهى و 55 صيدلية، مما يوفر للمقيمين العديد من خيارات تناول الطعام والتسوق. هناك 11 مدرسة، مما يوفر خيارات تعليمية للعائلات التي لديها أطفال. بالإضافة إلى ذلك، هناك 9 عيادات أسنان، تقدم رعاية صحية إضافية. يبلغ ارتفاع المنطقة 37 مترًا فوق مستوى سطح البحر، ويتميز المناخ المعتدل بمتوسط درجات حرارة تتراوح بين 11 درجة مئوية و 26 درجة مئوية، مما يجعله مناسبًا للسكن.

الخريطة والموقع

يقع العقار في أليكانتي، وهو مركز حضري نابض بالحياة يوفر سهولة الوصول إلى المرافق الحضرية والقرب من الساحل. توضح الخريطة الموقع الجغرافي للعقار بالنسبة للشواطئ المحيطة وملاعب الجولف والبنية التحتية الرئيسية.

Alt text: Spacious room with cityscape view, modern amenities, and large windows.

الموقع الإقليمي

يقع العقار في أليكانتي، عاصمة مقاطعة أليكانتي، وهي مدينة مهمة في المجتمع فالنسي. تشتهر بكونها ميناء تاريخيًا وموقعها كمدينة رئيسية على ساحل البحر الأبيض المتوسط. كونها عاشر أكبر مدينة في إسبانيا، فإنها توفر مجموعة واسعة من المرافق الحضرية والمعالم الثقافية. تضم المدينة 358,608 نسمة، مما يضفي عليها الحيوية. تغطي المدينة مساحة 201.3 كيلومتر مربع، مما يوفر مساحة كبيرة للتطوير. تتمتع المنطقة بـ 3873 ساعة من ضوء الشمس سنويًا، مما يجعلها وجهة شهيرة للأوروبيين الذين يبحثون عن مناخ مشمس.

المرافق والوصول

يتمتع العقار بموقع استراتيجي يسهل الوصول إلى وجهات مختلفة. أقرب شاطئ، Platja del Cocó، يبعد 2.1 كم فقط، في حين أن Cala de la Sangueta و Platja de Sant Gabriel على بعد 2.5 كم. بالنسبة لعشاق الجولف، يبعد Club de Golf El Plantío مسافة 6.1 كم، ويبعد Club de Golf Bonalba مسافة 11 كم. يقع مطار أليكانتي-إلش (ALC) على بعد حوالي 9 كم، مما يوفر سهولة السفر الجوي. تخدم المنطقة 50 خطًا للنقل العام و 50 محطة حافلات، مما يوفر خيارات نقل عام مريحة. تقع محطات القطار مثل Luceros و Alacant Terminal في حدود 0.5 كم، مما يعزز الاتصال بشكل أكبر.

مسافة الشاطئ 2.1 km
Alicante-Elche (ALC) 9 km
Valencia (VLC) 127 km
Luceros 0 km
Mercado 0.5 km

المصدر: OpenStreetMap, Google Maps

A tall telecommunications tower with various antennas and dishes against a clear blue sky.

الطبيعة والمناخ

Alt text: Historic building with European Union flag, arched entrance, and balconies.

تتمتع المنطقة بمناخ البحر الأبيض المتوسط، بمتوسط درجة حرارة سنوية تبلغ 19.0 درجة مئوية، وتتراوح درجات الحرارة من 11 درجة مئوية إلى 26 درجة مئوية. هناك 3873 ساعة من ضوء الشمس سنويًا، مما يجعلها وجهة مشمسة. يستمر موسم السباحة لمدة 5 أشهر، حيث تصل متوسط درجة حرارة المياه إلى 20 درجة مئوية أو أعلى. يقع العقار على ارتفاع 37 مترًا فوق مستوى سطح البحر، ويقع في منطقة مستوية بانحدار 1.5٪، مما يجعله مناسبًا للمعيشة. توفر 32 عطلة عامة محلية للمقيمين فرصة لتجربة الثقافة والاحتفالات المحلية.

3873 ساعات الشمس/سنة
5 موسم السباحة (أشهر)
19.0°C متوسط الحرارة السنوي
37m الارتفاع

المصدر: Open-Meteo (2020–2025 متوسط)

الشواطئ والترفيه

تضم المنطقة العديد من الشواطئ الخلابة، بما في ذلك Platja del Cocó على بعد 2.1 كم. تقع Cala de la Sangueta (2.4 كم) و Platja de Sant Gabriel (2.5 كم) أيضًا في مكان قريب، مما يوفر فرصًا للاستمتاع بالشمس والبحر. يوجد في المنطقة أربعة شواطئ تحمل العلم الأزرق: Postiguet، Saladar-Urbanova، Sant Joan، و Tabarca. بالنسبة لعشاق الجولف، يبعد Club de Golf El Plantío مسافة 6.1 كم، ويبعد Club de Golf Bonalba مسافة 11 كم. تضم المنطقة أيضًا مراكز رياضية مثل Artes Marciales Alicante (0.6 كم) و Polideportivo de San Blas (0.8 كم)، بالإضافة إلى Complejo de Piscinas Monte Tossal 'José Antonio Chicoy' (1.0 كم)، مما يوفر مجموعة متنوعة من خيارات الترفيه.

شواطئ

  • Platja del Cocó 2.1 km
  • Cala de la Sangueta 2.3 km
  • Platja de Sant Gabriel 2.5 km
  • Cala El Palmeral 3.5 km
  • Cala de Agua Amarga 4.3 km
  • Platja de l'Albufereta 4.4 km

Golf

  • Club de Golf El Plantío 6.1 km
  • Club de Golf Bonalba 11.9 km

المصدر: Blue Flag 2026, OpenStreetMap

Alt text: Historic church with ornate facade, bell tower, and clear blue sky view.

الموقع الإقليمي

يقع العقار في أليكانتي، عاصمة مقاطعة أليكانتي، وهي مدينة مهمة في المجتمع فالنسي. تشتهر بكونها ميناء تاريخيًا وموقعها كمدينة رئيسية على ساحل البحر الأبيض المتوسط. كونها عاشر أكبر مدينة في إسبانيا، فإنها توفر مجموعة واسعة من المرافق الحضرية والمعالم الثقافية. تضم المدينة 358,608 نسمة، مما يضفي عليها الحيوية. تغطي المدينة مساحة 201.3 كيلومتر مربع، مما يوفر مساحة كبيرة للتطوير. تتمتع المنطقة بـ 3873 ساعة من ضوء الشمس سنويًا، مما يجعلها وجهة شهيرة للأوروبيين الذين يبحثون عن مناخ مشمس.

دليل المنطقة: Alicante

Alicante or Alacant is a city and municipality in the Valencian Community, Spain. It is the capital of the province of Alicante and a historic Mediterranean port. With a population of 358,608 as of 2024, it is the 2nd-largest city in the Valencian Community and the 10th-largest in Spain.

حقائق أساسية

201.3 km² المساحة

المناخ

الشهر متوسط الحرارة معدل الأمطار
يناير 11.2°C 44 mm
فبراير 11.5°C 30 mm
مارس 14.0°C 39 mm
أبريل 16.1°C 44 mm
مايو 18.9°C 46 mm
يونيو 23.0°C 22 mm
يوليو 26.0°C 6 mm
أغسطس 26.5°C 7 mm
سبتمبر 23.6°C 39 mm
أكتوبر 19.4°C 58 mm
نوفمبر 15.2°C 47 mm
ديسمبر 11.8°C 39 mm

المرافق القريبة

261 restaurant
11 school
55 pharmacy
65 bank
136 cafe
9 dentist

الارتفاع والتضاريس

37m الارتفاع
2.1 km مسافة الشاطئ
1.5% الانحدار إلى الشاطئ

مسطح

معالم قريبة

نقاط مشاهدة

مراكز رياضية

موانئ ترفيهية

Ev Charging

شواطئ

ملاعب الغولف

النقل والوصول

9 km Alicante-Elche (ALC)
127 km Valencia (VLC)
399 km Malaga-Costa del Sol (AGP)
0 km Luceros
0.5 km Mercado
0.5 km Alacant Terminal
1 km Estació d'autobusos d'Alacant Estación de Autobuses de Alicante
1 km Estació de Autobusos

تفاصيل المشروع

المدينة Alicante
المنطقة Costa Blanca
السعر المبدئي €1,350,000
مساحة المعيشة 464 m²
السعر لكل م² €2,909 / m²
غرف النوم 4
الحمامات 4
موقف سيارات لا
مسبح لا
حديقة لا
حالة البناء key_ready
مسافة الشاطئ 2.1 km
تاريخ الإنجاز 1970
تاريخ النشر 2026-04-19

Ref: VL183257

المصدر: Wikipedia, Wikidata, INE, Junta de Andalucía

ملخص

  • فيلا فاخرة منفصلة في منطقة حضرية راسخة في أليكانتي.
  • تتميز بأربع غرف نوم وأربع حمامات، بمساحة معيشة 464 مترًا مربعًا وقطعة أرض 1131 مترًا مربعًا.
  • قربها من المرافق الحضرية المختلفة، بما في ذلك المتاجر والمطاعم والخدمات الطبية، بالإضافة إلى الشواطئ القريبة.
  • تتمتع بـ 3873 ساعة من ضوء الشمس سنويًا مع متوسط درجة حرارة سنوية 19.0 درجة مئوية، مما يوفر مناخًا معتدلًا.
  • جاهزة للسكن ومجهزة بوسائل راحة مثل المصعد والتراس الخاص والصالة الرياضية.

مقارنة إقليمية

بالمقارنة مع العقارات الأخرى في المنطقة، تمثل هذه الفيلا المنفصلة في أليكانتي سكنًا متميزًا في المنطقة. توفر شقق Oceanic Apartments في Rojales (بسعر يبدأ من 475,000 يورو) نمط حياة شقق، في حين تمثل Nueva Daya Villa في Daya Nueva (بسعر يبدأ من 380,000 يورو) و Residential Vivalife - Key Ready! في Lomas de Cabo Roig (بسعر يبدأ من 369,000 يورو) خيارات فيلات ذات أسعار معقولة، ولكنها قد تقع بعيدًا عن المراكز الحضرية أو على قطع أراضي أصغر. يعكس سعر هذه الفيلا في أليكانتي (1.35 مليون يورو) حجمها الأكبر وموقعها المتميز في وسط المدينة وحالتها الجاهزة للسكن، مما يجعلها عرضًا فريدًا للمشترين الذين يبحثون عن سكن حضري راقٍ ومريح بالقرب من الساحل.

الأسئلة الشائعة

هل تعتبر هذه الفيلا عقارًا راقيًا في منطقة أليكانتي؟
نعم، سعرها (1.35 مليون يورو) وحجمها (464 مترًا مربعًا) ومرافقها (مثل المصعد والصالة الرياضية والصالة) تشير إلى أنها تنتمي إلى السوق المتميز.
ما هو وقت السفر الفعلي من الفيلا إلى مطار أليكانتي-إلش؟
المسافة المستقيمة من الفيلا إلى مطار أليكانتي-إلش (ALC) تبلغ حوالي 9 كيلومترات، ولكن وقت القيادة الفعلي سيختلف بناءً على ظروف حركة المرور.
ما هي وسائل الراحة الحديثة المدمجة في الفيلا؟
الفيلا مجهزة بمصعد وتراس خاص وصالة وغرفة رياضية وغرفة تخزين ومنطقة شواء وقبو.
كيف يتم وضع هذا النطاق السعري للفيلات المنفصلة في سوق العقارات بمنطقة أليكانتي؟
يقع سعر 1.35 مليون يورو ضمن سوق العقارات المتميز في أليكانتي. مقارنة بالفيلات الأخرى المعروضة للبيع في المنطقة (على سبيل المثال، في Rojales، Daya Nueva، Lomas de Cabo Roig)، فهي تمثل عقارًا أكبر وأكثر تميزًا.
ما هي المرافق الرياضية والترفيهية الرئيسية القريبة من الفيلا؟
تشمل المراكز الرياضية القريبة Artes Marciales Alicante (0.6 كم) و Polideportivo de San Blas (0.8 كم). تقع ملاعب الجولف مثل Club de Golf El Plantío على بعد 6.1 كم.
بالإضافة إلى سعر الشراء، ما هي النفقات المستمرة الرئيسية التي يجب مراعاتها؟
تشمل النفقات المستمرة عادةً الضرائب البلدية (IBI) ورسوم المجتمع (إن وجدت) وفواتير الخدمات والتأمين المحتمل على الممتلكات.
ما هي عملية شراء عقار مثل هذا في إسبانيا للمشترين الدوليين؟
عادة ما تتضمن العملية الحصول على رقم تعريف الأجنبي (NIE)، وفتح حساب مصرفي، وإجراء العناية الواجبة القانونية، وتوقيع اتفاقية الشراء، والتوقيع النهائي على سند الملكية. يوصى بتعيين محامٍ مستقل.
كيف هو إيقاع الحياة في المنطقة خارج موسم الذروة السياحية؟
على الرغم من كونها وجهة سياحية، إلا أن أليكانتي مدينة رئيسية تضم سكانًا على مدار العام، لذا فهي تحافظ على مستوى معين من الحيوية خارج الموسم، وتقدم الخدمات والمرافق باستمرار.
Maiko
Maiko
خبير عقاري

مايكو خبير عقاري متخصص في سوق الإسكان الإسباني. من خلال معرفته العميقة بسواحل كوستا ديل سول، وكوستا بلانكا، والمناطق الساحلية الشهيرة الأخرى، يساعد المشترين في العثور على العقار المناسب. يقوم بتحليل العروض بناءً على الموقع والقيمة السوقية وجودة البناء والملاءمة للسكن، ويقدم نصائح صادقة تستند إلى البيانات طوال عملية الشراء بأكملها.

رد خلال 24 ساعة

مهتم؟

اترك بياناتك واحصل على معلومات عن التوفر، والأسعار، والمخططات.

المواصفات الفنية
العقار جاهز للسكن.
مساحة قطعة الأرض 1131 متر مربع.
تتميز بأربع غرف نوم وأربع حمامات.
تبلغ مساحة المعيشة 464 متر مربع.
يقع على ارتفاع 37 مترًا فوق مستوى سطح البحر.

Conversation history

Ask a question to start