2 Bed Middle Floor Apartment in Fuengirola w Fuengirola — Apartament
Apartament

Apartament na Sprzedaż w Fuengirola: Nowoczesne Mieszkanie Blisko Morza

Ten nowoczesny apartament w Fuengirola, w prowincji Málaga, oferuje atrakcyjną możliwość zamieszkania na Costa del Sol. Z powierzchnią mieszkalną 117 m² i dwoma sypialniami, jest idealny dla osób ceniących komfort i centralną lokalizację. Bliskość plaży i różnorodnych udogodnień miejskich czyni go interesującą opcją do życia w śródziemnomorskim klimacie. Kompleks posiada wspólne baseny i tereny rekreacyjne, które zwiększają komfort życia.

€780.000
2
Sypialnie
2
Łazienki
117 m²
Powierzchnia
€780.000
Prijs
0,4 km
Dystans do plaży

Analiza projektu

Kluczowe cechy lokalizacji, domów, etapu budowy i uwagi.

Lokalizacja

Apartament znajduje się w miejskim otoczeniu Fuengiroli, z bezpośrednim dostępem do miejskich udogodnień i w odległości krótkiego spaceru od plaży. Lokalizacja łączy zalety życia miejskiego z bliskością wybrzeża, obiecując wysoką jakość życia. Okoliczna zabudowa zapewnia dobrą infrastrukturę.

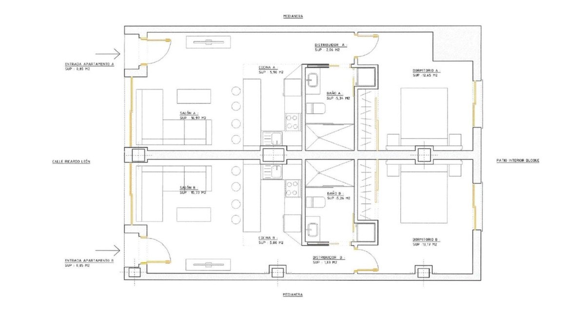
Układ

Dla kupujących poszukujących życia z łatwym dostępem do udogodnień, ten apartament jest dobrze dopasowany. Bliskość sklepów, restauracji, szkół i transportu publicznego ułatwia codzienne życie. Powierzchnia mieszkalna i układ z dwiema sypialniami i dwiema łazienkami oferują wystarczająco dużo miejsca dla par lub małych rodzin.

Status projektu

Apartament jest częścią nowego projektu budowlanego, który obiecuje nowoczesny komfort życia. Konstrukcja i użyte materiały są zaprojektowane z myślą o trwałości i efektywności energetycznej. Zakończenie projektu umożliwia kupującym nabycie nieruchomości w nowym i współczesnym stanie.

Ważne uwagi

Ten apartament nie oferuje bezpośredniego widoku na morze ze wszystkich pomieszczeń, a jego bezpośrednie otoczenie ma charakter miejski. Nie znajduje się w izolacji od natury, ale integruje się z tkanką miejską Fuengiroli. Wiejski spokój w bezpośrednim sąsiedztwie jest zatem ograniczony.

Szczegóły projektu

Projekt 2 Bed Middle Floor Apartment in Fuengirola
Miasto Fuengirola
Region Costa del Sol
Prijs €780.000
Powierzchnia 117 m²
Cena za m² €6.666 / m²
Taras 28 m²
Sypialnie 2
Łazienki 2
Parking Tak
Basen Tak
Ogród Tak
Status budowy for_sale
Dystans do plaży 0,4 km
Zakończenie 2025
Opublikowano 2026-04-18

Ref: VL870026

Źródło: Wikipedia, Wikidata, INE, Junta de Andalucía

Styl życia i okolica

Ten apartament jest odpowiedni dla kupujących, którzy szukają połączenia miejskiej infrastruktury i bliskości wybrzeża. Jest idealny dla osób, które cenią sobie krótkie dystanse do codziennych spraw, takich jak zakupy (112 m) i apteki (226 m), a jednocześnie chcą być blisko plaży (mniej niż 1 km). Dostęp do transportu publicznego (33 przystanki) i bliskość autostrady ułatwiają mobilność. Dla osób poszukujących drugiego domu lub nieruchomości na dłuższe pobyty w tętniącym życiem regionie Costa del Sol, ta oferta stanowi odpowiednie rozwiązanie. Kompleks mieszkalny, z basenami i obiektami sportowymi, jest również plusem dla entuzjastów spędzania wolnego czasu.

Jakość i wykończenie

Apartament wyróżnia się wysokiej jakości wykończeniem, które ma na celu zapewnienie nowoczesnego komfortu życia. Użycie gresowych podłóg i designerskiej stolarki podkreśla jego wartość. Zrównoważone materiały, takie jak kamień naturalny i drewno, zostały zintegrowane, aby stworzyć atrakcyjną estetykę. Łazienki wyposażone są w nowoczesne armatury i wykończenia. Duże drzwi przesuwne maksymalizują światło dzienne i łączą wnętrze z prywatnym tarasem. Otwarta kuchnia jest wyposażona w nowoczesne urządzenia. Każdy detal wydaje się zaprojektowany tak, aby łączyć funkcjonalność z atrakcyjnością wizualną, zgodnie ze stylem nowego projektu.

Okolica i styl życia

Cena i dostępność

Apartament jest oferowany w cenie od 780 000 €. Ta cena odzwierciedla lokalizację w pożądanym regionie przybrzeżnym i jakość nowej budowy. 117 m² powierzchni z dwiema sypialniami i dwiema łazienkami stanowi solidną podstawę dla tej klasy cenowej. Dostępność jest ograniczona do tego konkretnego apartamentu w nowoczesnym kompleksie mieszkalnym. Dodatkowe udogodnienia, takie jak podziemne miejsce parkingowe i schowek, są wliczone w cenę, zwiększając całkowitą wartość nieruchomości.

€780.000
Prijs
2
Sypialnie
117 m²
Powierzchnia
2
Łazienki

Okolica i styl życia

Fuengirola, położona w centralnej części Costa del Sol, prezentuje się jako tętniące życiem miasto, łączące miejską atmosferę z życiem blisko plaży. Z 117 m² powierzchni mieszkalnej i dwoma sypialniami, ten apartament oferuje komfortową przestrzeń do życia. Jego lokalizacja w środowisku miejskim oznacza, że kluczowe udogodnienia, takie jak supermarkety (112 m), apteki (226 m) i centra sportowe (0,6 km), są łatwo dostępne. Bliskość plaży, z kilkoma opcjami, takimi jak Playa de San Francisco zaledwie 658 metrów dalej, umożliwia regularny relaks nad morzem. Średnia roczna temperatura 18,7°C i 3 897 godzin słonecznych rocznie podkreślają przyjemny klimat Andaluzji. Sam projekt uzupełnia ofertę miejską wspólnymi basenami i terenami rekreacyjnymi, przyczyniając się do zrównoważonego stylu życia.

Poproś o informacje

Lokalizacja i okolica: Fuengirola

Okolica i dojazd

Fuengirola oferuje dynamiczne środowisko miejskie z wieloma udogodnieniami w promieniu 2 km, w tym 205 restauracjami i 36 aptekami. Apartament znajduje się w centralnej lokalizacji, co ułatwia codzienne życie dzięki krótkim odległościom do sklepów (112 m), centrów sportowych (0,6 km) i portu (0,7 km). Bliskość kilku plaż, zwłaszcza Playa de San Francisco (0,4 km), umożliwia spontaniczne wypady nad morze. Klimat, ze średnią temperaturą 18,7°C i 3 897 godzinami słonecznymi rocznie, sprzyja aktywnemu stylowi życia na świeżym powietrzu. Miasto jest dobrze zintegrowane z regionem Costa del Sol i oferuje dostęp do placówek edukacyjnych i ośrodków zdrowia.

Mapa i lokalizacja

Niniejsza mapa przedstawia lokalizację apartamentu w Fuengiroli, mieście na centralnym wybrzeżu Costa del Sol. Ilustruje ona bliskość plaż, centrum miasta i ważnych połączeń komunikacyjnych, takich jak lotnisko w Maladze. Zaznaczone udogodnienia dają przegląd infrastruktury dostępnej pieszo.

Beachfront room with ocean view, featuring a private balcony and modern amenities.

Położenie w regionie

Fuengirola strategicznie położona jest na centralnym wybrzeżu Costa del Sol, pomiędzy Malagą a Marbellą. Jako część prowincji Málaga, miasto jest dobrze zintegrowane z infrastrukturą gospodarczą i turystyczną regionu. Połączenie autostradą A-7 ułatwia dostęp do innych ważnych miast, takich jak Benalmádena i Mijas Pueblo. Sama Fuengirola jest ugruntowanym miastem nadmorskim oferującym szeroki wachlarz usług, atrakcyjnym zarówno dla mieszkańców, jak i turystów.

Dojazd i udogodnienia

Dostępność do Fuengiroli jest dobra. Plaża Playa de San Francisco znajduje się zaledwie 658 metrów od obiektu, a inne plaże, takie jak Boliches-Gaviotas, posiadają status Błękitnej Flagi. Najbliższe pola golfowe, takie jak Campo Los Lagos, oddalone są o około 3,8 km. Lotnisko Málaga-Costa del Sol znajduje się 18 km (w linii prostej) od obiektu, co zapewnia dobre połączenie dla podróży międzynarodowych. Sieć transportu publicznego, z 14 liniami i 33 przystankami, oferuje alternatywy dla samochodu. Dostęp drogowy jest ułatwiony przez bliskość głównych dróg.

Dystans do plaży 0,4 km
Malaga-Costa del Sol (AGP) 18 km
Gibraltar (GIB) 79 km
Fuengirola 0,6 km
Carvajal 3,5 km

Źródło: OpenStreetMap, Google Maps

Aerial view of a coastal city with a sandy beach and clear blue water.

Natura i klimat

Oceanfront apartment with balcony, city and beach views, modern amenities.

Klimat Fuengiroli jest śródziemnomorski, z łagodnymi zimami i ciepłymi latami; średnia roczna temperatura wynosi 18,7°C. Przy 3 897 godzinach słonecznych rocznie, region jest bardzo słoneczny. Sezon kąpielowy trwa około czterech miesięcy, gdy temperatura wody osiąga co najmniej 20°C. Wysokość apartamentu nad poziomem morza wynosi 15 metrów, a nachylenie w kierunku najbliższej plaży wynosi 3,0%, co jest uważane za umiarkowane. Te warunki klimatyczne sprzyjają aktywnościom na świeżym powietrzu przez cały rok.

3897 Godziny słoneczne/rok
4 Sezon kąpielowy (miesiące)
18.7°C Śr. roczna temperatura
15m Wysokość n.p.m.

Źródło: Open-Meteo (2020–2025 średnia)

Plaże i rekreacja

Fuengirola posiada cztery plaże z Błękitną Flagą, w tym Boliches-Gaviotas i Castillo-Ejido, które są znane z jakości wody i czystości. Najbliższa plaża, Playa de San Francisco, znajduje się zaledwie 658 metrów od obiektu. Oprócz życia plażowego, okolica oferuje liczne możliwości rekreacji. Znajduje się tu 269 obiektów sportowych, w tym boiska piłkarskie i baseny, takie jak Piscina María Peláez (0,5 km). Region golfowy jest również dobrze rozwinięty, z kilkoma polami golfowymi w promieniu 5 km. Marina w Fuengiroli (0,7 km) uzupełnia ofertę aktywności rekreacyjnych.

Plaże

  • Playa de San Francisco 0,4 km
  • Playa de los Boliches 1 km
  • Playa de Santa Amalia 1,2 km
  • Playa del Castillo 1,9 km
  • Playa Torreblanca-Carvajal Blue Flag 2,1 km
  • Playa Mati 2,8 km

Golf

  • Campo Los Lagos 4 km
  • Cerrado del Aguila Golf 4,5 km
  • Campo Los Olivos 4,7 km
  • El Chaparral Golf Club 5,4 km

Obiekty sportowe

269 Dostępne obiekty

Źródło: Blue Flag 2026, OpenStreetMap, CSD

Beachfront room with ocean view, featuring a balcony and lounge chairs.

Położenie w regionie

Fuengirola strategicznie położona jest na centralnym wybrzeżu Costa del Sol, pomiędzy Malagą a Marbellą. Jako część prowincji Málaga, miasto jest dobrze zintegrowane z infrastrukturą gospodarczą i turystyczną regionu. Połączenie autostradą A-7 ułatwia dostęp do innych ważnych miast, takich jak Benalmádena i Mijas Pueblo. Sama Fuengirola jest ugruntowanym miastem nadmorskim oferującym szeroki wachlarz usług, atrakcyjnym zarówno dla mieszkańców, jak i turystów.

Przewodnik po regionie: Fuengirola

Fuengirola is a city on the Costa del Sol in the province of Málaga in the autonomous community of Andalusia in southern Spain. It is located on the central coast of the province and integrated into the region of the Costa del Sol and the Commonwealth of Municipalities of the Costa del Sol Occidental.

Kluczowe fakty

10.4 km² Powierzchnia

Klimat

Miesiąc Średnia temperatura Opady
Styczeń 11.9°C 56 mm
Luty 12.2°C 57 mm
Marzec 14.2°C 46 mm
Kwiecień 16.1°C 31 mm
Maj 18.3°C 28 mm
Czerwiec 22.4°C 6 mm
Lipiec 25.8°C 1 mm
Sierpień 26.2°C 2 mm
Wrzesień 22.9°C 9 mm
Październik 19.1°C 51 mm
Listopad 15.2°C 74 mm
Grudzień 12.6°C 66 mm

Udogodnienia w okolicy

205 restaurant
36 pharmacy
27 bank
1 park
63 cafe
9 dentist

Wysokość i Teren

15m Wysokość n.p.m.
0,4 km Dystans do plaży
3.0% Nachylenie do plaży

Umiarkowany

W pobliżu

Ev Charging

Centra sportowe

Plaże

Przystanie

Pola golfowe

Baseny

Transport

18 km Malaga-Costa del Sol (AGP)
79 km Gibraltar (GIB)
407 km Alicante-Elche (ALC)
0,6 km Fuengirola
3,5 km Carvajal
6,2 km Torremuelle
0,7 km Terminal Autobus

Podsumowanie

  • Nowoczesny kompleks apartamentowy w Fuengirola, Málaga.
  • Powierzchnia mieszkalna 117 m², 2 sypialnie, 2 łazienki.
  • Tylko kilka minut spacerem od plaży i miejskich udogodnień.
  • Wspólne baseny i tereny rekreacyjne dostępne.
  • Dobra dostępność do lotniska w Maladze (18 km w linii prostej).

Porównanie regionalne

W porównaniu do innych projektów w Fuengirola, takich jak Aura Higueron (od 669 000 €) i Higuerón Bay Residences (od 580 000 €), ten apartament plasuje się w średnio-wyższym segmencie cenowym, z ceną wyjściową 780 000 €. Projekt Carat w tym samym mieście jest droższy, osiągając 822 000 €. Oferowana powierzchnia mieszkalna 117 m² jest solidna jak na tę klasę cenową, zwłaszcza w porównaniu z mniejszymi jednostkami, które mogą być oferowane w tańszych projektach. Lokalizacja, łącząca dużą liczbę udogodnień i bliskość plaży, jest typowa dla Fuengiroli, charakteryzującej się miejską strukturą. Chociaż Higuerón Bay Residences może oferować bardziej przystępne cenowo opcje, ten apartament może przekonać nowocześniejszym wyposażeniem lub lepszą lokalizacją w mieście. Aura Higueron jest blisko pod względem ceny, co może sugerować podobne grupy docelowe i poziomy wyposażenia. Wybór między tymi opcjami zależy od konkretnych priorytetów kupującego, takich jak cena, dokładna lokalizacja lub specyficzne cechy.

Często zadawane pytania

Czy lokalizacja jest naprawdę tak centralna, jak opisano?
Lokalizacja jest opisana jako miejska, z udogodnieniami w zasięgu spaceru. Supermarkety znajdują się w odległości 112 m, apteki 226 m. Kilka plaż znajduje się w odległości mniejszej niż 1 km.
Jak wygląda połączenie z transportem publicznym?
Istnieje 14 linii transportu publicznego i 33 przystanki w promieniu 2 km. Stacja kolejowa w Fuengiroli znajduje się 0,6 km od obiektu.
Jakie materiały są używane do wykończenia wnętrz?
Użyte materiały obejmują podłogi gresowe, stolarkę designerską, kamień naturalny i drewno.
Jak cena porównuje się z podobnymi nieruchomościami w Fuengiroli?
Z ceną wyjściową 780 000 € apartament plasuje się w średnio-wyższej klasie cenowej w porównaniu do innych projektów w Fuengiroli, takich jak Aura Higueron (od 669 000 €) i Higuerón Bay Residences (od 580 000 €).
Jakie obiekty wspólne są dostępne?
Kompleks oferuje baseny dla dorosłych i dzieci, zewnętrzne centrum fitness oraz strefę coworkingową.
Czy dodatkowe koszty, takie jak parking i schowek, są wliczone w cenę?
Tak, podziemne miejsce parkingowe i prywatny schowek są wliczone w cenę.
Jaki jest proces zakupu tego typu nieruchomości?
Szczegóły procesu zakupu nie są podane, ale zazwyczaj obejmuje on rezerwację, zaliczkę i podpisanie aktu kupna u notariusza.
Jak daleko jest do najbliższej plaży?
Najbliższa plaża, Playa de San Francisco, znajduje się zaledwie 658 metrów od obiektu. Inne plaże, takie jak Playa de los Boliches, znajdują się 1,0 km od obiektu.
Maiko
Maiko
Ekspert nieruchomości

Maiko jest ekspertem ds. nieruchomości specjalizującym się na hiszpańskim rynku nieruchomości. Dzięki dogłębnej znajomości Costa del Sol, Costa Blanca i innych popularnych regionów przybrzeżnych pomaga kupującym znaleźć odpowiednią nieruchomość. Analizuje oferty pod kątem lokalizacji, wartości rynkowej, jakości budowy i jakości życia, udzielając uczciwych, opartych na danych porad przez cały proces zakupu.

Odpowiedź w ciągu 24h

Zainteresowany?

Zostaw dane, a otrzymasz informacje o dostępności, cenach i planach.

Dane techniczne
Powierzchnia mieszkalna: 117 m².
Liczba sypialni: 2.
Liczba łazienek: 2.

Historia rozmowy

Zadaj pytanie, aby zacząć