تم بيع هذا العقار عرض عقارات مشابهة في Mijas
Residential Plot in Mijas Costa في Mijas Costa — قطعة أرض سكنية
قطعة أرض سكنية

قطعة أرض سكنية للبيع في ميخاس كوستا - 958 متر مربع

تقع هذه الأرض السكنية التي تبلغ مساحتها 958 مترًا مربعًا في المنطقة الحضرية لميخاس كوستا (Mijas Costa)، وتوفر فرصة للتطوير بالقرب من ماربيا. تتميز الأرض بقربها من الساحل وبيئة حضرية مريحة مع سهولة الوصول إلى جميع وسائل الراحة. على الرغم من أن مساحة الأرض الفعلية تبلغ 230 مترًا مربعًا، إلا أنها تتضمن مشروعًا معتمدًا لبناء 10 شقق، مما يوفر فرصة فريدة للمستثمرين أو المطورين. يضمن القرب من وسائل الراحة المحلية مثل المتاجر والصيدليات، بالإضافة إلى سهولة الوصول إلى وسائل النقل، أن تكون هذه الأرض خيارًا جذابًا في المنطقة.

€695,000 مباع
هذا العقار لم يعد متاحاً
958 m²
مساحة المعيشة
€695,000 مباع
Prijs
1.3 km
مسافة الشاطئ

تحليل المشروع

أهم خصائص الموقع، والوحدات، ومراحل المشروع، ونقاط الاهتمام.

الموقع

تقع الأرض في بيئة حضرية في ميخاس كوستا (Mijas Costa)، بالقرب من الساحل. يوفر موقعها إمكانية الوصول سيرًا على الأقدام إلى وسائل الراحة المختلفة مثل المتاجر والمطاعم. تتمتع المنطقة أيضًا بروابط نقل جيدة، حيث تقع على بعد 14 كم فقط من مطار مالاغا (مسافة خط مستقيم).

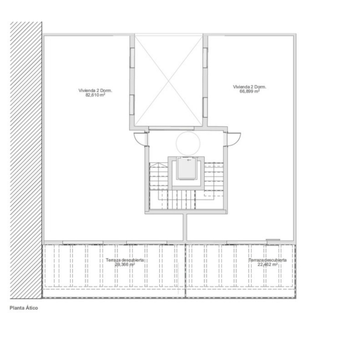
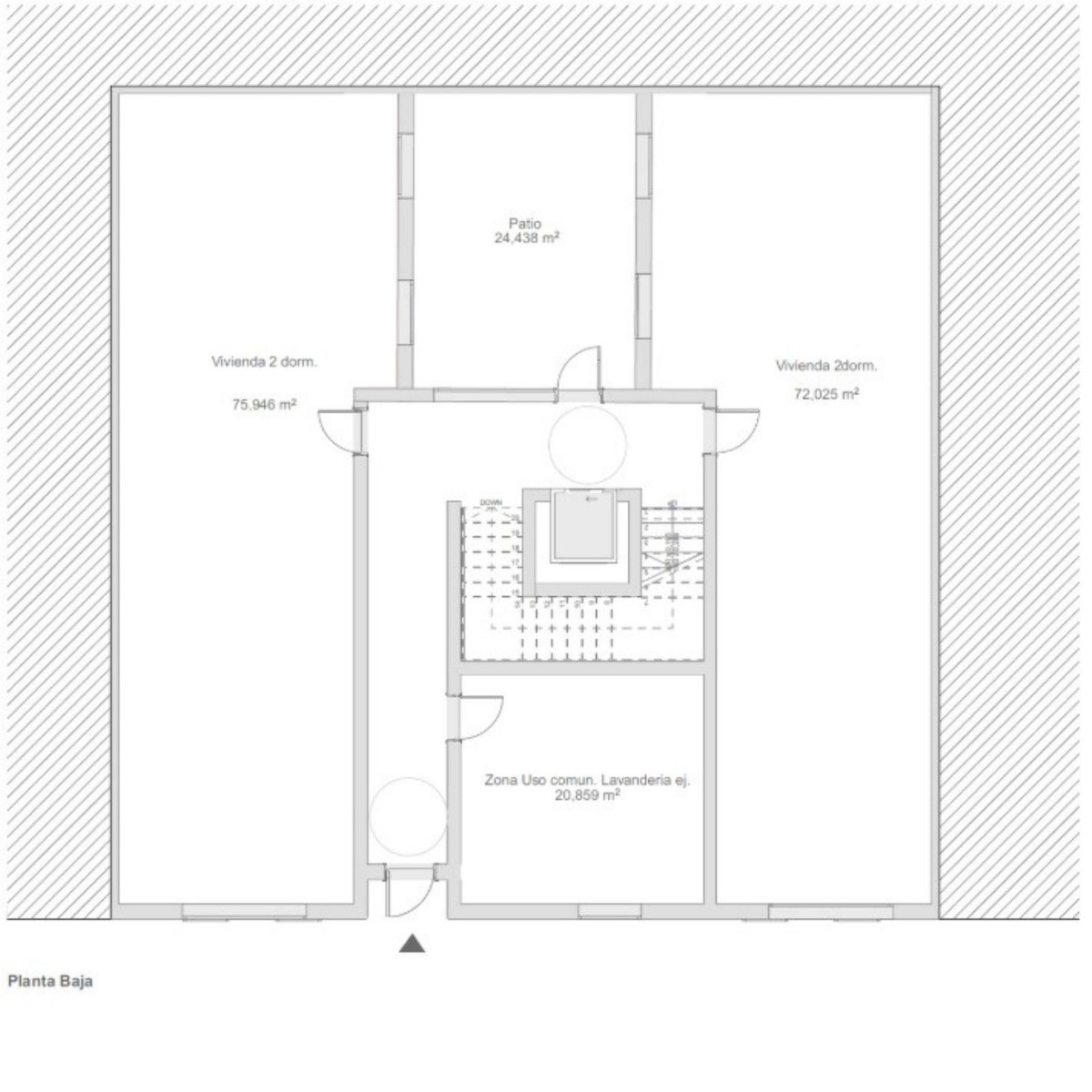
المخططات

هذه الأرض جذابة للأفراد أو الشركات التي تسعى إلى تطوير مشروع سكني جديد. إنها توفر فرصة لبناء شقق في منطقة راسخة، مما يلبي الطلب على المساكن. يضمن القرب من وسائل الراحة نمط حياة مريح للمقيمين المستقبليين، في حين تسهل سهولة الوصول إلى وسائل النقل التنقل والسفر.

حالة المشروع

تتضمن الأرض مشروع تطوير معتمد لبناء 10 شقق. يشير هذا إلى أن المشروع قد اجتاز المراحل الأولية للتخطيط وهو جاهز للمضي قدمًا في مرحلة التطوير التالية. يمكن أن يؤدي وجود مشروع معتمد إلى تبسيط عملية التطوير.

نقاط هامة

الأرض عبارة عن قطعة أرض سكنية، مخصصة بشكل أساسي لبناء الشقق، وقد لا تكون مناسبة لبناء فيلات مستقلة أو عقارات تجارية. على الرغم من أنها في بيئة حضرية، قد يكون هناك بعض الضوضاء المرتبطة بالنقل. تمثل الأرض فرصة تطوير مع مشروع قائم، وليس منزلًا جاهزًا للسكن.

تفاصيل المشروع

المشروع Residential Plot in Mijas Costa
المدينة Mijas Costa
المنطقة Costa del Sol
Prijs €695,000 مباع
مساحة المعيشة 958 m²
السعر لكل م² €725 / m²
موقف سيارات لا
مسبح لا
حديقة لا
حالة البناء sold
مسافة الشاطئ 1.3 km
تاريخ الإنجاز 1970
تاريخ النشر 2026-04-24

Ref: VL952217

المصدر: Wikipedia, Wikidata, INE, Junta de Andalucía

نمط الحياة

هذه الأرض مناسبة لمستثمري العقارات أو المطورين الذين يتطلعون إلى تطوير مشروع سكني جديد. إن المشروع المعتمد لبناء 10 شقق يجعله أصلًا جذابًا لتلبية الطلب على المساكن. إنه خيار جيد أيضًا لأولئك الذين يبحثون عن مشروع يوفر سهولة الوصول إلى وسائل الراحة والنقل بالقرب من ماربيا. يجعله القرب من المتاجر والصيدليات والمطاعم، بالإضافة إلى قربه من الشواطئ (1.3 كم) وملاعب الجولف (1.2 كم)، وجهة أسلوب حياة مرغوبة. 3889 ساعة من الشمس على مدار العام وموسم سباحة لمدة 5 أشهر مثاليان لأولئك الذين يسعون إلى الاستمتاع بالشمس والأنشطة الخارجية.

الجودة والتشطيبات

مشروع الأرض هذا هو قطعة أرض سكنية، وستعتمد جودة التشطيب على البناء والتشطيبات للشقق العشر المخطط لها. يشير مشروع التطوير المعتمد إلى نية بناء مساكن حديثة. تتوفر معلومات محدودة حول المواد أو التقنيات المحددة المتعلقة بالأرض نفسها، حيث تكمن قيمتها الأساسية في إمكانات التطوير. سيتم تحديد مستوى التشطيب النهائي والتركيبات والمواد المستخدمة من قبل المطور وسيتم تفصيلها في خطط البناء المستقبلية.

البيئة ونمط الحياة

السعر والتوفر

يبلغ سعر العرض للأرض 695,000 يورو. يعكس هذا السعر موقعها المتميز في ميخاس كوستا (Mijas Costa) ومشروع التطوير المعتمد لبناء 10 شقق. يجب على المشترين المحتملين النظر في تكاليف البناء والرسوم المرتبطة به. نظرًا لإمكانات التطوير الخاصة بها، تمثل الأرض فرصة استثمارية كبيرة.

€695,000 مباع
Prijs
958 m²
مساحة المعيشة

البيئة المحيطة

توفر هذه الأرض في ميخاس كوستا (Mijas Costa) مزيجًا من الحياة الحضرية. الأرض نفسها هي قطعة أرض سكنية تبلغ مساحتها 230 مترًا مربعًا، ولكنها تتضمن مشروعًا معتمدًا لبناء 10 شقق، مما يجعلها فرصة استثمارية أو تطويرية. تقع على مسافة قريبة من وسائل الراحة اليومية مثل المتاجر (239 مترًا) والصيدليات (265 مترًا). مع 9 مطاعم ومقهيين بالقرب منها، تلبي احتياجات تناول الطعام. يشير وجود 15 مدرسة ابتدائية و 10 مدارس ثانوية إلى أنها منطقة مناسبة للعائلات. تتمتع المنطقة بسطوع شمسي على مدار العام يصل إلى 3889 ساعة، مع موسم سباحة لمدة 5 أشهر، مما يجعل المناخ ممتعًا. ومع ذلك، فهي بيئة حضرية وقد تكون أكثر ازدحامًا من المناطق الساحلية أو الريفية.

طلب معلومات

الموقع والبيئة: Mijas Costa

البيئة والوصول

وتيرة الحياة في ميخاس كوستا (Mijas Costa) حضرية ولكنها قريبة من الشاطئ. تقع الأرض على بعد 1.3 كم فقط من شاطئ بلايا ديل شاركون - إل شاركون، وعلى بعد مسافة قصيرة من شواطئ أخرى مثل بلايا دي توربلانكا-كارفاخال (4.7 كم) وبلايا دي لوس بوليتشيس (5.3 كم). وسائل الراحة في متناول اليد، حيث تقع المتاجر (239 مترًا) والصيدليات (265 مترًا) بالجوار. يوجد 9 مطاعم ومقهيان في المنطقة. توفر 8 خطوط نقل عام 50 محطة حافلات، مما يوفر خيارات التنقل. يوجد 15 مدرسة ابتدائية و 10 مدارس ثانوية في المنطقة، مما يوفر خيارات تعليمية للعائلات. يبلغ متوسط درجة الحرارة السنوية 18.6 درجة مئوية، والطقس مشمس وممتع.

الخريطة والموقع

توضح هذه الخريطة موقع الأرض السكنية في ميخاس كوستا (Mijas Costa). يسلط الضوء على قرب الأرض من وسائل الراحة القريبة مثل المتاجر والمطاعم والشواطئ. توضح الخريطة أيضًا المسافات إلى مطار مالاغا والطرق الرئيسية، مما يؤكد سهولة الوصول إلى المنطقة.

White-walled building with terracotta roof, balconies, and potted plants.

الموقع الإقليمي

تقع الأرض في موقع استراتيجي في ميخاس كوستا (Mijas Costa)، الأندلس. ميخاس كوستا (Mijas Costa) هي المنطقة التجارية والسكنية الرئيسية في فوينخيرولا، ولكنها تعمل أيضًا كبوابة لمناطق أخرى شهيرة مثل مالاغا وماربيا. تقع في قلب كوستا ديل سول، محاطة بالعديد من ملاعب الجولف والشواطئ ومناطق الترفيه، مما يجعلها منطقة نابضة بالحياة.

المرافق والوصول

الأرض يسهل الوصول إليها. يقع مطار مالاغا-كوستا-ديل-سول (AGP) على بعد حوالي 14 كم (مسافة خط مستقيم). يقع أقرب شاطئ، بلايا ديل شاركون - إل شاركون، على بعد 1.3 كم. يوجد العديد من ملاعب الجولف في المنطقة، بما في ذلك نادي إل تشابارال للجولف (1.2 كم) وسيرادو ديل أغيلا جولف (1.3 كم). تقع أقرب محطة قطار في فوينخيرولا (3.6 كم). يوفر النقل العام 8 خطوط مع 50 محطة حافلات، مما يوفر خيارات للسفر إلى المناطق المحيطة. كما أن القيادة مريحة، مع وجود نقاط شحن للسيارات الكهربائية في مكان قريب.

مسافة الشاطئ 1.3 km
Malaga-Costa del Sol (AGP) 22 km
Gibraltar (GIB) 75 km
Fuengirola 3.6 km
Carvajal 7.8 km

المصدر: OpenStreetMap, Google Maps

Cozy balcony with sea view, blue planters, and lush greenery.

الطبيعة والمناخ

White-walled room with arched windows, blue flower pots, and a tiled roof.

تتمتع المنطقة بمناخ البحر الأبيض المتوسط، بمتوسط درجة حرارة سنوية 18.6 درجة مئوية، وما يصل إلى 3889 ساعة من أشعة الشمس سنويًا، مما يجعلها وجهة مثالية للأنشطة الخارجية والاستمتاع بالشمس. يمتد موسم السباحة لمدة 5 أشهر، مع درجات حرارة مياه تزيد عن 20 درجة مئوية. تقع الأرض على ارتفاع 52 مترًا فوق مستوى سطح البحر، مع انحدار معتدل بنسبة 3.5٪ باتجاه الشاطئ. في حين أن المنطقة حضرية، فإن قربها من الساحل يوفر نسيم البحر والإطلالات. توجد أيضًا مراكز رياضية ومتنزهات في المنطقة، مما يوفر خيارات ترفيهية إضافية.

3889 ساعات الشمس/سنة
5 موسم السباحة (أشهر)
18.6°C متوسط الحرارة السنوي
52m الارتفاع

المصدر: Open-Meteo (2020–2025 متوسط)

الشواطئ والترفيه

تقع الأرض بالقرب من العديد من الشواطئ، أقربها بلايا ديل شاركون - إل شاركون على بعد 1.3 كم فقط. تشمل الشواطئ الأخرى بلايا ديل شاركون - بلايا مارينا (1.3 كم) وبلايا إل تشابارال - إل تشابارال (1.5 كم). تقدم المنطقة مجموعة واسعة من الأنشطة الترفيهية، بما في ذلك المراكز الرياضية مثل نادي باديل سيرادو ديل أغيلا (1.3 كم) وكارتينج إكسبيرينس (2.2 كم). توجد ملاعب جولف متعددة في مكان قريب، مثل نادي إل تشابارال للجولف (1.2 كم) وسيرادو ديل أغيلا جولف (1.3 كم). توجد أيضًا مسابح مثل بيسينا بيلابيستا (1.0 كم).

شواطئ

  • Playa del Charcón - El Charcón 1.3 km
  • Playa del Charcón - Playa Marina 1.3 km
  • Playa El Chaparral - El Chaparral 1.5 km
  • Playa del Faro - Punta Calaburras 1.6 km
  • Playa del Faro - El Faro 1.7 km
  • Playa Rocas del Cura 1.9 km

Golf

  • El Chaparral Golf Club 1.2 km
  • Cerrado del Aguila Golf 1.3 km
  • Campo Los Lagos 3.7 km
  • Campo Los Olivos 4.3 km

المصدر: OpenStreetMap

Oceanfront room with balcony, stunning beach and ocean view, modern amenities.

الموقع الإقليمي

تقع الأرض في موقع استراتيجي في ميخاس كوستا (Mijas Costa)، الأندلس. ميخاس كوستا (Mijas Costa) هي المنطقة التجارية والسكنية الرئيسية في فوينخيرولا، ولكنها تعمل أيضًا كبوابة لمناطق أخرى شهيرة مثل مالاغا وماربيا. تقع في قلب كوستا ديل سول، محاطة بالعديد من ملاعب الجولف والشواطئ ومناطق الترفيه، مما يجعلها منطقة نابضة بالحياة.

دليل المنطقة: Mijas Costa

Mijas Costa is the main commercial and residential zone of, although not limited to, Fuengirola.

حقائق أساسية

المناخ

الشهر متوسط الحرارة معدل الأمطار
يناير 9.4°C 61 mm
فبراير 9.8°C 64 mm
مارس 11.8°C 53 mm
أبريل 13.7°C 37 mm
مايو 15.9°C 34 mm
يونيو 20.0°C 7 mm
يوليو 23.4°C 1 mm
أغسطس 23.7°C 2 mm
سبتمبر 20.5°C 10 mm
أكتوبر 16.7°C 54 mm
نوفمبر 12.8°C 78 mm
ديسمبر 10.1°C 69 mm

المرافق القريبة

9 restaurant
1 pharmacy
2 cafe

الارتفاع والتضاريس

52m الارتفاع
1.3 km مسافة الشاطئ
3.5% الانحدار إلى الشاطئ

معتدل

معالم قريبة

مراكز رياضية

نقاط مشاهدة

Ev Charging

شواطئ

موانئ ترفيهية

ملاعب الغولف

مسابح

النقل والوصول

22 km Malaga-Costa del Sol (AGP)
75 km Gibraltar (GIB)
411 km Alicante-Elche (ALC)
3.6 km Fuengirola
7.8 km Carvajal
3.7 km Terminal Autobus

ملخص

  • قطعة أرض سكنية بمساحة 230 مترًا مربعًا في بيئة حضرية في ميخاس كوستا (Mijas Costa).
  • تتضمن مشروعًا معتمدًا لبناء 10 شقق.
  • موقع متميز بالقرب من المتاجر والمطاعم والشواطئ (أقرب شاطئ على بعد 1.3 كم).
  • سهولة الوصول إلى وسائل النقل، على بعد حوالي 14 كم من مطار مالاغا (مسافة خط مستقيم).
  • بسعر 695,000 يورو، وهي فرصة جذابة للمطورين أو المستثمرين.

مقارنة إقليمية

مقارنة بمشاريع أخرى على كوستا ديل سول، مثل Acqua Gardens في إستيپونا (بدءًا من 418,800 يورو) و Alba Benalmadena في بينالمادينا (بدءًا من 699,000 يورو)، يتميز هذا الموقع في ميخاس كوستا (Mijas Costa) بمشروع الشقق المعتمد. في حين أن السعر يتماشى مع Alba Benalmadena، فإن هذا المشروع يقدم مخططًا تطويريًا محددًا بدلاً من مسكن تم بناؤه. بالمقارنة مع مشاريع مثل Acqua Gardens و Aby Upper (إستيپونا، بدءًا من 320,000 يورو)، يوفر المشروع في ميخاس كوستا (Mijas Costa) مزايا مختلفة من حيث الراحة الحضرية والاتصال بالنقل، مع قربه من المطار وسهولة الوصول سيرًا على الأقدام إلى العديد من وسائل الراحة. في حين أن المشاريع في إستيپونا قد تقدم أجواء مختلفة على الواجهة البحرية أو هادئة، فإن قطعة الأرض في ميخاس كوستا (Mijas Costa) مناسبة لأولئك الذين يبحثون عن فرص تطوير في بيئة حضرية نابضة بالحياة.

الأسئلة الشائعة

هل هذه قطعة أرض جاهزة للبناء أم مشروع بتصريح؟
هذه قطعة أرض سكنية مع مشروع بناء معتمد لـ 10 شقق. إنها ليست منزلًا جاهزًا للسكن.
ما مدى قرب أقرب وسائل الراحة؟
أقرب سوبر ماركت يبعد 239 مترًا، وأقرب صيدلية تبعد 265 مترًا. يوجد 9 مطاعم ومقهيان ضمن مسافة 2 كم.
ما هي معايير البناء المطبقة على المشروع المعتمد؟
سيتم تحديد معايير البناء والمواد المحددة من خلال مشروع البناء المعتمد. تتوفر تفاصيل إضافية عبر وثائق المشروع.
ما هو احتمال تحقيق إيرادات إيجارية في هذا القطاع؟
ميخاس كوستا (Mijas Costa) وجهة سياحية شهيرة ذات معدلات إشغال عالية، مما يشير إلى وجود إمكانات لتحقيق إيرادات إيجارية، خاصة بالنسبة للشقق الجديدة.
ما هي المرافق الرياضية والترفيهية القريبة؟
توجد مراكز رياضية مثل Club de Pádel Cerrado del Águila (1.3 كم) والكارتينج (2.2 كم). توجد أيضًا ملاعب جولف متعددة على بعد 1.2 - 6.0 كم.
ما هي التكاليف الإضافية المتوقعة بعد شراء الأرض؟
تشمل التكاليف الإضافية بناء الشقق العشر، ورسوم التوصيل، والضرائب، وأي تكاليف متعلقة بتطوير المشروع.
كم من الوقت يستغرق الحصول على تصريح البناء النهائي بعد الموافقة على المشروع؟
قد يختلف الجدول الزمني الدقيق للحصول على التصريح النهائي بعد الموافقة على المشروع. تتوفر معلومات مفصلة حول حالة التصريح.
ما مدى قرب الأرض من الشاطئ؟
أقرب شاطئ، بلايا ديل شاركون - إل شاركون، يقع على بعد 1.3 كم (مسافة خط مستقيم).
Omar Al-Nasser
Omar Al-Nasser
خبير عقاري

عمر الناصر يفهم بعمق احتياجات العملاء الناطقين بالعربية، ويرشدهم بثقة في سوق العقارات الإسباني. هو يضمن عملية شراء سلسة ومحترمة ثقافيًا.

AI-assisted multilingual representative. Your inquiry is handled by our real support team.

رد خلال 24 ساعة

مهتم؟

اترك بياناتك واحصل على معلومات عن التوفر، والأسعار، والمخططات.

المواصفات الفنية
مساحة الأرض: 230 متر مربع.
مشروع معتمد: بناء 10 شقق.
أقرب سوبر ماركت: 239 متر.
أقرب شاطئ: 1.3 كم.
متوسط عدد ساعات الشمس السنوية: 3889.

Conversation history

Ask a question to start