3 Bed Townhouse in The Golden Mile i The Golden Mile — Rækkehus
Rækkehus

Rækkehus til salg på The Golden Mile, Málaga

Dette udsøgte rækkehus ligger i den prestigefyldte Oasis Club-urbanisation på Marbellas Golden Mile, synonymt med luksus og eksklusivitet ved Costa del Sol. Som en del af et ikonisk strandnært kompleks, tilbyder denne ejendom boligkomfort på ét plan med direkte adgang til en stor privat terrasse. En anden terrasse på øverste etage lover desuden en vidunderlig havudsigt. Ejendommen er for nylig blevet totalrenoveret med materialer af højeste kvalitet, hvilket resulterer i en meget elegant og stilfuld finish, der kombinerer middelhavsæstetik med et skandinavisk touch indendørs.

€3.500.000
3
Soveværelser
3
Badeværelser
123 m²
Boligareal
€3.500.000
Prijs

Projektanalyse

Nøglekendetegn ved beliggenhed, boliger, projektets fase og punkter at være opmærksom på.

Beliggenhed

Beliggende direkte ved stranden, nyder dette rækkehus en privilegeret beliggenhed i Oasis Club-urbanisationen. Komplekset tilbyder direkte privat adgang til stranden og promenaden, som inviterer til gåture mod Puerto Banús eller Marbella, forbi luksushoteller som Puente Romano og Marbella Club.

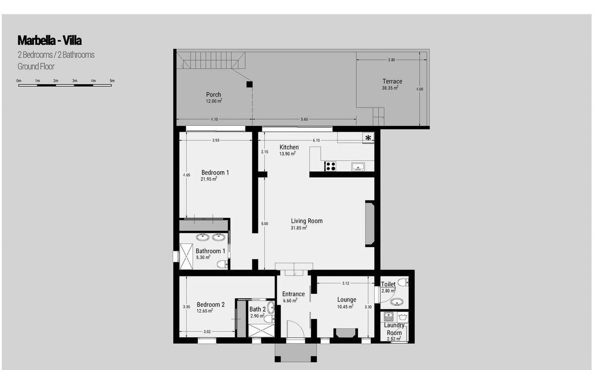
Plantegning

Ideel for købere, der stiller de højeste krav til livskvalitet og beliggenhed. Planløsningen i ét plan med direkte adgang til terrassen, samt den omfattende renovering med førsteklasses materialer, opfylder behovet for moderne komfort og stil i et førsteklasses miljø.

Projektstatus

Projektet er i fremragende stand efter en nylig, komplet renovering. Arbejdet er afsluttet med fokus på højeste kvalitet og stilfulde, elegante overflader. Interiørdesignet kombinerer middelhavsindflydelser med skandinavisk designs klarhed og funktionalitet.

Vigtige bemærkninger

Dette projekt fokuserer på en luksuriøs boligoplevelse ved havet. Det tilbyder ingen privat have eller privat garage. Bygningens energieffektivitetsklasse er ikke specifikt angivet, og der er installeret aircondition (varm/kold), men den nøjagtige type styring er ikke specificeret.

Livsstil & omgivelser

Denne ejendom er velegnet til kræsne købere, der søger en luksuriøs boligløsning direkte ved havet. Den er ideel for dem, der værdsætter en eksklusiv beliggenhed, renoveringer af høj kvalitet og en middelhavs livsstil med skandinaviske designelementer. Uanset om det er som primær bolig, eksklusivt feriehus eller en elegant base for at nyde Costa del Sol – nærheden til Marbella, Puerto Banús, fremragende restauranter og golfbaner gør den attraktiv for en sofistikeret kundekreds.

Byggekvalitet & materialer

Den nyligt gennemførte totalrenovering understreger engagementet for højeste kvalitet. Kun førsteklasses materialer er anvendt for at sikre en stilfuld og elegant finish. Interiørdesignet kombinerer dygtigt middelhavsindflydelser med skandinavisk designs klarhed og funktionalitet. Højkvalitets indbyggede skabe, moderne badeværelser og et stilfuldt køkken er en del af udstyret. Overflader og finish afspejler et højt niveau af håndværk.

Omgivelser & livsstil

Pris & ledighed

Rækkehuset udbydes til en pris af €3.500.000. Det har 3 soveværelser og 3 badeværelser på et boligareal på 123 m². Grundens størrelse eller yderligere detaljer om planløsningen er ikke specificeret. Det er værd at bemærke, at dette er en repræsentativ ejendom i en topbeliggenhed, hvilket afspejles i prisen. Andre sammenlignelige ejendomme i regionen varierer betydeligt i pris, afhængigt af beliggenhed, størrelse og faciliteter.

€3.500.000
Prijs
3
Soveværelser
123 m²
Boligareal
3
Badeværelser
€720
Grundskyld/år
€278
Affald/år

Omgivelser & livsstil

The Golden Mile er en af de mest eksklusive adresser ved Costa del Sol, kendt for sine luksuriøse ejendomme, femstjernede hoteller og førsteklasses restauranter. Dette rækkehus ligger direkte ved stranden, kun få skridt fra havet. Oasis Club-urbanisationen har en fælles swimmingpool og direkte adgang til stranden og promenaden. De umiddelbare omgivelser er urbane, med mange faciliteter som restauranter, butikker, apoteker og et supermarked inden for gåafstand. Det pulserende liv i Marbella og marinaen Puerto Banús er let tilgængelige, hvilket giver en perfekt balance mellem ro og byliv.

Anmod om oplysninger

Beliggenhed & omgivelser: The Golden Mile

Omgivelser & tilgængelighed

At bo på The Golden Mile betyder at bo midt i begivenhedernes centrum. Med et supermarked 276 m væk og et apotek 514 m væk, er daglige gøremål bekvemt klaret til fods. Nærheden til 69 restauranter og 10 caféer tilbyder mange kulinariske muligheder. Stranden ligger kun 517 m væk, hvilket muliggør daglige gåture eller forfriskninger ved havet. God forbindelse til offentlig transport (11 linjer, 50 stoppesteder) letter bevægelsen inden for regionen.

Kort & beliggenhed

Beliggenheden på The Golden Mile, Marbella, placerer dette rækkehus i centrum af luksuslivet ved Costa del Sol. Direkte ved stranden tilbyder det uovertruffen adgang til regionens kystskønhed og faciliteter.

Beachfront dining area with ocean view, outdoor seating, and a lighthouse in the distance.

Beliggenhed i regionen

Dette rækkehus ligger på den prestigefyldte Golden Mile, en eksklusiv enklave mellem Marbella og Puerto Banús. Denne beliggenhed placerer det i centrum af Costa del Sol, en region kendt for sin luksuriøse livsstil, førsteklasses golfbaner og smukke strande. Nærheden til de livlige byer Marbella og Puerto Banús, samt god tilgængelighed til Málaga Lufthavn, gør det til et ideelt udgangspunkt for at udforske Andalusiens mangfoldighed.

Tilgængelighed & faciliteter

Den strategiske beliggenhed på The Golden Mile tilbyder fremragende forbindelser. Stranden Playa de Puerto Banús ligger kun 517 m væk, Playa Canina Ventura del Mar 1,7 km. Regionen er et paradis for golfspillere, med førsteklasses baner som Real Club de Golf Las Brisas (2,4 km) og Golf Los Naranjos (2,5 km) i umiddelbar nærhed. Vandsportsaktiviteter er mulige takket være nærheden til marinaer som Puerto Deportivo José Banus (0,2 km). For sportsentusiaster er der også sportscentre som Polideportivo San Pedro (2,4 km).

Malaga-Costa del Sol (AGP) 46 km
Gibraltar (GIB) 52 km

Kilde: OpenStreetMap, Google Maps

Cozy beachfront cottage with thatched roof, ocean view, and lush greenery.

Natur & klima

Beachfront villa with sea view, private pool, and lush garden.

Costa del Sol tilbyder et middelhavsklima med en gennemsnitstemperatur på mellem 12°C og 27°C og over 3.856 solskinstimer om året. Badesæsonen strækker sig over 5 måneder med en vandtemperatur på over 20°C. Projektet ligger i en højde af 14 meter over havets overflade, hvilket sikrer milde temperaturer og behagelige havbriser. Beliggenheden ved kysten betyder, at beboerne kan drage fordel af klimaets positive effekter året rundt, med milde vintre og varme, men ofte dæmpede somre takket være havbrisen.

3856 Solskinstimer/år
5 Badesæson (måneder)
19.2°C Gns. årstemperatur
14m Højde

Kilde: Open-Meteo (2020–2025 gennemsnit)

Strande & fritid

Projektet drager fordel af sin umiddelbare nærhed til stranden. Playa de Puerto Banús ligger kun 517 m væk, Playa Canina Ventura del Mar 1,7 km. Regionen er et golfparadis med førsteklasses baner som Real Club de Golf Las Brisas (2,4 km) og Golf Los Naranjos (2,5 km) i nærheden. Vandaktiviteter er mulige takket være nærheden til marinaer som Puerto Deportivo José Banus (0,2 km). For aktive personer er der også sportscentre som Polideportivo San Pedro (2,4 km).

Strande

  • Playa Canina Ventura del Mar 1,7 km
  • Playa de San Pedro 2,9 km
  • Playa de Nagüeles 3,5 km
  • Playa de Casablanca 4,3 km

Golf

  • Real Club de Golf Las Brisas 2,4 km
  • The Range golf lessons 2,5 km
  • Magna Marbella Golf 3 km
  • Driving Range / German Golf Academy 5,4 km

Kilde: OpenStreetMap

Aerial view of a coastal city with a marina, mountains, and clear blue water.

Beliggenhed i regionen

Dette rækkehus ligger på den prestigefyldte Golden Mile, en eksklusiv enklave mellem Marbella og Puerto Banús. Denne beliggenhed placerer det i centrum af Costa del Sol, en region kendt for sin luksuriøse livsstil, førsteklasses golfbaner og smukke strande. Nærheden til de livlige byer Marbella og Puerto Banús, samt god tilgængelighed til Málaga Lufthavn, gør det til et ideelt udgangspunkt for at udforske Andalusiens mangfoldighed.

Omgivelser: The Golden Mile

Golden Mile or The Golden Mile may refer to:

Nøglefakta

Klima

Måned Gns. temperatur Nedbør
Januar 12.1°C 94 mm
Februar 12.3°C 97 mm
Marts 14.4°C 85 mm
April 16.2°C 56 mm
Maj 18.2°C 43 mm
Juni 22.5°C 11 mm
Juli 26.4°C 1 mm
August 26.9°C 2 mm
September 23.2°C 19 mm
Oktober 19.2°C 80 mm
November 15.3°C 116 mm
December 12.7°C 104 mm

Nærhed til faciliteter

69 restaurant
3 pharmacy
4 bank
10 cafe
1 dentist

Højde & Terræn

14m Højde

I nærheden

Golfbaner

Strande

Sportscentre

Udsigtspunkter

Lystbådehavne

Ev Charging

Internationale skoler

Transport

46 km Malaga-Costa del Sol (AGP)
52 km Gibraltar (GIB)
437 km Alicante-Elche (ALC)
3,3 km Terminal San Pedro de Alcántara

Projektdetaljer

Projekt 3 Bed Townhouse in The Golden Mile
By The Golden Mile
Region Costa del Sol
Prijs €3.500.000
Boligareal 123 m²
Pris pr. m² €28.455 / m²
Terrasse 76 m²
Soveværelser 3
Badeværelser 3
Parkering Ja
Pool Ja
Have Ja
Byggestatus for_sale
Afsluttet 2023
Grundskyld/år €720
Affald/år €278
Publiceret 2026-04-20

Ref: VL497691

Kilde: Wikipedia, Wikidata, INE, Junta de Andalucía

Overblik

  • Eksklusivt rækkehus i første strandlinje på The Golden Mile, Marbella.
  • Nyligt totalrenoveret med materialer af høj kvalitet og elegant design.
  • 3 soveværelser, 3 badeværelser, 123 m² boligareal, private terrasser med havudsigt.
  • Fælles swimmingpool, direkte adgang til stranden og promenaden.
  • Central beliggenhed nær Marbella og Puerto Banús med alle faciliteter inden for gåafstand.

Regional sammenligning

Sammenlignet med andre projekter på Costa del Sol, såsom Acqua Gardens i Estepona (fra €418.800) eller Aby Upper i Estepona (fra €320.000), positionerer dette rækkehus på The Golden Mile sig i en markant højere priskategori, hvilket afspejler dets eksklusive beliggenhed og luksuriøse faciliteter. Alba Benalmádena (fra €699.000) ligger prismæssigt imellem. Den tilbudte ejendom udmærker sig ved sin absolutte strandbeliggenhed og nylige renovering af høj kvalitet, hvilket adskiller den fra nyere, men mindre centrale, eller ældre, urenoverede enheder. The Golden Mile betragtes som et af de mest eftertragtede og dyreste steder langs hele kysten, hvilket gør investeringen i denne region speciel, men medfører også højere startpriser.

Ofte stillede spørgsmål

Ligger denne ejendom virkelig direkte ved stranden?
Ja, projektet er klassificeret som 'Front Line Beach Complex' og tilbyder direkte privat adgang til stranden og promenaden.
Hvor langt er der til det nærmeste supermarked og apotek?
Det nærmeste supermarked ligger 276 meter derfra, og det nærmeste apotek 514 meter derfra.
Hvilken type aircondition er installeret?
Der er installeret aircondition til både køling og opvarmning (Hot/Cold A/C).
Hvad er efterspørgslen på The Golden Mile?
The Golden Mile er en meget eftertragtet beliggenhed, kendt for sin eksklusivitet og høje ejendomsværdier.
Er der en privat swimmingpool?
Nej, der er en fælles swimmingpool, men ingen privat pool.
Hvilke ekstra omkostninger kan forventes?
Ekstra omkostninger som fællesudgifter, ejendomsskatter og forsikringer er ikke specificeret.
Hvor lang tid tager købsprocessen i Spanien?
Den typiske købsproces i Spanien kan tage mellem 1 og 3 måneder.
Hvordan er forbindelsen til Puerto Banús?
Promenaden giver en behagelig gåtur til Puerto Banús.
Maiko
Maiko
Boligekspert

Maiko er en ejendomsekspert med speciale i det spanske boligmarked. Med dybdegående kendskab til Costa del Sol, Costa Blanca og andre populære kystregioner hjælper han købere med at finde den rette ejendom. Han analyserer udbuddet baseret på beliggenhed, markedsværdi, byggekvalitet og livskvalitet, og giver ærlig, datadrevet rådgivning gennem hele købsprocessen.

Svar inden for 24 timer

Interesseret?

Efterlad dine oplysninger og modtag information om ledighed, priser og plantegninger.

Tekniske fakta
Ejendommen har sydvendt orientering.
Boligarealet er 123 m².
Der er en fælles swimmingpool.

Samtalehistorik

Stil et spørgsmål for at starte