2 Bed Middle Floor Apartment in Calpe in Calpe — Apartment
Apartment

Apartment for Sale in Calpe

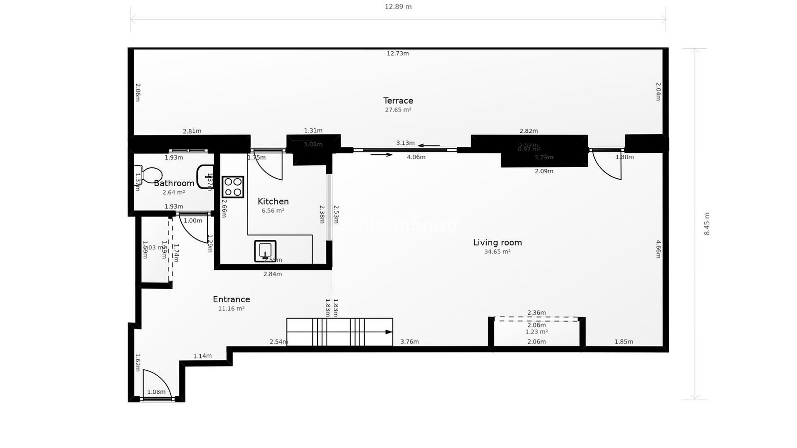
This modern apartment in Calpe offers a living space of 117 m² and is located on the 7th floor. Completed in 2023, the property features 2 bedrooms and 2 bathrooms. Its functional layout and proximity to amenities make it an attractive option for those seeking a home on the Costa Blanca. The apartment is part of a complex with communal facilities.

From €597,060
2
Bedrooms
2
Bathrooms
117 m²
Living Area
From €597,060
From price
1.1 km
Beach Distance
Key Ready
Build Status

Project Analysis

Key characteristics of location, homes, project phase and points of attention.

Location

The apartment is situated in an urban environment in Calpe, with various amenities within walking distance. Cala la Mançanera beach is 1.2 km away (as the crow flies). The immediate vicinity offers an urban living atmosphere with a good concentration of shops and services, contributing to daily living comfort.

Layout

With 117 m² of living space, 2 bedrooms, and 2 bathrooms, this apartment is suitable for couples or small families. The presence of a private terrace and communal facilities, such as a swimming pool, adds functionality for both residential use and holiday rentals.

Project Status

The apartment was completed in 2023, indicating recent construction. This means the property adheres to current building regulations and finishing standards. The 'ready' status signifies that the apartment is immediately habitable without any further construction delays.

Points of Attention

This apartment does not offer direct sea views from all rooms and is not located in a completely secluded or rural setting. Parking is based on availability within the complex. There is no mention of a private garden or garage.

Lifestyle & Surroundings

This apartment is worth considering for buyers seeking a property near the coastline and amenities in an established Spanish municipality. The short distance to the beach (Cala la Mançanera, 1.2 km) and the urban surroundings make it suitable for those who value convenience and accessibility to shops, restaurants, and services. It is an option for permanent residency, given its spatial layout and urban infrastructure, but also for periodic stays, due to its proximity to recreational facilities like golf courses and the potential for rental income. The 2 bedrooms are suitable for couples, small families, or as guest accommodation.

Build Quality & Finishing

The apartment, built in 2023, features modern finishes and technologies that reflect current building standards. The description mentions an open-plan kitchen and dining area, indicating a contemporary layout focused on efficient space utilization. The presence of a lift in the building enhances accessibility. The apartment includes a private terrace, adding outdoor living space. Further details regarding specific materials and technical installations are not specified in the provided data.

Price & Context

Price & Availability

The apartment is offered from €597,060. This pricing is indicative of the market in Calpe, particularly for apartments of this size and in this state of completion (new build). The specific location and available facilities, such as a communal swimming pool and terrace, contribute to the price determination. No information is available regarding other price points or variations of this project.

€597,060
From price
2
Bedrooms
117 m²
Living Area
2
Bathrooms

Context & Surroundings

Calpe is a coastal municipality on the Costa Blanca, known for the Penyal d'Ifac Natural Park. This apartment is located in an urban zone, meaning daily life is characterized by proximity to amenities. Most daily necessities, such as a supermarket (63 m) and pharmacy (163 m), are within walking distance. This urban character ensures a lively environment, even outside peak seasons. The 11 public transport stops in the area suggest good accessibility via public transport. The presence of sports facilities within walking distance, like the Pavelló Esportiu Ifac (0.0 km), contributes to an active lifestyle. The proximity of 138 restaurants within 2 km offers a wide range of culinary options.

Request Information

Location: Calpe

Living & Surroundings

Calpe offers a blend of urban amenities and natural beauty, with the Penyal d'Ifac as a prominent landmark. The apartment's location provides daily access to a supermarket at 63 meters and a pharmacy at 163 meters. This urban fabric is complemented by 138 restaurants and 14 cafes within a 2 km radius, creating a vibrant social environment. Cala la Mançanera beach is 1.2 km away, allowing for regular visits to the coast. Public transport, with 11 stops, facilitates travel without a car.

Map & Location

This apartment is located in Calpe, a coastal town in the province of Alicante. The map displays its position relative to the coastline, local amenities, and the Penyal d'Ifac. It provides a visual overview of the urban environment and proximity to recreational areas.

Aerial view of Calpe, Spain, showcasing marina, beaches, buildings and mountains.

Location in the Region

Calpe is situated in the Marina Alta region of the province of Alicante. It lies on the northern Costa Blanca, an area known for its coastline and amenities. The municipality is nestled between other coastal towns and offers an urban center with access to natural attractions like the Penyal d'Ifac. Its location is strategic relative to larger cities such as Alicante and Valencia, benefiting from good road and public transport connections.

Accessibility & Amenities

The apartment is conveniently located in relation to local amenities. The beach is 1.2 km away (as the crow flies), and the slope to the beach is nearly flat at 0.8%. For golfers, there are multiple options within approximately 7 to 14 km. Alicante (ALC) and Valencia (VLC) airports are approximately 67 km and 104 km away (as the crow flies), respectively, implying reasonable travel times. Train stations are accessible at 1.4 km (Calp). There are 2 public transport lines and 11 stops, contributing to accessibility via public transport.

Beach Distance 1.1 km
Alicante-Elche (ALC) 67 km
Valencia (VLC) 104 km
Calp 1.4 km
Olla Altea 7.6 km

Source: OpenStreetMap, Google Maps

Aerial view of Calpe coastline property landscape, Spain.

Nature & Climate

Aerial view of Calpe, Spain, showcasing the coastline and surrounding properties.

Calpe enjoys a Mediterranean climate with average temperatures ranging between 12°C and 27°C, and 3,840 annual sunshine hours. This allows for a long swimming season of approximately 5 months, with water temperatures often exceeding 20°C. The elevation of 14 meters above sea level provides a pleasant coastal location. The terrain leading to the beach is minimally sloped (0.8%), enhancing accessibility. The area is characterized by its proximity to natural parks like Penyal d'Ifac.

3840 Sunshine Hours/Year
5 Swim Season Months
18.6°C Avg. Annual Temperature
14m Elevation

Source: Open-Meteo (2020–2025 average)

Beaches & Recreation

Calpe boasts three Blue Flag beaches: Cantal Roig, La Fossa, and L’Arenal-Bol. The nearest beach, Cala la Mançanera, is located 1.2 km away. In addition to beach recreation, the area offers various sports facilities, including the Pavelló Esportiu Ifac at 0.0 km distance. For water sports, several marinas are nearby, such as Puerto Blanco at 1.8 km. Golf enthusiasts can enjoy courses located between 6.4 km and 14 km away.

Beaches

  • Cala la Mançanera 1.1 km
  • Cala del Morelló 1.3 km
  • Platja del Cantal Roig Blue Flag 1.8 km
  • Cala les Urques 2 km
  • Cala el Racó 2.3 km
  • Cala Gasparet 2.6 km

Golf

  • Club de Golf Ifach 6.5 km
  • Altea Club de Golf 7.3 km
  • Club de Golf Jávea 14.1 km

Source: Blue Flag 2026, OpenStreetMap

Panoramic view of Calpe with the Peñón de Ifach rock.

Location in the Region

Calpe is situated in the Marina Alta region of the province of Alicante. It lies on the northern Costa Blanca, an area known for its coastline and amenities. The municipality is nestled between other coastal towns and offers an urban center with access to natural attractions like the Penyal d'Ifac. Its location is strategic relative to larger cities such as Alicante and Valencia, benefiting from good road and public transport connections.

Area Guide: Calpe

Calpe is a coastal municipality located in the comarca of Marina Alta, in the province of Alicante, Valencian Community, Spain, by the Mediterranean Sea. It has an area of 23.5 km2 (9.1 sq mi) and a population density of 990 inhabitants per square kilometre (2,600/sq mi). The city lies at the foot of the Penyal d'Ifac Natural Park. In 2022 the population was 24,096 inhabitants.

Key Facts

23.5 km² Area

Climate

Month Avg. Temperature Rainfall
January 11.6°C 68 mm
February 11.7°C 41 mm
March 14.1°C 45 mm
April 16.1°C 44 mm
May 18.9°C 43 mm
June 23.0°C 21 mm
July 26.2°C 7 mm
August 26.8°C 10 mm
September 24.0°C 44 mm
October 19.8°C 87 mm
November 15.7°C 76 mm
December 12.3°C 61 mm

Nearby Amenities

136 restaurant
2 school
9 pharmacy
8 bank
14 cafe
1 dentist

Elevation & Terrain

14m Elevation
1.1 km Beach Distance
0.9% Gradient to beach

Flat

Nearby Highlights

Viewpoints

Marinas

Sports Centres

Golf Courses

Beaches

Transport & Access

67 km Alicante-Elche (ALC)
104 km Valencia (VLC)
456 km Malaga-Costa del Sol (AGP)
1.4 km Calp
7.6 km Olla Altea
8 km Benissa
0.3 km Estació d'Autobusos de Calp

Project Details

Project Name 2 Bed Middle Floor Apartment in Calpe
City Calpe
Region Costa Blanca
From price €597,060
Living Area 117 m²
Avg. price per m² €5,103 / m²
Bedrooms 2
Bathrooms 2
Parking No
Pool Yes
Garden No
Build Status key_ready
Beach Distance 1.1 km
Completion 1970
Published 2026-04-17

Ref: VL015954

Source: Wikipedia, Wikidata, INE, Junta de Andalucía

Summary

  • Modern 117 m² apartment in Calpe, completed in 2023.
  • 2 bedrooms, 2 bathrooms, with a private terrace and communal swimming pool.
  • Located in an urban area, walking distance to the beach and amenities.
  • Close proximity to sports facilities, restaurants, and shopping options.
  • Good accessibility via nearby public transport stops and reasonable distance to airports.

Regional Comparison

Compared to SEAWAY TOWER in Calpe, offered from €628,000, this apartment is priced slightly lower, although the exact specifications of SEAWAY TOWER are unknown. ICONIC in Gran Alacant offers a lower entry point from €355,000, but Gran Alacant is a different region with a distinct profile from Calpe. LAS COLINAS in Pedreguer, starting at €529,000, is located inland and offers a different living environment, away from the immediate coastline where this apartment is situated. The price of this apartment in Calpe aligns with the local market for new-build apartments of this size and with these amenities in a coastal town. Calpe's urban character, combined with its proximity to beaches and the Penyal d'Ifac, distinguishes it from more rural or purely residential projects elsewhere in the region. The focus on direct access to daily necessities is a strong point within the broader Costa Blanca market.

Frequently Asked Questions

Is noise from the urban environment an issue?
The location is in an urban area with many amenities within walking distance. This may result in noise, depending on the specific apartment's position within the building and the intensity of the surrounding activity.
How is accessibility by car?
Car accessibility is reasonable, with access to local roads and proximity to golf courses and marinas. An EV charging point is located 7.9 km away. Alicante and Valencia international airports are approximately 67 km and 104 km away (as the crow flies), respectively.
What materials were used for finishing?
Specific details about materials used for finishing have not been provided. The apartment was built in 2023 and features modern amenities.
Is this apartment suitable for rental?
The location in an urban area close to the beach and amenities, combined with the availability of 2 bedrooms, makes it potentially suitable for holiday rentals. The legal and commercial aspects of renting are not covered in this analysis.
What communal facilities are available?
The complex includes a communal swimming pool and a lift. The apartment also has a private terrace.
What are the expected monthly costs (HOA, taxes)?
Information regarding monthly costs such as HOA fees, property tax (IBI), or other taxes is not available in the provided data.
What is the purchase procedure?
The purchase or reservation procedure is not specified. Typically, it involves signing a reservation agreement, paying a deposit, drawing up a purchase contract, and the final transfer at the notary.
What is the public transport infrastructure like?
There are 11 public transport stops and 2 lines in the vicinity. Calpe's train station is located 1.4 km away, offering some connectivity to the regional rail network.
Maiko
Maiko
Real Estate Expert

Maiko is a real estate expert specializing in the Spanish property market. With in-depth knowledge of the Costa del Sol, Costa Blanca, and other popular coastal regions, he helps buyers find the right property. He analyzes offerings based on location, market value, build quality, and livability, providing honest, data-driven advice throughout the entire purchase process.

Response within 24 hours

Interested?

Leave your details and we will contact you shortly with more information about this project.

Technical Facts
The apartment was constructed in 2023.
The living area measures 117 m².
The complex features a lift and a communal swimming pool.
Supermarket located 63 meters away, pharmacy 163 meters away.
The nearest beach is 1.2 km away (as the crow flies).

Conversation history

Ask a question to start