None في Ondara — قطعة أرض
قطعة أرض

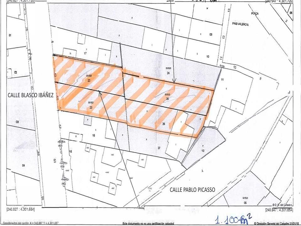
أرض للبيع في أوندارا، أليكانتي

تقع هذه الأرض في أوندارا، مقاطعة أليكانتي، إسبانيا. بمساحة 1100 متر مربع وسعر يبدأ من 212,100 يورو، تعد هذه الأرض مثالية لتطوير مشروع سكني أو تجاري. تقع الأرض في منطقة حضرية راسخة مع وسائل راحة على مسافة قريبة، ومع ذلك فهي على بعد مسافة قصيرة بالسيارة من الشواطئ ومراكز النقل الرئيسية. يوفر موقعها سهولة الوصول والهدوء، مما يجعلها خيارًا ممتازًا للمطورين الذين يتطلعون إلى إنشاء عقارات أو أعمال تجارية في مجتمع فالنسيا.

€212,100
€212,100
Prijs
4.3 km
مسافة الشاطئ

تحليل المشروع

أهم خصائص الموقع، والوحدات، ومراحل المشروع، ونقاط الاهتمام.

الموقع

تقع الأرض في وسط مدينة أوندارا، مما يسهل الوصول إلى المرافق المحلية بما في ذلك المتاجر والمطاعم والخدمات الطبية. يضمن موقعها الحضري سهولة الوصول مع الحفاظ على الهدوء المميز للمنطقة.

المخططات

تبلغ مساحة الأرض 1100 متر مربع، مما يوفر مساحة واسعة للتطوير السكني، وهي مثالية لبناء منزل أو شقق أو ربما للاستخدام التجاري. يسمح حجمها بتصميمات واسعة وتخطيطات وظيفية.

حالة المشروع

توفر الأرض لوحة فارغة لمشروع تطوير جديد. ستعتمد خطط التطوير المحددة على رؤية المشتري، سواء كانت مبنى سكنيًا أو مساحة تجارية أو تطويرًا متعدد الاستخدامات، وفقًا للوائح التقسيم المحلية.

نقاط هامة

لا تقدم الأرض حاليًا مبانٍ جاهزة. سيتطلب أي تطوير الالتزام بلوائح التقسيم المحلية ومتطلبات تصاريح البناء. قد تتطلب الشواطئ القريبة والمطارات على مسافة بعيدة مراعاة وسائل النقل.

تفاصيل المشروع

المدينة Ondara
المنطقة Costa Blanca
Prijs €212,100
موقف سيارات لا
مسبح لا
حديقة لا
حالة البناء for_sale
مسافة الشاطئ 4.3 km
تاريخ الإنجاز 1970
تاريخ النشر 2026-04-24

Ref: VL597733

المصدر: Wikipedia, Wikidata, INE, Junta de Andalucía

نمط الحياة

هذه الأرض مناسبة للمطورين والمستثمرين الذين يتطلعون إلى إنشاء مشروع جديد في مجتمع فالنسيا. إنها مناسبة بشكل خاص لأولئك الذين يسعون إلى تطوير أعمال تجارية في بيئة حضرية توفر وسائل الراحة والأنشطة المجتمعية. يقع المشروع في أوندارا، وهو ليس بعيدًا عن الشواطئ (4.3 كم) والعديد من ملاعب الغولف (4.6 كم)، مما يوفر توازنًا لأولئك الذين يرغبون في الجمع بين التطوير التجاري وفرص الترفيه. تشير سهولة الوصول إلى المتاجر والمطاعم إلى نمط حياة مريح. حجم الأرض وموقعها الحضري يجعلانها مناسبة جدًا لبناء عقارات سكنية، مثل منزل مع فناء وحديقة، أو مساحات تجارية محتملة مثل فندق صغير أو متجر بوتيكي.

الجودة والتشطيبات

يركز وصف الأرض في المقام الأول على موقعها وإمكانات التطوير. في حين لا توجد تفاصيل محددة حول جودة البناء أو التشطيبات المتوقعة، فإن حجم الأرض (1100 متر مربع) وبيئتها الحضرية يشيران إلى أنه يمكن بناء هياكل ذات وسائل راحة حديثة وتشطيبات عالية الجودة. يمكن تخصيص أي تطوير مستقبلي على هذه الأرض لتلبية متطلبات المشتري المحددة واللوائح المحلية للبناء، مما يضمن أن الهيكل النهائي يلبي معايير الجودة العالية.

البيئة ونمط الحياة

السعر والتوفر

تبدأ أسعار الأراضي من 212,100 يورو لمساحة 1100 متر مربع، مما يجعلها استثمارًا جذابًا في المنطقة. يعكس سعرها موقعها الحضري وإمكانات التطوير. قد يكون توفر الأرض محدودًا بقطع معينة، ويُنصح المشترون المهتمون بالاتصال قريبًا للحصول على تفاصيل حول أي خيارات متاحة. يجعلها تسعيرها خيارًا قابلاً للتطبيق للأفراد والشركات التي تبحث عن فرص تطوير في مقاطعة أليكانتي.

€212,100
Prijs

البيئة المحيطة

أوندارا، الواقعة في مقاطعة أليكانتي، هي بلدة تجمع بين السحر التقليدي والمرافق الحديثة. تستفيد المنطقة من مناخ ممتع، بمتوسط درجة حرارة سنوية يبلغ حوالي 18.6 درجة مئوية، مع صيف دافئ وشتاء معتدل. يبلغ عدد سكان البلدة 7,308 نسمة، مما يوفر شعوراً بالمجتمع دون أن تكون مزدحمة للغاية. تقع الأرض نفسها في بيئة حضرية، على مسافة قريبة من مجموعة متنوعة من وسائل الراحة، بما في ذلك 19 مطعمًا وصيدلية واحدة و 4 بنوك. هذا يجعل التسوق اليومي والتفاعلات الاجتماعية مريحة. بالنسبة لأولئك الذين يبحثون عن أنشطة خارجية، تقع ملاعب الغولف والشواطئ الخلابة على بعد بضعة كيلومترات فقط. تتمتع المنطقة أيضًا باتصال جيد بالنقل، مع خطوط النقل العام ومحطات شحن السيارات الكهربائية القريبة، مما يسهل التنقل في أوندارا والمناطق المحيطة بها.

طلب معلومات

الموقع والبيئة: Ondara

البيئة والوصول

يتميز إيقاع الحياة في أوندارا بمزيج من وسائل الراحة الحضرية والسحر الإقليمي. توفر البلدة سهولة الوصول سيرًا على الأقدام إلى مجموعة متنوعة من وسائل الراحة، بما في ذلك 19 مطعمًا وصيدلية واحدة و 4 بنوك، مما يجعل الحياة اليومية فعالة وممتعة. يضمن القرب من المستشفى (1.9 كم) أيضًا سهولة الوصول إلى الرعاية الطبية. للترفيه، تقع ملاعب الغولف المتعددة والشواطئ الخلابة (أقربها Platja dels Molins على بعد 4.3 كم) على بعد مسافة قصيرة بالسيارة. تتمتع المنطقة أيضًا بشبكة نقل عام جيدة مع 6 خطوط و 38 محطة، بالإضافة إلى محطات شحن السيارات الكهربائية القريبة، مما يوفر للمقيمين خيارات نقل متنوعة.

الخريطة والموقع

تقع الأرض في أوندارا، وهي بلدة في مقاطعة أليكانتي، ليست بعيدة عن ساحل فالنسيا. تعرض الخريطة الموقع الحضري للأرض، بالقرب من وسائل الراحة المحلية مثل المتاجر والمطاعم والمراكز الطبية. كما يسلط الضوء على المسافات إلى الشواطئ القريبة وملاعب الغولف والطرق الرئيسية، مما يوفر نظرة عامة شاملة على الموقع الجغرافي للمنطقة.

Main street in El Verger, Valencian Country, Spain. Works underway to semi-pedes

الموقع الإقليمي

تقع أوندارا في مقاطعة أليكانتي، وهي بلدة في منطقة كوستا بلانكا. جغرافيًا، تقع في المناطق الداخلية للمقاطعة، ولكنها قريبة من الساحل، مع سهولة الوصول إلى المدن الساحلية مثل ديلية. تستفيد المنطقة من قربها من محاور النقل الرئيسية، بما في ذلك مطاري أليكانتي-إلش وفالنسيا، مما يجعلها قاعدة مريحة للمشترين الدوليين. تقدم أوندارا فرصة لتجربة نمط الحياة الإسباني المحلي، مع البقاء على مقربة من مناطق الجذب السياحي الساحلية الأكثر جاذبية.

المرافق والوصول

تتجلى راحة موقع الأرض في موقعها الحضري، حيث يمكن الوصول سيرًا على الأقدام إلى المتاجر (329 مترًا) والصيدليات (482 مترًا) والمطاعم. يقع أقرب شاطئ، Platja dels Molins، على بعد 4.3 كم، بينما تقع ملاعب الغولف (Gregal) على بعد 4.6 كم. تقع المطارات الرئيسية، أليكانتي-إلش (ALC) وفالنسيا (VLC)، على بعد حوالي 78 كم و 86 كم على التوالي. وسائل النقل العام متطورة، مع 6 خطوط و 38 محطة، مما يسهل التنقل داخل أوندارا والمناطق المحيطة بها. السيارة مفيدة ولكنها ليست ضرورية تمامًا، حيث تقع العديد من المرافق على مسافة قريبة.

مسافة الشاطئ 4.3 km
Alicante-Elche (ALC) 78 km
Valencia (VLC) 86 km
Gata 8 km
Dénia 8.2 km

المصدر: OpenStreetMap, Google Maps

Carrer de sant Cristòfol del Verger.

الطبيعة والمناخ

Coca de xoriç, typical Catalan pastry snack. This example is from El Verger, Val

تتمتع أوندارا بمناخ البحر الأبيض المتوسط، بمتوسط درجة حرارة سنوية 18.6 درجة مئوية، وتتراوح درجات الحرارة بين 12 درجة مئوية و 27 درجة مئوية. تستفيد المنطقة من ساعات طويلة من أشعة الشمس كل عام، مما يجعلها مثالية للأنشطة الخارجية. تقع المنطقة على ارتفاع 41 مترًا فوق مستوى سطح البحر، ولها تضاريس مستوية، مع انحدار طفيف يبلغ 1.0٪ فقط نحو الشاطئ، مما يجعل الوصول إليها سهلاً. يوفر موسم السباحة الذي يستمر 5 أشهر (درجة حرارة الماء ≥20 درجة مئوية) للسكان وقتًا كافيًا للاستمتاع بالبحر. في حين أن أوندارا نفسها ليست منطقة ساحلية، إلا أن قربها من الشواطئ يوفر وصولاً سهلاً إلى نمط الحياة الشاطئي.

5 موسم السباحة (أشهر)
18.6°C متوسط الحرارة السنوي
41m الارتفاع

المصدر: Open-Meteo (2020–2025 متوسط)

الشواطئ والترفيه

تتمتع منطقة أوندارا بإمكانية الوصول إلى العديد من الشواطئ، وأقربها Platja dels Molins على بعد 4.3 كم. الشواطئ الأخرى مثل Platja de l'Amadrava (4.5 كم) يسهل الوصول إليها أيضًا. تضم المنطقة أيضًا مجموعة واسعة من المرافق الرياضية والترفيهية، بما في ذلك ملاعب الغولف Gregal (4.6 كم) و Llebeig (4.9 كم). يقع المركز الرياضي Plaça de Bous d’Ondara على بعد 0.5 كم فقط ويوفر مجموعة متنوعة من الأنشطة الرياضية. تتوفر أيضًا 19 مطعمًا و 7 مقاهي قريبة، مما يوفر خيارات تناول طعام وتواصل متنوعة للمقيمين.

شواطئ

  • Platja dels Molins 4.3 km
  • Platja de l'Amadrava 4.5 km
  • Els Molins 4.7 km

Golf

  • Gregal 4.6 km
  • Llebeig 4.9 km
  • Club de Golf Jávea 14.3 km

المصدر: OpenStreetMap

El Verger, 03770, Alicante, Spain

الموقع الإقليمي

تقع أوندارا في مقاطعة أليكانتي، وهي بلدة في منطقة كوستا بلانكا. جغرافيًا، تقع في المناطق الداخلية للمقاطعة، ولكنها قريبة من الساحل، مع سهولة الوصول إلى المدن الساحلية مثل ديلية. تستفيد المنطقة من قربها من محاور النقل الرئيسية، بما في ذلك مطاري أليكانتي-إلش وفالنسيا، مما يجعلها قاعدة مريحة للمشترين الدوليين. تقدم أوندارا فرصة لتجربة نمط الحياة الإسباني المحلي، مع البقاء على مقربة من مناطق الجذب السياحي الساحلية الأكثر جاذبية.

دليل المنطقة: Ondara

Ondara is a village and municipality in the province of Alicante, Valencian Community, Spain. It covers an area of 10.41 km2 (4.02 sq mi) and as of 2023 had a population of 7,308.

حقائق أساسية

المناخ

الشهر متوسط الحرارة معدل الأمطار
يناير 11.8°C 68 mm
فبراير 11.9°C 41 mm
مارس 14.2°C 45 mm
أبريل 16.3°C 44 mm
مايو 19.1°C 43 mm
يونيو 23.2°C 21 mm
يوليو 26.3°C 7 mm
أغسطس 27.0°C 10 mm
سبتمبر 24.1°C 44 mm
أكتوبر 19.9°C 87 mm
نوفمبر 15.8°C 76 mm
ديسمبر 12.4°C 61 mm

المرافق القريبة

19 restaurant
1 pharmacy
4 bank
7 cafe
1 hospital
1 dentist

الارتفاع والتضاريس

41m الارتفاع
4.3 km مسافة الشاطئ
1.0% الانحدار إلى الشاطئ

مسطح

معالم قريبة

نقاط مشاهدة

Ev Charging

ملاعب الغولف

مراكز رياضية

شواطئ

موانئ ترفيهية

النقل والوصول

78 km Alicante-Elche (ALC)
86 km Valencia (VLC)
464 km Malaga-Costa del Sol (AGP)
8 km Gata
8.2 km Dénia

ملخص

  • أرض بمساحة 1100 متر مربع في أوندارا، بسعر يبدأ من 212,100 يورو.
  • موقع حضري مع سهولة الوصول سيرًا على الأقدام إلى المتاجر والمطاعم والخدمات الطبية.
  • قريبة من الشواطئ (4.3 كم) وملاعب الغولف (4.6 كم).
  • مناسبة للتطوير السكني أو التجاري.
  • سهولة الوصول، قريبة من المطارات الرئيسية (حوالي 80 كم).

مقارنة إقليمية

مقارنةً بـ Oceanic Apartments في Rojales (بدءًا من 475,000 يورو)، و Nueva Daya Villa في Daya Nueva (بدءًا من 380,000 يورو)، و Residential Vivalife - Key Ready! في Lomas de Cabo Roig (بدءًا من 369,000 يورو)، تمثل هذه الأرض في Ondara شريحة سوق مختلفة. المشاريع الأخرى عبارة عن مساكن جاهزة، في حين أن أرض Ondara هي أرض للتطوير. يختلف نطاق الأسعار أيضًا، حيث تبدأ أرض Ondara بسعر 212,100 يورو، بينما تتراوح العقارات الجاهزة بين 369,000 يورو و 475,000 يورو. يوفر الموقع الحضري في Ondara سهولة الوصول والشعور بالانتماء للمجتمع، في حين قد تقع المشاريع في Rojales و Daya Nueva في مناطق أكثر شبهًا بالمنتجعات أو أكثر هدوءًا. قد يستفيد المشروع في Lomas de Cabo Roig من قربه من الشواطئ وملاعب الغولف. تكمن مزايا أرض Ondara في مرونة التطوير والاستثمار الأولي المنخفض نسبيًا، مما يجعلها خيارًا مثاليًا للمطورين الذين يتطلعون إلى تصميم مشروع يلبي احتياجاتهم الخاصة في مقاطعة أليكانتي.

الأسئلة الشائعة

ما هو نوع التطوير المناسب لهذه الأرض في أوندارا؟
الأرض مناسبة بشكل كبير للتطوير السكني، مثل بناء منزل أو شقق. يمكن استخدامها أيضًا للتطوير التجاري، مثل فندق صغير أو متجر، مع الالتزام بلوائح تقسيم المناطق المحلية.
ما هي المسافة إلى أقرب الشواطئ وملاعب الغولف من هذه الأرض؟
أقرب شاطئ، Platja dels Molins، يبعد 4.3 كم (خط مستقيم) عن الأرض. أقرب ملعب جولف، Gregal، يبعد 4.6 كم (خط مستقيم).
ما هي مساحة الأرض وتضاريسها؟
تبلغ مساحة الأرض 1100 متر مربع. تقع على ارتفاع 41 مترًا فوق مستوى سطح البحر، ولها تضاريس مستوية، مع انحدار طفيف بنسبة 1.0٪ فقط نحو الشاطئ.
كيف تقارن أرض أوندارا بالمشاريع المكتملة الأخرى على كوستا بلانكا؟
أرض أوندارا هي أرض للتطوير، في حين أن المشاريع الأخرى عبارة عن مساكن جاهزة. توفر أرض أوندارا مرونة التطوير بسعر بدء أقل، في حين أن المشاريع الأخرى لها أسعار أعلى ولكنها جاهزة للسكن الفوري.
ما هي المرافق المتوفرة بالقرب من الأرض في أوندارا؟
تقع الأرض في منطقة حضرية، على مسافة قريبة من 19 مطعمًا، وصيدلية واحدة، و 4 بنوك، و 7 مقاهي. المستشفى يبعد 1.9 كم.
ما هو سعر الأرض في أوندارا؟
تبدأ أسعار الأرض من 212,100 يورو.
ما هي عملية شراء الأرض في أوندارا؟
عادة ما تتضمن عملية الشراء مفاوضات أولية، وتقديم عرض، وتوقيع عقد البيع، وإتمام نقل الملكية النهائي. يُنصح بالتشاور مع مستشار قانوني محلي للحصول على تفاصيل محددة.
ما هي المسافة من الأرض في أوندارا إلى مطاري أليكانتي وفالنسيا؟
تبلغ المسافة إلى مطار أليكانتي-إلش (ALC) حوالي 78 كم (خط مستقيم)، وإلى مطار فالنسيا (VLC) حوالي 86 كم (خط مستقيم).
Omar Al-Nasser
Omar Al-Nasser
خبير عقاري

عمر الناصر يفهم بعمق احتياجات العملاء الناطقين بالعربية، ويرشدهم بثقة في سوق العقارات الإسباني. هو يضمن عملية شراء سلسة ومحترمة ثقافيًا.

AI-assisted multilingual representative. Your inquiry is handled by our real support team.

رد خلال 24 ساعة

مهتم؟

اترك بياناتك واحصل على معلومات عن التوفر، والأسعار، والمخططات.

المواصفات الفنية
مساحة الأرض: 1100 متر مربع
السعر المبدئي: 212,100 يورو
المسافة إلى أقرب شاطئ: 4.3 كم (خط مستقيم)
المسافة إلى أقرب ملعب جولف: 4.6 كم (خط مستقيم)

Conversation history

Ask a question to start