2 Bed Ground Floor Apartment in Fuengirola kohteessa Fuengirola — Asunto
Asunto

Asunto Fuengirolassa Myytävänä

Tämä asuinrakennus tarjoaa kahden ja kolmen makuuhuoneen asuntoja Fuengirolan ensiluokkaisella alueella, lyhyen kävelymatkan päässä rannasta. Rakennus on sijoitettu kahden kadun väliin, minkä ansiosta kaikki asunnot ovat täysin ulospäin suuntautuneita ja hyötyvät runsaasta luonnonvalosta koko päivän. Välitön läheisyys laajaan palveluvalikoimaan, mukaan lukien supermarketit, paikalliset kaupat, apteekit, koulut ja terveyskeskus, tekee sijainnista ihanteellisen arkeen. Erinomaiset julkisen liikenteen yhteydet, mukaan lukien bussi- ja taksipysäkit sekä läheinen rautatieasema, takaavat hyvän liikkumisen. Fuengirola tarjoaa vilkkaan valikoiman ravintoloita ja vapaa-ajanviettomahdollisuuksia, mikä tekee tästä rakennuksesta houkuttelevan asuinpaikan Costa del Solilla.

€366 700
2
Makuuhuoneita
2
Kylpyhuoneita
60 m²
Asuinpinta-ala
€366 700
Prijs
0,4 km
Etäisyys rantaan

Kohteen analyysi

Sijainnin, asuntojen, rakennusvaiheen ja huomioitavien asioiden keskeiset ominaisuudet.

Sijainti

Rakennus sijaitsee kätevästi Fuengirolan kaupunkialueella, vain 658 metrin päässä Playa de Fuengirolasta. Läheisyys useille rannoille, mukaan lukien Playa de San Francisco ja Playa de Santa Amalia, korostaa sen sijaintia rannikolla. Supermarketin ollessa vain 112 metrin päässä ja apteekin 226 metrin päässä, päivittäiset tarpeet tyydyttyvät nopeasti. Strateginen sijainti mahdollistaa helpon pääsyn useille läheisille golfkentille.

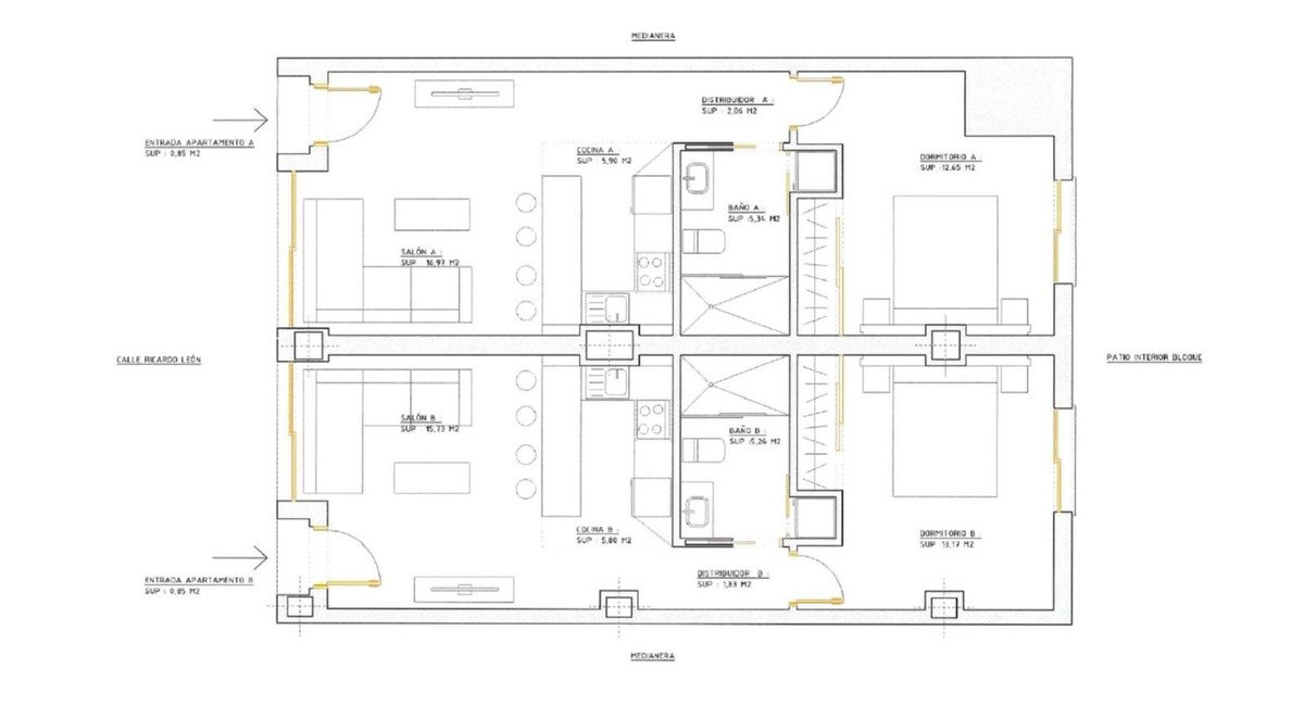
Pohjakuvat

Nämä asunnot sopivat henkilöille, jotka etsivät aktiivista elämäntapaa lähellä rantaa. Kaakkois- ja eteläsuuntaus takaavat runsaasti luonnonvaloa, kun taas ilmastointi takaa mukavuuden ympäri vuoden. Sisäänrakennetut vaatekaapit ja oma terassi vetoavat asukkaisiin, jotka arvostavat mukavuutta ja käytännöllisyyttä. Keskeinen sijainti hyvillä julkisen liikenteen ja palveluiden yhteyksillä on ihanteellinen niille, jotka haluavat yhdistää kaupunkielämän mukavuuden ja rannikkoelämän.

Rakennustilanne

Projekti on erinomaisessa kunnossa, mikä viittaa uuteen tai äskettäin kunnostettuun kiinteistöön. Asunnoissa on modernit mukavuudet, mukaan lukien täysin varusteltu keittiö ylä- ja alakcreateStatement ja integroidut laitteet. Ilmastointilaitteiden (kylmä ja lämmin) ja kylpyhuoneiden lattialämmityksen esiasennus korostaa modernia mukavuutta. Rakennuksen hissi helpottaa pääsyä.

Huomioitavaa

Tämä projekti on kaupunkikehitys vilkkaalla alueella, mikä voi mahdollisesti johtaa lisääntyneeseen meluun, vaikka ulkosuuntaus ja laadukkaat materiaalit lieventävätkin tätä. Läheisyys moniin palveluihin tarkoittaa myös suurempaa väestötiheyttä, mikä ei ehkä sovi ostajille, jotka etsivät täydellistä rauhaa. Ilmoitetut etäisyydet ovat linnuntietä; todellinen ajoaika voi olla pidempi.

Kohteen tiedot

Kohde 2 Bed Ground Floor Apartment in Fuengirola
Kaupunki Fuengirola
Alue Costa del Sol
Prijs €366 700
Asuinpinta-ala 60 m²
Hinta per m² €6 111 / m²
Makuuhuoneita 2
Kylpyhuoneita 2
Autopaikka Ei
Allas Ei
Piha Ei
Rakennustilanne for_sale
Etäisyys rantaan 0,4 km
Valmistuminen 2026
Julkaistu 2026-04-18

Ref: VL047560

Lähde: Wikipedia, Wikidata, INE, Junta de Andalucía

Elämäntyyli ja ympäristö

Tämä projekti sopii ostajille, jotka arvostavat välimerellistä elämää vakiintuneessa rannikkokaupungissa ja arvostavat läheisyyttä rantaan ja palveluihin. Henkilöt, jotka etsivät kakkosasuntoa tai paikkaa pitkäaikaiseen oleskeluun, arvostavat kaupunkirakenteiden ja rannikkosijainnin yhdistelmää. Läheisyys golfkentille ja urheilukeskuksiin houkuttelee aktiivisia ihmisiä. Perheet löytävät kouluja ja puistoja läheltä. Hyvä saavutettavuus Malagan lentokentälle (18 km) tekee kiinteistöstä houkuttelevan myös säännöllisille matkustajille tai matkailijoille. Ne, jotka etsivät asuntoa, jossa on paljon luonnonvaloa ja etelään tai kaakkoon suuntautuva orientaatio, löytävät etsimänsä täältä. Keskeinen sijainti on ihanteellinen niille, jotka haluavat yhdistää kaupunkielämän meren läheisyyteen tinkimättä mukavuudesta.

Rakennuslaatu ja viimeistely

Asuntoja leimaa korkea rakennuslaatu ja modernit varusteet. Sisustus sisältää sisäänrakennettuja vaatekaappeja, jotka tarjoavat järjestystä ja säilytystilaa. Keittiöt ovat täysin varusteltuja, ylä- ja alakcreateStatement sekä integroidut laitteet, kuten keraaminen liesi, liesituuletin, pesukone ja jääkaappi, yhdistäen toiminnallisuuden ja estetiikan. Kylpyhuoneissa on lattialämmitys, ja koko rakennuksessa on esiasennus ilmastointilaitteille (kylmä ja lämmin), jota voidaan ohjata keskitetysti miellyttävän sisäilman takaamiseksi ympäri vuoden. Rakennuksen hissi tarjoaa lisämukavuutta.

Ympäristö ja elämäntyyli

Hinta ja saatavuus

Asuntojen tarjonta tässä projektissa alkaa 366 700 eurosta. Tarjotut yksiköt sisältävät 2 makuuhuonetta ja 2 kylpyhuonetta 60 m² asuintilalla. Hinnat vaihtelevat rakennuksen tarkan sijainnin ja erityisen suuntauksen mukaan, ja yksiköt, joilla on suotuisammat näkymät tai jotka sijaitsevat korkeammalla kerroksessa, ovat yleensä kalliimpia. On suositeltavaa tiedustella suoraan ajankohtaisesta saatavuudesta ja erityisistä hinnoista halutulle asuntojen koolle ja konfiguraatiolle, sillä tarjonta voi muuttua dynaamisilla Costa del Solin kiinteistömarkkinoilla. "Hinnat alkaen" -hinnat heijastavat tarjottujen tyyppien aloitusolosuhteita.

€366 700
Prijs
2
Makuuhuoneita
60 m²
Asuinpinta-ala
2
Kylpyhuoneita

Ympäristö ja elämäntyyli

Fuengirola, vilkas rannikkokaupunki Costa del Solilla, tarjoaa kaupunkimaisen elinympäristön suoralla pääsyllä rannalle. Keskimääräinen vuotuinen lämpötila 18,7°C ja yli 3 800 auringonpaistetuntia vuodessa luovat ihanteelliset olosuhteet ulkoiluun ja välimerelliseen elämäntapaan. Kaupunki on hyvin integroitu alueeseen ja tarjoaa laajan valikoiman palveluita ja mukavuuksia, mukaan lukien yli 200 ravintolaa, lukuisia kauppoja, terveyskeskuksia ja oppilaitoksia. 14 julkisen liikenteen linjan ja 33 pysäkin ansiosta liikkuminen onnistuu myös ilman autoa. Läheisyys Playa de San Franciscon (400 m) ja Playa de los Bolichesin (1 km) rannoille sekä erinomainen yhteys Malagan lentokentälle (18 km) tekevät Fuengirolasta käytännöllisen ja houkuttelevan asuinpaikan. Itse projekti sijaitsee keskeisellä mutta rauhallisella alueella, joka tarjoaa tasapainon kaupunkimukavuuden ja meren läheisyyden välillä. Asunnot ovat itään, kaakkoon ja etelään päin, mikä takaa valoisat huoneet.

Pyydä tietoja

Sijainti ja ympäristö: Fuengirola

Ympäristö ja saavutettavuus

Projekti sijaitsee Fuengirolassa, eloisassa kaupungissa Costa del Solin keskiosassa. Välitön ympäristö on kaupunkimainen ja tarjoaa suuren palvelutiheyden. Supermarketit (112 m) ja apteekit (226 m) ovat helposti saavutettavissa kävellen, mikä helpottaa arkea. Lukuisat ravintolat (205 km säteellä 2 km) ja kahvilat (63 km säteellä 2 km) kutsuvat viihtymään. Perheille löytyy 15 ala-astetta ja 10 yläasteikoulua läheltä. Terveydenhuolto katetaan 3 terveyskeskuksella. Läheisyys urheilukeskuksiin, kuten Pabellón Juan Gómez Juanito (0,6 km) ja Complejo Deportivo Municipal Elola (0,6 km), sekä muutaman kilometrin matka tunnetuille golfkentille, kuten Campo Los Lagos (3,8 km), tarjoavat monipuolisia vapaa-ajanviettomahdollisuuksia. Kaupunki on hyvin yhteydessä alueelliseen liikenneverkkoon, jossa on 14 julkisen liikenteen linjaa ja 33 pysäkkiä sekä asemia kuten Fuengirola (0,6 km).

Kartta ja sijainti

Tämä projekti sijaitsee Fuengirolan sydämessä, vilkkaassa rannikkokaupungissa Costa del Solilla. Kartta näyttää läheisyyden rantoihin, kaupungin keskustaan ja tärkeisiin liikenneyhteyksiin. Merkintä korostaa palveluiden, ravintoloiden ja rannan kävelyetäisyyttä, mikä korostaa sijainnin vetovoimaa kaupunkimaiseen ja samalla rannan läheisyydessä olevaan elämään.

Beachfront room with ocean view, featuring a private balcony and modern amenities.

Sijainti alueella

Fuengirola sijaitsee strategisesti Costa del Solin keskiosassa, joka on yksi Espanjan suosituimmista rannikkoalueista Malagan maakunnassa. Kaupunki on hyvin integroitu ympäröivään infrastruktuuriin ja kuuluu 'Commonwealth of Municipalities of the Costa del Sol Occidental' -alueeseen. Tämä sijainti mahdollistaa helpon yhteyden muihin tärkeisiin kaupunkeihin, kuten Malagaan (noin 30 km) ja Marbellaan. Läheisyys Mijasin vuoristoon tarjoaa myös kontrastin rannikkoelämälle. Osana Costa del Solia Fuengirola hyötyy vakiintuneesta turistiympäristöstä hyvällä infrastruktuurilla, mutta myös kasvavasta paikallisesta väestöstä, joka asuu siellä ympäri vuoden. Kaupunki itsessään tunnetaan eloisasta tunnelmastaan ja erinomaisista rannoistaan.

Palvelut ja saavutettavuus

Saavutettavuus on tämän projektin merkittävä etu. Playa de San Franciscon ranta on vain 400 metrin päässä, ja muut rannat, kuten Playa de los Boliches ja Playa de Santa Amalia, ovat myös helposti saavutettavissa kävellen. Malagan Costa del Solin lentokenttä on vain 18 km (linnuntietä) päässä ja tarjoaa erinomaiset kansainväliset yhteydet. Useat golfkentät ovat helposti saavutettavissa, mukaan lukien Campo Los Lagos (3,8 km). Paikallinen liikkuminen on erinomaista 33 julkisen liikenteen pysäkin ja Fuengirolan rautatieaseman (0,6 km) ansiosta, mikä vähentää auton tarvetta. Kaupungin keskeinen sijainti lukuisine kauppoineen ja palveluineen 2 km säteellä parantaa käytännöllisyyttä entisestään.

Etäisyys rantaan 0,4 km
Malaga-Costa del Sol (AGP) 18 km
Gibraltar (GIB) 79 km
Fuengirola 0,6 km
Carvajal 3,5 km

Lähde: OpenStreetMap, Google Maps

Aerial view of a coastal city with a sandy beach and clear blue water.

Luonto ja ilmasto

Oceanfront apartment with balcony, city and beach views, modern amenities.

Fuengirola hyötyy Välimeren ilmastosta, jonka keskilämpötila on 18,7°C ja talvet leutoja. Alueella on noin 3 897 auringonpaistetuntia vuodessa, mikä mahdollistaa pitkän ulkoilukauden. Meri sopii uimiseen huhti-lokakuusta, veden lämpötilan ollessa yli 20°C. Matala 15 metrin korkeus merenpinnasta ja maltillinen 3,0 % kaltevuus rantaa kohti edistävät miellyttävää miklimaattia. Suhteellisen lyhyt etäisyys Malagan lentokentälle (18 km) takaa hyvän saavutettavuuden, kun taas rannikkosijainti tuo kevyen tuulen.

3897 Aurinkotunnit/vuosi
4 Uintikausi (kuukaudet)
18.7°C Keskim. vuosilämpötila
15m Korkeus

Lähde: Open-Meteo (2020–2025 keskiarvo)

Rannat ja virkistys

Fuengirolan rannikkosijainti tarjoaa suoran pääsyn useille kauniille rannoille. Playa de San Franciscon ranta on vain 400 metrin päässä, ja muut tunnetut rannat, kuten Playa de los Boliches ja Playa de Santa Amalia, ovat myös helposti saavutettavissa. Kaupunki on ylpeä neljästä Sininen lippu -rannastaan, mukaan lukien Boliches-Gaviotas ja Carvajal, jotka on palkittu veden laadustaan ja puhtaudestaan. Rantaelämän lisäksi alue tarjoaa monipuolisia vapaa-ajanviettomahdollisuuksia. Useat urheilukeskukset, kuten Pabellón Juan Gómez Juanito ja Complejo Deportivo Municipal Elola, ovat vain muutaman minuutin kävelymatkan päässä. Golfin ystäville useat arvostetut golfkentät sijaitsevat välittömässä läheisyydessä, mukaan lukien Campo Los Lagos (3,8 km) ja Cerrado del Aguila Golf (3,9 km). Puerto Deportivo de Fuengirolan venesataman (0,7 km) läheisyys täydentää vapaa-ajan tarjontaa.

Rannat

  • Playa de San Francisco 0,4 km
  • Playa de los Boliches 1 km
  • Playa de Santa Amalia 1,2 km
  • Playa del Castillo 1,9 km
  • Playa Torreblanca-Carvajal Blue Flag 2,1 km
  • Playa Mati 2,8 km

Golf

  • Campo Los Lagos 4 km
  • Cerrado del Aguila Golf 4,5 km
  • Campo Los Olivos 4,7 km
  • El Chaparral Golf Club 5,4 km

Urheilutilat

269 Saatavilla olevat tilat

Lähde: Blue Flag 2026, OpenStreetMap, CSD

Beachfront room with ocean view, featuring a balcony and lounge chairs.

Sijainti alueella

Fuengirola sijaitsee strategisesti Costa del Solin keskiosassa, joka on yksi Espanjan suosituimmista rannikkoalueista Malagan maakunnassa. Kaupunki on hyvin integroitu ympäröivään infrastruktuuriin ja kuuluu 'Commonwealth of Municipalities of the Costa del Sol Occidental' -alueeseen. Tämä sijainti mahdollistaa helpon yhteyden muihin tärkeisiin kaupunkeihin, kuten Malagaan (noin 30 km) ja Marbellaan. Läheisyys Mijasin vuoristoon tarjoaa myös kontrastin rannikkoelämälle. Osana Costa del Solia Fuengirola hyötyy vakiintuneesta turistiympäristöstä hyvällä infrastruktuurilla, mutta myös kasvavasta paikallisesta väestöstä, joka asuu siellä ympäri vuoden. Kaupunki itsessään tunnetaan eloisasta tunnelmastaan ja erinomaisista rannoistaan.

Alueopas: Fuengirola

Fuengirola is a city on the Costa del Sol in the province of Málaga in the autonomous community of Andalusia in southern Spain. It is located on the central coast of the province and integrated into the region of the Costa del Sol and the Commonwealth of Municipalities of the Costa del Sol Occidental.

Keskeiset tiedot

10.4 km² Alue

Ilmasto

Kuukausi Keskilämpötila Sademäärä
Tammikuu 11.9°C 56 mm
Helmikuu 12.2°C 57 mm
Maaliskuu 14.2°C 46 mm
Huhtikuu 16.1°C 31 mm
Toukokuu 18.3°C 28 mm
Kesäkuu 22.4°C 6 mm
Heinäkuu 25.8°C 1 mm
Elokuu 26.2°C 2 mm
Syyskuu 22.9°C 9 mm
Lokakuu 19.1°C 51 mm
Marraskuu 15.2°C 74 mm
Joulukuu 12.6°C 66 mm

Lähimmät palvelut

205 restaurant
36 pharmacy
27 bank
1 park
63 cafe
9 dentist

Korkeus & Maasto

15m Korkeus
0,4 km Etäisyys rantaan
3.0% Kaltevuus rantaan

Kohtalainen

Lähellä

Ev Charging

Urheilukeskukset

Rannat

Venesatamat

Golfkentät

Uima-altaat

Liikenne

18 km Malaga-Costa del Sol (AGP)
79 km Gibraltar (GIB)
407 km Alicante-Elche (ALC)
0,6 km Fuengirola
3,5 km Carvajal
6,2 km Torremuelle
0,7 km Terminal Autobus

Yhteenveto

  • Modernit 2 makuuhuoneen ja 2 kylpyhuoneen asunnot Fuengirolassa.
  • Kävelymatkan päässä rannasta ja erilaisista palveluista, kuten supermarketeista ja ravintoloista.
  • Erinomaiset yhteydet: 18 km Malagan lentokentälle, lähellä rautatieasema ja julkisen liikenteen pysäkit.
  • Modernit viimeistelyt varustelluilla keittiöillä, ilmastoinnilla ja lattialämmityksellä kylpyhuoneissa.
  • Sijaitsee vilkkaalla kaupunkialueella, Välimeren ilmastolla ja monilla auringonpaistetunneilla.

Alueellinen vertailu

Verrattuna vastaaviin tarjouksiin Fuengirolassa, kuten 'Sunset Views' (alkaen 379 950 €), 'Laguna Suites' (alkaen 407 925 €) ja 'Torreblanca Heights' (alkaen 425 000 €), tämä projekti sijoittuu 366 700 euron alkaen-hinnallaan yhtenä saavutettavimmista vaihtoehdoista, erityisesti 2 makuuhuoneen ja 60 m² asuintilan asunnoille. Vaikka 'Sunset Views' on lähellä hintaluokaltaan, 'Laguna Suites' ja 'Torreblanca Heights' ovat ylemmässä hintaluokassa, mikä voi viitata suurempiin tiloihin tai eksklusiivisempiin varusteisiin. Tämän projektin sijainti, lyhyen kävelymatkan päässä rannasta ja lähellä lukuisia kaupunkipalveluita, on verrattavissa 'Sunset Viewsiin', joka myös korostaa hyvää saavutettavuutta. Muut mainitut projektit saattavat sijaita vähemmän keskeisillä alueilla tai tarjota korkeampia standardeja näkymien tai eksklusiivisuuden suhteen, mikä heijastuu hinnassa. Tässä kuvattu kiinteistö tarjoaa vankan tasapainon sijainnin, varusteiden ja hinnan välillä ostajille, jotka arvostavat Fuengirolan kaupunkielämää ja meren läheisyyttä.

Usein kysytyt kysymykset

Onko tämä alue meluisa, koska se sijaitsee kaupunkialueella?
Asunnot ovat ulospäin suuntautuneita ja hyvälaatuista rakennusta, mikä edistää äänieristystä. Keskeinen sijainti kuitenkin aiheuttaa korkeamman melutason kuin maaseutualueilla.
Kuinka kaukana lähin supermarket ja apteekki ovat?
Lähin supermarket on 112 metrin päässä ja lähin apteekki 226 metrin päässä. Molemmat ovat helposti saavutettavissa kävellen.
Mitä ilmastointi- ja lämmitysjärjestelmiä on asennettu?
Ilmastointilaitteille (kylmä ja lämmin) ja kylpyhuoneiden lattialämmitykselle on esiasennus.
Onko tämä hyvä alue kansainvälisille ostajille?
Fuengirola on vakiintunut paikka Costa del Solilla, jolla on suuri kansainvälinen yhteisö ja hyvät infrastruktuurit ulkomaalaisille.
Mitä urheilutiloja on lähistöllä?
Läheisyydessä on useita urheilukeskuksia, mukaan lukien Pabellón Juan Gómez Juanito (0,6 km) ja Complejo Deportivo Municipal Elola (0,6 km).
Ovatko ilmoitetut hinnat lopullisia?
Ilmoitettu hinta on 'alkaen' -hinta ja voi vaihdella yksikön, rakennuksen sijainnin ja suuntauksen mukaan. Lisäkustannuksia, kuten veroja ja maksuja, ei sisällytetä.
Mikä on kiinteistön ostosprosessi Espanjassa?
Ostosprosessi sisältää tyypillisesti varauksen, alustavan sopimuksen, lakien tarkastuksen ja lopullisen notaarin vahvistaman kauppakirjan. On suositeltavaa konsultoida riippumatonta asianajajaa.
Tarvitsenko auton asuakseni Fuengirolassa?
Keskeisen sijainnin ja hyvien julkisen liikenteen yhteyksien (bussi, juna) ansiosta auto ei ole ehdottoman välttämätön, mutta se helpottaa lähialueiden tutkimista.
Maiko
Maiko
Kiinteistöasiantuntija

Maiko on kiinteistöasiantuntija, joka on erikoistunut Espanjan kiinteistömarkkinoihin. Syvällisellä tietämyksellä Costa del Solista, Costa Blancasta ja muista suosituista rannikkoalueista hän auttaa ostajia löytämään oikean kiinteistön. Hän analysoi tarjontaa sijainnin, markkina-arvon, rakennuslaadun ja asumiskelpoisuuden perusteella ja antaa rehellistä, dataan perustuvaa neuvontaa koko ostoprosessin ajan.

Vastaus 24 tunnissa

Kiinnostuitko?

Jätä yhteystietosi, niin lähetämme tietoja saatavuudesta, hinnoista ja pohjakuvista.

Tekniset tiedot
Makuuhuoneiden lukumäärä: 2
Kylpyhuoneiden lukumäärä: 2
Asuinpinta-ala: 60 m²
Suuntaus: Itä, Kaakko, Etelä
Hissi käytettävissä

Conversation history

Ask a question to start