3 Bed Middle Floor Apartment in Fuengirola em Fuengirola — Apartamento
Apartamento

Apartamento à venda em Fuengirola

Este apartamento está localizado em Fuengirola, uma cidade costeira vibrante na Costa del Sol, província de Málaga. É uma propriedade renovada de 3 quartos e 2 casas de banho com 140 m² de área útil, pronta a habitar e que oferece uma atrativa oportunidade residencial. A localização combina comodidades urbanas com a proximidade da praia e do mar, tornando-a uma opção versátil para compradores que procuram conforto e um estilo de vida mediterrânico. A infraestrutura da região e a sua boa acessibilidade são outros fatores-chave.

A partir de €970.000
3
Quartos
2
Casas de Banho
140 m²
Área Habitacional
A partir de €970.000
Preço Inicial
0,4 km
Distância até à Praia
Pronto a Habitar
Estado da Construção

Análise do Empreendimento

Características principais da localização, moradias, fase do projeto e pontos de atenção.

Localização

O apartamento situa-se numa zona urbana de Fuengirola, o que significa que inúmeras comodidades como lojas, restaurantes e transportes públicos são acessíveis a pé. A praia de Fuengirola também fica a poucos minutos de caminhada. O ambiente oferece uma boa mistura de atmosfera local e infraestruturas turísticas.

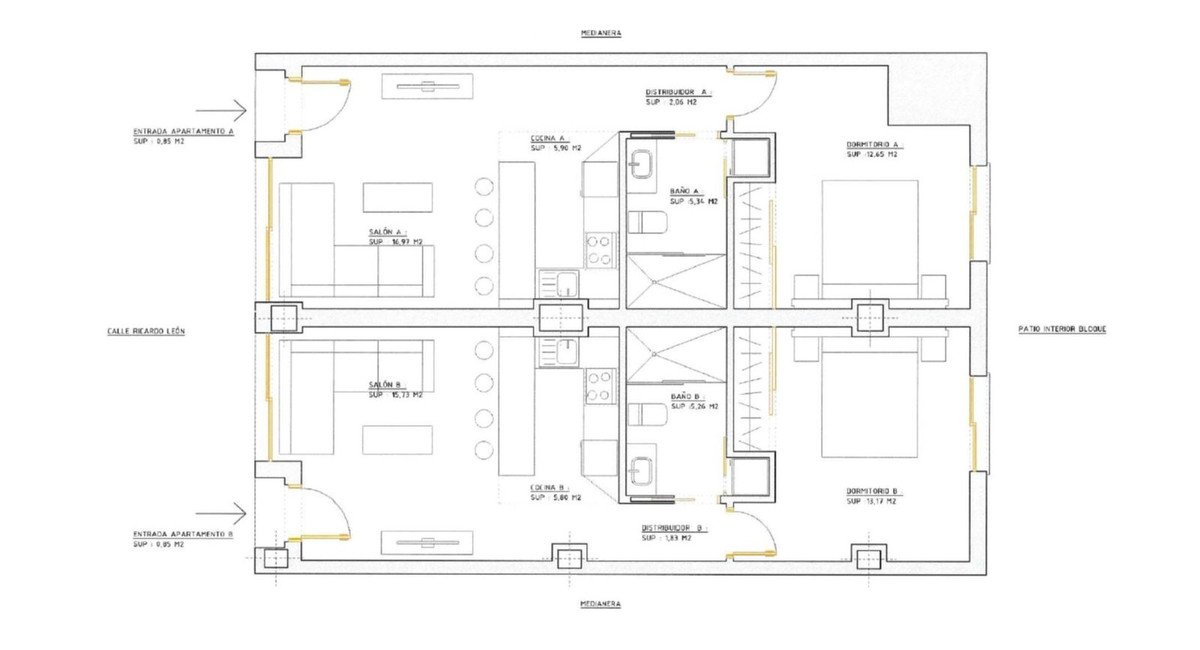
Planta

Para compradores que valorizam o conforto e a praticidade diária, este apartamento oferece uma distribuição funcional com 3 quartos e 2 casas de banho. Os acabamentos renovados e a cozinha totalmente equipada facilitam a mudança imediata. A orientação sudoeste promete luminosidade durante todo o dia e vistas agradáveis.

Estado do Empreendimento

Este apartamento faz parte de um edifício existente e foi recentemente renovado. O estado de construção é 'Pronto', o que significa que não há tempos de espera para a conclusão. Compradores potenciais podem mudar-se imediatamente após a compra e utilizar a propriedade.

Pontos de Atenção

O projeto não oferece lugares de estacionamento privativos; o estacionamento depende do espaço público circundante. Não se trata de uma nova construção no sentido clássico, mas sim de um apartamento existente renovado. A área útil e o número de quartos são fixos, não estão previstas ampliações.

Estilo de Vida e Arredores

Este apartamento é adequado para compradores que procuram uma localização costeira estabelecida com boa infraestrutura. É uma opção apropriada para famílias que necessitam de um apartamento espaçoso perto da praia. É também interessante para investidores que procuram uma propriedade com potencial de aluguer turístico numa região popular. Os acabamentos renovados e a proximidade a todas as instalações importantes tornam-no uma escolha atrativa para residência permanente ou casa de férias.

Qualidade de Construção e Acabamentos

O apartamento distingue-se pelos seus acabamentos renovados. Possui pavimentos em mármore e casas de banho renovadas, o que transmite uma impressão sólida e cuidada. A cozinha está totalmente equipada e pronta para uso diário. A orientação sudoeste garante abundante luz natural. A propriedade também oferece roupeiros embutidos para arrumação e um terraço coberto que amplia o espaço de convivência exterior.

Arredores e Estilo de Vida

Preço e Disponibilidade

O apartamento é oferecido pelo preço de 970.000 €. Dispõe de 3 quartos e 2 casas de banho numa área útil de 140 m². Sendo uma propriedade existente, renovada e pronta a habitar, não há fases de construção adicionais a considerar. A disponibilidade é atual e a propriedade pode ser ocupada a curto prazo. O preço reflete a localização, o estado e os equipamentos.

€970.000
Preço Inicial
3
Quartos
140 m²
Área Habitacional
2
Casas de Banho
€547
IMI/ano
€56
Resíduos/ano

Arredores e Estilo de Vida

Fuengirola é uma charmosa cidade costeira que goza de um agradável clima mediterrânico durante todo o ano. Com temperaturas médias que variam entre 12°C e 26°C e mais de 3.800 horas de sol por ano, a região é ideal para atividades ao ar livre. A área urbana tem 85.000 habitantes e oferece uma infraestrutura completa com inúmeras lojas, restaurantes, escolas e centros de saúde. O passeio marítimo convida a passeios, enquanto a proximidade de praias e locais de lazer como campos de golfe e centros desportivos oferece variadas oportunidades.

Pedir Informações

Localização e Arredores: Fuengirola

Arredores e Acessibilidade

Viver em Fuengirola significa ter acesso a uma vasta gama de comodidades e oportunidades de lazer. A proximidade da praia (a menos de 1 km) permite passeios diários à beira-mar. O ambiente urbano oferece mais de 200 restaurantes, 36 farmácias e inúmeras lojas num raio de 2 km. As boas ligações de transportes públicos e a proximidade de grandes cidades como Málaga facilitam a mobilidade.

Mapa e Localização

Este mapa mostra a localização do apartamento em Fuengirola. Destaca a proximidade das praias, do centro da cidade e das principais ligações de transporte, como a estação de comboios e a autoestrada. A posição estratégica dentro da estrutura urbana é realçada pela designação das comodidades e locais de lazer circundantes.

Beachfront room with ocean view, featuring a private balcony and modern amenities.

Localização na Região

Fuengirola está localizada na Costa del Sol central, entre Málaga e Marbella. Esta posição estratégica permite uma fácil exploração de toda a região. A cidade está bem integrada na infraestrutura turística e económica da província de Málaga. A proximidade de outros locais conhecidos como Benalmádena e Mijas, bem como as boas ligações de transporte, fazem de Fuengirola um ponto de partida atrativo.

Acessibilidade e Comércios

A acessibilidade é um ponto forte desta localização. A praia fica a poucos minutos a pé, assim como inúmeras lojas, restaurantes e uma farmácia. O Aeroporto de Málaga situa-se a 18 km, garantindo uma boa ligação para viajantes internacionais. Vários campos de golfe são acessíveis num raio de 4 km. A boa ligação à rede de transportes públicos, com 33 paragens e 14 linhas, e a proximidade das estações de comboio, facilitam os deslocamentos sem carro.

Distância até à Praia 0,4 km
Malaga-Costa del Sol (AGP) 18 km
Gibraltar (GIB) 79 km
Fuengirola 0,6 km
Carvajal 3,5 km

Fonte: OpenStreetMap, Google Maps

Aerial view of a coastal city with a sandy beach and clear blue water.

Natureza e Clima

Oceanfront apartment with balcony, city and beach views, modern amenities.

Fuengirola beneficia do clima mediterrânico da Costa del Sol, com uma temperatura média anual de 18,7°C. A região recebe cerca de 3.897 horas de sol por ano, permitindo uma longa época balnear de aproximadamente 4 meses (com temperaturas da água superiores a 20°C). A localização a 15 metros acima do nível do mar e uma inclinação moderada para a praia contribuem para um clima agradável. A localização costeira garante invernos amenos e verões agradáveis.

3897 Horas de sol/ano
4 Época balnear (meses)
18.7°C Temp. média anual
15m Altitude

Fonte: Open-Meteo (2020–2025 média)

Praias e Lazer

A costa de Fuengirola conta com quatro praias com Bandeira Azul, incluindo Playa de San Francisco, Playa de los Boliches e Playa de Santa Amalia, todas acessíveis em menos de 1,2 km. As atividades aquáticas são abundantes. Para os golfistas, vários campos de golfe de renome como Campo Los Lagos e Mijas Golf situam-se nas imediações. Numerosos centros desportivos e piscinas, como o Pabellón Juan Gómez Juanito e a Piscina María Peláez, oferecem mais oportunidades de lazer.

Praias

  • Playa de San Francisco 0,4 km
  • Playa de los Boliches 1 km
  • Playa de Santa Amalia 1,2 km
  • Playa del Castillo 1,9 km
  • Playa Torreblanca-Carvajal Blue Flag 2,1 km
  • Playa Mati 2,8 km

Golf

  • Campo Los Lagos 4 km
  • Cerrado del Aguila Golf 4,5 km
  • Campo Los Olivos 4,7 km
  • El Chaparral Golf Club 5,4 km

Instalações desportivas

269 Instalações disponíveis

Fonte: Blue Flag 2026, OpenStreetMap, CSD

Beachfront room with ocean view, featuring a balcony and lounge chairs.

Localização na Região

Fuengirola está localizada na Costa del Sol central, entre Málaga e Marbella. Esta posição estratégica permite uma fácil exploração de toda a região. A cidade está bem integrada na infraestrutura turística e económica da província de Málaga. A proximidade de outros locais conhecidos como Benalmádena e Mijas, bem como as boas ligações de transporte, fazem de Fuengirola um ponto de partida atrativo.

Guia da Zona: Fuengirola

Fuengirola is a city on the Costa del Sol in the province of Málaga in the autonomous community of Andalusia in southern Spain. It is located on the central coast of the province and integrated into the region of the Costa del Sol and the Commonwealth of Municipalities of the Costa del Sol Occidental.

Principais Factos

10.4 km² Área

Clima

Mês Temperatura Média Pluviosidade
Janeiro 11.9°C 56 mm
Fevereiro 12.2°C 57 mm
Março 14.2°C 46 mm
Abril 16.1°C 31 mm
Maio 18.3°C 28 mm
Junho 22.4°C 6 mm
Julho 25.8°C 1 mm
Agosto 26.2°C 2 mm
Setembro 22.9°C 9 mm
Outubro 19.1°C 51 mm
Novembro 15.2°C 74 mm
Dezembro 12.6°C 66 mm

Comércios e Serviços

205 restaurant
36 pharmacy
27 bank
1 park
63 cafe
9 dentist

Altitude e Terreno

15m Altitude
0,4 km Distância até à Praia
3.0% Inclinação até à praia

Moderado

Destaques Próximos

Ev Charging

Centros desportivos

Praias

Marinas

Campos de golfe

Piscinas

Transportes e Acesso

18 km Malaga-Costa del Sol (AGP)
79 km Gibraltar (GIB)
407 km Alicante-Elche (ALC)
0,6 km Fuengirola
3,5 km Carvajal
6,2 km Torremuelle
0,7 km Terminal Autobus

Detalhes do Empreendimento

Empreendimento 3 Bed Middle Floor Apartment in Fuengirola
Cidade Fuengirola
Região Costa del Sol
Preço Inicial €970.000
Área Habitacional 140 m²
Preço por m² €6.928 / m²
Terracço 8 m²
Quartos 3
Casas de Banho 2
Estacionamento Não
Piscina Sim
Jardim Sim
Estado da Construção key_ready
Distância até à Praia 0,4 km
Conclusão 1989
IMI/ano €547
Resíduos/ano €56
Publicado 2026-04-19

Ref: VL040718

Fonte: Wikipedia, Wikidata, INE, Junta de Andalucía

Resumo

  • Apartamento renovado de 3 quartos e 2 casas de banho em Fuengirola.
  • Localizado em ambiente urbano, perto da praia, lojas e restaurantes.
  • Área útil de 140 m², pronto a habitar.
  • Boa ligação ao aeroporto de Málaga (18 km) e transportes públicos.
  • Campos de golfe e praias com Bandeira Azul nas proximidades.

Comparação Regional

Comparado com outras propriedades em Fuengirola, como Carat (a partir de 822.000 €) e Valley Collection (a partir de 695.000 €), este apartamento posiciona-se no segmento superior com um preço de 970.000 €. No entanto, oferece 3 quartos e foi renovado, o que justifica o seu preço mais elevado. The Kos, outro projeto, é ainda mais caro com um preço inicial de 1.120.000 €. A propriedade aqui oferecida representa uma opção para compradores que procuram um apartamento pronto a habitar, bem equipado, numa localização de praia popular, e estão dispostos a pagar o preço correspondente. O mercado de Fuengirola mostra uma gama de opções adaptadas a diferentes orçamentos e preferências, com propriedades renovadas em localizações excelentes a tender a alcançar preços mais elevados.

Perguntas Frequentes

Quais são as opções de estacionamento disponíveis?
O apartamento não dispõe de estacionamento privativo. O estacionamento depende da disponibilidade no espaço público circundante.
Qual a distância até ao campo de golfe mais próximo?
Os campos de golfe mais próximos, como o Campo Los Lagos, localizam-se a aproximadamente 3,8 km.
A cozinha está totalmente equipada?
Sim, a cozinha está totalmente equipada.
Qual o potencial de aluguer desta propriedade?
A propriedade é descrita com um bom potencial de aluguer, em parte devido à sua localização e comodidades.
Existem piscinas comuns?
Sim, existem duas piscinas comuns disponíveis.
Quais são os custos mensais estimados de manutenção e condomínio?
Informações específicas sobre os custos mensais de manutenção e condomínio não são fornecidas.
A propriedade está pronta para habitar imediatamente?
Sim, a propriedade está 'Pronta' e pode ser ocupada imediatamente após a compra.
Qual a distância até à praia mais próxima?
A praia mais próxima, Playa de San Francisco, localiza-se a uma distância aérea de aproximadamente 400 metros.
Maiko
Maiko
Especialista em Imobiliário

Maiko é um especialista imobiliário especializado no mercado de habitação espanhol. Com um conhecimento profundo da Costa del Sol, Costa Blanca e outras regiões costeiras populares, ele ajuda os compradores a encontrar a propriedade certa. Ele analisa ofertas com base na localização, valor de mercado, qualidade de construção e habitabilidade, e fornece aconselhamento honesto e baseado em dados durante todo o processo de compra.

Resposta em 24 horas

Interessado?

Deixe os seus contactos e receba informações sobre disponibilidade, preços e plantas.

Ficha Técnica
O apartamento faz parte de uma urbanização com piscinas comuns e jardins.
A área útil é de 140 m².
A propriedade está orientada a sudoeste.

Conversation history

Ask a question to start