3 Bed Middle Floor Apartment in Fuengirola في Fuengirola — شقة
شقة

شقة للبيع في فوينخيرولا، 599,000 يورو

توفر هذه الشقة المكونة من ثلاث غرف نوم وحمامين في فوينخيرولا مساحة معيشة تبلغ 150 مترًا مربعًا. العقار جاهز للسكن ويتضمن موقف سيارات تحت الأرض وغرفة تخزين. تقع الشقة في مجمع به مسبح مشترك كبير وحدائق مصانة جيدًا، وهي في موقع مثالي بالقرب من جميع وسائل الراحة الأساسية، بما في ذلك المطاعم والمتاجر والشواطئ. توفر المنطقة اتصالاً جيدًا بالمواصلات، على بعد 18 كم فقط من مطار ملقا.

يبدأ من €599,000
3
غرف النوم
2
الحمامات
150 m²
مساحة المعيشة
يبدأ من €599,000
السعر المبدئي
0.4 km
مسافة الشاطئ
جاهز للتسليم
حالة البناء

تحليل المشروع

أهم خصائص الموقع، والوحدات، ومراحل المشروع، ونقاط الاهتمام.

الموقع

يقع العقار في بيئة حضرية على مسافة قريبة من الشاطئ وجميع وسائل الراحة في فوينخيرولا. في حين أنه قريب من المتاجر والمطاعم ووسائل النقل العام، إلا أنه يوفر أيضًا بيئة سكنية هادئة، على بعد خطوات قليلة من الشاطئ.

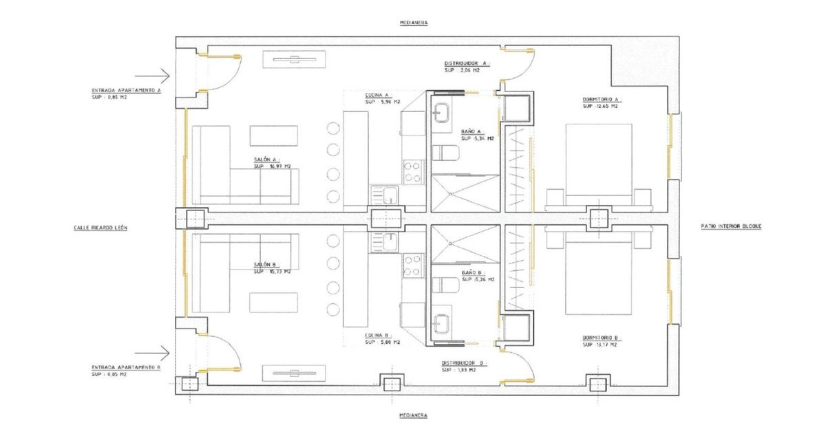
المخططات

هذه الشقة مثالية لأولئك الذين يبحثون عن نمط حياة مريح وحيوي. توفر غرف النوم الثلاث والحمامين والمطبخ المجهز بالكامل احتياجات العائلات أو الأفراد الذين يستقبلون ضيوفًا. تفتح غرفة المعيشة والطعام المشرقة على شرفة كبيرة مغلقة بمساحة 27 مترًا مربعًا، مما يوفر مساحة معيشة إضافية مثالية للاستمتاع بالمناخ المحلي.

حالة المشروع

تم الانتهاء من تطوير الشقق وجاهزة للسكن. هذا يعني أنه يمكنك الانتقال على الفور، وتجنب أي تأخير مرتبط بعملية البناء. العقار جاهز لاستقبال أصحابه الجدد ويوفر مساحة معيشة حديثة.

نقاط هامة

لا يوفر هذا العقار إطلالات على البحر. يقع في منطقة حضرية، وقد لا يكون هادئًا مثل المناطق الريفية. على الرغم من قربه من الشاطئ، إلا أنه ليس عقارًا على شاطئ البحر. بالإضافة إلى ذلك، لا يوفر حديقة خاصة.

تفاصيل المشروع

المشروع 3 Bed Middle Floor Apartment in Fuengirola
المدينة Fuengirola
المنطقة Costa del Sol
السعر المبدئي €599,000
مساحة المعيشة 150 m²
السعر لكل م² €3,993 / m²
التراس 27 m²
غرف النوم 3
الحمامات 2
موقف سيارات نعم
مسبح نعم
حديقة نعم
حالة البناء key_ready
مسافة الشاطئ 0.4 km
تاريخ الإنجاز 2003
ضريبة الأبنية/سنوياً €500
تاريخ النشر 2026-04-19

Ref: VL787832

المصدر: Wikipedia, Wikidata, INE, Junta de Andalucía

نمط الحياة

هذه الشقة مناسبة للعائلات التي تبحث عن الراحة، أو للمهنيين، أو للأفراد الذين يبحثون عن منزل ثانٍ. يمكن لغرف النوم الثلاث أن تستوعب عائلة أو توفر مساحة واسعة للضيوف. قربه من الشاطئ ووسائل الراحة الحضرية يجعله خيارًا مثاليًا لأولئك الذين يقدرون نمط الحياة على الواجهة البحرية مع الاستمتاع بالراحة الحضرية. تضيف المدارس والمستشفيات القريبة راحة إضافية للعائلات. بالنسبة لأولئك الذين يبحثون عن مناخ مشمس وفرص للاستمتاع بالهواء الطلق، فإن متوسط درجة الحرارة السنوية في فوينخيرولا البالغ 18.7 درجة مئوية و 3897 ساعة من أشعة الشمس تجعلها وجهة جذابة.

الجودة والتشطيبات

تتميز الشقة بتشطيبات ووسائل راحة عالية الجودة. تحتوي على مطبخ مستقل مجهز بالكامل مع غرفة غسيل منفصلة، مما يوفر العملية. تتصل غرفة المعيشة وتناول الطعام المشرقة بسلاسة بشرفة كبيرة مغلقة بمساحة 27 مترًا مربعًا، وهي مثالية للاسترخاء والترفيه. تحتوي الشقة على تكييف هواء لضمان الراحة على مدار العام. بالإضافة إلى ذلك، فهي تتضمن خزائن مدمجة لتوفير مساحة تخزين كبيرة، بالإضافة إلى موقف سيارات تحت الأرض وغرفة تخزين لمزيد من الراحة.

البيئة ونمط الحياة

السعر والتوفر

تبدأ أسعار هذه الشقة المكونة من ثلاث غرف نوم من 599,000 يورو، مما يمثل فرصة كبيرة في قلب فوينخيرولا. تبلغ مساحة العقار 150 مترًا مربعًا، ويوفر مساحة معيشة واسعة. يقع المجمع في منطقة راسخة توفر وسائل الراحة والحياة المجتمعية. للحصول على معلومات حول العقارات الأخرى المتاحة أو التغييرات في الأسعار، يوصى بالاتصال المباشر.

€599,000
السعر المبدئي
3
غرف النوم
150 m²
مساحة المعيشة
2
الحمامات
€500
ضريبة الأبنية/سنوياً

البيئة المحيطة

فوينخيرولا مدينة نابضة بالحياة تقدم مزيجًا من الراحة الحضرية والحياة على الواجهة البحرية. تضم المنطقة 205 مطعمًا و 63 مقهى و 36 صيدلية، مما يلبي احتياجات السكان اليومية. توفر 15 مدرسة ابتدائية و 10 مدارس ثانوية خيارات تعليمية للعائلات. تتميز المدينة بـ 3897 ساعة من أشعة الشمس سنويًا وموسم سباحة مدته 4 أشهر، مما يجعلها مثالية للأنشطة الخارجية. يبلغ عدد سكان المدينة حوالي 85,211 نسمة، مما يشير إلى مجتمع راسخ ولكنه يحافظ على كثافة سكانية مريحة نسبيًا.

طلب معلومات

الموقع والبيئة: Fuengirola

البيئة والوصول

تقدم فوينخيرولا بيئة نابضة بالحياة، تمزج بين الحياة الحضرية وهدوء الواجهة البحرية. تضم المنطقة 205 مطاعم و 63 مقهى و 36 صيدلية، مما يضمن أن تكون الضروريات اليومية في متناول اليد. كما أن قربها من 4 شواطئ تحمل العلم الأزرق يوفر فرصًا للاسترخاء والترفيه. تضم المدينة 15 مدرسة ابتدائية و 10 مدارس ثانوية، مما يوفر سهولة الوصول إلى التعليم للعائلات. تضمن 3 مراكز صحية تلبية الاحتياجات الصحية للسكان.

الخريطة والموقع

توضح الخريطة الموقع الجغرافي للشقة في فوينخيرولا، مع التركيز على قربها المريح من الشواطئ ووسط المدينة وطرق النقل الرئيسية. يبرز خريطة وسائل الراحة القريبة مثل محلات السوبر ماركت والصيدليات والمراكز الرياضية.

Beachfront room with ocean view, featuring a private balcony and modern amenities.

الموقع الإقليمي

تقع فوينخيرولا على الساحل المركزي لمقاطعة مالقة في مجتمع أندلوسيا المستقل، وهي جزء من كوستا ديل سول. وهي تقع استراتيجيًا في المنطقة، على بعد حوالي 18 كم من مالقة، وتتكامل مع منطقة كوستا ديل سول أوكسيدنتال. موقعها الحضري يجعلها قاعدة مثالية لاستكشاف كوستا ديل سول، مع سهولة الوصول إلى طرق النقل الرئيسية.

المرافق والوصول

تتمتع الشقة بموقع ممتاز، حيث تقع على بعد 658 مترًا فقط من شاطئ بلايا دي فوينخيرولا وعلى بعد 661 مترًا من شاطئ بلايا دي سان فرانسيسكو. تقع محلات السوبر ماركت (112 مترًا) والصيدليات (226 مترًا) على مقربة، مما يضمن سهولة الوصول اليومي. توفر ملاعب الجولف على بعد 3.8 كم خيارات ترفيهية. يقع أقرب مطار، وهو مطار ملقا كوستا ديل سول، على بعد حوالي 18 كم. بالإضافة إلى ذلك، تخدم المنطقة بشكل جيد بواسطة 33 محطة للحافلات و 14 خطًا للحافلات، مما يسهل التنقل. تقع أقرب محطة قطار، فوينخيرولا، على بعد 0.6 كم فقط.

مسافة الشاطئ 0.4 km
Malaga-Costa del Sol (AGP) 18 km
Gibraltar (GIB) 79 km
Fuengirola 0.6 km
Carvajal 3.5 km

المصدر: OpenStreetMap, Google Maps

Aerial view of a coastal city with a sandy beach and clear blue water.

الطبيعة والمناخ

Oceanfront apartment with balcony, city and beach views, modern amenities.

تتمتع فوينخيرولا بمناخ البحر الأبيض المتوسط مع متوسط درجة حرارة سنوية تبلغ 18.7 درجة مئوية، وتتراوح درجات الحرارة المتوسطة بين 12 درجة مئوية و 26 درجة مئوية. تستفيد المنطقة من 3897 ساعة من أشعة الشمس سنويًا، مع موسم سباحة يدوم 4 أشهر. تقع الشقة على ارتفاع 15 مترًا فوق مستوى سطح البحر، مع انحدار لطيف بنسبة 3.0٪ إلى الشاطئ، مما يوفر بيئة معتدلة.

3897 ساعات الشمس/سنة
4 موسم السباحة (أشهر)
18.7°C متوسط الحرارة السنوي
15m الارتفاع

المصدر: Open-Meteo (2020–2025 متوسط)

الشواطئ والترفيه

تضم فوينخيرولا 4 شواطئ تحمل العلم الأزرق، بما في ذلك بلايا دي البوليتشيس-جافيوتاس، وكارفاخال، وكاستيو-إيجيدو، وفوينخيرولا. أقرب شاطئ هو بلايا دي سان فرانسيسكو، على بعد 658 مترًا فقط. تضم المنطقة أيضًا 269 منشأة رياضية، بما في ذلك pabellón Juan Gómez Juanito و Complejo Deportivo Municipal Elola، على بعد 0.6 كم فقط. يمكن لعشاق الجولف الاستمتاع بملاعب مثل Campo Los Lagos، الواقعة على بعد 3.8 كم.

شواطئ

  • Playa de San Francisco 0.4 km
  • Playa de los Boliches 1 km
  • Playa de Santa Amalia 1.2 km
  • Playa del Castillo 1.9 km
  • Playa Torreblanca-Carvajal Blue Flag 2.1 km
  • Playa Mati 2.8 km

Golf

  • Campo Los Lagos 4 km
  • Cerrado del Aguila Golf 4.5 km
  • Campo Los Olivos 4.7 km
  • El Chaparral Golf Club 5.4 km

مرافق رياضية

269 المرافق المتاحة

المصدر: Blue Flag 2026, OpenStreetMap, CSD

Beachfront room with ocean view, featuring a balcony and lounge chairs.

الموقع الإقليمي

تقع فوينخيرولا على الساحل المركزي لمقاطعة مالقة في مجتمع أندلوسيا المستقل، وهي جزء من كوستا ديل سول. وهي تقع استراتيجيًا في المنطقة، على بعد حوالي 18 كم من مالقة، وتتكامل مع منطقة كوستا ديل سول أوكسيدنتال. موقعها الحضري يجعلها قاعدة مثالية لاستكشاف كوستا ديل سول، مع سهولة الوصول إلى طرق النقل الرئيسية.

دليل المنطقة: Fuengirola

Fuengirola is a city on the Costa del Sol in the province of Málaga in the autonomous community of Andalusia in southern Spain. It is located on the central coast of the province and integrated into the region of the Costa del Sol and the Commonwealth of Municipalities of the Costa del Sol Occidental.

حقائق أساسية

10.4 km² المساحة

المناخ

الشهر متوسط الحرارة معدل الأمطار
يناير 11.9°C 56 mm
فبراير 12.2°C 57 mm
مارس 14.2°C 46 mm
أبريل 16.1°C 31 mm
مايو 18.3°C 28 mm
يونيو 22.4°C 6 mm
يوليو 25.8°C 1 mm
أغسطس 26.2°C 2 mm
سبتمبر 22.9°C 9 mm
أكتوبر 19.1°C 51 mm
نوفمبر 15.2°C 74 mm
ديسمبر 12.6°C 66 mm

المرافق القريبة

205 restaurant
36 pharmacy
27 bank
1 park
63 cafe
9 dentist

الارتفاع والتضاريس

15m الارتفاع
0.4 km مسافة الشاطئ
3.0% الانحدار إلى الشاطئ

معتدل

معالم قريبة

Ev Charging

مراكز رياضية

شواطئ

موانئ ترفيهية

ملاعب الغولف

مسابح

النقل والوصول

18 km Malaga-Costa del Sol (AGP)
79 km Gibraltar (GIB)
407 km Alicante-Elche (ALC)
0.6 km Fuengirola
3.5 km Carvajal
6.2 km Torremuelle
0.7 km Terminal Autobus

ملخص

  • شقة مكونة من 3 غرف نوم بمساحة 150 متر مربع في فوينخيرولا، بالقرب من الشاطئ ووسائل الراحة الحضرية.
  • موقع مريح على مسافة قريبة من المتاجر والمطاعم ووسائل النقل العام.
  • يحتوي على مسبح مشترك كبير وحدائق وموقف سيارات تحت الأرض وغرفة تخزين.
  • شرفة مغلقة توفر مساحة معيشة واسعة ومنطقة للاسترخاء في الهواء الطلق.
  • سهولة الوصول إلى وسائل النقل، على بعد 18 كم فقط من مطار ملقا.

مقارنة إقليمية

مقارنة بالعقارات المجاورة مثل Aura Higueron (ابتداءً من 669,000 يورو) و Higuerón Bay Residences (ابتداءً من 580,000 يورو)، توفر هذه الشقة في فوينخيرولا (ابتداءً من 599,000 يورو) نقطة سعر جذابة. بينما تتمتع Aura Higueron بسعر أعلى، فإن Higuerón Bay Residences تبدأ بسعر أقل، و Nova Marina تبدأ من 520,000 يورو. يشير هذا إلى أن سوق فوينخيرولا يقدم نقاط سعر متنوعة لتلبية الميزانيات المختلفة. يعكس سعر هذا العقار موقعه الحضري وقربه من جميع وسائل الراحة، مما يجعله منافسًا قويًا للمشترين الذين يبحثون عن نمط حياة مريح.

الأسئلة الشائعة

هل هذه الشقة مناسبة للمعيشة الدائمة أم هي في المقام الأول لقضاء العطلات؟
الشقة مناسبة للمعيشة على مدار العام، حيث إنها مجهزة بتكييف الهواء وتقع في منطقة راسخة مع جميع وسائل الراحة الضرورية. إن قربها من المتاجر والمدارس والمراكز الصحية يجعلها مثالية للإقامة طويلة الأجل.
ما هي المسافة من الشقة إلى مطار ملقا؟
المسافة في خط مستقيم من الشقة إلى مطار ملقا كوستا ديل سول تبلغ حوالي 18 كم.
ما هي ميزات الأمان المتوفرة في الشقة؟
تحتوي الشقة على مصعد. في حين لم يتم تحديد أنظمة الأمان بشكل خاص، إلا أنها تقع في مجمع حضري، مما يعني عادةً وجود إدارة مجتمعية وإجراءات أمنية قياسية.
ما هو وضع سوق العقارات في فوينخيرولا؟
سوق العقارات في فوينخيرولا نشط نسبيًا، مع عدد كبير من المعاملات التي تتم على مدار العام. تجذب المنطقة مجموعة متنوعة من المشترين، بما في ذلك المشترين الدوليين، نظرًا لنمط حياتها المريح على الواجهة البحرية.
ما هي المرافق القريبة من الشقة؟
هناك وفرة من المرافق القريبة من الشقة، بما في ذلك محلات السوبر ماركت (112 مترًا) والصيدليات (226 مترًا) والمطاعم (205) والمقاهي (63) والمراكز الرياضية (0.6 كم).
ما هي التكلفة الإجمالية لشراء هذا العقار؟
السعر المشار إليه لا يشمل النفقات المتأصلة في شراء العقارات، مثل ضريبة نقل الملكية أو ضريبة القيمة المضافة، ورسوم كاتب العدل، ورسوم التسجيل.
ما هي عملية شراء العقار؟
تتضمن عملية الشراء عادةً دفع عربون، وتوقيع عقد بيع خاص، وتوقيع سند الملكية أمام كاتب عدل، وأخيرًا التسجيل في السجل العقاري. يوصى باستشارة خبير قانوني للحصول على تفاصيل.
ما هي المسافة من الشقة إلى الشواطئ؟
تقع الشقة على بعد 658 مترًا فقط من أقرب شاطئ، بلايا دي سان فرانسيسكو، وعلى مسافة قريبة جدًا من الشواطئ الأخرى مثل بلايا دي فوينخيرولا (658 مترًا) وبلايا دي سانتا أماليا (668 مترًا).
Maiko
Maiko
خبير عقاري

مايكو خبير عقارات متخصص في سوق الإسكان الإسباني. من خلال معرفته العميقة بمنطقة كوستا ديل سول وكوستا بلانكا والمناطق الساحلية الشهيرة الأخرى في إسبانيا، يساعد المشترين في العثور على العقار المناسب. يقوم بتحليل العروض بناءً على الموقع والقيمة السوقية وجودة البناء وقابلية السكن، ويقدم نصائح صادقة تستند إلى البيانات طوال عملية الشراء بأكملها.

رد خلال 24 ساعة

مهتم؟

اترك بياناتك واحصل على معلومات عن التوفر، والأسعار، والمخططات.

المواصفات الفنية
تبلغ مساحة العقار 150 مترًا مربعًا.
عدد غرف النوم: 3.
عدد الحمامات: 2.
يوجد 4 شواطئ بالعلم الأزرق.
يستفيد هذا المجال من 3897 ساعة من أشعة الشمس سنويًا.

Conversation history

Ask a question to start