تم بيع هذا العقار عرض عقارات مشابهة في Mijas
2 Bed Middle Floor Apartment in La Cala في La Cala — شقة
شقة

شقة للبيع في لا كالا، مالاغا

شقة في لا كالا، مالاغا، بسعر يبدأ من 599,950 يورو. يتميز هذا العقار بغرفتي نوم وحمامين ومساحة معيشة تبلغ 90 مترًا مربعًا، ويقع في منطقة حضرية نابضة بالحياة مع وسائل راحة على مسافة قريبة سيرًا على الأقدام. يقع العقار على الواجهة البحرية، مما يسمح للسكان بالاستمتاع الكامل بأسلوب الحياة المتوسطي مع الحفاظ على سهولة الوصول إلى المرافق الحضرية.

€599,950 مباع
هذا العقار لم يعد متاحاً
2
غرف النوم
2
الحمامات
90 m²
مساحة المعيشة
€599,950 مباع
Prijs
0.3 km
مسافة الشاطئ

تحليل المشروع

أهم خصائص الموقع، والوحدات، ومراحل المشروع، ونقاط الاهتمام.

الموقع

يقع العقار مباشرة على الواجهة البحرية، في منطقة حضرية راسخة مع جميع وسائل الراحة اللازمة. تقع الشواطئ والمتاجر والمطاعم على مسافة قريبة سيرًا على الأقدام، مما يجعل الحياة اليومية مريحة للغاية. يوفر الموقع المتميز تجربة حقيقية للحياة على شاطئ البحر، مع الاندماج في المجتمع المحلي.

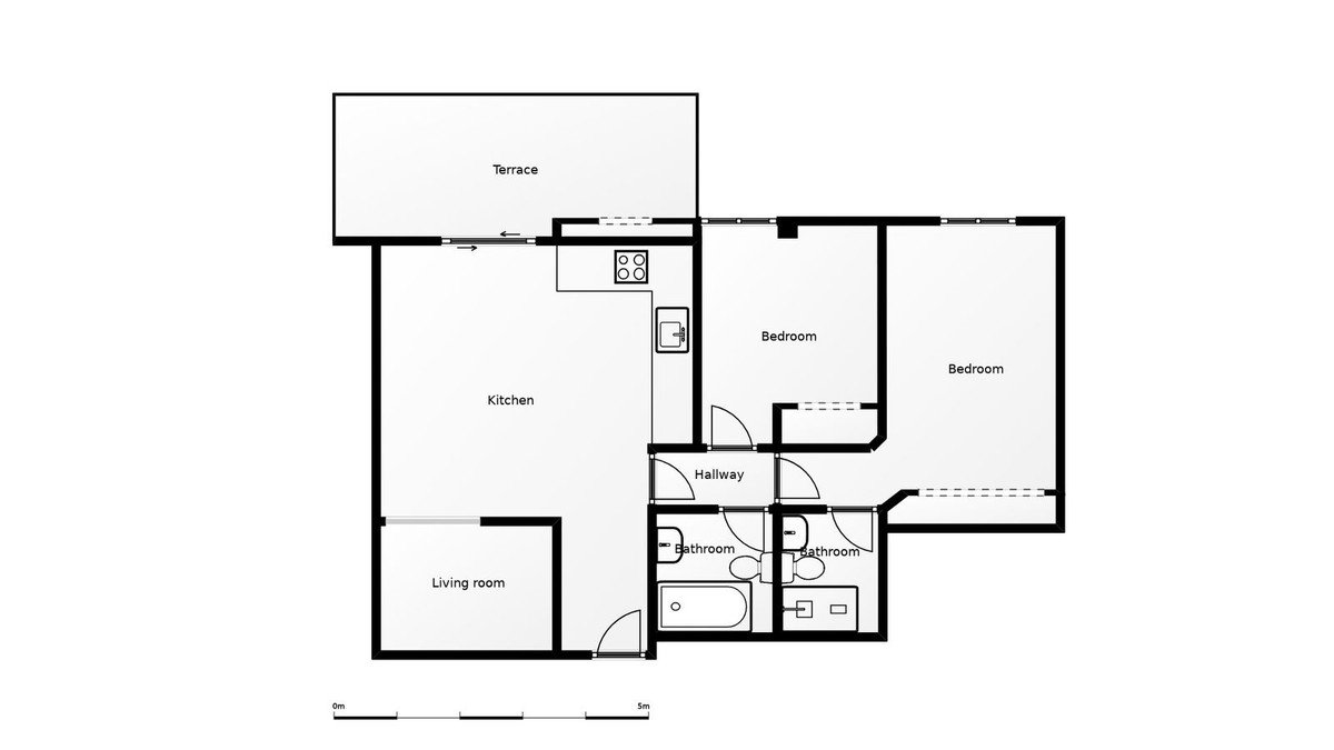
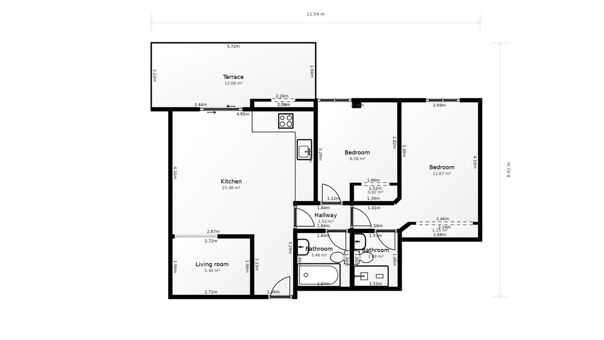
المخططات

تم تصميم هذه الشقة لتلبية احتياجات السكان العصريين، حيث توفر مساحة داخلية واسعة وتصميمًا عمليًا. يضمن التوجيه الغربي ضوءًا طبيعيًا وفيرًا وإطلالات ممتعة على غروب الشمس. يضيف مرآب تحت الأرض وغرفة تخزين وملاعب تنس وكرة مضرب مشتركة إلى الراحة والملاءمة.

حالة المشروع

هذا العقار هو إعادة بيع في حالة ممتازة. تم تجديد الشقة وهي ذات جودة عالية. في حين أنها ليست مشروعًا جديدًا، إلا أن حالتها وصيانتها والمرافق الحالية تضمن تجربة معيشة عالية الجودة، وهي جاهزة للسكن الفوري أو الاستخدام كمنزل للعطلات.

نقاط هامة

لا يوفر العقار حديقة خاصة أو مسبحًا خاصًا، ولكن المرافق المجتمعية المشتركة، مثل المسبح وملاعب التنس وكرة المضرب، توفر خيارات ترفيهية وفيرة. بينما يقع على الواجهة البحرية، فإن البيئة الحضرية المحيطة تعني أيضًا احتمال وجود بعض الضوضاء الخلفية، خاصة خلال ذروة موسم العطلات.

نمط الحياة

تعتبر هذه الشقة خيارًا مثاليًا للأفراد أو العائلات التي تبحث عن عقار في منطقة ساحلية مشمسة. إنها مناسبة لأولئك الذين يقدرون الراحة ويفضلون استكشاف المناطق المحيطة سيرًا على الأقدام. العقار مناسب تمامًا كمسكن دائم، للاستمتاع بالمناخ اللطيف على مدار العام والحياة المحلية، أو كمنزل للعطلات للاسترخاء بجوار البحر. كما أن قربه من ملاعب الجولف والمراكز الرياضية ومحاور النقل يجذب عشاق نمط الحياة النشط والمسافرين الذين يحتاجون إلى سهولة الوصول إلى المطار.

الجودة والتشطيبات

تتميز الشقة بتشطيبات عالية الجودة، مما يضمن تجربة معيشة مريحة. في الداخل، تم تزويد الأرضيات بالرخام المصقول، مما يضيف لمسة من الأناقة. توفر النوافذ ذات الزجاج المزدوج عزلًا جيدًا للصوت والحرارة، في حين تلبي المطابخ المجهزة بالكامل احتياجات الطهي. تم تجهيز جميع غرف النوم بخزائن مدمجة لزيادة المساحة. تضمن الحمامات الداخلية، المتصلة بغرف النوم الرئيسية، الخصوصية والراحة.

البيئة ونمط الحياة

السعر والتوفر

تبدأ أسعار هذه الشقة من 599,950 يورو. يتكون العقار من شقتين بغرفتي نوم وحمامين، مع تراس بمساحة 16 مترًا مربعًا ومساحة معيشة داخلية تبلغ 90 مترًا مربعًا. يجعله موقعه على الواجهة البحرية وحالته الممتازة خيارًا جذابًا. نظرًا لتفرده ومرغوبيته، يُنصح المشترون المهتمون بالاتصال في أقرب وقت ممكن للحصول على أحدث المعلومات حول الأسعار والتوافر.

€599,950 مباع
Prijs
2
غرف النوم
90 m²
مساحة المعيشة
2
الحمامات
€441
ضريبة الأبنية/سنوياً
€65
ضريبة النفايات/سنوياً

البيئة المحيطة

تقع لا كالا دي ميخاس في قلب كوستا ديل سول، وهي قرية ساحلية نابضة بالحياة تشتهر بشواطئها الجميلة ومطاعمها الصاخبة وبيئتها الحضرية المريحة. توفر المنطقة أسلوب حياة متوسطي مريح، مع بقاء وسائل الراحة الحضرية في متناول اليد. من هذا العقار، يمكنك الوصول بسهولة سيرًا على الأقدام إلى الشواطئ والمتاجر والمطاعم والأسواق المحلية. تتميز المنطقة بمجموعة واسعة من المرافق الرياضية، بما في ذلك ملاعب التنس وملاعب الكرة المضرب والعديد من ملاعب الجولف القريبة، لتلبية احتياجات الهواة المختلفين. يبلغ متوسط عدد ساعات ضوء الشمس السنوي 3889 ساعة وموسم سباحة يصل إلى 5 أشهر، مما يوفر ظروفًا مثالية للأنشطة الخارجية والاستمتاع بالمناخ المحلي.

طلب معلومات

الموقع والبيئة: La Cala

البيئة والوصول

تقع الشقة في قلب لا كالا دي ميخاس، وهي قرية ساحلية نابضة بالحياة. توفر المنطقة تجربة محلية غنية مع سهولة الوصول إلى جميع وسائل الراحة سيرًا على الأقدام. تقع 35 مطعمًا و 15 مقهى و 6 بنوك في مكان قريب، لتلبية الاحتياجات اليومية. يوجد أيضًا مدرسة واحدة في المنطقة، مما يوفر الراحة للعائلات. مع 3889 ساعة من أشعة الشمس سنويًا وموسم سباحة يصل إلى 5 أشهر، يمكن للمقيمين الاستمتاع بالمناخ المتوسطي بالكامل. بالنسبة لعشاق الرياضة، توفر المنطقة العديد من الخيارات، بما في ذلك نوادي التنس القريبة والمراكز الرياضية.

الخريطة والموقع

توضح الخريطة موقع لا كالا دي ميخاس، وهي وجهة ساحلية شهيرة على كوستا ديل سول. توضح العلامات قرب العقار من الشواطئ وملاعب الجولف والمتاجر وروابط النقل، مما يؤكد أسلوب الحياة الحضري المريح.

Beachfront room with ocean view, featuring a sandy shore and rocky cliffs.

الموقع الإقليمي

تقع لا كالا دي ميخاس في قلب كوستا ديل سول، وهي منطقة ساحلية خلابة في جنوب إسبانيا. تقع هذه المنطقة بين مالاغا وماربيا، وتتمتع بموقع متميز مع سهولة الوصول إلى المعالم السياحية الرئيسية ومحاور النقل في المنطقة. مقارنة بالمدن المجاورة مثل إستيبونا وبنالماذينا، تقدم لا كالا تجربة إسبانية ساحلية أكثر هدوءًا وتقليدية. تشتهر المنطقة بشواطئها الجميلة ومركز القرية النابض بالحياة وسهولة الوصول لعشاق الجولف.

المرافق والوصول

يتمتع المشروع بموقع متميز في لا كالا دي ميخاس، مع سهولة الوصول إلى الشواطئ والمرافق الحضرية. يقع أقرب شاطئ، Playa de La Cala - El Torreón، على بعد 312 مترًا فقط. يوجد سوبر ماركت على بعد 409 أمتار وصيدلية على بعد 284 مترًا و 6 بنوك في المدينة، مما يسهل الحياة اليومية. بالنسبة لعشاق الجولف، يقع نادي إل تشابارال للجولف على بعد 2.0 كم فقط. يقع مطار مالاغا-كوستا ديل سول (AGP) على بعد حوالي 25 كم، مما يسهل السفر الدولي. تخدم المنطقة 4 خطوط حافلات و 43 محطة حافلات، مما يوفر خيارات النقل العام، ولكن امتلاك سيارة قد يسهل استكشاف المناطق المحيطة، على الرغم من أن مواقف السيارات في البيئة الحضرية قد تتطلب اعتبارًا.

مسافة الشاطئ 0.3 km
Malaga-Costa del Sol (AGP) 25 km
Gibraltar (GIB) 71 km
Fuengirola 6.8 km

المصدر: OpenStreetMap, Google Maps

Cozy coastal room with ocean view, featuring large windows and a private balcony.

الطبيعة والمناخ

Coastal rock formations, ocean view, natural landscape.

تتميز لا كالا دي ميخاس بمناخ متوسطي نموذجي، بمتوسط درجة حرارة سنوية 18.9 درجة مئوية، وتتميز بصيف دافئ وشتاء معتدل. يبلغ متوسط عدد ساعات ضوء الشمس السنوي 3889 ساعة، مما يجعلها وجهة مثالية لمحبي الشمس. يمتد موسم السباحة إلى 5 أشهر، حيث تصل درجة حرارة الماء إلى 20 درجة مئوية أو أعلى. على ارتفاع 5 أمتار فقط فوق مستوى سطح البحر وانحدار يبلغ 1.7% فقط، فإن المنطقة مسطحة جدًا وسهلة الوصول إلى الشاطئ. يخلق نسيم البحر ودرجات الحرارة المعتدلة بيئة مريحة للحياة في الهواء الطلق على مدار العام.

3889 ساعات الشمس/سنة
5 موسم السباحة (أشهر)
18.9°C متوسط الحرارة السنوي
5m الارتفاع

المصدر: Open-Meteo (2020–2025 متوسط)

الشواطئ والترفيه

تقع الشقة على مسافة قريبة من العديد من الشواطئ، بما في ذلك Playa de La Cala - El Torreón (312 مترًا) و Playa de La Cala - La Butibamba (411 مترًا) و Playa Las Doradas (999 مترًا)، وهي مثالية للاستمتاع بحمامات الشمس والسباحة والرياضات المائية. تقدم المنطقة أيضًا مجموعة واسعة من خيارات الترفيه، بما في ذلك ملاعب الجولف مثل El Chaparral Golf Club (2.0 كم) و Cerrado del Aguila Golf (3.1 كم). بالإضافة إلى ذلك، توفر المراكز الرياضية مثل Polideportivo de La Cala (1.0 كم) فرصًا لممارسة رياضتي التنس وكرة المضرب.

شواطئ

  • Playa de La Cala - El Torreón 0.3 km
  • Playa de La Cala - La Butibamba 0.4 km
  • Playa El Bombo - El Bombo 1 km
  • Playa de Las Doradas 1 km
  • Playa El Bombo - Cabo Rocoso 1.6 km
  • Playa de Calahonda - Rocas del Mar 2 km

Golf

  • El Chaparral Golf Club 2 km
  • Cerrado del Aguila Golf 3.1 km
  • Par 3 Course 4.9 km
  • Santana Golf & Country Club 4.9 km

المصدر: OpenStreetMap

A stone tunnel with hanging lights, leading to an open doorway.

الموقع الإقليمي

تقع لا كالا دي ميخاس في قلب كوستا ديل سول، وهي منطقة ساحلية خلابة في جنوب إسبانيا. تقع هذه المنطقة بين مالاغا وماربيا، وتتمتع بموقع متميز مع سهولة الوصول إلى المعالم السياحية الرئيسية ومحاور النقل في المنطقة. مقارنة بالمدن المجاورة مثل إستيبونا وبنالماذينا، تقدم لا كالا تجربة إسبانية ساحلية أكثر هدوءًا وتقليدية. تشتهر المنطقة بشواطئها الجميلة ومركز القرية النابض بالحياة وسهولة الوصول لعشاق الجولف.

دليل المنطقة: La Cala

حقائق أساسية

المناخ

الشهر متوسط الحرارة معدل الأمطار
يناير 12.3°C 69 mm
فبراير 12.5°C 69 mm
مارس 14.4°C 54 mm
أبريل 16.2°C 33 mm
مايو 18.2°C 28 mm
يونيو 22.2°C 5 mm
يوليو 25.6°C 1 mm
أغسطس 26.0°C 2 mm
سبتمبر 22.9°C 9 mm
أكتوبر 19.3°C 56 mm
نوفمبر 15.5°C 84 mm
ديسمبر 13.0°C 79 mm

المرافق القريبة

35 restaurant
1 school
2 pharmacy
6 bank
15 cafe

الارتفاع والتضاريس

5m الارتفاع
0.3 km مسافة الشاطئ
1.7% الانحدار إلى الشاطئ

مسطح

معالم قريبة

مراكز رياضية

شواطئ

نقاط مشاهدة

موانئ ترفيهية

ملاعب الغولف

مسابح

النقل والوصول

25 km Malaga-Costa del Sol (AGP)
71 km Gibraltar (GIB)
414 km Alicante-Elche (ALC)
6.8 km Fuengirola

تفاصيل المشروع

المشروع 2 Bed Middle Floor Apartment in La Cala
المدينة La Cala
المنطقة Costa del Sol
Prijs €599,950 مباع
مساحة المعيشة 90 m²
السعر لكل م² €6,666 / m²
التراس 12 m²
غرف النوم 2
الحمامات 2
موقف سيارات نعم
مسبح نعم
حديقة نعم
حالة البناء sold
مسافة الشاطئ 0.3 km
تاريخ الإنجاز 1998
ضريبة الأبنية/سنوياً €441
ضريبة النفايات/سنوياً €65
تاريخ النشر 2026-04-24

Ref: VL829792

المصدر: Wikipedia, Wikidata, INE, Junta de Andalucía

ملخص

  • شقة مجددة على الواجهة البحرية في لا كالا دي ميخاس، تبدأ من 599,950 يورو.
  • غرفتا نوم، حمامان، مساحة معيشة 90 مترًا مربعًا مع تراس 16 مترًا مربعًا.
  • إطلالة على البحر، مواجهة للغرب، قريبة من جميع وسائل الراحة وعلى مسافة قريبة من الشاطئ.
  • تشمل المرافق المجتمعية مسبحًا وملاعب تنس وكرة مضرب، بالإضافة إلى مرآب تحت الأرض وغرفة تخزين.
  • منزل مثالي للعطلات أو الإقامة الدائمة للاستمتاع بأسلوب الحياة المتوسطي.

مقارنة إقليمية

مقارنة بـ Acqua Gardens في إستيبونا (ابتداءً من 418,800 يورو) و Aby Upper (ابتداءً من 320,000 يورو)، فإن الشقة في لا كالا بسعر يبدأ من 599,950 يورو أغلى قليلاً، مما يعكس موقعها على الواجهة البحرية وحالتها المجددة. Alba Benalmadena في بنالماذينا (ابتداءً من 699,000 يورو) تقترب من حيث السعر، لكن العقار في لا كالا يقدم مزيجًا فريدًا من بيئة القرية والشاطئ. غالبًا ما تقدم المشاريع في إستيبونا وسائل راحة أكثر حداثة، بينما تشتهر لا كالا بسحر قريتها الإسبانية التقليدية ووصولها المباشر إلى الشاطئ. تحظى منطقة لا كالا بتقدير لقربها من ملاعب الجولف ووسائل الراحة الحضرية، مما يجذب المشترين الذين يبحثون عن نمط حياة نشط ولكنه مريح. مقارنة ببنالماذينا، تعتبر شواطئ لا كالا عادةً أكثر هدوءًا، وتحتفظ القرية نفسها بالمزيد من الطابع المحلي.

الأسئلة الشائعة

هل هناك أي اعتبارات خاصة للعقارات الواقعة على الواجهة البحرية؟
قد تواجه العقارات الواقعة على الواجهة البحرية تأثيرات التآكل بفعل الرياح البحرية والرطوبة والمخاطر أثناء الظواهر الجوية المتطرفة. يجب فحص سجلات صيانة العقار وتدابير الحماية من الفيضانات.
ما هي المسافة من هذا الموقع إلى مطار مالاغا؟
تبلغ المسافة في خط مستقيم من لا كالا إلى مطار مالاغا-كوستا ديل سول (AGP) حوالي 25 كم. قد يختلف وقت القيادة الفعلي بناءً على ظروف حركة المرور.
ما هي أنظمة التدفئة والتبريد المستخدمة في الشقة؟
لم يتم تقديم تفاصيل محددة حول أنظمة التدفئة والتبريد. عادةً ما تكون هذه العقارات مجهزة بأنظمة تكييف الهواء، وأحيانًا التدفئة تحت البلاط.
ما هي اتجاهات سوق العقارات في لا كالا دي ميخاس؟
لا كالا دي ميخاس وجهة شهيرة على كوستا ديل سول، وتشتهر بموقعها الساحلي وأجواء القرية. عادة ما يكون الطلب على العقارات مستقرًا، خاصة بالنسبة للعقارات القريبة من الشواطئ ووسائل الراحة.
ما هي المرافق الرياضية والترفيهية الرئيسية القريبة؟
توجد العديد من المرافق الرياضية في المنطقة، مثل Polideportivo de La Cala (1.0 كم) و Miraflores Tennis Club (1.8 كم). تقع ملاعب El Chaparral Golf Club (2.0 كم) وملاعب أخرى في مكان قريب. توفر العديد من الشواطئ أيضًا فرصًا للرياضات المائية.
ما هي التكاليف المستمرة التي يجب مراعاتها بخلاف سعر الشراء؟
قد تشمل التكاليف المستمرة رسوم المجتمع (لصيانة المناطق المشتركة والمسبح والحدائق) وضريبة الممتلكات السنوية (IBI) ورسوم جمع النفايات وفواتير الخدمات.
ما هي العملية النموذجية لشراء عقار في إسبانيا؟
تتضمن العملية النموذجية: تقديم عرض، توقيع اتفاقية الحجز (contrato de arras)، الحصول على رقم التعريف الضريبي (NIE)، فتح حساب بنكي، إجراء فحص للعقار، وأخيرًا توقيع عقد البيع النهائي (escritura de compraventa) أمام كاتب عدل.
ما هو وتيرة الحياة في هذا المشروع؟
تقدم لا كالا دي ميخاس أسلوب حياة متوسطي مريح. إنها قرية ساحلية ذات إيقاع حياة مريح نسبيًا، ولكنها قد تكون صاخبة جدًا خلال موسم الذروة السياحي نظرًا لشعبيتها.
Omar Al-Nasser
Omar Al-Nasser
خبير عقاري

عمر الناصر يفهم بعمق احتياجات العملاء الناطقين بالعربية، ويرشدهم بثقة في سوق العقارات الإسباني. هو يضمن عملية شراء سلسة ومحترمة ثقافيًا.

AI-assisted multilingual representative. Your inquiry is handled by our real support team.

رد خلال 24 ساعة

مهتم؟

اترك بياناتك واحصل على معلومات عن التوفر، والأسعار، والمخططات.

المواصفات الفنية
تبلغ المساحة الإجمالية للشقة 90 مترًا مربعًا.
توجد شرفة خاصة بمساحة 16 مترًا مربعًا.
أقرب شاطئ (Playa de La Cala - El Torreón) يبعد 312 مترًا فقط.
يقع نادي إل تشابارال للجولف على بعد 2.0 كم.
يقع مطار مالاغا (AGP) على بعد حوالي 25 كم.

Conversation history

Ask a question to start