Residential Plot in Selwo in Selwo — Bouwkavel
Bouwkavel

Bouwgrond Selwo, Málaga Te Koop

Ontdek deze bouwkavel van 1128 m² in Selwo, Málaga, met een startprijs van €610.000. Gelegen op een verhoogde positie (80m boven zeeniveau) en georiënteerd op het zuidoosten, biedt het perceel uitzicht op de bergen en de zee. Met een bebouwbaarheidsfactor van 0,25 en een bezettingsgraad van 30%, is dit een significante kans voor de ontwikkeling van een luxe villa met een bouwoppervlak van 575 m² en 240 m² aan terrassen. De locatie combineert rust met nabijheid tot voorzieningen en sportfaciliteiten.

€610.000
575 m²
Woonoppervlak
€610.000
Prijs

Projectanalyse

Belangrijkste kenmerken van locatie, woningen, projectfase en aandachtspunten.

Locatie

Dit perceel ligt in een stedelijke omgeving in Selwo, nabij Estepona. De directe omgeving kenmerkt zich door residentiële projecten en sportfaciliteiten zoals golfbanen. De nabijheid van de kustlijn en de ligging op een lichte helling bieden potentieel voor uitzicht op zee en de omringende natuur.

Woningindeling

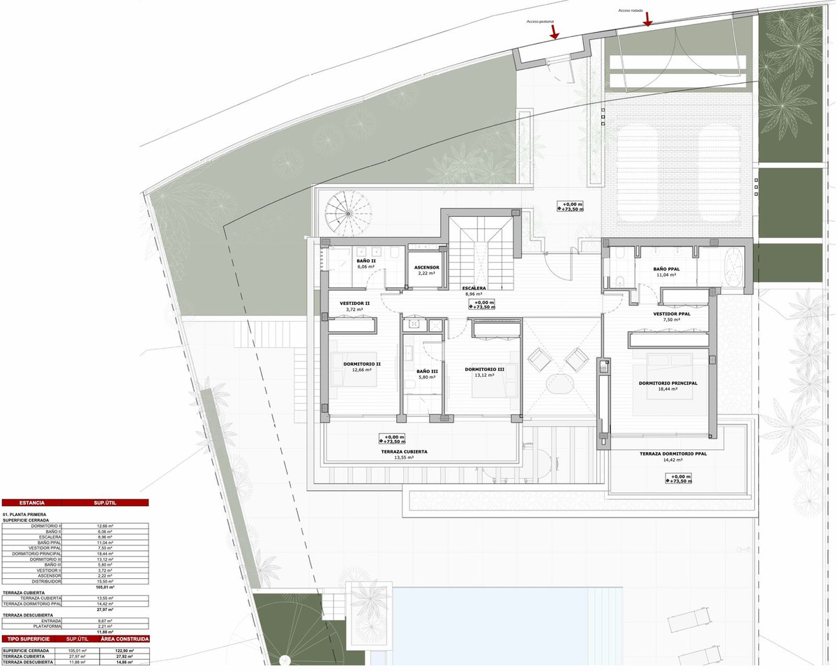
Dit perceel is specifiek geschikt voor de bouw van een vrijstaande villa, met een gedetailleerd uitvoeringsplan reeds beschikbaar. Het biedt de mogelijkheid om een woning van ongeveer 575 m² woonoppervlak te realiseren, inclusief aanzienlijke terrassen, gericht op comfort, luxe en een panoramisch uitzicht.

Projectstatus

Het betreft een bouwkavel met een reeds goedgekeurd uitvoeringsplan voor een luxevilla. De bouw kan starten na aankoop, met de mogelijkheid om een villa van drie verdiepingen (inclusief souterrain) te realiseren met een maximale hoogte van 7 meter. Er zijn momenteel drie percelen beschikbaar.

Aandachtspunten

Dit is een bouwkavel en bevat geen bestaande bebouwing. De bouwmogelijkheden zijn vastgelegd in een bebouwbaarheidsfactor van 0,25 en een bezettingsgraad van 30%, wat de maximale omvang van de te bouwen woning bepaalt. De locatie binnen een urbanisatie kan specifieke gebruiksregels met zich meebrengen.

Projectdetails

Projectnaam Residential Plot in Selwo
Stad Selwo
Regio Costa del Sol
Prijs €610.000
Woonoppervlak 575 m²
Gem. prijs per m² €1.060 / m²
Parkeren Nee
Zwembad Nee
Tuin Nee
Bouwstatus for_sale
Oplevering 1970
Gepubliceerd 2026-04-17

Ref: VL812665

Bron: Wikipedia, Wikidata, INE, Junta de Andalucía

Lifestyle & Omgeving

Dit bouwkavel is geschikt voor ontwikkelaars of particulieren die een luxe villa willen realiseren volgens een specifiek, reeds uitgewerkt plan. Het perceel biedt de mogelijkheid om een ruime woning te bouwen met veel leefruimte en terrassen, ideaal voor gezinnen die op zoek zijn naar een exclusieve verblijfplaats aan de Costa del Sol. De nabijheid van internationale scholen en medische centra maakt het ook aantrekkelijk voor expats die zich permanent willen vestigen. Voor investeerders vertegenwoordigt dit een kans om een hoogwaardig vastgoedobject te ontwikkelen in een gewilde regio, met een geplande bebouwing die gericht is op de hogere marktsegmenten.

Bouwkwaliteit & Afwerking

Het beschikbare uitvoeringsplan schetst een visie voor een luxevilla met een hoogwaardige afwerking, gericht op comfort en stijl. Kenmerken omvatten ruime, open leefruimtes, hoge plafonds en grote raampartijen die zorgen voor veel natuurlijk lichtinval. De plannen voorzien in moderne keukens, luxe badkamers en hoogwaardige materialen en details die de beoogde exclusiviteit weerspiegelen. De architectuur wordt gekenmerkt door een moderne stijl, met open ruimtes die naadloos overgaan in buitenterrassen, wat bijdraagt aan een verfijnde leefomgeving met panoramische uitzichten.

Prijs & Context

Prijs & Beschikbaarheid

De vraagprijs voor dit bouwkavel bedraagt €610.000. Dit betreft een van de drie beschikbare percelen in dit project. De prijs is indicatief en kan variëren afhankelijk van het specifieke perceel en de verkoopfase. Het perceelsoppervlak van 1128 m² biedt ruimte voor de ontwikkeling van een substantiële residentiële villa, conform het beschikbare uitvoeringsplan.

€610.000
Prijs
575 m²
Woonoppervlak

Context & Omgeving

Selwo, een wijk binnen de gemeente Estepona, positioneert zich als een rustige residentiële zone die toch centraal gelegen is ten opzichte van belangrijke stedelijke centra en kustvoorzieningen. Het is een gebied dat zowel voor permanente bewoning als voor recreatief verblijf aantrekkelijk is, mede dankzij de ligging tussen Marbella en Estepona. De nabijheid van golfbanen zoals La Resina Golf draagt bij aan de aantrekkingskracht voor liefhebbers van de sport. Dagelijkse behoeften zoals boodschappen zijn binnen een korte rit bereikbaar, terwijl het stedelijke centrum van Estepona met zijn restaurants, winkels en culturele aanbod op circa 8 km afstand ligt. De locatie belooft een levensstijl die rust combineert met gemakkelijke toegang tot de dynamiek van de Costa del Sol.

Informatie aanvragen

Locatie: Selwo

Wonen & Omgeving

Het leven in Selwo, nabij Estepona, wordt gekenmerkt door de nabijheid van zowel natuur als stedelijke voorzieningen. Het perceel ligt op 80 meter boven zeeniveau, wat potentieel bijdraagt aan een rustige ligging met vergezichten. De dagelijkse voorzieningen, zoals een supermarkt, bevinden zich op circa 2,9 km afstand, terwijl het centrum van Estepona met een breder aanbod aan winkels, restaurants en culturele activiteiten op ongeveer 8,3 km ligt. De aanwezigheid van 21 OV-haltes en 6 OV-lijnen in de nabije omgeving suggereert een zekere mate van openbaar vervoer, hoewel een auto voor veel verplaatsingen praktisch blijft gezien de afstanden tot voorzieningen en de stedelijke context.

Kaart & Locatie

Dit bouwkavel is strategisch gelegen in Selwo, een residentieel gebied aan de Costa del Sol. De nabijheid van golfbanen, stranden en stedelijke voorzieningen zoals Estepona en Marbella, biedt een gebalanceerde levensstijl tussen rust en activiteit.

Aerial view of a coastal city with a mix of urban and green areas.

Locatie in de regio

Dit perceel is gelegen in Selwo, een gebied dat deel uitmaakt van de gemeente Estepona, aan de westelijke Costa del Sol. Het project bevindt zich tussen de populaire bestemmingen Marbella en Estepona, wat toegang biedt tot een breed scala aan voorzieningen en recreatieve activiteiten. De regio staat bekend om zijn golfbanen, stranden en luxueuze residentiële projecten. Met een afstand van circa 41 km tot de internationale luchthaven van Málaga is de regio goed verbonden met de rest van Europa.

Bereikbaarheid & Voorzieningen

De bereikbaarheid van dit project is redelijk goed te noemen. De luchthaven van Málaga ligt op circa 41 km hemelsbreed, wat een directe verbinding biedt met internationale bestemmingen. Verschillende stranden, zoals Playa de Guadalmansa, liggen op ongeveer 3 km hemelsbreed, wat per auto goed te bereiken is. Voor golfers zijn er meerdere banen binnen een straal van 4 km, waaronder El Coto de la Serena Golf (1,7 km) en Flamingos Golf (2,9 km). Hoewel een auto handig is voor de meeste verplaatsingen, maken de aanwezige 21 OV-haltes en 6 OV-lijnen het mogelijk om bepaalde bestemmingen ook zonder auto te bereiken. De nabijheid van een ziekenhuis (1,1 km) en apotheek (2,3 km) draagt bij aan de dagelijkse praktische bruikbaarheid.

Gibraltar (GIB) 42 km
Malaga-Costa del Sol (AGP) 57 km

Bron: OpenStreetMap, Google Maps

Aerial view of a coastal resort with a marina, pool, and sea view.

Natuur & Klimaat

Beachfront room with ocean view, featuring a sandy beach, rocky shore, and lush greenery.

Selwo geniet van een mediterraan klimaat met gemiddelde temperaturen die variëren tussen 12°C en 27°C, en een gemiddelde jaartemperatuur van 18,8°C. Met historisch 3.848 zonuren per jaar, biedt de regio ruimschoots de gelegenheid voor buitenactiviteiten. Het zwemseizoen strekt zich uit over ongeveer 5 maanden, wanneer de zeewatertemperatuur de 20°C overschrijdt. De ligging op 80 meter hoogte en de zuidoostelijke oriëntatie van het perceel kunnen bijdragen aan aangename weersomstandigheden en uitzichten, met zowel berg- als zeezicht.

3848 Zonuren/jaar
5 Zwemseizoen (maanden)
18.8°C Gem. jaartemperatuur
80m Hoogte

Bron: Open-Meteo (2020–2025 gemiddelde)

Stranden & Recreatie

De kustlijn is nabij, met stranden zoals Playa de Guadalmansa op slechts 3,0 km hemelsbreed. Voor golfliefhebbers liggen diverse gerenommeerde banen op korte afstand: Club de Golf El Coto de la Serena (1,7 km), Flamingos Golf (2,9 km) en Tramores Golf (4,0 km). Er zijn ook diverse sportcentra in de omgeving, waaronder tennis- en padelclubs, en een paintballcentrum op circa 3,2 km. De aanwezigheid van meerdere jachthavens, zoals Puerto Estepona op 8,3 km, voegt maritieme recreatiemogelijkheden toe.

Stranden

  • Playa de Guadalmansa 3 km
  • Playa del Padron 3,3 km
  • Playa del Sol Villacana 3,5 km
  • Playa del Saladillo 3,9 km
  • Playa de Punta Plata 4,6 km

Golf

  • Club de Golf El Coto de la Serena 1,7 km
  • Flamingos Golf 2,9 km
  • Tramores Golf 4 km
  • El Paraiso Golf Clubhouse 4,8 km

Bron: OpenStreetMap

Aerial view of a coastal town with a sandy beach and ocean waves.

Locatie in de regio

Dit perceel is gelegen in Selwo, een gebied dat deel uitmaakt van de gemeente Estepona, aan de westelijke Costa del Sol. Het project bevindt zich tussen de populaire bestemmingen Marbella en Estepona, wat toegang biedt tot een breed scala aan voorzieningen en recreatieve activiteiten. De regio staat bekend om zijn golfbanen, stranden en luxueuze residentiële projecten. Met een afstand van circa 41 km tot de internationale luchthaven van Málaga is de regio goed verbonden met de rest van Europa.

Omgevingsgids: Selwo

Kernfeiten

Klimaat

Maand Gem. temperatuur Neerslag
Januari 12.3°C 96 mm
Februari 12.5°C 99 mm
Maart 14.6°C 89 mm
April 16.5°C 60 mm
Mei 18.5°C 47 mm
Juni 22.9°C 12 mm
Juli 26.9°C 1 mm
Augustus 27.3°C 2 mm
September 23.6°C 20 mm
Oktober 19.6°C 82 mm
November 15.6°C 119 mm
December 12.9°C 106 mm

Voorzieningen in de buurt

1 restaurant
1 pharmacy

Hoogte & Terrein

80m Hoogte

Bezienswaardigheden

Sportcentra

Golfbanen

Jachthavens

Ev Charging

Stranden

Zwembaden

Internationale Scholen

Transport & Bereikbaarheid

42 km Gibraltar (GIB)
57 km Malaga-Costa del Sol (AGP)
448 km Alicante-Elche (ALC)

Samenvatting

  • Bouwkavel van 1128 m² in Selwo, Málaga, met een startprijs van €610.000.
  • Strategisch gelegen nabij golfbanen (La Resina Golf, Flamingos Golf) en stranden (Playa de Guadalmansa op 3 km).
  • Beschikt over een uitvoeringsplan voor een luxe villa van 575 m² woonoppervlak plus terrassen.
  • Combineert een rustige woonomgeving met gemakkelijke toegang tot de voorzieningen van Estepona (ca. 8 km) en Marbella.
  • Goede bereikbaarheid met de luchthaven van Málaga op 41 km hemelsbreed.

Regionale vergelijking

Dit bouwkavel in Selwo positioneert zich met een prijs vanaf €610.000 binnen het middensegment van de aanbod aan bouwkavels aan de Costa del Sol, vergelijkbaar met de prijsstelling van Alba Benalmadena (€699.000) maar aanzienlijk hoger dan projecten als Aby Upper (€320.000) en Acqua Gardens (€418.800) in Estepona, die mogelijk kleinere percelen of een andere ontwikkelingsfase vertegenwoordigen. De locatie in Selwo biedt een goede balans tussen rust en nabijheid tot zowel de voorzieningen van Estepona als de meer exclusieve sfeer van Marbella. De specifieke kenmerken, zoals de nabijheid tot La Resina Golf en de mogelijkheid om een villa van 575 m² te bouwen, onderscheiden dit project van meer generieke kavels. Projecten zoals Acqua Gardens en Aby Upper, eveneens in Estepona, richten zich mogelijk op een breder segment of bieden reeds gerealiseerde woningen, terwijl Alba Benalmadena in een andere regio (Benalmádena) mogelijk een ander type omgeving en prijsniveau kent.

Veelgestelde vragen

Is dit perceel direct te bebouwen?
Ja, er is een uitvoeringsplan aanwezig voor een luxe villa. De bouw kan na aankoop starten, conform de bestemmingsplanvoorschriften.
Hoe ver is het naar de dichtstbijzijnde voorzieningen?
Een supermarkt ligt op 2,9 km. Een ziekenhuis bevindt zich op 1,1 km en een apotheek op 2,3 km afstand.
Wat is de maximale omvang van de te bouwen villa?
De bebouwbaarheidsfactor is 0,25 en de bezettingsgraad 30% op een perceel van 1128 m². Het uitvoeringsplan voorziet in een villa van 575 m² woonoppervlak plus terrassen.
Is dit een goede investering?
De locatie aan de Costa del Sol en de mogelijkheid tot het ontwikkelen van een luxe villa binnen een populaire regio worden doorgaans als investeringspotentieel beschouwd. Marktomstandigheden zijn echter variabel.
Welke sportfaciliteiten zijn er in de buurt?
Er zijn meerdere golfbanen binnen 4 km, waaronder La Resina Golf (1,7 km) en Flamingos Golf (2,9 km). Tevens zijn er tennisclubs en een paintballcentrum.
Zijn er bijkomende kosten naast de aankoopprijs van het perceel?
Naast de aankoopprijs van €610.000, zijn er kosten voor de bouw van de villa, zoals architect, aannemer, vergunningen en belastingen. Deze zijn niet inbegrepen.
Hoe verloopt het aankoopproces van een bouwkavel?
Het aankoopproces omvat doorgaans een reservering, due diligence, ondertekening van een koopcontract en de uiteindelijke overdracht bij de notaris. Voor bouwprojecten zijn specifieke vergunningen vereist.
Hoe ver is het naar de kust en stranden?
De dichtstbijzijnde stranden, zoals Playa de Guadalmansa, liggen op circa 3,0 km hemelsbreed.
Maiko
Maiko
Vastgoedexpert

Maiko is een vastgoedexpert die gespecialiseerd is in de Spaanse woningmarkt. Met diepgaande kennis van de Costa del Sol, Costa Blanca en andere populaire kustregio's helpt hij kopers bij het vinden van de juiste woning. Hij analyseert aanbod op basis van locatie, marktwaarde, bouwkwaliteit en leefbaarheid, en geeft eerlijk, datagedreven advies gedurende het hele aankoopproces.

Reactie binnen 24 uur

Geïnteresseerd?

Laat uw gegevens achter en wij nemen spoedig contact met u op met meer informatie over dit project.

Technische gegevens
Perceeloppervlakte: 1128 m².
Bebouwbaarheidsfactor: 0,25.
Bezettingsgraad: 30%.
Maximale bouwhoogte: 7 meter (PB+1).
Aantal beschikbare percelen: 3.

Gesprekgeschiedenis

Stel een vraag om te beginnen