Residential Plot in El Rosario in El Rosario — Residential Plot
Residential Plot

Bouwgrond te Koop in El Rosario, Málaga

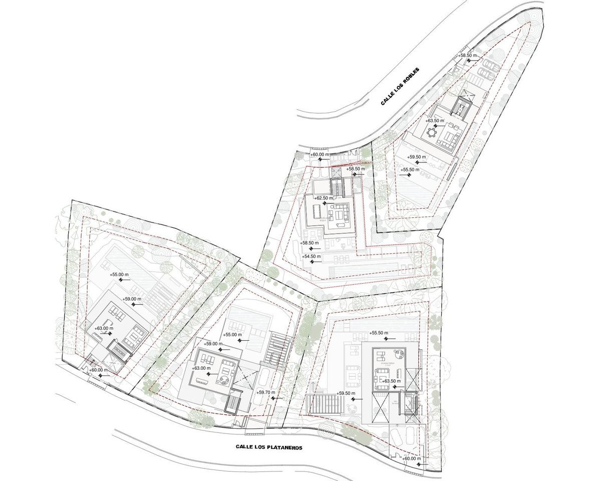
Dit bouwkavel, gelegen in El Rosario, Málaga, biedt een aanzienlijk perceel van 4443 m² voor de ontwikkeling van een exclusieve residentiële project. Met een vraagprijs van €2.150.000, is dit een kans voor ontwikkelaars en investeerders die zich richten op de hoogwaardige vastgoedmarkt aan de Costa del Sol. Het terrein is strategisch gepositioneerd met gemakkelijke toegang tot lokale voorzieningen en de kustlijn, wat de potentie voor een aantrekkelijke residentiële ontwikkeling onderstreept.

€2.150.000
2086 m²
Woonoppervlak
€2.150.000
Prijs
1,8 km
Afstand strand

Projectanalyse

Belangrijkste kenmerken van locatie, woningen, projectfase en aandachtspunten.

Locatie

Het perceel bevindt zich in El Rosario, een stedelijk gebied dat bekend staat om zijn nabijheid tot voorzieningen. De directe omgeving biedt een mix van residentiële rust en stedelijke gemakken, met diverse winkels en diensten op loopafstand. Dit maakt het een functionele locatie voor toekomstige bewoners.

Woningindeling

Dit bouwkavel is geschikt voor ontwikkelaars die luxe villa's willen realiseren, gericht op kopers die een ruime, privéwoning zoeken met uitzicht op zee en bergen. De grootte van het perceel biedt flexibiliteit voor exclusieve ontwerpen en landschapsarchitectuur, passend bij een hoogwaardige levensstijl.

Projectstatus

Dit is een bouwkavel, wat betekent dat de ontwikkeling volledig nieuw zal zijn. Het perceel is beschikbaar voor directe ontwikkeling, waardoor er geen bestaande constructie is die aangepast moet worden. Dit biedt een blanco canvas voor een nieuw residentieel project.

Aandachtspunten

Er zijn geen specifieke bouwbeperkingen vermeld in de projectdata. De omvang van het perceel (4443 m²) biedt echter aanzienlijke ruimte voor projectontwikkeling, mits voldaan wordt aan lokale bouwvoorschriften en bestemmingsplannen.

Lifestyle & Omgeving

Dit project is geschikt voor ontwikkelaars en investeerders met een visie voor luxe residentiële ontwikkeling aan de Costa del Sol. Het perceel leent zich voor de realisatie van meerdere hoogwaardige villa's, gericht op kopers die een exclusieve levensstijl zoeken dicht bij de zee en stedelijke voorzieningen. De locatie is aantrekkelijk voor internationale kopers die investeren in een gebied met bewezen waardestijging en een sterke toeristische aantrekkingskracht. Gezien de nabijheid van de luchthaven van Málaga (7.9 km) en diverse golfbanen, is het perceel ook ideaal voor projecten gericht op golfers en internationale reizigers. De omvang en ligging bieden ruimte voor een project dat zowel privacy als gemak combineert, inspelend op de vraag naar hoogwaardig vastgoed in een populaire regio.

Bouwkwaliteit & Afwerking

Als bouwkavel is de kwaliteit van de afwerking nog volledig te bepalen door de toekomstige ontwikkelaar. Het perceel biedt echter een solide basis voor hoogwaardige constructie, met een vlakke helling naar het strand (0.3%) wat de bouw vergemakkelijkt. De verwachte oriëntaties (Noord en Zuid) en uitzichten op zee en bergen suggereren de potentie voor architectonisch aantrekkelijke ontwerpen. De omgeving kenmerkt zich door een hoge concentratie aan luxe woningen, wat de verwachting schept dat toekomstige ontwikkelingen zullen aansluiten bij een hoog afwerkingsniveau. De nabijheid van diverse golfbanen en de stedelijke voorzieningen dragen bij aan de desirability van de locatie voor een premium residentiële ontwikkeling.

Prijs & Context

Prijs & Beschikbaarheid

Dit bouwkavel wordt aangeboden voor €2.150.000. De prijs is gerelateerd aan het royale perceeloppervlak van 4443 m², wat aanzienlijke ontwikkelingsmogelijkheden biedt. In de regio Málaga is de vastgoedmarkt, met name in luxe segmenten, stabiel met een verwachte jaarlijkse groei tussen de 4-6%. De recente prijsstijgingen per vierkante meter in vergelijkbare gebieden, zoals beschreven in de omgevingsinformatie, suggereren een gunstige marktomgeving voor investeringen in nieuwbouwprojecten. Dit perceel vertegenwoordigt een significante investeringsmogelijkheid voor grootschalige residentiële ontwikkeling.

€2.150.000
Prijs
2086 m²
Woonoppervlak

Context & Omgeving

El Rosario, Málaga, positioneert zich als een dynamische woonomgeving waar stedelijke gemakken samenkomen met de nabijheid van de Middellandse Zee. De locatie kenmerkt zich door een hoge concentratie aan voorzieningen, waaronder honderden restaurants, cafés en essentiële diensten zoals apotheken en banken, die zich grotendeels binnen een straal van 2 kilometer bevinden. Dit indiceert een omgeving die ontworpen is voor dagelijks gemak, waar veel van de dagelijkse benodigdheden te voet of per fiets bereikbaar zijn. De nabijheid van het strand, met Playa de San Andrés op 1.8 km afstand, voegt een recreatieve dimensie toe aan het dagelijks leven. Hoewel de omgeving stedelijk is, biedt de hoogte van 6 meter boven zeeniveau een zekere mate van openheid en uitzichtpotentieel. De aanwezigheid van 50 OV-lijnen en haltes suggereert een goede connectiviteit, hoewel de auto voor veel uitstapjes naar verder gelegen golfbanen of stadscentra waarschijnlijk de voorkeur geniet.

Informatie aanvragen

Locatie: El Rosario

Wonen & Omgeving

Het leven in El Rosario, Málaga, wordt gekenmerkt door een directe toegang tot stedelijke gemakken en de nabijheid van de kust. Met een supermarkt op slechts 73 meter afstand en een apotheek op 212 meter, zijn de dagelijkse benodigdheden direct beschikbaar. Restaurants, banken en cafés bevinden zich eveneens op loopafstand, wat een levendig en praktisch dagelijks leven mogelijk maakt. De omgeving is grotendeels vlak (6 meter boven zeeniveau, 0.3% helling naar strand), wat bijdraagt aan de toegankelijkheid te voet of per fiets. De 50 OV-lijnen en haltes garanderen een goede connectiviteit met de bredere regio, hoewel een auto voor uitstapjes naar golfbanen of de luchthaven handig blijft. De nabijheid van stranden zoals Playa de San Andrés (1.8 km) en de jachthaven IGY Málaga Marina (1.0 km) biedt volop recreatiemogelijkheden, wat bijdraagt aan een actieve levensstijl.

Kaart & Locatie

Dit bouwkavel is gesitueerd in El Rosario, een stedelijke zone binnen Málaga. De kaart toont de nabijheid tot de kustlijn, de luchthaven en de stad zelf. De omgeving is dichtbebouwd met een mix van residentiële en commerciële functies, wat de stedelijke karakter van de locatie benadrukt.

Alt text: Room with city view, large windows, modern decor, balcony access.

Locatie in de regio

El Rosario is gelegen in het oostelijke deel van Málaga, aan de Costa del Sol. Het project bevindt zich op een strategische positie ten opzichte van zowel het stadscentrum van Málaga als de omliggende kustplaatsen. De nabijheid van de luchthaven van Málaga (ongeveer 8 km) versterkt de connectiviteit met de rest van Spanje en Europa. De ligging biedt een balans tussen de levendigheid van de stad Málaga en de meer residentiële en toeristische sfeer van de Costa del Sol, met bekende badplaatsen binnen handbereik. Dit positioneert El Rosario als een toegankelijke en centraal gelegen locatie binnen de regio, ideaal voor zowel bewoners als bezoekers.

Bereikbaarheid & Voorzieningen

De bereikbaarheid van dit perceel in El Rosario is uitstekend. Het strand ligt op slechts 1.8 km hemelsbreed, wat een korte rit of fietstocht betekent. De luchthaven van Málaga-Costa del Sol bevindt zich op circa 8 km hemelsbreed, waardoor internationale reizen zeer toegankelijk zijn. Voor golfers zijn er diverse opties binnen een straal van 11 km, waaronder Club de Golf Málaga Parador (8.2 km). De stedelijke omgeving biedt een overvloed aan voorzieningen: een supermarkt op 73 meter, een apotheek op 212 meter, en honderden restaurants en cafés binnen 2 km. Met 50 OV-lijnen en haltes in de buurt is ook openbaar vervoer een optie, wat de mobiliteit vergroot zonder noodzakelijk een auto te gebruiken voor alle verplaatsingen.

Afstand strand 1,8 km
Malaga-Costa del Sol (AGP) 8 km
Gibraltar (GIB) 104 km

Bron: OpenStreetMap, Google Maps

Modern conference room with large windows, natural light, and city view.

Natuur & Klimaat

Two plaques on a stone wall commemorating historical figures and events.

El Rosario, Málaga, profiteert van een mediterraan klimaat met gemiddelde temperaturen die variëren tussen 12°C en 26°C, en een gemiddelde jaartemperatuur van 19.0°C. Met historisch 3.851 zonuren per jaar, biedt de regio een klimaat dat bevorderlijk is voor buitenactiviteiten gedurende een groot deel van het jaar. Het zwemseizoen strekt zich uit over 5 maanden, wanneer de watertemperatuur minimaal 20°C is. De ligging op slechts 6 meter boven zeeniveau en een zeer vlakke helling (0.3%) naar het strand, zorgt voor een aangenaam en toegankelijk landschap. De omgeving biedt uitzicht op de bergen, wat een natuurlijk contrast vormt met de nabijheid van de kustlijn. De kustlijn is overwegend zanderig, wat bijdraagt aan de aantrekkelijkheid voor recreatie.

3851 Zonuren/jaar
5 Zwemseizoen (maanden)
19.0°C Gem. jaartemperatuur
6m Hoogte

Bron: Open-Meteo (2020–2025 gemiddelde)

Stranden & Recreatie

De kustlijn nabij El Rosario, Málaga, biedt ruime recreatiemogelijkheden. Op 1.8 km hemelsbreed ligt Playa de San Andrés, een van de vele stranden in de nabijheid. Andere stranden zoals Playa de la Malagueta (1.3 km) en Playa de la Misericordia (3.2 km) zijn ook gemakkelijk bereikbaar. De aanwezigheid van de IGY Málaga Marina (1.0 km) en Marina Real Club Mediterráneo (1.6 km) duidt op een nautische omgeving, ideaal voor watersportliefhebbers. Voor landgebonden recreatie zijn er diverse sportcentra, waaronder Centro Municipal de Ajedrez (0.5 km) en Centro Wellness (0.7 km). De regio staat ook bekend om zijn golfmogelijkheden, met verschillende golfbanen binnen een bereik van 11 km, wat het tot een aantrekkelijke locatie maakt voor zowel strand- als golfenthousiastelingen.

Stranden

  • Playa de San Andrés 1,8 km
  • Playa de la Misericordia 3,2 km
  • Playa de los Baños del Carmen 3,8 km
  • Playa de Pedregalejo 4,6 km
  • Playa Sacaba Beach 4,6 km

Golf

  • Club de Golf Málaga Parador 8,2 km
  • Club de Golf de Guadalhorce 9,4 km
  • Campo de Golf Miguel Ángel Jiménez 11,1 km

Bron: OpenStreetMap

A bustling room with people in red robes, ornate lanterns, and a warm, lively atmosphere.

Locatie in de regio

El Rosario is gelegen in het oostelijke deel van Málaga, aan de Costa del Sol. Het project bevindt zich op een strategische positie ten opzichte van zowel het stadscentrum van Málaga als de omliggende kustplaatsen. De nabijheid van de luchthaven van Málaga (ongeveer 8 km) versterkt de connectiviteit met de rest van Spanje en Europa. De ligging biedt een balans tussen de levendigheid van de stad Málaga en de meer residentiële en toeristische sfeer van de Costa del Sol, met bekende badplaatsen binnen handbereik. Dit positioneert El Rosario als een toegankelijke en centraal gelegen locatie binnen de regio, ideaal voor zowel bewoners als bezoekers.

Omgevingsgids: El Rosario

Rosario of El Rosario kan verwijzen naar:

Kernfeiten

Klimaat

Maand Gem. temperatuur Neerslag
Januari 11.8°C 94 mm
Februari 12.0°C 97 mm
Maart 14.1°C 85 mm
April 15.9°C 56 mm
Mei 17.8°C 43 mm
Juni 22.0°C 11 mm
Juli 25.9°C 1 mm
Augustus 26.4°C 2 mm
September 22.7°C 19 mm
Oktober 18.9°C 80 mm
November 15.0°C 116 mm
December 12.4°C 104 mm

Voorzieningen in de buurt

384 restaurant
124 pharmacy
73 bank
157 cafe
26 dentist

Hoogte & Terrein

6m Hoogte
1,8 km Afstand strand
0.3% Helling naar strand

Vlak

Bezienswaardigheden

Uitzichtpunten

Sportcentra

Ev Charging

Golfbanen

Stranden

Jachthavens

Transport & Bereikbaarheid

8 km Malaga-Costa del Sol (AGP)
104 km Gibraltar (GIB)
383 km Alicante-Elche (ALC)

Projectdetails

Projectnaam Residential Plot in El Rosario
Stad El Rosario
Regio Costa del Sol
Prijs €2.150.000
Woonoppervlak 2086 m²
Gem. prijs per m² €1.030 / m²
Parkeren Nee
Zwembad Nee
Tuin Ja
Bouwstatus for_sale
Afstand strand 1,8 km
Oplevering 1970
Gepubliceerd 2026-04-17

Ref: VL657527

Bron: Wikipedia, Wikidata, INE, Junta de Andalucía

Samenvatting

  • Royale bouwkavel van 4443 m² in El Rosario, Málaga.
  • Strategische ligging nabij stranden, luchthaven en stedelijke voorzieningen.
  • Potentieel voor luxe residentiële ontwikkeling met zee- en berguitzicht.
  • Uitstekende bereikbaarheid met Málaga Airport op circa 8 km hemelsbreed.
  • Investeringsmogelijkheid in een stabiele en groeiende vastgoedmarkt aan de Costa del Sol.

Regionale vergelijking

In vergelijking met andere projecten aan de Costa del Sol, zoals Acqua Gardens en Aby Upper in Estepona, die starten vanaf respectievelijk €418.800 en €320.000, positioneert dit bouwkavel in El Rosario zich in een hogere prijsklasse (€2.150.000). Dit verschil is te verklaren door het aanzienlijk grotere perceeloppervlak (4443 m² versus de typische percelen voor appartementencomplexen of kleinere villa's in de genoemde projecten) en de specifieke locatie in een meer exclusieve zone nabij Marbella. Terwijl projecten in Estepona en Benalmádena (Alba Benalmadena, vanaf €699.000) zich richten op de verkoop van reeds gebouwde appartementen of huizen, biedt dit perceel de mogelijkheid tot volledig nieuwe, op maat gemaakte ontwikkeling. De prijs per vierkante meter voor het perceel is echter competitief wanneer men kijkt naar de potentie voor de ontwikkeling van meerdere luxe villa's. De regio El Rosario trekt een ander segment van kopers aan dan de meer toeristisch georiënteerde gebieden zoals Benalmádena, met een focus op ruimte, privacy en exclusiviteit, wat de hogere instapprijs voor ontwikkelingsgrond rechtvaardigt.

Veelgestelde vragen

Wat is de aard van dit project?
Het betreft een bouwkavel voor residentiële ontwikkeling.
Hoe ver is het naar de luchthaven?
De luchthaven Málaga-Costa del Sol ligt hemelsbreed circa 8 km verderop.
Is er een bouwvergunning inbegrepen?
De verstrekte data vermeldt geen specifieke informatie over een inbegrepen bouwvergunning.
Hoe is de vastgoedmarkt in deze regio?
De vastgoedmarkt in Málaga toont een stabiele groei, met een verwachte jaarlijkse waardestijging tussen 4-6% in de luxe segmenten.
Welke voorzieningen zijn er in de directe omgeving?
Er zijn diverse voorzieningen op loopafstand, waaronder een supermarkt (73 m) en apotheek (212 m). Binnen 2 km bevinden zich honderden restaurants, cafés en banken.
Wat is de prijs van dit bouwkavel?
De vraagprijs voor dit bouwkavel bedraagt €2.150.000.
Hoe verloopt het aankoopproces voor dit type grond?
Het aankoopproces voor bouwkavels volgt de algemene procedures voor onroerend goed transacties, inclusief onderhandeling, contracten en notariële akte. Specifieke details dienen met een juridisch adviseur te worden besproken.
Hoe dichtbij is het dichtstbijzijnde strand?
Het dichtstbijzijnde strand, Playa de San Andrés, ligt hemelsbreed 1.8 km van het perceel.
Maiko
Maiko
Vastgoedexpert

Maiko is een vastgoedexpert gespecialiseerd in de Spaanse woningmarkt. Met diepgaande kennis van de Costa del Sol, Costa Blanca en andere populaire kustregio's helpt hij kopers bij het vinden van de juiste woning. Hij analyseert aanbod op basis van locatie, marktwaarde, bouwkwaliteit en leefbaarheid, en geeft eerlijk, datagedreven advies gedurende het hele aankoopproces.

Reactie binnen 24 uur

Geïnteresseerd?

Laat uw gegevens achter en wij nemen spoedig contact met u op met meer informatie over dit project.

Technische gegevens
Perceeloppervlak: 4443 m².
Afstand tot supermarkt: 73 m.
Gemiddelde jaartemperatuur: 19.0°C.
Aantal zonuren per jaar: 3.851.
Hoogte: 6 meter boven zeeniveau.

Gesprekgeschiedenis

Stel een vraag om te beginnen