2 Bed Middle Floor Apartment in Fuengirola في Fuengirola — شقة
شقة

شقة Jade Tower للبيع في فوينخيرولا

يقع Jade Tower في قلب فوينخيرولا، ويوفر 116 شقة فاخرة وبنتهاوس على بعد خطوات قليلة من الشاطئ. يمزج هذا المشروع بين التصميم الحديث ونمط الحياة المتوسطي المريح، مع مساحات داخلية واسعة وشرفات كبيرة ومرافق مجتمعية عالمية المستوى. تم تصميمه لتلبية متطلبات أسلوب الحياة العصري، ويوفر مكانًا للعيش يجمع بين الراحة والملاءمة والفخامة.

€659,500
2
غرف النوم
2
الحمامات
83 m²
مساحة المعيشة
€659,500
Prijs
0.4 km
مسافة الشاطئ

تحليل المشروع

أهم خصائص الموقع، والوحدات، ومراحل المشروع، ونقاط الاهتمام.

الموقع

يقع Jade Tower في موقع متميز في فوينخيرولا، بالقرب من الواجهة البحرية ولكنه يتمركز أيضًا في قلب المدينة. يتيح هذا الموقع الفريد للسكان الاستمتاع بسهولة الوصول إلى الشاطئ مع تجربة حياة حضرية نابضة بالحياة، محاطين بمجموعة متنوعة من وسائل الراحة.

المخططات

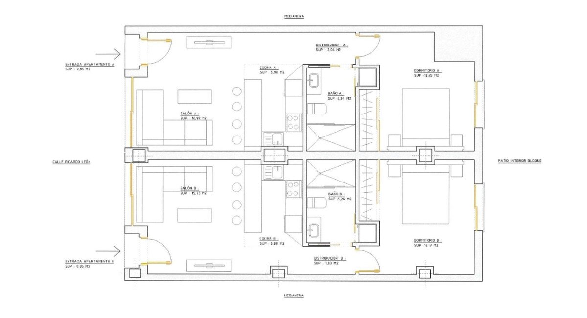
يقدم المشروع شققًا واسعة من غرفة إلى 3 غرف نوم، مع التركيز على المساحات الداخلية والتصميم المفتوح. تم تصميم الشرفات الكبيرة لتعظيم تجربة المعيشة المتوسطية. التشطيبات عالية الجودة، بما في ذلك أجهزة Neff وأسطح عمل Silestone، وبلاط Gunni & Trentino في الحمامات، تلبي المتطلبات الراقية للمقيمين المعاصرين.

حالة المشروع

Jade Tower هو مشروع بناء جديد يقدم 116 شقة حديثة. تم تصميم المشروع بعناية لتوفير وسائل الراحة الحديثة ومناطق خارجية متميزة. المشروع قيد التطوير حاليًا، ومن المتوقع أن يقدم مساكن عالية الجودة تلبي معايير البناء الحالية.

نقاط هامة

يركز المشروع بشكل أساسي على الإقامة الفاخرة والعطلات الطويلة، ولكنه قد لا يكون مناسبًا لأولئك الذين يبحثون عن هدوء ريفي تام أو نمط معماري معين. نظرًا لموقعه في وسط المدينة، قد يكون هناك بعض الضوضاء الحضرية المحيطة.

نمط الحياة

يعد Jade Tower مناسبًا للمشترين الدوليين الذين يبحثون عن نمط حياة متوسطي. يوفر الراحة الشاطئية والراحة الحديثة لأولئك الذين يرغبون في امتلاك منزل لقضاء العطلات في منطقة ساحلية مشمسة. كما أنه مناسب لأولئك الذين يبحثون عن مكان إقامة دائم ويرغبون في الاستمتاع بوسائل الراحة الحضرية النابضة بالحياة والسكن عالي الجودة. التشطيبات عالية الجودة، والمرافق المجتمعية الشاملة (مثل السبا، وصالة الألعاب الرياضية، والسينما)، والموقع الملائم (بالقرب من المطار والمدن المجاورة) تجعله خيارًا مثاليًا لأولئك الذين يقدرون جودة الحياة والراحة وخيارات الترفيه. سواء كان ذلك كمنزل عائلي لقضاء العطلات أو كمكان إقامة دائم يسعى لتغيير نمط الحياة، يوفر Jade Tower بيئة تلبي هذه المتطلبات.

الجودة والتشطيبات

يتميز Jade Tower بمعايير عالية من الجودة في البناء والتشطيب. تتميز الشقق بتصميم عصري مع التركيز على المساحة والضوء الطبيعي. تم تجهيز المطابخ بأجهزة Neff ذات العلامات التجارية المرموقة وأسطح عمل Silestone عالية الجودة، مما يوفر مساحة طهي فعالة وجذابة. تم الانتهاء من الحمامات ببلاط Gunni & Trentino الفاخر ومجهزة بخزائن مدمجة، مما يضيف لمسة من الأناقة والعملية. تضمن النوافذ ذات الزجاج المزدوج عزلًا صوتيًا وحراريًا ممتازًا. يضمن نظام تكييف الهواء (البارد/الساخن) بيئة معيشية مريحة على مدار العام. بالإضافة إلى ذلك، يوفر المجمع مواقف سيارات خاصة وغرف تخزين ومصاعد، مما يعزز راحة وأمان المعيشة. تشكل هذه التفاصيل مجتمعة تجربة معيشية عالية الجودة في Jade Tower.

البيئة ونمط الحياة

السعر والتوفر

يقدم Jade Tower شققًا بغرفة نوم واحدة إلى ثلاث غرف نوم، بأسعار تبدأ من 659,500 يورو. يتكون المشروع من 116 وحدة، وقد تختلف الأسعار حسب المساحة والطابق والاتجاه. كمشروع جديد، يعكس تسعيره موقعه المتميز، ومعايير البناء عالية الجودة، والمرافق المجتمعية الغنية. مقارنة بالمشاريع المتميزة الأخرى في المنطقة، يقدم Jade Tower سعرًا تنافسيًا، لا سيما بالنظر إلى قربه المباشر من الشاطئ والمرافق الشاملة. يجب على المشترين النظر في المواصفات والأسعار المحددة للشقق للعثور على الخيار الذي يناسب ميزانيتهم واحتياجاتهم.

€659,500
Prijs
2
غرف النوم
83 m²
مساحة المعيشة
2
الحمامات

البيئة المحيطة

يقع Jade Tower في قلب فوينخيرولا، وهو مشروع سكني يجمع بين الفخامة الحديثة وأسلوب الحياة المتوسطي المريح. يوفر المبنى 116 شقة على بعد 100 متر فقط من الشاطئ، مما يمنح السكان وصولاً سهلاً إلى الواجهة البحرية. يركز تصميم المشروع على الانتقال السلس بين المساحات الداخلية والخارجية، مع شرفات كبيرة توسع مساحة المعيشة، مما يسمح للمقيمين بالاستمتاع بالشمس وإطلالات البحر على أكمل وجه. التشطيبات عالية الجودة، بما في ذلك المطابخ المجهزة بالكامل (أجهزة Neff، أسطح Silestone) والحمامات الراقية (بلاط Gunni & Trentino)، تبرز رقي المشروع. بالإضافة إلى الوحدات السكنية، يقدم Jade Tower مجموعة واسعة من المرافق المجتمعية المصممة لتعزيز نوعية الحياة. يمكن للمقيمين الاستمتاع بالمسبح الخارجي، والسبا (مع ساونا، حمام تركي، جاكوزي)، وصالة ألعاب رياضية مجهزة بالكامل، ومساحة عمل مشتركة، وبار للمأكولات، وقاعة سينما. تخلق هذه المرافق معًا بيئة معيشية شبيهة بالمنتجع، تلبي احتياجات الاستجمام والتواصل الاجتماعي المتنوعة. تتمتع فوينخيرولا نفسها ببنية تحتية متطورة، بما في ذلك العديد من المطاعم والمتاجر والمدارس والمراكز الطبية، مما يضمن سهولة الحياة اليومية.

طلب معلومات

الموقع والبيئة: Fuengirola

البيئة والوصول

يقع Jade Tower في وسط مدينة فوينخيرولا، على مقربة من الشاطئ، مما يوفر نمط حياة يجمع بين الراحة الحضرية والاستجمام على شاطئ البحر. في نطاق 2 كم، توجد أكثر من 200 مطعم، وأكثر من 60 مقهى، و 36 صيدلية، و 27 بنكًا، تلبي الاحتياجات اليومية. يمكن الوصول بسهولة إلى معظم وسائل الراحة سيرًا على الأقدام أو بالدراجة، مما يشير إلى سهولة العيش في المنطقة. يقع سوبر ماركت على بعد 110 أمتار، وصيدلية على بعد 259 مترًا، ومستشفى على بعد 9.6 كم، مما يضمن سهولة الحياة وسلامتها. تقع ملاعب الجولف مثل Cerrado del Aguila Golf على بعد مسافة قصيرة بالسيارة. تتوفر العديد من المراكز الرياضية وحمامات السباحة في مكان قريب، مما يلبي احتياجات التمارين. توفر مدينة فوينخيرولا نفسها 15 مدرسة ابتدائية و 10 مدارس ثانوية، مما يوفر موارد تعليمية وفيرة. توفر 3,897 ساعة شمس سنوية ومتوسط درجة حرارة 18.7 درجة مئوية، بالإضافة إلى موسم سباحة مدته 4 أشهر، ظروفًا ممتازة للأنشطة الخارجية.

الخريطة والموقع

توضح هذه الخريطة موقع Jade Tower في وسط مدينة فوينخيرولا. يقع المشروع بالقرب من الشاطئ، مع سهولة الوصول إلى وسائل النقل ومحاط بمرافق حضرية وفيرة، بما في ذلك المطاعم والمتاجر والمراكز الرياضية ووسائل النقل العام. توضح الخريطة بصريًا موقعها المتميز لتخطيط الحياة اليومية والأنشطة الترفيهية.

Beachfront room with ocean view, featuring a private balcony and modern amenities.

الموقع الإقليمي

يقع Jade Tower في وسط مدينة فوينخيرولا، مقاطعة مالاغا، في منطقة كوستا ديل سول. تشتهر فوينخيرولا بأجوائها الحضرية النابضة بالحياة، والبنية التحتية المتطورة، والشواطئ الجميلة. لا يوفر الموقع المتميز للمشروع سهولة الوصول إلى المرافق المحلية فحسب، بل يتيح أيضًا سهولة الوصول إلى المدن الرئيسية المجاورة. يقع مطار مالاغا الدولي على بعد حوالي 19 كم، ومدينة ماربيا الشهيرة على بعد حوالي 30 دقيقة بالسيارة. هذا الموقع الاستراتيجي يجعل فوينخيرولا قاعدة مثالية لاستكشاف ساحل كوستا ديل سول بأكمله، بما في ذلك ثقافته وترفيهه ومناظره الطبيعية.

المرافق والوصول

يتمتع Jade Tower بموقع ملائم للغاية. تتراوح المسافة إلى الشواطئ من 276 إلى 715 مترًا، مما يوفر سهولة الوصول. يقع أقرب شاطئ، Playa del Castillo، على بعد 276 مترًا فقط. يقع مطار مالاغا (AGP) على بعد حوالي 19 كم (خط مستقيم)، وهو أمر مناسب للسفر الدولي. تقع محلات السوبر ماركت (110 م) والصيدليات (259 م) على مسافة قريبة. تقع المرافق الرياضية مثل Pabellón Juan Gómez Juanito و Complejo Deportivo Municipal Elola على بعد 0.6 كم فقط. يمكن لعشاق الجولف الوصول إلى Cerrado del Aguila Golf على بعد 3.3 كم. وسائل النقل العام متطورة، مع 33 محطة حافلات و 14 خط حافلات، وتقع محطة قطار فوينخيرولا على بعد 0.6 كم فقط. القيادة إلى المدن المجاورة مثل مالاغا (حوالي 30 دقيقة) وماربيا (حوالي 30 دقيقة) مريحة أيضًا، على الرغم من أن الكتيب يذكر 20 دقيقة إلى مالاغا، بينما المسافة الفعلية هي 19 كم.

مسافة الشاطئ 0.4 km
Malaga-Costa del Sol (AGP) 18 km
Gibraltar (GIB) 79 km
Fuengirola 0.6 km
Carvajal 3.5 km

المصدر: OpenStreetMap, Google Maps

Aerial view of a coastal city with a sandy beach and clear blue water.

الطبيعة والمناخ

Oceanfront apartment with balcony, city and beach views, modern amenities.

تتمتع فوينخيرولا بمناخ البحر الأبيض المتوسط، بمتوسط درجة حرارة سنوية 18.7 درجة مئوية، وتتراوح عادة بين 12 درجة مئوية و 26 درجة مئوية. توفر حوالي 3,897 ساعة شمس سنوية وفرة من ضوء الشمس، مما يجعلها مثالية للأنشطة الخارجية. تصل درجة حرارة مياه البحر في الصيف (حوالي 4 أشهر) إلى أكثر من 20 درجة مئوية، وهي مناسبة للسباحة. يقع المشروع على ارتفاع 15 مترًا فوق مستوى سطح البحر، بالقرب من الساحل، مما يعزز مناخًا معتدلًا. المنحدرات المعتدلة نسبيًا (3.0٪) تجعل المشي إلى الشاطئ أكثر راحة. هذه الظروف المناخية والموقع مثاليان للاستمتاع بأسلوب الحياة المتوسطي، بما في ذلك الرياضة والترفيه في الهواء الطلق.

3897 ساعات الشمس/سنة
4 موسم السباحة (أشهر)
18.7°C متوسط الحرارة السنوي
15m الارتفاع

المصدر: Open-Meteo (2020–2025 متوسط)

الشواطئ والترفيه

يمكن لسكان Jade Tower الاستمتاع بسهولة بموارد الساحل الغنية. تقع العديد من الشواطئ على بعد مسافة قصيرة سيرًا على الأقدام، بما في ذلك Playa de San Francisco (0.4 كم)، Playa del Castillo (0.276 كم)، Playa de Fuengirola (0.692 كم)، و Playa de Santa Amalia (0.715 كم). حصلت شواطئ Boliches-Gaviotas، Carvajal، Castillo-Ejido، Fuengirola على شهادة العلم الأزرق، مما يضمن جودة المياه والمرافق. تقع العديد من ملاعب الجولف على بعد 4 كم، مثل Cerrado del Aguila Golf و Campo Los Lagos. بالإضافة إلى ذلك، يوفر الحي العديد من المرافق الرياضية، بما في ذلك المراكز الرياضية وحمامات السباحة مثل Piscina María Peláez (0.5 كم)، مما يوفر مجموعة واسعة من خيارات الرياضة والترفيه. يقع المرسى Puerto Deportivo de Fuengirola على بعد 0.7 كم فقط، وهو مناسب للرياضات المائية.

شواطئ

  • Playa de San Francisco 0.4 km
  • Playa de los Boliches 1 km
  • Playa de Santa Amalia 1.2 km
  • Playa del Castillo 1.9 km
  • Playa Torreblanca-Carvajal Blue Flag 2.1 km
  • Playa Mati 2.8 km

Golf

  • Campo Los Lagos 4 km
  • Cerrado del Aguila Golf 4.5 km
  • Campo Los Olivos 4.7 km
  • El Chaparral Golf Club 5.4 km

مرافق رياضية

269 المرافق المتاحة

المصدر: Blue Flag 2026, OpenStreetMap, CSD

Beachfront room with ocean view, featuring a balcony and lounge chairs.

الموقع الإقليمي

يقع Jade Tower في وسط مدينة فوينخيرولا، مقاطعة مالاغا، في منطقة كوستا ديل سول. تشتهر فوينخيرولا بأجوائها الحضرية النابضة بالحياة، والبنية التحتية المتطورة، والشواطئ الجميلة. لا يوفر الموقع المتميز للمشروع سهولة الوصول إلى المرافق المحلية فحسب، بل يتيح أيضًا سهولة الوصول إلى المدن الرئيسية المجاورة. يقع مطار مالاغا الدولي على بعد حوالي 19 كم، ومدينة ماربيا الشهيرة على بعد حوالي 30 دقيقة بالسيارة. هذا الموقع الاستراتيجي يجعل فوينخيرولا قاعدة مثالية لاستكشاف ساحل كوستا ديل سول بأكمله، بما في ذلك ثقافته وترفيهه ومناظره الطبيعية.

دليل المنطقة: Fuengirola

Fuengirola is a city on the Costa del Sol in the province of Málaga in the autonomous community of Andalusia in southern Spain. It is located on the central coast of the province and integrated into the region of the Costa del Sol and the Commonwealth of Municipalities of the Costa del Sol Occidental.

حقائق أساسية

10.4 km² المساحة

المناخ

الشهر متوسط الحرارة معدل الأمطار
يناير 11.9°C 56 mm
فبراير 12.2°C 57 mm
مارس 14.2°C 46 mm
أبريل 16.1°C 31 mm
مايو 18.3°C 28 mm
يونيو 22.4°C 6 mm
يوليو 25.8°C 1 mm
أغسطس 26.2°C 2 mm
سبتمبر 22.9°C 9 mm
أكتوبر 19.1°C 51 mm
نوفمبر 15.2°C 74 mm
ديسمبر 12.6°C 66 mm

المرافق القريبة

205 restaurant
36 pharmacy
27 bank
1 park
63 cafe
9 dentist

الارتفاع والتضاريس

15m الارتفاع
0.4 km مسافة الشاطئ
3.0% الانحدار إلى الشاطئ

معتدل

معالم قريبة

Ev Charging

مراكز رياضية

شواطئ

موانئ ترفيهية

ملاعب الغولف

مسابح

النقل والوصول

18 km Malaga-Costa del Sol (AGP)
79 km Gibraltar (GIB)
407 km Alicante-Elche (ALC)
0.6 km Fuengirola
3.5 km Carvajal
6.2 km Torremuelle
0.7 km Terminal Autobus

تفاصيل المشروع

المشروع 2 Bed Middle Floor Apartment in Fuengirola
المدينة Fuengirola
المنطقة Costa del Sol
Prijs €659,500
مساحة المعيشة 83 m²
السعر لكل م² €7,945 / m²
التراس 23 m²
غرف النوم 2
الحمامات 2
موقف سيارات نعم
مسبح نعم
حديقة نعم
حالة البناء for_sale
مسافة الشاطئ 0.4 km
تاريخ الإنجاز 2024
تاريخ النشر 2026-04-19

Ref: VL210996

المصدر: Wikipedia, Wikidata, INE, Junta de Andalucía

ملخص

  • شقق فاخرة بغرفة نوم واحدة إلى ثلاث غرف نوم في قلب فوينخيرولا، كوستا ديل سول.
  • موقع متميز على الواجهة البحرية، على بعد 100 متر فقط من البحر.
  • تصميم عصري بمساحات داخلية واسعة وشرفات كبيرة.
  • مرافق مجتمعية واسعة: مسبح، سبا، صالة ألعاب رياضية، سينما، مساحة عمل مشتركة.
  • السعر يبدأ من 659,500 يورو، مع تشطيبات عالية الجودة.

مقارنة إقليمية

يتم وضع Jade Tower، بسعر يبدأ من 659,500 يورو، في الشريحة العليا من سوق شقق فوينخيرولا. مقارنة بـ Aura Higueron (ابتداءً من 669,000 يورو) و Carat (ابتداءً من 822,000 يورو)، يقدم Jade Tower سعرًا تنافسيًا، لا سيما بالنظر إلى قربه المباشر من الشاطئ والمرافق المجتمعية الشاملة. Higuerón Bay Residences، بسعر يبدأ من 580,000 يورو، هو خيار أكثر بأسعار معقولة، ولكنه قد يوفر وسائل راحة فاخرة أقل أو موقعًا أقل مركزية. فوينخيرولا نفسها وجهة سياحية وسكنية راسخة على كوستا ديل سول، وتشتهر بأجوائها الحيوية ومجموعة واسعة من وسائل الراحة. متوسط أسعار المنازل في مقاطعة مالاغا أقل، مما يشير إلى أن Jade Tower يستهدف المشترين الذين يبحثون عن مساكن متميزة مع التركيز على نمط الحياة والموقع. تستفيد المنطقة ككل من سهولة الوصول الممتازة والمناخ المعتدل والقطاع السياحي المزدهر، مما يدعم سوق العقارات.

الأسئلة الشائعة

هل هذا المشروع مناسب للإقامة الدائمة أم كمنزل لقضاء العطلات فقط؟
يوفر المشروع مرافق وتشطيبات مناسبة لكل من الإقامة الدائمة واستخدامها كمنزل لقضاء العطلات. يضمن القرب من وسائل الراحة والمناطق المشتركة الواسعة سهولة الحياة اليومية.
كم يبعد المشروع عن مطار مالاغا؟
يقع المشروع على بعد حوالي 19 كم خط مستقيم من مطار مالاغا-كوستا ديل سول (AGP).
ما هي أنظمة التدفئة والتبريد المثبتة؟
الشقق مزودة بتكييف هواء (بارد وساخن).
ما هي متوسط أسعار العقارات في فوينخيرولا مقارنة بهذا المشروع؟
يبدأ هذا المشروع من 659,500 يورو، مما يضعه في الشريحة العليا من سوق فوينخيرولا. متوسط الدخل في مقاطعة مالاغا هو 16,450 يورو، مما يشير إلى أن هذا المشروع يستهدف شريحة معينة من المشترين.
ما هي المرافق المشتركة المتاحة؟
يحتوي المجمع على مسبح خارجي، وسبا مع ساونا وحمام تركي وجاكوزي، وصالة ألعاب رياضية، ومساحة عمل مشتركة، وبار للمأكولات، وقاعة سينما.
هل هناك أي تكاليف إضافية بخلاف سعر الشراء؟
عند الشراء، تكون هناك تكاليف للضرائب ورسوم كاتب العدل والتسجيل. بالنسبة للشقق المملوكة بشكل مشترك، توجد تكاليف صيانة دورية مشتركة وضرائب بلدية (IBI).
ما هي عملية الشراء لهذا المشروع؟
تتضمن عملية الشراء القياسية حجزًا، وعقد شراء مع دفع جزء من السعر، وعقد التسليم النهائي لدى كاتب العدل بعد دفع المبلغ المتبقي.
كم يبعد أقرب ملعب جولف؟
يقع أقرب ملعب جولف، Cerrado del Aguila Golf، على بعد حوالي 3.3 كم في خط مستقيم.
Maiko
Maiko
خبير عقاري

مايكو خبير عقارات متخصص في سوق الإسكان الإسباني. بفضل معرفته العميقة بساحل كوستا ديل سول، وساحل كوستا بلانكا، والمناطق الساحلية الشهيرة الأخرى في إسبانيا، فإنه يساعد المشترين في العثور على العقار المناسب. يقوم بتحليل العروض بناءً على الموقع والقيمة السوقية وجودة البناء وقابلية السكن، ويقدم نصائح صادقة ومستندة إلى البيانات طوال عملية الشراء بأكملها.

رد خلال 24 ساعة

مهتم؟

اترك بياناتك واحصل على معلومات عن التوفر، والأسعار، والمخططات.

المواصفات الفنية
يتكون المشروع من 116 شقة.
شقق بغرفة أو غرفتي أو ثلاث غرف نوم.
يحتوي المجمع على مسبح خارجي وسبا وصالة ألعاب رياضية.
شرفات ذات اتجاه جنوبي غربي.
مبنى جديد مع موقف سيارات خاص.

Conversation history

Ask a question to start