2 Bed Middle Floor Apartment in Fuengirola في Fuengirola — شقة
شقة

Core Higueron 2 شقق للبيع في فوينخيرولا

Core Higueron 2 هو مشروع سكني حصري يقع في فوينخيرولا، مقاطعة مالاغا. يقدم المشروع شققًا بغرفتي نوم بأسعار تبدأ من 699,900 يورو، ومن المتوقع الانتهاء منه في الربع الرابع من عام 2027. يهدف المشروع إلى الجمع بين الهندسة المعمارية الحديثة ونمط الحياة المتوسطي، ويوفر مجموعة من المرافق عالية الجودة وموقعًا مناسبًا.

€699,900
2
غرف النوم
2
الحمامات
105 m²
مساحة المعيشة
€699,900
Prijs
0.4 km
مسافة الشاطئ

تحليل المشروع

أهم خصائص الموقع، والوحدات، ومراحل المشروع، ونقاط الاهتمام.

الموقع

يقع المشروع في مجتمع El Higuerón، بالقرب من الساحل، مع توفر وسائل الراحة اليومية في متناول اليد. بينما يوفر قربًا من وسائل الراحة الحضرية، فإنه يحتفظ ببيئة سكنية هادئة. يوفر الموقع سهولة العيش على الواجهة البحرية مع سهولة الوصول إلى المناطق المحيطة.

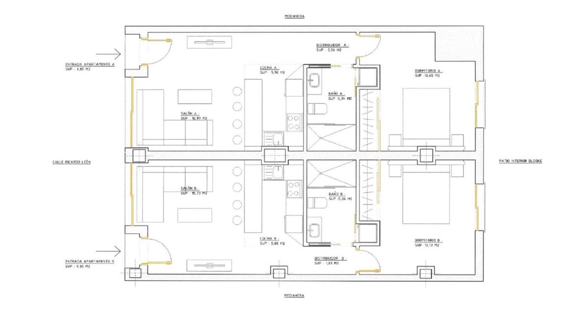
المخططات

تم تصميم الشقق في Core Higueron 2 للمشترين الدوليين الذين يبحثون عن الراحة والأناقة. توفر كل وحدة مساحات معيشة واسعة وشرفات خاصة، مما يجعلها مثالية للاستمتاع بالمناخ المتوسطي. يتميز المشروع بمرافق فاخرة مثل مسابح اللانهاية والصالة الرياضية والسبا.

حالة المشروع

Core Higueron 2 هو تطوير جديد من المتوقع الانتهاء منه في الربع الرابع من عام 2027. يتميز المشروع بهندسته المعمارية المتطورة ومواده عالية الجودة. ينقسم المشروع إلى مراحل متعددة، حيث تشمل المرحلة الأولى 78 وحدة سكنية موزعة على مبنيين مميزين.

نقاط هامة

تستهدف الشقق في Core Higueron 2 في المقام الأول المشترين الذين يبحثون عن نمط حياة معين. قد يكون الموقع في منطقة ضواحي نسبياً أكثر ملاءمة لمن يمتلكون وسائل نقل خاصة. في حين أن هناك شواطئ قريبة، إلا أن الوصول إلى وسط المدينة قد يستغرق بعض الوقت.

نمط الحياة

Core Higueron 2 مناسب للمشترين الدوليين الذين يبحثون عن نمط الحياة المتوسطي والذين يقدرون جودة البناء العالية والمرافق الشاملة والموقع المتميز. إنه خيار رائع لأولئك الذين يرغبون في الاستمتاع بالأنشطة الخارجية في بيئة مشمسة، بالقرب من الشواطئ وملاعب الجولف، مع سهولة الوصول إلى مطار مالاغا (حوالي 18 كم). يعد المشروع جذابًا بشكل خاص لأولئك الذين يبحثون عن شقق حديثة مع شرفات خاصة وإطلالات على البحر والجبال. مع الانتهاء المتوقع في الربع الرابع من عام 2027، هناك متسع من الوقت لأولئك الذين يخططون لإقامتهم المستقبلية أو استثماراتهم.

الجودة والتشطيبات

يتميز بناء Core Higueron 2 بجودة عالية، باستخدام أفضل المواد وتقنيات البناء المتطورة. يشتهر المشروع بطرازه المعماري الحديث وتركيزه على دمج الهندسة المعمارية مع الطبيعة. تشمل التشطيبات الداخلية أرضيات وبلاطًا عالي الجودة، مثل سلسلة Shilin من NEOLITH®، المستوحاة من ملمس الحجر الرقيق. تم تجهيز المطابخ بأثاث NOLTE®، مع خيارات تخصيص واسعة. تم تجهيز المشروع أيضًا بمجموعة كاملة من وسائل الراحة مثل تكييف الهواء، والزجاج المزدوج، والاتصال بالألياف البصرية، مما يضمن تجربة معيشة مريحة ومناسبة.

البيئة ونمط الحياة

السعر والتوفر

تبدأ أسعار الشقق المكونة من غرفتي نوم في Core Higueron 2 من 699,900 يورو. يتضمن المشروع ما مجموعه 78 وحدة سكنية موزعة على مبنيين مميزين. قد تختلف الأسعار المحددة اعتمادًا على حجم الوحدة واتجاهها وطابقها. يشير حجم المعاملات العقارية إلى سوق نشط في المنطقة، وتشير الفئة السعرية المرتفعة إلى أن المشروع موجه نحو الشريحة العليا، ويستهدف المشترين الذين يبحثون عن نمط حياة فاخر.

€699,900
Prijs
2
غرف النوم
105 m²
مساحة المعيشة
2
الحمامات

البيئة المحيطة

منطقة El Higuerón، التي تضم Core Higueron 2 في فوينخيرولا (مقاطعة مالاغا)، هي خيار مثالي لأولئك الذين يبحثون عن توازن بين سهولة الوصول والبيئة الهادئة. تتمتع المنطقة ببنية تحتية متطورة، بما في ذلك المتاجر والمطاعم والمدارس، وتقع على بعد مسافة قصيرة بالسيارة من الساحل. يبلغ متوسط درجة الحرارة بين 12 درجة مئوية و 26 درجة مئوية، مع وفرة من أشعة الشمس، مما يجعلها مثالية للأنشطة الخارجية. يبلغ عدد سكان المنطقة حوالي 85,211 نسمة، مع 2,391 معاملة عقارية، مما يدل على سوق نشط. مع 3897 ساعة من أشعة الشمس سنويًا، تعد المنطقة مناسبة لنمط الحياة المتوسطي على مدار العام. تضم المنطقة أيضًا 4 شواطئ تحمل العلم الأزرق، مما يوفر للمقيمين تجربة شاطئية عالية الجودة.

طلب معلومات

الموقع والبيئة: Fuengirola

البيئة والوصول

يوفر Core Higueron 2، الواقع في مجتمع El Higuerón في فوينخيرولا (مقاطعة مالاغا)، للمقيمين نمط حياة متوازن يجمع بين القرب من الساحل ووسائل الراحة الحضرية. المنطقة مجهزة جيدًا، حيث تضم 205 مطاعم و 63 مقهى و 36 صيدلية و 9 أطباء أسنان في دائرة نصف قطرها 2 كم، مما يلبي الاحتياجات اليومية. بالإضافة إلى ذلك، تضم المنطقة 15 مدرسة ابتدائية و 10 مدارس ثانوية، مما يوفر خيارات تعليمية للعائلات. بالنسبة لعشاق الرياضة، هناك 269 مرفقًا رياضيًا قريبًا، بما في ذلك حمامات السباحة والمراكز الرياضية وملاعب الجولف.

الخريطة والموقع

توضح هذه الخريطة الموقع الاستراتيجي لـ Core Higueron 2 في فوينخيرولا. وهي تسلط الضوء على قرب المشروع من الساحل والشواطئ الرئيسية، بالإضافة إلى المسافة إلى المدن الأخرى والمراكز الهامة مثل مطار مالاغا. تحدد الخريطة أيضًا وسائل الراحة والترفيه القريبة، مما يوفر للمشترين المحتملين نظرة بصرية على نمط الحياة في المنطقة.

Beachfront room with ocean view, featuring a private balcony and modern amenities.

الموقع الإقليمي

يقع Core Higueron 2 في فوينخيرولا، مقاطعة مالاغا، في مجتمع أندلوسيا المستقل في جنوب إسبانيا. فوينخيرولا هي مدينة ساحلية رئيسية على الساحل الأوسط لكوستا ديل سول، وهذا المشروع هو جزء من منطقة كوستا ديل سول. تقع بين مدينتي مالاغا (27 كم) وماربيا (35 كم)، مما يجعلها قاعدة مناسبة لاستكشاف المناطق المحيطة والاستمتاع بكل ما تقدمه كوستا ديل سول.

المرافق والوصول

يتمتع المشروع بموقع مناسب، حيث يبعد مطار مالاغا-كوستا ديل سول (AGP) حوالي 18 كم (مسافة طيران). يقع أقرب شاطئ، بلايا دي سان فرانسيسكو، على بعد 400 متر فقط، وشواطئ أخرى ضمن 2.4 كم. وسائل النقل العام جيدة، مع 14 خط حافلات و 33 محطة للحافلات. أقرب محطة قطار هي فوينخيرولا (0.6 كم). يقع المشروع على بعد 1.5 كم من السوبر ماركت و 4.0 كم من المستشفى. يمكن لعشاق الجولف العثور على Golf Benalmadena Pitch& Putt على بعد 4.3 كم.

مسافة الشاطئ 0.4 km
Malaga-Costa del Sol (AGP) 18 km
Gibraltar (GIB) 79 km
Fuengirola 0.6 km
Carvajal 3.5 km

المصدر: OpenStreetMap, Google Maps

Aerial view of a coastal city with a sandy beach and clear blue water.

الطبيعة والمناخ

Oceanfront apartment with balcony, city and beach views, modern amenities.

يتمتع Core Higueron 2 بمناخ البحر الأبيض المتوسط المعتدل في فوينخيرولا، بمتوسط درجة حرارة سنوية 18.7 درجة مئوية، ويصل إلى 26 درجة مئوية في الصيف. تتمتع المنطقة بـ 3897 ساعة من أشعة الشمس سنويًا، مما يجعلها مثالية للأنشطة الخارجية. يستمر موسم السباحة لمدة 4 أشهر، حيث تصل درجة حرارة المياه عادةً إلى 20 درجة مئوية أو أعلى. يضم المشروع نفسه أكثر من 100,000 متر مربع من الحدائق البيئية والمناطق الخضراء، مما يوفر بيئة طبيعية هادئة.

3897 ساعات الشمس/سنة
4 موسم السباحة (أشهر)
18.7°C متوسط الحرارة السنوي
15m الارتفاع

المصدر: Open-Meteo (2020–2025 متوسط)

الشواطئ والترفيه

يقع Core Higueron 2 بالقرب من العديد من الشواطئ الشهيرة، بما في ذلك بلايا دي سان فرانسيسكو (400 متر)، بالإضافة إلى بلايا دي توربلانكا وبلايا توربلانكا-كارفاجال (1.7 كم و 2.4 كم على التوالي). تضم منطقة فوينخيرولا 4 شواطئ تحمل العلم الأزرق، مما يضمن جودة عالية للمياه والمرافق. لعشاق الجولف، تقع العديد من ملاعب الجولف القريبة، بما في ذلك Golf Benalmadena Pitch& Putt (4.3 كم) و Campo Los Lagos (6.9 كم). بالإضافة إلى ذلك، هناك العديد من المراكز الرياضية وحمامات السباحة التي توفر مجموعة واسعة من خيارات الترفيه.

شواطئ

  • Playa de San Francisco 0.4 km
  • Playa de los Boliches 1 km
  • Playa de Santa Amalia 1.2 km
  • Playa del Castillo 1.9 km
  • Playa Torreblanca-Carvajal Blue Flag 2.1 km
  • Playa Mati 2.8 km

Golf

  • Campo Los Lagos 4 km
  • Cerrado del Aguila Golf 4.5 km
  • Campo Los Olivos 4.7 km
  • El Chaparral Golf Club 5.4 km

مرافق رياضية

269 المرافق المتاحة

المصدر: Blue Flag 2026, OpenStreetMap, CSD

Beachfront room with ocean view, featuring a balcony and lounge chairs.

الموقع الإقليمي

يقع Core Higueron 2 في فوينخيرولا، مقاطعة مالاغا، في مجتمع أندلوسيا المستقل في جنوب إسبانيا. فوينخيرولا هي مدينة ساحلية رئيسية على الساحل الأوسط لكوستا ديل سول، وهذا المشروع هو جزء من منطقة كوستا ديل سول. تقع بين مدينتي مالاغا (27 كم) وماربيا (35 كم)، مما يجعلها قاعدة مناسبة لاستكشاف المناطق المحيطة والاستمتاع بكل ما تقدمه كوستا ديل سول.

دليل المنطقة: Fuengirola

Fuengirola is a city on the Costa del Sol in the province of Málaga in the autonomous community of Andalusia in southern Spain. It is located on the central coast of the province and integrated into the region of the Costa del Sol and the Commonwealth of Municipalities of the Costa del Sol Occidental.

حقائق أساسية

10.4 km² المساحة

المناخ

الشهر متوسط الحرارة معدل الأمطار
يناير 11.9°C 56 mm
فبراير 12.2°C 57 mm
مارس 14.2°C 46 mm
أبريل 16.1°C 31 mm
مايو 18.3°C 28 mm
يونيو 22.4°C 6 mm
يوليو 25.8°C 1 mm
أغسطس 26.2°C 2 mm
سبتمبر 22.9°C 9 mm
أكتوبر 19.1°C 51 mm
نوفمبر 15.2°C 74 mm
ديسمبر 12.6°C 66 mm

المرافق القريبة

205 restaurant
36 pharmacy
27 bank
1 park
63 cafe
9 dentist

الارتفاع والتضاريس

15m الارتفاع
0.4 km مسافة الشاطئ
3.0% الانحدار إلى الشاطئ

معتدل

معالم قريبة

Ev Charging

مراكز رياضية

شواطئ

موانئ ترفيهية

ملاعب الغولف

مسابح

النقل والوصول

18 km Malaga-Costa del Sol (AGP)
79 km Gibraltar (GIB)
407 km Alicante-Elche (ALC)
0.6 km Fuengirola
3.5 km Carvajal
6.2 km Torremuelle
0.7 km Terminal Autobus

تفاصيل المشروع

المشروع Core Higueron 2
المدينة Fuengirola
المنطقة Costa del Sol
Prijs €699,900
مساحة المعيشة 105 m²
السعر لكل م² €6,665 / m²
التراس 67 m²
غرف النوم 2
الحمامات 2
موقف سيارات نعم
مسبح نعم
حديقة نعم
حالة البناء for_sale
مسافة الشاطئ 0.4 km
تاريخ الإنجاز Q4 2027
تاريخ النشر 2026-04-19

Ref: VL975094

المصدر: Wikipedia, Wikidata, INE, Junta de Andalucía

ملخص

  • مشروع سكني حصري يقدم شقق بغرفتي نوم بأسعار تبدأ من 699,900 يورو.
  • يقع في منطقة El Higuerón بفوينخيرولا (مالاغا)، بالقرب من الساحل.
  • من المتوقع الانتهاء منه في الربع الرابع من عام 2027، ويتميز بهندسة معمارية حديثة ومرافق فاخرة.
  • يوفر إطلالات بانورامية على البحر الأبيض المتوسط، مع مسابح لانهاية وصالة رياضية وسبا.
  • موقع مناسب، يبعد حوالي 18 كم عن مطار مالاغا، وبالقرب من الشواطئ وملاعب الجولف.

مقارنة إقليمية

يقع Core Higueron 2 في فوينخيرولا، وهو متشابه مع مشاريع أخرى مثل Aura Higueron (تبدأ من 669,000 يورو) و Higuerón Bay Residences (تبدأ من 580,000 يورو)، والتي تركز جميعها على تقديم تجربة معيشية ساحلية حديثة. ومع ذلك، يتم وضع مشروع Carat (يبدأ من 822,000 يورو) في فئة أعلى. يشير النطاق السعري لـ Core Higueron 2 إلى أنه يوفر جودة بناء ومرافق راقية، بما في ذلك مسابح اللانهاية والسبا، والتي تتماشى مع مرافق Aura Higueron. قد يعني السعر المبدئي الأقل لـ Higuerón Bay Residences أنه يوفر مرافق أو معايير بناء مختلفة قليلاً. يشتهر مجتمع El Higuerón بعقاراته الفاخرة، ويتماشى Core Higueron 2 مع تحديد الموقع العام للمنطقة كوجهة فاخرة. مقارنة بالمشاريع الأخرى على طول كوستا ديل سول، يمثل سعر Core Higueron 2 استثمارًا في الجودة والموقع ونمط الحياة، في حين أن تطويره الجديد نسبيًا وتاريخ الانتهاء المتوقع (نهاية عام 2027) يضيفان إلى جاذبيته.

الأسئلة الشائعة

هل توجد مراكز تسوق كبيرة أو مناطق تجارية قريبة من مشروع Core Higueron 2؟
يوجد 205 مطعم و 63 مقهى و 36 صيدلية في دائرة نصف قطرها 2 كم من المشروع، ولكن لا توجد إشارة إلى مراكز تسوق كبيرة. يقع أقرب سوبر ماركت على بعد 1.5 كم.
ما هي سهولة الوصول إلى Core Higueron 2؟
يقع المشروع على بعد حوالي 18 كم (مسافة طيران) من مطار مالاغا، و 0.6 كم من محطة قطار فوينخيرولا، مع 14 خط حافلات و 33 محطة حافلات. سيكون امتلاك سيارة مفيدًا.
ما هي خصائص جودة البناء والمواد المستخدمة في Core Higueron 2؟
يتميز المشروع بمواد عالية الجودة وتقنيات بناء متطورة، مع استخدام علامات تجارية مثل NEOLITH® و NOLTE®.
من هو الجمهور المستهدف لـ Core Higueron 2؟
يستهدف المشروع بشكل أساسي المشترين الدوليين الذين يبحثون عن نمط حياة عصري عالي الجودة على الواجهة البحرية، والذين يقدرون المرافق الفاخرة والموقع المتميز.
ما هي المرافق المجتمعية المتوفرة في Core Higueron 2؟
يوفر المشروع مسبحين بانوراميين، وصالة رياضية، وسبا، وملاعب تنس، وملعب جولف مصغر.
ما هو النطاق السعري للشقق في Core Higueron 2؟
تبدأ أسعار الشقق المكونة من غرفتي نوم من 699,900 يورو.
ما هي عملية شراء Core Higueron 2؟
لم يتم تحديد تفاصيل عملية الشراء في البيانات المقدمة، ولكن من المتوقع الانتهاء منها في الربع الرابع من عام 2027.
ما مدى قرب Core Higueron 2 من الشاطئ؟
يقع أقرب شاطئ، بلايا دي سان فرانسيسكو، على بعد 400 متر فقط من المشروع، وتقع الشواطئ الأخرى ضمن مسافة 2.4 كم.
Maiko
Maiko
خبير عقاري

مايكو خبير عقاري متخصص في سوق العقارات الإسباني. بفضل معرفته العميقة بكوستا ديل سول وكوستا بلانكا والمناطق الساحلية الشهيرة الأخرى، يساعد المشترين في العثور على العقار المناسب. يقوم بتحليل العروض بناءً على الموقع والقيمة السوقية وجودة البناء وقابلية السكن، ويقدم نصائح صادقة تستند إلى البيانات طوال عملية الشراء.

رد خلال 24 ساعة

مهتم؟

اترك بياناتك واحصل على معلومات عن التوفر، والأسعار، والمخططات.

المواصفات الفنية
من المتوقع الانتهاء من المشروع في الربع الرابع من عام 2027.
الشقق تتكون من غرفتي نوم وحمامين.
تبلغ مساحة المعيشة الإجمالية 105 متر مربع.
السعر يبدأ من 699,900 يورو.
يشمل المشروع مسابح مشتركة وصالة رياضية.

Conversation history

Ask a question to start