3 Bed Middle Floor Apartment in Fuengirola w Fuengirola — Apartament
Apartament

Apartament w Fuengiroli na Sprzedaż

Ten nowoczesny apartament w Fuengiroli, na Costa del Sol, oferuje 93 m² powierzchni mieszkalnej z trzema sypialniami i dwoma łazienkami. Z orientacją południowo-południowo-zachodnią, cieszy się optymalnym naturalnym światłem i widokiem na morze. Kompleks mieszkaniowy jest nowo wybudowany i w doskonałym stanie. Centralna lokalizacja zapewnia, że wiele udogodnień znajduje się w zasięgu spaceru, a plaża jest zaledwie kilka minut spacerem od obiektu. Ta nieruchomość stanowi atrakcyjną opcję dla kupujących poszukujących połączenia nowoczesnego komfortu mieszkaniowego i śródziemnomorskiego stylu życia.

€549.000
3
Sypialnie
2
Łazienki
93 m²
Powierzchnia
€549.000
Prijs
0,4 km
Dystans do plaży

Analiza projektu

Kluczowe cechy lokalizacji, domów, etapu budowy i uwagi.

Lokalizacja

Apartament znajduje się w miejskim otoczeniu Fuengiroli, zaledwie kilka minut spacerem od plaży. Supermarkety, restauracje i transport publiczny znajdują się w bezpośrednim sąsiedztwie. Ta lokalizacja zapewnia wysoki stopień wygody dla codziennych potrzeb i aktywności rekreacyjnych, nie rezygnując z bliskości Morza Śródziemnego.

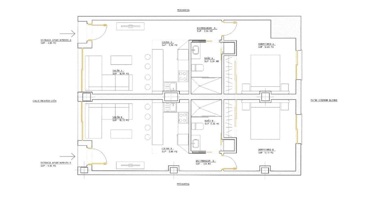
Układ

Dla kupujących ceniących komfort i nowoczesny styl życia, ten apartament oferuje przemyślany rozkład pomieszczeń z trzema sypialniami i dwiema łazienkami. Otwarty układ salonu i jadalni oraz zadaszony taras sprzyjają towarzyskości i oferują przestrzeń do relaksu. Udogodnienia kompleksu, takie jak basen i siłownia, uzupełniają jakość życia.

Status projektu

Projekt jest w fazie budowy i jest klasyfikowany jako nowy budynek. Apartamenty są w doskonałym stanie i reprezentują najnowsze standardy budowlane. Zakończenie budowy przewidywane jest w najbliższej przyszłości, co daje kupującym możliwość nabycia nieruchomości z najnowszymi technologiami i designem, zgodnym z aktualnymi wymogami rynku.

Ważne uwagi

Projekt nie oferuje prywatnych miejsc parkingowych, jedynie wspólne możliwości parkowania. Apartament nie jest odpowiedni dla kupujących preferujących wiejskie lub odosobnione otoczenie, ponieważ znajduje się w obszarze miejskim. Ponadto, w projekcie nie opisano żadnych specjalnych przepisów dotyczących zwierząt domowych. Podane odległości są pomiarami w linii prostej; rzeczywisty czas jazdy może się różnić.

Styl życia i okolica

Ten apartament jest odpowiedni dla osób preferujących centralną, a jednocześnie bliską plaży lokalizację. Jest idealny dla par lub małych rodzin, które cenią życie miejskie, ale nie chcą rezygnować z bliskości morza. Trzy sypialnie oferują elastyczność dla gości lub domowego biura. Nowoczesne wyposażenie i wspólne udogodnienia, takie jak basen i siłownia, przyciągają kupujących ceniących komfort i aktywny styl życia. Również dla inwestorów celujących w wynajem wakacyjny, lokalizacja w atrakcyjnym turystycznie mieście, jakim jest Fuengirola, stanowi zaletę. Dobra dostępność do lotnisk i bliskość pól golfowych czynią go atrakcyjnym również dla częstych gości.

Jakość i wykończenie

Apartament wyróżnia się wysokiej jakości i nowoczesnym wykończeniem. Jest klasyfikowany jako nowy budynek i jest w doskonałym stanie. Wnętrze obejmuje klimatyzację (zimną i ciepłą) oraz ogrzewanie podłogowe w łazienkach, zapewniając komfort przez cały rok. Duże okna, szczególnie w salonie, wpuszczają dużo światła. Zadaszony taras powiększa przestrzeń życiową na zewnątrz i oferuje widok na otoczenie. Kuchnia jest otwarta i płynnie integruje się z salonem. Kompleks mieszkalny posiada wspólne przestrzenie, takie jak basen, siłownia i strefa SPA, co podkreśla jego wysoki standard.

Okolica i styl życia

Cena i dostępność

Apartament oferowany jest od 549 000 €. Posiada trzy sypialnie i dwie łazienki na powierzchni mieszkalnej 93 m². Ceny mogą się różnić w zależności od lokalizacji w projekcie i specyficznych udogodnień. Biorąc pod uwagę atrakcyjną lokalizację, nowoczesne wyposażenie oraz bliskość udogodnień i plaży, ta oferta pozycjonuje się w średnim i wyższym segmencie lokalnego rynku. Porównywalne projekty, takie jak Aura Higueron, zaczynają się od 669 000 €, podczas gdy Nova Marina od 520 000 €, co podkreśla konkurencyjność tej oferty.

€549.000
Prijs
3
Sypialnie
93 m²
Powierzchnia
2
Łazienki

Okolica i styl życia

Fuengirola, w centralnej części Costa del Sol, to tętniące życiem nadmorskie miasto oferujące połączenie życia miejskiego i bliskości plaży. Ten apartament znajduje się w obszarze miejskim, gdzie codzienne sprawunki, takie jak zakupy w supermarkecie (112 m) czy wizyta w aptece (226 m), można łatwo załatwić pieszo. Bliskość licznych restauracji (205 w promieniu 2 km) i kawiarni (63) podkreśla tętniące życie. Plaża, taka jak Playa de San Francisco, znajduje się zaledwie około 400 metrów dalej, co umożliwia regularne wizyty nad morzem. Pomimo miejskiego zagęszczenia, wspólne przestrzenie, takie jak basen i siłownia, oferują chwile relaksu. Z 3897 godzinami słońca rocznie i czteromiesięcznym sezonem kąpielowym, region jest idealny do aktywności na świeżym powietrzu. Dobre połączenie z transportem publicznym (33 przystanki) i bliskość pól golfowych sprawiają, że Fuengirola jest wszechstronnym miejscem do zamieszkania.

Poproś o informacje

Lokalizacja i okolica: Fuengirola

Okolica i dojazd

Życie w tym apartamencie w Fuengiroli oznacza korzystanie z udogodnień ustalonego nadmorskiego miasta. Z supermarketem zaledwie 112 metrów i apteką 226 metrów dalej, codzienne zakupy są łatwe do zrealizowania. Bliskość licznych restauracji (205 w promieniu 2 km) i kawiarni (63) umożliwia różnorodne doświadczenia kulinarne. Plaża Playa de San Francisco znajduje się zaledwie 658 metrów dalej, co ułatwia spontaniczne wypady nad morze. Centralna lokalizacja jest również korzystna dla osób dojeżdżających do pracy, z 33 przystankami transportu publicznego i 14 liniami zapewniającymi dobrą mobilność w mieście i okolicach. Dla golfistów dostępne są liczne pola, takie jak Campo Los Lagos (3,8 km). Ta kombinacja miejskiej infrastruktury i możliwości rekreacyjnych kształtuje codzienne życie.

Mapa i lokalizacja

Ten widok pokazuje lokalizację apartamentu w Fuengiroli, tętniącym życiem nadmorskim mieście na Costa del Sol. Markery podkreślają bliskość ważnych udogodnień, takich jak plaża, sklepy, port i różne obiekty rekreacyjne. Mapa wizualizuje miejską integrację projektu i jego korzystne położenie w regionie.

Beachfront room with ocean view, featuring a private balcony and modern amenities.

Położenie w regionie

Apartament znajduje się w Fuengiroli, centralnym mieście na Costa del Sol w prowincji Málaga. Ta lokalizacja integruje go z dynamicznym regionem Costa del Sol Occidental, znanym z nadmorskich krajobrazów i infrastruktury turystycznej. Fuengirola jest strategicznie położona między większymi miastami Málaga i Marbella. Bliskość stolicy prowincji Málaga (ok. 30 km) i międzynarodowego lotniska (18 km w linii prostej) zapewnia doskonałe połączenia. Samo miasto jest ważnym centrum z własną infrastrukturą, w tym własną stacją kolejową i portem, co przyczynia się do atrakcyjności całego regionu.

Dojazd i udogodnienia

Strategiczna lokalizacja apartamentu zapewnia doskonałą dostępność. Najbliższa plaża, Playa de San Francisco, znajduje się zaledwie 658 metrów od obiektu. Centrum Fuengiroli z licznymi sklepami i restauracjami jest również w zasięgu spaceru. Lotnisko Málaga-Costa del Sol znajduje się zaledwie 18 km (w linii prostej), co ułatwia podróże międzynarodowe. Kilka pól golfowych, takich jak Campo Los Lagos (3,8 km), jest szybko dostępnych. Sieć transportu publicznego jest dobrze rozwinięta, z 33 przystankami i 14 liniami zapewniającymi dobrą mobilność bez samochodu. Dla kierowców dostępne są punkty ładowania pojazdów elektrycznych w odległości 92 metrów, a połączenie z siecią drogową jest dobre.

Dystans do plaży 0,4 km
Malaga-Costa del Sol (AGP) 18 km
Gibraltar (GIB) 79 km
Fuengirola 0,6 km
Carvajal 3,5 km

Źródło: OpenStreetMap, Google Maps

Aerial view of a coastal city with a sandy beach and clear blue water.

Natura i klimat

Oceanfront apartment with balcony, city and beach views, modern amenities.

Fuengirola cieszy się klimatem śródziemnomorskim ze średnimi rocznymi temperaturami w zakresie 12–26°C. Region słynie z dużej ilości godzin słonecznych, z historycznie udokumentowanymi 3 897 godzinami słońca rocznie. Pozwala to na długi sezon kąpielowy trwający około czterech miesięcy, podczas którego temperatury wody regularnie przekraczają 20°C. Apartament znajduje się na wysokości 15 metrów nad poziomem morza, co sprzyja przyjemnej morskiej bryzie. Niewielkie nachylenie terenu wynoszące 3,0% w kierunku plaży zapewnia dobre odwodnienie i potencjalnie szerokie widoki. Klimat jest ogólnie łagodny, z niewielką liczbą ekstremalnych temperatur, co sprzyja aktywnościom na świeżym powietrzu przez cały rok.

3897 Godziny słoneczne/rok
4 Sezon kąpielowy (miesiące)
18.7°C Śr. roczna temperatura
15m Wysokość n.p.m.

Źródło: Open-Meteo (2020–2025 średnia)

Plaże i rekreacja

Nadbrzeżna lokalizacja Fuengiroli oferuje bezpośredni dostęp do kilku plaż, w tym plaż z Błękitną Flagą Boliches-Gaviotas i Carvajal. Najbliższa plaża, Playa de San Francisco, znajduje się zaledwie 400 metrów dalej. Oprócz wypoczynku na plaży, okolica oferuje mnóstwo możliwości rekreacyjnych. Dostępnych jest 269 obiektów sportowych, w tym Pabellón Juan Gómez Juanito (0,6 km) i Complejo Deportivo Municipal Elola (0,6 km). Dla golfistów w pobliżu znajduje się wiele pól, takich jak Campo Los Lagos (3,8 km). Sporty wodne są możliwe w pobliskiej marinie, Puerto Deportivo de Fuengirola (0,7 km). Różnorodność zajęć sportowych i rekreacyjnych czyni region atrakcyjnym.

Plaże

  • Playa de San Francisco 0,4 km
  • Playa de los Boliches 1 km
  • Playa de Santa Amalia 1,2 km
  • Playa del Castillo 1,9 km
  • Playa Torreblanca-Carvajal Blue Flag 2,1 km
  • Playa Mati 2,8 km

Golf

  • Campo Los Lagos 4 km
  • Cerrado del Aguila Golf 4,5 km
  • Campo Los Olivos 4,7 km
  • El Chaparral Golf Club 5,4 km

Obiekty sportowe

269 Dostępne obiekty

Źródło: Blue Flag 2026, OpenStreetMap, CSD

Beachfront room with ocean view, featuring a balcony and lounge chairs.

Położenie w regionie

Apartament znajduje się w Fuengiroli, centralnym mieście na Costa del Sol w prowincji Málaga. Ta lokalizacja integruje go z dynamicznym regionem Costa del Sol Occidental, znanym z nadmorskich krajobrazów i infrastruktury turystycznej. Fuengirola jest strategicznie położona między większymi miastami Málaga i Marbella. Bliskość stolicy prowincji Málaga (ok. 30 km) i międzynarodowego lotniska (18 km w linii prostej) zapewnia doskonałe połączenia. Samo miasto jest ważnym centrum z własną infrastrukturą, w tym własną stacją kolejową i portem, co przyczynia się do atrakcyjności całego regionu.

Przewodnik po regionie: Fuengirola

Fuengirola is a city on the Costa del Sol in the province of Málaga in the autonomous community of Andalusia in southern Spain. It is located on the central coast of the province and integrated into the region of the Costa del Sol and the Commonwealth of Municipalities of the Costa del Sol Occidental.

Kluczowe fakty

10.4 km² Powierzchnia

Klimat

Miesiąc Średnia temperatura Opady
Styczeń 11.9°C 56 mm
Luty 12.2°C 57 mm
Marzec 14.2°C 46 mm
Kwiecień 16.1°C 31 mm
Maj 18.3°C 28 mm
Czerwiec 22.4°C 6 mm
Lipiec 25.8°C 1 mm
Sierpień 26.2°C 2 mm
Wrzesień 22.9°C 9 mm
Październik 19.1°C 51 mm
Listopad 15.2°C 74 mm
Grudzień 12.6°C 66 mm

Udogodnienia w okolicy

205 restaurant
36 pharmacy
27 bank
1 park
63 cafe
9 dentist

Wysokość i Teren

15m Wysokość n.p.m.
0,4 km Dystans do plaży
3.0% Nachylenie do plaży

Umiarkowany

W pobliżu

Ev Charging

Centra sportowe

Plaże

Przystanie

Pola golfowe

Baseny

Transport

18 km Malaga-Costa del Sol (AGP)
79 km Gibraltar (GIB)
407 km Alicante-Elche (ALC)
0,6 km Fuengirola
3,5 km Carvajal
6,2 km Torremuelle
0,7 km Terminal Autobus

Szczegóły projektu

Projekt 3 Bed Middle Floor Apartment in Fuengirola
Miasto Fuengirola
Region Costa del Sol
Prijs €549.000
Powierzchnia 93 m²
Cena za m² €5.903 / m²
Taras 25 m²
Sypialnie 3
Łazienki 2
Parking Tak
Basen Tak
Ogród Tak
Status budowy for_sale
Dystans do plaży 0,4 km
Zakończenie 2025
Opublikowano 2026-04-18

Ref: VL399829

Źródło: Wikipedia, Wikidata, INE, Junta de Andalucía

Podsumowanie

  • Nowoczesny apartament o powierzchni 93 m² z 3 sypialniami i 2 łazienkami w Fuengiroli.
  • Położony w odległości spaceru od plaży (Playa de San Francisco, 658 m) i różnych udogodnień.
  • Nowy projekt budowlany z doskonałym wykończeniem, w tym klimatyzacją i wspólnymi udogodnieniami, takimi jak basen i siłownia.
  • Orientacja południowo-południowo-zachodnia z widokiem na morze i okolicę.
  • Dogodna lokalizacja blisko lotniska w Maladze (18 km w linii prostej) i kilku pól golfowych.

Porównanie regionalne

W porównaniu do innych projektów w Fuengiroli, takich jak Aura Higueron (od 669 000 €) i Higuerón Bay Residences (od 580 000 €), ten apartament pozycjonuje się w segmencie średnim z ceną wyjściową 549 000 €. Oferuje porównywalną powierzchnię mieszkalną i liczbę pokoi jak Higuerón Bay Residences, ale po nieco wyższym poziomie cenowym, co może wynikać ze specyficznych cech wyposażenia lub korzystniejszej lokalizacji w obrębie osiedla. Nova Marina, z cenami od 520 000 €, jest tańsza, ale może nie być klasyfikowana jako nowy budynek lub oferować mniej pokoi. Lokalizacja w Fuengiroli jest wspólnym czynnikiem wskazującym na silny popyt na miejski komfort w pobliżu plaży. Wszystkie wymienione projekty korzystają z ugruntowanej infrastruktury Costa del Sol, w tym dobrej dostępności do lotniska w Maladze i wysokiej gęstości możliwości rekreacyjnych, takich jak pola golfowe i plaże. Wybór między tymi opcjami zależy od indywidualnych preferencji dotyczących ceny, wieku nieruchomości i konkretnych wspólnych udogodnień.

Często zadawane pytania

Czy ten apartament nadaje się do stałego zamieszkania?
Tak, apartament nadaje się do stałego zamieszkania. Nowoczesne wyposażenie, bliskość wszystkich niezbędnych usług i łagodny klimat sprzyjają komfortowemu życiu przez cały rok.
Jak wygląda komunikacja z transportem publicznym?
W pobliżu znajduje się 33 przystanków i 14 linii transportu publicznego, które zapewniają dobre połączenia w obrębie Fuengiroli i do okolicznych miejscowości. Stacja kolejowa Fuengirola znajduje się 0,6 km od obiektu.
Jaki jest dostępny system ogrzewania i chłodzenia?
Apartament wyposażony jest w klimatyzację (zimną i ciepłą) oraz ogrzewanie podłogowe w łazienkach.
Jaka jest obecna sytuacja rynkowa apartamentów w Fuengiroli?
Fuengirola to ugruntowany rynek o stałym popycie na nowoczesne apartamenty w pobliżu plaży. Ceny odzwierciedlają atrakcyjność lokalizacji i jakość nowych budynków.
Jakie wspólne udogodnienia są dostępne?
Kompleks mieszkalny oferuje wspólny basen, siłownię, pokój telewizyjny i strefę SPA. Dostępna jest również wspólna sala z kuchnią na imprezy.
Jakie koszty bieżące można oczekiwać dla tego apartamentu?
Koszty bieżące zazwyczaj obejmują opłaty wspólnotowe za utrzymanie kompleksu, podatki od nieruchomości (IBI) oraz potencjalne koszty eksploatacyjne za prąd, wodę i internet. Dokładne kwoty należy uzyskać od dewelopera.
Jak przebiega proces zakupu nieruchomości w Hiszpanii?
Proces zazwyczaj obejmuje rezerwację, podpisanie prywatnej umowy kupna (Contrato de Arras), złożenie wniosku o numer NIE i ostateczne podpisanie umowy kupna (Escritura Pública) przed notariuszem, a następnie rejestrację w księdze wieczystej.
Jak daleko jest do najbliższego supermarketu?
Najbliższy supermarket znajduje się 112 metrów od obiektu i jest łatwo dostępny pieszo.
Maiko
Maiko
Ekspert nieruchomości

Maiko jest ekspertem ds. nieruchomości specjalizującym się na hiszpańskim rynku nieruchomości. Dzięki dogłębnej wiedzy o Costa del Sol, Costa Blanca i innych popularnych regionach przybrzeżnych, pomaga kupującym znaleźć odpowiednią nieruchomość. Analizuje ofertę pod kątem lokalizacji, wartości rynkowej, jakości wykonania i warunków życia, udzielając uczciwych, opartych na danych porad przez cały proces zakupu.

Odpowiedź w ciągu 24h

Zainteresowany?

Zostaw dane, a otrzymasz informacje o dostępności, cenach i planach.

Dane techniczne
Powierzchnia mieszkalna: 93 m²
Liczba sypialni: 3
Liczba łazienek: 2
Orientacja: Południe, Południowy zachód
Basen: Wspólny

Historia rozmowy

Zadaj pytanie, aby zacząć