Residential Plot in Costabella في Costabella — قطعة أرض سكنية
قطعة أرض سكنية

قطعة أرض سكنية للبيع في كوستا بيلا، مالاغا

فرصة استثنائية للحصول على قطعة أرض مميزة بمساحة 340 متر مربع في أفيدا أنداسول (Avenida Andasol) المرغوبة بماربيا. على بعد دقيقتين فقط سيرًا على الأقدام من الشاطئ وبالقرب من جميع وسائل الراحة، توفر هذه القطعة مزيجًا مثاليًا من الراحة ونمط الحياة. إنها فرصة شراء رائعة للمطورين الذين يبحثون عن عائد استثمار مرتفع في واحدة من أكثر المناطق المرغوبة في ماربيا.

€649,000
192 m²
مساحة المعيشة
€649,000
Prijs
0.6 km
مسافة الشاطئ

تحليل المشروع

أهم خصائص الموقع، والوحدات، ومراحل المشروع، ونقاط الاهتمام.

الموقع

تقع هذه الأرض في كوستا بيلا، وهي منطقة حضرية بالقرب من وسط ماربيا. على بعد 600 متر فقط من الشاطئ، ومع توفر 13 مطعمًا و 3 مدارس و 3 صيدليات في المنطقة المجاورة، توفر الحياة اليومية سهولة الوصول. موقع متميز يوفر أساسًا قويًا لبناء منزل الأحلام.

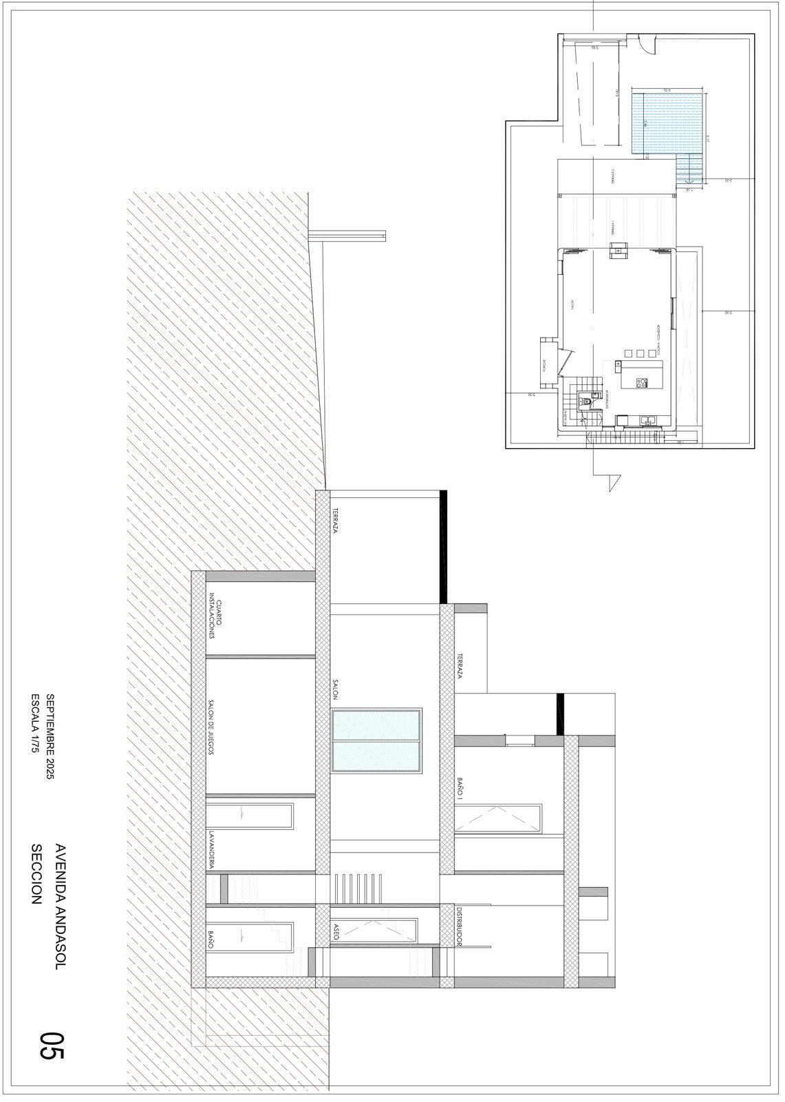
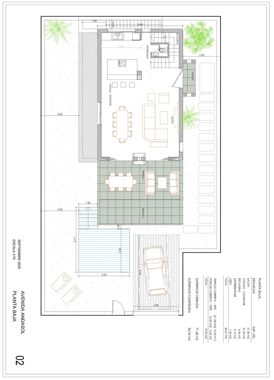
المخططات

تعتبر هذه الأرض مثالية للمشترين الذين يتطلعون إلى بناء منزل أحلامهم وفقًا لتفضيلاتهم الشخصية. سواء كان ذلك فيلا حديثة فاخرة أو منزلًا بأسلوب الأندلس التقليدي، فإن مساحة 340 مترًا مربعًا توفر مساحة كافية لتحقيق مجموعة واسعة من الأفكار التصميمية.

حالة المشروع

الأرض جاهزة لبدء البناء، مع خطة مشروع جاهزة للتنفيذ الفوري. هذه الميزة توفر على المشترين وقتًا وجهدًا ثمينين، مما يسمح بالبدء السريع في عملية البناء.

نقاط هامة

هذا العقار عبارة عن قطعة أرض ولا يشمل أي مبنى قائم. يقع على عاتق المشتري مسؤولية تطوير التصميم المعماري، والحصول على تصاريح البناء، وتحمل جميع تكاليف البناء. للحصول على تقدير مفصل لتكاليف البناء، يرجى استشارة مهندس معماري محلي.

نمط الحياة

إذا كنت تبحث عن قطعة أرض تتيح لك بناء منزل مخصص وفقًا لرغباتك، فإن هذه الأرض في كوستا بيلا هي الخيار الأمثل لك. بالنسبة للمطورين المهتمين بالاستثمار في العقارات في منطقة ماربيا الشهيرة، فهذه فرصة رائعة. بفضل قربها من الشاطئ وملاعب الجولف والعديد من وسائل الراحة، تجذب هذه الأرض المشترين الذين يبحثون عن الطقس المشمس، والشاطئ، ونمط حياة مريح. خطة المشروع الجاهزة تعني أنه يمكنك البدء بسرعة في البناء وإنشاء منزل يلبي جميع توقعاتك.

الجودة والتشطيبات

بصفتها قطعة أرض، فإن جودة البناء والتشطيبات لم يتم تحديدها بعد. ومع ذلك، تقع الأرض في منطقة حضرية متطورة تضم العديد من المنازل عالية الجودة المبنية بالفعل. توفر مساحة 340 مترًا مربعًا فرصة لتصميم فيلا حديثة باستخدام أحدث معايير البناء ومواد التشطيب. يمكن للمشترين المحتملين اختيار مواد عالية الجودة وتصاميم مبتكرة، بما يتناسب مع ميزانيتهم وذوقهم، لخلق مساحة معيشة مثالية.

البيئة ونمط الحياة

السعر والتوفر

يبلغ سعر قطعة الأرض هذه 649,000 يورو. تبلغ مساحتها 340 مترًا مربعًا، مما يوفر مساحة كافية لبناء منزل الأحلام أو القيام بالاستثمار. تقع الأرض في كوستا بيلا، وهي منطقة مرغوبة معروفة بموقعها المتميز ووسائل الراحة. نظرًا لجاذبية المنطقة، قد يتم بيع هذه القطعة بسرعة.

€649,000
Prijs
192 m²
مساحة المعيشة

البيئة المحيطة

تتميز منطقة كوستا بيلا بكونها منطقة حضرية نابضة بالحياة تلبي الاحتياجات الحياتية المتنوعة. يقع الشاطئ على مسافة قريبة سيرًا على الأقدام، مما يتيح الاستمتاع بالشمس والمناظر البحرية. مع وجود 13 مطعمًا و 3 مدارس و 3 صيدليات قريبة، فإن ضروريات الحياة اليومية في متناول اليد. المنطقة مخدومة جيدًا بـ 5 خطوط حافلات و 42 محطة حافلات، مما يوفر سهولة التنقل بالمواصلات العامة. تقع الأرض على ارتفاع 25 مترًا فوق مستوى سطح البحر، مما يساهم في مناخ لطيف بمتوسط درجة حرارة سنوية تبلغ 19.0 درجة مئوية، ووفرة في ضوء الشمس تصل إلى 3851 ساعة في السنة. موسم السباحة المريح يستمر لمدة 5 أشهر، حيث تصل درجة حرارة المياه إلى أكثر من 20 درجة مئوية.

طلب معلومات

الموقع والبيئة: Costabella

البيئة والوصول

توفر منطقة كوستا بيلا نمط حياة مريحًا ونشطًا. على بعد 600 متر فقط من الشاطئ، يمكنك بسهولة الاستمتاع بالحياة على الواجهة البحرية. يوجد سوبر ماركت على بعد 408 أمتار، ومستشفى على بعد 2.1 كم، مما يوفر كل ما تحتاجه للحياة اليومية. 13 مطعمًا و 3 مقاهي تلبي احتياجاتك الغذائية. تتميز المنطقة بـ 5 خطوط حافلات و 42 محطة حافلات، مما يجعل وسائل النقل العام مريحة للغاية. يقع مطار مالاغا (Malaga-Costa del Sol) على بعد حوالي 33 كم، مما يسهل سفرك.

الخريطة والموقع

تقع قطعة الأرض في منطقة كوستا بيلا بماربيا، وتتمتع بموقع جغرافي مريح. توضح الخريطة بوضوح مزايا قربها من الشاطئ (إل أليكاتي، 0.6 كم)، والسوبر ماركت (0.4 كم)، والمدارس (0.7 كم)، بالإضافة إلى سهولة الوصول إلى مطار مالاغا (33 كم).

Spacious living room with panoramic city and sea views, modern furnishings, large windows.

الموقع الإقليمي

تقع قطعة الأرض في كوستا ديل سول، جنوب إسبانيا، داخل مدينة ماربيا. تشتهر ماربيا بخطها الساحلي الجميل وملاعب الجولف ونمط حياتها النابض بالحياة. كوستا بيلا هي منطقة ناضجة ومريحة على ساحل ماربيا، توفر وسائل الراحة الحضرية وميزة القرب من الشاطئ. المنطقة سهلة الوصول إليها، وتقع ليست ببعيدة عن مطار مالاغا (33 كم)، مما يجعلها خيارًا مثاليًا لمن يبحثون عن ملاذ مشمس وشاطئي.

المرافق والوصول

تقع الأرض على بعد 557 مترًا فقط من شاطئ إل أليكاتي (El Alicate)، مما يسهل الاستمتاع بوقتك على الشاطئ. بالإضافة إلى ذلك، تقع شواطئ بلايا دي أرتولا (Playa de Artola) (3.2 كم) وبلايا دي كابوبينو (Playa de Cabopino) (5.9 كم) على مقربة. لعشاق الجولف، تقع ملاعب مثل جرينلايف جولف ماربيا (Greenlife Golf Marbella) (2.4 كم) وسانتا ماريا جولف آند كونتري كلوب (Santa María Golf & Country Club) (3.3 كم) على مقربة. يبعد مطار مالاغا كوستا ديل سول (Malaga-Costa del Sol) حوالي 33 كم، مما يوفر سهولة السفر الدولي. تقع محلات السوبر ماركت (408 مترًا) والمستشفى (2.1 كم) والصيدليات (546 مترًا) ضمن نطاق المشي. فيما يتعلق بالمواصلات العامة، هناك 5 خطوط حافلات و 42 محطة، مما يجعل التنقل سهلاً.

مسافة الشاطئ 0.6 km
Malaga-Costa del Sol (AGP) 34 km
Gibraltar (GIB) 62 km

المصدر: OpenStreetMap, Google Maps

Cozy room with sea view, balcony, and mountain backdrop.

الطبيعة والمناخ

Alt text: "Cozy beachfront room with ocean view, balcony, and modern amenities.

تتمتع كوستا بيلا بمناخ البحر الأبيض المتوسط، بمتوسط درجة حرارة سنوية تبلغ 19.0 درجة مئوية، مع صيف دافئ وشتاء معتدل، وعدد ساعات سطوع الشمس السنوي يصل إلى 3851 ساعة. هناك 5 أشهر من موسم السباحة المريح، حيث تصل درجة حرارة المياه إلى أكثر من 20 درجة مئوية. تقع الأرض على ارتفاع 25 مترًا فوق مستوى سطح البحر، والأرض مستوية، مع ميل طفيف يبلغ 4.2% فقط نحو الشاطئ، مما يجعلها مناسبة جدًا للسكن. هناك حوالي 32 مهرجانًا محليًا سنويًا، مما يضيف إلى التجربة الثقافية المحلية.

3851 ساعات الشمس/سنة
5 موسم السباحة (أشهر)
19.0°C متوسط الحرارة السنوي
25m الارتفاع

المصدر: Open-Meteo (2020–2025 متوسط)

الشواطئ والترفيه

تضم المنطقة العديد من الشواطئ، بما في ذلك شاطئ إل أليكاتي (El Alicate) الذي يبعد 557 مترًا فقط. توفر شواطئ بلايا دي أرتولا (Playa de Artola) (3.2 كم) وبلايا دي كابوبينو (Playa de Cabopino) (5.9 كم) خيارات إضافية للاسترخاء على الساحل. يمكن لعشاق الجولف الاستمتاع بملاعب عالمية المستوى مثل جرينلايف جولف ماربيا (Greenlife Golf Marbella) (2.4 كم) وسانتا ماريا جولف آند كونتري كلوب (Santa María Golf & Country Club) (3.3 كم). يوفر مركز دون كارلوس الرياضي (Don Carlos Tennis Club) (3.1 كم) خيارات للترفيه الرياضي. بالإضافة إلى ذلك، تقع موانئ ماربيا وبويرتو بانوس بالقرب من هنا.

شواطئ

  • El Alicate 0.6 km
  • Playa de Artola 3.2 km

Golf

  • Greenlife Golf Marbella 2.4 km
  • Greenlife Golf Driving Range 2.4 km
  • Santa María Golf & Country Club 3.3 km
  • Cabopino golf 5.7 km

المصدر: OpenStreetMap

Alt text: "Cozy waterfront apartment with stunning mountain and marina view, featuring a private balcony.

الموقع الإقليمي

تقع قطعة الأرض في كوستا ديل سول، جنوب إسبانيا، داخل مدينة ماربيا. تشتهر ماربيا بخطها الساحلي الجميل وملاعب الجولف ونمط حياتها النابض بالحياة. كوستا بيلا هي منطقة ناضجة ومريحة على ساحل ماربيا، توفر وسائل الراحة الحضرية وميزة القرب من الشاطئ. المنطقة سهلة الوصول إليها، وتقع ليست ببعيدة عن مطار مالاغا (33 كم)، مما يجعلها خيارًا مثاليًا لمن يبحثون عن ملاذ مشمس وشاطئي.

دليل المنطقة: Costabella

حقائق أساسية

المناخ

الشهر متوسط الحرارة معدل الأمطار
يناير 11.8°C 94 mm
فبراير 12.0°C 97 mm
مارس 14.1°C 85 mm
أبريل 15.9°C 56 mm
مايو 17.8°C 43 mm
يونيو 22.0°C 11 mm
يوليو 25.9°C 1 mm
أغسطس 26.4°C 2 mm
سبتمبر 22.7°C 19 mm
أكتوبر 18.9°C 80 mm
نوفمبر 15.0°C 116 mm
ديسمبر 12.4°C 104 mm

المرافق القريبة

13 restaurant
3 school
3 pharmacy
3 cafe

الارتفاع والتضاريس

25m الارتفاع
0.6 km مسافة الشاطئ
4.2% الانحدار إلى الشاطئ

معتدل

معالم قريبة

موانئ ترفيهية

مدارس دولية

ملاعب الغولف

شواطئ

مراكز رياضية

النقل والوصول

34 km Malaga-Costa del Sol (AGP)
62 km Gibraltar (GIB)
424 km Alicante-Elche (ALC)

تفاصيل المشروع

المشروع Residential Plot in Costabella
المدينة Costabella
المنطقة Costa del Sol
Prijs €649,000
مساحة المعيشة 192 m²
السعر لكل م² €3,380 / m²
موقف سيارات لا
مسبح لا
حديقة لا
حالة البناء for_sale
مسافة الشاطئ 0.6 km
تاريخ الإنجاز 1970
تاريخ النشر 2026-04-24

Ref: VL325373

المصدر: Wikipedia, Wikidata, INE, Junta de Andalucía

ملخص

  • قطعة أرض سكنية بمساحة 340 متر مربع في موقع متميز بكوستا بيلا، ماربيا.
  • تقع على بعد 557 مترًا فقط من شاطئ إل أليكاتي، ويمكن الوصول إليه سيرًا على الأقدام.
  • وسائل راحة قريبة تشمل محلات السوبر ماركت والمطاعم والمدارس والمستشفيات.
  • خطة المشروع جاهزة لبدء البناء على الفور.
  • السعر 649,000 يورو، مناسب للمستثمرين والمشترين النهائيين.

مقارنة إقليمية

بالمقارنة مع Acqua Gardens في إستيبونا (ابتداءً من 418,800 يورو) و Aby Upper (ابتداءً من 320,000 يورو)، فإن سعر هذه القطعة البالغ 649,000 يورو يعكس موقعها في منطقة أكثر تطوراً وقربها من وسط ماربيا. Alba Benalmadena في Benalmádena (ابتداءً من 699,000 يورو) لها تسعير مماثل ولكنها تقع في منطقة مختلفة. تكمن ميزة قطعة الأرض في كوستا بيلا في موقعها المتميز، وقربها من الشاطئ ووسائل الراحة في ماربيا، بالإضافة إلى خطة المشروع الجاهزة. في حين أن المشاريع في إستيبونا تقدم أسعارًا أقل، فإن قطعة الأرض في كوستا بيلا توفر وصولًا مباشرًا إلى سوق ماربيا المرغوب، والذي قد يكون أكثر جاذبية للمشترين الذين يبحثون عن قيمة عالية وراحة العيش. توفر هذه القطعة المرونة لبناء منزل مخصص، بينما تقدم المشاريع المجاورة المذكورة شققًا مبنية مسبقًا، مما يلبي احتياجات السوق المختلفة.

الأسئلة الشائعة

هل تتضمن قطعة الأرض هذه تصميمًا معماريًا أو خطة بناء؟
خطة المشروع جاهزة للبدء، ولكن يجب تحديد التصميم المعماري وخطة البناء المحددة وفقًا لاحتياجات المشتري.
ما هي المسافة من قطعة الأرض إلى أقرب شاطئ؟
تبعد قطعة الأرض 557 مترًا عن شاطئ إل أليكاتي.
ما هي مساحة قطعة الأرض؟
تبلغ مساحة قطعة الأرض 340 مترًا مربعًا.
ما هي أنواع المشترين التي تناسبها قطعة الأرض هذه؟
إنها مناسبة للمشترين الأفراد الذين يرغبون في بناء منزل مخصص، وكذلك للمطورين المهتمين بالاستثمار في العقارات في منطقة ماربيا.
ما هي المرافق المتوفرة بالقرب؟
في حدود 2 كم، يوجد 13 مطعمًا و 3 مدارس و 3 صيدليات و 3 مقاهي.
ما هي التكلفة الإجمالية لشراء قطعة الأرض هذه؟
سعر قطعة الأرض هو 649,000 يورو. تكاليف البناء غير مشمولة وستعتمد على التصميم المختار.
ما هي عملية الشراء؟
تتبع عملية الشراء إجراءات معاملات العقارات القياسية في إسبانيا، بما في ذلك توقيع عقد الحجز، ودفع وديعة، وإجراء العناية الواجبة، والتوقيع النهائي على عقد البيع.
هل الوصول إلى مطار مالاغا مريح؟
نعم، تقع قطعة الأرض على بعد حوالي 33 كم من مطار مالاغا كوستا ديل سول، مما يوفر سهولة الوصول.
Omar Al-Nasser
Omar Al-Nasser
خبير عقاري

عمر الناصر يفهم بعمق احتياجات العملاء الناطقين بالعربية، ويرشدهم بثقة في سوق العقارات الإسباني. هو يضمن عملية شراء سلسة ومحترمة ثقافيًا.

AI-assisted multilingual representative. Your inquiry is handled by our real support team.

رد خلال 24 ساعة

مهتم؟

اترك بياناتك واحصل على معلومات عن التوفر، والأسعار، والمخططات.

المواصفات الفنية
تبلغ مساحة قطعة الأرض 340 مترًا مربعًا.
تبعد 557 مترًا عن شاطئ إل أليكاتي.
تبعد 408 أمتار عن السوبر ماركت.
تبعد 33 كم عن مطار مالاغا كوستا ديل سول.

Conversation history

Ask a question to start