2 Bed Middle Floor Apartment in Fuengirola في Fuengirola — Apartment
Apartment

Pelit Maritimo شقق للبيع في فوينخيرولا

يقع مشروع Pelit Maritimo في فوينخيرولا، على ساحل كوستا ديل سول، ويقدم مجموعة من الشقق والعلّيات الحديثة. يقع هذا المشروع على مسافة قريبة من الشاطئ ووسائل الراحة اليومية، وهو مصمم لتوفير الراحة والرفاهية. يضم المشروع 27 وحدة سكنية، ويجذب المشترين الذين يبحثون عن عقارات في منطقة ساحلية مرغوبة بفضل جودة بنائه وموقعه المتميز.

€372,000 - €549,000
2-3
غرف النوم
2
الحمامات
97-128 m²
مساحة المعيشة
يبدأ من €372,000
السعر المبدئي
0.4 km
مسافة الشاطئ
قيد الإنشاء
حالة البناء

تحليل المشروع

أهم خصائص الموقع، والوحدات، ومراحل المشروع، ونقاط الاهتمام.

الموقع

يقع العقار في بيئة حضرية نابضة بالحياة في فوينخيرولا، بالقرب من الساحل. توفر المنطقة المحيطة سهولة الوصول إلى المرافق وشبكات النقل، مما يجعلها مثالية للمقيمين الذين يقدرون سهولة الوصول والراحة الحضرية. تتوفر سهولة الوصول إلى الشواطئ والمعالم المحلية.

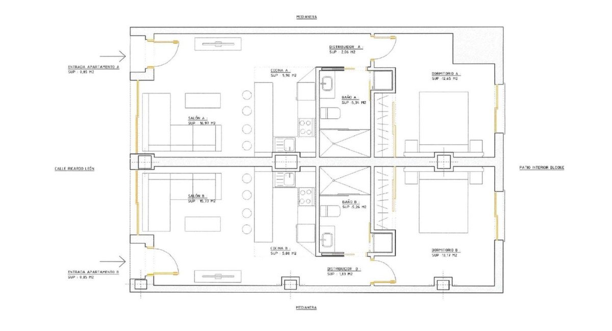
المخططات

تم تصميم المساكن في Pelit Maritimo لتلبية متطلبات المعيشة الحديثة، مع توفير تخطيطات وظيفية وتشطيبات عالية الجودة. تم التركيز على الضوء الطبيعي والمساحة، مما يضمن بيئة معيشية مريحة وممتعة. مناطق المعيشة ذات المخطط المفتوح والمطابخ المجهزة تجهيزًا جيدًا تلبي احتياجات الحياة اليومية.

حالة المشروع

المشروع قيد الإنشاء حاليًا، ومن المتوقع الانتهاء منه في الربع الثاني من عام 2026. باعتباره مشروعًا جديدًا، سيتم بناؤه وفقًا للمعايير والممارسات الحديثة، مما يوفر تجربة معيشية جديدة للمقيمين. يشتمل المشروع على 27 وحدة سكنية، مما يوفر للمشترين فرصة لامتلاك عقار جديد.

نقاط هامة

نظرًا لموقع المشروع في منطقة حضرية مكتظة، قد يكون الاعتماد على السيارة ضروريًا للتنقل. في حين أن القرب من وسائل الراحة أمر مريح، إلا أنه قد لا يوفر الهدوء والعزلة الموجودة في المواقع الأكثر بعدًا. المشروع لا يضمن رؤية البحر من جميع الوحدات.

تفاصيل المشروع

المشروع Pelit Maritimo
المدينة Fuengirola
المنطقة Costa del Sol
السعر المبدئي €372,000
مساحة المعيشة 97 m²
السعر لكل م² €3,835 / m²
التراس 12 m²
غرف النوم 2 - 3
الحمامات 2
موقف سيارات نعم
مسبح لا
حديقة لا
حالة البناء under_construction
المطور ViVi Real Estate
مسافة الشاطئ 0.4 km
تاريخ الإنجاز Q2 2026
تاريخ النشر 2026-04-19

Ref: VL367720

المصدر: Wikipedia, Wikidata, INE, Junta de Andalucía

نمط الحياة

Pelit Maritimo مثالي للأفراد والعائلات الذين يبحثون عن نمط حياة ساحلي نابض بالحياة. إنه مكان مثالي للإقامة الدائمة أو المنزل لقضاء العطلات لأولئك الذين يعملون بالقرب من فوينخيرولا أو يسافرون بشكل متكرر عبر مطار ملقا (على بعد 19 كم فقط). كما أنه يجذب المستثمرين الذين يبحثون عن عقارات في إسبانيا ذات إمكانات نمو. قربه من الشواطئ والمتاجر والمطاعم يجعله مثاليًا للمقيمين الذين يستمتعون بالمرافق في متناول اليد. يوفر المشروع، الذي يضم 27 وحدة سكنية فقط، بما في ذلك 7 علّيات، جاذبية خاصة لأولئك الذين يبحثون عن بيئة معيشية أكثر هدوءًا وخصوصية. بالإضافة إلى ذلك، فإن قربه من ملاعب الجولف سيجذب عشاق الجولف.

الجودة والتشطيبات

تم بناء المساكن في Pelit Maritimo باستخدام مواد عالية الجودة ومبادئ التصميم الحديثة. تم تجهيز كل وحدة بمطابخ مجهزة بالكامل وحمامات ذات تشطيبات معاصرة. تتميز الشقق بتكييف الهواء (بارد/ساخن)، وخزائن مدمجة، وإنترنت الألياف الضوئية، بما يتماشى مع معايير البناء الحديثة. تعزز الشرفات الفسيحة، المتصلة بمناطق المعيشة المفتوحة عبر أبواب منزلقة كبيرة، تجربة المعيشة الداخلية والخارجية. توفر الشقق العلوية مساحات خارجية أوسع مع إطلالات بانورامية. يوفر المشروع مواقف خاصة للسيارات وغرف تخزين إضافية للمقيمين.

البيئة ونمط الحياة

السعر والتوفر

تتراوح أسعار الشقق والعلّيات في Pelit Maritimo من 372,000 يورو وتصل إلى 549,000 يورو. يقدم المشروع وحدات بغرفتي نوم وثلاث غرف نوم لتلبية الاحتياجات المختلفة. يضم المشروع 27 وحدة سكنية مختارة فقط، مما يشير إلى درجة من التفرد. يعكس التسعير الموقع المتميز للعقار في فوينخيرولا، وهي وجهة ساحلية شهيرة. باعتباره مشروعًا جديدًا، تعكس الأسعار عادةً معايير البناء الحديثة والمرافق. يُنصح المشترون المحتملون بالتحقق من التوافر والأسعار المحددة في الوقت المناسب.

€372,000
السعر المبدئي
2-3
غرف النوم
97 m²
مساحة المعيشة
2
الحمامات

البيئة المحيطة

يقع Pelit Maritimo في قلب فوينخيرولا، وهي مدينة تشتهر بمنتزهها الساحلي الطويل وشواطئها الرملية ومجموعة مطاعمها النابضة بالحياة. يمكن للمقيمين الاستمتاع بسهولة الوصول إلى الشواطئ والمتاجر والمطاعم ووسائل النقل العام، بالإضافة إلى الاستفادة من البنية التحتية الحضرية المجهزة جيدًا. يبلغ عدد سكان المدينة حوالي 85,211 نسمة، مما يوفر إيقاع حياة حضريًا نابضًا بالحياة، مع 3,897 ساعة من أشعة الشمس سنويًا، وهي مثالية للاستمتاع بالأنشطة الخارجية ونمط الحياة المتوسطي. يضمن وجود 36 صيدلية و 205 مطعم الراحة. يوفر المشروع المكون من 27 وحدة سكنية، بما في ذلك 7 شقق علوية، ملاذًا لأولئك الذين يبحثون عن نمط حياة مريح على الساحل الجنوبي لإسبانيا.

طلب معلومات

الموقع والبيئة: Fuengirola

البيئة والوصول

يقع Pelit Maritimo في فوينخيرولا، وهي مدينة ساحلية نابضة بالحياة في جنوب إسبانيا. توفر المنطقة إيقاع حياة مريح مع متوسط درجة حرارة سنوية تبلغ 18.7 درجة مئوية و 3,897 ساعة من أشعة الشمس سنويًا، وهي مثالية للاستمتاع بالأنشطة الخارجية. تضم المدينة 85,211 نسمة، وتوفر ثقافة محلية غنية ووسائل راحة، بما في ذلك 205 مطعم و 36 صيدلية. يقع المشروع على مسافة قريبة من الشواطئ، بما في ذلك بلايا ديل كاستيلو (439 مترًا)، ويضم 4 شواطئ تحمل العلم الأزرق. يمكن لعشاق الجولف العثور على ملاعب متعددة في مكان قريب، مثل Cerrado del Aguila Golf (3.3 كم). تتميز المدينة أيضًا بشبكة نقل عام جيدة، مع 33 محطة حافلات و 14 خط حافلات.

الخريطة والموقع

توضح هذه الخريطة موقع Pelit Maritimo، الواقع في منطقة حضرية في فوينخيرولا، بالقرب من الشاطئ ومجموعة متنوعة من وسائل الراحة. يسلط الضوء على قرب المشروع من الشواطئ المحلية والمتاجر والمطاعم ومحاور النقل.

Beachfront room with ocean view, featuring a private balcony and modern amenities.

الموقع الإقليمي

يقع Pelit Maritimo في فوينخيرولا، ضمن مقاطعة مالقة على كوستا ديل سول. وهو جزء لا يتجزأ من منطقة كوستا ديل سول واتحاد بلديات كوستا ديل سول الغربية. تشتهر المنطقة باقتصادها المزدهر وسياحتها، بمتوسط دخل أسرة يبلغ 16,450 يورو. يقع في موقع استراتيجي على ساحل الأندلس، ويوفر سهولة الوصول إلى مطار مالقة (AGP) (19 كم)، مع اتصالات جيدة بالقطار والحافلة.

المرافق والوصول

يتمتع Pelit Maritimo بإمكانية وصول ممتازة. يقع على بعد حوالي 19 كم من مطار ملقا (AGP)، مما يوفر سهولة الوصول للمسافرين الدوليين. تقع محطة قطار المدينة (فوينخيرولا) على بعد 600 متر فقط، مما يسهل الوصول إلى المناطق المحيطة. تقع مجموعة متنوعة من وسائل الراحة على مسافة قريبة، بما في ذلك سوبر ماركت (85 مترًا) وصيدلية (230 مترًا) ومركز رياضي (0.6 كم). تقع الشواطئ، مثل بلايا دي سان فرانسيسكو، على بعد 400 متر فقط. يوفر وجود 4 شواطئ تحمل العلم الأزرق المزيد من خيارات الواجهة البحرية. بالنسبة لعشاق الجولف، تقع العديد من ملاعب الجولف، مثل Cerrado del Aguila Golf، على بعد 3.3 كم فقط.

مسافة الشاطئ 0.4 km
Malaga-Costa del Sol (AGP) 18 km
Gibraltar (GIB) 79 km
Fuengirola 0.6 km
Carvajal 3.5 km

المصدر: OpenStreetMap, Google Maps

Aerial view of a coastal city with a sandy beach and clear blue water.

الطبيعة والمناخ

Oceanfront apartment with balcony, city and beach views, modern amenities.

تتمتع فوينخيرولا بمناخ متوسطي، بمتوسط درجة حرارة سنوية 18.7 درجة مئوية، يتميز بصيف دافئ وشتاء معتدل. تتمتع المنطقة بأشعة شمس وفيرة، مع متوسط تاريخي يبلغ 3,897 ساعة سنويًا، وهو أمر مثالي للأنشطة الخارجية والاستمتاع بالشاطئ. يستمر موسم السباحة لمدة 4 أشهر تقريبًا، حيث تظل درجة حرارة المياه أعلى من 20 درجة مئوية. يقع المشروع على ارتفاع 15 مترًا فوق مستوى سطح البحر، بالقرب من الساحل، ويوفر نسيمًا بحريًا لطيفًا. يوفر الانحدار المعتدل نحو الشاطئ (3.0%) وصولاً سهلاً إلى الواجهة البحرية.

3897 ساعات الشمس/سنة
4 موسم السباحة (أشهر)
18.7°C متوسط الحرارة السنوي
15m الارتفاع

المصدر: Open-Meteo (2020–2025 متوسط)

الشواطئ والترفيه

يمكن لمقيمي Pelit Maritimo الاستمتاع بسهولة بالحياة الساحلية مع العديد من الشواطئ الحائزة على العلم الأزرق في مكان قريب، بما في ذلك بلايا دي سان فرانسيسكو (400 متر)، وبلايا دي لوس بوليتشيس (1.0 كم)، وبلايا دي سانتا أماليا (1.2 كم). يضمن وجود أربعة شواطئ معتمدة بالعلم الأزرق في المدينة معايير عالية للنظافة والمرافق. بالإضافة إلى الشواطئ، يوفر هذا المجال وفرة من خيارات الترفيه، بما في ذلك 269 مرفقًا رياضيًا، مثل Pabellón Juan Gómez Juanito (0.6 كم) و Complejo Deportivo Municipal Elola (0.6 كم). بالنسبة لعشاق الجولف، تقع العديد من ملاعب الجولف، بما في ذلك Cerrado del Aguila Golf (3.3 كم)، Campo Los Lagos (3.9 كم)، و El Chaparral Golf Club (4.0 كم) على مسافة قريبة بالسيارة.

شواطئ

  • Playa de San Francisco 0.4 km
  • Playa de los Boliches 1 km
  • Playa de Santa Amalia 1.2 km
  • Playa del Castillo 1.9 km
  • Playa Torreblanca-Carvajal Blue Flag 2.1 km
  • Playa Mati 2.8 km

Golf

  • Campo Los Lagos 4 km
  • Cerrado del Aguila Golf 4.5 km
  • Campo Los Olivos 4.7 km
  • El Chaparral Golf Club 5.4 km

مرافق رياضية

269 المرافق المتاحة

المصدر: Blue Flag 2026, OpenStreetMap, CSD

Beachfront room with ocean view, featuring a balcony and lounge chairs.

الموقع الإقليمي

يقع Pelit Maritimo في فوينخيرولا، ضمن مقاطعة مالقة على كوستا ديل سول. وهو جزء لا يتجزأ من منطقة كوستا ديل سول واتحاد بلديات كوستا ديل سول الغربية. تشتهر المنطقة باقتصادها المزدهر وسياحتها، بمتوسط دخل أسرة يبلغ 16,450 يورو. يقع في موقع استراتيجي على ساحل الأندلس، ويوفر سهولة الوصول إلى مطار مالقة (AGP) (19 كم)، مع اتصالات جيدة بالقطار والحافلة.

دليل المنطقة: Fuengirola

Fuengirola is a city on the Costa del Sol in the province of Málaga in the autonomous community of Andalusia in southern Spain. It is located on the central coast of the province and integrated into the region of the Costa del Sol and the Commonwealth of Municipalities of the Costa del Sol Occidental.

حقائق أساسية

10.4 km² المساحة

المناخ

الشهر متوسط الحرارة معدل الأمطار
يناير 11.9°C 56 mm
فبراير 12.2°C 57 mm
مارس 14.2°C 46 mm
أبريل 16.1°C 31 mm
مايو 18.3°C 28 mm
يونيو 22.4°C 6 mm
يوليو 25.8°C 1 mm
أغسطس 26.2°C 2 mm
سبتمبر 22.9°C 9 mm
أكتوبر 19.1°C 51 mm
نوفمبر 15.2°C 74 mm
ديسمبر 12.6°C 66 mm

المرافق القريبة

205 restaurant
36 pharmacy
27 bank
1 park
63 cafe
9 dentist

الارتفاع والتضاريس

15m الارتفاع
0.4 km مسافة الشاطئ
3.0% الانحدار إلى الشاطئ

معتدل

معالم قريبة

Ev Charging

مراكز رياضية

شواطئ

موانئ ترفيهية

ملاعب الغولف

مسابح

النقل والوصول

18 km Malaga-Costa del Sol (AGP)
79 km Gibraltar (GIB)
407 km Alicante-Elche (ALC)
0.6 km Fuengirola
3.5 km Carvajal
6.2 km Torremuelle
0.7 km Terminal Autobus

ملخص

  • يوفر Pelit Maritimo شققًا وعليات تقع على الواجهة البحرية في فوينخيرولا.
  • يضم المشروع 27 وحدة سكنية، ويقع بالقرب من الشاطئ والمتاجر والمطاعم.
  • من المتوقع الانتهاء منه في الربع الثاني من عام 2026، مع تصميم حديث وتشطيبات عالية الجودة.
  • تتراوح الأسعار من 372,000 يورو، وتقدم وحدات بغرفتي نوم وثلاث غرف نوم.
  • يتمتع بإمكانية وصول سهلة إلى وسائل النقل، حيث يبعد 19 كم فقط عن مطار ملقا وقريب من محطة القطار.

مقارنة إقليمية

مقارنة بمشاريع التطوير الجديدة الأخرى في فوينخيرولا مثل Sunset Views (تبدأ من 379,950 يورو)، و Laguna Suites (تبدأ من 407,925 يورو)، و Torreblanca Heights (تبدأ من 425,000 يورو)، فإن Pelit Maritimo بسعر يبدأ من 372,000 يورو يعتبر منافسًا. يشبه قرب Pelit Maritimo من الشاطئ والمركز الحضري مشروع Sunset Views، في حين أن Laguna Suites و Torreblanca Heights قد توفران أجواء أو مرافق مختلفة. تستفيد جميع هذه المشاريع من الموقع المرغوب في فوينخيرولا والجاذبية الشاملة لكوستا ديل سول. ومع ذلك، فإن قرب Pelit Maritimo المباشر من الشاطئ ووسائل الراحة الحضرية يجعله خيارًا جذابًا بشكل خاص للمشترين الذين يبحثون عن نمط حياة ساحلي نابض بالحياة. قد يعني أيضًا عدد الوحدات السكنية (27) مجتمعًا أكثر حميمية مقارنة بالمشاريع الأكبر والأكثر كثافة.

الأسئلة الشائعة

هل مشروع Pelit Maritimo مناسب لمن يبحث عن بيئة هادئة وخاصة؟
يقع المشروع في منطقة حضرية، بالقرب من الشاطئ ووسائل الراحة، مما قد يعني أنه قد لا يكون هادئًا مثل المناطق النائية. ومع ذلك، يتكون المشروع من 27 وحدة سكنية فقط، بما في ذلك 7 شقق علوية، مما يوفر درجة من التفرد. سيعتمد مستوى عزل الصوت والخصوصية للوحدات الفردية على تصميمها وموقعها.
هل السيارة ضرورية في مشروع Pelit Maritimo؟
يقع المشروع في منطقة حضرية، وتوجد العديد من وسائل الراحة، بما في ذلك محلات السوبر ماركت والصيدليات، على مسافة قريبة. وسائل النقل العام (الحافلات ومحطة القطار) متاحة بسهولة أيضًا. ومع ذلك، فإن امتلاك سيارة سيسهل التنقل في المناطق المحيطة والمعالم البعيدة، ويوفر المشروع مواقف خاصة للسيارات.
ما هي جودة البناء في مشروع Pelit Maritimo؟
تم بناء المشروع وفقًا لمعايير البناء الحديثة، باستخدام مواد عالية الجودة. تم تجهيز المساكن بمطابخ مجهزة بالكامل وحمامات ذات تشطيبات معاصرة. تشمل الميزات تكييف الهواء (بارد/ساخن) وخزائن مدمجة وإنترنت الألياف الضوئية.
هل مشروع Pelit Maritimo مكان جيد للإقامة الدائمة؟
نعم، يقع المشروع في فوينخيرولا، وهي مدينة مناسبة للمعيشة على مدار العام. يوفر قربه من وسائل الراحة المحلية ووسائل النقل والشواطئ نمط حياة مريح للمقيمين الدائمين. المشروع مناسب أيضًا كمنزل لقضاء العطلات أو كاستثمار.
ما هي المرافق المتوفرة في مشروع Pelit Maritimo؟
يوفر المشروع تراسات خاصة ومطابخ مجهزة بالكامل وحمامات حديثة وتكييف هواء (بارد/ساخن) وخزائن مدمجة وإنترنت الألياف الضوئية. تتوفر أيضًا مواقف سيارات خاصة وغرف تخزين. قد تتمتع بعض الوحدات بإطلالات على البحر أو الجبل.
هل هناك أي تكاليف مستمرة إضافية مرتبطة بمشروع Pelit Maritimo؟
كمشروع بناء جديد، يجب أن يتوقع المشترون المحتملون رسوم المجتمع (comunidad) للصيانة المشتركة للمناطق والمرافق. ستكون هناك أيضًا ضريبة البلدية السنوية (IBI). ستعتمد المبالغ الدقيقة على الإدارة النهائية للمبنى.
ما هي عملية الشراء في مشروع Pelit Maritimo؟
تتضمن عملية الشراء النموذجية إيداع حجز، وتوقيع عقد بيع (contrato de arras)، والتوقيع النهائي على السند العام (escritura pública) لدى كاتب العدل. يوصى بالتشاور مع محامٍ على دراية بمعاملات العقارات الإسبانية.
كيف هي البيئة المحيطة بمشروع Pelit Maritimo؟
يقع المشروع في فوينخيرولا، وهي مدينة ساحلية نابضة بالحياة. المنطقة المحيطة حضرية، مع العديد من المتاجر والمطاعم والشواطئ. إنه قريب من محطة القطار ومطار ملقا، مما يوفر سهولة الوصول إلى وسائل النقل.
Maiko
Maiko
خبير عقاري

مايكو خبير عقاري متخصص في سوق العقارات الإسباني. معرفته العميقة بمنطقة كوستا ديل سول وكوستا بلانكا والمناطق الساحلية الشهيرة الأخرى تساعد المشترين في العثور على العقار المناسب. يقوم بتحليل العروض بناءً على الموقع والقيمة السوقية وجودة البناء وقابلية السكن، ويقدم نصائح صادقة قائمة على البيانات طوال عملية الشراء بأكملها.

رد خلال 24 ساعة

مهتم؟

اترك بياناتك واحصل على معلومات عن التوفر، والأسعار، والمخططات.

المواصفات الفنية
يتكون المشروع من 27 وحدة سكنية.
تاريخ الانتهاء المتوقع هو الربع الثاني من عام 2026.
نوع المشروع هو Apartment.

Conversation history

Ask a question to start