2 Bed Middle Floor Apartment in Fuengirola i Fuengirola — Lejlighed
Lejlighed

2-værelses lejlighed til salg i Fuengirola, Málaga

Denne lejlighed i Fuengirola, provinsen Málaga, tilbyder 89 m² boligareal og er en del af et bymiljø designet til komfort og tilgængelighed. Med 2 soveværelser og 2 badeværelser henvender den sig til købere, der søger en moderne boligløsning med god forbindelse til lokale faciliteter. Beliggenheden kombinerer byliv med nærhed til kysten, hvilket muliggør en afbalanceret livsstil. Den angivne pris er €649.000.

€649.000
2
Soveværelser
2
Badeværelser
89 m²
Boligareal
€649.000
Prijs
0,4 km
Afstand til strand

Projektanalyse

Nøglekendetegn ved beliggenhed, boliger, projektets fase og punkter at være opmærksom på.

Beliggenhed

Lejligheden er beliggende i Fuengirola, en livlig by på Málagas centrale kyst. Den ligger i et byområde, hvilket betyder, at daglige fornødenheder som butikker, restauranter og offentlig transport er let tilgængelige til fods. Nærheden til strande som Playa de Fuengirola (658 m) og Playa de San Francisco (661 m) understreger den attraktive kystbeliggenhed.

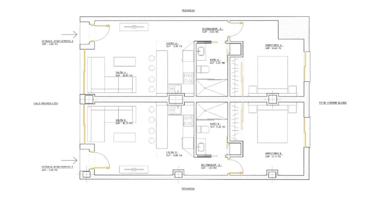
Plantegning

Med 89 m² boligareal, 2 soveværelser og 2 badeværelser opfylder denne lejlighed behovene hos par eller små familier, der søger en funktionel og veludstyret bolig. Udstyret, inklusive aircondition og overdækket terrasse, sigter mod at maksimere boligkomforten. Sydvestlig orientering lover god soleksponering.

Projektstatus

Projektet er designet som en nybyggeri og tilbyder moderne byggemetoder og faciliteter. Det angivne boligareal på 89 m² og beskrivelsen af finish i høj kvalitet antyder en moderne byggekvalitet. Projektets færdiggørelse er planlagt til en nær fremtid, hvilket gør det til en mulighed for købere, der ønsker at erhverve en ny ejendom.

Vigtige bemærkninger

Ejendommen tilbyder ingen privat pool, men fælles pools er tilgængelige. Det angivne areal på 89 m² kan opfattes som begrænset for større familier. Der er ingen oplysninger om specifik tilgængelighed for personer med nedsat mobilitet. Beskrivelsen indeholder ingen detaljer om nøglefærdig levering eller møbleringsmuligheder, udover at den kan være en del af et fuldt eller delvist møbleret tilbud.

Projektdetaljer

Projekt 2 Bed Middle Floor Apartment in Fuengirola
By Fuengirola
Region Costa del Sol
Prijs €649.000
Boligareal 89 m²
Pris pr. m² €7.292 / m²
Terrasse 21 m²
Soveværelser 2
Badeværelser 2
Parkering Ja
Pool Ja
Have Ja
Byggestatus for_sale
Afstand til strand 0,4 km
Afsluttet 2024
Publiceret 2026-04-18

Ref: VL882239

Kilde: Wikipedia, Wikidata, INE, Junta de Andalucía

Livsstil & omgivelser

Denne lejlighed er velegnet til personer eller par, der søger en moderne, veludstyret boligløsning i en livlig kystby og værdsætter bekvemmelighed. Hvis du foretrækker en ejendom, hvor dagligdags gøremål som indkøb (supermarked 112 m væk) eller et besøg på apoteket (226 m væk) nemt kan klares til fods, og nærhed til offentlig transport (33 stoppesteder) er vigtig, er dette objekt værd at overveje. Afstanden på 18 km til Málaga lufthavn er en fordel for rejsende. Par med en aktiv livsstil vil sætte pris på nærheden til sportscentre (0,6 km), golfbaner (fra 3,8 km) og mange strande (fra 0,65 km). Købere, der søger en ny ejendom i et område med god turist infrastruktur og et mildt klima (gennemsnitligt 18,7°C), vil sandsynligvis også trives her. Sydvestvendt orientering og terrassen giver muligheder for at nyde middelhavsklimaet, ideelt til afslapning udendørs. Det er dog ikke det første valg for familier, der har brug for meget plads, eller for personer, der søger absolut ro og isolation, da det ligger i et bymiljø.

Byggekvalitet & materialer

Kvaliteten af konstruktion og finish i denne lejlighed beskrives som høj kvalitet, med fokus på moderne materialer og holdbarhed. Udendørs arbejder bruger Tecnal vinduer, kendt for deres termiske og akustiske isoleringsegenskaber, hvilket bidrager til forbedret boligkomfort. Køkkenerne er fra Zampieri, et mærke, der står for design og funktionalitet. Badeværelserne er udstyret med sanitetsartikler af høj kvalitet. Dette valg af mærker tyder på omhyggelig planlægning og udførelse, rettet mod en tiltalende æstetik og praktisk anvendelighed. Interiøret er også klassificeret som 'fremragende' og kan være fuldt eller delvist møbleret. Funktioner som indbyggede skabe, et opbevaringsrum og et vaskerum bidrager til funktionaliteten. Dobbeltglas og aircondition er standard for komfort i denne region. Den generelle byggekvalitet fremhæves af BREEAM-certificeringen, som bekræfter fokus på bæredygtigt byggeri og energieffektivitet, hvilket kan have en positiv indvirkning på driftsomkostningerne.

Omgivelser & livsstil

Pris & ledighed

Lejligheden med 2 soveværelser, der tilbydes i Fuengirola, har en startpris på €649.000. Det angivne boligareal er 89 m², hvilket resulterer i en pris pr. kvadratmeter på ca. 7.292 €. Denne prissætning placerer ejendommen i det øvre segment af det lokale marked. Det er vigtigt at bemærke, at dette er en 'fra'-pris; de faktiske omkostninger kan variere afhængigt af den specifikke enhed, dens placering inden for projektet og yderligere funktioner. Tilgængelighed afhænger af salgsfremdriften, og for detaljeret information om specifikke enheder og deres priser anbefales en direkte forespørgsel. Sammenlignelige projekter i regionen som Aura Higueron (fra €669.000) og Carat (fra €822.000) indikerer et konkurrencedygtigt marked, mens Higuerón Bay Residences (fra €580.000) ligger i et lavere prisinterval.

€649.000
Prijs
2
Soveværelser
89 m²
Boligareal
2
Badeværelser

Omgivelser & livsstil

Fuengirola præsenterer sig som en dynamisk kystby med en afbalanceret blanding af byliv og turistattraktion. Dens areal på 10,4 km² huser en befolkning på over 85.000 indbyggere, hvilket tyder på en livlig atmosfære, især i højsæsonen, hvor turismen bidrager til byens livlighed. Projektet er beliggende i et byområde, hvilket betyder, at adskillige serviceydelser og faciliteter som restauranter (205 inden for 2 km radius), butikker, banker og apoteker (226 m) er i umiddelbar nærhed. Forskydning i byen letteres af et veludviklet offentligt transportnetværk med 33 stoppesteder og 14 linjer, samt muligheden for at tilbagelægge mange strækninger til fods eller på cykel. Den gennemsnitlige årstemperatur på 18,7°C og over 3.800 solskinstimer om året inviterer til en aktiv udendørs livsstil, understøttet af en række sportscentre og fritidsmuligheder som svømmebassiner og fitnesscentre. Dette miljø er velegnet til personer, der værdsætter et livligt kvarter med direkte adgang til byens serviceydelser og fritidsaktiviteter, men stadig ønsker nærhed til kysten og stranden.

Anmod om oplysninger

Beliggenhed & omgivelser: Fuengirola

Omgivelser & tilgængelighed

At bo i denne lejlighed i Fuengirola betyder at bo i et bymiljø rigt på serviceydelser og fritidsmuligheder. Den umiddelbare nærhed til supermarkeder (112 m), apoteker (226 m) og et utal af restauranter (205 inden for 2 km radius) forenkler hverdagen betydeligt. Daglige ture til arbejde eller ærinder kan ofte klares til fods eller på cykel, understøttet af et netværk af 33 stoppesteder for offentlig transport. Til rekreation inviterer de nærliggende strande som Playa de San Francisco (400 m) og strandpromenaden til gåture eller cykelture. Sportsentusiaster finder også mange faciliteter i nærheden, herunder sportscentre som Pabellón Juan Gómez Juanito (600 m) og marinaen Puerto Deportivo de Fuengirola (700 m). Selve byen Fuengirola, med sine 15 folkeskoler og 10 gymnasier samt 3 sundhedscentre, tilbyder en solid infrastruktur for familier og beboere. De 3.897 årlige solskinstimer og milde temperaturer bidrager til en middelhavslivsstil, der fremmer udendørsaktiviteter.

Kort & beliggenhed

Lejlighedens beliggenhed i Fuengirola placerer den i et byområde præget af nærhed til strande og en høj tæthed af serviceydelser. Kortet viser god tilgængelighed til supermarkeder, apoteker og offentlig transport, hvilket antyder en hverdag uden obligatorisk afhængighed af en bil. Fordelingen af strande og fritidsfaciliteter understreger fritidstilbuddet i omgivelserne.

Beachfront room with ocean view, featuring a private balcony and modern amenities.

Beliggenhed i regionen

Fuengirola er strategisk beliggende ved den centrale Costa del Sol, i provinsen Málaga. Som en del af den større region Costa del Sol Occidental integreres den problemfrit i Andalusiens kystinfrastruktur. Byen ligger mellem de større centre Málaga og Marbella og drager fordel af den gode transportforbindelse til disse metropoler. Nærheden til Málaga lufthavn (18 km) gør den til en let tilgængelig destination for internationale rejsende. Fuengirola er i sig selv en by med en egen identitet, der tilbyder et bredt udvalg af serviceydelser, kulturelle tilbud og fritidsmuligheder. Dens placering giver beboerne mulighed for både at nyde bekvemmelighederne i en etableret kystby og at udforske mangfoldigheden af de omkringliggende byer og landskaber på Costa del Sol, fra Mijas-bjergene til strandene i Benalmádena og Marbella.

Tilgængelighed & faciliteter

Tilgængeligheden af faciliteter er en central fordel ved denne lejlighed. Stranden Playa de San Francisco ligger kun 400 meter væk, og fire Blå Flag-strande er tilgængelige inden for få kilometer. For golfspillere ligger flere anerkendte baner som Campo Los Lagos (3,8 km) og Cerrado del Aguila Golf (3,9 km) inden for rækkevidde. Afstanden til Málaga-Costa del Sol lufthavn er kun 18 km, hvilket letter internationale rejser. Byen Fuengirola tilbyder en høj tæthed af butikker (et supermarked 112 m væk), restauranter (205 inden for 2 km radius), banker (27), apoteker (226 m), skoler og sundhedscentre. Offentlig transport er veludviklet, med 33 stoppesteder og 14 linjer, hvilket letter bevægelse uden bil, selvom nærheden til motorvej A-7 tilbyder en god bilforbindelse. Togstationerne Fuengirola (0,6 km) og Carvajal (3,5 km) supplerer mobilitetstilbuddet.

Afstand til strand 0,4 km
Malaga-Costa del Sol (AGP) 18 km
Gibraltar (GIB) 79 km
Fuengirola 0,6 km
Carvajal 3,5 km

Kilde: OpenStreetMap, Google Maps

Aerial view of a coastal city with a sandy beach and clear blue water.

Natur & klima

Oceanfront apartment with balcony, city and beach views, modern amenities.

Fuengirola nyder et middelhavsklima med en gennemsnitlig årlig temperatur på 18,7°C. Regionen er kendt for sine over gennemsnitlige solskinstimer, med historisk dokumenterede 3.897 timer årligt. Dette muliggør en lang periode for udendørsaktiviteter, hvor badesæsonen strækker sig over ca. fire måneder, hvor vandtemperaturerne konsekvent overstiger 20°C. Lejlighedens beliggenhed på 15 meters højde over havet og med en moderat hældning på 3,0% mod stranden bidrager til et behageligt mikroklima. Omgivelserne er præget af kystlinjen, men også af nærheden til bjergene, der tilbyder landskabsmæssig variation. Gennemsnitstemperaturerne svinger mellem 12°C om vinteren og 26°C om sommeren, hvilket skaber behagelige forhold året rundt for udendørsaktiviteter.

3897 Solskinstimer/år
4 Badesæson (måneder)
18.7°C Gns. årstemperatur
15m Højde

Kilde: Open-Meteo (2020–2025 gennemsnit)

Strande & fritid

Kysten ved Fuengirola byder på et væld af strande og fritidsmuligheder. Den nærmeste strand, Playa de San Francisco, ligger kun 400 meter væk. I alt fire strande i området, inklusive Boliches-Gaviotas, Carvajal og Castillo-Ejido, er blevet tildelt Blå Flag, hvilket vidner om deres vandkvalitet og miljømæssige egenskaber. Udover strandlivet er der talrige sportsmuligheder: 269 idrætsfaciliteter ligger i nærheden, herunder de kommunale sportscentre Pabellón Juan Gómez Juanito og Complejo Deportivo Municipal Elola, begge 600 meter væk. For golfentusiaster ligger flere anerkendte baner som Campo Los Lagos (3,8 km) og Mijas Golf (4,4 km) inden for rækkevidde. Marinaen Puerto Deportivo de Fuengirola (700 m) tilbyder yderligere maritime fritidsmuligheder. Mangfoldigheden af strande og fritidsfaciliteter understøtter en aktiv og varieret livsstil.

Strande

  • Playa de San Francisco 0,4 km
  • Playa de los Boliches 1 km
  • Playa de Santa Amalia 1,2 km
  • Playa del Castillo 1,9 km
  • Playa Torreblanca-Carvajal Blue Flag 2,1 km
  • Playa Mati 2,8 km

Golf

  • Campo Los Lagos 4 km
  • Cerrado del Aguila Golf 4,5 km
  • Campo Los Olivos 4,7 km
  • El Chaparral Golf Club 5,4 km

Sportsfaciliteter

269 Tilgængelige faciliteter

Kilde: Blue Flag 2026, OpenStreetMap, CSD

Beachfront room with ocean view, featuring a balcony and lounge chairs.

Beliggenhed i regionen

Fuengirola er strategisk beliggende ved den centrale Costa del Sol, i provinsen Málaga. Som en del af den større region Costa del Sol Occidental integreres den problemfrit i Andalusiens kystinfrastruktur. Byen ligger mellem de større centre Málaga og Marbella og drager fordel af den gode transportforbindelse til disse metropoler. Nærheden til Málaga lufthavn (18 km) gør den til en let tilgængelig destination for internationale rejsende. Fuengirola er i sig selv en by med en egen identitet, der tilbyder et bredt udvalg af serviceydelser, kulturelle tilbud og fritidsmuligheder. Dens placering giver beboerne mulighed for både at nyde bekvemmelighederne i en etableret kystby og at udforske mangfoldigheden af de omkringliggende byer og landskaber på Costa del Sol, fra Mijas-bjergene til strandene i Benalmádena og Marbella.

Omgivelser: Fuengirola

Fuengirola is a city on the Costa del Sol in the province of Málaga in the autonomous community of Andalusia in southern Spain. It is located on the central coast of the province and integrated into the region of the Costa del Sol and the Commonwealth of Municipalities of the Costa del Sol Occidental.

Nøglefakta

10.4 km² Areal

Klima

Måned Gns. temperatur Nedbør
Januar 11.9°C 56 mm
Februar 12.2°C 57 mm
Marts 14.2°C 46 mm
April 16.1°C 31 mm
Maj 18.3°C 28 mm
Juni 22.4°C 6 mm
Juli 25.8°C 1 mm
August 26.2°C 2 mm
September 22.9°C 9 mm
Oktober 19.1°C 51 mm
November 15.2°C 74 mm
December 12.6°C 66 mm

Nærhed til faciliteter

205 restaurant
36 pharmacy
27 bank
1 park
63 cafe
9 dentist

Højde & Terræn

15m Højde
0,4 km Afstand til strand
3.0% Hældning til stranden

Moderat

I nærheden

Ev Charging

Sportscentre

Strande

Lystbådehavne

Golfbaner

Svømmebassiner

Transport

18 km Malaga-Costa del Sol (AGP)
79 km Gibraltar (GIB)
407 km Alicante-Elche (ALC)
0,6 km Fuengirola
3,5 km Carvajal
6,2 km Torremuelle
0,7 km Terminal Autobus

Overblik

  • Ny lejlighed med 2 soveværelser og 2 badeværelser i Fuengirola.
  • Boligareal på 89 m² med overdækket terrasse og sydvestvendt orientering.
  • Bybeliggenhed med gåafstand til strande, butikker og restauranter.
  • Gode forbindelser: 18 km til Málaga lufthavn, nær golfbaner og sportscentre.
  • Høj kvalitet finish med mærkevarer og BREEAM-certificering for bæredygtighed.

Regional sammenligning

Denne lejlighed i Fuengirola er prismæssigt og udstyrs mæssigt placeret i det mellemste til øvre segment af markedet. Med en pris fra 649.000 € for 89 m² ligger den over startprisen for projekter som Higuerón Bay Residences (fra 580.000 €), men under Aura Higueron (fra 669.000 €) og Carat (fra 822.000 €). Det angivne boligareal og antal værelser (2 soveværelser, 2 badeværelser) er almindelige i regionen, især i mere bymæssige områder som Fuengirola, der tilbyder en god infrastruktur. Sammenlignet med projekter beliggende længere fra centrum eller i mere eksklusive enklaver som Higuerón-området, lægger denne ejendom større vægt på bymæssig bekvemmelighed og gåafstand til daglige serviceydelser. BREEAM-certificeringen er en fremtrædende funktion, der indikerer en moderne og miljøvenlig konstruktion, som ikke tilbydes som standard i alle sammenlignelige ejendomme. Nærheden til strande (400 m) og gode forbindelser til lufthavnen (18 km) er typiske for Costa del Sol, men forstærkes her af den umiddelbare bybeliggenhed, som medfører en højere tæthed af butikker og restauranter.

Ofte stillede spørgsmål

Er dette projekt egnet til permanent beboelse?
Ja, faciliteterne og bymiljøet i Fuengirola gør det egnet til permanent beboelse, med et supermarked 112 m væk og flere skoler og sundhedscentre i nærheden.
Hvor langt er der til Málaga lufthavn?
Afstanden til Málaga-Costa del Sol lufthavn er ca. 18 km i luftlinje.
Hvilke materialer anvendes til finishen?
Finishen inkluderer Tecnal udvendige rammer, Zampieri køkkener og sanitetsartikler af høj kvalitet på badeværelserne.
Hvordan er ejendomsmarkedet i Fuengirola i øjeblikket?
Fuengirola har et aktivt ejendomsmarked med mange transaktioner, drevet af både bolig- og turist efterspørgsel.
Hvilke sportsfaciliteter findes i nærheden?
Der findes flere sportscentre som Pabellón Juan Gómez Juanito (0,6 km) og golfbaner som Campo Los Lagos (3,8 km) i nærområdet.
Er der yderligere omkostninger udover købsprisen?
Udover købsprisen er der overdragelsesskatter, notarhonorarer, registreringsgebyrer og eventuelle realkreditomkostninger.
Hvordan foregår købsprocessen for en ikke-resident?
Processen omfatter erhvervelse af et NIE-nummer, åbning af en bankkonto, underskrivelse af en købsaftale og den endelige skøde hos notaren.
Hvor langt er der til den nærmeste strand?
Den nærmeste strand, Playa de San Francisco, ligger ca. 400 meter væk.
Maiko
Maiko
Boligekspert

Maiko er en ejendomsekspert med speciale i det spanske boligmarked. Med dybdegående kendskab til Costa del Sol, Costa Blanca og andre populære kystregioner hjælper han købere med at finde den rette ejendom. Han analyserer udbuddet baseret på beliggenhed, markedsværdi, byggekvalitet og livskvalitet og giver ærlig, datadrevet rådgivning under hele købsprocessen.

Svar inden for 24 timer

Interesseret?

Efterlad dine oplysninger og modtag information om ledighed, priser og plantegninger.

Tekniske fakta
Lejligheden har et boligareal på 89 m².
2 private parkeringspladser og et opbevaringsrum er inkluderet.
Ejendommen er BREEAM-certificeret.

Samtalehistorik

Stil et spørgsmål for at starte