3 Bed Detached Villa in Coín في Coín — فيلا منفصلة
فيلا منفصلة

فيلا منفصلة في كوين للبيع

في ضواحي كوين، توفر هذه الفيلا المكونة من ثلاثة طوابق أسلوب حياة قريب من الطبيعة. توفر النوافذ الضخمة الممتدة من الأرض حتى السقف في الطابق الأرضي الكثير من الضوء لدرجة أنه يمكنك أن تنسى بسهولة ما إذا كنت بالداخل أو الخارج، في غرفة المعيشة أو على الشرفة. إنه شعور بالاستمرارية التامة. في كل ركن من أركان المنزل، يمكنك الشعور بالارتباط بالبيئة الطبيعية والحديقة والشرفة والمناظر الطبيعية، مع الاستمتاع بالمناظر الخلابة. التصميم مستوحى من المياه الشفافة لنهر بلوري ويساعدك على تقدير جمال الطبيعة والارتباط بها في كل زاوية من زوايا المنزل. شكله المكعب والنمطي يوفر مساحات مفتوحة كبيرة تساعدك على عيش حياة مريحة ومسترخية.

€850,000
3
غرف النوم
2
الحمامات
215 m²
مساحة المعيشة
€850,000
Prijs

تحليل المشروع

أهم خصائص الموقع، والوحدات، ومراحل المشروع، ونقاط الاهتمام.

الموقع

يقع هذا العقار في منطقة حضرية في كوين، ويوفر سهولة الوصول إلى المرافق. على الرغم من أنه يبعد حوالي 23 كم عن المطار، إلا أن العديد من وسائل الراحة في المدينة، مثل محلات السوبر ماركت والصيدليات، تقع على مسافة قريبة سيرًا على الأقدام، مما يجعل الحياة اليومية مريحة.

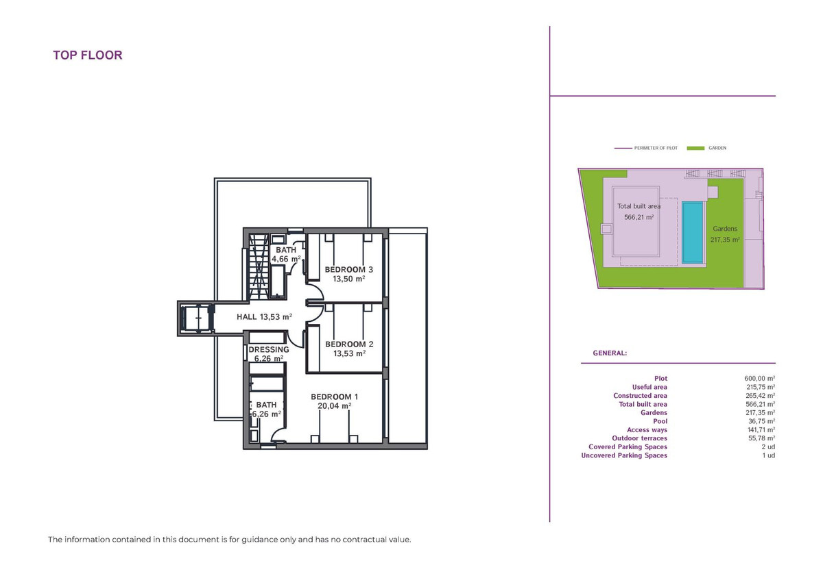
المخططات

تتميز الفيلا بمساحات مفتوحة واسعة وضوء طبيعي وفير، مما يجعلها مثالية للعائلات التي تبحث عن نمط حياة مريح ومسترخٍ. يوفر التصميم متعدد الطوابق الخصوصية، بينما تشجع الحديقة والشرفات على الحياة في الهواء الطلق، مما يلبي الرغبة في الاتصال بين الأماكن الداخلية والخارجية.

حالة المشروع

هذا المشروع عبارة عن فيلا قيد الإنشاء حاليًا في مرحلة التخطيط والبناء. يمكن للمشترين اختيار موقعهم من بين الأراضي المتاحة، ويمكن تعديل التصميم والتشطيبات وفقًا لتفضيلات العميل. سيعتمد تاريخ الانتهاء على العقد المحدد.

نقاط هامة

يقع العقار في الداخل، بعيدًا عن الشواطئ. في حين توجد بعض المرافق في المدينة، فإن امتلاك سيارة سيسهل التنقل إلى المناطق الأوسع أو المطار. العقار لا يوفر إطلالات على البحر؛ المناظر الرئيسية هي للجبال والمناطق الريفية والمناطق الحضرية.

نمط الحياة

ستكون هذه الفيلا خيارًا مناسبًا للعائلات التي تبحث عن مكان هادئ للعيش بالقرب من المرافق. يؤكد تصميمها على اندماج المساحات الداخلية والخارجية، مما يجعلها مثالية لأولئك الذين يقدرون الضوء الطبيعي والحياة في الهواء الطلق. يوفر التصميم المكون من ثلاثة طوابق مساحة وخصوصية كافية للعائلة. بالإضافة إلى ذلك، فإن ما يقرب من 3,866 ساعة من أشعة الشمس سنويًا تجعل هذا المكان جذابًا لأولئك الذين يتطلعون إلى الاستفادة القصوى من أشعة الشمس. بالنسبة لأولئك الذين يبحثون عن نمط حياة مريح، فإن القرب من المطاعم والمدارس والصيدليات يجعل الحياة اليومية بسيطة. يوفر هذا العقار فرصة للجمع بين السكن المريح ووسائل الراحة التي توفرها مدينة كوين، مع الاستمتاع أيضًا بالمناظر الطبيعية الريفية والجبلية.

الجودة والتشطيبات

تم تصميم الفيلا مع التركيز على التصميم الحديث والجودة. تتميز بنوافذ كبيرة ممتدة من الأرض حتى السقف، والتي توفر وفرة من الضوء الطبيعي وتخلق إحساسًا بالاستمرارية بين المساحات الداخلية والخارجية. ترتبط الطوابق ببعضها البعض عن طريق مصعد لسهولة الوصول. جميع غرف النوم مزودة بخزائن ملابس مدمجة. تحتوي غرفة النوم الرئيسية على حمام داخلي وغرفة ملابس وشرفة مغطاة. المطبخ مجهز بالكامل ويوفر ثلاث حزم تشطيب قياسية، ولكن يمكن للعملاء أيضًا اختيار خيارات مخصصة لتلبية أذواقهم الشخصية. سيتم تنسيق الحديقة بالنباتات الزخرفية، مما يزيد من جاذبية العقار.

البيئة ونمط الحياة

السعر والتوفر

تبدأ أسعار هذه الفيلا المنفصلة من 850,000 يورو. يضم العقار 3 غرف نوم وحمامين ومساحة معيشة تبلغ 215 مترًا مربعًا على قطعة أرض تبلغ مساحتها 609 مترًا مربعًا. نظرًا لكونه مشروعًا جديدًا، قد يختلف السعر الدقيق اعتمادًا على اختيار قطعة الأرض وحزم التشطيبات وأي خيارات مخصصة. يوفر المطور ثلاث حزم تشطيب قياسية، ولكن يمكن أيضًا تخصيصها وفقًا لتفضيلات العميل. يوصى بالاتصال للحصول على تفاصيل التسعير والتوافر.

€850,000
Prijs
3
غرف النوم
215 m²
مساحة المعيشة
2
الحمامات

البيئة المحيطة

كوين هي بلدة وبلدية يبلغ عدد سكانها حوالي 26,574 نسمة (اعتبارًا من عام 2025)، وتوفر حياة هادئة في بيئة حضرية. تقع البلدة على بعد حوالي 33 كم غرب عاصمة المقاطعة، مالقة، وحوالي 30 كم شمال ماربيا، مما يجعلها موقعًا ملائمًا. تشتهر المنطقة بحوالي 3,866 ساعة من ضوء الشمس سنويًا ومتوسط درجة حرارة سنوية تبلغ 18.0 درجة مئوية، وهي مثالية للاستمتاع بمناخ البحر الأبيض المتوسط. وتيرة الحياة مريحة نسبيًا، ولكن وجود وسائل الراحة مثل 7 مطاعم و 4 مدارس و 8 صيدليات يجعل الحياة اليومية سهلة. تضم المنطقة 24 مرفقًا رياضيًا و 12 محطة مواصلات عامة، مما يسهل على السكان ممارسة الأنشطة الرياضية والتنقل. في حين أن متوسط دخل الأسرة أقل من المتوسط في الأندلس، فإن تكلفة المعيشة في المنطقة قد تكون أكثر جاذبية.

طلب معلومات

الموقع والبيئة: Coín

البيئة والوصول

توفر مدينة كوين للسكان منطقة معيشة تجمع بين المرافق والبيئة الطبيعية. توجد في المدينة عدة مطاعم ومدارس وصيدليات، مما يضمن الوصول إلى الضروريات اليومية. توفر 24 مرفقًا رياضيًا للسكان مجموعة واسعة من خيارات الأنشطة الرياضية. يتكون نظام النقل العام من 7 خطوط و 12 محطة، مما يسهل التنقل. في حين أن السيارة خيار مريح، فإن العديد من الخدمات الأساسية تقع على مسافة قريبة. يتمتع هذا المجال بما يقرب من 3,866 ساعة من أشعة الشمس سنويًا، مما يجعله مثاليًا للاستمتاع بالأنشطة الخارجية.

الخريطة والموقع

توضح هذه الخريطة الموقع الجغرافي للفيلا في كوين. وهي تسلط الضوء على موقع العقار داخل بيئة حضرية وتحدد المرافق الهامة القريبة مثل محلات السوبر ماركت والصيدليات والمدارس. بالإضافة إلى ذلك، فإنها تشير إلى المسافات إلى المطار والشواطئ وملاعب الجولف، مما يوفر للمشترين المحتملين لمحة عامة عن سهولة الوصول إلى الموقع ونمط الحياة.

Old stone tower with arched windows, scenic hillside view, surrounded by greenery.

الموقع الإقليمي

تقع كوين في مقاطعة مالقة، على بعد حوالي 33 كم من عاصمتها مالقة وحوالي 30 كم من منتجع ماربيا الساحلي. تقع في وادٍ، وتوفر أجواء ريفية أكثر هدوءًا مقارنة بالمناطق الساحلية. تعمل المدينة كبوابة تربط المدن الساحلية بالمناطق الداخلية، مما يوفر للسكان سهولة استكشاف منطقة كوستا ديل سول بأكملها.

المرافق والوصول

يقع العقار في كوين، على بعد حوالي 23 كم (خط مستقيم) من مطار مالقة كوستا ديل سول (AGP)، مما يوفر سهولة السفر الدولي. يقع أقرب سوبر ماركت (485 م) وصيدلية (161 م) على مسافة قريبة. بالنسبة لعشاق الجولف، يقع ملعب Lauro Golf على بعد حوالي 11 كم. يوجد 7 مطاعم و 4 مدارس و 8 صيدليات في المنطقة المجاورة. تقع الشواطئ على بعد حوالي 17 كم. وسائل النقل العام جيدة، مع 7 خطوط و 12 محطة حافلات، ولكن يوصى بامتلاك سيارة لراحة إضافية.

Malaga-Costa del Sol (AGP) 23 km
Gibraltar (GIB) 78 km

المصدر: OpenStreetMap, Google Maps

Luxury villa with panoramic mountain view, private pool, and spacious living areas.

الطبيعة والمناخ

Cozy apartment with balcony, city view, modern kitchen, and large windows.

تقع كوين على ارتفاع 191 مترًا فوق مستوى سطح البحر وتتمتع بمناخ البحر الأبيض المتوسط المعتدل، بمتوسط درجة حرارة سنوية 18.0 درجة مئوية، وتتراوح درجات الحرارة عادة بين 10 درجات مئوية و 27 درجة مئوية. توفر حوالي 3,866 ساعة من أشعة الشمس سنويًا فرصًا وفيرة للأنشطة الخارجية. في حين أن موسم السباحة الرسمي يستمر لمدة 4 أشهر فقط (درجة حرارة الماء ≥20 درجة مئوية)، فإن معظم أوقات السنة مناسبة للاستمتاع بالمناظر الطبيعية للمنطقة. المنطقة محاطة بالمناظر الريفية، وتوفر للسكان بيئة هادئة.

3866 ساعات الشمس/سنة
4 موسم السباحة (أشهر)
18.0°C متوسط الحرارة السنوي
191m الارتفاع

المصدر: Open-Meteo (2020–2025 متوسط)

الشواطئ والترفيه

بينما لا يقع كوين نفسه على الساحل، إلا أن شواطئ البحر الأبيض المتوسط ليست بعيدة عن البلدة؛ أقرب الشواطئ (Playa Torreblanca-Carvajal و Playa de los Boliches) على بعد حوالي 17 كم. بالنسبة لعشاق الجولف، يقع Lauro Golf على بعد حوالي 11.5 كم، بينما يبعد Campo Europa و Campo América حوالي 13.3 كم. يوجد في المدينة العديد من حمامات السباحة البلدية، بما في ذلك Piscina Municipal Juan Montes Hoyo (0.5 كم). بالإضافة إلى ذلك، توجد 24 منشأة رياضية في المنطقة، تلبي الاحتياجات الترفيهية المتنوعة.

Golf

  • Lauro Golf 11.5 km
  • Campo Europa 13.3 km
  • Campo América 13.8 km
  • Santana Golf & Country Club 14.1 km

مرافق رياضية

24 المرافق المتاحة

المصدر: OpenStreetMap, CSD

الموقع الإقليمي

تقع كوين في مقاطعة مالقة، على بعد حوالي 33 كم من عاصمتها مالقة وحوالي 30 كم من منتجع ماربيا الساحلي. تقع في وادٍ، وتوفر أجواء ريفية أكثر هدوءًا مقارنة بالمناطق الساحلية. تعمل المدينة كبوابة تربط المدن الساحلية بالمناطق الداخلية، مما يوفر للسكان سهولة استكشاف منطقة كوستا ديل سول بأكملها.

دليل المنطقة: Coín

Coín is a town and municipality in the Province of Málaga, Spain, c. 33 km west of the provincial capital, Málaga, and about 30 km north of Marbella. The town has an official population of 22,000 inhabitants.

حقائق أساسية

المناخ

الشهر متوسط الحرارة معدل الأمطار
يناير 10.5°C 60 mm
فبراير 11.0°C 64 mm
مارس 13.3°C 59 mm
أبريل 15.6°C 43 mm
مايو 18.0°C 35 mm
يونيو 22.6°C 9 mm
يوليو 26.7°C 1 mm
أغسطس 27.0°C 2 mm
سبتمبر 22.9°C 15 mm
أكتوبر 18.4°C 57 mm
نوفمبر 14.1°C 79 mm
ديسمبر 11.1°C 67 mm

المرافق القريبة

7 restaurant
4 school
8 pharmacy

الارتفاع والتضاريس

191m الارتفاع

معالم قريبة

نقاط مشاهدة

ملاعب الغولف

مسابح

مراكز رياضية

النقل والوصول

23 km Malaga-Costa del Sol (AGP)
78 km Gibraltar (GIB)
412 km Alicante-Elche (ALC)

تفاصيل المشروع

المشروع 3 Bed Detached Villa in Coín
المدينة Coín
المنطقة Costa del Sol
Prijs €850,000
مساحة المعيشة 215 m²
السعر لكل م² €3,953 / m²
غرف النوم 3
الحمامات 2
موقف سيارات نعم
مسبح نعم
حديقة نعم
حالة البناء for_sale
تاريخ الإنجاز 2024
تاريخ النشر 2026-04-19

Ref: VL948758

المصدر: Wikipedia, Wikidata, INE, Junta de Andalucía

ملخص

  • فيلا منفصلة جديدة من ثلاثة طوابق في كوين، تبدأ من 850,000 يورو.
  • 3 غرف نوم، 2 حمام، 215 متر مربع مساحة معيشة، قطعة أرض 609 متر مربع.
  • قريبة من مرافق المدينة، على مسافة قريبة من محلات السوبر ماركت والصيدليات، وتبعد 23 كم عن المطار.
  • مساحات معيشة داخلية وخارجية واسعة، نوافذ ممتدة من الأرض حتى السقف، مسبح خاص وشرفة مغطاة.
  • تصميم قابل للتخصيص، مع خيار المصعد، تقع في منطقة توفر إطلالات على الجبال والمناطق الريفية.

مقارنة إقليمية

مقارنة بـ Acqua Gardens في إستيبونا (تبدأ من 418,800 يورو) و Aby Upper (تبدأ من 320,000 يورو)، فإن الفيلا في كوين ذات سعر أعلى، مما يعكس مواصفات الفيلا المنفصلة وحجم قطعة الأرض. عادة ما تكون المشاريع في إستيبونا أقرب إلى الشاطئ، بينما توفر المشاريع في كوين الهدوء الداخلي ومساحة معيشة أكبر. مقارنة بـ Alba Benalmadena في Benalmádena (تبدأ من 699,000 يورو)، فإن الفيلا في كوين قابلة للمقارنة من حيث السعر وعدد غرف النوم، ولكن قد يوفر Alba Benalmadena موقعًا أكثر ملاءمة بالقرب من الساحل. يوفر موقع كوين أسلوب حياة مختلف عن المنتجعات الساحلية، مع التركيز بشكل أكبر على المجتمع المحلي والمناظر الطبيعية الريفية، مع الاحتفاظ بسهولة الوصول إلى مالقة والساحل.

الأسئلة الشائعة

ما هي المسافة إلى البحر من هذه الفيلا؟
أقرب شاطئ (Playa Torreblanca-Carvajal) يبعد حوالي 17 كم (خط مستقيم) عن الفيلا.
ما هي المسافة إلى مطار مالقة؟
يبعد مطار مالقة كوستا ديل سول (AGP) حوالي 23 كم (خط مستقيم) عن الفيلا.
هل توجد مصعد في الفيلا؟
نعم، يوجد مصعد في الفيلا يربط جميع الطوابق، بما في ذلك الطابق السفلي.
ما هي حالة سوق العقارات في كوين؟
سوق العقارات في كوين نشط، مع 321 صفقة مسجلة. يبلغ متوسط دخل الأسرة في المنطقة 16,450 يورو، مما يشير إلى القدرة على تحمل التكاليف المحتملة العالية مقارنة بمناطق أخرى في إسبانيا.
ما هي المرافق الموجودة في المنطقة؟
توجد 7 مطاعم و 4 مدارس و 8 صيدليات بالقرب من الفيلا. يقع أقرب سوبر ماركت على بعد 485 مترًا، وأقرب صيدلية على بعد 161 مترًا.
ما هي التكاليف الأخرى بالإضافة إلى سعر الشراء؟
بالإضافة إلى سعر البدء البالغ 850,000 يورو، يجب على المشترين مراعاة ضرائب الشراء، ورسوم كاتب العدل والتسجيل، بالإضافة إلى أي رسوم صيانة محتملة للعقار وضرائب البلدية.
ما هي عملية الشراء؟
تتضمن عملية الشراء عادةً اتفاقية حجز، وتوقيع عقد شراء خاص، والتوقيع النهائي أمام كاتب عدل. يوصى بالتشاور مع متخصص قانوني للحصول على إرشادات مفصلة.
كيف هي بيئة كوين؟
كوين هي بلدة داخلية توفر وسائل الراحة في بيئة حضرية، مع قربها من المناظر الطبيعية الريفية. إنها قريبة من مالقة والساحل، مما يوفر مزيجًا من الراحة والهدوء.
Maiko
Maiko
خبير عقاري

مايكو خبير عقاري متخصص في سوق العقارات الإسبانية. من خلال معرفته العميقة بكوستا ديل سول وكوستا بلانكا والمناطق الساحلية الشهيرة الأخرى، يساعد المشترين في العثور على العقار المناسب. يقوم بتحليل العروض بناءً على الموقع والقيمة السوقية وجودة البناء وقابلية السكن، ويقدم نصائح صادقة مدعومة بالبيانات طوال عملية الشراء بأكملها.

رد خلال 24 ساعة

مهتم؟

اترك بياناتك واحصل على معلومات عن التوفر، والأسعار، والمخططات.

المواصفات الفنية
نوع المشروع: فيلا منفصلة
الموقع: كوين، مالقة
السعر يبدأ من: 850,000 يورو

Conversation history

Ask a question to start