4 Bed Detached Villa in Moraira in Moraira — Vrijstaande Villa
Vrijstaande Villa

Moderne Villa te Koop in Moraira

Deze nieuw te bouwen villa biedt een moderne woonervaring in de populaire kustplaats Moraira, aan de Costa Blanca. Met 4 slaapkamers en 4 badkamers, verdeeld over twee verdiepingen, combineert het ontwerp strakke architectuur met natuurlijke materialen. Gelegen in een stedelijke omgeving met voorzieningen op loopafstand, biedt deze residentie een comfortabele leefomgeving. De strategische ligging nabij stranden en golfbanen, gecombineerd met de zonnige climate, maakt dit een aantrekkelijke optie voor zowel permanente bewoning als een vakantieverblijf.

€1.549.000
4
Slaapkamers
4
Badkamers
190 m²
Woonoppervlak
€1.549.000
Prijs

Samenvatting

  • Nieuwbouwvilla met 4 slaapkamers en 4 badkamers in Moraira.
  • Gelegen in een stedelijke omgeving met voorzieningen op loopafstand.
  • Nabijheid van stranden (282m) en golfbanen (2.5km).
  • Moderne architectuur met focus op binnen-buitenleven.
  • Prijs vanaf €1,549,000 met moderne afwerking en comfort.

Regionale vergelijking

In vergelijking met andere projecten aan de Costa Blanca, zoals ICONIC in Gran Alacant (vanaf €355,000) of LAS COLINAS in Pedreguer (vanaf €529,000), positioneert deze villa zich in het hogere segment, zowel qua prijs als qua exclusiviteit. De vanaf prijs van €1,549,000 plaatst het project naast luxere ontwikkelingen. Projecten in Pedreguer, zoals SPEC VILLA 148 - MONTE SOLANA (vanaf €845,000), bieden mogelijk vergelijkbare kenmerken, maar de directe kustnabijheid en stedelijke voorzieningen van Moraira zijn onderscheidend. De focus op nieuwbouw met moderne voorzieningen in een gevestigde kustplaats zoals Moraira, trekt kopers aan die specifiek op zoek zijn naar deze combinatie van ligging, comfort en prijsniveau. De prijs per vierkante meter en de perceelgrootte in Moraira zijn over het algemeen hoger dan in meer landinwaarts gelegen gebieden.

Veelgestelde vragen

Wat is de meerprijs voor specifieke afwerkingskeuzes?
Specifieke afwerkingskeuzes en optionele aanpassingen kunnen leiden tot meerprijs. Vraag de projectontwikkelaar om een gedetailleerde prijslijst.
Hoe ver is het van de woning naar de dichtstbijzijnde luchthaven?
De luchthaven Alicante-Elche (ALC) ligt op circa 76 km hemelsbreed, en Valencia (VLC) op circa 98 km hemelsbreed.
Welke verwarmings- en koelingssystemen zijn geïnstalleerd?
De villa is uitgerust met ducted air conditioning en pre-installatie voor vloerverwarming.
Is dit een populaire locatie voor zowel permanente bewoning als vakantieverhuur?
Moraira is een populaire bestemming voor zowel permanente bewoning als vakantieverhuur vanwege het klimaat en de voorzieningen.
Hoe ver is het naar de dichtstbijzijnde supermarkt en het strand?
De dichtstbijzijnde supermarkt is 164 meter. Het dichtstbijzijnde strand, Platja de l'Ampolla, ligt op 282 meter hemelsbreed.
Welke bijkomende kosten zijn er naast de aankoopprijs?
Bijkomende kosten omvatten overdrachtsbelasting, notariskosten, registratierechten en eventuele hypotheekkosten.
Wat is de typische aankoop procedure voor nieuwbouw in Spanje?
De procedure omvat doorgaans reservering, ondertekenen van een koopcontract met aanbetaling, en de uiteindelijke overdracht bij de notaris na voltooiing van de bouw.
Is er openbaar vervoer beschikbaar nabij de villa?
Ja, er zijn zes OV-haltes en twee OV-lijnen in de nabije omgeving.

Projectanalyse

Belangrijkste kenmerken van locatie, woningen, projectfase en aandachtspunten.

Locatie

De villa is gesitueerd in een stedelijk gebied van Moraira, met directe toegang tot lokale voorzieningen. Voorzieningen zoals winkels en restaurants zijn op loopafstand bereikbaar, wat bijdraagt aan het dagelijks gemak. De nabijheid van de kustlijn en diverse stranden versterkt de aantrekkelijkheid van deze locatie voor liefhebbers van het kustleven.

Woningindeling

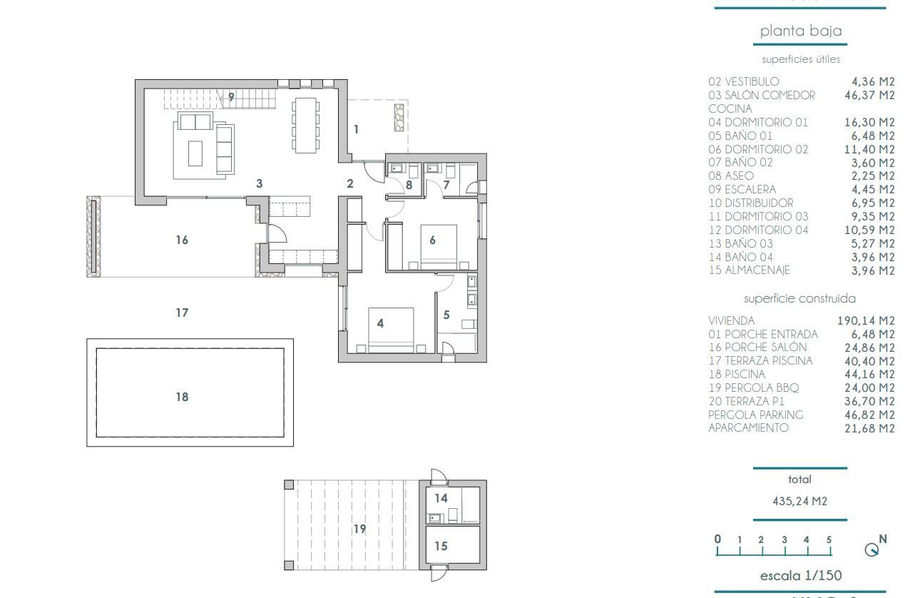
Met vier slaapkamers en vier badkamers is deze villa ontworpen om comfort te bieden aan gezinnen of gasten. De indeling over twee verdiepingen zorgt voor een functionele scheiding tussen leef- en privéruimtes. Een privézwembad, overdekt terras en barbecuefaciliteiten dragen bij aan een ontspannen levensstijl, ideaal voor wie zoekt naar comfort en buitenleven.

Projectstatus

Dit project betreft een nieuwbouw villa, momenteel nog in de plannings- of bouwfase. De oplevering wordt verwacht in de nabije toekomst. Als nieuwbouwproject profiteert het van moderne bouwtechnieken en ontwerpprincipes, met een focus op energie-efficiëntie en hedendaags comfort. Gedetailleerde planning en opleveringsdata zijn op aanvraag beschikbaar.

Aandachtspunten

Dit project is een nieuwbouwwoning en biedt geen bestaande geschiedenis of karakteristieken van een oudere woning. De directe omgeving is stedelijk, wat betekent dat er minder natuurlijke, afgelegen rust is dan in landelijke gebieden. Het is primair een residentiële ontwikkeling, gericht op wooncomfort, en minder op commerciële of recreatieve faciliteiten op de directe locatie.

Lifestyle & Omgeving

Deze villa is geschikt voor een breed scala aan kopers. Voor gezinnen biedt de aanwezigheid van vier slaapkamers voldoende ruimte, en de nabijheid van voorzieningen zoals scholen en sportfaciliteiten maakt het een praktische keuze voor permanent verblijf. Tweeverdieners kunnen profiteren van de locatie nabij golfbanen en stranden voor recreatieve doeleinden, terwijl het ook een aantrekkelijke optie is voor investeerders die zoeken naar verhuurpotentieel in een populaire toeristische regio. De moderne architectuur en de levensstijl aan de Costa Blanca zullen kopers aanspreken die houden van een zonnige en actieve omgeving, met de mogelijkheid om te genieten van het buitenleven het grootste deel van het jaar. De stedelijke ligging met voorzieningen op loopafstand betekent dat deze woning ook geschikt is voor wie minder afhankelijk wil zijn van een auto.

Bouwkwaliteit & Afwerking

De villa wordt gebouwd met een focus op moderne architectuur en duurzame materialen. De specificaties omvatten doorlopende airconditioning en pre-installatie voor vloerverwarming, wat zorgt voor comfort gedurende het hele jaar. De ramen zijn voorzien van dubbel glas voor thermische en akoestische isolatie. De afwerking combineert een strak design met natuurlijke elementen zoals steen. De keuken en woonkamer bieden directe toegang tot terrassen en het zwembad, wat de binnen-buitenbeleving versterkt. De buitenruimte is ontworpen voor laag onderhoud, met een pergola voor schaduw en een barbecue voor buiten koken.

Prijs & Context

Prijs & Beschikbaarheid

De vraagprijs voor deze vrijstaande villa bedraagt €1,549,000. Dit betreft de prijs voor het gehele object, inclusief perceel, bouw en afwerking. Als nieuwbouwproject kan de prijs variëren afhankelijk van de specifieke afwerkingskeuzes van de koper en eventuele aanpassingen tijdens het bouwproces. De beschikbaarheid wordt bepaald door de voortgang van de bouw en de verkoopfase. Potentiële kopers wordt aangeraden contact op te nemen voor de meest actuele prijsinformatie en beschikbaarheidsstatus van de villa.

€1.549.000
Prijs
4
Slaapkamers
190 m²
Woonoppervlak
4
Badkamers

Context & Omgeving

Moraira staat bekend als een charmante kustplaats die een meer ingetogen sfeer biedt dan sommige van haar grotere buren. De projectlocatie, Pinar de L'Advocat, is een stedelijke wijk binnen Moraira, wat betekent dat essentiële voorzieningen zoals supermarkten op korte afstand liggen. De dagelijkse routine kan worden gevuld met korte wandelingen naar lokale winkels voor verse producten, of een bezoek aan een van de nabijgelegen cafés. De nabijheid van stranden zoals Platja de l'Ampolla (282 m) en Cala del Portitxol (663 m) nodigt uit tot ontspanning aan zee. De aanwezigheid van golfbanen zoals Club de Golf Ifach (2.5 km) en Club de Golf Jávea (6.4 km) trekt sportliefhebbers aan. De omgeving combineert het gemak van stedelijke voorzieningen met de rust van de kust, kenmerkend voor de Costa Blanca.

Informatie aanvragen

Locatie: Moraira

Wonen & Omgeving

Moraira, gelegen aan de Costa Blanca, biedt een aangename leefomgeving die bekend staat om zijn mildere klimaat en zonnige dagen. De gemiddelde jaartemperatuur ligt rond de 17.5°C, met 3.840 zonuren per jaar, wat een lang zwemseizoen van ongeveer vier maanden mogelijk maakt. De hoogte van 185 meter boven zeeniveau draagt bij aan een aangenaam klimaat. Hoewel de projectlocatie stedelijk is, is de nabijheid van natuurlijke gebieden en stranden een belangrijk kenmerk. De omgeving is relatief rustig, vooral buiten het hoogseizoen, en biedt een hoge mate van leefbaarheid.

Kaart & Locatie

Dit project is gelegen in Moraira, een kustplaats aan de Costa Blanca in de provincie Alicante. De locatie wordt gekenmerkt door de nabijheid van de Middellandse Zee, met diverse stranden en jachthavens in de directe omgeving. De stedelijke opzet biedt gemakkelijke toegang tot dagelijkse voorzieningen, terwijl de omliggende heuvels en golfbanen zorgen voor recreatieve mogelijkheden.

Alt text: Cozy balcony apartment with street view, featuring a small balcony and shuttered windows.

Locatie in de regio

Moraira bevindt zich aan de noordelijke Costa Blanca, een regio die bekend staat om zijn kustlijn en aangename klimaat. De stad ligt ongeveer 80 km ten noorden van Alicante en 100 km ten zuiden van Valencia, waardoor het strategisch gepositioneerd is tussen twee belangrijke stedelijke centra. De directe omgeving is een mix van kustlandschap en heuvelachtig terrein, met traditionele Spaanse dorpen en moderne ontwikkelingen. De regio biedt een hoge levenskwaliteit door de combinatie van natuurlijke schoonheid, uitgebreide voorzieningen en een actieve levensstijl.

Bereikbaarheid & Voorzieningen

Deze villa is gunstig gelegen ten opzichte van diverse voorzieningen. Stranden zoals Platja de l'Ampolla zijn hemelsbreed slechts 282 meter verwijderd, en andere stranden zoals Cala del Portitxol (663 m) en Platja de les Platgetes (672 m) zijn ook gemakkelijk bereikbaar. De dichtstbijzijnde supermarkt bevindt zich op 164 meter afstand. Voor golfers zijn er meerdere banen binnen een straal van 14 km, waaronder Club de Golf Ifach (2.5 km). Het ziekenhuis is op 15 km afstand. De bereikbaarheid per auto is goed, met een EV-laadpaal op 4.5 km. Er zijn zes haltes voor openbaar vervoer binnen de omgeving, met twee OV-lijnen die de verbindingen verzorgen. De luchthavens van Alicante-Elche (ALC) en Valencia (VLC) bevinden zich op respectievelijk circa 76 km en 98 km hemelsbreed, wat een redelijke reistijd impliceert.

Alicante-Elche (ALC) 76 km
Valencia (VLC) 98 km
Teulada 0,3 km
Benissa 2,7 km

Bron: OpenStreetMap, Google Maps

Old rustic house with arched entry, palm tree, and power lines, rural setting.

Natuur & Klimaat

Traditional building with two flags, arched windows, and a mural.

Moraira geniet van een mediterraan klimaat, gekenmerkt door milde winters en warme zomers. De gemiddelde jaartemperatuur van 17.5°C en meer dan 3.800 zonuren per jaar creëren omstandigheden die ideaal zijn voor buitenleven. Het zwemseizoen, gedefinieerd door watertemperaturen van 20°C of hoger, duurt ongeveer vier maanden. De hoogte van 185 meter boven zeeniveau biedt een aangenaam microklimaat, weg van de directe kusthitte. De omgeving kent milde hellingen, wat bijdraagt aan de pittoreske landschappen. Lokale feestdagen tellen 32 per jaar, wat de culturele rijkdom van de regio weerspiegelt.

3840 Zonuren/jaar
4 Zwemseizoen (maanden)
17.5°C Gem. jaartemperatuur
180m Hoogte

Bron: Open-Meteo (2020–2025 gemiddelde)

Stranden & Recreatie

De kustlijn rond Moraira biedt diverse recreatieve mogelijkheden, met verschillende stranden binnen handbereik. Platja de l'Ampolla ligt op slechts 282 meter, terwijl Cala del Portitxol en Platja de les Platgetes ook dichtbij zijn. Deze stranden zijn geschikt voor zwemmen en zonnebaden. Voor watersporters zijn er jachthavens zoals Club Náutico Moraira (5.6 km). Golf is een belangrijke activiteit in de regio, met Club de Golf Ifach (2.5 km) en Club de Golf Jávea (6.4 km) in de buurt. Sportfaciliteiten, waaronder gemeentelijke sportcentra en atletiekbanen, zijn ook beschikbaar binnen een paar kilometer, wat diverse mogelijkheden voor fysieke activiteit biedt.

Golf

  • Club de Golf Jávea 4,5 km
  • Club de Golf Ifach 4,9 km
  • Llebeig 8,9 km
  • Gregal 9,3 km

Bron: OpenStreetMap

Traditional building with arched windows, balcony, and flags.

Locatie in de regio

Moraira bevindt zich aan de noordelijke Costa Blanca, een regio die bekend staat om zijn kustlijn en aangename klimaat. De stad ligt ongeveer 80 km ten noorden van Alicante en 100 km ten zuiden van Valencia, waardoor het strategisch gepositioneerd is tussen twee belangrijke stedelijke centra. De directe omgeving is een mix van kustlandschap en heuvelachtig terrein, met traditionele Spaanse dorpen en moderne ontwikkelingen. De regio biedt een hoge levenskwaliteit door de combinatie van natuurlijke schoonheid, uitgebreide voorzieningen en een actieve levensstijl.

Omgevingsgids: Moraira

Moraira is een oud Spaans vissersdorpje aan de Costa Blanca dat is uitgegroeid tot een toeristische badplaats. Moraira behoort tot de gemeente Teulada, onderdeel van de comarca Marina Alta. De plaats ligt in de provincie Alicante, deel van de autonome gemeenschap Valencia.

Kernfeiten

12.912 Inwoners
185m Hoogte
32.2 km² Oppervlakte

Klimaat

Maand Gem. temperatuur Neerslag
Januari 10.5°C 68 mm
Februari 10.7°C 41 mm
Maart 13.0°C 45 mm
April 15.0°C 44 mm
Mei 17.8°C 43 mm
Juni 21.9°C 21 mm
Juli 25.1°C 7 mm
Augustus 25.7°C 10 mm
September 22.9°C 44 mm
Oktober 18.7°C 87 mm
November 14.6°C 76 mm
December 11.2°C 61 mm

Voorzieningen in de buurt

5 restaurant
3 bank
1 cafe

Hoogte & Terrein

180m Hoogte

Bezienswaardigheden

Jachthavens

Golfbanen

Sportcentra

Transport & Bereikbaarheid

76 km Alicante-Elche (ALC)
98 km Valencia (VLC)
465 km Malaga-Costa del Sol (AGP)
0,3 km Teulada
2,7 km Benissa
5,3 km Gata

Projectdetails

Projectnaam 4 Bed Detached Villa in Moraira
Stad Moraira
Regio Costa Blanca
Prijs €1.549.000
Woonoppervlak 190 m²
Gem. prijs per m² €8.152 / m²
Slaapkamers 4
Badkamers 4
Parkeren Nee
Zwembad Nee
Tuin Nee
Bouwstatus for_sale
Oplevering 1970
Gepubliceerd 2026-04-20

Ref: VL239679

Bron: Wikipedia, Wikidata, INE, Junta de Andalucía

Maiko
Maiko
Vastgoedexpert

Maiko is vastgoedexpert gespecialiseerd in de Spaanse woningmarkt. Met diepgaande kennis van de Costa del Sol, Costa Blanca en andere populaire kustregio's helpt hij kopers bij het vinden van de juiste woning. Hij analyseert aanbod op basis van locatie, marktwaarde, bouwkwaliteit en leefbaarheid, en geeft eerlijk, datagedreven advies gedurende het hele aankoopproces.

Reactie binnen 24 uur

Geïnteresseerd?

Laat uw gegevens achter en wij nemen spoedig contact met u op met meer informatie over dit project.

Technische gegevens
De villa is 190 m² woonoppervlak op een perceel van 800 m².
De dichtstbijzijnde supermarkt is 164 meter van de locatie.
Er zijn 6 OV-haltes en 2 OV-lijnen in de nabije omgeving.
Het lokale klimaat kent een gemiddelde jaartemperatuur van 17.5°C.
Er zijn 3840 zonuren per jaar geregistreerd.

Gesprekgeschiedenis

Stel een vraag om te beginnen