3 Bed Townhouse in San Roque i San Roque — Rækkehus
Rækkehus

Rækkehus i San Roque, Cádiz til salg

Dette rækkehus i San Roque, Cádiz, tilbyder 280 m² boligareal med 3 soveværelser og 3 badeværelser, hvilket skaber en eksklusiv livsstil. Beliggende i et roligt, landligt miljø tæt på kysten, kombinerer det nærheden til vigtige faciliteter med afsides beliggenhed i et naturskønt område. Ejendommen, en del af et lukket boligområde med 24-timers sikkerhed, er kendetegnet ved højkvalitets konstruktion og finish, designet til komfortabel og stilfuld bolig. Med en anlagt grund på 164 m² og en pris fra €765.000, repræsenterer dette objekt et attraktivt valg for kræsne købere.

€765.000
3
Soveværelser
3
Badeværelser
280 m²
Boligareal
€765.000
Prijs
3,7 km
Afstand til strand

Projektanalyse

Nøglekendetegn ved beliggenhed, boliger, projektets fase og punkter at være opmærksom på.

Beliggenhed

Rækkehuset ligger i San Roque, Cádiz, i et roligt, landligt miljø med udsigt over naturen og golfbaner. Nærheden til Sotogrande og kysten understreger den eksklusive beliggenhed. Selvom en bil er nødvendig for daglige gøremål, letter den gode adgang til lokal infrastruktur mobiliteten.

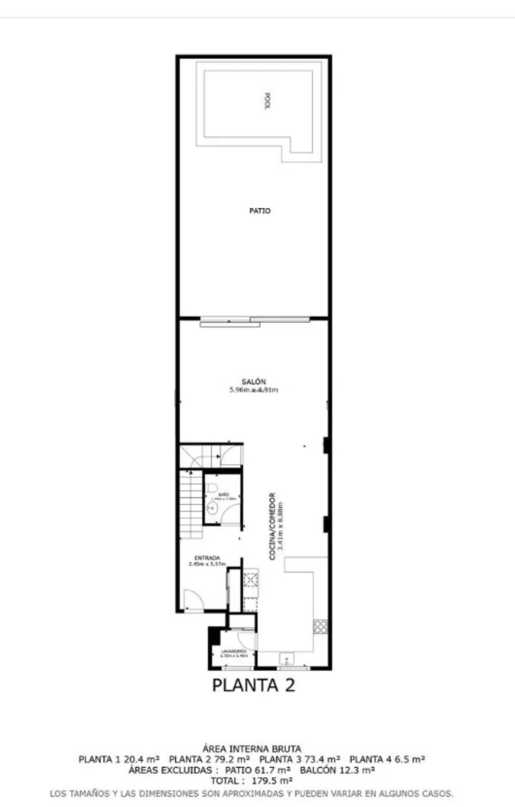
Plantegning

Dette objekt henvender sig til købere, der værdsætter en kombination af ro, natur og faciliteter af høj kvalitet. De velindrettede opholdsrum, de private udendørsarealer og fællesfaciliteter som pool og spa appellerer til en målgruppe, der søger både komfort og tryghed.

Projektstatus

Ejendommen, bygget i 2022, har et moderne design og er i fremragende stand. Den tilbyder moderne faciliteter, en gennemtænkt rumfordeling og optimeret energieffektivitet, hvilket afspejler en forpligtelse til kvalitetsboliger.

Vigtige bemærkninger

Projektet tilbyder ingen direkte offentlige transportforbindelser til daglige behov, hvilket gør et eget køretøj nødvendigt. Desuden ligger boligkomplekset ikke direkte ved havet, men i rimelig afstand fra strandene. Der er ingen tilgængelig information om tilstedeværelsen af en elevator i huset.

Projektdetaljer

Projekt 3 Bed Townhouse in San Roque
By San Roque
Region Costa del Sol
Prijs €765.000
Boligareal 280 m²
Pris pr. m² €2.732 / m²
Terrasse 142 m²
Soveværelser 3
Badeværelser 3
Parkering Ja
Pool Ja
Have Ja
Byggestatus for_sale
Afstand til strand 3,7 km
Afsluttet 2022
Grundskyld/år €700
Publiceret 2026-04-19

Ref: VL815144

Kilde: Wikipedia, Wikidata, INE, Junta de Andalucía

Livsstil & omgivelser

Dette rækkehus passer til en række livssituationer. Det er ideelt for familier, der søger et trygt og veludstyret miljø for deres børn, takket være nærheden til skoler og fritidsfaciliteter. Professionelle vil sætte pris på den korte transporttid til vigtige forretningscentre, med fordelen af nærhed til Sotogrande og gode vejforbindelser. Golfentusiaster vil finde deres paradis her, omgivet af flere anerkendte golfbaner. Det er også et fremragende valg for dem, der søger ro og sætter pris på landskabet og naturen. Muligheden for korttidsudlejning gør det også attraktivt for investorer, der ønsker at opnå afkast.

Byggekvalitet & materialer

Ejendommen udmærker sig ved fremragende udførelseskvalitet, der afspejles i byggeåret 2022. Høje lofter, store vinduer og en gennemtænkt rumfordeling skaber en lys og luftig boligatmosfære. Klimaanlægget (varmt og koldt) sikrer behagelige temperaturer året rundt. Højkvalitetsmaterialer er anvendt både indendørs og udendørs, hvilket fremgår af det moderne køkken med premium-apparater og de elegante badeværelser. Sydvestlig orientering garanterer optimalt sollys, mens private terrasser og have giver ekstra plads til udendørs afslapning. Komplekset har fælles pools og velholdte grønne områder.

Omgivelser & livsstil

Pris & ledighed

Rækkehuset udbydes fra €765.000. Det har 3 soveværelser og 3 badeværelser på et boligareal på 280 m². Grunden er på 164 m². Ejendommen er i fremragende stand og blev færdiggjort i 2022. Priserne kan variere afhængigt af den specifikke placering inden for komplekset og udstyrsdetaljer. Der er i øjeblikket ingen andre enheder med afvigende priser eller konfigurationer opført.

€765.000
Prijs
3
Soveværelser
280 m²
Boligareal
3
Badeværelser
€700
Grundskyld/år

Omgivelser & livsstil

Dette boligkompleks i San Roque, Cádiz, tilbyder en fredelig tilværelse, præget af sin nærhed til golfbaner i verdensklasse og et malerisk landskab. Omgivelserne giver en afslappende kulisse, ideel for dem, der søger en pause fra byens travlhed. Livet her styres af en rytme, der tillader både afslapning og adgang til fritidsaktiviteter. Den strategiske beliggenhed sikrer, at vigtige faciliteter som butikker, skoler og sundhedspleje er let tilgængelige, mens det lukkede område sikrer tryghed og privatliv. Husets arkitektur, med sin sydvestlige orientering og store vinduer, maksimerer naturligt lysindfald og udsigten over den omgivende natur, golfbanerne og havet.

Anmod om oplysninger

Beliggenhed & omgivelser: San Roque

Omgivelser & tilgængelighed

San Roque, Cádiz, tilbyder en livskvalitet præget af en kombination af landlig ro og bymæssige faciliteter i nærheden. Området er gennemsyret af natur og golfbaner, med strande som Playa de Puente Mayorga-Campamento kun 3,7 km væk. Infrastrukturen er veludviklet: supermarkeder og apoteker er tilgængelige inden for 3,3 km, og nærmeste hospital ligger 4,8 km væk. Internationale skoler ligger ca. 7,5 km væk. God tilgængelighed til Sotogrande og nærhed til vigtige transportruter muliggør hurtig forbindelse til større byer.

Kort & beliggenhed

Dette rækkehus ligger i San Roque, en kommune i provinsen Cádiz, kendt for sin strategiske beliggenhed mellem Costa del Sol og Costa de la Luz. Omgivelserne kombinerer en idyllisk landlig livsstil med nærhed til kystbyer, golfbaner og Gibraltar Lufthavn.

Alt text: "Panoramic waterfront view with a long bridge and partly cloudy sky.

Beliggenhed i regionen

San Roque, beliggende i provinsen Cádiz, udgør et vigtigt knudepunkt på Costa del Sol, tæt på grænsen til Costa de la Luz. Denne strategiske placering giver adgang til faciliteterne og livsstilen på begge kyststrækninger. Nærheden til Gibraltar (ca. 7 km) og Costa del Sol tilbyder en dynamisk blanding af spansk kultur og international flair. Regionen er kendt for sine golfbaner, strande og luksuriøse marinaer som Sotogrande, hvilket gør den til et eftertragtet boligområde.

Tilgængelighed & faciliteter

Tilgængeligheden til dette rækkehus defineres af dets beliggenhed. Strandene ligger mellem 3,7 km og 4,7 km væk. Gibraltar Lufthavn (GIB) ligger kun 7,2 km væk, hvilket muliggør korte rejsetider. Til dagligvarer er der et supermarked 3,3 km væk, samt et apotek. Flere anerkendte golfbaner, herunder La Hacienda Links Golf Resort, er tilgængelige på under 8 km. Vejnettet er godt forbundet, med en motorvej i nærheden, der tilbyder hurtige forbindelser til vigtige byer som Marbella og Estepona. Der er 9 offentlige transportlinjer med 8 stoppesteder i nærheden, men en bil anses for nødvendig for de fleste daglige gøremål.

Afstand til strand 3,7 km
Gibraltar (GIB) 7 km
Malaga-Costa del Sol (AGP) 94 km
San Roque - La Línea 4,2 km
San Roque - La Línea 4,3 km

Kilde: OpenStreetMap, Google Maps

A white church with a tall steeple, surrounded by green trees and a clear blue sky.

Natur & klima

A small white church with a pointed roof and cross, surrounded by greenery and a clear blue sky.

Regionen San Roque nyder godt af et middelhavsklima med gennemsnitstemperaturer mellem 12°C og 25°C og 3.821 solskinstimer om året. Dette muliggør en lang badesæson på ca. 4 måneder, da vandtemperaturerne regelmæssigt overstiger 20°C. Projektet er beliggende i en højde af 99 meter over havets overflade. Landskabet er præget af en blid topografi med en svag hældning på 2,7% mod nærmeste strand, hvilket sikrer et behageligt og tilgængeligt miljø. Området er rigt på natur, med mange grønne områder og nærhed til kysten.

3821 Solskinstimer/år
4 Badesæson (måneder)
18.2°C Gns. årstemperatur
99m Højde

Kilde: Open-Meteo (2020–2025 gennemsnit)

Strande & fritid

Nær projektet ligger flere strande, herunder Playa de Puente Mayorga-Campamento (3,7 km), Playa de Los Roncalillo (4,1 km) og Playa Príncipe Alfonso (4,7 km). Området er kendt for sine fremragende golfbaner, såsom La Hacienda Links Golf Resort (7,4 km) og San Roque Club (7,8 km). Desuden findes der en række idrætsfaciliteter og fritidsmuligheder, herunder tennisklubber og svømmebassiner, som Complejo Deportivo Vicente Blanca (0,4 km). Marinaer som Puerto Deportivo de Puente Mayorga (3,4 km) tilbyder vandsportsmuligheder. Fire strande i regionen har Blå Flag-certificering.

Strande

  • Playa de Puente Mayorga-Campamento 3,7 km
  • Playa de Los Roncalillo 4,1 km
  • Playa Príncipe Alfonso 4,7 km
  • Alcaidesa-El Faro Blue Flag
  • Cala Sardina Blue Flag
  • Puerto Sotogrande Blue Flag

Golf

  • La Hacienda Links Golf Resort 7,4 km
  • Alcadeisa Links 7,6 km
  • San Roque Club 7,8 km
  • The Pine Trees 7,8 km

Sportsfaciliteter

66 Tilgængelige faciliteter

Kilde: Blue Flag 2026, OpenStreetMap, CSD

Alt text: Historic building with pink flowering tree, street view, architectural details.

Beliggenhed i regionen

San Roque, beliggende i provinsen Cádiz, udgør et vigtigt knudepunkt på Costa del Sol, tæt på grænsen til Costa de la Luz. Denne strategiske placering giver adgang til faciliteterne og livsstilen på begge kyststrækninger. Nærheden til Gibraltar (ca. 7 km) og Costa del Sol tilbyder en dynamisk blanding af spansk kultur og international flair. Regionen er kendt for sine golfbaner, strande og luksuriøse marinaer som Sotogrande, hvilket gør den til et eftertragtet boligområde.

Omgivelser: San Roque

San Roque may refer to:

Nøglefakta

Klima

Måned Gns. temperatur Nedbør
Januar 12.0°C 101 mm
Februar 12.2°C 109 mm
Marts 13.8°C 90 mm
April 15.4°C 55 mm
Maj 17.3°C 42 mm
Juni 21.0°C 9 mm
Juli 24.1°C 1 mm
August 24.6°C 3 mm
September 22.0°C 14 mm
Oktober 18.7°C 73 mm
November 15.2°C 132 mm
December 12.8°C 112 mm

Nærhed til faciliteter

7 restaurant
1 school
4 pharmacy
6 bank
7 cafe
1 dentist

Højde & Terræn

99m Højde
3,7 km Afstand til strand
2.7% Hældning til stranden

Fladt

I nærheden

Udsigtspunkter

Sportscentre

Internationale skoler

Lystbådehavne

Ev Charging

Golfbaner

Strande

Svømmebassiner

Transport

7 km Gibraltar (GIB)
94 km Malaga-Costa del Sol (AGP)
485 km Alicante-Elche (ALC)
4,2 km San Roque - La Línea
4,3 km San Roque - La Línea
8 km Los Barrios

Overblik

  • Moderne rækkehus med 3 soveværelser og 3 badeværelser i San Roque, Cádiz.
  • Boligareal på 280 m² på en 164 m² stor grund.
  • God adgang til strande, golfbaner og Gibraltar Lufthavn (7,2 km).
  • Beliggende i et roligt, landligt miljø med udsigt over natur og golf.
  • Del af et lukket boligområde med fælles pool og 24-timers sikkerhed.

Regional sammenligning

Sammenlignet med andre ejendomme i regionen, såsom Adel San Roque (fra €536.000) og Serenity Golf Homes (fra €549.000), positionerer dette rækkehus sig prismæssigt i mellem- til øvre segment, hvilket forklares af det generøse boligareal på 280 m² og nybygningsstatusen (2022). Sphere i Sotogrande, med en startpris på €1.619.000, repræsenterer luksussegmentet. Beliggenheden i San Roque tilbyder en god balance mellem nærheden til Sotogrande's eksklusive faciliteter og et roligere, mere landligt miljø end i kerneområderne af Costa del Sol som Marbella. Den her tilbudte kombination af moderne konstruktion, private udendørsarealer og sikkerheden i et lukket boligområde til en pris fra €765.000 er attraktiv for købere, der værdsætter kvalitet og et godt forbundet, men alligevel fredeligt miljø.

Ofte stillede spørgsmål

Hvad er de primære fordele ved denne ejendom?
Moderne konstruktion, rummeligt boligareal, private udendørsarealer, sikkerhed i lukket boligområde, nærhed til golfbaner og kyst.
Er en bil nødvendig til daglig brug?
Ja, en bil anbefales til daglige gøremål, da den offentlige transport er begrænset.
Hvilken type aircondition er tilgængelig?
Ejendommen har aircondition, egnet til både køling og opvarmning.
Hvad er udlejningspotentialet for denne ejendom?
Boligområdet tillader udtrykkeligt korttidsudlejning, hvilket giver et godt potentiale for investorer.
Hvilke fælles faciliteter er tilgængelige?
Boligområdet tilbyder fælles pools, velholdte grønne områder, et fitnesscenter og en sauna.
Er der yderligere løbende omkostninger som fællesudgifter?
Ja, der er fællesudgifter, hvis beløb beskrives som meget attraktivt.
Hvordan foregår købsprocessen for en ejendom i dette kompleks?
Købsprocessen følger de sædvanlige spanske ejendomsretlige procedurer; detaljer skal anmodes fra ejendomsmægleren.
Hvor langt er der til den nærmeste strand?
Den nærmeste strand, Playa de Puente Mayorga-Campamento, ligger 3,7 km væk.
Maiko
Maiko
Boligekspert

Maiko er en ejendomsekspert med speciale i det spanske boligmarked. Med dybdegående kendskab til Costa del Sol, Costa Blanca og andre populære kystregioner hjælper han købere med at finde den rette bolig. Han analyserer udbud baseret på beliggenhed, markedsværdi, byggekvalitet og livskvalitet, og giver ærlig, datadrevet rådgivning gennem hele købsprocessen.

Svar inden for 24 timer

Interesseret?

Efterlad dine oplysninger og modtag information om ledighed, priser og plantegninger.

Tekniske fakta
Projektet blev færdiggjort i 2022.
Ejendommen er orienteret mod sydvest.
Boligområdet har fælles pools og grønne områder.

Samtalehistorik

Stil et spørgsmål for at starte