2 Bed Ground Floor Apartment in Fuengirola في Fuengirola — شقة
شقة

شقة للبيع في فوينخيرولا

شقة حديثة بغرفتي نوم تقع في منطقة مركزية في فوينخيرولا، مالقة، مع سهولة الوصول إلى الشاطئ والعديد من وسائل الراحة. يوفر العقار مساحة معيشة مريحة بمساحة بناء إجمالية تبلغ 89 مترًا مربعًا ويستفيد من المرافق المجتمعية. البيئة المحيطة نابضة بالحياة ومناسبة للحياة، مع سهولة الوصول إلى محاور النقل الرئيسية، مما يجعلها خيارًا مثاليًا لمن يبحث عن نمط حياة على ساحل جنوب إسبانيا.

€575,000
2
غرف النوم
2
الحمامات
89 m²
مساحة المعيشة
€575,000
Prijs
0.4 km
مسافة الشاطئ

تحليل المشروع

أهم خصائص الموقع، والوحدات، ومراحل المشروع، ونقاط الاهتمام.

الموقع

تقع هذه الشقة في قلب فوينخيرولا، وهي مدينة ساحلية نابضة بالحياة. وهي تقع في بيئة حضرية مريحة، على بعد مسافة قصيرة سيرًا على الأقدام من المتاجر والمطاعم والخدمات المحلية. موقعها المتميز يضمن سهولة وصول السكان إلى الحياة على الواجهة البحرية.

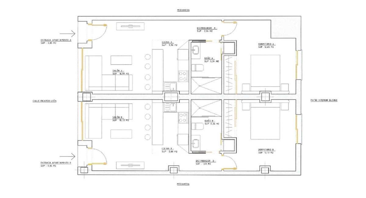
المخططات

تم تصميم هذه الشقة لتلبية متطلبات الحياة الحديثة. إنها توفر مساحة معيشة مريحة، مثالية للعائلات أو الأفراد الذين يبحثون عن نمط حياة خالٍ من المتاعب. غرفتا النوم، والحمامان، والمساحة الداخلية الواسعة تجعلها حلاً سكنياً عملياً ومريحاً.

حالة المشروع

يمثل هذا المشروع معايير البناء الحديثة. تم بناء الشقق باستخدام مواد عالية الجودة، مع الاهتمام بالتفاصيل والمتانة. في حين أنها ليست مبنية حديثًا، إلا أنها تتم صيانتها جيدًا وتوفر وسائل راحة حديثة لتناسب نمط الحياة الحالي.

نقاط هامة

لا يوفر هذا العقار مسبحًا خاصًا، ولكنه يستفيد من مرافق المسبح المجتمعي. في حين أن مواقف السيارات متوفرة، فمن غير المؤكد أن كل وحدة ستحصل على أكثر من مكان واحد ثابت. بالإضافة إلى ذلك، نظرًا لموقعه الحضري، قد يكون هناك بعض الضوضاء الحضرية المحيطة.

تفاصيل المشروع

المشروع 2 Bed Ground Floor Apartment in Fuengirola
المدينة Fuengirola
المنطقة Costa del Sol
Prijs €575,000
مساحة المعيشة 89 m²
السعر لكل م² €6,460 / m²
التراس 31 m²
غرف النوم 2
الحمامات 2
موقف سيارات نعم
مسبح نعم
حديقة نعم
حالة البناء for_sale
مسافة الشاطئ 0.4 km
تاريخ الإنجاز 2024
ضريبة الأبنية/سنوياً €870
ضريبة النفايات/سنوياً €123
تاريخ النشر 2026-04-19

Ref: VL360171

المصدر: Wikipedia, Wikidata, INE, Junta de Andalucía

نمط الحياة

هذه الشقة مثالية لأولئك الذين يبحثون عن مكان إقامة دائم في مدينة إسبانية ساحلية نابضة بالحياة. قد تجذب أيضًا المستثمرين الذين يبحثون عن منزل لقضاء العطلات في المنطقة، نظرًا لصناعة السياحة المزدهرة فيها. موقعها الحضري واتصالها المريح يجعلها خيارًا مثاليًا لأولئك الذين يعطون الأولوية للراحة وسهولة الوصول.

الجودة والتشطيبات

تتميز الشقة بجودة تشطيب جيدة، مع التركيز على الوظائف والجماليات الحديثة. المساحات الداخلية واسعة ومصممة مع مراعاة العملية. تم اختيار المواد لتوفير المتانة والراحة، مما يعكس معايير المساكن الساحلية. في حين لم يتم تقديم قائمة محددة بالمواد، يمكن توقع أن تشمل التركيبات القياسية أرضيات مبلطة، وتجهيزات حمام حديثة، ومطبخ مجهز بالكامل.

البيئة ونمط الحياة

السعر والتوفر

تبدأ أسعار هذه الشقة المكونة من غرفتي نوم من 575,000 يورو. يعكس السعر موقعها المتميز في منطقة فوينخيرولا المرغوبة، وحجمها، وقربها من وسائل الراحة. يوفر هذا العقار فرصة لامتلاك مسكن في منطقة ساحلية مطلوبة. قد تختلف الإتاحة المحددة والأسعار النهائية حسب الموقع والخصائص المحددة للوحدة.

€575,000
Prijs
2
غرف النوم
89 m²
مساحة المعيشة
2
الحمامات
€870
ضريبة الأبنية/سنوياً
€123
ضريبة النفايات/سنوياً

البيئة المحيطة

فوينخيرولا هي مدينة ساحلية نابضة بالحياة في الأندلس، تشتهر بشواطئها الرملية الطويلة ومنتزهها البحري المفعم بالحياة وثقافتها المحلية الغنية. المنطقة مجهزة تجهيزاً جيداً، وتقدم مجموعة واسعة من وسائل الراحة، بما في ذلك العديد من المطاعم والمتاجر والأسواق والمراكز الصحية. المدينة مثالية لأولئك الذين يبحثون عن نمط حياة مشمس في جنوب إسبانيا، وتقدم مجموعة متنوعة من الأنشطة من الأنشطة الشاطئية إلى الاستكشاف الثقافي.

طلب معلومات

الموقع والبيئة: Fuengirola

البيئة والوصول

تقع الشقة في بيئة حضرية محاطة بمجموعة متنوعة من وسائل الراحة. تقع المتاجر والمطاعم وشبكات النقل المحلية على مسافة قريبة. يقع الشاطئ على بعد 658 مترًا فقط، مما يوفر سهولة الوصول إلى الحياة الساحلية. المنطقة مخدومة جيدًا بنظام نقل عام يوفر سهولة الوصول إلى المناطق المحيطة.

الخريطة والموقع

توضح هذه الخريطة الموقع الجغرافي للشقة في فوينخيرولا. وهي تسلط الضوء على موقع العقار ضمن الهيكل الحضري، وقربه من الشواطئ والمتاجر ومحاور النقل، مما يؤكد بيئة معيشته المريحة.

Beachfront room with ocean view, featuring a private balcony and modern amenities.

الموقع الإقليمي

تقع فوينخيرولا في موقع استراتيجي في قلب كوستا ديل سول، وهي مدينة ساحلية رئيسية في مقاطعة مالاغا. تتمتع بموقع جغرافي مفيد في منطقة الأندلس، وتعمل كبوابة إلى وجهات أخرى شهيرة على الساحل الجنوبي. تتمتع المدينة نفسها بقطاع سياحي راسخ ومناطق سكنية، مما يوفر حياة حضرية نابضة بالحياة.

المرافق والوصول

يقع العقار على بعد حوالي 18 كم من مطار مالاغا (AGP). يقع أقرب شاطئ، بلايا دي سان فرانسيسكو، على بعد 400 متر فقط. يمكن لعشاق الجولف العثور على ملاعب متعددة في غضون مسافة قصيرة بالسيارة، وأقربها هو كامبو لوس لاغوس، على بعد حوالي 3.8 كم. يسهل التنقل داخل المدينة من خلال 33 محطة للحافلات تخدم 14 خطًا للنقل العام.

مسافة الشاطئ 0.4 km
Malaga-Costa del Sol (AGP) 18 km
Gibraltar (GIB) 79 km
Fuengirola 0.6 km
Carvajal 3.5 km

المصدر: OpenStreetMap, Google Maps

Aerial view of a coastal city with a sandy beach and clear blue water.

الطبيعة والمناخ

Oceanfront apartment with balcony, city and beach views, modern amenities.

تتمتع فوينخيرولا بمناخ متوسطي بمتوسط درجة حرارة سنوية تبلغ حوالي 18.7 درجة مئوية. تتمتع المنطقة بما يقرب من 3897 ساعة من أشعة الشمس سنويًا، مما يساهم في الأنشطة الخارجية. الصيف معتدل والشتاء لطيف، ويتراوح متوسط درجات الحرارة السنوية بين 12-26 درجة مئوية. يبلغ ارتفاعها 15 مترًا فوق مستوى سطح البحر، مما يساهم في مناخها المعتدل.

3897 ساعات الشمس/سنة
4 موسم السباحة (أشهر)
18.7°C متوسط الحرارة السنوي
15m الارتفاع

المصدر: Open-Meteo (2020–2025 متوسط)

الشواطئ والترفيه

تعتبر الشواطئ عامل جذب رئيسي في فوينخيرولا، حيث تضم أربعة شواطئ حاصلة على علامة العلم الأزرق، بما في ذلك Boliches-Gaviotas و Castillo-Ejido. بلايا دي سان فرانسيسكو، على بعد 400 متر فقط، هو خيار مناسب. بالإضافة إلى الشواطئ، تضم المنطقة 269 مرفقًا رياضيًا، بما في ذلك Pabellón Juan Gómez Juanito و Complejo Deportivo Municipal Elola القريبان.

شواطئ

  • Playa de San Francisco 0.4 km
  • Playa de los Boliches 1 km
  • Playa de Santa Amalia 1.2 km
  • Playa del Castillo 1.9 km
  • Playa Torreblanca-Carvajal Blue Flag 2.1 km
  • Playa Mati 2.8 km

Golf

  • Campo Los Lagos 4 km
  • Cerrado del Aguila Golf 4.5 km
  • Campo Los Olivos 4.7 km
  • El Chaparral Golf Club 5.4 km

مرافق رياضية

269 المرافق المتاحة

المصدر: Blue Flag 2026, OpenStreetMap, CSD

Beachfront room with ocean view, featuring a balcony and lounge chairs.

الموقع الإقليمي

تقع فوينخيرولا في موقع استراتيجي في قلب كوستا ديل سول، وهي مدينة ساحلية رئيسية في مقاطعة مالاغا. تتمتع بموقع جغرافي مفيد في منطقة الأندلس، وتعمل كبوابة إلى وجهات أخرى شهيرة على الساحل الجنوبي. تتمتع المدينة نفسها بقطاع سياحي راسخ ومناطق سكنية، مما يوفر حياة حضرية نابضة بالحياة.

دليل المنطقة: Fuengirola

Fuengirola is a city on the Costa del Sol in the province of Málaga in the autonomous community of Andalusia in southern Spain. It is located on the central coast of the province and integrated into the region of the Costa del Sol and the Commonwealth of Municipalities of the Costa del Sol Occidental.

حقائق أساسية

10.4 km² المساحة

المناخ

الشهر متوسط الحرارة معدل الأمطار
يناير 11.9°C 56 mm
فبراير 12.2°C 57 mm
مارس 14.2°C 46 mm
أبريل 16.1°C 31 mm
مايو 18.3°C 28 mm
يونيو 22.4°C 6 mm
يوليو 25.8°C 1 mm
أغسطس 26.2°C 2 mm
سبتمبر 22.9°C 9 mm
أكتوبر 19.1°C 51 mm
نوفمبر 15.2°C 74 mm
ديسمبر 12.6°C 66 mm

المرافق القريبة

205 restaurant
36 pharmacy
27 bank
1 park
63 cafe
9 dentist

الارتفاع والتضاريس

15m الارتفاع
0.4 km مسافة الشاطئ
3.0% الانحدار إلى الشاطئ

معتدل

معالم قريبة

Ev Charging

مراكز رياضية

شواطئ

موانئ ترفيهية

ملاعب الغولف

مسابح

النقل والوصول

18 km Malaga-Costa del Sol (AGP)
79 km Gibraltar (GIB)
407 km Alicante-Elche (ALC)
0.6 km Fuengirola
3.5 km Carvajal
6.2 km Torremuelle
0.7 km Terminal Autobus

ملخص

  • يقع في وسط فوينخيرولا، على مسافة قريبة من الشاطئ ووسائل الراحة.
  • غرفتا نوم، حمامان، مساحة داخلية 89 متر مربع.
  • يتمتع بمسبح مجتمعي واتصال مريح بالمواصلات.
  • قريب من المتاجر والمطاعم والمراكز الرياضية.
  • مثالي للسكن الدائم أو منزل العطلات.

مقارنة إقليمية

مقارنة بالعقارات الأخرى المعروضة للبيع في فوينخيرولا، فإن سعر هذه الشقة (بدءًا من 575,000 يورو) يضعها في الشريحة السعرية المتوسطة إلى العالية في المنطقة. مقارنة بـ Aura Higueron (بدءًا من 669,000 يورو)، فهي أكثر تنافسية من حيث السعر. Higuerón Bay Residences (بدءًا من 580,000 يورو) و Nova Marina (بدءًا من 520,000 يورو) كلاهما يقتربان من هذا المشروع من حيث السعر. تتمثل ميزة هذا المشروع في موقعه الحضري المريح، وقربه من الشواطئ ووسائل الراحة المحلية، مما يميزه عن التجربة السكنية الأكثر انعزالًا التي قد تقدمها مشاريع مثل Aura Higueron و Higuerón Bay Residences. قد تجذب نقطة السعر الخاصة بـ Nova Marina المشترين الذين يبحثون عن خيارات أكثر بأسعار معقولة. توفر هذه المساحة المعيشية البالغة 89 مترًا مربعًا، المتاحة في هذا المشروع لشقة بغرفتي نوم، مساحة كبيرة، بالإضافة إلى قربها من جميع وسائل الراحة الحضرية، مما يجعلها مزيجًا جذابًا في السوق.

الأسئلة الشائعة

هل المشروع قريب من الشاطئ؟
نعم، أقرب شاطئ، بلايا دي سان فرانسيسكو، يبعد حوالي 400 متر.
ما هي المسافة إلى مطار مالاغا؟
تبلغ المسافة إلى مطار مالاغا (AGP) حوالي 18 كم (مسافة خط مستقيم).
ما هي جودة بناء الشقة؟
تم بناء الشقق باستخدام مواد عالية الجودة، مع الاهتمام بالتفاصيل والمتانة، وتوفر وسائل راحة حديثة.
ما هي الفوائد المحتملة لشراء عقار في فوينخيرولا؟
تقدم فوينخيرولا نمط حياة نابض بالحياة على الواجهة البحرية مع مجموعة واسعة من وسائل الراحة، واتصال ممتاز بالمواصلات، ومناخ جذاب.
ما هي وسائل الراحة الموجودة بالقرب من المشروع؟
يوجد أكثر من 200 مطعم، و 36 صيدلية، و 27 بنكًا، بالإضافة إلى الحدائق والمقاهي في المنطقة المجاورة.
ما هي التكاليف المستمرة بخلاف سعر الشراء؟
تشمل التكاليف المستمرة رسوم المجتمع، وضريبة الأملاك البلدية (IBI)، والتأمين المحتمل.
ما هي عملية شراء عقار في إسبانيا؟
تتضمن عملية الشراء عادةً اتفاقية حجز، وعقد شراء خاص (PPC)، وتوقيع سند الملكية النهائي (Escritura Pública) أمام كاتب عدل.
ما هي خيارات النقل العام في المنطقة؟
تتمتع المنطقة بشبكة نقل عام متطورة تضم 33 محطة حافلات و 14 خطًا، بالإضافة إلى محطات السكك الحديدية القريبة.
Maiko
Maiko
خبير عقاري

مايكو خبير عقاري متخصص في سوق العقارات الإسبانية. معرفته العميقة بالكوستا ديل سول، والكوستا بلانكا، والمناطق الساحلية الشهيرة الأخرى تساعد المشترين في العثور على العقار المناسب. يقوم بتحليل العروض بناءً على الموقع والقيمة السوقية وجودة البناء وقابلية السكن، ويقدم نصائح صادقة وموجهة بالبيانات طوال عملية الشراء.

رد خلال 24 ساعة

مهتم؟

اترك بياناتك واحصل على معلومات عن التوفر، والأسعار، والمخططات.

المواصفات الفنية
تقع الشقة على بعد حوالي 400 متر من شاطئ بلايا دي سان فرانسيسكو.
تبعد أقرب ملاعب الجولف حوالي 3.8 كم.
يقع مطار مالاغا على بعد حوالي 18 كم.

Conversation history

Ask a question to start