2 Bed Middle Floor Apartment in Fuengirola في Fuengirola —
شقق

2-غرفة نوم Middle Floor Apartment in Fuengirola

يقع هذا المسكن في قلب فوينخيرولا، مالقة، ويمثل فرصة سكنية في منطقة ساحلية نابضة بالحياة. يجمع المشروع بين القرب من المرافق الحضرية والتصاميم المعاصرة، مما يوفر بيئة معيشية تجمع بين الراحة والوصول إلى وسائل الراحة اليومية. تم الانتهاء من البناء، وهو جاهز للسكن، ويقدم خيارًا مثاليًا لمن يبحثون عن سكن دائم أو عقار لقضاء العطلات في هذه المنطقة الشهيرة من كوستا ديل سول.

يبدأ من €775,000
2
غرف النوم
2
الحمامات
90 m²
مساحة المعيشة
يبدأ من €775,000
السعر المبدئي
0.4 km
مسافة الشاطئ
جاهز للتسليم
حالة البناء

تحليل المشروع

أهم خصائص الموقع، والوحدات، ومراحل المشروع، ونقاط الاهتمام.

الموقع

يتمتع العقار بموقع استراتيجي في فوينخيرولا، على مسافة قريبة من الشاطئ والمرافق الحضرية. يتيح هذا الموقع سهولة الوصول إلى الخدمات اليومية مثل المتاجر والمطاعم، بينما توفر البيئة الحضرية المحيطة بالحياة والنشاط. القرب من الشاطئ يوفر فرصة للاستمتاع بالساحل، مما يجعله موقعًا جذابًا لأسلوب حياة البحر الأبيض المتوسط.

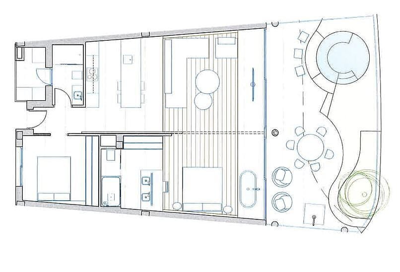
المخططات

يلبي هذا المسكن احتياجات أولئك الذين يسعون إلى نمط حياة يجمع بين سهولة الوصول إلى المرافق الحضرية والقرب من البحر. يوفر التصميم الحديث والتشطيبات عالية الجودة الراحة، بينما يضمن القرب من الشاطئ والمرافق الترفيهية نمط حياة مريح ونشط. إنه مناسب للأفراد والأسر الذين يفضلون العيش في بيئة مخدومة جيدًا مع سهولة الوصول إلى الأنشطة الخارجية.

حالة المشروع

تم الانتهاء من بناء هذا المسكن، مما يعني أنه جاهز للسكن الفوري. تتيح هذه الحالة للمشترين تجنب فترات الانتظار الطويلة المرتبطة عادةً بالمشاريع التي لا تزال قيد الإنشاء. يعتبر هذا الجانب حاسمًا لأولئك الذين يخططون للانتقال أو يرغبون في البدء في استخدام العقار في أقرب وقت ممكن، مما يوفر راحة البال وسلاسة في عملية الاستحواذ.

نقاط هامة

لا يهدف هذا المشروع إلى تقديم عزلة تامة عن المناطق الحضرية، حيث يقع في بيئة حضرية نشطة. كما أنه لا يوفر مساحات خارجية واسعة جدًا، حيث يركز على شقق مدمجة. لا يقدم المشروع ميزات مرتبطة بالمناطق الريفية أو المنعزلة، بل يركز على نمط الحياة الحضري والمريح.

تفاصيل المشروع

المشروع 2 Bed Middle Floor Apartment in Fuengirola
المدينة Fuengirola
المنطقة Costa del Sol
السعر المبدئي €775,000
مساحة المعيشة 90 m²
السعر لكل م² €8,611 / m²
غرف النوم 2
الحمامات 2
موقف سيارات لا
مسبح نعم
حديقة نعم
حالة البناء key_ready
مسافة الشاطئ 0.4 km
تاريخ الإنجاز 2026
تاريخ النشر 2026-04-27

Ref: VL788894

المصدر: Wikipedia, Wikidata, INE, Junta de Andalucía

نمط الحياة

يُعد هذا المسكن مناسبًا للأفراد والأزواج أو العائلات الصغيرة الذين يبحثون عن منزل دائم أو عقار لقضاء العطلات في منطقة ساحلية نابضة بالحياة. إنه مثالي لمن يقدرون سهولة الوصول إلى وسائل الراحة الحضرية مثل المتاجر والمطاعم والمرافق الصحية، بالإضافة إلى القرب من الشاطئ. الأشخاص الذين يستمتعون بأسلوب حياة نشط، مع إمكانية الوصول إلى الرياضات المائية والجولف والمرافق الرياضية، سيجدون هذا الموقع جذابًا. كما أنه مناسب لأولئك الذين يفضلون بيئة مأهولة جيدًا ويسهل التنقل فيها سيرًا على الأقدام أو بالدراجة، مع الاستفادة من شبكة مواصلات عامة جيدة. المسكن جاهز للسكن، مما يجعله خيارًا جيدًا للمشترين الذين يرغبون في الانتقال بسرعة أو بدء استخدام العقار في أقرب وقت ممكن.

الجودة والتشطيبات

يتميز هذا المسكن بتصميم داخلي حديث يركز على المساحة والإضاءة. المطبخ مفتوح ومجهز بأجهزة عالية الجودة، ومتصل بسلاسة بمنطقة المعيشة، مما يخلق جوًا اجتماعيًا ومشرقًا. يتميز الحمام الرئيسي بتصميم مفتوح مع دش، بينما تكون دورة المياه منفصلة لمزيد من الراحة. تسمح جدران قابلة للانزلاق بفتح غرفة النوم الرئيسية على غرفة المعيشة، مما يوفر إحساسًا فريدًا بالمساحة والمرونة. تم تصميم الشقة لتعظيم الاستفادة من الضوء الطبيعي، مع نوافذ كبيرة تؤدي إلى شرفة واسعة. يشير ذكر الأجهزة عالية الجودة والتصميم الداخلي المعاصر إلى الاهتمام بالتفاصيل والتشطيبات الجيدة. هذه السمات مجتمعة تساهم في توفير مستوى عالٍ من الراحة والجودة في المسكن.

البيئة ونمط الحياة

السعر والتوفر

يبدأ سعر هذا المسكن من 775,000 يورو، مما يعكس موقعه المميز في منطقة فوينخيرولا. تشير هذه الأسعار إلى سوق عقاري راسخ يقدم قيمة مقابل الموقع والمرافق. تتوفر وحدات سكنية بأنماط مختلفة، مع الأخذ في الاعتبار أن الأسعار قد تختلف بناءً على المساحة والميزات المحددة لكل وحدة. نظرًا لأن العقار جاهز للسكن، يمكن للمشترين المحتملين البدء في عملية الشراء والاستحواذ على العقار بسرعة. يُنصح بالتحقق من التوافر الحالي وأي تفاصيل سعرية إضافية مع الجهة المسؤولة عن المبيعات لضمان الحصول على أحدث المعلومات.

€775,000
السعر المبدئي
2
غرف النوم
90 m²
مساحة المعيشة
2
الحمامات

البيئة المحيطة

تُعد فوينخيرولا، حيث يقع هذا المسكن، مدينة ساحلية ديناميكية تقع في قلب كوستا ديل سول. تشتهر المنطقة بشواطئها الواسعة، وحياتها النابضة بالحياة، وثرائها الثقافي، مما يجعلها وجهة مرغوبة للسكن الدائم والعطلات. يوفر المسكن نفسه بيئة معيشية مريحة، مع تصميم حديث ومرافق مدروسة. يتيح القرب من المرافق الحضرية الوصول بسهولة إلى مجموعة واسعة من المطاعم والمتاجر والخدمات، مما يسهل الحياة اليومية. كما أن سهولة الوصول إلى الشاطئ تتيح فرصًا للاسترخاء والاستمتاع بالأنشطة البحرية. إن موقع المسكن في بيئة حضرية يوفر توازنًا بين الحياة الهادئة والوصول إلى وسائل الراحة والترفيه، مما يجعله خيارًا جذابًا لمن يبحثون عن نمط حياة يجمع بين الراحة والوصول إلى أنشطة متنوعة.

طلب معلومات

الموقع والبيئة: Fuengirola

البيئة والوصول

تقع فوينخيرولا على الساحل المركزي لمقاطعة مالقة، وهي مدينة مدمجة في منطقة كوستا ديل سول. تتميز المدينة ببيئة حضرية نابضة بالحياة، مع كثافة سكانية تبلغ حوالي 85,211 نسمة (تقديرات 2025) على مساحة 10.4 كيلومتر مربع. توفر هذه الكثافة مستوى عالٍ من الخدمات والمرافق، حيث يوجد حوالي 205 مطعمًا و 63 مقهى و 36 صيدلية و 27 بنكًا في نطاق 2 كيلومتر. كما أن وجود 15 مدرسة ابتدائية و 10 مدارس ثانوية يشير إلى مجتمع مستقر ومتنوع. تشير أعداد الفنادق (25 فندقًا) إلى وجود بنية تحتية سياحية قوية، مما يعني وجود حركة دؤوبة على مدار العام. يبلغ متوسط الدخل في المقاطعة حوالي 16,450 يورو، وهو ما يعكس الوضع الاقتصادي العام للمنطقة. يوفر هذا المزيج من الكثافة السكانية العالية والخدمات المتنوعة بيئة معيشية مريحة ونشطة، مع سهولة الوصول إلى جميع الاحتياجات اليومية والترفيهية.

الخريطة والموقع

توضح الخريطة موقع المسكن في فوينخيرولا، مالقة. تبرز الخريطة القرب من البحر الأبيض المتوسط، مع تحديد مواقع الشواطئ الرئيسية. كما تظهر الخريطة شبكة الطرق والمواصلات، مع تحديد مواقع المرافق الهامة مثل المطار والمراكز الحضرية. يعطي التصور المكاني فهمًا واضحًا لسهولة الوصول إلى الخدمات والترفيه، ويوضح كيف يتناسب المسكن مع بيئته الساحلية الحضرية.

Beachfront room with ocean view, featuring a private balcony and modern amenities.

الموقع الإقليمي

يقع المسكن في فوينخيرولا، وهي مدينة تقع في وسط كوستا ديل سول، ضمن مقاطعة مالقة. هذه المنطقة جزء من منطقة كوستا ديل سول الغربية. تتميز فوينخيرولا بموقعها الاستراتيجي بين مالقة وماربييا، مما يوفر وصولاً سهلاً إلى مدن ساحلية رئيسية أخرى. تقع على بعد حوالي 18 كم من مطار مالاغا، وهي بوابة رئيسية للمسافرين الدوليين. تقع ماربييا على بعد حوالي 30 كم، بينما تقع بويرتو بانوس على بعد حوالي 40 كم، مما يتيح استكشاف مناطق أخرى في كوستا ديل سول بسهولة. يشير هذا الموقع المركزي إلى أن المدينة هي جزء لا يتجزأ من الشبكة الإقليمية، مع سهولة الوصول إلى المرافق والفرص التي تقدمها المدن المجاورة.

المرافق والوصول

يوفر موقع المسكن في فوينخيرولا سهولة الوصول إلى مجموعة واسعة من المرافق. يقع الشاطئ على بعد مسافة قصيرة سيرًا على الأقدام (400-658 مترًا)، مما يسهل الاستمتاع بالبحر. تقع أقرب محطة قطار، فوينخيرولا، على بعد 600 متر، مما يوفر اتصالًا ممتازًا على طول الساحل. يبعد مطار مالاغا-كوستا ديل سول حوالي 18 كم، مما يجعله سهل الوصول للرحلات الدولية. تقع أقرب محطة سوبر ماركت على بعد 112 مترًا فقط، مما يسهل التسوق اليومي. كما تتوفر مرافق أخرى مثل صيدلية على بعد 226 مترًا. للمهتمين بالجولف، تقع ملاعب مثل كامبو لوس لاغوس على بعد حوالي 3.8 كم. تتوفر أيضًا محطات شحن للسيارات الكهربائية على بعد 92 مترًا، مما يشير إلى بنية تحتية حديثة ومتنامية.

مسافة الشاطئ 0.4 km
Malaga-Costa del Sol (AGP) 18 km
Gibraltar (GIB) 79 km
Fuengirola 0.6 km
Carvajal 3.5 km

المصدر: OpenStreetMap, Google Maps

Beachfront room with ocean view, featuring a private balcony and modern amenities.

الطبيعة والمناخ

Aerial view of a coastal city with a sandy beach and clear blue water.

تتمتع منطقة فوينخيرولا بمناخ البحر الأبيض المتوسط، حيث يتراوح متوسط درجات الحرارة السنوية بين 12 درجة مئوية و 26 درجة مئوية. تشير الإحصائيات إلى حوالي 3,897 ساعة سطوع شمس سنويًا، وهو ما يعد مرتفعًا ويوفر الكثير من الفرص للاستمتاع بالأنشطة الخارجية. موسم السباحة يستمر لمدة 4 أشهر، حيث تصل درجة حرارة المياه إلى 20 درجة مئوية أو أكثر، مما يجعله مناسبًا للاستمتاع بالبحر خلال جزء كبير من العام. يقع المسكن على ارتفاع 15 مترًا فوق مستوى سطح البحر، ويتميز بانحدار معتدل (3.0%) نحو الشاطئ، مما يسهل الوصول إليه. يشير المناخ الدافئ والمشمس إلى أسلوب حياة خارجي ممتع على مدار العام.

3897 ساعات الشمس/سنة
4 موسم السباحة (أشهر)
18.7°C متوسط الحرارة السنوي
15m الارتفاع

المصدر: Open-Meteo (2020–2025 متوسط)

الشواطئ والترفيه

تتمتع فوينخيرولا بشواطئ متعددة تحمل علامة اللواء الأزرق، مثل شواطئ بوليتشيس-غافيوتا، وكارفاخال، وكاستيلو-إيجيدو، وشاطئ فوينخيرولا نفسه. يقع أقرب شاطئ، بلايا دي سان فرانسيسكو، على بعد 400 متر فقط. بالإضافة إلى الشواطئ، توفر المنطقة مجموعة واسعة من المرافق الترفيهية. يوجد 269 مرفقًا رياضيًا، بما في ذلك مراكز رياضية مثل بابيلون خوان غوميز خوانيتو (0.6 كم) و كومبليخو ديبورتيفو مونيسيبيال إلولا (0.6 كم). لمحبي الجولف، تقع ملاعب قريبة مثل كامبو لوس لاغوس على بعد حوالي 4.0 كم. تتوفر أيضًا مسابح عامة مثل بيسينا ماريا بيلايز على بعد 0.5 كم. يوفر هذا التنوع الكبير في الأنشطة الترفيهية فرصًا متعددة للاستمتاع بالوقت الحر.

شواطئ

  • Playa de San Francisco 0.4 km
  • Playa de los Boliches 1 km
  • Playa de Santa Amalia 1.2 km
  • Playa del Castillo 1.9 km
  • Playa Torreblanca-Carvajal Blue Flag 2.1 km
  • Playa Mati 2.8 km

Golf

  • Campo Los Lagos 4 km
  • Cerrado del Aguila Golf 4.5 km
  • Campo Los Olivos 4.7 km
  • El Chaparral Golf Club 5.4 km

مرافق رياضية

269 المرافق المتاحة

المصدر: Blue Flag 2026, OpenStreetMap, CSD

Oceanfront apartment with balcony, city and beach views, modern amenities.

الموقع الإقليمي

يقع المسكن في فوينخيرولا، وهي مدينة تقع في وسط كوستا ديل سول، ضمن مقاطعة مالقة. هذه المنطقة جزء من منطقة كوستا ديل سول الغربية. تتميز فوينخيرولا بموقعها الاستراتيجي بين مالقة وماربييا، مما يوفر وصولاً سهلاً إلى مدن ساحلية رئيسية أخرى. تقع على بعد حوالي 18 كم من مطار مالاغا، وهي بوابة رئيسية للمسافرين الدوليين. تقع ماربييا على بعد حوالي 30 كم، بينما تقع بويرتو بانوس على بعد حوالي 40 كم، مما يتيح استكشاف مناطق أخرى في كوستا ديل سول بسهولة. يشير هذا الموقع المركزي إلى أن المدينة هي جزء لا يتجزأ من الشبكة الإقليمية، مع سهولة الوصول إلى المرافق والفرص التي تقدمها المدن المجاورة.

دليل المنطقة: Fuengirola

Fuengirola is a city on the Costa del Sol in the province of Málaga in the autonomous community of Andalusia in southern Spain. It is located on the central coast of the province and integrated into the region of the Costa del Sol and the Commonwealth of Municipalities of the Costa del Sol Occidental.

حقائق أساسية

10.4 km² المساحة

المناخ

الشهر متوسط الحرارة معدل الأمطار
يناير 11.9°C 56 mm
فبراير 12.2°C 57 mm
مارس 14.2°C 46 mm
أبريل 16.1°C 31 mm
مايو 18.3°C 28 mm
يونيو 22.4°C 6 mm
يوليو 25.8°C 1 mm
أغسطس 26.2°C 2 mm
سبتمبر 22.9°C 9 mm
أكتوبر 19.1°C 51 mm
نوفمبر 15.2°C 74 mm
ديسمبر 12.6°C 66 mm

المرافق القريبة

205 restaurant
36 pharmacy
27 bank
1 park
63 cafe
9 dentist

الارتفاع والتضاريس

15m الارتفاع
0.4 km مسافة الشاطئ
3.0% الانحدار إلى الشاطئ

معتدل

معالم قريبة

Ev Charging

مراكز رياضية

شواطئ

موانئ ترفيهية

ملاعب الغولف

مسابح

النقل والوصول

18 km Malaga-Costa del Sol (AGP)
79 km Gibraltar (GIB)
407 km Alicante-Elche (ALC)
0.6 km Fuengirola
3.5 km Carvajal
6.2 km Torremuelle
0.7 km Terminal Autobus

ملخص

  • يقع المسكن في فوينخيرولا، مالقة، على مسافة قريبة من الشاطئ والمرافق الحضرية.
  • تم الانتهاء من البناء وجاهز للسكن، مما يوفر حلاً سريعًا للمشترين.
  • يتميز بتصميم داخلي حديث مع شرفة واسعة وإطلالات.
  • يوفر سهولة الوصول إلى المطار والمدن الساحلية الأخرى مثل ماربييا.
  • يقع في منطقة تتمتع بمناخ دافئ وساعات سطوع شمس وفيرة على مدار العام.

مقارنة إقليمية

يقع هذا المسكن في فوينخيرولا، ويقدم نفسه كخيار في سوق عقاري نشط في كوستا ديل سول. بالمقارنة مع مشاريع أخرى في المنطقة، مثل Aura Higueron (بدءًا من 669,000 يورو) و Higuerón Bay Residences (بدءًا من 580,000 يورو)، فإن سعره عند 775,000 يورو يضعه في فئة متوسطة إلى مرتفعة. يوفر Carat في فوينخيرولا، بسعر يبدأ من 822,000 يورو، نقطة مقارنة في الطرف الأعلى من الطيف. تشير هذه الأسعار إلى أن المسكن المعني يقع ضمن نطاق سعري شائع للعقارات في هذه المنطقة، خاصةً مع الأخذ في الاعتبار تشطيباته الحديثة وموقعه. تختلف المشاريع الأخرى في التفاصيل مثل قربها من الشاطئ أو المرافق، والميزات المحددة مثل الإطلالات أو التصميم. تقع فوينخيرولا نفسها في موقع مركزي على كوستا ديل سول، مما يجعلها منطقة جذابة مقارنة بالمناطق الأكثر انعزالًا أو الأقل تطورًا. يقدم هذا المسكن مزيجًا من سهولة الوصول الحضري والقرب من البحر، وهو ما يميزه عن المشاريع التي قد تكون بعيدة عن المراكز الحضرية أو تقع في مناطق أقل تطورًا. يعد فهم هذه الفروقات السعرية والوظيفية أمرًا أساسيًا للمشترين الذين يقيمون خياراتهم في المنطقة.

الأسئلة الشائعة

ما هي الميزات التي لا يقدمها هذا المسكن؟
لا يوفر المسكن عزلة تامة عن المناطق الحضرية، ولا يقدم مساحات خارجية واسعة جدًا، ولا يركز على الميزات الريفية أو المنعزلة.
ما هي المسافة إلى أقرب مطار؟
تبلغ المسافة إلى مطار مالاغا-كوستا ديل سول حوالي 18 كيلومترًا جويًا.
ما هي كفاءة الطاقة للمسكن؟
لا تتوفر معلومات عن كفاءة الطاقة للمسكن في البيانات المقدمة.
ما هي العوامل التي تؤثر على سعر العقار في فوينخيرولا؟
تؤثر عوامل مثل الموقع، والقرب من الشاطئ والمرافق، وجودة التشطيبات، والميزات المحددة مثل الشرفات والإطلالات، على سعر العقار في فوينخيرولا.
ما هي المرافق الرياضية المتوفرة بالقرب من المسكن؟
تتوفر مرافق رياضية متنوعة، بما في ذلك مراكز رياضية عامة وملاعب جولف قريبة، حيث يوجد حوالي 269 مرفقًا رياضيًا في المنطقة.
هل هناك أي تكاليف إضافية متوقعة بعد سعر الشراء؟
قد تكون هناك تكاليف إضافية مثل الضرائب ورسوم التسجيل وتكاليف الصيانة الشهرية للمجمع. ينصح بالتحقق من هذه التفاصيل.
ما هي الخطوات المتضمنة في شراء هذا المسكن؟
تتضمن عملية الشراء عادةً تقديم عرض، وتوقيع عقد مبدئي، وإجراء دفعات، وأخيرًا توقيع العقد النهائي مع تسجيل الملكية. ينصح بالاستعانة بمحامٍ عقاري.
ما هي طبيعة البيئة المحيطة بالمسكن؟
يقع المسكن في بيئة حضرية نشطة على مسافة قريبة من الشاطئ، مع توفر العديد من المطاعم والمتاجر والخدمات الأخرى.
Omar Al-Nasser
Omar Al-Nasser
خبير عقاري

عمر الناصر يفهم بعمق احتياجات العملاء الناطقين بالعربية، ويرشدهم بثقة في سوق العقارات الإسباني. هو يضمن عملية شراء سلسة ومحترمة ثقافيًا.

AI-assisted multilingual representative. Your inquiry is handled by our real support team.

رد خلال 24 ساعة

مهتم؟

اترك بياناتك واحصل على معلومات عن التوفر، والأسعار، والمخططات.

المواصفات الفنية
ارتفاع المسكن 15 مترًا فوق مستوى سطح البحر.
تبلغ مساحة الشرفة 49 مترًا مربعًا.
يحتوي المسكن على مكانين لوقوف السيارات وغرفة تخزين.
طلب معلومات WhatsApp