2 Bed Middle Floor Apartment in Higueron in Higueron — Apartment
Apartment

Apartment for Sale in Higueron, Málaga

This ready-to-move-in apartment in Higueron West Phase 7 offers a refined living experience on the Costa del Sol. Situated in an exclusive location, the project combines breathtaking panoramic sea views with a high level of comfort and convenience. Having recently completed and undergone several upgrades, it presents an attractive option for those seeking a luxurious retreat, a solid investment, or a permanent home in a dynamic region.

From €609,000
2
Bedrooms
2
Bathrooms
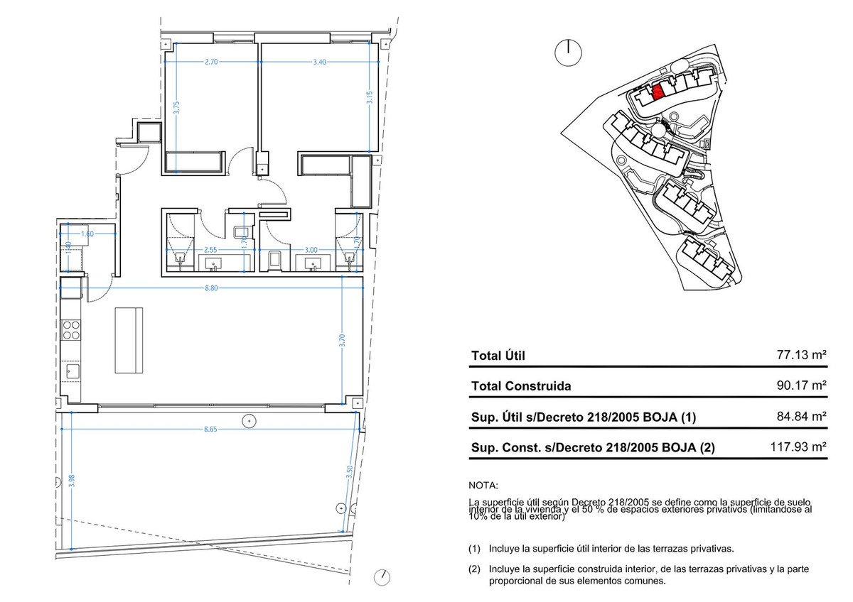
91 m²
Living Area
From €609,000
From price
1.3 km
Beach Distance
Key Ready
Build Status

Summary

  • Ready-to-move-in apartment with 2 bedrooms and 2 bathrooms in Higueron, Málaga.
  • Panoramic sea views and a south-facing orientation for optimal sunlight.
  • Located within walking distance to the beach and daily amenities, with the airport 13 km away.
  • Access to communal swimming pools and various sports facilities in the vicinity.
  • Excellent condition with several upgrades, ready for immediate occupancy.

Regional Comparison

This apartment in Higueron, priced from €609,000, positions itself in the upper tier of the Costa del Sol market, as expected given its exclusive location and amenities. For comparison, Aquamar in Torre del Mar offers apartments starting at €219,950, a significantly lower price point suggesting a different market focus, potentially more on general accessibility than exclusivity. Lantana Residencial in Mijas and Etherna Homes 2 in Estepona, with prices starting at €205,000 and €259,000 respectively, also fall into a lower price bracket. These projects are located in different areas of the Costa del Sol, each with its own distinct characteristics regarding accessibility, amenities, and beach proximity. The Higueron apartment stands out due to its direct sea views, completed status with upgrades, and strategic location near Málaga Airport, justifying its higher price compared to the mentioned comparable projects which may still be under construction or situated in less exclusive areas.

Frequently Asked Questions

Is there a private parking space or garage included with the apartment?
The available information does not specify whether a private parking space or garage is included with the apartment. General parking is available in the area, but specific allocation requires further investigation.
How far is the apartment from Málaga Airport?
The apartment is located approximately 13 kilometers by air from Málaga-Costa del Sol Airport (AGP).
What type of heating and cooling system is present?
The apartment is equipped with air conditioning that can provide both cold and hot air (hot & cold A/C).
Is the apartment suitable for rental purposes?
Given its location on the Costa del Sol, proximity to amenities, the beach, and the airport, the apartment has potential for rental income. Specific rental yields or opportunities are not detailed.
What sports facilities are available nearby?
In the vicinity, there are various sports facilities, including golf courses such as Golf Benalmadena Pitch& Putt (4.1 km), and sports centers like Club Hockey Benalmadena (1.8 km) and Club de Tenis y Padel Lew Hoad (3.2 km).
What are the estimated monthly maintenance costs?
Specific costs for community fees, IBI (property tax), or other monthly expenses are not detailed in the project information.
Is there room for negotiation on the price?
The project information does not provide details regarding the negotiation margin for the asking price of €609,000.
How steep is the slope to the beach?
The gradient to the nearest beach, Playa de Torreblanca, is 8.7%, which can be considered steep.

Project Analysis

Key characteristics of location, homes, project phase and points of attention.

Location

The apartment is located in Higueron, a sought-after area near Málaga known for its exclusive character. Proximity to the beach and daily amenities like shops and restaurants enhances the living comfort. Its position just 13 km from Málaga Airport ensures excellent accessibility from across Europe.

Layout

This apartment caters to various living needs. The layout with two bedrooms and two bathrooms, including an en-suite, provides space and privacy. The spacious terrace with sea views invites relaxation. Communal facilities, such as a swimming pool, contribute to the overall comfort of living.

Project Status

The apartment is part of Higueron West Phase 7 and is already completed. The initial construction is finished, after which the apartment has been enhanced with various improvements. This means the property is ready for immediate occupancy, and buyers do not need to account for ongoing construction activities or future completion dates.

Points of Attention

This apartment does not feature a private pool; it utilizes communal swimming pools. Parking is available, but it is not specified whether a private garage or parking space is included with the apartment. The sale is exclusive of furniture, meaning furnishings must be acquired separately.

Lifestyle & Surroundings

This property suits the discerning buyer looking for immediate occupancy in an established, high-quality residential complex on the Costa del Sol. It is a suitable choice for those who prefer a completed development with enhanced finishes over properties still under construction. The combination of sea views, proximity to amenities like a supermarket (1.3 km) and the beach (1.3 km), and excellent access to Málaga Airport (13 km) makes it attractive for both permanent residents and for rental investment. Individuals who value an active lifestyle, with access to golf courses (from 4.1 km) and sports centers, will also appreciate the location.

Build Quality & Finishing

The apartment, spanning 91 m² of living space, is in excellent condition and is offered unfurnished, allowing for personal customization. Features such as double glazing, air conditioning (hot and cold), fitted wardrobes, and an en-suite bathroom indicate a comfortable and modern standard of finish. The covered and private terraces provide additional outdoor living space. The presence of a lift and storage room, along with the modern aesthetic of the living room offering sea views, contributes to the overall quality and living comfort.

Price & Context

Price & Availability

The apartment, featuring 2 bedrooms and 2 bathrooms, is listed at a starting price of €609,000. This property type is ready for immediate occupancy. No price or layout variations are specified for this particular unit. The pricing reflects the location, finishes, and amenities Higueron offers, including its seaside proximity and the upgrades that have been implemented.

€609,000
From price
2
Bedrooms
91 m²
Living Area
2
Bathrooms
€526
IBI/yr

Context & Surroundings

Higueron, nestled between Fuengirola and Benalmádena, is a development that merges luxury, nature, and accessibility. The apartment is within walking distance of the beach and daily amenities such as supermarkets and pharmacies. Within a 2 km radius, there are 16 restaurants and 9 cafes, indicating a vibrant environment. The proximity to sports facilities, including golf courses and tennis clubs, appeals to an active lifestyle. Its elevation at 113 meters above sea level offers pleasant views, while the 8.7% slope towards the beach might present a slight challenge for those with mobility issues. With 3,891 annual sunshine hours and a four-month swimming season, the climate is highly conducive to outdoor living.

Request Information

Location: Higueron

Living & Surroundings

Life in Higueron centers on a balance between tranquility and dynamism. The apartment is a short distance from the beach (Playa de Torreblanca at 1.3 km) while also offering access to an urban environment with numerous amenities. With 16 restaurants and 9 cafes within 2 km, dining and leisure options are abundant. The availability of 7 public transport lines and 50 stops suggests reasonable mobility without a car, though a vehicle facilitates exploration of the wider region. The area offers various recreational opportunities, from water sports at nearby beaches to golfing at one of the many courses.

Map & Location

This apartment is situated in the desirable Higueron neighborhood, an area known for its luxury residences and proximity to the Mediterranean Sea. The map illustrates its strategic position relative to the coastline, Málaga Airport, and various sports and recreational facilities, underscoring the location's appeal.

Diamond-shaped sign with crown, castle, and water, featuring "Benalmadena" text.

Location in the Region

This apartment is strategically positioned in Higueron, a region recognized for its exclusivity and proximity to major urban centers on the Costa del Sol. It lies between the popular coastal towns of Fuengirola and Benalmádena. The relatively short distance to Málaga (approximately 25 km as the crow flies) and Marbella (approximately 40 km as the crow flies) makes it an attractive base for exploring the region. The location provides a good balance between the tranquility of a residential area and the vibrancy of the Costa del Sol.

Accessibility & Amenities

Accessibility is a key advantage of this apartment. It is located approximately 13 km by air from Málaga Airport (AGP), simplifying international travel. The nearest beach, Playa de Torreblanca, is 1.3 km away, a short walk or drive. For daily necessities, a supermarket is 1.3 km away, and a pharmacy is 847 m. Several golf courses are nearby, with Golf Benalmadena Pitch& Putt just 4.1 km away. Train stations like Carvajal (1.0 km) and Fuengirola (4.9 km) provide further public transport options, supported by 7 bus routes.

Beach Distance 1.3 km
Malaga-Costa del Sol (AGP) 14 km
Gibraltar (GIB) 83 km
Carvajal 1 km
Torremuelle 2.6 km

Source: OpenStreetMap, Google Maps

Alt text: White stupa with golden spire, steps leading up, clear blue sky, mountainous background.

Nature & Climate

A garden filled with various cacti and succulents, showcasing a vibrant and diverse plant collection.

The climate on the Costa del Sol is a significant draw, boasting an average of 3,891 sunshine hours per year and an average annual temperature of 17.9°C. The swimming season typically lasts about four months, when water temperatures consistently exceed 20°C. The apartment is situated at an altitude of 113 meters, enhancing sea views. The 8.7% gradient towards the beach indicates a steep slope, meaning the walk to the sea may require more effort. The surroundings are characterized by Mediterranean vegetation, featuring warm summers and mild winters.

3891 Sunshine Hours/Year
4 Swim Season Months
17.9°C Avg. Annual Temperature
113m Elevation

Source: Open-Meteo (2020–2025 average)

Beaches & Recreation

The coastline near Higueron offers several beach options. Playa de Torreblanca is located 1.3 km away, Playa de Torreblanca-Carvajal at 2.3 km, and Playa Bonita at 3.0 km, all providing opportunities for water sports and relaxation. Golf enthusiasts have multiple courses within reach, such as Golf Benalmadena Pitch& Putt (4.1 km). Sports centers like Club Hockey Benalmadena (1.8 km) and Club de Tenis y Padel Lew Hoad (3.2 km) further enhance the offerings for an active lifestyle. The proximity to marinas, such as Puerto Deportivo de Fuengirola (4.6 km), adds a maritime dimension.

Beaches

  • Playa de Torreblanca 1.3 km
  • Playa Torreblanca-Carvajal 2.2 km
  • Playa Bonita 3.1 km
  • Playa de los Boliches 3.3 km
  • Playa de Arroyo Hondo 3.4 km
  • Playa Las Viborillas 3.6 km

Golf

  • Golf Benalmadena Pitch& Putt 4.2 km
  • Campo Los Lagos 7 km
  • Campo Los Olivos 7.4 km
  • Cerrado del Aguila Golf 8.5 km

Source: OpenStreetMap

Exterior view of a municipal building with wooden doors and a sign reading "Museo Municipal.

Location in the Region

This apartment is strategically positioned in Higueron, a region recognized for its exclusivity and proximity to major urban centers on the Costa del Sol. It lies between the popular coastal towns of Fuengirola and Benalmádena. The relatively short distance to Málaga (approximately 25 km as the crow flies) and Marbella (approximately 40 km as the crow flies) makes it an attractive base for exploring the region. The location provides a good balance between the tranquility of a residential area and the vibrancy of the Costa del Sol.

Area Guide: Higueron

Key Facts

Climate

Month Avg. Temperature Rainfall
January 11.2°C 62 mm
February 11.6°C 64 mm
March 13.6°C 53 mm
April 15.5°C 36 mm
May 17.7°C 33 mm
June 21.8°C 7 mm
July 25.2°C 1 mm
August 25.5°C 2 mm
September 22.3°C 9 mm
October 18.5°C 52 mm
November 14.6°C 77 mm
December 11.9°C 71 mm

Nearby Amenities

16 restaurant
2 pharmacy
9 cafe

Elevation & Terrain

113m Elevation
1.3 km Beach Distance
8.7% Gradient to beach

Steep

Nearby Highlights

Viewpoints

Ev Charging

Sports Centres

Beaches

Golf Courses

Marinas

Transport & Access

14 km Malaga-Costa del Sol (AGP)
83 km Gibraltar (GIB)
404 km Alicante-Elche (ALC)
1 km Carvajal
2.6 km Torremuelle
4.9 km Fuengirola
4.9 km Terminal Autobus

Project Details

Project Name 2 Bed Middle Floor Apartment in Higueron
City Higueron
Region Costa del Sol
From price €609,000
Living Area 91 m²
Avg. price per m² €6,692 / m²
Terrace 35 m²
Bedrooms 2
Bathrooms 2
Parking Yes
Pool Yes
Garden Yes
Build Status key_ready
Beach Distance 1.3 km
Completion 2024
IBI/yr €526
Published 2026-04-26

Ref: VL399424

Source: Wikipedia, Wikidata, INE, Junta de Andalucía

Emma Whitfield
Emma Whitfield
Real Estate Expert

With years of experience, Emma Whitfield expertly guides English-speaking clients through the intricacies of the Spanish property market. Her dedication ensures a smooth journey.

AI-assisted multilingual representative. Your inquiry is handled by our real support team.

Response within 24 hours

Interested?

Leave your details and we will contact you shortly with more information about this project.

Technical Facts
Apartment with 91 m² of living space.
South-facing orientation with views of the sea, garden, and pool.
Equipped with air conditioning (hot/cold), double glazing, and fitted wardrobes.

Conversation history

Ask a question to start