3 Bed Middle Floor Apartment in Fuengirola in Fuengirola — Apartment
Apartment

Edificio Carmen: Apartments in zentraler Lage in Fuengirola

Edificio Carmen präsentiert eine Auswahl an modernen Apartments im Herzen von Fuengirola, Costa del Sol. Dieses Neubauprojekt, mit voraussichtlicher Fertigstellung im ersten Quartal 2026, bietet eine Mischung aus urbanem Komfort und Küstenflair. Die Wohnungen sind für ein komfortables Leben konzipiert, mit durchdachter Raumaufteilung und energieeffizienten Systemen. Die zentrale Lage ermöglicht kurze Wege zu allen wichtigen Einrichtungen, während die Nähe zum Strand das mediterrane Lebensgefühl unterstreicht. Edificio Carmen richtet sich an Käufer, die eine praktische und gut angebundene Wohnlösung an der beliebten Costa del Sol suchen, sei es für den Eigenbedarf oder als Kapitalanlage.

€329.000
3
Schlafzimmer
2
Badezimmer
72 m²
Wohnfläche
€329.000
Prijs
0,4 km
Strandentfernung

Projektanalyse

Wichtigste Merkmale von Lage, Wohnungen, Projektphase und Beachtenswertes.

Lage

Die Lage von Edificio Carmen in Fuengirola positioniert die Bewohner inmitten eines lebendigen Stadtgebiets. Einrichtungen des täglichen Bedarfs, von Supermärkten bis zu Apotheken, sind nur wenige Gehminuten entfernt. Diese urbane Dichte bedeutet kurze Wege und eine hohe Konnektivität im Alltag, während der Strand ebenfalls fußläufig erreichbar ist.

Raumaufteilung

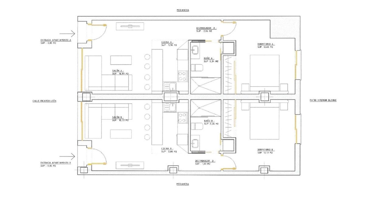
Die Apartments in Edificio Carmen sind auf die Bedürfnisse moderner Bewohner zugeschnitten. Helle, offene Wohnbereiche, voll ausgestattete Küchen und funktionale Schlafzimmer mit Einbauschränken bieten Komfort. Die Ausrichtung nach Südosten und Süden sorgt für viel Tageslicht. Jede Wohnung verfügt über eine Klimaanlage und ein zentrales Warmwassersystem, unterstützt durch Solarenergie.

Projektstatus

Edificio Carmen ist ein Neubauprojekt mit geplanter Fertigstellung im ersten Quartal 2026. Der Baufortschritt folgt modernen Standards, die auf Energieeffizienz und Langlebigkeit abzielen. Käufer profitieren von der Möglichkeit, eine neue Immobilie mit zeitgemäßer Ausstattung und aktueller Bausubstanz zu erwerben, was potenzielle Wartungskosten in der Anfangsphase reduziert.

Beachtenswertes

Edificio Carmen bietet keine privaten Pools auf jeder Wohnebene; stattdessen steht ein Gemeinschaftspool auf dem Dach zur Verfügung. Das Projekt fokussiert sich auf städtisches Wohnen, daher ist die direkte Umgebung von Grünflächen begrenzt. Die Aussicht variiert zwischen urbanen Panoramen und Bergblicken, wobei Meerblick nicht im Vordergrund steht.

Lifestyle & Umgebung

Edificio Carmen eignet sich für Personen, die das pulsierende Stadtleben schätzen und gleichzeitig die Nähe zum Meer suchen. Käufer, die Wert auf kurze Wege zu Geschäften, Restaurants und öffentlichen Verkehrsmitteln legen, werden die zentrale Lage zu schätzen wissen. Es ist eine passende Wahl für diejenigen, die eine praktische Basis für den Alltag oder als Feriendomizil suchen, ohne auf Komfort und moderne Ausstattung verzichten zu wollen. Auch Investoren, die an einer gut vermietbaren Immobilie in einer touristisch attraktiven Region interessiert sind, finden hier eine interessante Option. Die geplante Fertigstellung im Q1 2026 bietet zudem Planungssicherheit.

Bauqualität & Ausstattung

Die Apartments in Edificio Carmen zeichnen sich durch eine moderne und funktionale Bauweise aus. Die Wohnräume sind hell und offen gestaltet, um maximales Tageslicht zu nutzen. Die Küchen sind vollständig ausgestattet und integriert, was nahtlose Übergänge schafft. Die Schlafzimmer verfügen über Einbauschränke, und die Badezimmer sind mit hochwertigen Porzellanfliesen und zeitgemäßen Duschlösungen versehen. Große Fenster und Schiebetüren aus Aluminium sorgen für eine gute Belichtung und Belüftung. Ein zentrales Klimaanlagen-System (kalt/warm) und ein durch Solarpaneele unterstütztes Warmwassersystem tragen zur Energieeffizienz bei. Jede Wohnung ist zudem mit einer privaten Tiefgarage ausgestattet.

Preis & Kontext

Preis & Verfügbarkeit

Die Apartments in Edificio Carmen sind ab einem Preis von 329.000 € verfügbar. Das Projekt bietet Einheiten mit 3 Schlafzimmern und 2 Bädern, die eine Wohnfläche von 72 m² bieten. Die Preise spiegeln die zentrale Lage und den Neubaucharakter wider. Aufgrund der Nachfrage und der begrenzten Verfügbarkeit von Neubauprojekten in dieser gefragten Lage sind die angebotenen Einheiten für Käufer attraktiv, die eine moderne Immobilie mit guter Anbindung suchen. Die genauen Preise und die Verfügbarkeit einzelner Einheiten können variieren und sollten im Detail geprüft werden.

€329.000
Prijs
3
Schlafzimmer
72 m²
Wohnfläche
2
Badezimmer

Kontext & Umgebung

Fuengirola, im Herzen der Costa del Sol gelegen, ist eine dynamische Stadt, die städtisches Leben mit Strandnähe verbindet. Edificio Carmen befindet sich in einer urbanen Umgebung, wo die tägliche Routine durch die Nähe zu zahlreichen Annehmlichkeiten erleichtert wird. Supermärkte, Geschäfte, Restaurants und öffentliche Verkehrsmittel sind bequem zu Fuß erreichbar, was die Notwendigkeit eines Autos reduziert. Die Strände sind nur einen kurzen Spaziergang entfernt, ideal für morgendliche oder abendliche Erfrischungen. Die Stadt bietet eine Mischung aus lokalen Geschäften und touristischen Angeboten, was für eine lebendige Atmosphäre sorgt, die auch außerhalb der Hauptsaison Bestand hat. Die Infrastruktur ist gut ausgebaut, mit Zugang zu Gesundheitsdiensten, Bildungseinrichtungen und Sportanlagen, die alle innerhalb eines kurzen Radius liegen.

Informationen anfordern

Lage: Fuengirola

Wohnen & Umgebung

Das Leben in Edificio Carmen bedeutet die Integration in das städtische Gefüge von Fuengirola. Die unmittelbare Umgebung bietet eine hohe Dichte an Dienstleistungen: 205 Restaurants, 36 Apotheken, 27 Banken und 63 Cafés sind im Umkreis von 2 km angesiedelt. Dies schafft ein lebendiges Umfeld mit vielfältigen Möglichkeiten für Freizeit und tägliche Besorgungen. Die Nähe zu Sportzentren wie dem Pabellón Juan Gómez Juanito (0,6 km) und dem Complejo Deportivo Municipal Elola (0,6 km) sowie zu Stränden wie Playa de San Francisco (0,4 km) bereichert das Freizeitangebot. Die durchschnittliche Jahrestemperatur von 18,7°C und 3.897 Sonnenstunden pro Jahr begünstigen einen aktiven Lebensstil im Freien.

Karte & Lage

Das Projekt Edificio Carmen liegt strategisch günstig im urbanen Zentrum von Fuengirola. Die Karte zeigt die unmittelbare Nähe zu Stränden, Verkehrsanbindungen und städtischen Annehmlichkeiten, was die hohe Lebensqualität und praktische Nutzbarkeit der Lage unterstreicht.

Beachfront room with ocean view, featuring a private balcony and modern amenities.

Lage in der Region

Edificio Carmen befindet sich im Zentrum von Fuengirola, einer Stadt an der zentralen Costa del Sol in der Provinz Málaga. Fuengirola ist Teil der Region Costa del Sol Occidental und eine integrierte Gemeinde innerhalb der Provinz. Die Lage bietet eine gute Anbindung an andere wichtige Städte der Küste, wie Benalmádena (ca. 12 km) und Marbella (ca. 30 km), sowie an die Provinzhauptstadt Málaga (ca. 25 km). Als Teil des umfassenden touristischen und wohnwirtschaftlichen Korridors der Costa del Sol profitiert Fuengirola von einer etablierten Infrastruktur und einer hohen Lebensqualität.

Erreichbarkeit & Einrichtungen

Edificio Carmen profitiert von einer ausgezeichneten Erreichbarkeit und Infrastruktur. Der Strand ist nur 0,4 km (Playa de San Francisco) entfernt, mit weiteren Stränden wie Boliches-Gaviotas, Carvajal und Castillo-Ejido im Umkreis von 1,2 km, von denen vier mit der Blauen Flagge ausgezeichnet sind. Die nächste Supermarkt ist 212 m entfernt, eine Apotheke nur 158 m. Die Flughäfen Málaga (ca. 18 km Luftlinie) und Gibraltar (ca. 79 km Luftlinie) sind gut erreichbar, wobei Málaga-Costa del Sol die primäre Anbindung bietet. Drei Golfplätze (Campo Los Lagos, Cerrado del Aguila Golf, Mijas Golf) liegen im Umkreis von 3,8 km. Das öffentliche Verkehrsnetz ist mit 14 Linien und 33 Haltestellen gut ausgebaut, und der Bahnhof Fuengirola ist nur 0,6 km entfernt.

Strandentfernung 0,4 km
Malaga-Costa del Sol (AGP) 18 km
Gibraltar (GIB) 79 km
Fuengirola 0,6 km
Carvajal 3,5 km

Quelle: OpenStreetMap, Google Maps

Aerial view of a coastal city with a sandy beach and clear blue water.

Natur & Klima

Oceanfront apartment with balcony, city and beach views, modern amenities.

Fuengirola genießt ein mediterranes Klima mit durchschnittlichen Temperaturen zwischen 12°C und 26°C und über 3.897 Sonnenstunden pro Jahr. Dies ermöglicht einen langen Schwimm-Saison von etwa vier Monaten, wenn die Wassertemperatur mindestens 20°C erreicht. Die Stadt liegt auf 15 Metern über dem Meeresspiegel, was zu milden Temperaturen beiträgt und die Anfälligkeit für extreme Wetterbedingungen reduziert. Die leichte Hanglage von 3,0% zum Strand hin ist moderat und beeinflusst die Zugänglichkeit positiv. Die geografische Lage an der zentralen Costa del Sol bietet ein beständiges, angenehmes Klima über das gesamte Jahr.

3897 Sonnenstunden/Jahr
4 Badesaison (Monate)
18.7°C Durchschn. Jahrestemperatur
15m Höhe

Quelle: Open-Meteo (2020–2025 Durchschnitt)

Strände & Erholung

Die Küstenlinie von Fuengirola ist reich an Stränden, wobei Playa de San Francisco nur 0,4 km von Edificio Carmen entfernt liegt. Weitere Strände wie Playa de los Boliches (1,0 km) und Playa de Santa Amalia (1,2 km) sind ebenfalls leicht erreichbar. Vier dieser Strände, darunter Boliches-Gaviotas und Carvajal, sind mit der Blauen Flagge für ihre Wasserqualität und Serviceleistungen ausgezeichnet. Das Freizeitangebot wird durch zahlreiche Sporteinrichtungen ergänzt, darunter 269 Sportanlagen im Umkreis. Beliebte Orte wie die Puerto Deportivo de Fuengirola (0,7 km) und die Piscina María Peláez (0,5 km) sowie mehrere Golfplätze bieten vielfältige Freizeitmöglichkeiten.

Strände

  • Playa de San Francisco 0,4 km
  • Playa de los Boliches 1 km
  • Playa de Santa Amalia 1,2 km
  • Playa del Castillo 1,9 km
  • Playa Torreblanca-Carvajal Blue Flag 2,1 km
  • Playa Mati 2,8 km

Golf

  • Campo Los Lagos 4 km
  • Cerrado del Aguila Golf 4,5 km
  • Campo Los Olivos 4,7 km
  • El Chaparral Golf Club 5,4 km

Sportanlagen

269 Verfügbare Einrichtungen

Quelle: Blue Flag 2026, OpenStreetMap, CSD

Beachfront room with ocean view, featuring a balcony and lounge chairs.

Lage in der Region

Edificio Carmen befindet sich im Zentrum von Fuengirola, einer Stadt an der zentralen Costa del Sol in der Provinz Málaga. Fuengirola ist Teil der Region Costa del Sol Occidental und eine integrierte Gemeinde innerhalb der Provinz. Die Lage bietet eine gute Anbindung an andere wichtige Städte der Küste, wie Benalmádena (ca. 12 km) und Marbella (ca. 30 km), sowie an die Provinzhauptstadt Málaga (ca. 25 km). Als Teil des umfassenden touristischen und wohnwirtschaftlichen Korridors der Costa del Sol profitiert Fuengirola von einer etablierten Infrastruktur und einer hohen Lebensqualität.

Umgebungsführer: Fuengirola

Fuengirola ist eine Stadtgemeinde in der spanischen Region Andalusien. Sie ist eine der 100 selbständigen Gemeinden der Provinz Málaga an der Costa del Sol.

Wichtige Fakten

10.4 km² Fläche

Klima

Monat Durchschn. Temperatur Niederschlag
Januar 11.9°C 56 mm
Februar 12.2°C 57 mm
März 14.2°C 46 mm
April 16.1°C 31 mm
Mai 18.3°C 28 mm
Juni 22.4°C 6 mm
Juli 25.8°C 1 mm
August 26.2°C 2 mm
September 22.9°C 9 mm
Oktober 19.1°C 51 mm
November 15.2°C 74 mm
Dezember 12.6°C 66 mm

Einrichtungen in der Nähe

205 restaurant
36 pharmacy
27 bank
1 park
63 cafe
9 dentist

Höhe & Gelände

15m Höhe
0,4 km Strandentfernung
3.0% Gefälle zum Strand

Mäßig

Highlights in der Nähe

Ev Charging

Sportzentren

Strände

Yachthäfen

Golfplätze

Schwimmbäder

Verkehr & Erreichbarkeit

18 km Malaga-Costa del Sol (AGP)
79 km Gibraltar (GIB)
407 km Alicante-Elche (ALC)
0,6 km Fuengirola
3,5 km Carvajal
6,2 km Torremuelle
0,7 km Terminal Autobus

Projektdetails

Projekt Edificio Carmen
Stadt Fuengirola
Region Costa del Sol
Prijs €329.000
Wohnfläche 72 m²
Durchschn. Preis pro m² €4.569 / m²
Terrasse 29 m²
Schlafzimmer 3
Badezimmer 2
Parkplatz Ja
Pool Ja
Garten Nein
Baustatus for_sale
Bauträger Mediterranean Homes
Strandentfernung 0,4 km
Fertigstellung Q1 2026
Veröffentlicht 2026-04-18

Ref: VL463974

Quelle: Wikipedia, Wikidata, INE, Junta de Andalucía

Zusammenfassung

  • Moderne appartementen in het centrum van Fuengirola, Costa del Sol.
  • Op loopafstand van stranden, winkels en restaurants.
  • Nabijheid van luchthaven Málaga (18 km hemelsbreed) en goede OV-verbindingen.
  • Voorzien van dakterras met zwembad en privé ondergrondse parkeergelegenheid.
  • Oplevering gepland voor Q1 2026, met 3 slaapkamers en 2 badkamers.

Regionaler Vergleich

Im Vergleich zu anderen Projekten in Fuengirola wie Sunset Views (ab 379.950 €) oder Laguna Suites (ab 407.925 €) positioniert sich Edificio Carmen mit einem Einstiegspreis von 329.000 € im mittleren Segment, bietet aber eine zentrale städtische Lage, die bei Projekten wie Artemisa (ab 250.000 €) weniger ausgeprägt ist. Während Artemisa als preisgünstigere Option für kleinere Einheiten dienen könnte, bietet Edificio Carmen mit 72 m² Wohnfläche und 3 Schlafzimmern mehr Raum und eine direktere Anbindung an das Stadtzentrum und den Strand. Projekte wie Sunset Views und Laguna Suites liegen oft etwas weiter vom direkten Stadtzentrum entfernt, bieten aber möglicherweise Meerblick oder größere Grünflächen. Edificio Carmen punktet durch die Kombination aus Neubauqualität, zentraler Urbanität und der Nähe zu allen wichtigen Annehmlichkeiten und dem Strand, was es zu einer attraktiven Wahl für Käufer macht, die eine praktische und gut vernetzte Wohnlage bevorzugen.

Häufig gestellte Fragen

Wat zijn de unieke verkoopargumenten van Edificio Carmen in vergelijking met andere projecten in Fuengirola?
Edificio Carmen onderscheidt zich door de combinatie van een centrale stedelijke ligging, de nabijheid van het strand (0,4 km) en moderne voorzieningen zoals een dakterras met zwembad en privé parkeergelegenheid. Het project is gericht op efficiëntie en comfort in een dynamische omgeving.
Hoe is de bereikbaarheid van Edificio Carmen?
Het project is goed bereikbaar via de weg en ligt op 18 km hemelsbreed van de luchthaven van Málaga. Het treinstation van Fuengirola bevindt zich op 0,6 km afstand, met verbindingen naar Málaga en de luchthaven. Er zijn 33 OV-haltes in de buurt.
Welke energie-efficiëntie maatregelen zijn geïmplementeerd?
De appartementen zijn voorzien van centrale airconditioning (warm/koud) en een centraal warmwatersysteem dat wordt ondersteund door zonnepanelen. Dit draagt bij aan een verbeterde energie-efficiëntie.
Is dit project geschikt als investering?
Gezien de centrale ligging in een populaire toeristische stad aan de Costa del Sol, de nabijheid van voorzieningen en de moderne afwerking, kan Edificio Carmen een aantrekkelijke investering zijn voor verhuurdoeleinden.
Welke faciliteiten zijn beschikbaar in het gebouw en de directe omgeving?
Het gebouw beschikt over een gemeenschappelijk dakterras met zwembad en privé parkeergelegenheid. In de directe omgeving bevinden zich talrijke restaurants, winkels, supermarkten, apotheken, banken en sportfaciliteiten.
Wat zijn de verwachte servicekosten (comunidad) voor de appartementen?
Specificaties over de maandelijkse servicekosten zijn niet verstrekt in de projectdata.
Wat is het aankoopproces voor een appartement in Edificio Carmen?
Het aankoopproces omvat doorgaans reservering, contractondertekening en de uiteindelijke akte bij de notaris. Gedetailleerde informatie over de specifieke stappen en betalingstermijnen dient te worden opgevraagd.
Hoe centraal ligt Edificio Carmen ten opzichte van het strand en voorzieningen?
Het project is zeer centraal gelegen. Het dichtstbijzijnde strand, Playa de San Francisco, ligt op 0,4 km afstand. Essentiële voorzieningen zoals supermarkten en apotheken zijn eveneens op loopafstand te vinden.
Maiko
Maiko
Immobilienexperte

Maiko ist ein Immobilienspezialist mit Fokus auf den spanischen Wohnungsmarkt. Mit fundierten Kenntnissen der Costa del Sol, Costa Blanca und anderer beliebter Küstenregionen unterstützt er Käufer bei der Suche nach der richtigen Immobilie. Er analysiert das Angebot basierend auf Lage, Marktwert, Bauqualität und Lebensqualität und bietet während des gesamten Kaufprozesses ehrliche, datengesteuerte Beratung.

Antwort innerhalb von 24 Stunden

Interessiert?

Hinterlassen Sie Ihre Daten und wir kontaktieren Sie in Kürze mit weiteren Informationen zu diesem Projekt.

Technische Daten
Het project beschikt over een gemeenschappelijk dakterras met zwembad.
Elk appartement is voorzien van een privé ondergrondse parkeerplaats.
De appartementen zijn uitgerust met een centraal airconditioningsysteem (warm/koud).

Gesprächsverlauf

Stellen Sie eine Frage, um zu beginnen