2 Bed Ground Floor Apartment in Benahavís في Benahavís — شقة
شقة

شقة للبيع في بيناهافيس | Hacienda del Señorio de Cifuentes

تقع هذه الشقة الساحرة المكونة من غرفتي نوم في الطابق الأرضي في مجتمع Hacienda del Señorio de Cifuentes المسور المرموق في بيناهافيس، وتوفر إطلالات على البحر الأبيض المتوسط والجبال. يتميز المنتجع الآمن والصديق للعائلة بأربعة حمامات سباحة وحدائق مشتركة مذهلة وصالة رياضية جديدة قيد الإنشاء. يقع المنتجع في بيئة منخفضة الكثافة تضم 23 مبنى سكنيًا. يوفر المجتمع الأمان على مدار 24 ساعة وإطلالات بانورامية على ملاعب الجولف والبحر وجبل طارق وحتى الساحل الأفريقي. على بعد 15 دقيقة فقط من مرسى بويرتو بانوس الفاخر والشواطئ، مع سهولة الوصول إلى الطريق A-7، مما يجعلها مثالية للمعيشة على مدار العام أو العطلات أو الاستثمار.

يبدأ من €564,000
2
غرف النوم
2
الحمامات
125 m²
مساحة المعيشة
يبدأ من €564,000
السعر المبدئي
جاهز للتسليم
حالة البناء

تحليل المشروع

أهم خصائص الموقع، والوحدات، ومراحل المشروع، ونقاط الاهتمام.

الموقع

تقع الشقة في منطقة بيناهافيس الجبلية الهادئة، بعيدًا عن الساحل، مما يوفر بيئة ريفية هادئة. على الرغم من بعدها عن الشاطئ، إلا أنه يمكن الوصول بسهولة إلى ماربيا وإستيبونا عبر الطريق السريع A-7.

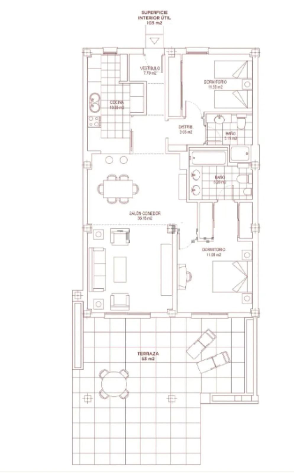
المخططات

تعد هذه الشقة المكونة من غرفتي نوم خيارًا عمليًا لأولئك الذين يبحثون عن نمط حياة هادئ. إنها مجهزة بوسائل الراحة الحديثة، بما في ذلك التدفئة والتكييف، مع وصول مباشر إلى التراس، مما يجعلها مثالية للاستمتاع بالهواء الطلق.

حالة المشروع

تم الانتهاء من المشروع، مما يوفر الراحة الفورية. تخطط المنطقة للتوسع، مما يشير إلى إمكانية التطوير المستمر والحفاظ على الأجواء الشبيهة بالمنتجع.

نقاط هامة

في حين أن الشقة توفر إطلالات على البحر، إلا أنها تقع في الداخل وتتطلب السفر للوصول إلى الشواطئ. يلزم وجود سيارة للتنقل اليومي بسبب خيارات النقل العام المحدودة.

نمط الحياة

تعد هذه الشقة المكونة من غرفتي نوم خيارًا مناسبًا للمشترين الدوليين الذين يبحثون عن عقار في كوستا ديل سول يجمع بين الهدوء وسهولة الوصول. إنها مثالية لأولئك الذين يرغبون في امتلاك منزل للعطلات متاح على مدار العام، أو يبحثون عن مكان آمن ومريح للإقامة الدائمة. توفر إطلالات على البحر والجبال، بالإضافة إلى القرب من ملاعب الجولف، جاذبية لعشاق الجولف وأولئك الذين يقدرون الجمال الطبيعي. نظرًا لأن العقار جاهز للسكن ومفروش بالكامل، يمكن استخدامه للسكن أو التأجير على الفور، مما يمثل ميزة للمستثمرين الذين يسعون لتحقيق عائد سريع على استثماراتهم. يضمن القرب من الطرق الرئيسية والمدن القريبة سهولة الحياة اليومية والترفيه.

الجودة والتشطيبات

تتميز الشقة التي تبلغ مساحتها 125 مترًا مربعًا بتصميم دافئ ومريح. إنها مجهزة بوسائل الراحة الحديثة، بما في ذلك التدفئة تحت البلاط في جميع الأنحاء وتكييف الهواء، مما يضمن الراحة على مدار العام. تحتوي غرفتا النوم الفسيحتان على خزائن مدمجة توفر مساحة تخزين كبيرة. يوفر حماما السكن الكاملان الراحة. توفر المطابخ المجهزة بالكامل مع منطقة غسيل مساحة كافية للطهي اليومي. غرفة المعيشة والطعام الفسيحة تفتح على تراس، مما يجعلها مثالية للاسترخاء في البيئة الهادئة مع خصوصية كاملة. تباع الشقة مفروشة بالكامل وجاهزة للانتقال إليها أو تأجيرها على الفور.

البيئة ونمط الحياة

السعر والتوفر

تبدأ أسعار هذه الشقة المكونة من غرفتي نوم من 564,000 يورو. العقار جاهز للسكن الفوري. يقدم المجتمع مجموعة متنوعة من الشقق، وقد تختلف الأسعار بناءً على الموقع المحدد والحجم والإطلالات. تشتهر المنطقة، وخاصة محيط بيناهافيس، بسوق عقاري قوي، حيث يقدر معدل الزيادة السنوية للعقارات المماثلة بنسبة 10-15%، مما يشير إلى إمكانات استثمارية جيدة.

€564,000
السعر المبدئي
2
غرف النوم
125 m²
مساحة المعيشة
2
الحمامات

البيئة المحيطة

يوفر مجتمع Hacienda del Señorio de Cifuentes نمط حياة هادئًا ومريحًا. تقع الشقة في موقع استراتيجي للاستمتاع بمناظر ملاعب الجولف والجبال والبحر، وفي الأيام الصافية، يمكن رؤية الساحل الأفريقي. يضم المجتمع العديد من حمامات السباحة والحدائق المشتركة المعتنى بها جيدًا، مما يوفر مساحة للسكان للاسترخاء والترفيه. تزيد خدمة الأمن على مدار 24 ساعة من الأمان، مما يجعلها مناسبة بشكل خاص للعائلات ولمن يبحثون عن راحة البال. على الرغم من موقعها الهادئ، فإنها تقع على بعد 15 دقيقة بالسيارة من الشواطئ ومرسى بويرتو بانوس الفاخر ومركز إستيبونا التاريخي، مع سهولة الوصول إلى الطريق A-7 للمناطق المحيطة. تشير البيئة منخفضة الكثافة وخطط التوسع إلى منطقة نامية مع الحفاظ على جاذبيتها الهادئة.

طلب معلومات

الموقع والبيئة: Benahavís

البيئة والوصول

بيناهافيس هي بلدة جبلية خلابة في مقاطعة مالاغا، تقع بين ماربيا وإستيبونا وروندا، على بعد حوالي 7 كيلومترات من الساحل. تشتهر المنطقة بملاعب الجولف والمناظر الطبيعية والقرية الإسبانية التقليدية الساحرة. يوفر مجتمع Hacienda del Señorio de Cifuentes بيئة آمنة ومنخفضة الكثافة تضم أربعة حمامات سباحة وحدائق مشتركة جميلة. على الرغم من الموقع الهادئ، إلا أنها تقع على بعد أقل من 7 كيلومترات من الشواطئ مثل بلايا ديل سالاديلو، ويوفر الطريق السريع A-7 سهولة الوصول إلى مدن مثل ماربيا وإستيبونا، حيث توجد مجموعة متنوعة من المتاجر والمطاعم والمعالم الثقافية. توفر خدمة الأمن على مدار 24 ساعة أمانًا إضافيًا للسكان.

الخريطة والموقع

توضح الخريطة موقع Hacienda del Señorio de Cifuentes، وهو مجتمع يقع في منطقة جبلية في بيناهافيس. تبرز الخريطة الموقع النسبي للمشروع بالنسبة لملاعب الجولف القريبة والخط الساحلي وطرق النقل الرئيسية مثل الطريق السريع A-7.

Street scene in Benahavís, Spain, with white houses and mountains in background.

الموقع الإقليمي

تقع بيناهافيس في قلب كوستا ديل سول، في منطقة جبلية في مقاطعة مالاغا، بين مدن رئيسية مثل ماربيا وإستيبونا وروندا. تُعتبر واحدة من أجمل القرى البيضاء في المنطقة، وتوفر بيئة ريفية هادئة مع البقاء على مقربة من حيوية الساحل. تشتهر المنطقة بملاعب الجولف والمناظر الطبيعية الخلابة ومشهد الطهي، مما يجعلها خيارًا شائعًا للمقيمين الذين يبحثون عن أسلوب حياة منعزل. يضمن القرب من المطارات الرئيسية مثل جبل طارق ومالاغا سهولة السفر الدولي.

المرافق والوصول

تقع الشقة على بعد حوالي 7 كيلومترات من الشواطئ مثل بلايا ديل سالاديلو، وعلى بعد حوالي 48 كيلومترًا من مطار مالاغا-كوستا ديل سول (AGP). يقع أقرب سوبر ماركت ومستشفى على بعد 4 كيلومترات و 6.7 كيلومترات على التوالي. بالنسبة لعشاق الجولف، تقع ملاعب La Zagaleta Country Club و Marbella Club Golf Resort و El Higueral Golf ضمن مسافة 3.1 كيلومتر. تتوفر نقاط شحن للمركبات الكهربائية (296 مترًا) وصيدلية (362 مترًا) داخل المجتمع. في حين أن هناك عددًا محدودًا من خطوط النقل العام (خط واحد، محطة واحدة)، يوصى بشدة بامتلاك سيارة للتنقل اليومي واستكشاف المناطق المحيطة. تتوفر 14 مطعمًا ومدرسة واحدة وصيدلية واحدة و 3 بنوك في مكان قريب.

Gibraltar (GIB) 49 km
Malaga-Costa del Sol (AGP) 51 km

المصدر: OpenStreetMap, Google Maps

Street scene in Benahavís, Spain, featuring white buildings and plants.

الطبيعة والمناخ

Fountain in Benahavis town at night

تتمتع منطقة بيناهافيس بمناخ البحر الأبيض المتوسط، حيث تتراوح درجات الحرارة المتوسطة بين 11 درجة مئوية و 26 درجة مئوية، بمتوسط ​​سنوي قدره 18.3 درجة مئوية. تستقبل المنطقة ما متوسطه 3846 ساعة من أشعة الشمس سنويًا، مما يجعلها وجهة شهيرة لمن يحبون الشمس. يستمر موسم السباحة لمدة 4 أشهر تقريبًا، حيث تصل درجة حرارة الماء إلى 20 درجة مئوية أو أعلى. تقع المنطقة على ارتفاع 174 مترًا فوق مستوى سطح البحر، وتوفر مناخًا معتدلًا، بالإضافة إلى إطلالات على البحر بفضل قربها من الساحل. يبلغ هطول الأمطار السنوي في المنطقة معتدلاً، مما يجعلها مثالية للأنشطة الخارجية.

3846 ساعات الشمس/سنة
4 موسم السباحة (أشهر)
18.3°C متوسط الحرارة السنوي
174m الارتفاع

المصدر: Open-Meteo (2020–2025 متوسط)

الشواطئ والترفيه

على الرغم من موقعها في الداخل، تقع الشقة على مسافة قريبة نسبيًا من الشواطئ، حيث تقع كل من بلايا ديل سالاديلو وبلايا إيسدابي على بعد حوالي 7 كيلومترات. عادة ما تكون هذه الشواطئ مجهزة جيدًا، على الرغم من أنها قد لا تحمل شهادة العلم الأزرق. بالنسبة لعشاق الجولف، هذه المنطقة هي جنة، مع ملاعب مشهورة مثل La Zagaleta Country Club و Marbella Club Golf Resort و El Higueral Golf على بعد مسافة قصيرة بالسيارة. يوجد أيضًا العديد من المراكز الرياضية وحمامات السباحة في المجتمع والمناطق القريبة، مثل Pabellón Municipal de Deportes و Piscinas Municipales. بالإضافة إلى ذلك، يمكن استكشاف نقاط المشاهدة مثل Mirador del Tajo del Novio، أو زيارة مرسى Puerto Deportivo José Banus على بعد 8.7 كيلومترات.

Golf

  • La Zagaleta Country Club - La Zagaleta Course 1.8 km
  • Marbella Club Golf Resort 2.6 km
  • El Higueral Golf 2.6 km
  • Driving Range / German Golf Academy 4.3 km

مرافق رياضية

25 المرافق المتاحة

المصدر: OpenStreetMap, CSD

Benahavís road with scenic landscape, mountain, and greenery.

الموقع الإقليمي

تقع بيناهافيس في قلب كوستا ديل سول، في منطقة جبلية في مقاطعة مالاغا، بين مدن رئيسية مثل ماربيا وإستيبونا وروندا. تُعتبر واحدة من أجمل القرى البيضاء في المنطقة، وتوفر بيئة ريفية هادئة مع البقاء على مقربة من حيوية الساحل. تشتهر المنطقة بملاعب الجولف والمناظر الطبيعية الخلابة ومشهد الطهي، مما يجعلها خيارًا شائعًا للمقيمين الذين يبحثون عن أسلوب حياة منعزل. يضمن القرب من المطارات الرئيسية مثل جبل طارق ومالاغا سهولة السفر الدولي.

دليل المنطقة: Benahavís

Benahavís is a Spanish town (pueblo) and municipality in the province of Malaga. It is a mountain village between Marbella, Estepona, and Ronda, 7 kilometers (4.3 mi) from the coast.

حقائق أساسية

145.0 km² المساحة

المناخ

الشهر متوسط الحرارة معدل الأمطار
يناير 11.0°C 96 mm
فبراير 11.3°C 99 mm
مارس 13.4°C 89 mm
أبريل 15.2°C 60 mm
مايو 17.2°C 47 mm
يونيو 21.4°C 12 mm
يوليو 25.4°C 1 mm
أغسطس 25.8°C 2 mm
سبتمبر 22.2°C 20 mm
أكتوبر 18.2°C 82 mm
نوفمبر 14.3°C 119 mm
ديسمبر 11.6°C 106 mm

المرافق القريبة

14 restaurant
1 school
1 pharmacy
3 bank
4 cafe

الارتفاع والتضاريس

174m الارتفاع

معالم قريبة

ملاعب الغولف

مراكز رياضية

نقاط مشاهدة

موانئ ترفيهية

مدارس دولية

Ev Charging

النقل والوصول

49 km Gibraltar (GIB)
51 km Malaga-Costa del Sol (AGP)
442 km Alicante-Elche (ALC)

تفاصيل المشروع

المشروع 2 Bed Ground Floor Apartment in Benahavís
المدينة Benahavís
المنطقة Costa del Sol
السعر المبدئي €564,000
مساحة المعيشة 125 m²
السعر لكل م² €4,512 / m²
غرف النوم 2
الحمامات 2
موقف سيارات نعم
مسبح نعم
حديقة نعم
حالة البناء key_ready
تاريخ الإنجاز 2006
تاريخ النشر 2026-04-19

Ref: VL047102

المصدر: Wikipedia, Wikidata, INE, Junta de Andalucía

ملخص

  • يقع في مجتمع Hacienda del Señorio de Cifuentes الخلاب في بيناهافيس
  • غرفتا نوم، 125 متر مربع، مع إطلالات على البحر والجبل
  • جاهزة للسكن، مفروشة بالكامل، جاهزة للانتقال إليها
  • يشمل المجتمع 4 حمامات سباحة وحدائق مشتركة وأمن على مدار 24 ساعة
  • قريب من ملاعب الجولف، على بعد 15 دقيقة من الشواطئ وبويرتو بانوس

مقارنة إقليمية

مقارنة بالمشاريع الأخرى في المنطقة، تقدم هذه الشقة في Hacienda del Señorio de Cifuentes مزيجًا فريدًا من الهدوء وسهولة الوصول. يقع Altura 160 (بدءًا من 499,000 يورو) و Fuente Lirios (بدءًا من 400,000 يورو) بالقرب من بيناهافيس وقد يوفران بيئة ريفية مماثلة، ولكن بأسعار ووسائل راحة مختلفة. يقع Azurean Marbella (بدءًا من 707,972 يورو) بالقرب من الساحل وقد يوفر وصولاً مباشرًا أكثر إلى الشاطئ ونقطة سعر مختلفة، مما يمثل جزءًا من سوق المنطقة المتميز. تتميز Hacienda del Señorio de Cifuentes بأمن مجتمعها المسور، وحمامات السباحة المتنوعة، والحدائق المورقة، والقرب من ملاعب الجولف الشهيرة، مع الحفاظ على أجواء ريفية هادئة نسبيًا. يعكس سعرها البالغ 564,000 يورو موقعها ومرافقها وحالتها الجاهزة للسكن، مما يجعلها خيارًا قويًا للمشترين الذين يبحثون عن نمط الحياة في كوستا ديل سول.

الأسئلة الشائعة

هل هذه الشقة مناسبة للمعيشة على مدار العام؟
نعم، تم تجهيز الشقة بتدفئة أرضية وتكييف هواء، مما يجعلها مناسبة للمعيشة على مدار العام. توفر البيئة الهادئة للمجتمع ووسائل الراحة أيضًا دعمًا للإقامة طويلة الأجل.
هل أحتاج إلى سيارة للعيش هنا؟
في حين أن هناك عددًا محدودًا من خطوط النقل العام، يوصى بشدة بامتلاك سيارة لسهولة التنقل اليومي والتسوق واستكشاف المناطق المحيطة.
ما هي جودة بناء الشقة؟
الشقة جاهزة للسكن، وتوفر 125 مترًا مربعًا من المساحة المعيشية، وهي مجهزة بوسائل الراحة الحديثة، بما في ذلك التدفئة الأرضية وتكييف الهواء. إنها مفروشة بالكامل.
ما هي آفاق سوق العقارات في المنطقة؟
يُظهر سوق العقارات في بيناهافيس أداءً قويًا، حيث تقدر الزيادة السنوية في قيمة العقارات المماثلة بنسبة 10-15%، مع وجود طلب قوي على الإيجار.
ما هي المرافق المتوفرة في المجتمع؟
يشتمل المجتمع على أربعة حمامات سباحة وحدائق مشتركة وأمن على مدار 24 ساعة، بالإضافة إلى صالة رياضية جديدة قيد الإنشاء.
ما هي التكاليف المستمرة بخلاف سعر الشراء؟
قد تشمل التكاليف المستمرة رسوم المجتمع والضرائب البلدية (IBI) والمرافق. يُنصح بالاتصال بممثل مبيعات المشروع للحصول على تفاصيل.
ما هي عملية الشراء؟
تتضمن عملية الشراء عادةً دفع رسوم حجز، وتوقيع عقد شراء خاص (PPC)، وربما الحصول على قرض عقاري، وأخيرًا، إتمام سند الملكية (Escritura) أمام كاتب عدل مع دفع الرصيد المتبقي.
ما مدى قرب الشواطئ والمدن الرئيسية؟
تقع الشقة على بعد حوالي 7 كيلومترات من الشواطئ مثل بلايا ديل سالاديلو. المراكز التاريخية لماربيا وإستيبونا على بعد 15 دقيقة بالسيارة فقط.
Maiko
Maiko
خبير عقاري

مايكو خبير عقاري متخصص في سوق الإسكان الإسباني. بفضل معرفته العميقة بمنطقة كوستا ديل سول وكوستا بلانكا والمناطق الساحلية الشهيرة الأخرى، فإنه يساعد المشترين في العثور على العقار المناسب. يقوم بتحليل العروض بناءً على الموقع والقيمة السوقية وجودة البناء وإمكانية العيش، ويقدم نصائح صادقة ومدعومة بالبيانات طوال عملية الشراء.

رد خلال 24 ساعة

مهتم؟

اترك بياناتك واحصل على معلومات عن التوفر، والأسعار، والمخططات.

المواصفات الفنية
يحتوي مجتمع Hacienda del Señorio de Cifuentes على 23 مبنى سكنيًا.
تقع الشقة على ارتفاع 174 مترًا فوق مستوى سطح البحر.
يبلغ متوسط ​​عدد ساعات أشعة الشمس السنوية في المنطقة 3846 ساعة.
يوجد داخل المجتمع محطات شحن للمركبات الكهربائية.
تم الانتهاء من المشروع.

Conversation history

Ask a question to start