2 Bed Townhouse in Estepona في Estepona — تاون هاوس
تاون هاوس

تاون هاوس للبيع في إيستيبونا مع إطلالة على البحر

يقع هذا التاون هاوس في موقع متميز في إيستيبونا، على مسافة قريبة سيرًا على الأقدام من الشاطئ ومحاطًا بالمرافق الحضرية. يتكون المشروع من ثلاثة منازل ويوفر نمط حياة معاصرًا، مع سهولة الوصول إلى الوجهات الشهيرة مثل ماربيا وسان بيدرو ألكانتارا. يواجه مكان الإقامة الجنوب الشرقي ويوفر إطلالات على البحر، مع تشطيبات ومرافق عالية الجودة.

€610,000
2
غرف النوم
2
الحمامات
119 m²
مساحة المعيشة
€610,000
Prijs
0.8 km
مسافة الشاطئ

تحليل المشروع

أهم خصائص الموقع، والوحدات، ومراحل المشروع، ونقاط الاهتمام.

الموقع

يقع التاون هاوس في بيئة حضرية نابضة بالحياة في إيستيبونا، على بعد دقائق قليلة سيرًا على الأقدام من الشاطئ. يتمتع مكان الإقامة باتصال جيد بالمحلات التجارية المحلية والمطاعم وشبكات النقل، مع سهولة الوصول إلى المدن الرئيسية في المنطقة.

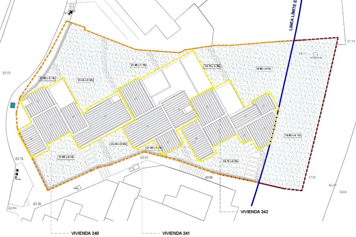
المخططات

إنه خيار مثالي لأولئك الذين يبحثون عن سكن حديث يجمع بين الراحة والملاءمة. توفر الشرفة الخاصة والحديقة مكان إقامة مثاليًا للاستمتاع بالمناخ المتوسطي، مع القرب من الشاطئ والمرافق المحلية.

حالة المشروع

مكان الإقامة هو جزء من تطوير جديد ذو جودة بناء عالية وتصميم حديث. يتكون المشروع من ثلاثة منازل فقط، مما يضمن الخصوصية والحصرية. من المتوقع أن يتميز العقار بضوء طبيعي وفير وتشطيبات فاخرة.

نقاط هامة

يوفر مكان الإقامة إطلالات على البحر، ولكن لا يمكن رؤيتها من جميع الغرف. في حين أن هناك حديقة خاصة، فإن مساحة الحديقة المشتركة محدودة مقارنة بالشقق. لا يتضمن المشروع مسبحًا خاصًا، ولكنه يحتوي على مسبح مجتمعي.

نمط الحياة

يعد هذا التاون هاوس في إيستيبونا خيارًا ممتازًا لأولئك الذين يبحثون عن منزل ثانٍ في منطقة ساحلية مشمسة. إنه مناسب لأولئك الذين يفضلون أسلوب حياة مريح حيث تقع جميع وسائل الراحة على مسافة قريبة سيرًا على الأقدام، بما في ذلك الشواطئ والمطاعم والمتاجر. كما أنه مناسب لأولئك الذين يرغبون في الاستمتاع ببيئة هادئة مع سهولة الوصول إلى أماكن الترفيه مثل ملاعب الجولف والمراكز الرياضية. الإطلالات على البحر والتصميم الحديث يجعلان منه خيارًا جذابًا للمشترين الذين يبحثون عن الراحة والأناقة.

الجودة والتشطيبات

يتميز التاون هاوس بتشطيبات ومرافق عالية الجودة. تم تجهيز المطبخ بأجهزة راقية ويستخدم نظام تسخين مياه هوائي حراري (aerothermal). تم تركيب بلاط بورسلين فاخر لضمان المتانة والجاذبية الجمالية. يشتمل مكان الإقامة أيضًا على نوافذ مزدوجة الزجاج، مما يساهم في العزل الحراري والصوتي. تخلق هذه الميزات معًا بيئة معيشية مريحة ومنظمة، مع التركيز على الكفاءة والحداثة.

البيئة ونمط الحياة

السعر والتوفر

يبدأ سعر هذا التاون هاوس من 610,000 يورو، ويضم غرفتي نوم وحمامين ومساحة معيشة تبلغ 119 مترًا مربعًا. يقع مكان الإقامة في تطوير صغير يضم ثلاثة منازل. يعكس السعر موقعه المتميز في إيستيبونا، بالقرب من الشاطئ ومختلف المرافق. السعر المبدئي البالغ 610,000 يورو يجعله خيارًا جذابًا للمشترين الذين يبحثون عن سكن ساحلي مريح وملائم.

€610,000
Prijs
2
غرف النوم
119 m²
مساحة المعيشة
2
الحمامات

البيئة المحيطة

إيستيبونا هي بلدة ساحلية ساحرة تشتهر بشواطئها الرملية الذهبية ومناخها المعتدل. يقع هذا التاون هاوس في حي راسخ، على بعد 524 مترًا فقط من الشاطئ، وعلى مسافة قريبة من شاطئ لا رادا وشاطئ بلايا ديل كريستو. تعتبر المنطقة حضرية ولكنها تحتوي على مساحات خضراء وفيرة ومجاري مائية مثل جبال سييرا بيرميخا. تقع مجموعة متنوعة من وسائل الراحة في نطاق المشي أو ركوب الدراجات، بما في ذلك سوبر ماركت على بعد 104 أمتار وصيدلية على بعد 236 مترًا ومستشفى على بعد 4.4 كم. تتراوح متوسط درجات الحرارة بين 12 درجة مئوية و 28 درجة مئوية، مع 3848 ساعة من أشعة الشمس سنويًا، مما يجعلها مكانًا مثاليًا للاستمتاع بالأنشطة الخارجية ونمط الحياة المتوسطي.

طلب معلومات

الموقع والبيئة: Estepona

البيئة والوصول

توفر إيستيبونا، الواقعة في الأندلس، نمط حياة نابض بالحياة مع 79,621 نسمة (اعتبارًا من عام 2025). تغطي المنطقة 137 كيلومترًا مربعًا من التضاريس المتنوعة، من الوديان الخصبة إلى جبال سييرا بيرميخا التي يصل ارتفاعها إلى 1449 مترًا. مع 3848 ساعة من أشعة الشمس سنويًا، فهي وجهة مثالية لعشاق الهواء الطلق. تلبي المنطقة احتياجات العائلات والأفراد من خلال 19 مدرسة ابتدائية و 10 مدارس ثانوية ومركزين صحيين. كما تضم المنطقة 134 مرفقًا رياضيًا و 50 محطة نقل عام، مما يسهل التنقل.

الخريطة والموقع

توضح الخريطة موقع إيستيبونا، مع التركيز على قرب مكان الإقامة من الشواطئ المحلية والمتاجر والمطاعم وطرق النقل الرئيسية. يعرض الراحة الحضرية للمنطقة وقربها من الساحل.

Aerial view of a coastal city with a mix of urban and green areas.

الموقع الإقليمي

إيستيبونا هي جزء من كوستا ديل سول وتقع في مقاطعة مالاغا. وهي تقع في جنوب الأندلس، بالقرب من المدن الرئيسية مثل جبل طارق وماربيا. موقع المدينة الاستراتيجي يجعلها قاعدة مثالية لاستكشاف المنطقة ومعالمها السياحية العديدة، بما في ذلك البلدات التاريخية والمتنزهات الطبيعية والخط الساحلي النابض بالحياة.

المرافق والوصول

يتمتع التاون هاوس بموقع متميز مع سهولة الوصول إلى وسائل الراحة المختلفة. إنه على بعد 524 مترًا فقط من الشاطئ، و 104 أمتار من السوبر ماركت، و 236 مترًا من الصيدلية، و 4.4 كم من المستشفى. بالنسبة لعشاق الجولف، يقع ملعب Valle Romano Golf على بعد 4.1 كم. يقع المطار على بعد 34 كم. تخدم المنطقة 8 خطوط نقل عام و 50 محطة حافلات، مما يوفر خيارات تنقل وفيرة. الشواطئ مثل La Rada (0.8 كم) و Playa del Cristo (2.4 كم) في متناول اليد.

مسافة الشاطئ 0.8 km
Gibraltar (GIB) 36 km
Malaga-Costa del Sol (AGP) 64 km

المصدر: OpenStreetMap, Google Maps

Aerial view of a coastal resort with a marina, pool, and sea view.

الطبيعة والمناخ

Beachfront room with ocean view, featuring a sandy beach, rocky shore, and lush greenery.

تتمتع إيستيبونا بمناخ متوسطي مع متوسط درجات حرارة تتراوح بين 12 درجة مئوية و 28 درجة مئوية، و 3848 ساعة من أشعة الشمس سنويًا. هذا يجعل المنطقة مثالية للأنشطة الخارجية والاستمتاع بالشمس على مدار العام. تقع البلدة في وادٍ خصب في الأندلس، وتحيط بها جبال سييرا بيرميخا التي تصل إلى ارتفاع 1449 مترًا. يقع مكان الإقامة على ارتفاع 15 مترًا فوق مستوى سطح البحر، مما يوفر مناخًا لطيفًا مناسبًا للإقامة على مدار العام.

3848 ساعات الشمس/سنة
5 موسم السباحة (أشهر)
19.2°C متوسط الحرارة السنوي
15m الارتفاع

المصدر: Open-Meteo (2020–2025 متوسط)

الشواطئ والترفيه

تشتهر إيستيبونا بشواطئها الجميلة، بما في ذلك شاطئ بلايا دي إيستيبونا الذي يبعد 524 مترًا فقط عن مكان الإقامة. تشمل الشواطئ الشهيرة الأخرى لا رادا (769 مترًا) وبلايا ديل كريستو (1.6 كم). تضم المنطقة 134 مرفقًا رياضيًا، بما في ذلك مركز بوليديبورتيفو مونيسيبيال (Polideportivo Municipal) الرياضي القريب (0.4 كم). لعشاق الجولف، يوجد العديد من ملاعب الجولف في المنطقة، مثل Valle Romano Golf (4.1 كم) و Azata Golf (4.4 كم). توفر مرسى بويرتو إيستيبونا (1.7 كم) وبويرتو ديبورتيفو (1.9 كم) أنشطة مائية ومناطق لتناول الطعام.

شواطئ

  • La Rada 0.8 km
  • Playa del Angel 1.6 km
  • Playa del Cristo 2.4 km
  • Playa de Punta Plata 2.5 km
  • Playa del Padron 3.9 km
  • Play Costa Natura (Nudist) 4.5 km

Golf

  • Azata Golf 5.1 km
  • Estepona Golf 6.2 km
  • Golf Academy Albayt Resort 6.4 km
  • Club de Golf El Coto de la Serena 7.6 km

مرافق رياضية

134 المرافق المتاحة

المصدر: OpenStreetMap, CSD

Aerial view of a coastal town with a sandy beach and ocean waves.

الموقع الإقليمي

إيستيبونا هي جزء من كوستا ديل سول وتقع في مقاطعة مالاغا. وهي تقع في جنوب الأندلس، بالقرب من المدن الرئيسية مثل جبل طارق وماربيا. موقع المدينة الاستراتيجي يجعلها قاعدة مثالية لاستكشاف المنطقة ومعالمها السياحية العديدة، بما في ذلك البلدات التاريخية والمتنزهات الطبيعية والخط الساحلي النابض بالحياة.

دليل المنطقة: Estepona

Estepona is a town and municipality in the comarca of the Costa del Sol, southern Spain. It is located in the province of Málaga, part of the autonomous community of Andalusia. Its district covers an area of 137 square kilometers in a fertile valley crossed by small streams and a mountainous areas dominated by the Sierra Bermeja, which reaches an elevation of 1,449 m at the peak of Los Reales.

حقائق أساسية

137.0 km² المساحة

المناخ

الشهر متوسط الحرارة معدل الأمطار
يناير 12.5°C 98 mm
فبراير 12.9°C 97 mm
مارس 15.0°C 89 mm
أبريل 16.8°C 60 mm
مايو 18.8°C 46 mm
يونيو 23.3°C 13 mm
يوليو 27.3°C 0 mm
أغسطس 27.8°C 3 mm
سبتمبر 24.0°C 22 mm
أكتوبر 19.9°C 78 mm
نوفمبر 15.9°C 124 mm
ديسمبر 13.1°C 106 mm

المرافق القريبة

50 restaurant
6 school
18 pharmacy
4 bank
2 park
22 cafe
5 dentist

الارتفاع والتضاريس

15m الارتفاع
0.8 km مسافة الشاطئ
1.9% الانحدار إلى الشاطئ

مسطح

معالم قريبة

ملاعب الغولف

مراكز رياضية

موانئ ترفيهية

نقاط مشاهدة

Ev Charging

شواطئ

النقل والوصول

36 km Gibraltar (GIB)
64 km Malaga-Costa del Sol (AGP)
455 km Alicante-Elche (ALC)
1.6 km Estación de Autobuses Estepona

تفاصيل المشروع

المشروع 2 Bed Townhouse in Estepona
المدينة Estepona
المنطقة Costa del Sol
Prijs €610,000
مساحة المعيشة 119 m²
السعر لكل م² €5,126 / m²
التراس 32 m²
غرف النوم 2
الحمامات 2
موقف سيارات نعم
مسبح نعم
حديقة نعم
حالة البناء for_sale
مسافة الشاطئ 0.8 km
تاريخ الإنجاز 2026
تاريخ النشر 2026-04-19

Ref: VL151187

المصدر: Wikipedia, Wikidata, INE, Junta de Andalucía

ملخص

  • يقع في حي سكني في إيستيبونا، على مسافة قريبة من الشاطئ ووسائل الراحة.
  • تاون هاوس حديث بغرفتي نوم وحمامين، بمساحة معيشة 119 مترًا مربعًا.
  • يوفر إطلالات على البحر، بالإضافة إلى شرفة خاصة وحديقة.
  • يقع بالقرب من ملاعب الجولف والمراسي والمراكز الرياضية.
  • يقع على بعد 34 كم من المطار ويسهل الوصول إليه بواسطة وسائل النقل العام.

مقارنة إقليمية

مقارنة بالمشاريع الأخرى على كوستا ديل سول، يوفر هذا التاون هاوس في إيستيبونا فرصة فريدة للحصول على سكن حديث على شاطئ البحر في مجتمع ساحلي راسخ. تقدم مشاريع مثل Atalaya Emotions (بدءًا من 720,000 يورو) و Brisas del Mar (بدءًا من 730,000 يورو) خيارات أكثر تميزًا ولكن بأسعار أعلى. يوفر Azure Estepona (بدءًا من 530,000 يورو) خيارًا أكثر بأسعار معقولة ولكنه قد يكون أبعد عن الشاطئ والمرافق. يبدأ سعر هذا التاون هاوس من 610,000 يورو، ويقدم توازنًا جيدًا بين السعر والموقع والمرافق، مما يجعله خيارًا جذابًا للمشترين الذين يبحثون عن نمط حياة ساحلي عالي الجودة.

الأسئلة الشائعة

ما هي المناطق في إيستيبونا الشائعة بين مشتري العقارات؟
توجد عدة مناطق في إيستيبونا تحظى بشعبية، بما في ذلك وسط المدينة، والمناطق الساحلية (بالقرب من شواطئ لا رادا وبلايا ديل كريستو)، ومنطقة باهيا دورادا في الغرب. تقدم كل منطقة نمط حياة مختلف، من الأجواء الحضرية النابضة بالحياة إلى تجربة أكثر هدوءًا على شاطئ البحر.
ما هي المسافة من هذا العقار إلى مطار مالاغا (AGP)؟
المسافة في خط مستقيم من العقار إلى مطار مالاغا (AGP) تبلغ حوالي 64 كم. قد يختلف وقت القيادة الفعلي حسب حركة المرور والطريق.
ما هي أنظمة التدفئة والتبريد المتوفرة في هذا العقار؟
يتميز العقار بنظام تكييف هواء ونظام تسخين مياه هوائي حراري (aerothermal) لتوفير تحكم فعال في درجة الحرارة وإمدادات المياه الساخنة.
ما هي توقعات سوق العقارات في إيستيبونا؟
يُظهر سوق العقارات في إيستيبونا أداءً قويًا، ويجذب المشترين الدوليين الباحثين عن نمط حياة ساحلي. تقدم المنطقة مجموعة متنوعة من أنواع العقارات، من الفلل الفاخرة إلى الشقق والتاون هاوس الحديثة، مع اختلاف الأسعار والطلب بناءً على الموقع والمرافق.
ما هي ملاعب الجولف القريبة من هذا العقار؟
يوجد العديد من ملاعب الجولف بالقرب من العقار، بما في ذلك Valle Romano Golf (4.1 كم) و Azata Golf (4.4 كم) و Estepona Golf (6.2 كم).
ما هي التكاليف الإضافية المرتبطة بشراء هذا العقار؟
تشمل التكاليف الإضافية لشراء عقار في إسبانيا عادةً: ضريبة نقل الملكية (ITP) أو ضريبة القيمة المضافة (IVA)، ورسوم المحاماة، ورسوم كاتب العدل، ورسوم التسجيل، ورسوم الرهن العقاري (إن وجدت). يوصى بالتشاور مع محامٍ محلي للحصول على تقدير مفصل.
ما هي عملية شراء عقار في إسبانيا؟
تتضمن عملية شراء عقار في إسبانيا عادةً: العثور على العقار، التفاوض على السعر، توقيع اتفاقية الشراء (contrato de arras)، التقدم بطلب للحصول على رقم NIE (رقم تعريف الأجنبي)، تأمين الرهن العقاري (إذا لزم الأمر)، إجراء العناية الواجبة القانونية، وأخيرًا، توقيع عقد البيع النهائي (escritura de compraventa) أمام كاتب عدل.
هل إيستيبونا مناسبة للعائلات؟
نعم، إيستيبونا مناسبة جدًا للعائلات. فهي توفر بنية تحتية جيدة، بما في ذلك 19 مدرسة ابتدائية و 10 مدارس ثانوية، بالإضافة إلى مركزين صحيين. توفر المدينة أيضًا العديد من المتنزهات والشواطئ والأنشطة الرياضية، مما يوفر خيارات ترفيهية واسعة للأطفال والكبار.
Maiko
Maiko
خبير عقاري

مايكو خبير عقاري متخصص في سوق الإسكان الإسباني. بفضل معرفته العميقة بمنطقة كوستا ديل سول، وكوستا بلانكا، والمناطق الساحلية الشهيرة الأخرى، فإنه يساعد المشترين في العثور على العقار المناسب. يقوم بتحليل العروض بناءً على الموقع والقيمة السوقية وجودة البناء وقابلية السكن، ويقدم نصائح صادقة ومستندة إلى البيانات طوال عملية الشراء.

رد خلال 24 ساعة

مهتم؟

اترك بياناتك واحصل على معلومات عن التوفر، والأسعار، والمخططات.

المواصفات الفنية
العقار عبارة عن بناء جديد.
يواجه العقار الجنوب الشرقي.
يطل العقار على البحر.
يحتوي العقار على شرفة خاصة وحديقة خاصة.
يوجد مسبح مشترك في المجمع.

Conversation history

Ask a question to start