3 Bed Middle Floor Apartment in Fuengirola في Fuengirola — شقة
شقة

شقة للبيع في فوينخيرولا

هذه الشقة في وسط مدينة فوينخيرولا، مقاطعة مالاغا، تقع في الطابق الثاني من مبنى مُصان جيدًا مع مصعد. يوفر مكان الإقامة مساحات داخلية واسعة ومناطق معيشة مشرقة، بالإضافة إلى فرصة تخصيص التشطيبات والتصميم حسب ذوقك. موقع مركزي متميز بالقرب من جميع وسائل الراحة، مثالي لمن يبحثون عن منزل في واحدة من أكثر الساحات حيوية في المدينة. على بعد 100 متر فقط من الشاطئ، وهي مثالية للعائلات أو المهنيين، كما أنها تمثل استثمارًا رائعًا.

€635,000
3
غرف النوم
2
الحمامات
115 m²
مساحة المعيشة
€635,000
Prijs
0.4 km
مسافة الشاطئ

تحليل المشروع

أهم خصائص الموقع، والوحدات، ومراحل المشروع، ونقاط الاهتمام.

الموقع

تتمتع هذه الشقة بموقع مركزي في فوينخيرولا، في بيئة حضرية. وهي على بعد خطوات قليلة من الشاطئ، مما يوفر نمط حياة مريح. تقدم المنطقة المحيطة العديد من المتاجر والمطاعم والخدمات العامة، مما يجعل التنقل اليومي سهلاً.

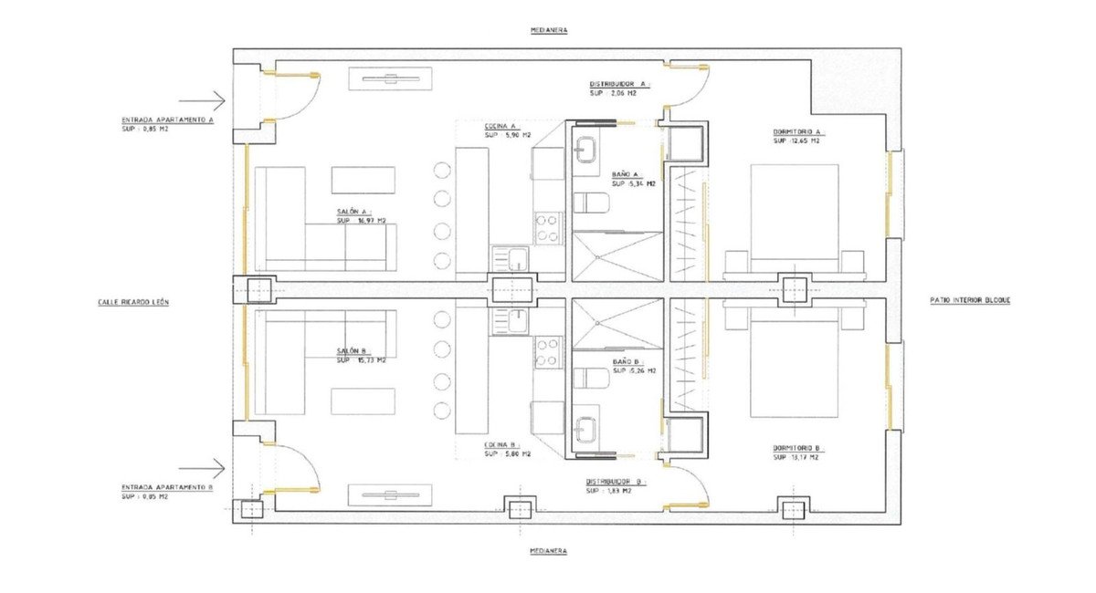
المخططات

هذه الإقامة مناسبة لأولئك الذين يبحثون عن حياة حضرية مريحة. توفر ثلاث غرف نوم وحمامين مساحة واسعة. تتيح الحاجة إلى التجديد للمشترين فرصة تخصيص المساحة لتناسب أذواقهم الشخصية ونمط حياتهم.

حالة المشروع

تقع هذه الشقة في مبنى مُصان جيدًا مع مصعد. في حين أن العقار يتطلب بعض أعمال التجديد، فإن هيكله وموقعه يجعلان منه عرضًا جذابًا. يضمن اتجاه المبنى (جنوب غرب، غرب، شمال غرب) وفرة من الضوء الطبيعي.

نقاط هامة

قد يكون هناك ضوضاء حضرية مرتبطة بالموقع المركزي. قد تكون المساحات الخارجية محدودة بسبب الموقع المركزي. تتطلب الحاجة إلى التجديد ميزانية إضافية للاستثمار الأولي.

نمط الحياة

هذه الشقة مناسبة للأفراد أو العائلات التي تبحث عن نمط حياة حضري مريح. قربه من الشاطئ (658 مترًا) وجميع وسائل الراحة في وسط المدينة يجعله مثاليًا لأولئك الذين يفضلون استكشاف المنطقة سيرًا على الأقدام. إنه أيضًا خيار جيد للمستثمرين الذين يبحثون عن عقار يمكن تخصيصه ليناسب أذواقهم. توفر غرف النوم الثلاث مساحة كافية للعائلات أو المهنيين الذين يحتاجون إلى مكتب منزلي. يضمن اتجاه العقار (جنوب غرب، غرب، شمال غرب) وفرة من الضوء الطبيعي. هذه الشقة مناسبة للمشترين الذين يقدرون الراحة وسهولة الوصول والقرب من الشاطئ.

الجودة والتشطيبات

توفر الشقة مساحات داخلية واسعة ومناطق معيشة مشرقة، مع فرصة تخصيص التشطيبات والتصميم لتناسب ذوقك. تشمل الميزات الحالية أرضيات رخامية واتصال بالألياف الضوئية، مما يضع الأساس للراحة الحديثة. توفر الشرفة المغطاة والشرفة الخاصة مساحات خارجية، بينما تضيف غرفة المرافق عملية إضافية. تمنح الحاجة إلى التجديد للمشترين فرصة لاختيار التشطيبات والأسلوب الذي يناسبهم، مما يخلق منزلًا شخصيًا حقًا.

البيئة ونمط الحياة

السعر والتوفر

تبدأ أسعار هذه الشقة المكونة من ثلاث غرف نوم من 635,000 يورو. يوفر مكان الإقامة، الواقع في مبنى به مصعد، فرصة جذابة نظرًا لموقعه المركزي وقربه من الشاطئ، على الرغم من أنه يتطلب تجديدًا. تبلغ مساحته 115 مترًا مربعًا ويوفر مساحة معيشة واسعة. تشير العقارات المماثلة الأخرى، مثل Aura Higueron (بدءًا من 669,000 يورو) و Higuerón Bay Residences (بدءًا من 580,000 يورو)، إلى مستويات التسعير في المنطقة.

€635,000
Prijs
3
غرف النوم
115 m²
مساحة المعيشة
2
الحمامات

البيئة المحيطة

توفر هذه الشقة الواقعة في وسط فوينخيرولا نمط حياة نابض بالحياة ومريحًا. يقع مكان الإقامة في الطابق الثاني من مبنى مُصان جيدًا مع مصعد، وهو على بعد مسافة قصيرة سيرًا على الأقدام من الشاطئ. تضم المنطقة المحيطة 205 مطعمًا و 63 مقهى و 36 صيدلية، مما يضمن أن تكون الضروريات اليومية في متناول اليد. يضمن وجود سوبر ماركت على بعد 112 مترًا ومستشفى على بعد 8.5 كيلومترات الأمان والراحة للسكان. مع 15 مدرسة ابتدائية و 10 مدارس ثانوية، يجعل هذا المنطقة خيارًا جيدًا للعائلات التي لديها أطفال. مع 3897 ساعة من أشعة الشمس سنويًا، توفر المنطقة فرصًا ممتازة للاستمتاع بالأنشطة الخارجية والشواطئ العديدة.

طلب معلومات

الموقع والبيئة: Fuengirola

البيئة والوصول

فوينخيرولا مدينة نابضة بالحياة مع وفرة من وسائل الراحة والأنشطة. يقع الشاطئ على مسافة قريبة سيرًا على الأقدام (658 مترًا)، مما يسهل الاستمتاع بالشمس والبحر. يضم الحي 205 مطاعم و 63 مقهى و 36 صيدلية، مما يلبي الاحتياجات اليومية. مع 15 مدرسة و 3 مراكز صحية، فإنه يوفر الراحة للعائلات. مع 3897 ساعة من أشعة الشمس سنويًا ومناخ معتدل، تتراوح درجات الحرارة بين 12-26 درجة مئوية، يعد هذا المكان مثاليًا للأنشطة الخارجية. تضم المدينة أربعة شواطئ تحمل العلم الأزرق، بما في ذلك Boliches-Gaviotas و Carvajal.

الخريطة والموقع

توضح هذه الخريطة الشقة الواقعة في وسط فوينخيرولا. يسلط الضوء على موقعها المركزي بالقرب من الشاطئ والمتاجر والمطاعم ووسائل النقل العام. يقع مطار مالاغا (AGP) على بعد حوالي 18 كم.

Beachfront room with ocean view, featuring a private balcony and modern amenities.

الموقع الإقليمي

تقع فوينخيرولا في الساحل الأوسط لأنطاليا، وهي جزء لا يتجزأ من منطقة كوستا ديل سول. موقعها المركزي داخل مقاطعة مالاغا يجعلها قاعدة مثالية لاستكشاف المدن والريف المحيط بها. تعد المدينة، التي يبلغ عدد سكانها 85,211 نسمة، مركزًا مزدهرًا، لكنها لا تزال تحتفظ بسحر بلدة جنوب إسبانية. تقع بالقرب من الوجهات السياحية الشهيرة الأخرى مثل ماربيا وبنالمادينا، وتقدم مجموعة متنوعة من التجارب.

المرافق والوصول

يتمتع مكان الإقامة بموقع متميز مع سهولة الوصول إلى وسائل الراحة المختلفة. يقع الشاطئ على بعد 658 مترًا فقط، وسوبر ماركت على بعد 112 مترًا، وصيدلية على بعد 226 مترًا. تقع أقرب ملاعب الجولف، مثل Campo Los Lagos، على بعد 3.8 كيلومترات فقط. يقع مطار مالاغا (AGP) على بعد حوالي 18 كم، مما يسهل السفر الدولي. وسائل النقل العام وفيرة، مع 14 خط حافلات و 33 محطة حافلات. بالنسبة لسائقي السيارات، فإن وجود محطة شحن كهربائية قريبة (92 مترًا) وشبكة طرق يسهل الوصول إليها يزيد من الراحة.

مسافة الشاطئ 0.4 km
Malaga-Costa del Sol (AGP) 18 km
Gibraltar (GIB) 79 km
Fuengirola 0.6 km
Carvajal 3.5 km

المصدر: OpenStreetMap, Google Maps

Aerial view of a coastal city with a sandy beach and clear blue water.

الطبيعة والمناخ

Oceanfront apartment with balcony, city and beach views, modern amenities.

تتمتع فوينخيرولا بمناخ متوسطي، حيث تتراوح متوسط درجات الحرارة بين 12 درجة مئوية و 26 درجة مئوية. مع 3897 ساعة من أشعة الشمس سنويًا، إنها وجهة مثالية للاستمتاع بالشمس. تقع المدينة على ارتفاع 15 مترًا فوق مستوى سطح البحر، بالقرب من البحر، مما يوفر نسيمًا بحريًا لطيفًا. يمتد موسم السباحة لمدة 4 أشهر، حيث تصل درجة حرارة الماء إلى 20 درجة مئوية أو أعلى. في حين أن المنطقة عند مستوى منخفض، فإن المناطق المحيطة بها توفر فرصًا وفيرة للمشي لمسافات طويلة والأنشطة الخارجية.

3897 ساعات الشمس/سنة
4 موسم السباحة (أشهر)
18.7°C متوسط الحرارة السنوي
15m الارتفاع

المصدر: Open-Meteo (2020–2025 متوسط)

الشواطئ والترفيه

تشتهر فوينخيرولا بشواطئها الجميلة، وأربعة منها تحمل شهادة العلم الأزرق: Boliches-Gaviotas، Carvajal، Castillo-Ejido، و Fuengirola. أقرب شاطئ لمكان الإقامة هذا هو Playa de San Francisco (400 متر). بالإضافة إلى ذلك، تقدم المنطقة مجموعة واسعة من الأنشطة الترفيهية، بما في ذلك 269 مرفقًا رياضيًا، مثل Pabellón Juan Gómez Juanito (600 متر) و Complejo Deportivo Municipal Elola (600 متر). يوفر Puerto Deportivo de Fuengirola (700 متر) القريب مرافق لليخوت. بالنسبة لعشاق الجولف، يقع Campo Los Lagos على بعد 4.0 كم.

شواطئ

  • Playa de San Francisco 0.4 km
  • Playa de los Boliches 1 km
  • Playa de Santa Amalia 1.2 km
  • Playa del Castillo 1.9 km
  • Playa Torreblanca-Carvajal Blue Flag 2.1 km
  • Playa Mati 2.8 km

Golf

  • Campo Los Lagos 4 km
  • Cerrado del Aguila Golf 4.5 km
  • Campo Los Olivos 4.7 km
  • El Chaparral Golf Club 5.4 km

مرافق رياضية

269 المرافق المتاحة

المصدر: Blue Flag 2026, OpenStreetMap, CSD

Beachfront room with ocean view, featuring a balcony and lounge chairs.

الموقع الإقليمي

تقع فوينخيرولا في الساحل الأوسط لأنطاليا، وهي جزء لا يتجزأ من منطقة كوستا ديل سول. موقعها المركزي داخل مقاطعة مالاغا يجعلها قاعدة مثالية لاستكشاف المدن والريف المحيط بها. تعد المدينة، التي يبلغ عدد سكانها 85,211 نسمة، مركزًا مزدهرًا، لكنها لا تزال تحتفظ بسحر بلدة جنوب إسبانية. تقع بالقرب من الوجهات السياحية الشهيرة الأخرى مثل ماربيا وبنالمادينا، وتقدم مجموعة متنوعة من التجارب.

دليل المنطقة: Fuengirola

Fuengirola is a city on the Costa del Sol in the province of Málaga in the autonomous community of Andalusia in southern Spain. It is located on the central coast of the province and integrated into the region of the Costa del Sol and the Commonwealth of Municipalities of the Costa del Sol Occidental.

حقائق أساسية

10.4 km² المساحة

المناخ

الشهر متوسط الحرارة معدل الأمطار
يناير 11.9°C 56 mm
فبراير 12.2°C 57 mm
مارس 14.2°C 46 mm
أبريل 16.1°C 31 mm
مايو 18.3°C 28 mm
يونيو 22.4°C 6 mm
يوليو 25.8°C 1 mm
أغسطس 26.2°C 2 mm
سبتمبر 22.9°C 9 mm
أكتوبر 19.1°C 51 mm
نوفمبر 15.2°C 74 mm
ديسمبر 12.6°C 66 mm

المرافق القريبة

205 restaurant
36 pharmacy
27 bank
1 park
63 cafe
9 dentist

الارتفاع والتضاريس

15m الارتفاع
0.4 km مسافة الشاطئ
3.0% الانحدار إلى الشاطئ

معتدل

معالم قريبة

Ev Charging

مراكز رياضية

شواطئ

موانئ ترفيهية

ملاعب الغولف

مسابح

النقل والوصول

18 km Malaga-Costa del Sol (AGP)
79 km Gibraltar (GIB)
407 km Alicante-Elche (ALC)
0.6 km Fuengirola
3.5 km Carvajal
6.2 km Torremuelle
0.7 km Terminal Autobus

تفاصيل المشروع

المشروع 3 Bed Middle Floor Apartment in Fuengirola
المدينة Fuengirola
المنطقة Costa del Sol
Prijs €635,000
مساحة المعيشة 115 m²
السعر لكل م² €5,521 / m²
التراس 10 m²
غرف النوم 3
الحمامات 2
موقف سيارات لا
مسبح لا
حديقة لا
حالة البناء for_sale
مسافة الشاطئ 0.4 km
تاريخ الإنجاز 1975
تاريخ النشر 2026-04-19

Ref: VL616688

المصدر: Wikipedia, Wikidata, INE, Junta de Andalucía

ملخص

  • شقة في وسط فوينخيرولا، على بعد خطوات من الشاطئ.
  • ثلاث غرف نوم، حمامان، بمساحة 115 متر مربع، تتطلب تجديدًا.
  • قريبة من المتاجر والمطاعم والمدارس ووسائل النقل العام.
  • تبعد حوالي 18 كم عن مطار مالاغا، مع سهولة الوصول.
  • المنطقة تتمتع بـ 3897 ساعة شمس سنويًا ومناخ معتدل.

مقارنة إقليمية

مقارنة بالمشاريع المجاورة مثل Aura Higueron (بدءًا من 669,000 يورو) و Carat (بدءًا من 822,000 يورو)، يقدم هذا المشروع (بدءًا من 635,000 يورو) خيارًا أقل تكلفة، خاصة مع الحاجة إلى التجديد. يعتبر Higuerón Bay Residences، الذي يبدأ سعره من 580,000 يورو، خيارًا أقل تكلفة. سوق العقارات في فوينخيرولا متنوع، من الشقق التي تتطلب تجديدًا إلى المشاريع الراقية. الموقع المركزي للعقار وقربه من الشاطئ هما نقطتا قوته الرئيسيتان، خاصة بالنسبة للمشترين الذين يبحثون عن عقار للتخصيص. المنطقة، التي تتمتع بالكثير من أشعة الشمس والمناخ المعتدل على مدار العام، تجذب المشترين الدوليين الذين يبحثون عن نمط الحياة المتوسطي.

الأسئلة الشائعة

ما هو تأثير تكاليف التجديد على التكلفة الإجمالية للملكية؟
تعتمد تكاليف التجديد على المواد المختارة ونطاق العمل. يوصى بالحصول على تقديرات من المقاولين المحليين للحصول على تقييم دقيق.
هل الوصول إلى مطار مالاغا سهل من الشقة؟
نعم، تقع الشقة على بعد حوالي 18 كم من مطار مالاغا (AGP) ويمكن الوصول إليها بسهولة نسبيًا عبر الطرق.
هل يوجد مصعد في المبنى؟
نعم، المبنى مجهز بمصعد.
كيف هو سوق العقارات الحالي في فوينخيرولا؟
فوينخيرولا وجهة سياحية شهيرة بسوق عقارات مستقر، لا سيما في المناطق المركزية القريبة من الشاطئ ووسائل الراحة الرئيسية.
ما هي المرافق المتوفرة في الجوار؟
توجد بالقرب من الشقة محلات سوبر ماركت وصيدليات ومطاعم ومقاهي ومدارس ومراكز رياضية، ويمكن الوصول إليها جميعًا سيرًا على الأقدام.
ما هي التكاليف الأخرى بخلاف سعر الشراء؟
يجب على المشترين المحتملين مراعاة ضريبة الأملاك والضرائب البلدية ورسوم المجتمع وتكاليف التجديد.
ما هي إجراءات شراء هذا العقار؟
تتضمن عملية الشراء عادةً: تقديم عرض، وتوقيع اتفاقية البيع (contrato de arras)، وتأمين الرهن العقاري (إذا لزم الأمر)، وأخيرًا توقيع سند الملكية (escritura pública) أمام كاتب عدل.
ما هي المسافة إلى الشاطئ من هذا العقار؟
أقرب شاطئ، Playa de San Francisco، يقع على بعد حوالي 400 متر، ويمكن الوصول إليه سيرًا على الأقدام.
Maiko
Maiko
خبير عقاري

مايكو خبير عقاري متخصص في سوق العقارات الإسباني. بفضل معرفته المتعمقة بمنطقة كوستا ديل سول وكوستا بلانكا والمناطق الساحلية الشهيرة الأخرى، فإنه يساعد المشترين في العثور على العقار المناسب. يقوم بتحليل العروض بناءً على الموقع والقيمة السوقية وجودة البناء وقابلية السكن، ويقدم نصائح صادقة وموجهة بالبيانات طوال عملية الشراء بأكملها.

رد خلال 24 ساعة

مهتم؟

اترك بياناتك واحصل على معلومات عن التوفر، والأسعار، والمخططات.

المواصفات الفنية
تبلغ المساحة المبنية لهذا العقار 115 مترًا مربعًا.
العقار موجه نحو الجنوب الغربي والغرب والشمال الغربي.
يوجد مصعد في المبنى.

Conversation history

Ask a question to start