2 Bed Middle Floor Apartment in Málaga i Málaga — Lejlighed
Lejlighed

Lejlighed til Salg i Málaga Centrum

Denne moderne lejlighed ligger i hjertet af Málaga, en livlig by på Costa del Sol. Ejendommen tilbyder et praktisk boligareal på 77 m² med 2 soveværelser og 1 badeværelse, ideel for dem, der ønsker at bo tæt på byen, men stadig tæt på stranden. Málaga, hovedstaden i sin provins, er kendt for sin rige historie, livlige kultur og behagelige klima. Byen har en fremragende infrastruktur og er et populært rejsemål for både lokale og internationale besøgende. Nærheden til lufthavnen og det effektive offentlige transportsystem gør denne beliggenhed særligt attraktiv.

€315.000
2
Soveværelser
1
Badeværelser
77 m²
Boligareal
€315.000
Prijs
1,7 km
Afstand til strand

Projektanalyse

Nøglekendetegn ved beliggenhed, boliger, projektets fase og punkter at være opmærksom på.

Beliggenhed

Lejligheden ligger i et urbant miljø i Málaga, kendetegnet ved nem adgang til faciliteter. Supermarkeder og apoteker er i umiddelbar nærhed, hvilket gør hverdagen lettere. Nærheden til skoler og offentlig transport understreger den praktiske beliggenhed for beboere.

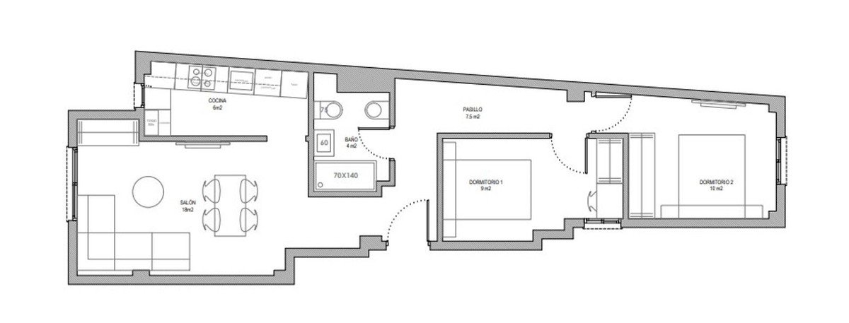
Plantegning

Denne 77 m² lejlighed er funktionelt indrettet og henvender sig til købere, der ønsker en central beliggenhed med alle bekvemmeligheder inden for gåafstand. Den er velegnet til singler, par eller små familier, der sætter pris på bylivet og nærheden til stranden. Nylig renovering og møbleret overdragelse giver øjeblikkelig komfort.

Projektstatus

Dette er en eksisterende ejendom, der for nylig er blevet renoveret. Lejligheden er i fremragende stand og klar til indflytning. Bygningen er udstyret med elevator, hvilket øger komforten. Det er ikke et nybyggeri i klassisk forstand, men en moderniseret ejendom.

Vigtige bemærkninger

Projektet tilbyder ingen direkte havudsigt og ligger ikke i et eksklusivt boligområde. En privat have er ikke tilgængelig, og udsigten er begrænset til det urbane miljø. Lejligheden er muligvis mindre velegnet til familier, der har brug for flere badeværelser. Energimærket er under udarbejdelse.

Projektdetaljer

Projekt 2 Bed Middle Floor Apartment in Málaga
By Málaga
Region Costa del Sol
Prijs €315.000
Boligareal 77 m²
Pris pr. m² €4.090 / m²
Soveværelser 2
Badeværelser 1
Parkering Nej
Pool Nej
Have Nej
Byggestatus for_sale
Afstand til strand 1,7 km
Afsluttet 2007
Grundskyld/år €251
Publiceret 2026-04-19

Ref: VL893868

Kilde: Wikipedia, Wikidata, INE, Junta de Andalucía

Livsstil & omgivelser

Denne lejlighed er et passende valg for købere, der ønsker at opleve Málagas pulserende byliv uden at opgive nærheden til Middelhavet. Den er ideel for professionelle, der værdsætter god forbindelse til centrum og lufthavnen (7,9 km) og som prioriterer korte afstande til supermarkeder (73 m) og apoteker (211 m). Den er også ideel for par, der søger en veludstyret, renoveret lejlighed som permanent bolig. Beliggenheden i et område med talrige uddannelses- og sundhedsinstitutioner appellerer også til familier, der søger en praktisk base i et urbant miljø. Det faktum, at lejligheden leveres møbleret og har elevator, gør den også attraktiv for investorer, der søger en umiddelbart udlejbar ejendom med højt efterspørgselspotentiale.

Byggekvalitet & materialer

Lejligheden er for nylig renoveret og fremstår i fremragende stand. Gulvene er af træ, hvilket skaber en varm atmosfære. Køkkenet er fuldt udstyret med moderne apparater. Badeværelserne er ligeledes moderniserede. Indvendige døre og vinduer er af god kvalitet. Møblerne, der er inkluderet i købsprisen, er funktionelle og passer til lejlighedens moderne stil. Elevatoren i bygningen udgør en ekstra bekvemmelighed. Bygningens karakteristika, såsom beliggenheden i et bymiljø og højden over havets overflade (8 m), er typiske for denne del af Málaga. Det urbane miljø kan medføre en vis grad af støj, hvilket bør tages i betragtning ved vurdering af lydisoleringen.

Omgivelser & livsstil

Pris & ledighed

Den tilbudte 2-værelses lejlighed med 77 m² boligareal udbydes fra 315.000 €. Denne prispositionering placerer ejendommen i mellemsegmentet af tilbud i Málaga, især sammenlignet med lignende ejendomme i centrum (fra 325.000 €) og i nyere projekter som Bulevar 360 (fra 366.795 €). Beliggenheden i et etableret byområde og den nylige renovering retfærdiggør denne pris. Tilgængelighed bør bekræftes på forespørgselstidspunktet, da udbud og efterspørgsel ændrer sig hurtigt på Málagas dynamiske ejendomsmarked. Málaga-regionen registrerede 7.240 ejendomstransaktioner sidste år.

€315.000
Prijs
2
Soveværelser
77 m²
Boligareal
1
Badeværelser
€251
Grundskyld/år

Omgivelser & livsstil

Denne lejlighed i Málaga tilbyder en fremragende balance mellem byliv og nærhed til kysten. Med kun 1,7 km til Playa de San Andrés og 1,3 km til Playa de la Malagueta er strandene let tilgængelige. Det umiddelbare miljø er præget af en urban tæthed med talrige butikker, restauranter og servicefaciliteter. Et supermarked ligger kun 73 meter væk, et apotek 211 meter. Málagas centrum er også hurtigt tilgængeligt, hvilket letter adgangen til kultur, shopping og gastronomi. Området er velegnet til personer, der foretrækker en aktiv bylivsstil og værdsætter korte afstande. De 379 restauranter og 155 caféer inden for en radius af 2 km tilbyder varierede kulinariske muligheder. Den høje tæthed af uddannelsesinstitutioner og sundhedscentre (26 af dem) understreger beliggenhedens funktionalitet for hverdagen.

Anmod om oplysninger

Beliggenhed & omgivelser: Málaga

Omgivelser & tilgængelighed

At bo i denne lejlighed i Málaga betyder at være midt i begivenhedernes centrum. Omgivelserne er urbane og tilbyder alt, hvad der er nødvendigt for hverdagen, let tilgængeligt til fods. Supermarkeder (73 m), apoteker (211 m), diverse butikker og restauranter (379 inden for 2 km radius) er i umiddelbar nærhed. Málagas livlige centrum ligger også en kort gåtur derfra og lokker med kulturelle seværdigheder, shopping og et varieret gastronomisk udbud. Til afslapning findes nærliggende strande som Playa de la Malagueta (1,3 km) og Playa de San Andrés (1,8 km). Den gode forbindelse til det offentlige transportsystem (43 linjer, 78 stoppesteder) og nærheden til motorvejen letter mobiliteten. De 147 grundskoler og 101 gymnasier i byområdet appellerer også til familier.

Kort & beliggenhed

Kortet viser lejlighedens beliggenhed i Málagas bycentrum, i umiddelbar nærhed af vigtige transportårer og bykernen. Visningen af de omgivende faciliteter som supermarkeder, skoler og strande fremhæver den centrale og vel-forbundne position.

Aerial view of a cityscape with a large cathedral and surrounding buildings under a clear blue sky.

Beliggenhed i regionen

Lejligheden er beliggende i Málaga, hovedstaden i provinsen af samme navn og et vigtigt centrum på Costa del Sol. Med over 599.000 indbyggere er det Andalusiens næststørste by og et betydningsfuldt økonomisk og kulturelt knudepunkt. Den ligger strategisk placeret på Spaniens sydkyst, omgivet af et varieret landskab, der kombinerer kyst og bjerge. Beliggenheden i byen muliggør fremragende infrastruktur og forbindelse til andre kystbyer som Torremolinos, Benalmádena og Marbella, som alle er let tilgængelige. Málaga fungerer som porten til Costa del Sol og tilbyder en blanding af traditionel andalusisk charme og moderne urban dynamik.

Tilgængelighed & faciliteter

Tilgængeligheden er et fremragende træk ved denne lejlighed. Playa de la Malagueta ligger kun 1,3 km væk, Playa de San Andrés 1,8 km. Nærheden til Málaga-Costa del Sol Lufthavn (7,9 km) er en stor fordel for rejsende. Málagas centrum er også let tilgængeligt med vigtige togstationer som Málaga Centro Alameda (0,2 km) i nærheden. Et tæt netværk af 43 offentlige transportlinjer med 78 stoppesteder sikrer fremragende mobilitet inden for byen. For golfspillere er golfbanerne let tilgængelige, omend med en vis køretid: Club de Golf Málaga Parador (8,0 km), Club de Golf de Guadalhorce (9,3 km). En ladestation til elbiler er også tilgængelig på 434 m.

Afstand til strand 1,7 km
Malaga-Costa del Sol (AGP) 8 km
Gibraltar (GIB) 104 km
Málaga Centro Alameda 0,2 km
Guadalmedina 0,3 km

Kilde: OpenStreetMap, Google Maps

Beachfront apartment with ocean view, balcony, and modern amenities.

Natur & klima

Beachfront room with ocean view, balcony, and cityscape.

Málaga nyder et middelhavsklima med et gennemsnit på 3.888 solskinstimer om året, hvilket resulterer i milde vintre og varme somre. Gennemsnitstemperaturen ligger mellem 12°C og 26°C, med en gennemsnitlig årlig temperatur på 18,9°C. Havvandet når en behagelig temperatur på mindst 20°C om sommeren, hvilket indbyder til en badesæson på cirka 5 måneder. Lejligheden ligger kun 8 meter over havets overflade, hvilket understreger nærheden til kysten og de flade stier til stranden (0,5% hældning). Det lave terræn i omgivelserne bidrager til komforten.

3888 Solskinstimer/år
5 Badesæson (måneder)
18.9°C Gns. årstemperatur
8m Højde

Kilde: Open-Meteo (2020–2025 gennemsnit)

Strande & fritid

Lejligheden giver adgang til flere strande, herunder den populære Playa de la Malagueta (1,3 km) og Playa de San Andrés (1,8 km). I alt er der syv Blå Flag-strande i nærheden, såsom Playa de la Misericordia (3,2 km). Regionen er et paradis for vandsportsentusiaster og soldyrkere. Ud over strandene tilbyder Málaga et væld af fritidsmuligheder. Der er 586 sportsfaciliteter, herunder Centro Municipal de Ajedrez (0,3 km) og Centro Wellness (0,6 km). Nærheden til flere golfbaner som Club de Golf Málaga Parador (8,0 km) er attraktiv for golfspillere. Marinaer som IGY Málaga Marina (1,1 km) er også let tilgængelige.

Strande

  • Playa de San Andrés Blue Flag 1,7 km
  • Playa de la Misericordia Blue Flag 3,1 km
  • Playa de los Baños del Carmen 3,9 km
  • Playa Sacaba Beach 4,5 km
  • Playa de Pedregalejo Blue Flag 4,7 km
  • Caleta Blue Flag

Golf

  • Club de Golf Málaga Parador 8 km
  • Club de Golf de Guadalhorce 9,3 km
  • Campo de Golf Miguel Ángel Jiménez 10,9 km

Sportsfaciliteter

586 Tilgængelige faciliteter

Kilde: Blue Flag 2026, OpenStreetMap, CSD

A spacious room with a cityscape view, featuring large windows and modern decor.

Beliggenhed i regionen

Lejligheden er beliggende i Málaga, hovedstaden i provinsen af samme navn og et vigtigt centrum på Costa del Sol. Med over 599.000 indbyggere er det Andalusiens næststørste by og et betydningsfuldt økonomisk og kulturelt knudepunkt. Den ligger strategisk placeret på Spaniens sydkyst, omgivet af et varieret landskab, der kombinerer kyst og bjerge. Beliggenheden i byen muliggør fremragende infrastruktur og forbindelse til andre kystbyer som Torremolinos, Benalmádena og Marbella, som alle er let tilgængelige. Málaga fungerer som porten til Costa del Sol og tilbyder en blanding af traditionel andalusisk charme og moderne urban dynamik.

Omgivelser: Málaga

Málaga is a municipality of Spain and the capital of the province of Málaga, in the autonomous community of Andalusia. With a population of 592,346 in 2024, it is the 2nd-largest city in Andalusia and the 6th-largest in the country. It lies in Southern Iberia on the Costa del Sol of the Mediterranean, primarily on the left bank of the Guadalhorce. The urban core originally developed in the space between the Gibralfaro Hill and the Guadalmedina.

Nøglefakta

395.0 km² Areal

Klima

Måned Gns. temperatur Nedbør
Januar 12.1°C 62 mm
Februar 12.4°C 64 mm
Marts 14.4°C 53 mm
April 16.4°C 36 mm
Maj 18.6°C 33 mm
Juni 22.7°C 7 mm
Juli 26.1°C 1 mm
August 26.4°C 2 mm
September 23.2°C 9 mm
Oktober 19.3°C 52 mm
November 15.4°C 77 mm
December 12.8°C 71 mm

Nærhed til faciliteter

379 restaurant
126 pharmacy
71 bank
155 cafe
26 dentist

Højde & Terræn

8m Højde
1,7 km Afstand til strand
0.5% Hældning til stranden

Fladt

I nærheden

Udsigtspunkter

Sportscentre

Ev Charging

Golfbaner

Strande

Lystbådehavne

Transport

8 km Malaga-Costa del Sol (AGP)
104 km Gibraltar (GIB)
383 km Alicante-Elche (ALC)
0,2 km Málaga Centro Alameda
0,3 km Guadalmedina
0,3 km Atarazanas
0,5 km Estación de Muelle Heredia
0,8 km Estación de Autobuses de Málaga

Overblik

  • Urban lejlighed på 77 m² med 2 soveværelser og 1 badeværelse i centrum af Málaga.
  • Gåafstand til stranden (1,3 km) og diverse faciliteter som supermarkeder og apoteker.
  • Nyrenoveret, fremragende stand, fuldt møbleret og med elevator.
  • Fremragende tilgængelighed: 7,9 km fra Málaga-Costa del Sol Lufthavn (AGP).
  • Ideel som permanent bolig eller investering i en dynamisk by med høj efterspørgsel.

Regional sammenligning

Sammenlignet med andre tilbud i Málaga er denne lejlighed prismæssigt attraktiv. Mens lignende ejendomme i det rene centrum som 'Malaga Centrum' starter fra 325.000 €, tilbyder denne ejendom en sammenlignelig beliggenhed og faciliteter. 'Bulevar 360' i Málaga, som tilbyder nyere og potentielt mere luksuriøse enheder, starter fra 366.795 €, hvilket gør denne renoverede lejlighed til et mere økonomisk alternativ. Fjernere projekter som 'Acqua Gardens' i Estepona, der fokuserer mere på strandnærhed og resort-atmosfære, starter allerede fra 418.800 €. Den lejlighed, der tilbydes her, udmærker sig ved sin urbane beliggenhed, gode infrastruktur og nylige renovering, hvilket gør den til et solidt valg for købere, der ønsker at opleve det autentiske Málaga uden at gå på kompromis med moderne komfort. Tilgængeligheden af 7.240 transaktioner i Málaga-regionen indikerer et aktivt marked.

Ofte stillede spørgsmål

Er lejligheden stille?
Lejligheden ligger i et bymiljø, hvilket typisk medfører en vis støjniveau. Den præcise støjgener afhænger af den specifikke gadeplacering og etagen.
Er bil nødvendig til hverdagsbrug?
På grund af den urbane beliggenhed og nem adgang til supermarkeder, butikker og offentlig transport, er bil ikke strengt nødvendigt til hverdagsbrug. Til udflugter i lokalområdet eller til fjernere destinationer kan en bil dog være en fordel.
Hvornår blev lejligheden sidst renoveret?
Lejligheden er for nylig renoveret og er i fremragende stand. Specifikke datoer for renoveringen er ikke tilgængelige.
Hvad er efterspørgslen efter leje i dette område?
Málaga er en populær turistdestination og et voksende centrum for digitale nomader, hvilket fører til høj efterspørgsel efter lejemål. Lejlighedens centrale beliggenhed og gode faciliteter er attraktive for lejere.
Hvilke fritidsmuligheder er der i nærheden?
I umiddelbar nærhed finder du strande, restauranter, caféer, sportscentre og kulturelle seværdigheder. Byen Málaga tilbyder desuden et bredt udvalg af fritidsaktiviteter.
Hvilke omkostninger er forbundet med købet?
Omkostninger som notarhonorarer, tinglysningsgebyrer og ejendoms-overdragelsesskat er ikke inkluderet i købsprisen. Disse omkostninger varierer afhængigt af købsprisen og de regionale satser.
Hvad er processen for at købe en ejendom i Spanien?
Købsprocessen omfatter typisk reservation, underskrivelse af en privat købsaftale, gennemgang af juridiske aspekter og den endelige underskrivelse af købsaftalen foran en notar.
Hvor langt er der til den nærmeste strand?
Playa de San Andrés ligger ca. 1,7 km væk, Playa de la Malagueta 1,3 km. Begge er let tilgængelige til fods eller med en kort køretur.
Maiko
Maiko
Boligekspert

Maiko er ejendomsekspert med speciale i det spanske boligmarked. Med dybdegående kendskab til Costa del Sol, Costa Blanca og andre populære kystregioner hjælper han købere med at finde den rette bolig. Han analyserer udbuddet baseret på beliggenhed, markedsværdi, byggekvalitet og livskvalitet, og giver ærlig, datadrevet rådgivning gennem hele købsprocessen.

Svar inden for 24 timer

Interesseret?

Efterlad dine oplysninger og modtag information om ledighed, priser og plantegninger.

Tekniske fakta
Boligareal: 77 m²
Soveværelser: 2
Badeværelser: 1
Pris: fra 315.000 €
Byggeår: Ikke specificeret (renoveret)

Samtalehistorik

Stil et spørgsmål for at starte