4 Bed Detached Villa in Estepona i Estepona — Villa
Villa

Villa i Estepona till Salu - Nytt Projekt

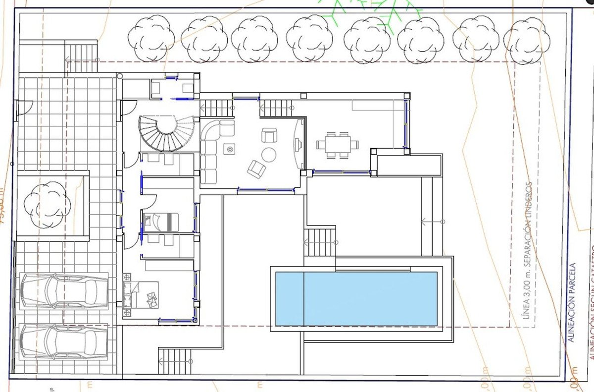
Denna nybyggda villa i Estepona, provinsen Málaga, erbjuder 190 m² boyta, inklusive fyra sovrum och tre badrum, på en 640 m² stor tomt. Med ett utgångspris på 1.400.000 € positionerar sig detta projekt i det övre segmentet av Costa del Sol. Läget kännetecknas av närheten till stränder och stadens bekvämligheter, medan byggfasen förutspår färdigställande år 2027. Projektet lovar modern arkitektur och högkvalitativa ytskikt.

€1 400 000
4
Sovrum
3
Badrum
190 m²
Boarea
€1 400 000
Prijs
0,8 km
Avstånd till strand

Projektanalys

Viktiga egenskaper för läge, bostäder, byggfas och att tänka på.

Plats

Villan är belägen i Estepona, en etablerad kuststad på Costa del Sol. Den ligger inom gångavstånd från stranden och stadens bekvämligheter. Omgivningen beskrivs som urban med god tillgänglighet till service, vilket erbjuder en kombination av kustliv och stadskomfort.

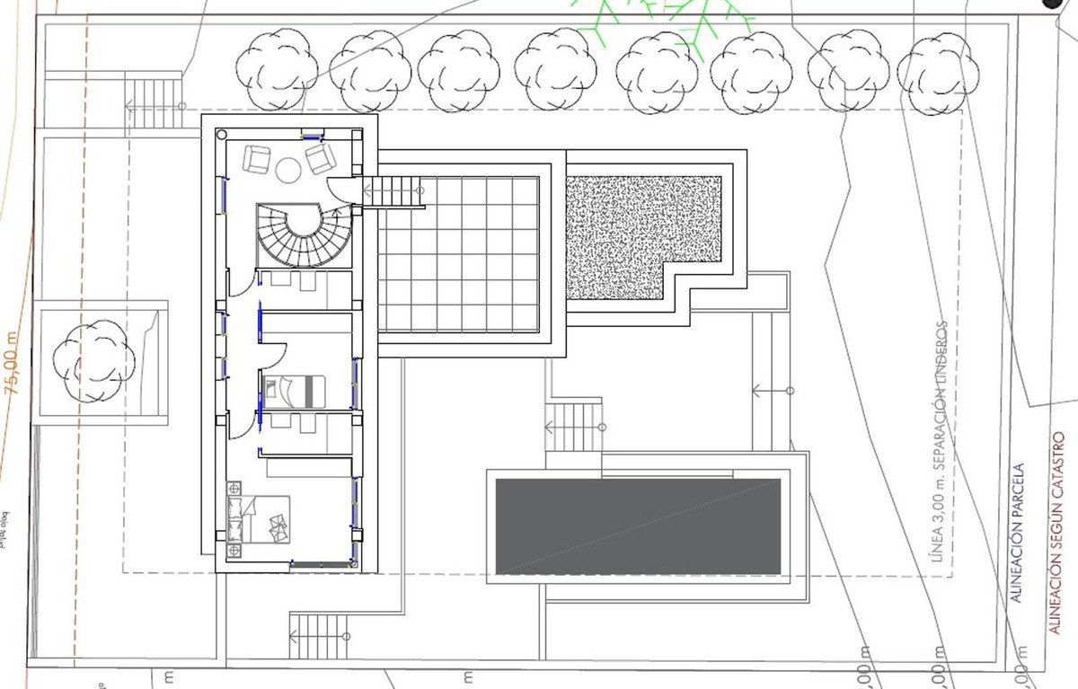
Ritningar

Detta projekt riktar sig till köpare som söker en modern villa med tillräckligt med utrymme för familj och gäster. Fyra sovrum, varav tre är en-suite, och generösa vardagsrum i ett plan är utformade för optimal boendekomfort. Utomhusområdena med terrasser och pool erbjuder utrymme för avkoppling och underhållning.

Projektstatus

Byggprojektet är i planerings- eller tidig byggfas, med ett förväntat färdigställande år 2027. Bygglov och arkitektritningar finns tillgängliga. Byggnationen utförs av erfarna byggare med över 20 års erfarenhet på kusten och erkända för sin kvalitet.

Att tänka på

Projektet erbjuder inte omedelbar inflyttning då det är en nybyggnation. Specifika ytbehandlingsdetaljer och den slutliga utformningen av interiören kan variera beroende på byggnadens framsteg och köparens önskemål. Information om exakta material och tekniska specifikationer kommer att preciseras under byggprocessen.

Projektinformation

Projekt 4 Bed Detached Villa in Estepona
Ort Estepona
Region Costa del Sol
Prijs €1 400 000
Boarea 190 m²
Pris per m² €7 368 / m²
Sovrum 4
Badrum 3
Parkering Nej
Pool Nej
Trädgård Nej
Byggstatus for_sale
Avstånd till strand 0,8 km
Inflyttning 2025
Publicerad 2026-04-19

Ref: VL300085

Källa: Wikipedia, Wikidata, INE, Junta de Andalucía

Livsstil & Omgivning

Detta projekt passar köpare som vill förvärva en nybyggd villa med fyra sovrum nära stranden på Costa del Sol. Det riktar sig till familjer som värdesätter utrymme och moderna bekvämligheter, samt till köpare som söker en fastighet i en etablerad semesterregion som erbjuder liv året runt. Närheten till golfbanor och stadens bekvämligheter gör den också attraktiv för sportentusiaster och de som uppskattar en god infrastruktur. Färdigställandet år 2027 gör det möjligt för köpare att delta i byggprocessen och integrera sina önskade detaljer.

Byggkvalitet & Ytskikt

Projektet genomförs av ett byggföretag med över 20 års erfarenhet på kusten, som har vunnit flera utmärkelser. Villan kommer att byggas enligt höga standarder, där köpare ges möjlighet att påverka stilen och de inre ytskikten. Detta möjliggör en individuell anpassning som återspeglar personlig smak. De moderna arkitektoniska planerna och den befintliga bygglicensen utgör grunden för uppförandet av en lyxig villa med utsikt över golfbanan.

Omgivning & Livsstil

Pris & Tillgänglighet

Fyrarumsvillan i Estepona erbjuds från 1.400.000 €. Erbjudandet avser det specifika projektet med 190 m² boyta och 640 m² tomt. Priserna för jämförbara projekt i Estepona varierar, vilket framgår av exemplen Ayana Estepona (från 985.000 €) och Aurea Villas (från 1.550.000 €). Tillgängligheten är projektrelaterad och riktar sig till köpare som söker en nybyggd fastighet med moderna bekvämligheter och ett bra läge.

€1 400 000
Prijs
4
Sovrum
190 m²
Boarea
3
Badrum

Omgivning & Livsstil

Estepona, beläget i provinsen Málaga, förkroppsligar Costa del Sol med en blandning av traditionell andalusisk charm och modern utveckling. Staden sträcker sig över 137 km², präglad av bördiga dalar och foten av Sierra Bermeja, som når 1 449 m höjd. Medeltemperaturen under året är behagliga 19,2°C, med toppar som gynnar ett förlängt utomhusliv. Med över 3 800 soltimmar per år och en fem månader lång badsäsong är regionen idealisk för utomhusaktiviteter. Den lokala infrastrukturen är välutvecklad, med många restauranger, skolor, apotek och parker inom en 2 km radie. Staden lockar både lokalbefolkning och internationella besökare, vilket framgår av närvaron av 24 hotell och en livlig turismscen. Regionen erbjuder en hög densitet av sport- och fritidsanläggningar, inklusive 134 idrottsanläggningar och många golfbanor, vilket stärker dess dragningskraft för aktiva invånare.

Begär information

Läge & Området: Estepona

Omgivning & Kommunikationer

Villan ligger i Estepona, en stad känd för sin balans mellan traditionell charm och moderna bekvämligheter. Den omedelbara omgivningen erbjuder stormarknader (104 m), apotek (236 m) och restauranger inom gångavstånd. Stranden Playa de Estepona ligger endast 524 m bort. Anslutningen till större centra och flygplatsen är god, med Málaga 34 km bort. Regionen är rik på fritidsaktiviteter, från de många stränderna till golfbanor i världsklass som Valle Romano Golf (4,1 km). Medeltemperaturen på 19,2°C och nästan 3 850 soltimmar per år främjar en aktiv livsstil utomhus.

Karta & Plats

Denna villa ligger i Estepona, en kuststad vid Costa del Sol i provinsen Málaga. Kartan visualiserar projektets läge i förhållande till viktiga punkter som stranden, stadens centrum, golfbanor och Málaga flygplats.

Aerial view of a coastal city with a mix of urban and green areas.

Läge i regionen

Estepona är strategiskt beläget vid Costa del Sol i provinsen Málaga. Det fungerar som en port till den västra Costa del Sol och erbjuder goda förbindelser till Marbella i öster och regionen Campo de Gibraltar i väster. Staden i sig är en dynamisk plats som sträcker sig över 137 km², inklusive både kuststräckor och bergiga områden. Med en befolkning på nästan 80 000 invånare (uppskattning 2025) och över 3 100 årliga fastighetstransaktioner, visar Estepona hög aktivitet och attraktionskraft som bostads- och investeringsplats inom Andalusien.

Kommunikationer & Service

Läget i Estepona erbjuder utmärkt tillgänglighet. Stranden Playa de Estepona ligger endast 524 meter bort. Stormarknader (104 m) och apotek (236 m) nås till fots, vilket underlättar vardagen. För golfare finns flera banor i närheten, inklusive Valle Romano Golf (4,1 km). Provinsens huvudstad, Málaga, och dess flygplats ligger bara 34 km bort, vilket garanterar internationella förbindelser. Med 8 linjer för kollektivtrafik och 50 hållplatser är den lokala kollektivtrafiken också välutvecklad, vilket kan minska behovet av bil.

Avstånd till strand 0,8 km
Gibraltar (GIB) 36 km
Malaga-Costa del Sol (AGP) 64 km

Källa: OpenStreetMap, Google Maps

Aerial view of a coastal resort with a marina, pool, and sea view.

Natur & Klimat

Beachfront room with ocean view, featuring a sandy beach, rocky shore, and lush greenery.

Estepona åtnjuter ett medelhavsklimat med en genomsnittlig årstemperatur på 19,2°C och över 3 800 soltimmar per år. Detta möjliggör en lång badsäsong på cirka fem månader, då vattentemperaturen överstiger 20°C. Läget vid foten av Sierra Bermeja erbjuder en intressant topografi, som sträcker sig från platta kuststräckor till bergiga områden. Villan ligger själv på 15 meters höjd över havet med en svag lutning på 1,9% mot stranden, vilket underlättar tillgängligheten.

3848 Soltimmar/år
5 Badsäsong (månader)
19.2°C Medelårstemperatur
15m Höjd över havet

Källa: Open-Meteo (2020–2025 genomsnitt)

Stränder & Fritid

Villan ligger bara några minuters promenad från stranden, med Playa de Estepona (524 m) och La Rada (769 m) som de närmaste. Det finns totalt 134 idrottsanläggningar i omgivningen, inklusive tennisbanor och gym. Regionen är ett paradis för golfare med många banor som Valle Romano Golf (4,1 km). Närheten till fritidsbåthamnar som Puerto Estepona (1,7 km) och välutvecklade sportcenter kompletterar fritidsutbudet och gör Estepona till en attraktiv plats för aktiva invånare.

Stränder

  • La Rada 0,8 km
  • Playa del Angel 1,6 km
  • Playa del Cristo 2,4 km
  • Playa de Punta Plata 2,5 km
  • Playa del Padron 3,9 km
  • Play Costa Natura (Nudist) 4,5 km

Golf

  • Azata Golf 5,1 km
  • Estepona Golf 6,2 km
  • Golf Academy Albayt Resort 6,4 km
  • Club de Golf El Coto de la Serena 7,6 km

Idrottsanläggningar

134 Tillgängliga anläggningar

Källa: OpenStreetMap, CSD

Aerial view of a coastal town with a sandy beach and ocean waves.

Läge i regionen

Estepona är strategiskt beläget vid Costa del Sol i provinsen Málaga. Det fungerar som en port till den västra Costa del Sol och erbjuder goda förbindelser till Marbella i öster och regionen Campo de Gibraltar i väster. Staden i sig är en dynamisk plats som sträcker sig över 137 km², inklusive både kuststräckor och bergiga områden. Med en befolkning på nästan 80 000 invånare (uppskattning 2025) och över 3 100 årliga fastighetstransaktioner, visar Estepona hög aktivitet och attraktionskraft som bostads- och investeringsplats inom Andalusien.

Omradesguide: Estepona

Estepona is a town and municipality in the comarca of the Costa del Sol, southern Spain. It is located in the province of Málaga, part of the autonomous community of Andalusia. Its district covers an area of 137 square kilometers in a fertile valley crossed by small streams and a mountainous areas dominated by the Sierra Bermeja, which reaches an elevation of 1,449 m at the peak of Los Reales.

Nyckelfakta

137.0 km² Area

Klimat

Månad Medeltemperatur Nederbörd
Januari 12.5°C 98 mm
Februari 12.9°C 97 mm
Mars 15.0°C 89 mm
April 16.8°C 60 mm
Maj 18.8°C 46 mm
Juni 23.3°C 13 mm
Juli 27.3°C 0 mm
Augusti 27.8°C 3 mm
September 24.0°C 22 mm
Oktober 19.9°C 78 mm
November 15.9°C 124 mm
December 13.1°C 106 mm

Närservice

50 restaurant
6 school
18 pharmacy
4 bank
2 park
22 cafe
5 dentist

Höjd & Terräng

15m Höjd över havet
0,8 km Avstånd till strand
1.9% Lutning till stranden

Platt

I närheten

Golfbanor

Sportcenter

Marinor

Utsiktspunkter

Ev Charging

Stränder

Transport

36 km Gibraltar (GIB)
64 km Malaga-Costa del Sol (AGP)
455 km Alicante-Elche (ALC)
1,6 km Estación de Autobuses Estepona

Sammanfattning

  • Ny villa med 4 sovrum och 3 badrum i Estepona.
  • Läge nära stranden med bekvämligheter inom gångavstånd.
  • Tomt på 640 m² med privat pool och terrasser.
  • Färdigställande planerat till 2027, med anpassningsmöjligheter för köpare.
  • Attraktivt pris från 1.400.000 € i en eftertraktad region av Costa del Sol.

Regionjämförelse

Estepona utvecklas alltmer till en premiumdestination vid Costa del Sol, vilket återspeglas i projektpriserna. Detta projekt, med ett startpris på 1.400.000 € för en villa med 4 sovrum, ligger i det mellersta till övre segmentet jämfört med andra erbjudanden i regionen. Ayana Estepona erbjuder till exempel liknande villor från 985.000 €, medan Aurea Villas börjar på 1.550.000 €. Närheten till golfbanor i världsklass och stränder, i kombination med Esteponas urbana infrastruktur, motiverar prissättningen. Tillgången på nybyggda fastigheter nära stranden med sådana bekvämligheter är begränsad, vilket understryker värdet av sådana projekt. Jämfört med mer avlägsna eller mindre välutrustade områden längs kusten erbjuder Estepona en högre livskvalitet och bättre anslutningar, vilket positivt påverkar andrahandsvärdet.

Vanliga frågor

Är villan fristående?
Beskrivningen anger att det är en 'Detached Villa', vilket tyder på en fristående konstruktion.
Hur långt är det till stranden från villan?
De närmaste stränderna är Playa de Estepona (524 m fågelvägen) och La Rada (769 m fågelvägen).
När är villan färdigställd?
Färdigställandet är planerat till år 2027.
Är detta en bra investering?
Regionen Costa del Sol upplever en stabil efterfrågan på fastigheter. Nybyggnadsprojekt i bra lägen har potential för värdeökning.
Vilka shoppingmöjligheter finns i närheten?
En stormarknad finns 104 m bort, ett apotek 236 m.
Ingår kringkostnader i köpeskillingen?
Det angivna priset är köpeskillingen för fastigheten. Tillkommande kostnader som skatter, notariearvoden och lagfartsavgifter tillkommer.
Kan jag påverka inredningen?
Ja, köpare ges möjlighet att påverka stilen och inredningen.
Hur är anslutningen till flygplatsen?
Málaga-Costa del Sol flygplats (AGP) ligger cirka 64 km fågelvägen. Gibraltar flygplats (GIB) ligger cirka 36 km fågelvägen.
Maiko
Maiko
Fastighetsexpert

Maiko är en fastighetsexpert specialiserad på den spanska bostadsmarknaden. Med djupgående kunskap om Costa del Sol, Costa Blanca och andra populära kustregioner hjälper han köpare att hitta rätt bostad. Han analyserar utbud baserat på läge, marknadsvärde, byggkvalitet och livskvalitet, och ger ärliga, datadrivna råd under hela köpprocessen.

Svar inom 24 timmar

Intresserad?

Lämna dina uppgifter så får du information om tillgänglighet, priser och ritningar.

Tekniska fakta
Villa med 4 sovrum och 190 m² boyta.
Tomtstorlek på 640 m².
Färdigställande planerat till 2027.

Samtalshistorik

Ställ en fråga för att börja