2 Bed Penthouse Duplex in Las Lagunas في Las Lagunas —
بنتهاوس

2-غرفة نوم Penthouse Duplex in Las Lagunas

يقع هذا البنتهاوس المزدوج في قلب لاس لاغوناس، وهي منطقة نابضة بالحياة ومتصلة جيدًا في مالقة. يوفر هذا المسكن، الذي تم الانتهاء منه حديثًا، مزيجًا مثاليًا من الراحة الحضرية والقرب من ساحل كوستا ديل سول. بمساحة معيشة واسعة تبلغ 86 مترًا مربعًا، وتصميم داخلي مدروس، وشرفات خاصة، تقدم هذه الشقة تجربة معيشة مريحة وعملية. إن قربها من وسائل الراحة والمطارات الرئيسية يجعلها خيارًا جذابًا للمقيمين الدائمين والمستثمرين على حد سواء.

يبدأ من €314,000
2
غرف النوم
2
الحمامات
86 m²
مساحة المعيشة
يبدأ من €314,000
السعر المبدئي
جاهز للتسليم
حالة البناء

تحليل المشروع

أهم خصائص الموقع، والوحدات، ومراحل المشروع، ونقاط الاهتمام.

الموقع

يقع العقار في منطقة لاس لاغوناس، وهي منطقة حضرية في بلدية ميخاس، على بعد مسافة قصيرة بالسيارة من ساحل البحر الأبيض المتوسط. يوفر الموقع سهولة الوصول إلى المرافق اليومية، والمؤسسات التعليمية، والمراكز الصحية، مما يجعله بيئة معيشية عملية.

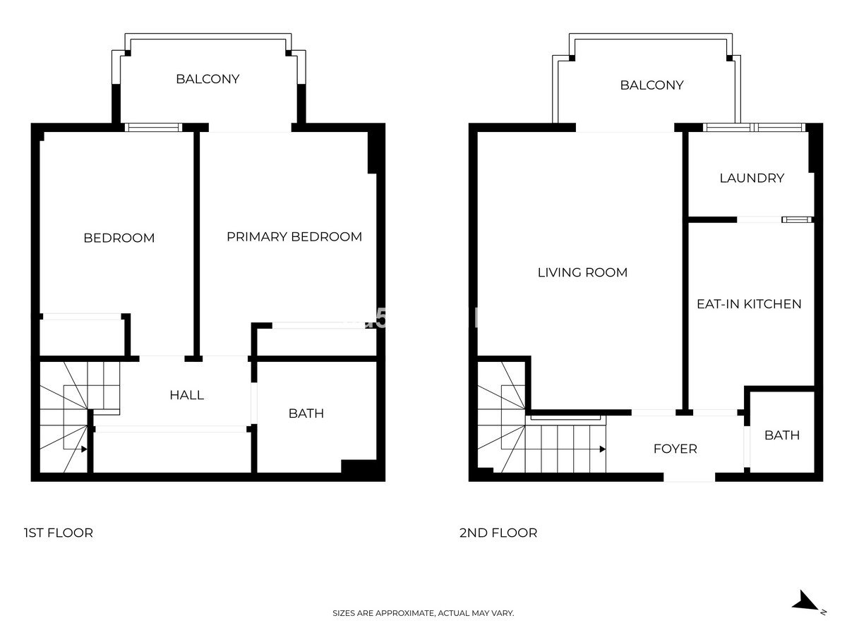
المخططات

يستهدف هذا المسكن الأفراد أو الأزواج الذين يبحثون عن منزل مريح وعملي في بيئة حضرية. يوفر تصميم البنتهاوس المزدوج مساحات معيشة منفصلة، بينما تضيف الشرفات الخاصة قيمة للاستمتاع بالهواء الطلق. إن قرب الموقع من وسائل الراحة يلبي احتياجات الحياة اليومية.

حالة المشروع

هذا العقار هو جزء من تطوير مكتمل، مما يعني أن البناء قد اكتمل وأن المسكن جاهز للانتقال إليه. هذا يزيل عدم اليقين المرتبط عادةً بمراحل البناء، مما يوفر عملية شراء مباشرة للمشترين.

نقاط هامة

كمسكن حضري، قد يفتقر هذا العقار إلى الهدوء المنعزل للمناطق الريفية أو المطلة على البحر مباشرة. قد تكون المناظر الطبيعية حضرية بطبيعتها. قد يجد أولئك الذين يبحثون عن مساحات خارجية واسعة جدًا أو حدائق خاصة أن هذا المسكن لا يلبي تلك المتطلبات المحددة.

نمط الحياة

هذا العقار مناسب للأفراد أو الأزواج الذين يفضلون العيش في بيئة حضرية نشطة مع سهولة الوصول إلى وسائل الراحة والمواصلات. إنه خيار جيد للمشترين الذين يبحثون عن منزل جاهز للانتقال ولا يرغبون في الانتظار لعملية البناء. يمكن أن يكون هذا المسكن جذابًا لأولئك الذين يقدرون الاستمتاع بالشرفات الخاصة، والمناطق المشتركة مثل المسبح، والمناخ المشمس في كوستا ديل سول. بالنسبة للمشترين الدوليين، فإن القرب من مطار مالاغا (19 كم) يجعل السفر مريحًا. كما أن قرب المنطقة من الشواطئ (حوالي 1.6 كم) يوفر فرصًا للترفيه والاسترخاء. أولئك الذين يستمتعون بالأنشطة الخارجية، مثل الجولف، سيقدرون وجود العديد من ملاعب الجولف على بعد مسافة قصيرة بالسيارة. بالإضافة إلى ذلك، فإن توفر عدد كبير من المطاعم والمتاجر والمرافق الصحية والتعليمية يجعلها مناسبة للمقيمين الدائمين والباحثين عن نمط حياة عملي.

الجودة والتشطيبات

تم تشطيب هذا البنتهاوس المزدوج ليوفر مسكنًا مريحًا وعمليًا. يشير ذكر 'التشطيبات الداخلية' و'الأسطح المصقولة' إلى الاهتمام بالجودة. يشتمل العقار على أرضيات رخامية، مما يضيف لمسة من الأناقة والمتانة، وهي ميزة شائعة في العقارات الإسبانية. تتميز الشقة بنوافذ مزدوجة، مما يساعد في العزل الحراري والصوتي، ويعزز كفاءة استخدام الطاقة. تتوفر وحدات تكييف الهواء لضمان الراحة خلال الأشهر الأكثر دفئًا. المطبخ مستقل ومجهز، ويحتوي على سطح عمل من الجرانيت، مما يوفر سطحًا متينًا وعالي الجودة للتحضير. تم تجديد الحمامين، مما يضمن وجود مرافق حديثة. تم تجهيز غرف النوم بخزائن مدمجة، مما يوفر مساحة تخزين كافية.

البيئة ونمط الحياة

السعر والتوفر

يبدأ سعر هذا البنتهاوس المزدوج من 314,000 يورو، وهو ما يعكس موقعه الحضري وعرضه الفريد. يقع العقار في لاس لاغوناس، وهي منطقة معروفة بأسعارها المعقولة مقارنة بالمناطق الساحلية المباشرة. يتوفر العقار كـ 'جاهز للانتقال'، مما يعني عدم وجود فترات انتظار طويلة مرتبطة بالبناء. تتضمن هذه الفئة السعرية غرفة نومين وحمامين، بالإضافة إلى مساحة معيشة سخية تبلغ 86 مترًا مربعًا موزعة على طابقين. يشتمل السعر أيضًا على مساحة لوقوف السيارات تحت الأرض. نظرًا لطبيعة العقار (بنتهاوس مزدوج) والموقع، فإنه يقدم قيمة مقابل المال، خاصة لأولئك الذين يبحثون عن مسكن جاهز للانتقال في منطقة متصلة جيدًا.

€314,000
السعر المبدئي
2
غرف النوم
86 m²
مساحة المعيشة
2
الحمامات
€828
رسوم المجتمع/سنوياً
€338
ضريبة الأبنية/سنوياً
€68
ضريبة النفايات/سنوياً

البيئة المحيطة

يقع لاس لاغوناس في منطقة حضرية، مما يعني أن السكان لديهم وصول مباشر إلى مجموعة واسعة من وسائل الراحة. تقع المتاجر والمطاعم والصيدليات والبنوك على مسافة قريبة، مما يلغي الحاجة إلى التنقل لمسافات طويلة للضروريات اليومية. المنطقة مخدومة جيدًا بالنقل العام، مع وجود العديد من محطات الحافلات، مما يسهل التنقل داخل المنطقة وإلى المدن المجاورة. هناك تركيز قوي على الصحة والرفاهية، مع مراكز صحية متعددة ومرافق رياضية قريبة، مثل ملاعب كرة القدم ومرافق السباحة. تشير البيئة التعليمية القوية، مع وجود العديد من المدارس الابتدائية والثانوية، إلى أن المنطقة مناسبة للعائلات. المناخ المعتدل على مدار العام، مع متوسط درجة حرارة مرتفع، يشجع على نمط حياة خارجي، مما يتيح الاستمتاع بالمنطقة المحيطة والشواطئ القريبة على مدار العام تقريبًا.

طلب معلومات

الموقع والبيئة: Las Lagunas

البيئة والوصول

تعيش في لاس لاغوناس يعني أن تكون في قلب منطقة حضرية نابضة بالحياة مع كل ما تحتاجه في متناول يدك. تقع المتاجر، بما في ذلك محلات السوبر ماركت على بعد 182 مترًا، والصيدليات على بعد 248 مترًا، مما يجعل التسوق والوصول إلى الضروريات اليومية أمرًا سهلاً للغاية. تشير وفرة المطاعم (167) والمقاهي (53) إلى بيئة اجتماعية نشطة. تتواجد المرافق الصحية مثل مراكز الصحة على بعد 9.3 كم، ومرافق طب الأسنان ضمن نطاق 2 كم، مما يضمن الرعاية الصحية الأساسية. تتوفر خيارات التعليم، مع 15 مدرسة ابتدائية و 10 مدارس ثانوية في المنطقة، مما يجعلها جذابة للعائلات. بالنسبة للأنشطة الترفيهية، توجد حدائق، ومراكز رياضية مثل Ciudad Deportiva Las Lagunas على بعد 400 متر، وحمامات سباحة عامة. إن القرب من الشواطئ مثل Playa de Fuengirola (1.6 كم) يوفر فرصًا إضافية للاسترخاء والأنشطة المائية.

الخريطة والموقع

يقع هذا البنتهاوس المزدوج في منطقة لاس لاغوناس بمالقة، وهي منطقة حضرية تقع بالقرب من الساحل. تظهر الخريطة قرب المسكن من الشواطئ الرئيسية، وملاعب الجولف، والمرافق الرياضية، مما يسلط الضوء على مزيج من أسلوب الحياة الساحلي والأنشطة الترفيهية المتاحة.

Aerial view of coastal cityscape with waterfront and urban development.

الموقع الإقليمي

يقع Las Lagunas داخل بلدية Mijas، وهي بلدية في مقاطعة Málaga. تقع هذه المنطقة بشكل استراتيجي في قلب كوستا ديل سول، مما يوفر توازنًا بين الحياة الحضرية والقرب من المنتجعات الساحلية الشهيرة. إنها تقع على مقربة من مدن مثل Fuengirola (على بعد مسافة قصيرة بالسيارة) و Benalmádena. يبعد مطار مالاغا الدولي حوالي 19 كم، مما يوفر اتصالاً ممتازًا للوجهات الدولية. في حين أن لاس لاغوناس هي منطقة حضرية، فإن موقعها يسمح بسهولة الوصول إلى الشواطئ والجبال والمناطق الطبيعية المحيطة. هذا يجعلها قاعدة مناسبة لاستكشاف مناطق الجذب المتنوعة في كوستا ديل سول، من مدنها الصاخبة إلى مناطقها الريفية الهادئة.

المرافق والوصول

يتمتع هذا البنتهاوس المزدوج بموقع استراتيجي يسهل الوصول إلى وسائل الراحة الرئيسية. يقع على بعد 19 كم فقط من مطار مالاغا كوستا ديل سول (AGP)، مما يجعله مناسبًا للمسافرين الدوليين. الشواطئ قريبة جدًا، حيث تقع Playa de Fuengirola و Playa de Santa Amalia على بعد 1.6 كم فقط، مما يوفر سهولة الوصول إلى البحر. لعشاق الجولف، توجد ملاعب مثل Campo Los Lagos على بعد 2.6 كم، و Cerrado del Aguila Golf على بعد 3.1 كم. تشير البنية التحتية للنقل إلى وجود 8 خطوط نقل عام و 50 محطة حافلات، مما يسهل التنقل في المنطقة. تتوفر أيضًا مرافق حديثة مثل محطات شحن المركبات الكهربائية على بعد 556 مترًا. تشير كثافة المؤسسات مثل المطاعم والبنوك والصيدليات إلى بيئة حضرية مخدومة جيدًا.

Malaga-Costa del Sol (AGP) 19 km
Gibraltar (GIB) 77 km

المصدر: OpenStreetMap, Google Maps

Alt text: Detailed map of the lakes of Mexico, highlighting the location of Lake Texcoco.

الطبيعة والمناخ

Alt text: Panoramic view of a cityscape with mountains, a town, and two people walking on a path.

تتمتع المنطقة بمناخ شبه استوائي متوسطي، مع متوسط درجة حرارة سنوية تبلغ 18.6 درجة مئوية. يتراوح متوسط درجات الحرارة بين 12 درجة مئوية في الشتاء و 26 درجة مئوية في الصيف، مما يوفر ظروفًا مريحة على مدار العام. مع 3,895 ساعة سطوع شمس مسجلة تاريخيًا سنويًا، تتمتع المنطقة بالكثير من ضوء الشمس، مما يدعم نمط حياة خارجي. يمتد موسم السباحة عادةً لمدة 4 أشهر، عندما تصل درجة حرارة الماء إلى 20 درجة مئوية أو أعلى. يقع المسكن على ارتفاع 25 مترًا فوق مستوى سطح البحر، مما يوفر إطلالات حضرية دون التعرض للمنحدرات الشديدة. بينما تشير البيانات إلى بيئة حضرية، فإن قربها من الساحل والعدد الكبير من ساعات الشمس يوفر وصولاً إلى الأنشطة الخارجية والمناظر الطبيعية الساحلية.

3895 ساعات الشمس/سنة
4 موسم السباحة (أشهر)
18.6°C متوسط الحرارة السنوي
25m الارتفاع

المصدر: Open-Meteo (2020–2025 متوسط)

الشواطئ والترفيه

يقع هذا البنتهاوس على بعد مسافة قصيرة من الشواطئ الشهيرة في كوستا ديل سول. تقع Playa de Fuengirola و Playa de Santa Amalia على بعد 1.6 كم، و Playa de San Francisco على بعد 1.8 كم، و Playa del Castillo على بعد 1.9 كم. تم وضع علامة 'العلم الأزرق' على العديد من هذه الشواطئ، مما يشير إلى معايير عالية من حيث الجودة والنظافة والسلامة. بالنسبة للرياضة، توجد مراكز رياضية متعددة في المنطقة، مثل Ciudad Deportiva Las Lagunas (0.4 كم) و Complejo Deportivo Municipal Elola (0.9 كم). تتوفر أيضًا مرافق رياضية أخرى مثل حمامات السباحة العامة، مثل Piscina María Peláez (1.2 كم). بالإضافة إلى ذلك، تقدم المنطقة مجموعة واسعة من ملاعب الجولف، بما في ذلك Campo Los Lagos (2.6 كم) و Cerrado del Aguila Golf (3.1 كم) و Mijas Golf (3.2 كم)، مما يلبي احتياجات عشاق الجولف.

شواطئ

  • Playa de Santa Amalia 1.6 km
  • Playa de San Francisco 1.8 km
  • Playa del Castillo 1.9 km
  • Playa de los Boliches 2.5 km
  • Playa Mati 2.5 km
  • Playa El Ejido 2.9 km

Golf

  • Campo Los Lagos 2.6 km
  • Cerrado del Aguila Golf 3.1 km
  • Campo Los Olivos 3.3 km
  • El Chaparral Golf Club 4.1 km

المصدر: OpenStreetMap

A cozy room with a balcony, offering a scenic view of a city and mountains.

الموقع الإقليمي

يقع Las Lagunas داخل بلدية Mijas، وهي بلدية في مقاطعة Málaga. تقع هذه المنطقة بشكل استراتيجي في قلب كوستا ديل سول، مما يوفر توازنًا بين الحياة الحضرية والقرب من المنتجعات الساحلية الشهيرة. إنها تقع على مقربة من مدن مثل Fuengirola (على بعد مسافة قصيرة بالسيارة) و Benalmádena. يبعد مطار مالاغا الدولي حوالي 19 كم، مما يوفر اتصالاً ممتازًا للوجهات الدولية. في حين أن لاس لاغوناس هي منطقة حضرية، فإن موقعها يسمح بسهولة الوصول إلى الشواطئ والجبال والمناطق الطبيعية المحيطة. هذا يجعلها قاعدة مناسبة لاستكشاف مناطق الجذب المتنوعة في كوستا ديل سول، من مدنها الصاخبة إلى مناطقها الريفية الهادئة.

دليل المنطقة: Las Lagunas

Las Lagunas may refer to the following places:Las Lagunas, San Luis, in San Luis province, Argentina Las Lagunas, San Juan, a locality in Sarmiento Department, San Juan, Argentina Las Lagunas, a district of Moca, Dominican Republic Las Lagunas, a district of Padre Las Casas, Dominican Republic Las Lagunas, Mijas, an area in Mijas, Spain

حقائق أساسية

المناخ

الشهر متوسط الحرارة معدل الأمطار
يناير 11.8°C 69 mm
فبراير 12.1°C 69 mm
مارس 14.1°C 54 mm
أبريل 16.1°C 33 mm
مايو 18.2°C 28 mm
يونيو 22.3°C 5 mm
يوليو 25.8°C 1 mm
أغسطس 26.1°C 2 mm
سبتمبر 22.9°C 9 mm
أكتوبر 19.0°C 56 mm
نوفمبر 15.1°C 84 mm
ديسمبر 12.5°C 79 mm

المرافق القريبة

167 restaurant
32 pharmacy
20 bank
1 park
53 cafe
7 dentist

الارتفاع والتضاريس

25m الارتفاع

معالم قريبة

مراكز رياضية

Ev Charging

شواطئ

موانئ ترفيهية

ملاعب الغولف

مسابح

النقل والوصول

19 km Malaga-Costa del Sol (AGP)
77 km Gibraltar (GIB)
409 km Alicante-Elche (ALC)

تفاصيل المشروع

المشروع 2 Bed Penthouse Duplex in Las Lagunas
المدينة Las Lagunas
المنطقة Costa del Sol
السعر المبدئي €314,000
مساحة المعيشة 86 m²
السعر لكل م² €3,651 / m²
التراس 6 m²
غرف النوم 2
الحمامات 2
موقف سيارات نعم
مسبح نعم
حديقة نعم
حالة البناء key_ready
تاريخ الإنجاز 1991
رسوم المجتمع/سنوياً €828
ضريبة الأبنية/سنوياً €338
ضريبة النفايات/سنوياً €68
تاريخ النشر 2026-04-27

Ref: VL652455

المصدر: Wikipedia, Wikidata, INE, Junta de Andalucía

ملخص

  • بنتهاوس مزدوج جاهز للانتقال في منطقة لاس لاغوناس النابضة بالحياة في مالقة.
  • يتميز بـ 2 غرف نوم، 2 حمامات، ومساحة معيشة 86 متر مربع مع شرفتين خاصتين.
  • يقع على بعد 1.6 كم فقط من الشواطئ، ويوفر سهولة الوصول إلى المرافق الحضرية ومطار مالاغا.
  • مرافق مجتمعية تشمل مسبحًا مشتركًا وحدائق، بالإضافة إلى موقف سيارات تحت الأرض.
  • مناطق محيطة غنية بالمطاعم والمتاجر والمرافق الرياضية والتعليمية.

مقارنة إقليمية

مقارنةً بـ Acqua Gardens في Estepona (بدءًا من 418,800 يورو) و Alba Benalmadena في Benalmádena (بدءًا من 598,000 يورو)، يقدم هذا البنتهاوس المزدوج في Las Lagunas بسعر بدء من 314,000 يورو خيارًا أكثر فعالية من حيث التكلفة. يقع Aby Upper في Estepona بسعر بدء قريب (320,000 يورو)، ولكنه في منطقة مختلفة. تتميز Las Lagunas بطابعها الحضري، مما يوفر وصولاً سهلاً إلى مجموعة واسعة من وسائل الراحة اليومية والخدمات مقارنة بالمشاريع التي تركز بشكل أكبر على المنتجعات أو المناطق الساحلية الهادئة. في حين أن العقارات في Estepona و Benalmádena قد تقدم مناظر بحرية مباشرة أو وصولاً إلى شواطئ حصرية، فإن Las Lagunas تبرز من خلال موقعها المركزي والقرب من مجموعة متنوعة من المرافق، بما في ذلك المراكز الرياضية والمدارس. يعد هذا المسكن جذابًا بشكل خاص للأفراد أو الأزواج الذين يبحثون عن منزل جاهز للانتقال في منطقة حضرية متصلة جيدًا، مع موازنة بين التكلفة والموقع وسهولة الوصول إلى وسائل الراحة. إن قربها من الشواطئ (1.6 كم) ومطار مالاغا (19 كم) يعزز جاذبيتها كمركز استراتيجي في كوستا ديل سول.

الأسئلة الشائعة

ما هي البيئة المحيطة بالمسكن؟
يقع المسكن في منطقة لاس لاغوناس، وهي منطقة حضرية نابضة بالحياة في بلدية ميخاس. تتميز المنطقة بوفرة من وسائل الراحة، بما في ذلك المتاجر والمطاعم والمؤسسات التعليمية والمرافق الصحية.
ما مدى سهولة الوصول إلى المطار؟
يقع المسكن على بعد حوالي 19 كم (مسافة جوية) من مطار مالاغا كوستا ديل سول (AGP)، مما يجعله سهل الوصول إليه للسفر الدولي.
ما نوع التدفئة والتبريد المتوفر؟
يشمل المسكن وحدات تكييف الهواء للتحكم في درجة الحرارة، ويتضمن نوافذ مزدوجة لتحسين العزل.
ما هي القيمة الاستثمارية المحتملة لهذا العقار؟
يقع العقار في منطقة حضرية مطلوبة في كوستا ديل سول، مع سهولة الوصول إلى وسائل الراحة والشواطئ والمطار. هذه العوامل، جنبًا إلى جنب مع كونه مسكنًا جاهزًا للانتقال، تشير إلى إمكانية تحقيق عائد استثمار جيد من خلال الإيجار أو زيادة قيمة رأس المال.
ما هي المرافق المجتمعية المتاحة؟
يستفيد العقار من الوصول إلى مسبح مجتمعي وحدائق مشتركة. يتضمن السعر أيضًا مساحة لوقوف السيارات تحت الأرض.
ما هي تكاليف الصيانة السنوية المتوقعة؟
لم يتم توفير تفاصيل حول تكاليف الصيانة السنوية (مثل رسوم المجتمع أو ضرائب الممتلكات). يوصى بالتحقق من هذه المعلومات من مطور أو وكيل عقارات.
ما هي الخطوات المتضمنة في شراء هذا العقار؟
عادةً ما تتضمن عملية الشراء في إسبانيا تقديم عرض، وتوقيع اتفاقية شراء، وإكمال الأوراق القانونية، وتسجيل الملكية. يوصى بالعمل مع محامٍ متخصص لضمان عملية سلسة.
هل المنطقة مناسبة للعائلات؟
نعم، المنطقة مناسبة للعائلات نظرًا لوجود 15 مدرسة ابتدائية و 10 مدارس ثانوية ضمن نطاقها، بالإضافة إلى المرافق الرياضية ومناطق الحدائق.
Omar Al-Nasser
Omar Al-Nasser
خبير عقاري

عمر الناصر يفهم بعمق احتياجات العملاء الناطقين بالعربية، ويرشدهم بثقة في سوق العقارات الإسباني. هو يضمن عملية شراء سلسة ومحترمة ثقافيًا.

AI-assisted multilingual representative. Your inquiry is handled by our real support team.

رد خلال 24 ساعة

مهتم؟

اترك بياناتك واحصل على معلومات عن التوفر، والأسعار، والمخططات.

المواصفات الفنية
يحتوي المسكن على أرضيات رخامية وإمكانيات تكييف هواء.
يقع المسكن على ارتفاع 25 مترًا فوق مستوى سطح البحر.
يتمتع المسكن بتوجيه غربي وجنوبي.
طلب معلومات WhatsApp