3 Bed Townhouse in Cala del Moral في Cala del Moral — تاون هاوس
تاون هاوس

تاون هاوس للبيع في كالا ديل مورال

يقع هذا التاون هاوس المجدد بالكامل في كالا ديل مورال، ويوفر 3 غرف نوم وحمامين ومساحة معيشة تبلغ 147 مترًا مربعًا بسعر 559,000 يورو. يقع العقار في بيئة حضرية ولكنه قريب من الشاطئ والعديد من وسائل الراحة، مما يجعله مثاليًا لأولئك الذين يبحثون عن نمط حياة بجوار البحر مع سهولة الوصول. تستفيد المنطقة من إمكانية الوصول الجيدة إلى وسائل النقل، بما في ذلك القرب من مطار ملقا، مما يجعلها خيارًا عمليًا للمشترين الدوليين. يجعل الطراز المجدد للمنزل وقربه من المرافق المحلية منه خيارًا جذابًا لأولئك الذين يبحثون عن منزل مريح ومناسب.

€559,000
3
غرف النوم
2
الحمامات
147 m²
مساحة المعيشة
€559,000
Prijs
4.5 km
مسافة الشاطئ

تحليل المشروع

أهم خصائص الموقع، والوحدات، ومراحل المشروع، ونقاط الاهتمام.

الموقع

يقع هذا التاون هاوس في كالا ديل مورال، وهي منطقة توفر وسائل الراحة في بيئة حضرية. إنه على مسافة قريبة سيرًا على الأقدام من الشاطئ، وعلى بعد دقائق فقط من المتاجر والمطاعم والصيدليات المحلية. يضمن موقعه المتميز أن تكون الضروريات اليومية في متناول اليد، مع الحفاظ على القرب من الساحل.

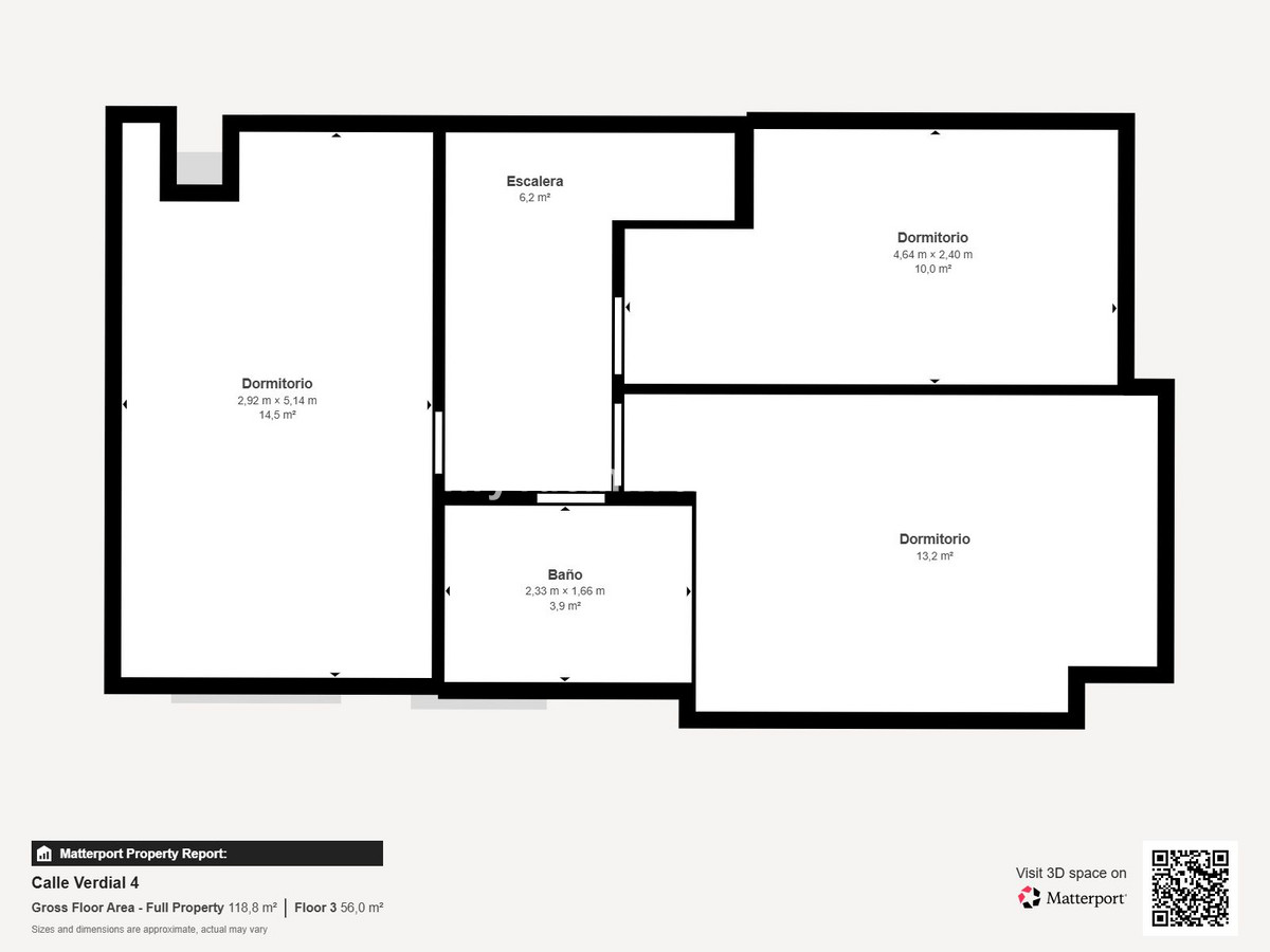
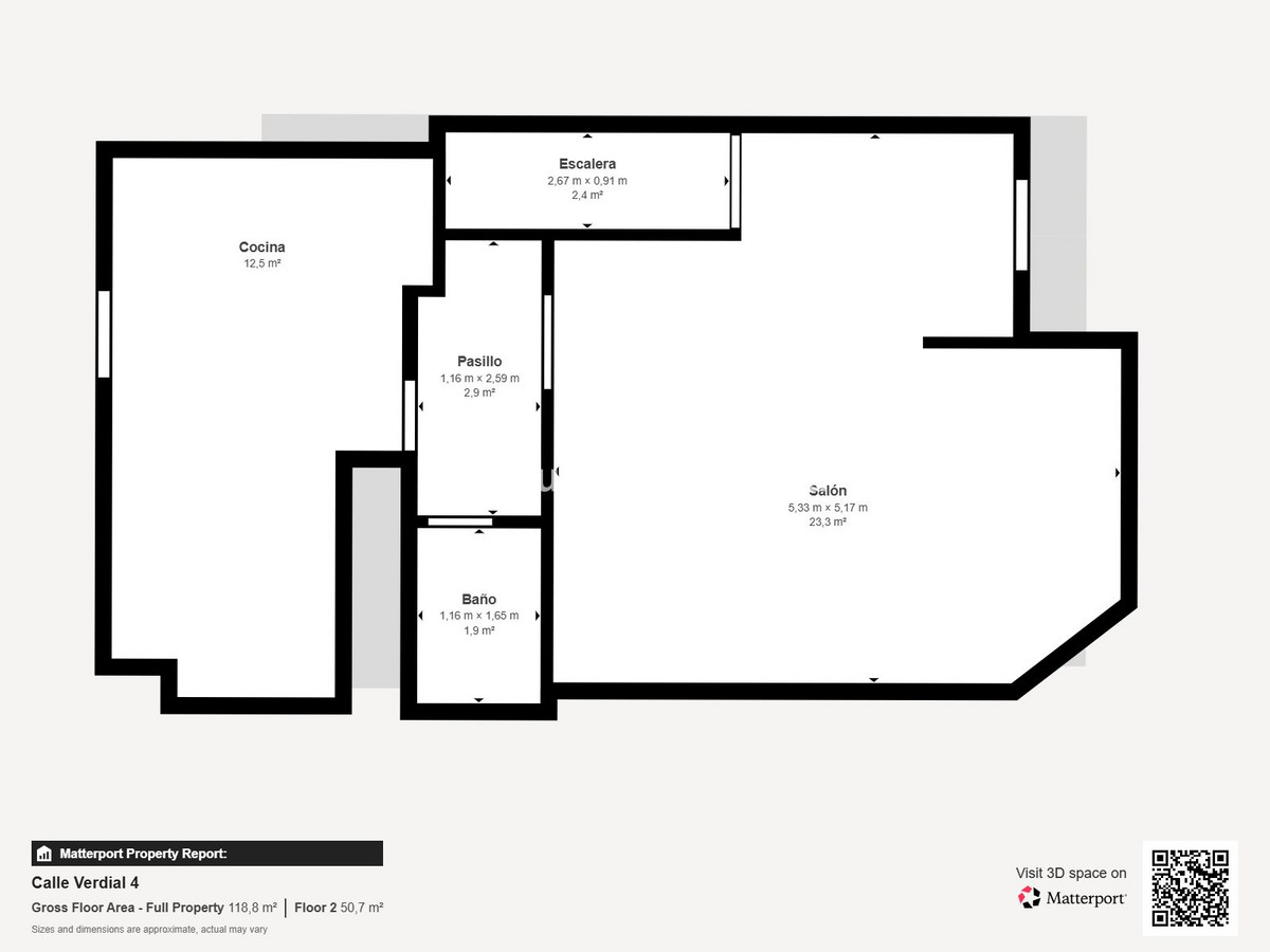
المخططات

هذا التاون هاوس مثالي لأولئك الذين يقدرون الراحة والعملية. توفر المساحات الداخلية المجددة بيئة معيشية حديثة، بينما توفر غرف النوم الثلاث مساحة وفيرة. يخدم القرب من الشاطئ والمرافق الحضرية كلاً من احتياجات نمط الحياة والعملية، مما يجعله منزلًا متعدد الاستخدامات.

حالة المشروع

في حين تم تجديد هذا العقار، إلا أنه جزء من مشروع تم تطويره بالفعل. تعني الحالة المجددة أن المشترين يمكنهم الانتقال على الفور دون الحاجة إلى مزيد من التجديدات. المنطقة التي يقع فيها العقار راسخة، ولكن المنزل نفسه قد تم ترقيته إلى معايير حديثة، مما يوفر مزايا المنزل الجديد مع كونه في مجتمع راسخ.

نقاط هامة

قد لا يوفر هذا العقار أحدث اتجاهات التصميم التي توجد عادةً في المباني الجديدة. بدلاً من ذلك، فإنه يوفر هيكلًا مجددًا ولكنه ربما ليس جديدًا تمامًا. نظرًا لقربه من الشاطئ والبيئة الحضرية، قد تكون مستويات الضوضاء أعلى مقارنة بالمناطق الريفية. يتأثر توفر الواجهة البحرية بموقعه الحضري وقد لا يكون كاملاً مثل المنتجعات الساحلية المتخصصة.

تفاصيل المشروع

المشروع 3 Bed Townhouse in Cala del Moral
المدينة Cala del Moral
المنطقة Costa del Sol East
Prijs €559,000
مساحة المعيشة 147 m²
السعر لكل م² €3,802 / m²
التراس 9 m²
غرف النوم 3
الحمامات 2
موقف سيارات نعم
مسبح لا
حديقة نعم
حالة البناء for_sale
مسافة الشاطئ 4.5 km
تاريخ الإنجاز 1999
تاريخ النشر 2026-04-24

Ref: VL812388

المصدر: Wikipedia, Wikidata, INE, Junta de Andalucía

نمط الحياة

قد يكون هذا التاون هاوس في كالا ديل مورال مناسبًا للمشترين الذين يبحثون عن نمط حياة ساحلي مريح. أولئك الذين يقدرون سهولة الوصول سيرًا على الأقدام سيجدون القرب من الشاطئ (1.4 كم) والسوبر ماركت (580 مترًا) والصيدلية (344 مترًا) مناسبًا بشكل خاص. كما أن موقعه جذاب للمهنيين الذين يسافرون كثيرًا أو للمشترين الدوليين الذين يحتاجون إلى سهولة الوصول إلى مطار ملقا (18 كم). تجعل غرف النوم الثلاثة هذه الخاصية مثالية للعائلات أو لأولئك الذين يحتاجون إلى مساحة إضافية كمكتب منزلي. تعني الحالة المجددة أنه يمكن للمشترين الانتقال على الفور دون الحاجة إلى تجديدات كبيرة. مع وفرة الخيارات التي تشمل 363 مطعمًا و 155 مقهى و 81 صيدلية، يمكن للسكان الاستمتاع بأسلوب حياة حضري نابض بالحياة مع الاستفادة من الشواطئ القريبة.

الجودة والتشطيبات

تم تجديد هذا التاون هاوس حديثًا بالكامل، مما يوفر تشطيبات ووظائف حديثة. يبدو أن التصميم الداخلي يهدف إلى زيادة المساحة والضوء الطبيعي، كما هو موضح في منطقة المعيشة والشرفة المطلة جزئيًا على البحر. المطبخ مجهز بالكامل، مما يعني أنه مزود بالأجهزة والخزائن اللازمة للاستخدام الفوري. تم تجهيز الحمامات بشكل جيد أيضًا. تم تركيب نظام تكييف الهواء في غرفة المعيشة وغرفتي نوم، مما يضمن الراحة على مدار العام. يتميز العقار أيضًا بحديقة خاصة ومرآب تحت الأرض، مما يضيف إلى الراحة والأمن. في حين لم يتم تقديم تفاصيل محددة للمواد، فإن وصف 'مجدد حديثًا' يشير إلى استخدام مواد وتركيبات تلبي المعايير الحالية.

البيئة ونمط الحياة

السعر والتوفر

يبدأ سعر هذا التاون هاوس من 559,000 يورو. يعكس هذا السعر موقعه في كالا ديل مورال، ومساحة المعيشة البالغة 147 مترًا مربعًا، و 3 غرف نوم، وحمامين، بالإضافة إلى التجديدات الأخيرة. قد يؤثر الموقع الحضري للعقار، وقربه من الشاطئ، والعديد من وسائل الراحة أيضًا على تسعيره. نظرًا لحالته المجددة وموقعه المناسب، يتم وضع العقار في الشريحة السعرية المتوسطة إلى العليا في المنطقة. يجب أن يلاحظ المشترون المحتملون أن الأسعار قد تختلف بناءً على التشطيبات المحددة أو الحجم أو الإطلالات. نظرًا لموقعه وخصائصه، قد يجذب هذا النطاق السعري المشترين الذين يبحثون عن منزل مريح ومناسب على الواجهة البحرية.

€559,000
Prijs
3
غرف النوم
147 m²
مساحة المعيشة
2
الحمامات

البيئة المحيطة

يتميز إيقاع الحياة في كالا ديل مورال بمزيج من الراحة الحضرية والاسترخاء الساحلي. خلال النهار، يمكن للسكان الوصول بسهولة إلى سوبر ماركت على بعد 580 مترًا وصيدلية على بعد 344 مترًا، مما يوفر سهولة الحياة اليومية. يتيح القرب من 363 مطعمًا خيارات تناول طعام متنوعة. مع 17,551 نسمة، تتميز المنطقة بأجواء مجتمعية نابضة بالحياة، في حين أن متوسط 3,911 ساعة من ضوء النهار سنويًا يوفر فرصًا وفيرة للاستمتاع بالأنشطة الخارجية. يقع هذا المجال على ارتفاع 442 مترًا فوق مستوى سطح البحر، مما يوفر عادةً مناخًا لطيفًا. تخدم المنطقة 17 خطًا للنقل العام و 50 محطة للحافلات، مما يوفر خيارات تنقل مريحة للسكان، في حين أن ملاعب الجولف المتعددة في حدود 16 كم تلبي احتياجات عشاق الرياضة. مع 32 مهرجانًا محليًا، تضيف المنطقة ثراءً ثقافيًا إلى الحياة المحلية.

طلب معلومات

الموقع والبيئة: Cala del Moral

البيئة والوصول

توفر كالا ديل مورال بيئة حضرية للمعيشة، ولكن مع القرب من الساحل. يقع المنزل على بعد 1.4 كم فقط من الشاطئ، مما يسمح للسكان بالاستمتاع بالأنشطة الساحلية. تتميز المنطقة بوفرة من وسائل الراحة، بما في ذلك 363 مطعمًا و 155 مقهى و 81 صيدلية، وكلها تقع ضمن دائرة نصف قطرها 2 كم. يضمن المستشفى، الواقع على بعد 3.3 كم، سهولة الوصول إلى الرعاية الصحية. يعد النقل العام مريحًا، مع 17 خطًا و 50 محطة، مما يسهل التنقل في المناطق المحيطة، بما في ذلك وسط مدينة ملقا. بالنسبة لعشاق الجولف، هناك العديد من ملاعب الجولف القريبة، أقربها على بعد 16 كم. تتمتع المنطقة بما متوسطه 3,911 ساعة من ضوء الشمس سنويًا، مما يوفر فرصًا وفيرة للأنشطة الخارجية، في حين أن موسم السباحة الذي يستمر 4 أشهر يسمح بالاستمتاع بالبحر الأبيض المتوسط.

الخريطة والموقع

توضح الخريطة موقع كالا ديل مورال، وهي منطقة ساحلية في مقاطعة مالاغا. وتسلط الضوء على قرب العقار من المواقع الرئيسية مثل الشواطئ والسوبر ماركت والمستشفى وملاعب الجولف. توضح الخريطة أيضًا المسافة إلى مطار مالاغا، وهو اعتبار مهم للمسافرين الدوليين. كما تم تحديد خطوط ومحطات النقل العام، مما يؤكد سهولة الوصول إلى المنطقة.

Cozy room with ocean view, balcony, and modern amenities.

الموقع الإقليمي

تقع كالا ديل مورال في مقاطعة مالاغا، وهي جزء من كوستا ديل سول، المعروفة بطقسها المشمس وشواطئها. تقع في منطقة ساحلية توفر نمط حياة أكثر هدوءًا مقارنة بالمراكز السياحية الأكثر حيوية في الجنوب. على بعد حوالي 18 كم من وسط مدينة مالاغا، توفر المنطقة وصولاً إلى وسائل الراحة الحضرية مع الاستمتاع بنمط حياة أكثر هدوءًا. تختلف الطبيعة الحضرية للمنطقة، مع العديد من المطاعم ووسائل الراحة، عن المناطق الأخرى في كوستا ديل سول التي قد تركز أكثر على المنتجعات الكبيرة. يوفر ارتفاع المنطقة البالغ 442 مترًا فوق مستوى سطح البحر منظورًا مختلفًا عن السهول الساحلية.

المرافق والوصول

يتمتع التاون هاوس بموقع استراتيجي مع سهولة الوصول إلى وسائل الراحة المختلفة ومراكز النقل. أقرب شاطئ، بلايا دي إل بالو، يقع على بعد 4.5 كم، بينما يقع شاطئ بلايا كانينا أرويو توتالان على بعد 1.4 كم فقط. يقع مطار ملقا (AGP) على بعد حوالي 18 كم، مما يوفر الراحة للمسافرين الدوليين. بالنسبة للاحتياجات اليومية، تقع محلات السوبر ماركت والصيدليات في متناول اليد، على بعد 580 مترًا و 344 مترًا على التوالي. يمكن لعشاق الجولف الوصول إلى العديد من الملاعب في حدود 16 كم. وسائل النقل العام متاحة بسهولة، مع 17 خطًا و 50 محطة، وأقرب محطة قطار على بعد 8.1 كم. تتميز المنطقة بمجموعة واسعة من المتاجر (64 بنكًا، 81 صيدلية، 155 مقهى، 363 مطعمًا) التي تلبي الاحتياجات المتنوعة.

مسافة الشاطئ 4.5 km
Malaga-Costa del Sol (AGP) 16 km
Gibraltar (GIB) 112 km
Atarazanas 8.1 km
Málaga Centro Alameda 8.4 km

المصدر: OpenStreetMap, Google Maps

A stone tunnel with hanging lights, leading to an open doorway.

الطبيعة والمناخ

تتمتع كالا ديل مورال بمناخ البحر الأبيض المتوسط ​​مع متوسط ​​درجة حرارة سنوية تبلغ 18.5 درجة مئوية، وتصل إلى 28 درجة مئوية في الصيف وتنخفض إلى 15 درجة مئوية في الشتاء. يوفر ما يقرب من 3,911 ساعة من ضوء الشمس سنويًا فرصًا وفيرة للأنشطة الخارجية، في حين أن موسم السباحة الذي يستمر 4 أشهر بمتوسط ​​درجة حرارة مياه تزيد عن 20 درجة مئوية. يقع هذا المجال على ارتفاع 442 مترًا فوق مستوى سطح البحر، ولكن المنحدر إلى الشاطئ هو 9.8%، مما يشير إلى أنه يقع على تضاريس شديدة الانحدار نسبيًا قد توفر إطلالات على البحر. في حين لا توجد معلومات عن محميات طبيعية محددة، فإن القرب من الساحل يوفر الوصول إلى البيئة الطبيعية.

3911 ساعات الشمس/سنة
4 موسم السباحة (أشهر)
18.5°C متوسط الحرارة السنوي
442m الارتفاع

المصدر: Open-Meteo (2020–2025 متوسط)

الشواطئ والترفيه

يوجد بالمنطقة العديد من الشواطئ، أقربها شاطئ بلايا دي إل بالو (4.5 كم)، وشاطئ بلايا كانينا أرويو توتالان على بعد 1.4 كم فقط. في حين أن هذه الشواطئ قد لا تحمل جميعها شهادة العلم الأزرق، إلا أنها توفر فرصًا للاستمتاع بالساحل والأنشطة المائية. بالنسبة لعشاق الجولف، يقع نادي مالاغا بارادور للجولف على بعد 16 كم، وملعب ميغيل أنخيل خيمينيز للجولف على بعد 19 كم، ونادي غوادالخورثي للجولف على بعد 20 كم. مع 363 مطعمًا و 155 مقهى، يوجد في المجتمع العديد من الأماكن لتناول الطعام والتواصل الاجتماعي. بالإضافة إلى ذلك، مع 32 مهرجانًا محليًا، تقدم المنطقة ثراءً في الأنشطة الثقافية والترفيهية للسكان.

المصدر: OpenStreetMap

الموقع الإقليمي

تقع كالا ديل مورال في مقاطعة مالاغا، وهي جزء من كوستا ديل سول، المعروفة بطقسها المشمس وشواطئها. تقع في منطقة ساحلية توفر نمط حياة أكثر هدوءًا مقارنة بالمراكز السياحية الأكثر حيوية في الجنوب. على بعد حوالي 18 كم من وسط مدينة مالاغا، توفر المنطقة وصولاً إلى وسائل الراحة الحضرية مع الاستمتاع بنمط حياة أكثر هدوءًا. تختلف الطبيعة الحضرية للمنطقة، مع العديد من المطاعم ووسائل الراحة، عن المناطق الأخرى في كوستا ديل سول التي قد تركز أكثر على المنتجعات الكبيرة. يوفر ارتفاع المنطقة البالغ 442 مترًا فوق مستوى سطح البحر منظورًا مختلفًا عن السهول الساحلية.

دليل المنطقة: Cala del Moral

حقائق أساسية

17,551 عدد السكان

المناخ

الشهر متوسط الحرارة معدل الأمطار
يناير 14.6°C 51 mm
فبراير 15.1°C 45 mm
مارس 16.8°C 63 mm
أبريل 18.6°C 40 mm
مايو 21.4°C 20 mm
يونيو °C mm
يوليو 26.8°C 0 mm
أغسطس 27.6°C mm
سبتمبر °C mm
أكتوبر 22.0°C mm
نوفمبر 17.6°C mm
ديسمبر 15.5°C mm

المرافق القريبة

363 restaurant
81 pharmacy
64 bank
155 cafe
22 dentist

الارتفاع والتضاريس

442m الارتفاع
4.5 km مسافة الشاطئ
9.8% الانحدار إلى الشاطئ

حاد

النقل والوصول

16 km Malaga-Costa del Sol (AGP)
112 km Gibraltar (GIB)
375 km Alicante-Elche (ALC)
8.1 km Atarazanas
8.4 km Málaga Centro Alameda
8.6 km Guadalmedina

ملخص

  • تاون هاوس مجدد بغرف نوم 3 في كالا ديل مورال بسعر 559,000 يورو.
  • على مسافة قريبة من الشاطئ، بالقرب من المتاجر والمطاعم ووسائل النقل العام.
  • يوفر 147 مترًا مربعًا من مساحة المعيشة، مع مطبخ مجهز بالكامل وتكييف هواء.
  • بالقرب من مطار مالاغا (18 كم) وملاعب الجولف (16 كم).
  • مزيج من الراحة الحضرية والاسترخاء الساحلي، مع 3,911 ساعة من ضوء الشمس سنويًا.

مقارنة إقليمية

مقارنةً بالعقارات مثل Acqua Gardens في Estepona (بدءًا من 418,800 يورو) و Aby Upper في Estepona (بدءًا من 320,000 يورو)، فإن هذا التاون هاوس في Cala del Moral بسعر 559,000 يورو يتم وضعه في الشريحة السعرية المتوسطة. قد تقدم المشاريع في Estepona تجربة أكثر تركيزًا على المنتجعات، وغالبًا ما تكون أقرب إلى الشاطئ، ولكنها قد تفتقر إلى وسائل الراحة الحضرية الموجودة في Cala del Moral. Alba Benalmadena (بدءًا من 699,000 يورو) بسعر أعلى، وقد تقدم وسائل راحة أكثر فخامة أو موقعًا أكثر تميزًا، لكن العقار في Cala del Moral يحقق توازنًا بين الراحة والسعر. موقع Cala del Moral، بالقرب من وسط مدينة مالاغا والمطار، يجعله خيارًا ملائمًا للسفر، وهو ما قد لا يكون بارزًا في مناطق أخرى مثل Estepona. علاوة على ذلك، فإن عدد سكان Cala del Moral البالغ 17,551 نسمة يمنحها جوًا للعيش الدائم مقارنة بالعديد من الوجهات السياحية البحتة، مما قد يجذب أولئك الذين يبحثون عن الإقامة على مدار العام. كما أن ارتفاع المنطقة البالغ 442 مترًا فوق مستوى سطح البحر والميل بنسبة 9.8٪ إلى الشاطئ يوفران خصائص طوبوغرافية مختلفة عن السهول الساحلية.

الأسئلة الشائعة

ما مدى قرب هذا التاون هاوس من الشاطئ؟
يقع أقرب شاطئ، بلايا دي إل بالو، على بعد 4.5 كم، بينما يقع شاطئ بلايا كانينا أرويو توتالان على بعد 1.4 كم فقط.
ما هي إمكانية الوصول إلى مطار ملقا؟
يقع مطار ملقا (AGP) على بعد حوالي 18 كم من مكان الإقامة (مسافة خط مستقيم).
هل تحتوي هذه الخاصية على تكييف؟
نعم، تم تركيب تكييف الهواء في غرفة المعيشة وغرفتي نوم.
كيف هو سوق العقارات في كالا ديل مورال؟
كالا ديل مورال هي منطقة حضرية في كوستا ديل سول توفر وسائل راحة مناسبة وقربًا من الشاطئ، مما يجذب المشترين الذين يبحثون عن بيئة معيشية على مدار العام.
ما هي المرافق القريبة؟
يحتوي هذا المجال على 363 مطعمًا و 155 مقهى و 81 صيدلية و 64 بنكًا، وكلها تقع ضمن دائرة نصف قطرها 2 كم.
ما هي التكاليف الأخرى بخلاف سعر الشراء؟
قد تشمل التكاليف بخلاف سعر الشراء ضريبة نقل الملكية ورسوم كاتب العدل ورسوم التسجيل وتكاليف الرهن العقاري المحتملة. تشمل تكاليف الاحتفاظ السنوية ضريبة الأملاك البلدية (IBI) ورسوم المجتمع (إن وجدت).
ما هي العملية النموذجية لشراء عقار في إسبانيا؟
تتضمن العملية النموذجية تعيين محامٍ، والحصول على رقم التعريف الضريبي للأجانب (NIE)، وفتح حساب مصرفي، والتوقيع على اتفاقية شراء، ودفع وديعة، وأخيرًا إتمام العقد أمام كاتب عدل.
هل هذه المنطقة مناسبة للعائلات؟
القرب من المتاجر والمدارس (غير محددة في هذه البيانات ولكنها عادة ما تكون موجودة في البيئات الحضرية) والشواطئ تجعلها مكانًا جذابًا للعائلات. يشير عدد سكان المنطقة البالغ 17,551 نسمة إلى وجود عدد كبير من السكان الدائمين.
Omar Al-Nasser
Omar Al-Nasser
خبير عقاري

عمر الناصر يفهم بعمق احتياجات العملاء الناطقين بالعربية، ويرشدهم بثقة في سوق العقارات الإسباني. هو يضمن عملية شراء سلسة ومحترمة ثقافيًا.

AI-assisted multilingual representative. Your inquiry is handled by our real support team.

رد خلال 24 ساعة

مهتم؟

اترك بياناتك واحصل على معلومات عن التوفر، والأسعار، والمخططات.

المواصفات الفنية
إجمالي مساحة البناء 147 مترًا مربعًا.
يقع على بعد 1.4 كم من الشاطئ.
تم تجديده مؤخرًا.

Conversation history

Ask a question to start