3 Bed Semi-Detached House in Alcaucín في Alcaucín — منزل متلاصق (نصف منفصل)
منزل متلاصق (نصف منفصل)

مشروع سكني في Alcaucín للبيع

يقع هذا التطوير العقاري الكبير في بلدية Alcaucín، داخل منطقة مالاجا. يضم المشروع 52 منزلاً متلاصقاً (Townhouse) على قطعة أرض تبلغ مساحتها 7950 مترًا مربعًا. يقع المشروع في منطقة جبلية ريفية على ارتفاع حوالي 515 مترًا فوق مستوى سطح البحر. البناء في مرحلة متقدمة (40–70%). توفر الموقع الاستقرار بعيدًا عن صخب الشواطئ، مع سهولة الوصول إلى الخدمات الأساسية، مما يجعله فرصة للاستثمار أو الإقامة الدائمة.

€4,100,000
3
غرف النوم
2
الحمامات
7950 m²
مساحة المعيشة
€4,100,000
Prijs

تحليل المشروع

أهم خصائص الموقع، والوحدات، ومراحل المشروع، ونقاط الاهتمام.

الموقع

يقع المشروع في Alcaucín بالقرب من سلسلة الجبال. المسافة في خط مستقيم إلى أقرب شاطئ (Playa de La Caleta) هي حوالي 17 كم، وإلى مطار مالاجا حوالي 42 كم. البيئة محاطة بالطبيعة والمراعي. تقع الصيدلية على بعد 25 مترًا فقط، بينما يبعد السوبر ماركت حوالي 3.2 كم. النقل العام محدود، لذا تعتبر السيارة ضرورية للحياة اليومية.

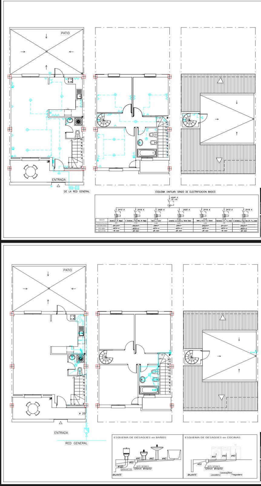
المخططات

هذا المشروع مناسب للأسر أو المستثمرين الذين يبحثون عن الخصوصية والمساحة. يحتوي كل منزل على 3 غرف نوم و2 حمام، بالإضافة إلى مرآب للسيارات. تتيح مساحة الأرض الكبيرة فرصًا لتصميم مساحات خارجية مشتركة. إنه خيار عملي لمن يريد العيش في بيئة طبيعية هادئة على مسافة قريبة من الساحل.

حالة المشروع

المشروع قيد الإنشاء وتتراوح نسبة الإنجاز بين 40% و70%. يوفر البيع للمشروع التخطيطات الفنية والتصاريح اللازمة لاستئناف البناء فورًا. تمنح هذه الحالة المشتري حرية اختيار مستوى التشطيبات والموارد، مع استكمال البناء وفقًا لجدولهم الزمني الخاص.

نقاط هامة

المشروع لا يقع على الشاطئ ولا يطل عليه مباشرة، حيث يقع في الأراضي الداخلية. البناء لم يكتمل بعد، لذا يتطلب استثمارًا إضافيًا للإنهاء. البنية التحتية للنقل العام محدودة جدًا في هذه المنطقة الجبلية. أقرب ملاعب الغولف تبعد أكثر من 40 كم.

نمط الحياة

هذا المشروع مناسب للمطورين العقاريين أو المستثمرين ذوي الخبرة الذين يرغبون في استكمال البناء وبيع الوحدات أو تأجيرها. كما قد يكون مناسبًا للعائلات الكبيرة التي ترغب في إنشاء مجتمع خاص. لا ينبغي النظر إليه كمنزل عطلات جاهز للسكن الفوري.

الجودة والتشطيبات

حالة التشطيب الحالية هي مبنى تحت الإنشاء. الهيكل الإنشائي موجود، لكن التشطيبات الداخلية (الكهرباء، السباكة، الأرضيات) غير مكتملة. يتيح ذلك للمشتري التحكم الكامل في جودة المواد المستخدمة، لكنه يتطلب إشرافًا دقيقًا على أعمال البناء المتبقية.

البيئة ونمط الحياة

السعر والتوفر

سعر المشروع بالكامل €4,100,000. هذه استثمار في أرض و52 وحدة سكنية في حالة إنشاء. تختلف استراتيجية التسعير هنا عن الشقق الجاهزة على الشاطئ، حيث تشمل القيمة إمكانات التطوير والبناء. يجب على المشتري توقع تكاليف إضافية لإنهاء البناء والتشطيبات.

€4,100,000
Prijs
3
غرف النوم
7950 m²
مساحة المعيشة
2
الحمامات

البيئة المحيطة

الحياة في Alcaucín تعني الاستمتاع بالهدوء والطبيعة. تتسم المنطقة بمناخ أكثر اعتدالًا بفضل الارتفاع، حيث تكون الليالي في الصيف أكثر برودة من الساحل. توجد مناطق خلابة مثل Mirador de Miguel Álvarez لتأمل المناظر الطبيعية. يوفر الموقع توازنًا بين الحياة الريفية التقليدية وإمكانية الوصول إلى المرافق الحضرية بقيادة قصيرة.

طلب معلومات

الموقع والبيئة: Alcaucín

البيئة والوصول

تتمتع Alcaucín بمناخ معتدل متوسط درجات الحرارة بين 9 و26 درجة مئوية. الارتفاع (515 متر) يوفر هواءً نظيفًا وإطلالات خلابة. الحياة هنا بطيئة وآمنة، مع ما يقرب من 600 نسمة فقط في المنطقة، مما يخلق شعورًا بالمجتمع القريب.

الخريطة والموقع

توضح الخريطة موقع المشروع في Alcaucín. لاحظ أن الموقع يقع في منطقة جبلية داخلية، وتتطلب الرحلات إلى الساحل أو المطار استخدام السيارات عبر الطرق الجبلية.

Alt text: Terrace with scenic mountain view, outdoor seating, and traditional street lamps.

الموقع الإقليمي

يقع Alcaucín في الجزء الشمالي الشرقي من مقاطعة مالاجا، بالقرب من حدود غرناطة. إنه منطقة انتقالية بين الجبال والساحل، مما يمنح السكان سهولة الوصول إلى كل من البيئة الطبيعية والبحر.

المرافق والوصول

السيارة أمر ضروري. يبعد السوبر ماركت 3.2 كم، والمستشفى 4.9 كم. يمكن الوصول إلى الشاطئ في حوالي 25-35 دقيقة بالسيارة. النقل العام محدود جدًا، لذا يعتمد السكان تمامًا على السيارات الخاصة للتنقل.

Malaga-Costa del Sol (AGP) 43 km
Gibraltar (GIB) 138 km

المصدر: OpenStreetMap, Google Maps

Alt text: Spacious room with mountain view, balcony, and modern amenities.

الطبيعة والمناخ

Cozy room with mountain view, large windows, and wooden furniture.

يتميز المناخ بوجود شمس ساطعة طوال العام (حوالي 3894 ساعة مشمسة سنويًا). موسم السباحة يدوم حوالي 4 أشهر. الموقع الجبلي يحمي من الحرارة الشديدة في الصيف، على الرغم من أن درجات الحرارة قد تكون أكثر برودة في الشتاء مقارنة بالساحل.

3894 ساعات الشمس/سنة
4 موسم السباحة (أشهر)
16.7°C متوسط الحرارة السنوي
515m الارتفاع

المصدر: Open-Meteo (2020–2025 متوسط)

الشواطئ والترفيه

على الرغم من أن المشروع يقع في الداخل، إلا أن الشواطئ قريبة نسبيًا (17 كم). يوجد أيضًا مسبح بلدي في Alcaucín على بعد 300 متر فقط، وهو خيار ممتاز في الصيف. توفر الجبال المحيطة مسارات للمشي لمسافات طويلة والاستمتاع بالطبيعة.

مرافق رياضية

10 المرافق المتاحة

المصدر: OpenStreetMap, CSD

Alt text: Map showing the location of Mittelemer in Asturias, Spain, with surrounding cities and regions.

الموقع الإقليمي

يقع Alcaucín في الجزء الشمالي الشرقي من مقاطعة مالاجا، بالقرب من حدود غرناطة. إنه منطقة انتقالية بين الجبال والساحل، مما يمنح السكان سهولة الوصول إلى كل من البيئة الطبيعية والبحر.

دليل المنطقة: Alcaucín

Alcaucin is a town and municipality in the province of Málaga, part of the autonomous community of Andalusia in southern Spain. It borders with the province of Granada. The municipality is situated approximately 54 kilometers to the city of Málaga. It is 507 km from the capital of Madrid. The name was derived from al-kautín, the Arabic of "the arches." It has a population of approximately 1,600 residents, partly living in the hamlet of Puente Don Manuel. Natives of the town are called Alcaucineños and have the nickname of tiznaos.

حقائق أساسية

المناخ

الشهر متوسط الحرارة معدل الأمطار
يناير 9.1°C 84 mm
فبراير 9.5°C 89 mm
مارس 12.0°C 93 mm
أبريل 14.2°C 75 mm
مايو 16.7°C 65 mm
يونيو 21.5°C 22 mm
يوليو 25.6°C 1 mm
أغسطس 26.0°C 2 mm
سبتمبر 21.9°C 21 mm
أكتوبر 17.3°C 67 mm
نوفمبر 12.7°C 108 mm
ديسمبر 9.7°C 85 mm

المرافق القريبة

3 restaurant
1 pharmacy

الارتفاع والتضاريس

515m الارتفاع

معالم قريبة

نقاط مشاهدة

مسابح

النقل والوصول

43 km Malaga-Costa del Sol (AGP)
138 km Gibraltar (GIB)
349 km Alicante-Elche (ALC)

تفاصيل المشروع

المشروع 3 Bed Semi-Detached House in Alcaucín
المدينة Alcaucín
المنطقة Costa del Sol East
Prijs €4,100,000
مساحة المعيشة 7950 m²
السعر لكل م² €515 / m²
غرف النوم 3
الحمامات 2
موقف سيارات نعم
مسبح لا
حديقة لا
حالة البناء for_sale
تاريخ الإنجاز 2008
تاريخ النشر 2026-04-24

Ref: VL337892

المصدر: Wikipedia, Wikidata, INE, Junta de Andalucía

ملخص

  • مشروع تطوير ضخم يضم 52 منزلاً متلاصقًا في Alcaucín.
  • مساحة الأرض 7950 متر مربع، 40-70% من البناء مكتمل.
  • موقع ريفي هادئ على ارتفاع 515 مترًا.
  • يقع على بعد حوالي 17 كم من الشواطئ.
  • يتطلب الاستثمار في استكمال البناء.

مقارنة إقليمية

مقارنة بمشاريع الساحل مثل Astra Homes في Fuengirola، يقدم هذا المشروع في Alcaucïn قيمة أكبر للمساحة والخصوصية، لكنه يتطلب العمل والبناء. بينما تتميز مشاريع الساحل بارتفاع الأسعار وجاهزية السكن، يوفر هذا المشروع فرصة استثمارية طويلة الأجل في منطقة تنمو شعبيتها ببطء.

الأسئلة الشائعة

لماذا لم يكتمل البناء؟
المشروع ليس جاهزًا بعد؛ تتراوح نسبة الإنجاز بين 40% و70%. يشتري المشتري المشروع في حالته الحالية ويتحمل مسؤولية استكمال الأعمال.
هل أحتاج إلى سيارة؟
نعم، السيارة ضرورية للغاية. تقع أقرب متاجر على بعد 3.2 كم، والمنطقة ليس بها مواصلات عامة كافية.
ما هي حالة التشطيبات؟
الهياكل الإنشائية موجودة لكن لم يتم تركيب التشطيبات الداخلية النهائية. يوجد جميع التصاريح اللازمة للاستمرار في العمل.
هل هذا مناسب للاستثمار؟
نعم، للمستثمرين الذين يرغبون في استكمال البناء وبيع الوحدات أو تأجيرها. إنه ليس شقة جاهزة للعطلات الفورية.
ما هي المرافق القريبة؟
توجد صيدلية قريبة جدًا ومسبح عام على بعد 300 متر. تتطلب المستشفيات والبنوك والشاطئ رحلة بالسيارة.
ما هي التكاليف الإضافية؟
يجب أن يتوقع المشتري تكاليف البناء المتبقية، ورسوم المعاملات، والضرائب العقارية، ورسوم المحاماة.
هل يمكنني شراء منزل واحد فقط؟
المشروع معروض ككل (52 وحدة). التفاصيل المتعلقة بشراء وحدات فردية تحتاج إلى اتفاق خاص.
كم يبعد المطار؟
مطار مالاجا كوستا ديل سول يبعد حوالي 42 كم في خط مستقيم (حوالي 40-50 دقيقة بالسيارة).
Maiko
Maiko
خبير عقاري

مايكو هو خبير عقاري متخصص في سوق الإسكان في إسبانيا. بفضل معرفته العميقة بمنطقة كوستا ديل سول، كوستا بلانكا وغيرها من المناطق الساحلية الشعبية، يساعد المشترين في العثور على المنزل المناسب. يحلل العروض بناءً على الموقع والقيمة السوقية وجودة البناء والبيئة المعيشية، ويقدم نصائح صريحة تعتمد على البيانات طوال عملية الشراء.

رد خلال 24 ساعة

مهتم؟

اترك بياناتك واحصل على معلومات عن التوفر، والأسعار، والمخططات.

المواصفات الفنية
مساحة الأرض: 7 950 م².
حالة البناء: 40–70% مكتمل.
الارتفاع فوق مستوى سطح البحر: حوالي 515 م.
ساعات الشمس السنوية: حوالي 3 894 ساعة.

Conversation history

Ask a question to start