3 Bed Middle Floor Apartment in Fuengirola في Fuengirola — شقة
شقة

Core Higueron - شقق للبيع في فوينخيرولا

Core Higuerón هو مجمع سكني حديث في فوينخيرولا، مقاطعة مالاغا. يقع المشروع في منطقة El Higuerón ويضم 78 شقة في مبنيين. اكتمل البناء، والشقق جاهزة للسكن فوراً. يوفر التصميم شرفات واسعة بإطلالات على البحر ومرافق مشتركة تشمل مسبحاً وصالة رياضية. الارتفاع 234 متراً فوق مستوى سطح البحر يوفر إطلالات بانورامية. أقرب مطار هو مالاغا-كوستا دل سول، على بعد حوالي 13 كم. تبدأ الأسعار من حوالي 979,900 يورو.

يبدأ من €979,900
3
غرف النوم
2
الحمامات
132-172 m²
مساحة المعيشة
يبدأ من €979,900
السعر المبدئي
0.4 km
مسافة الشاطئ
جاهز للتسليم
حالة البناء

تحليل المشروع

أهم خصائص الموقع، والوحدات، ومراحل المشروع، ونقاط الاهتمام.

الموقع

تقع العقارات في منطقة El Higuerón، بين الساحل والجبال. أقرب شاطئ، Playa de Torreblanca، يبعد حوالي 1.7 كم. يقع وسط مدينة فوينخيرولا على بعد حوالي 5 كم. المنطقة معروفة ببنيتها التحتية الجيدة. بسبب الموقع على منحدر، فإن التضاريس تتدرج.

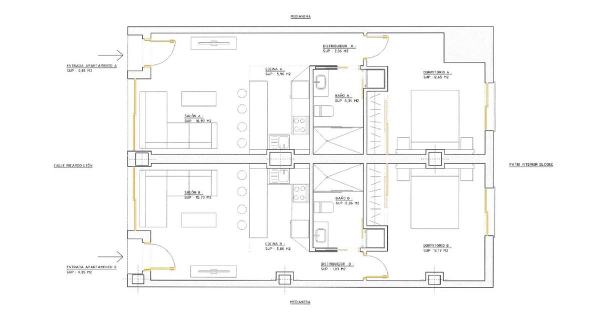
المخططات

الشقق واسعة، بمساحة معيشية متوسطة تبلغ 141 متراً مربعاً. مخططات الطوابق مناسبة للعائلات أو الأزواج. مستوى التشطيب عالٍ، مع مطابخ ألمانية من شركة Nolte. الشرفات الكبيرة تواجه الجنوب أو الجنوب الغربي. يشمل السعر موقفاً للسيارات ومخزناً. هذا المشروع مخصص لأولئك الذين يقدرون مرافق الترفيه في الموقع.

حالة المشروع

المشروع مكتمل وجاهز للاستخدام. المشتري لا يحتاج إلى انتظار انتهاء البناء. تم استخدام مواد عالية الجودة، مثل بلاط السيراميك الكبير. الحدائق والمسابح المشتركة تعمل بالكامل.

نقاط هامة

كون الموقع على منحدر يعني أن التضاريس شديدة الانحدار، مما قد يشكل تحدياً للأشخاص ذوي الحركة المحدودة. الموقع يعتمد على السيارة؛ المسافة إلى المتاجر أو الشاطئ تزيد عن كيلومتر واحد. الإيجار قصير الأجل محدود. لا توجد متاجر أو مطاعم في الموقع.

تفاصيل المشروع

المشروع Core Higueron
المدينة Fuengirola
المنطقة Costa del Sol
السعر المبدئي €979,900
مساحة المعيشة 141 m²
السعر لكل م² €6,949 / m²
التراس 133 m²
غرف النوم 3
الحمامات 2
موقف سيارات نعم
مسبح نعم
حديقة نعم
حالة البناء key_ready
المطور Propertisimo
مسافة الشاطئ 0.4 km
تاريخ الإنجاز 2025
تاريخ النشر 2026-04-20

Ref: VL217696

المصدر: Wikipedia, Wikidata, INE, Junta de Andalucía

نمط الحياة

هذه الشقة مناسبة للعائلة أو الزوجين اللذين يبحثان عن مساحة واسعة في جنوب إسبانيا. مثالية للأشخاص الذين يستمتعون بالترفيه النشط وحمامات السباحة في الموقع. ليست مكاناً للأشخاص الذين يبحثون عن الحياة الليلية الصاخبة على بعد خطوات من منزلهم. مناسبة لأولئك الذين يبحثون عن عقار جاهز دون مخاطر البناء.

الجودة والتشطيبات

المواد حديثة وعالية الجودة. الأرضيات مغطاة ببلاط سيراميك كبير. المطابخ من العلامة التجارية الألمانية Nolte Küchen. الحمامات مزينة بالبلاط، وتحتوي على دش وتدفئة أرضية.

البيئة ونمط الحياة

السعر والتوفر

تبدأ الأسعار من حوالي 979,900 يورو. يشمل ذلك 3 غرف نوم و 2 حمام و 141 متراً مربعاً من مساحة المعيشة. جودة التشطيب عالية، وقد تكون رسوم المجتمع أعلى.

€979,900
السعر المبدئي
3
غرف النوم
141 m²
مساحة المعيشة
2
الحمامات

البيئة المحيطة

El Higuerón هي منطقة سكنية هادئة على حدود فوينخيرولا وبنالمداينا. الحياة هنا تتمحور حول حمامات السباحة والمناطق الترفيهية. يوجد العديد من المطاعم في الجوار، ولكن عادة ما يكون من الضروري استخدام السيارة للوصول إليها. الوصول إلى الشاطئ بالسيارة أسهل من المشي بسبب التلال. المنطقة شعبية بين المغتربين، والبنية التحتية تدعم الإقامة الدائمة.

طلب معلومات

الموقع والبيئة: Fuengirola

البيئة والوصول

فوينخيرولا هي مدينة يزيد عدد سكانها عن 85,000 نسمة. توفر كامل الخدمات: المتاجر الكبرى والمستشفيات والمدارس. الشاطئ قريب، لكن يتطلب وسيلة نقل. المناخ معتدل، والصيف حار ولكن النسيم البحري يخفف الحرارة.

الخريطة والموقع

تظهر الخريطة الموقع في الجزء الأوسط من كوستا دل سول. تم وضع علامة على العقار غرب فوينخيرولا، بالقرب من حدود بنالمداينا. يمكن رؤية المسافة القصيرة إلى الشاطئ والمطار.

Beachfront room with ocean view, featuring a private balcony and modern amenities.

الموقع الإقليمي

كوستا دل سول هي شريط ساحلي في جنوب إسبانيا. تقع فوينخيرولا في الجزء الأوسط، على بعد حوالي 30 كم غرب مالاغا. إنها قاعدة مناسبة لاستكشاف المنطقة بأكملها، مع سهولة الوصول إلى مالاغا وماربيلا.

المرافق والوصول

السيارة ضرورية. أقرب سوبر ماركت يبعد 1.5 كم. الشاطئ يبعد 1.7 كم. أقرب محطة قطار Carvajal تقع على مسافة 2 كم، ولكن المشي صعب بسبب الانحدار. يمكن الوصول إلى المطار في حوالي 15-20 دقيقة (13 كم). ملاعب الجولف في حدود 4-7 كم.

مسافة الشاطئ 0.4 km
Malaga-Costa del Sol (AGP) 18 km
Gibraltar (GIB) 79 km
Fuengirola 0.6 km
Carvajal 3.5 km

المصدر: OpenStreetMap, Google Maps

Aerial view of a coastal city with a sandy beach and clear blue water.

الطبيعة والمناخ

Oceanfront apartment with balcony, city and beach views, modern amenities.

يتمتع المنطقة بأكثر من 300 يوم مشمس سنوياً. موسم السباحة يستمر حوالي 4 أشهر. ارتفاع 234 متراً فوق مستوى سطح البحر يعني نسيمًا يبرد الشقق في الأيام الحارة.

3897 ساعات الشمس/سنة
4 موسم السباحة (أشهر)
18.7°C متوسط الحرارة السنوي
15m الارتفاع

المصدر: Open-Meteo (2020–2025 متوسط)

الشواطئ والترفيه

توجد شواطئ تحمل العلم الأزرق بالقرب، مثل Playa de Torreblanca. يوجد العديد من ملاعب الجولف في الجوار. تتوفر أيضاً منشآت رياضية ومسارات للمشي في الجبال.

شواطئ

  • Playa de San Francisco 0.4 km
  • Playa de los Boliches 1 km
  • Playa de Santa Amalia 1.2 km
  • Playa del Castillo 1.9 km
  • Playa Torreblanca-Carvajal Blue Flag 2.1 km
  • Playa Mati 2.8 km

Golf

  • Campo Los Lagos 4 km
  • Cerrado del Aguila Golf 4.5 km
  • Campo Los Olivos 4.7 km
  • El Chaparral Golf Club 5.4 km

مرافق رياضية

269 المرافق المتاحة

المصدر: Blue Flag 2026, OpenStreetMap, CSD

Beachfront room with ocean view, featuring a balcony and lounge chairs.

الموقع الإقليمي

كوستا دل سول هي شريط ساحلي في جنوب إسبانيا. تقع فوينخيرولا في الجزء الأوسط، على بعد حوالي 30 كم غرب مالاغا. إنها قاعدة مناسبة لاستكشاف المنطقة بأكملها، مع سهولة الوصول إلى مالاغا وماربيلا.

دليل المنطقة: Fuengirola

Fuengirola is a city on the Costa del Sol in the province of Málaga in the autonomous community of Andalusia in southern Spain. It is located on the central coast of the province and integrated into the region of the Costa del Sol and the Commonwealth of Municipalities of the Costa del Sol Occidental.

حقائق أساسية

10.4 km² المساحة

المناخ

الشهر متوسط الحرارة معدل الأمطار
يناير 11.9°C 56 mm
فبراير 12.2°C 57 mm
مارس 14.2°C 46 mm
أبريل 16.1°C 31 mm
مايو 18.3°C 28 mm
يونيو 22.4°C 6 mm
يوليو 25.8°C 1 mm
أغسطس 26.2°C 2 mm
سبتمبر 22.9°C 9 mm
أكتوبر 19.1°C 51 mm
نوفمبر 15.2°C 74 mm
ديسمبر 12.6°C 66 mm

المرافق القريبة

205 restaurant
36 pharmacy
27 bank
1 park
63 cafe
9 dentist

الارتفاع والتضاريس

15m الارتفاع
0.4 km مسافة الشاطئ
3.0% الانحدار إلى الشاطئ

معتدل

معالم قريبة

Ev Charging

مراكز رياضية

شواطئ

موانئ ترفيهية

ملاعب الغولف

مسابح

النقل والوصول

18 km Malaga-Costa del Sol (AGP)
79 km Gibraltar (GIB)
407 km Alicante-Elche (ALC)
0.6 km Fuengirola
3.5 km Carvajal
6.2 km Torremuelle
0.7 km Terminal Autobus

ملخص

  • مجمع سكني حديث وجاهز للسكن في منطقة هادئة.
  • شرفات كبيرة مع إطلالات بحرية وجوانب مشمسة.
  • مناطق مشتركة واسعة تشمل مسبحاً وصالة رياضية.
  • موقع شديد الانحدار يعتمد على السيارة.
  • قيود على الإيجار قصير الأجل.

مقارنة إقليمية

فوينخيرولا أكثر دولية وحركة من قرى الصيد الصغيرة، لكنها أكثر هدوءاً من وسط بنالمداينا أو توريمولينوس. الأسعار هنا أعلى من المناطق الداخلية، مما يبرره موقعها الساحلي. بالمقارنة مع مالاغا، هناك المزيد من السياح وأشعة الشمس.

الأسئلة الشائعة

هل التنقل صعب بسبب المنحدرات؟
الطرق ممهدة، ولكن التضاريس جبلية. يُنصح باستخدام السيارة بسبب الارتفاعات والانحدارات.
كم يستغرق الوصول إلى المطار؟
يقع مطار مالاغا على بعد حوالي 13 كم، وتستغرق الرحلة عادة 15-20 دقيقة اعتماداً على حركة المرور.
هل توجد مكيفات في الشقق؟
نعم، الشقق مجهزة بتكييف وتدفئة أرضية في الحمامات.
هل يمكنني تأجير الشقة للسياح؟
الإيجار قصير الأجل محدود في هذه المنطقة، لذا يرجى التحقق من اللوائح قبل الشراء لأغراض الاستثمار.
ما هي المرافق المتاحة؟
يحتوي العقار على مسبحين لا نهائيين وصالة رياضية وسبا وملاعب لبادل التنس.
ما هي تكاليف الصيانة؟
قد تكون رسوم المجتمع أعلى من المتوسط بسبب مستوى المرافق العالي.
هل الشاطئ قريب للمشي؟
يقع الشاطئ على بعد حوالي 1.7 كم. بسبب المنحدر الحاد، يفضل معظم السكان استخدام السيارة.
Maiko
Maiko
خبير عقاري

مايكو هو خبير في العقارات متخصص في سوق الإسكان الإسباني. بفضل معرفته العميقة بمنطقة كوستا دل سول وكوستا بلانكا والمناطق الساحلية الأخرى الشهيرة، فإنه يساعد المشترين في العثور على المنزل المناسب. يحلل العروض بناءً على الموقع والقيمة السوقية وجودة البناء وإمكانية العيش، ويقدم نصائح صريحة تعتمد على البيانات طوال عملية الشراء.

رد خلال 24 ساعة

مهتم؟

اترك بياناتك واحصل على معلومات عن التوفر، والأسعار، والمخططات.

المواصفات الفنية
المشروع مكتمل وجاهز للسكن.
متوسط مساحة الشقة 141 متراً مربعاً.
أقرب محطة شحن للمركبات الكهربائية تقع على بعد 383 متراً.
يوجد 269 منشأة رياضية في المنطقة.

Conversation history

Ask a question to start