Commercial Premises in La Campana في La Campana — محل تجاري
محل تجاري

محل تجاري للبيع في لا كامبانا

يقع هذا المحل التجاري الكبير في لا كامبانا، مالاغا، إسبانيا، وهو معروض للبيع. تبلغ مساحته الصالحة للاستخدام 220 مترًا مربعًا في مستوى الشارع، ويوفر رؤية ممتازة وسهولة الوصول، مما يجعله مثاليًا لأي نوع من الأعمال التجارية. يتميز بواجهة واسعة ونوافذ كبيرة توفر الضوء والرؤية من الخارج، مما يعزز جذب العملاء. يسمح التصميم المفتوح بخيارات تخطيط متعددة وتكييفه مع احتياجات العمل.

€895,000
220 m²
مساحة المعيشة
€895,000
Prijs

ملخص

  • محل تجاري بمساحة 220 مترًا مربعًا في مستوى الشارع في لا كامبانا النابضة بالحياة.
  • موقع متميز بالقرب من الشواطئ والمطار والمرافق الحضرية.
  • بناء جديد بتصميم مفتوح لمرونة قصوى.
  • رؤية عالية، مثالية للبيع بالتجزئة أو الخدمات أو المكاتب.
  • سهولة الوصول ووسائل راحة محيطة كاملة.

مقارنة إقليمية

مقارنة بالمناطق المجاورة، يقدم هذا المحل التجاري في لا كامبانا عرضًا فريدًا من نوعه. على سبيل المثال، يبدأ سعر Acqua Gardens في إستي بونا من 418,800 يورو، ويبدأ سعر Alba Benalmadena في بنالمادينا من 699,000 يورو. في هذا السياق، يعكس سعر مشروعنا البالغ 895,000 يورو مساحته الأكبر (220 مترًا مربعًا) وموقعه المركزي المريح. في حين أن المشاريع في إستي بونا وبنالمادينا تقع أيضًا في مناطق ساحلية شهيرة، فإن هذا المحل التجاري في لا كامبانا يركز بشكل أكبر على وسائل الراحة الحضرية ووظيفة العمل ذات الرؤية العالية. تشير حالته كبناء جديد وتصميمه في مستوى الشارع إلى التمايز عن بعض الوحدات التجارية الموجودة في المجمعات السكنية. يبدو أن تحديد سعر المشروع يتوافق مع حجمه وخصائص موقعه الحضري وحالة البناء الجديدة، مما يوفر خيارًا ذا إمكانات للشركات التي تبحث عن موقع تجاري استراتيجي وحركة مرور عالية.

الأسئلة الشائعة

هل يمكن استخدام هذا المحل التجاري للسكن؟
تم تصنيف هذه المساحة كعقار تجاري، وهي مصممة حصريًا للأنشطة التجارية ولا تصلح للاستخدام السكني.
ما هي المسافة من هذا المحل التجاري إلى مطار مالاغا؟
تبلغ المسافة الجوية من هذا المحل التجاري إلى مطار مالاغا-كوستا ديل سول (AGP) حوالي 8.6 كيلومتر.
ما هي حالة بناء هذا المحل التجاري؟
هذا المحل التجاري عبارة عن بناء جديد، تم بناؤه وفقًا لمعايير البناء الحديثة.
ما هي آفاق سوق العقارات التجارية في منطقة لا كامبانا؟
تتميز المنطقة ببنية تحتية سكنية متطورة وحركة مرور عالية للمشاة، مما يوفر قاعدة عملاء ثابتة للأنشطة التجارية. كما أن البنية التحتية المحيطة الكاملة تعزز جاذبيتها التجارية.
ما هي المرافق الرئيسية التي يمكن الوصول إليها سيرًا على الأقدام؟
توجد مرافق تشمل سوبر ماركت (126 مترًا)، ومستشفى (113 مترًا)، وصيدلية (128 مترًا) ضمن مسافة سير على الأقدام.
ما هي التكاليف الإضافية المحتملة بخلاف سعر الشراء؟
قد تشمل التكاليف الإضافية المحتملة ضرائب نقل الملكية، ورسوم كاتب العدل، ورسوم التسجيل، بالإضافة إلى تكاليف التجديد والتأثيث. يُنصح بالتشاور مع ممثل المبيعات للحصول على تفاصيل محددة.
ما هي إجراءات شراء هذا المحل التجاري؟
عادةً ما تتضمن عملية الشراء إيداعًا أوليًا، وتوقيع عقد شراء خاص، والحصول على قرض عقاري (إذا لزم الأمر)، وإتمام الصفقة النهائية لدى كاتب العدل.
هل يقع هذا المحل التجاري بالقرب من وسائل النقل العام؟
نعم، تخدم المنطقة 50 خط حافلات و 50 محطة حافلات، وتقع أقرب محطة قطار على بعد 0.6 كم.

تحليل المشروع

أهم خصائص الموقع، والوحدات، ومراحل المشروع، ونقاط الاهتمام.

الموقع

يقع هذا المحل التجاري في منطقة نابضة بالحياة ذات حركة مرور عالية للمشاة والمركبات. يحيط به المتاجر والمطاعم والخدمات والمناطق السكنية القائمة، مما يجعله فرصة استثنائية لبدء عملك أو توسيعه في موقع استراتيجي.

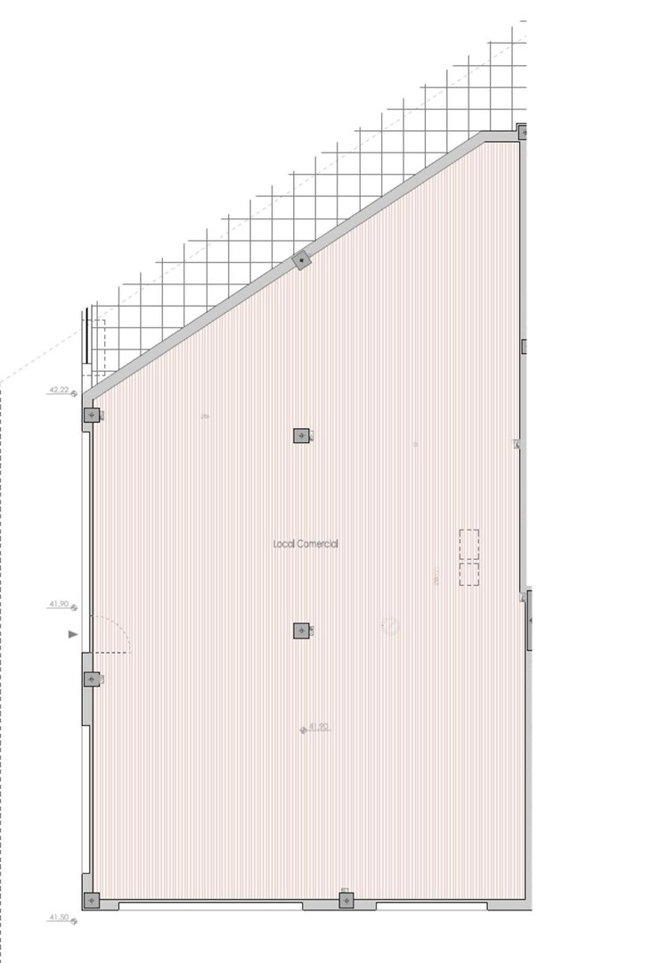
المخططات

يوفر هذا المحل التجاري، بمساحة 220 مترًا مربعًا وتصميمه في مستوى الشارع، مساحة واسعة لمختلف الأنشطة التجارية. يسمح التصميم الداخلي المفتوح بمرونة عالية في التخصيص ليناسب الاحتياجات المحددة للعمل، مما يضمن الكفاءة والوظائف العملية.

حالة المشروع

يُعد هذا المحل التجاري مشروعًا إنشائيًا جديدًا، مما يضمن توافقه مع معايير البناء الحديثة والمرافق. تشير حالة البناء الجديدة إلى أنه جاهز للاستخدام الفوري من قبل المستأجرين المحتملين، دون الحاجة إلى تجديدات كبيرة، مع الاستفادة من أحدث التقنيات والممارسات الهندسية.

نقاط هامة

هذا المحل التجاري غير مخصص للاستخدام السكني ومصمم حصريًا للأغراض التجارية. قد لا يكون موقعه في بيئة حضرية صاخبة مناسبًا للعملاء الذين يبحثون عن الهدوء التام. قد لا يكون أيضًا مثاليًا للأعمال التي تتطلب مساحة خارجية خاصة كبيرة.

نمط الحياة

هذا المحل التجاري مناسب لرجال الأعمال الذين يسعون إلى تأسيس أو توسيع أعمالهم في مدينة إسبانية جنوبية نابضة بالحياة. إنه مفيد بشكل خاص للشركات التي تتطلب رؤية عالية وسهولة وصول العملاء، مثل متاجر البيع بالتجزئة أو شركات الاستشارات أو مراكز الخدمات الصغيرة أو العيادات المتخصصة. موقعه في مستوى الشارع، جنبًا إلى جنب مع المرافق الكاملة في الجوار، بما في ذلك محلات السوبر ماركت والمستشفيات والصيدليات، يجعله جذابًا للغاية للشركات التي تقدر سهولة التشغيل. تشير حالة البناء الجديدة إلى أنه جاهز للاستخدام الفوري، مما يقلل من وقت وتكاليف التجديد والإعداد الأولي. إنه خيار جيد أيضًا لرواد الأعمال الذين يتطلعون إلى نقل أعمالهم من مناطق أخرى إلى جنوب إسبانيا للاستفادة من السوق المحلي ونمط الحياة.

الجودة والتشطيبات

كمحل تجاري جديد، من المتوقع أن يستخدم هذا المشروع مواد وتقنيات تتوافق مع معايير البناء الحالية. على الرغم من أن التفاصيل المحددة قد تختلف حسب التصميم النهائي، إلا أنه من المتوقع عمومًا أن يشمل البنية التحتية الحديثة مثل أنظمة الكهرباء والإضاءة والتهوية. قد يكون الواجهة الخارجية مصنوعة من مواد متينة ومزودة بنوافذ زجاجية كبيرة لزيادة الضوء الطبيعي والعرض. يسمح التصميم الداخلي المفتوح للمالك بحرية تخصيص التشطيبات وفقًا لاحتياجات أعماله. من المتوقع أن تكون الأرضيات مغطاة بمواد مقاومة للتآكل، والجدران بأسطح سهلة الطلاء أو التشطيب. نظرًا لاستخدامه التجاري، يجب أن تكون مواصفات توصيلات الكهرباء والشبكة قادرة على تلبية متطلبات المكاتب الحديثة أو البيع بالتجزئة. يجب أن يفي الهيكل العام للمبنى باللوائح المحلية ومعايير السلامة، مما يوفر أساسًا قويًا للتشغيل طويل الأجل.

البيئة ونمط الحياة

السعر والتوفر

يبلغ سعر هذا المحل التجاري 895,000 يورو. نظرًا لمساحته البالغة 220 مترًا مربعًا وموقعه المتميز، يعكس هذا السعر قيمته في سوق العقارات التجارية بمنطقة لا كامبانا. يقع المحل في مستوى الشارع، وهو سهل الوصول ومناسب لمجموعة متنوعة من الاستخدامات التجارية. على الرغم من السعر المرتفع، فإن موقعه الاستراتيجي، ورؤيته العالية، والبيئة التجارية والسكنية المحيطة المطورة تشير إلى إمكانات تجارية قوية وآفاق عائد استثمار جيدة. يُنصح بالتشاور المباشر مع ممثل المبيعات للحصول على معلومات حول شروط الدفع المحددة والحوافز المحتملة للمشترين.

€895,000
Prijs
220 m²
مساحة المعيشة

البيئة المحيطة

يقع هذا المحل التجاري في قلب لا كامبانا (La Campana)، وهي بلدة نابضة بالحياة توفر وسائل راحة حضرية شاملة. تبلغ مساحة المحل 220 مترًا مربعًا ويقع في مستوى الشارع، وهو مثالي لمجموعة متنوعة من الاستخدامات التجارية مثل البيع بالتجزئة أو الخدمات أو المكاتب. الرؤية من الشارع عالية جدًا، وتجذب الواجهة الزجاجية الكبيرة انتباه المارة. يوفر التصميم الداخلي المفتوح مرونة كبيرة للمستأجرين لتخصيص المساحة وفقًا لاحتياجاتهم التجارية المحددة. المنطقة المحيطة بها مليئة بالمتاجر والمطاعم والبنوك والصيدليات، بالإضافة إلى المراكز الطبية، مما يضمن الراحة للعمليات اليومية. كما أن وجود مناطق سكنية راسخة يوفر قاعدة عملاء ثابتة للأنشطة التجارية. سهولة الوصول إلى وسائل النقل، بما في ذلك القرب من الطرق الرئيسية وشبكات النقل العام، تعزز جاذبية الموقع. بالنظر إلى حيوية المنطقة ووفرة المرافق المحيطة، يوفر هذا المكان بيئة تشغيلية مثالية للشركات، مما يسمح بالوصول الفعال إلى قاعدة عملاء واسعة.

طلب معلومات

الموقع والبيئة: La Campana

البيئة والوصول

لا كامبانا (La Campana) هي بلدة تقع في مقاطعة إشبيلية، على بعد حوالي 56 كيلومترًا من عاصمة المقاطعة، إشبيلية. وفقًا لتعداد عام 2020، بلغ عدد سكان البلدة 5,238 نسمة. يقع المحل التجاري في بيئة حضرية مع وسائل راحة يمكن الوصول إليها سيرًا على الأقدام، بما في ذلك 376 مطعمًا و 103 صيدلية و 66 بنكًا و 155 مقهى. يبلغ ارتفاع المنطقة 22 مترًا فوق مستوى سطح البحر، والمناخ معتدل، بمتوسط درجة حرارة سنوية 19.4 درجة مئوية، ووفرة من أشعة الشمس، حيث تصل ساعات سطوع الشمس السنوية إلى 3893 ساعة. على الرغم من أن معلومات "لا كامبانا" المقدمة تشير إلى مقاطعة إشبيلية، إلا أن بيانات المشروع التي تشير إلى "مالاغا" والمسافات (مثل 8.6 كم من مطار مالاغا) قد تشير إلى وجود مكان يحمل نفس الاسم أو أن المشروع يقع فعليًا في مقاطعة مالاغا. إذا كانت مالاغا هي المرجع، فإن الموقع قريب من الساحل، ولكن موقعه الدقيق يتطلب مزيدًا من التوضيح.

الخريطة والموقع

توضح هذه الخريطة منطقة لا كامبانا (La Campana) والمناطق المحيطة بها. تبرز الخريطة الموقع النسبي للمحل التجاري بالنسبة للشواطئ والطرق الرئيسية والمطار والمرافق الحضرية الهامة الأخرى مثل محلات السوبر ماركت والمستشفيات وملاعب الجولف. يمكن رؤية الكثافة الحضرية ومستوى المرافق في المنطقة بوضوح.

Alt text: Historic building with clock tower, red domes, and arched entrance, set against a clear blue sky.

الموقع الإقليمي

يقع هذا المحل التجاري في لا كامبانا، مقاطعة مالاغا، وهو موقع ذو أهمية استراتيجية. إنه قريب من الساحل وفي نفس الوقت يقع في بيئة حضرية، مما يوفر سهولة الوصول إلى وسائل النقل والمرافق الكاملة. المسافة إلى وسط مدينة مالاغا والمحاور الرئيسية للنقل (مثل المطار ومحطات القطار) معتدلة، مما يضمن سهولة المعاملات التجارية وسهولة الوصول إلى موارد المنطقة. مقارنة بالمدن الساحلية الشهيرة المجاورة مثل إستي بونا (Estepona) وبنالمادينا (Benalmádena)، تقدم لا كامبانا خيارًا فريدًا يجمع بين وسائل الراحة الحضرية وسهولة الوصول إلى الساحل. توفر المنطقة مجموعة واسعة من المطاعم ومتاجر الخدمات الطبية، مما يضمن جودة حياة عالية.

المرافق والوصول

يتمتع هذا المحل التجاري بموقع متميز يسهل الوصول إلى مجموعة متنوعة من المرافق الهامة. تقع الشواطئ مثل بلايا دي لا مالاجويتا (Playa de la Malagueta) على بعد 988 مترًا فقط، وتقع الشواطئ الأخرى على بعد بضعة كيلومترات. يبعد المحل حوالي 8.6 كم عن مطار مالاغا-كوستا ديل سول (AGP)، مما يوفر سهولة الوصول إليه. يوجد سوبر ماركت على بعد 126 مترًا، وصيدلية على بعد 128 مترًا، ومستشفى على بعد 113 مترًا، مما يوفر راحة كبيرة للحياة اليومية. يمكن لعشاق الجولف العثور على العديد من ملاعب الجولف في دائرة نصف قطرها 11 كم. بالإضافة إلى ذلك، تقع أقرب نقطة شحن للسيارات الكهربائية على بعد 472 مترًا فقط. من حيث وسائل النقل العام، تخدم المنطقة 50 خط حافلات و 50 محطة حافلات، مما يسهل تنقل الموظفين والعملاء. تقع أقرب محطات القطار، مثل أ તેનીس (Atarazanas)، على بعد 0.6 كم فقط، وتربط وسط مدينة مالاغا.

Malaga-Costa del Sol (AGP) 9 km
Gibraltar (GIB) 105 km
Atarazanas 0.6 km
Málaga Centro Alameda 1 km

المصدر: OpenStreetMap, Google Maps

Alt text: Historic building with domes, clock tower, and ornate architecture at night.

الطبيعة والمناخ

Alt text: Modern bedroom with city view, featuring a large window and comfortable furnishings.

تتمتع المنطقة بمناخ البحر الأبيض المتوسط ​​، بمتوسط ​​درجة حرارة سنوية تبلغ 19.4 درجة مئوية، مع تباين موسمي معتدل، حيث تصل درجات الحرارة في الشتاء إلى حوالي 12 درجة مئوية ويمكن أن تصل في الصيف إلى 26 درجة مئوية. يعتبر ضوء الشمس الوفير سمة رئيسية للمنطقة، حيث يصل عدد ساعات سطوع الشمس السنوية إلى 3893 ساعة، وهو أعلى بكثير من العديد من المناطق الأخرى في أوروبا. هذا يعني أن معظم أوقات السنة مناسبة للأنشطة الخارجية والاستمتاع بالطقس المشمس. يوفر الموسم الطويل للسباحة لمدة 6 أشهر (درجة حرارة الماء ≥20 درجة مئوية) ظروفًا مثالية للشواطئ والأنشطة المائية. يبلغ ارتفاع المنطقة 22 مترًا فوق مستوى سطح البحر، وهي ذات تضاريس مستوية نسبيًا، مما يسهل الأنشطة الخارجية. على الرغم من أن المشروع نفسه هو مساحة تجارية، إلا أن قربه من الساحل (حوالي 988 مترًا إلى بلايا دي لا مالاجويتا) يسمح له أيضًا بالاستمتاع بنسيم البحر والمناخ الساحلي اللطيف.

3893 ساعات الشمس/سنة
6 موسم السباحة (أشهر)
19.4°C متوسط الحرارة السنوي
22m الارتفاع

المصدر: Open-Meteo (2020–2025 متوسط)

الشواطئ والترفيه

يقع هذا المحل التجاري بالقرب من العديد من الشواطئ، بما في ذلك بلايا دي لا مالاجويتا الشهيرة (على بعد حوالي 988 مترًا)، بالإضافة إلى بلايا دي سان أندريس (2.4 كم) وبلايا دي لوس بانوس ديل كارمن (3.3 كم). تعد هذه الشواطئ مثالية للاستمتاع بحمامات الشمس والسباحة والأنشطة الشاطئية. على الرغم من عدم ذكر شهادة العلم الأزرق للشواطئ في البيانات، إلا أن موقعها يضمن سهولة الوصول إليها. بالإضافة إلى ذلك، توجد العديد من ملاعب الجولف في المنطقة، بما في ذلك نادي جولف بارادور مالاغا (Club de Golf Málaga Parador) على بعد حوالي 8.8 كم، مما يوفر خيارات وفيرة لمحبي الجولف. كما توفر المرافق الغنية التي تضم 376 مطعمًا و 66 بنكًا و 155 مقهى خيارات متنوعة للترفيه والاستجمام.

المصدر: OpenStreetMap

Alt text: "A black and green poster with text in Spanish about Machism and Criticism.

الموقع الإقليمي

يقع هذا المحل التجاري في لا كامبانا، مقاطعة مالاغا، وهو موقع ذو أهمية استراتيجية. إنه قريب من الساحل وفي نفس الوقت يقع في بيئة حضرية، مما يوفر سهولة الوصول إلى وسائل النقل والمرافق الكاملة. المسافة إلى وسط مدينة مالاغا والمحاور الرئيسية للنقل (مثل المطار ومحطات القطار) معتدلة، مما يضمن سهولة المعاملات التجارية وسهولة الوصول إلى موارد المنطقة. مقارنة بالمدن الساحلية الشهيرة المجاورة مثل إستي بونا (Estepona) وبنالمادينا (Benalmádena)، تقدم لا كامبانا خيارًا فريدًا يجمع بين وسائل الراحة الحضرية وسهولة الوصول إلى الساحل. توفر المنطقة مجموعة واسعة من المطاعم ومتاجر الخدمات الطبية، مما يضمن جودة حياة عالية.

دليل المنطقة: La Campana

La Campana is a town located in the province of Seville, Spain. It lies 56 kilometres (35 mi) from Seville, the capital of the province. According to the 2020 census (INE), the town had a population of 5,238 inhabitants.

المناخ

الشهر متوسط الحرارة معدل الأمطار
يناير 12.0°C 62 mm
فبراير 12.3°C 64 mm
مارس 14.3°C 53 mm
أبريل 16.3°C 36 mm
مايو 18.5°C 33 mm
يونيو 22.6°C 7 mm
يوليو 26.0°C 1 mm
أغسطس 26.4°C 2 mm
سبتمبر 23.1°C 9 mm
أكتوبر 19.2°C 52 mm
نوفمبر 15.3°C 77 mm
ديسمبر 12.7°C 71 mm

المرافق القريبة

376 restaurant
103 pharmacy
66 bank
155 cafe
28 dentist

الارتفاع والتضاريس

22m الارتفاع

النقل والوصول

9 km Malaga-Costa del Sol (AGP)
105 km Gibraltar (GIB)
382 km Alicante-Elche (ALC)
0.6 km Atarazanas
1 km Málaga Centro Alameda
1.1 km Guadalmedina
0.7 km Estación de Muelle Heredia
1.6 km Estación de Autobuses de Málaga

تفاصيل المشروع

المشروع Commercial Premises in La Campana
المدينة La Campana
المنطقة Costa del Sol
Prijs €895,000
مساحة المعيشة 220 m²
السعر لكل م² €4,068 / m²
موقف سيارات لا
مسبح لا
حديقة لا
حالة البناء for_sale
تاريخ الإنجاز 2025
تاريخ النشر 2026-04-19

Ref: VL371135

المصدر: Wikipedia, Wikidata, INE, Junta de Andalucía

Maiko
Maiko
خبير عقاري

مايكو خبير عقاري متخصص في سوق العقارات الإسباني. بفضل معرفته العميقة بساحل كوستا ديل سول، وكوستا بلانكا، والمناطق الساحلية الشهيرة الأخرى في إسبانيا، يساعد المشترين في العثور على العقار المناسب. يقوم بتحليل العروض بناءً على الموقع والقيمة السوقية وجودة البناء والملاءمة للسكن، ويقدم نصائح صادقة تستند إلى البيانات طوال عملية الشراء بأكملها.

رد خلال 24 ساعة

مهتم؟

اترك بياناتك واحصل على معلومات عن التوفر، والأسعار، والمخططات.

المواصفات الفنية
يقع المحل التجاري بمساحة 220 مترًا مربعًا في مستوى الشارع.
يوجد سوبر ماركت على بعد 126 مترًا، ومستشفى على بعد 113 مترًا، وصيدلية على بعد 128 مترًا.
المسافة إلى مطار مالاغا هي 8.6 كم.
ارتفاع المنطقة 22 مترًا فوق مستوى سطح البحر، ومتوسط درجة الحرارة السنوية 19.4 درجة مئوية.
يقع الشاطئ الأقرب، بلايا دي لا مالاجويتا، على بعد 988 مترًا.

Conversation history

Ask a question to start