Residential Plot in Costabella v Costabella — Pozemok pre rodinný dom
Pozemok pre rodinný dom

Pozemok pre rodinný dom na predaj v Costabella, Málaga

Výnimočná príležitosť získať kvalitný pozemok s rozlohou 340 m² na vyhľadávanej ulici Avenida Andasol v Marbelle. Tento pozemok, vzdialený len 2 minúty chôdze od pláže a blízko všetkej občianskej vybavenosti, ponúka dokonalú kombináciu pohodlia a životného štýlu. Je to skvelá nákupná príležitosť pre developerov, ktorí hľadajú vysoký potenciálny výnos v jednej z najžiadanejších lokalít v Marbelle.

€649,000
192 m²
Obývacia plocha
€649,000
Prijs
0.6 km
Vzdialenosť k moru

Analýza projektu

Kľúčové vlastnosti lokality, domov, fázy projektu a body pozornosti.

Lokalita

Pozemok sa nachádza v Costabella, mestskej oblasti blízko centra Marbelly. Len 600 metrov od pláže, s 13 reštauráciami, 3 školami a 3 lekárňami v okolí, čo zaisťuje ľahký prístup k denným potrebám. Vynikajúca poloha poskytuje pevný základ pre výstavbu vášho vysnívaného domu.

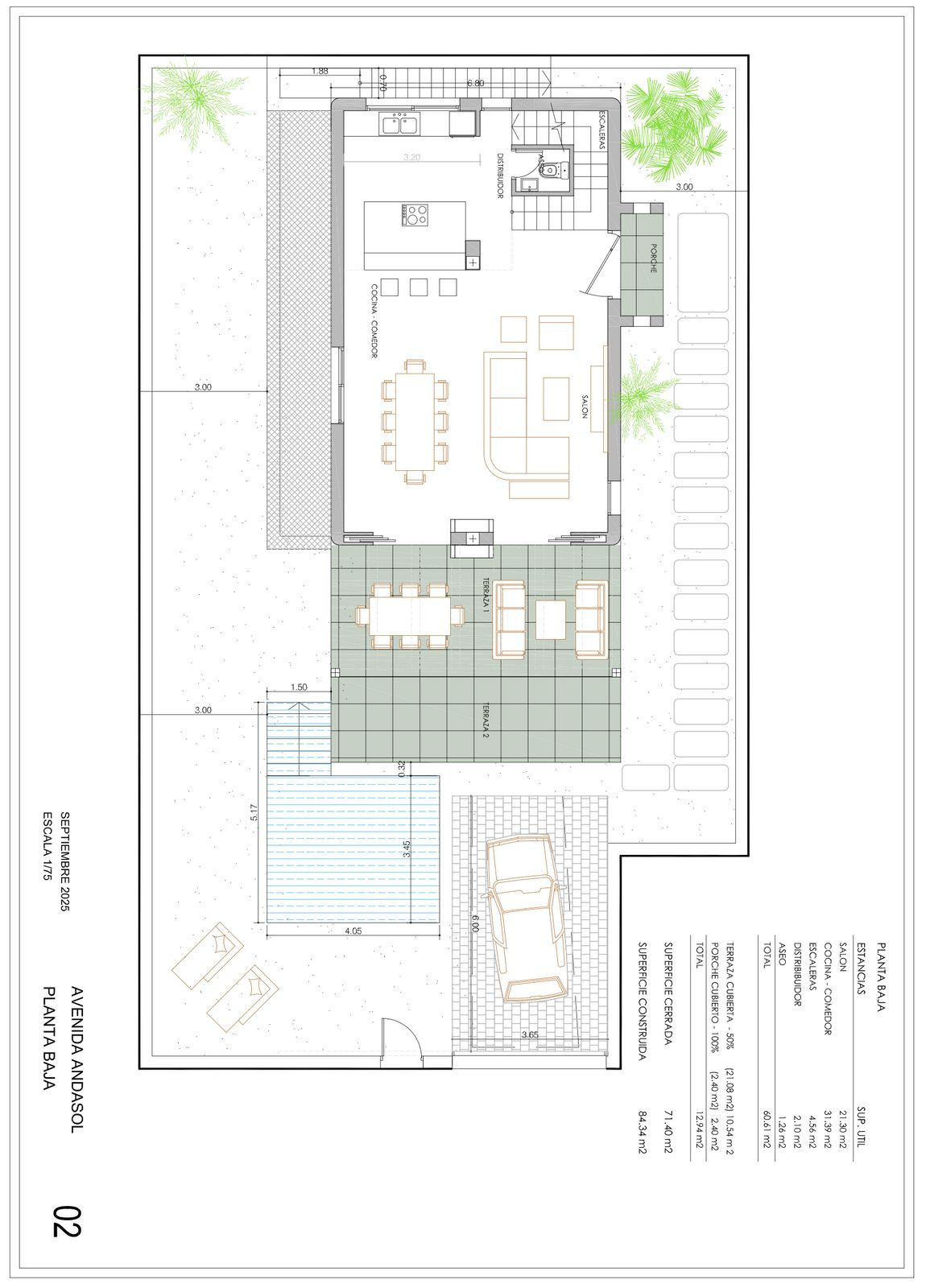
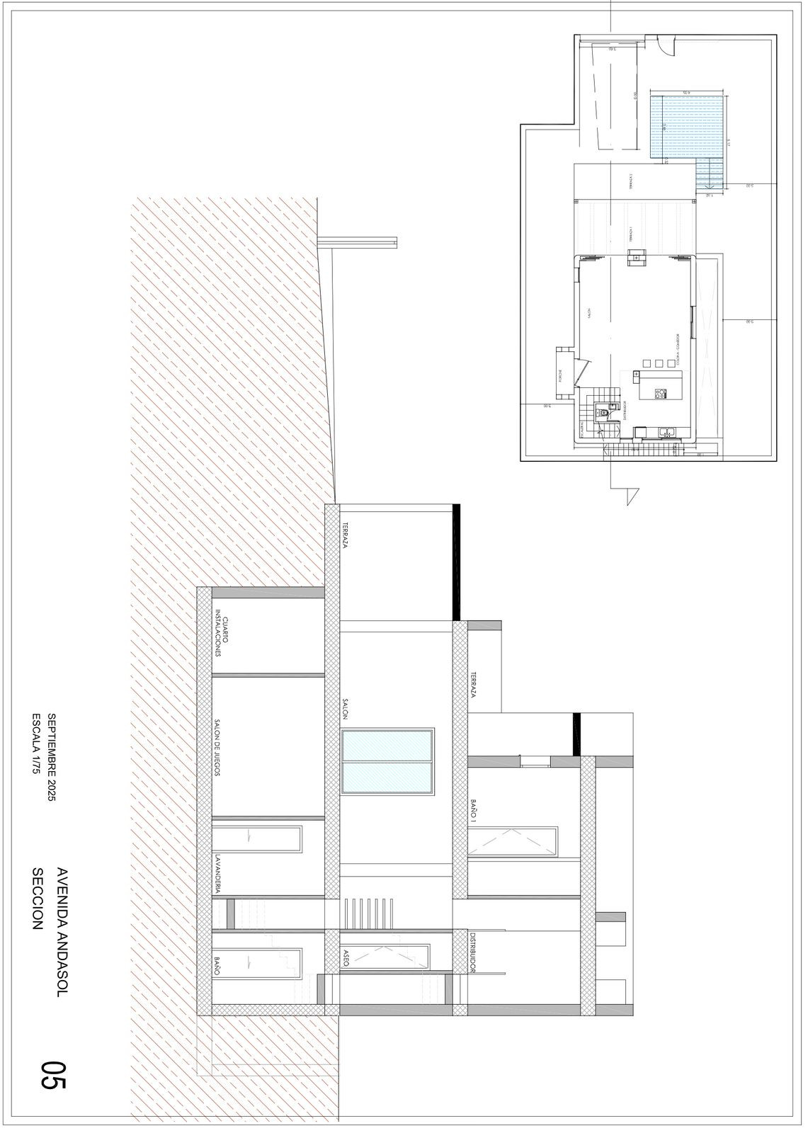
Pôdorys

Tento pozemok je ideálny pre kupujúcich, ktorí chcú postaviť svoj vysnívaný dom podľa svojich osobných preferencií. Či už ide o modernú luxusnú vilu alebo tradičný andalúzsky dom, 340 m² pozemku poskytuje dostatok priestoru na realizáciu širokej škály dizajnových nápadov.

Stav projektu

Pozemok je pripravený na začatie výstavby a projektový plán je hotový na okamžitú realizáciu. Táto výhoda šetrí kupujúcim drahocenný čas a námahu, čo umožňuje rýchly štart stavebného procesu.

Body pozornosti

Táto nehnuteľnosť je pozemok a nezahŕňa žiadnu postavenú budovu. Kupujúci je zodpovedný za vývoj architektonického projektu, získanie stavebných povolení a pokrytie všetkých stavebných nákladov. Pre podrobný odhad nákladov na výstavbu sa prosím obráťte na miestneho architekta.

Štýl života a okolie

Ak hľadáte pozemok, na ktorom si môžete postaviť dom podľa svojich individuálnych predstáv, potom je tento pozemok v Costabella pre vás ideálny. Pre developerov, ktorí chcú investovať do nehnuteľností v populárnej oblasti Marbelly, je to skvelá príležitosť. Vďaka blízkosti pláže, golfových ihrísk a mnohých zariadení je pozemok atraktívny pre kupujúcich hľadajúcich slnečné počasie, plážový oddych a pohodlný životný štýl. Pripravený projektový plán znamená, že môžete rýchlo začať stavať a vytvoriť domov, ktorý spĺňa všetky vaše očakávania.

Kvalita stavby a povrchové úpravy

Ako pozemok, kvalita výstavby a dokončovacie práce zatiaľ nie sú stanovené. Pozemok sa však nachádza v rozvinutej mestskej oblasti s mnohými už postavenými vysokokvalitnými domami. Rozloha 340 m² ponúka možnosť navrhnúť modernú vilu s využitím najnovších stavebných štandardov a dokončovacích materiálov. Potenciálni kupujúci si môžu vybrať vysokokvalitné materiály a inovatívne dizajny podľa svojho rozpočtu a vkusu, aby vytvorili ideálny obytný priestor.

Okolie a štýl života

Cena a dostupnosť

Cena tohto pozemku je 649 000 €. Pozemok má rozlohu 340 m², čo poskytuje dostatok priestoru na vybudovanie vysnívaného domu alebo na investíciu. Pozemok sa nachádza v Costabella, žiadanej oblasti známej svojou vynikajúcou polohou a vybavenosťou. Vzhľadom na atraktivitu oblasti sa pozemok môže čoskoro predať.

€649,000
Prijs
192 m²
Obývacia plocha

Okolie a štýl života

Oblasť Costabella je živá mestská zóna, ktorá spĺňa rôzne životné potreby. Pláž je v pešej dostupnosti, čo umožňuje vychutnať si slnko a morské výhľady. S 13 reštauráciami, 3 školami a 3 lekárňami v okolí sú každodenné potreby na dosah ruky. Oblasť je dobre obsluhovaná 5 autobusovými linkami a 42 autobusovými zastávkami, čo poskytuje ľahký prístup k verejnej doprave. Pozemok sa nachádza v nadmorskej výške 25 metrov, čo prispieva k príjemnej klíme s priemernou ročnou teplotou 19.0°C a hojnosťou slnečného svitu - až 3851 hodín ročne. Komfortná doba na kúpanie trvá 5 mesiacov, kedy teplota vody presahuje 20°C.

Požiadať o informácie

Lokalita a okolie: Costabella

Okolie a dostupnosť

Oblasť Costabella ponúka pohodlný a aktívny životný štýl. Len 600 metrov od pláže si môžete ľahko užívať život pri mori. Supermarket je vzdialený 408 metrov a nemocnica 2.1 km, čo zabezpečuje všetko potrebné pre každodenný život. 13 reštaurácií a 3 kaviarne uspokoja vaše stravovacie potreby. Oblasť má 5 autobusových liniek a 42 autobusových zastávok, čo robí verejnú dopravu veľmi pohodlnou. Letisko Malaga (Malaga-Costa del Sol) je vzdialené približne 33 km, čo uľahčuje vaše cestovanie.

Mapa a lokalita

Pozemok sa nachádza v oblasti Costabella v Marbelle, s výhodnou geografickou polohou. Mapa jasne ukazuje výhody jeho blízkosti k pláži (El Alicate, 0.6 km), supermarketu (0.4 km) a školám (0.7 km), ako aj ľahkosť dopravného spojenia s letiskom Malaga (33 km).

Spacious room with ocean view, balcony, modern amenities, and cityscape.

Poloha v regióne

Pozemok sa nachádza v regióne Costa del Sol na juhu Španielska, v meste Marbella. Marbella je známa svojím krásnym pobrežím, golfovými ihriskami a aktívnym životným štýlom. Costabella je vyspelá a pohodlná oblasť na pobreží Marbelly, ktorá ponúka mestské vybavenie a výhodu blízkosti pláže. Oblasť je dobre dopravne dostupná a nachádza sa neďaleko letiska Malaga (33 km), čo z nej robí ideálnu voľbu pre tých, ktorí hľadajú slnečné a plážové útočisko.

Dostupnosť a zariadenia

Pozemok je vzdialený len 557 metrov od pláže El Alicate, čo uľahčuje užívanie si času na pláži. Okrem toho sú pláže Playa de Artola (3.2 km) a Playa de Cabopino (5.9 km) tiež blízko. Pre golfových nadšencov sú golfové ihriská ako Greenlife Golf Marbella (2.4 km) a Santa María Golf & Country Club (3.3 km) ľahko dostupné. Letisko Malaga-Costa del Sol (Malaga-Costa del Sol) je vzdialené približne 33 km, čo poskytuje pohodlie pre medzinárodné cestovanie. Supermarket (408 m), nemocnica (2.1 km) a lekáreň (546 m) sú v pešej dostupnosti. Pokiaľ ide o verejnú dopravu, existuje 5 autobusových liniek a 42 zastávok.

Vzdialenosť k moru 0.6 km
Malaga-Costa del Sol (AGP) 34 km
Gibraltar (GIB) 62 km

Zdroj: OpenStreetMap, Google Maps

Oceanfront room with balcony, city and mountain views, modern amenities.

Príroda a podnebie

Ocean view room with balcony, modern amenities, and cityscape.

Costabella sa pýši stredomorskou klímou s priemernou ročnou teplotou 19.0°C, teplými letami a miernymi zimami, pričom ročný počet slnečných hodín dosahuje 3 851. Existuje 5 mesiacov komfortnej sezóny na kúpanie, kedy teplota vody presahuje 20°C. Pozemok sa nachádza v nadmorskej výške 25 metrov, terén je rovný a sklon k pláži je iba 4.2%, čo ho robí veľmi vhodným na bývanie. Každoročne sa koná približne 32 miestnych festivalov, ktoré obohacujú miestny kultúrny zážitok.

3851 Hodiny slnka/rok
5 Kúpacia sezóna (mesiace)
19.0°C Priem. ročná teplota
25m Nadmorská výška

Zdroj: Open-Meteo (2020–2025 priemer)

Pláže a voľný čas

Oblasť ponúka niekoľko pláží, vrátane pláže El Alicate, ktorá je vzdialená len 557 metrov. Pláže Playa de Artola (3.2 km) a Playa de Cabopino (5.9 km) ponúkajú ďalšie možnosti na pobrežný oddych. Golfoví nadšenci si môžu vychutnať svetové ihriská ako Greenlife Golf Marbella (2.4 km) a Santa María Golf & Country Club (3.3 km). Tenisové centrum Don Carlos (3.1 km) ponúka možnosti pre športový a rekreačný oddych. Okrem toho sú v blízkosti aj Mariny Marbella a Puerto Banús.

Pláže

  • El Alicate 0.6 km
  • Playa de Artola 3.2 km

Golf

  • Greenlife Golf Marbella 2.4 km
  • Greenlife Golf Driving Range 2.4 km
  • Santa María Golf & Country Club 3.3 km
  • Cabopino golf 5.7 km

Zdroj: OpenStreetMap

Spacious living room with panoramic city and sea views, modern furnishings, large windows.

Poloha v regióne

Pozemok sa nachádza v regióne Costa del Sol na juhu Španielska, v meste Marbella. Marbella je známa svojím krásnym pobrežím, golfovými ihriskami a aktívnym životným štýlom. Costabella je vyspelá a pohodlná oblasť na pobreží Marbelly, ktorá ponúka mestské vybavenie a výhodu blízkosti pláže. Oblasť je dobre dopravne dostupná a nachádza sa neďaleko letiska Malaga (33 km), čo z nej robí ideálnu voľbu pre tých, ktorí hľadajú slnečné a plážové útočisko.

Sprievodca oblastí: Costabella

Základné informácie

Podnebie

Mesiac Priem. teplota Zrážky
Január 11.8°C 94 mm
Február 12.0°C 97 mm
Marec 14.1°C 85 mm
Apríl 15.9°C 56 mm
Máj 17.8°C 43 mm
Jún 22.0°C 11 mm
Júl 25.9°C 1 mm
August 26.4°C 2 mm
September 22.7°C 19 mm
Október 18.9°C 80 mm
November 15.0°C 116 mm
December 12.4°C 104 mm

Vybavenosť v okolí

13 restaurant
3 school
3 pharmacy
3 cafe

Nadmorská výška a Terén

25m Nadmorská výška
0.6 km Vzdialenosť k moru
4.2% Sklon k pláži

Mierny

V okolí

Prístavy

Medzinárodné školy

Golfové ihriská

Pláže

Športové centrá

Doprava

34 km Malaga-Costa del Sol (AGP)
62 km Gibraltar (GIB)
424 km Alicante-Elche (ALC)

Podrobnosti projektu

Projekt Residential Plot in Costabella
Mesto Costabella
Región Costa del Sol
Prijs €649,000
Obývacia plocha 192 m²
Cena za m² €3,380 / m²
Parkovanie Nie
Bazén Nie
Záhrada Nie
Stav výstavby for_sale
Vzdialenosť k moru 0.6 km
Dokončenie 1970
Publikované 2026-04-20

Ref: VL325373

Zdroj: Wikipedia, Wikidata, INE, Junta de Andalucía

Zhrnutie

  • 340 m² pozemok pre rodinný dom v prestížnej lokalite Costabella, Marbella.
  • Len 557 metrov od pláže El Alicate, v pešej dostupnosti.
  • Plná vybavenosť v okolí vrátane supermarketov, reštaurácií, škôl a nemocníc.
  • Projektový plán je pripravený na okamžité zahájenie výstavby.
  • Cena je 649 000 €, vhodná pre investorov aj koncových kupujúcich.

Regionálne porovnanie

V porovnaní s Acqua Gardens v Estepone (od 418 800 €) a Aby Upper (od 320 000 €), cena 649 000 € za tento pozemok odráža jeho polohu v rozvinutejšej oblasti bližšie k centru Marbelly. Alba Benalmádena v Benalmádena (od 699 000 €) má podobnú cenu, ale nachádza sa v inej oblasti. Výhodou pozemku v Costabella je jeho vynikajúca poloha, blízkosť pláže a vybavenosti Marbelly, ako aj pripravený projektový plán. Kým projekty v Estepone ponúkajú nižšie ceny, pozemok v Costabella poskytuje priamy prístup na vyhľadávaný trh Marbelly, čo môže byť atraktívnejšie pre kupujúcich hľadajúcich vysokú hodnotu a pohodlie života. Tento pozemok ponúka flexibilitu pri výstavbe prispôsobeného domu, zatiaľ čo spomenuté susedné projekty ponúkajú už postavené apartmány, uspokojujúce rôzne potreby trhu.

Časté otázky

Zahŕňa tento pozemok architektonický projekt alebo stavebný plán?
Projektový plán je pripravený na začatie, ale konkrétny architektonický projekt a stavebný plán musia byť stanovené podľa potrieb kupujúceho.
Aká je vzdialenosť pozemku k najbližšej pláži?
Pozemok je vzdialený 557 metrov od pláže El Alicate.
Aká je veľkosť pozemku?
Rozloha pozemku je 340 m².
Pre aké typy kupujúcich je tento pozemok vhodný?
Je vhodný pre individuálnych kupujúcich, ktorí chcú postaviť dom na mieru, ako aj pre developerov, ktorí majú záujem o investovanie do nehnuteľností v oblasti Marbelly.
Aké vybavenie sa nachádza v okolí?
V okruhu 2 km sa nachádza 13 reštaurácií, 3 školy, 3 lekárne a 3 kaviarne.
Aká je celková cena za kúpu tohto pozemku?
Cena pozemku je 649 000 €. Náklady na výstavbu nie sú zahrnuté a budú závisieť od zvoleného projektu.
Aký je proces kúpy?
Proces kúpy zodpovedá štandardným postupom pri prevodoch nehnuteľností v Španielsku, vrátane podpisu rezervačnej zmluvy, zaplatenia zálohy, vykonania náležitej starostlivosti a podpisu konečnej kúpnej zmluvy.
Je doprava na letisko Malaga pohodlná?
Áno, pozemok je vzdialený približne 33 km od letiska Malaga-Costa del Sol, čo poskytuje pohodlné spojenie.
Maiko
Maiko
Expert na realitný trh

Maiko je odborník na španielsky trh s nehnuteľnosťami. Vďaka hlbokým znalostiam Costa del Sol, Costa Blanca a ďalších populárnych pobrežných regiónov pomáha kupujúcim nájsť tú správnu nehnuteľnosť. Analyzuje ponuky na základe polohy, trhovej hodnoty, kvality výstavby a obývateľnosti, pričom poskytuje čestné rady založené na dátach počas celého nákupného procesu.

Odpoveď do 24 hodín

Máte záujem?

Nechajte svoje údaje a získajte informácie o dostupnosti, cenách a pôdorysoch.

Technické údaje
Rozloha pozemku je 340 m².
Vzdialenosť k pláži El Alicate je 557 metrov.
Vzdialenosť k supermarketu je 408 metrov.
Vzdialenosť k letisku Malaga-Costa del Sol je 33 km.

Conversation history

Ask a question to start