Residential Plot in Selwo في Selwo — قطعة أرض سكنية
قطعة أرض سكنية

قطعة أرض سكنية للبيع في سيلفو، مالاغا

يقع هذا المشروع في سيلفو، مالاغا، ويقدم قطعة أرض سكنية بمساحة 1128 متر مربع بسعر 610,000 يورو. تم تصميم الأرض لبناء فيلا فاخرة بمساحة 575 متر مربع، مع تصريح بناء ساري المفعول. تتمتع الأرض بإطلالات على البحر والجبل وملعب الجولف، وتواجه الجنوب الشرقي، وتقع داخل منطقة حضرية. يمثل هذا المشروع فرصة ممتازة للمشترين الذين يتطلعون إلى بناء منزل مخصص في منطقة مرغوبة أو للمطورين.

€610,000
575 m²
مساحة المعيشة
€610,000
Prijs

تحليل المشروع

أهم خصائص الموقع، والوحدات، ومراحل المشروع، ونقاط الاهتمام.

الموقع

تقع الأرض داخل منطقة حضرية، بالقرب من الساحل، مع سهولة الوصول إلى الشواطئ ووسائل الراحة اليومية. توفر إطلالات على البحر والجبل وملعب الجولف، مما يخلق بيئة معيشية هادئة ومريحة.

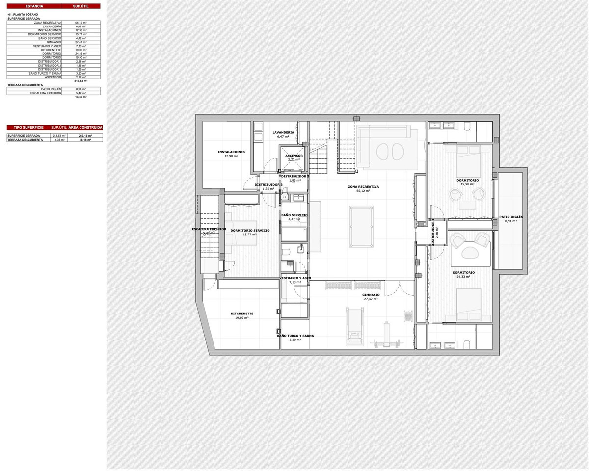
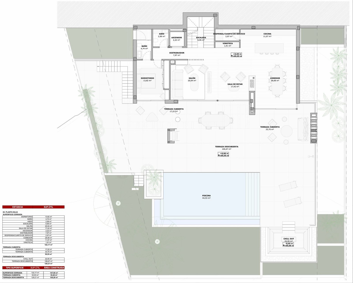
المخططات

هذه القطعة مثالية للمشترين الذين يتطلعون إلى بناء فيلا فاخرة مخصصة. تتيح مساحة البناء المسموح بها البالغة 575 مترًا مربعًا بالإضافة إلى 240 مترًا مربعًا من مساحات التراس، حرية تصميم كافية لتلبية متطلبات الحياة الحديثة.

حالة المشروع

تمت الموافقة على الأرض ولديها مشروع تنفيذي جاهز، مما يسمح بالبدء فورًا في بناء فيلا فاخرة بمساحة 575 مترًا مربعًا. تبلغ كثافة البناء 0.25، ونسبة الإشغال 30%، مع حد أقصى للطوابق يشمل الطابق الأرضي والطابق الأول (7 أمتار).

نقاط هامة

لا توفر الأرض مسكنًا جاهزًا للسكن. بالإضافة إلى ذلك، في حين أن وسائل الراحة القريبة متاحة، فإن الوصول إلى بعض خيارات الترفيه والتسوق قد يتطلب قيادة لمسافة تزيد عن 10 دقائق. لا يشمل المشروع الأثاث أو التشطيبات.

تفاصيل المشروع

المشروع Residential Plot in Selwo
المدينة Selwo
المنطقة Costa del Sol
Prijs €610,000
مساحة المعيشة 575 m²
السعر لكل م² €1,060 / m²
موقف سيارات لا
مسبح لا
حديقة لا
حالة البناء for_sale
تاريخ الإنجاز 1970
تاريخ النشر 2026-04-24

Ref: VL812665

المصدر: Wikipedia, Wikidata, INE, Junta de Andalucía

نمط الحياة

هذه القطعة مناسبة لأولئك الذين يتطلعون إلى بناء منزل مخصص بين ماربيا وإستيبونا. سواء كنت تبحث عن نمط حياة متوسطي مشمس أو فرصة استثمارية، فإن هذه الأرض توفر أساسًا مثاليًا. يجعلها اتجاهها الجنوبي الشرقي وإطلالاتها البانورامية مثالية للاستمتاع بالأنشطة الخارجية والمناظر الخلابة. يعني مشروع البناء المعتمد أنه يمكن البدء في البناء بسرعة، مما يوفر الراحة لأولئك الذين يأملون في الانتقال في المستقبل القريب.

الجودة والتشطيبات

في حين أن تصميم وبناء المشروع المحدد لا يزالان قيد التخطيط، فإن مشروع التنفيذ المقترح يتصور فيلا فاخرة بمساحة 575 مترًا مربعًا مع 240 مترًا مربعًا من التراسات. يؤكد المشروع على المساحات المفتوحة، والأسقف العالية، والنوافذ الكبيرة لزيادة الإضاءة الطبيعية. تهدف غرفة المعيشة الحديثة المتخيلة، والحمامات الفاخرة، والتفاصيل عالية الجودة إلى خلق أجواء مريحة وراقية، تعكس نجاح المالك وذوقه.

البيئة ونمط الحياة

السعر والتوفر

يقدم هذا المشروع قطعة أرض سكنية بسعر 610,000 يورو. تبلغ مساحة الأرض 1128 مترًا مربعًا، وتسمح ببناء فيلا بمساحة 575 مترًا مربعًا (مبنية) بالإضافة إلى 240 مترًا مربعًا من التراسات. تبلغ كثافة البناء 0.25 ونسبة الإشغال 30%. تتوفر حاليًا 3 قطع أراضٍ، مما يوفر للمشترين فرصة لبناء منزل أحلامهم في منطقة مرغوبة.

€610,000
Prijs
575 m²
مساحة المعيشة

البيئة المحيطة

تقدم سيلفو أسلوب حياة يجمع بين الهدوء والراحة. على الرغم من كونها منطقة حضرية، إلا أنها توفر وصولاً سهلاً إلى الشواطئ (3.0 كم) وملاعب الجولف (1.7 كم). تقع الاحتياجات اليومية مثل محلات السوبر ماركت (2.9 كم) والمستشفيات (1.1 كم) ضمن مسافة 2 كم. تفتخر المنطقة بـ 3848 ساعة من أشعة الشمس سنويًا وموسم سباحة لمدة 5 أشهر، مما يجعلها مثالية للاستمتاع بالمناخ المتوسطي.

طلب معلومات

الموقع والبيئة: Selwo

البيئة والوصول

سيلفو هي منطقة نابضة بالحياة تقع بين ماربيا وإستيبونا. تقع الأرض في منطقة حضرية، وتوفر بيئة هادئة مع سهولة الوصول إلى المرافق المحيطة. تقع الشواطئ على بعد 3.0 كم، ومحلات السوبر ماركت على بعد 2.9 كم، والمستشفيات على بعد 1.1 كم، مما يوفر سهولة الوصول. تقدم المنطقة مجموعة واسعة من خيارات الترفيه، بما في ذلك العديد من ملاعب الجولف، وأقربها على بعد 1.7 كم. تتميز المنطقة بساعات شمس وفيرة ومناخ معتدل، مما يجعلها مثالية للأنشطة الخارجية.

الخريطة والموقع

تقع الأرض في منطقة متميزة على ساحل الأندلس، إسبانيا، بالقرب من الوجهات الشهيرة مثل إستيبونا وماربيا. يوفر موقعها المتميز سهولة الوصول إلى المرافق الرياضية المحلية والشواطئ والمناطق الطبيعية الخلابة.

Cozy room with ocean view, featuring a balcony, comfortable seating, and a private beach access.

الموقع الإقليمي

تقع الأرض في سيلفو، مالاغا، في منطقة كوستا ديل سول المزدهرة. موقعها الاستراتيجي بين ماربيا وإستيبونا يتيح سهولة الوصول إلى المدن والمعالم السياحية الرئيسية في المنطقة. تشتهر المنطقة بجودة حياتها العالية وملاعب الجولف والشواطئ.

المرافق والوصول

تقع الأرض على بعد حوالي 41 كم من مطار مالاغا (AGP) وحوالي 42 كم من مطار جبل طارق (GIB). في حين أن هناك 6 خطوط نقل عام و 21 محطة حافلات في المنطقة، فإن امتلاك سيارة سيسهل التنقل بشكل كبير. تقع محلات السوبر ماركت في حدود 2.9 كم، والصيدليات في حدود 2.3 كم، والمستشفيات في حدود 1.1 كم. أقرب شاطئ (Playa de Guadalmansa) يبعد 3.0 كم. يمكن لعشاق الجولف الاستمتاع بلعب الجولف في Club de Golf El Coto de la Serena على بعد 1.7 كم.

Gibraltar (GIB) 42 km
Malaga-Costa del Sol (AGP) 57 km

المصدر: OpenStreetMap, Google Maps

Narrow alley with white walls, potted plants, wooden bench, and blue sky.

الطبيعة والمناخ

Aerial view of a coastal city with a mix of urban and green areas.

تتمتع منطقة سيلفو بمناخ البحر الأبيض المتوسط، بمتوسط درجة حرارة سنوية 18.8 درجة مئوية، وتتراوح درجات الحرارة بين 12 درجة مئوية و 27 درجة مئوية. يصل عدد ساعات الشمس السنوية إلى 3848 ساعة، ويستمر موسم السباحة لمدة 5 أشهر (درجة حرارة الماء ≥20 درجة مئوية). يوفر ارتفاع 80 مترًا فوق مستوى سطح البحر ظروفًا ممتازة لمناظر البحر والجبل، محاطًا بمناظر طبيعية خلابة.

3848 ساعات الشمس/سنة
5 موسم السباحة (أشهر)
18.8°C متوسط الحرارة السنوي
80m الارتفاع

المصدر: Open-Meteo (2020–2025 متوسط)

الشواطئ والترفيه

تقع المنطقة بالقرب من العديد من الشواطئ، بما في ذلك بلايا دي غوادالمانسا على بعد 3.0 كم. بالنسبة لعشاق الجولف، يقع نادي جولف إل كوتو دي لا سيرينا على بعد 1.7 كم فقط، ونادي فلا مينغوس جولف على بعد 2.9 كم. بالإضافة إلى ذلك، تقدم المنطقة مجموعة متنوعة من خيارات الرياضة والترفيه، مثل بينتبولت إستيپونا على بعد 3.2 كم ونادي فيلا باديرنا للتنس على بعد 3.4 كم.

شواطئ

  • Playa de Guadalmansa 3 km
  • Playa del Padron 3.3 km
  • Playa del Sol Villacana 3.5 km
  • Playa del Saladillo 3.9 km
  • Playa de Punta Plata 4.6 km

Golf

  • Club de Golf El Coto de la Serena 1.7 km
  • Flamingos Golf 2.9 km
  • Tramores Golf 4 km
  • El Paraiso Golf Clubhouse 4.8 km

المصدر: OpenStreetMap

Aerial view of a coastal resort with a marina, pool, and sea view.

الموقع الإقليمي

تقع الأرض في سيلفو، مالاغا، في منطقة كوستا ديل سول المزدهرة. موقعها الاستراتيجي بين ماربيا وإستيبونا يتيح سهولة الوصول إلى المدن والمعالم السياحية الرئيسية في المنطقة. تشتهر المنطقة بجودة حياتها العالية وملاعب الجولف والشواطئ.

دليل المنطقة: Selwo

حقائق أساسية

المناخ

الشهر متوسط الحرارة معدل الأمطار
يناير 12.2°C 96 mm
فبراير 12.5°C 99 mm
مارس 14.6°C 89 mm
أبريل 16.4°C 60 mm
مايو 18.5°C 47 mm
يونيو 22.8°C 12 mm
يوليو 26.8°C 1 mm
أغسطس 27.3°C 2 mm
سبتمبر 23.5°C 20 mm
أكتوبر 19.5°C 82 mm
نوفمبر 15.5°C 119 mm
ديسمبر 12.8°C 106 mm

المرافق القريبة

1 restaurant
1 pharmacy

الارتفاع والتضاريس

80m الارتفاع

معالم قريبة

مراكز رياضية

ملاعب الغولف

موانئ ترفيهية

Ev Charging

شواطئ

مسابح

مدارس دولية

النقل والوصول

42 km Gibraltar (GIB)
57 km Malaga-Costa del Sol (AGP)
448 km Alicante-Elche (ALC)

ملخص

  • قطعة أرض سكنية بمساحة 1128 متر مربع بسعر 610,000 يورو
  • تصريح لبناء فيلا فاخرة بمساحة 575 متر مربع (بالإضافة إلى 240 متر مربع تراسات)
  • إطلالات على البحر والجبل وملعب الجولف، مواجهة للجنوب الشرقي
  • تقع في منطقة حضرية، بالقرب من ملاعب الجولف والشواطئ
  • قريبة من إستيبونا وماربيا، سهولة الوصول إلى المرافق

مقارنة إقليمية

مقارنة بـ Acqua Gardens (بدءًا من 418,800 يورو) و Aby Upper (بدءًا من 320,000 يورو) في الجوار، يعكس تسعير هذه القطعة حجمها وإمكانية البناء المعتمدة. في حين أن Alba Benalmadena (بدءًا من 699,000 يورو) لها سعر أعلى، إلا أن موقعها وعروضها قد تختلف. يقدم هذا المشروع فرصة لبناء فيلا فاخرة مخصصة في موقع مرغوب على ساحل الأندلس، بسعر معقول للمشترين ذوي خطط البناء المحددة. تشتهر المنطقة بملاعب الجولف والشواطئ والمرافق، مما يجعلها خيارًا جذابًا لأولئك الذين يبحثون عن أسلوب حياة متوسطي.

الأسئلة الشائعة

هل الأرض جاهزة للسكن الفوري؟
الأرض مخصصة للبناء ولا توفر مسكنًا جاهزًا. سيحتاج المشتري إلى البناء وفقًا لمشروع التنفيذ المعتمد.
هل الوصول إلى المرافق المحلية سهل؟
أقرب سوبر ماركت على بعد 2.9 كم، وصيدلية على بعد 2.3 كم، ومستشفى على بعد 1.1 كم. في حين أن وسائل النقل العام متاحة، فإن امتلاك سيارة سيسهل التنقل.
ما هي قيود البناء على هذه الأرض؟
تبلغ كثافة البناء 0.25 ونسبة الإشغال 30%. يُسمح ببناء طابق أرضي وطابق إضافي واحد (بارتفاع يصل إلى 7 أمتار).
ما هي ملاعب الجولف المتوفرة في المنطقة؟
توجد عدة ملاعب جولف في المنطقة، بما في ذلك Club de Golf El Coto de la Serena على بعد 1.7 كم، و Flamingos Golf على بعد 2.9 كم، و Tramores Golf على بعد 4.0 كم.
ما هي المسافة إلى الشواطئ؟
أقرب شاطئ، Playa de Guadalmansa، يبعد حوالي 3.0 كم عن الأرض.
ما هي التكاليف الإضافية التي يجب مراعاتها بخلاف سعر شراء الأرض؟
يجب على المشترين مراعاة تكاليف البناء، والضرائب المتعلقة بالبناء، وتكاليف توصيل الخدمات (المياه والكهرباء)، ورسوم إدارة الممتلكات المحتملة.
ما هي عملية شراء هذه الأرض؟
تتضمن عملية الشراء عادةً تقديم عرض، وتوقيع اتفاقية حجز، ودفع وديعة، وإجراء فحص قانوني، وأخيرًا توقيع عقد البيع النهائي مع السداد الكامل.
ما هي المسافة إلى المدن الرئيسية مثل ماربيا وإستيبونا؟
تقع الأرض بين ماربيا وإستيبونا، ويمكن الوصول إلى كلتا المدينتين في حوالي 10 دقائق بالسيارة.
Omar Al-Nasser
Omar Al-Nasser
خبير عقاري

عمر الناصر يفهم بعمق احتياجات العملاء الناطقين بالعربية، ويرشدهم بثقة في سوق العقارات الإسباني. هو يضمن عملية شراء سلسة ومحترمة ثقافيًا.

AI-assisted multilingual representative. Your inquiry is handled by our real support team.

رد خلال 24 ساعة

مهتم؟

اترك بياناتك واحصل على معلومات عن التوفر، والأسعار، والمخططات.

المواصفات الفنية
كثافة البناء: 0.25
نسبة الإشغال: 30%
الحد الأقصى للطوابق المسموح بها: الطابق الأرضي + 1 (بارتفاع 7 أمتار)

Conversation history

Ask a question to start