تم بيع هذا العقار عرض عقارات مشابهة في Los Boliches
6 Bed Top Floor Apartment in Los Boliches في Los Boliches — شقة
شقة

شقة للبيع في لوس بوليتشيس

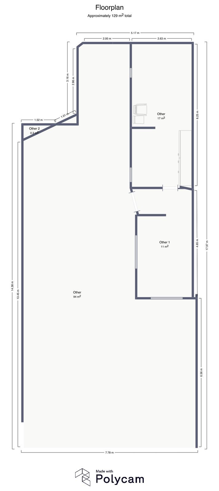
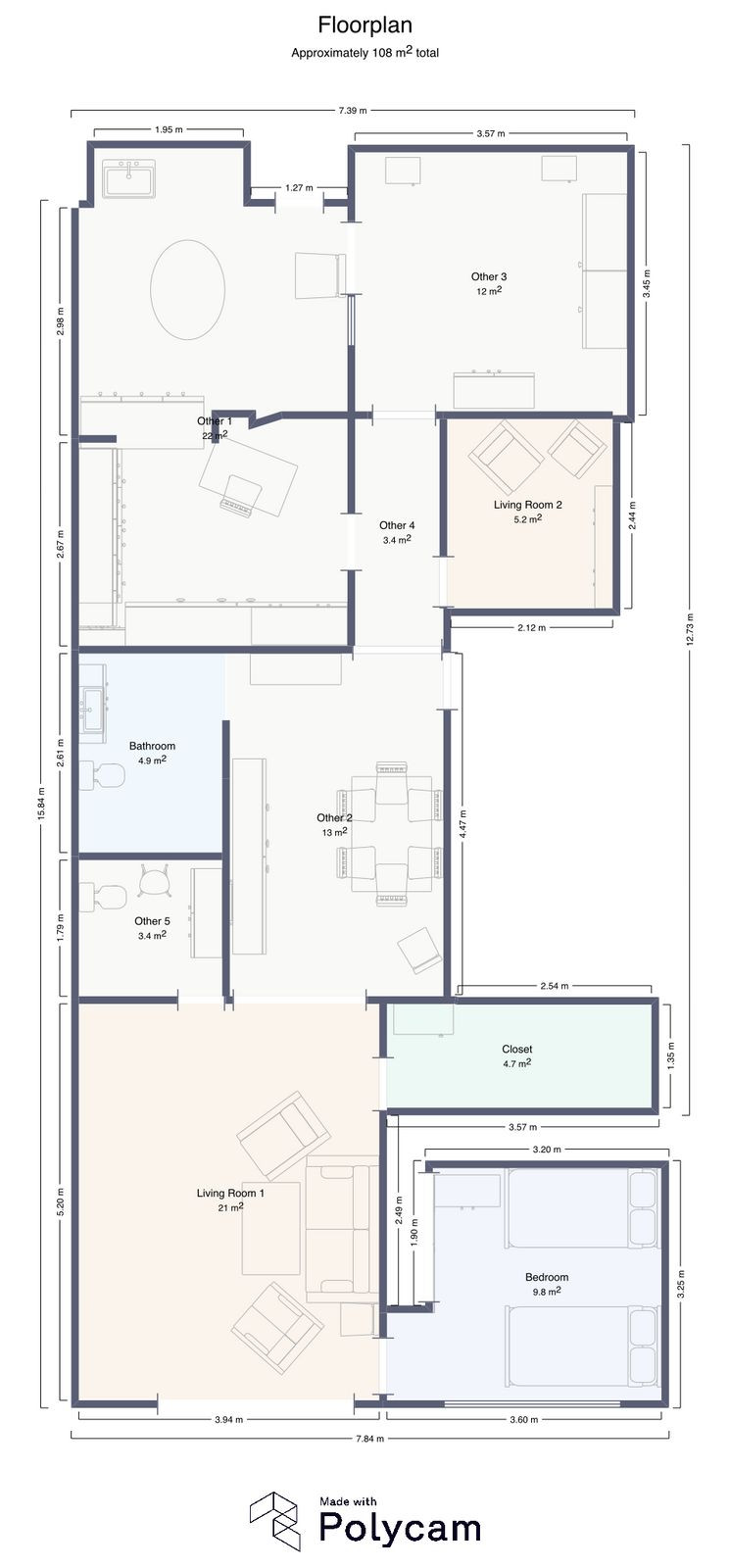
يقع هذا المبنى في قلب لوس بوليتشيس، على بعد 60 مترًا فقط من البحر ومحاط بجميع الخدمات الضرورية. ينقسم العقار حاليًا إلى وحدتين سكنيتين منفصلتين، تبلغ مساحة كل منهما حوالي 117 مترًا مربعًا. بالإضافة إلى ذلك، توجد شرفة مع إطلالة يمكن بناء شقة أخرى عليها لزيادة السعة الاستيعابية. يحتاج المبنى إلى التجديد، مما يمنحك الفرصة لتخصيصه وفقًا لرغباتك وتحويله إلى منزل أحلامك أو استثمار مربح. إمكانية تركيب مصعد من الطابق الأول تضيف قيمة كبيرة للمبنى.

يبدأ من €660,000 مباع
هذا العقار لم يعد متاحاً
6
غرف النوم
3
الحمامات
216 m²
مساحة المعيشة
يبدأ من €660,000 مباع
السعر المبدئي
جاهز للتسليم
حالة البناء

تحليل المشروع

أهم خصائص الموقع، والوحدات، ومراحل المشروع، ونقاط الاهتمام.

الموقع

يقع المبنى في المركز النابض بالحياة في لوس بوليتشيس، مباشرة على الواجهة البحرية ومحاط بجميع الضروريات اليومية. تشتهر المنطقة بسهولة الوصول إليها، حيث تقع وسائل الراحة والترفيه على بعد مسافة قصيرة سيرًا على الأقدام، مما يوفر تجربة حياة ساحلية حضرية.

المخططات

هذا العقار مناسب لأولئك الذين يتطلعون إلى توسيع مساحة السكن العائلي في بيئة حضرية مريحة أو يبحثون عن فرصة استثمارية ذات إمكانات تجديد. تتيح إمكانية إضافة وحدة سكنية إضافية إلى الهيكل الحالي، جنبًا إلى جنب مع الحاجة إلى مساحة قابلة للتخصيص، جعله مثاليًا للمشترين الذين يرغبون في تخصيص منازلهم أو الحصول على عقار ذي عائد مرتفع.

حالة المشروع

تم الانتهاء من المبنى، وحالته الحالية تتطلب التجديد. يوفر هذا للمشترين لوحة فارغة للتخصيص وفقًا لرؤيتهم. اعتبار هام للمبنى هو إمكانية تركيب مصعد من الطابق الأول، مما سيعزز جاذبيته ووظيفته بشكل أكبر.

نقاط هامة

تتطلب حالة هذا العقار تجديدًا شاملاً، والذي قد ينطوي على استثمار كبير في الوقت والمال. في حين أن هناك إمكانية لزيادة مساحة السكن الإضافية، فإن الهيكل الحالي يتطلب تخطيطًا دقيقًا وربما تصاريح لتحقيقه. لا يشمل العقار حاليًا أي وسائل راحة حديثة ويتطلب تحديثات كبيرة لجميع الأنظمة.

تفاصيل المشروع

المشروع 6 Bed Top Floor Apartment in Los Boliches
المدينة Los Boliches
المنطقة Costa del Sol
السعر المبدئي €660,000 مباع
مساحة المعيشة 216 m²
السعر لكل م² €3,055 / m²
التراس 129 m²
غرف النوم 6
الحمامات 3
موقف سيارات لا
مسبح لا
حديقة لا
حالة البناء key_ready
تاريخ الإنجاز 1970
ضريبة الأبنية/سنوياً €306
تاريخ النشر 2026-04-20

Ref: VL716843

المصدر: Wikipedia, Wikidata, INE, Junta de Andalucía

نمط الحياة

هذا العقار هو الأنسب للمشترين الذين يبحثون عن مساحة كبيرة في بيئة حضرية ساحلية نابضة بالحياة ومستعدون للاستثمار في التجديد. قد يجذب أيضًا المستثمرين الذين يرون إمكانية تحويل المبنى إلى وحدات سكنية متعددة أو عقار للإيجار السياحي. إنه خيار مثالي للأفراد الذين يرغبون في إنشاء منزل أحلامهم وفقًا لتفضيلاتهم أو الذين يبحثون عن عقار ذي إمكانات نمو كبيرة في القيمة.

الجودة والتشطيبات

يتطلب المبنى حاليًا تجديدًا شاملاً، مما يعني أن التشطيبات الحالية في حالة سيئة. ومع ذلك، نظرًا لأن العقار تبلغ مساحته 216 مترًا مربعًا وينقسم إلى وحدتين سكنيتين منفصلتين، فإن مستوى التشطيب النهائي بعد التجديد سيعتمد كليًا على اختيار المالك. يمكن للمشترين المحتملين اعتبار ذلك فرصة لترقية التشطيبات والتركيبات والأجهزة وفقًا لأحدث معايير البناء والأذواق الشخصية. يشير مخطط تركيب مصعد من الطابق الأول أيضًا إلى نية تحسين الجودة والوظائف العامة.

البيئة ونمط الحياة

السعر والتوفر

يبلغ سعر هذا العقار 660,000 يورو، وهو يمثل مبنى متعدد الوحدات يقع في قلب لوس بوليتشيس. بالنظر إلى مساحته البالغة 216 مترًا مربعًا وحاجته إلى التجديد، يعكس سعره موقعه المتميز وقيمته الإنمائية المحتملة. بفضل متطلباته للتجديد، فإنه يوفر للمستثمرين مرونة في تخصيص المساحة لتلبية متطلبات السوق. العقار متاح حاليًا للبيع.

€660,000 مباع
السعر المبدئي
6
غرف النوم
216 m²
مساحة المعيشة
3
الحمامات
€306
ضريبة الأبنية/سنوياً

البيئة المحيطة

لوس بوليتشيس هو حي نابض بالحياة في فوينخيرولا، يتميز بقربه من الشواطئ وبيئته الحضرية المريحة. هذه المنطقة مثالية لأولئك الذين يستمتعون بالعيش على مسافة قريبة من جميع وسائل الراحة. من القهوة الصباحية إلى تناول الطعام في المساء والاسترخاء على الشاطئ، الحياة اليومية مليئة بالحيوية. تقدم المنطقة مجموعة واسعة من المطاعم والمتاجر والخدمات العامة، مما يوفر للسكان أسلوب حياة مريحًا ومريحًا. كمبنى مكتمل، فإنه يوفر فرصة لتخصيص المساحة وفقًا للاحتياجات الفردية، سواء كان ذلك تحويله إلى منزل لعائلة كبيرة أو عقار إيجار متعدد الوحدات.

طلب معلومات

الموقع والبيئة: Los Boliches

البيئة والوصول

يتميز نمط الحياة في لوس بوليتشيس بالراحة والموقع على الواجهة البحرية. يضم المنطقة أكثر من 70 مطعمًا و 7 صيدليات و 7 بنوك ضمن دائرة نصف قطرها 2 كم، مما يضمن سهولة الراحة اليومية. شاطئ Playa Torreblanca-Carvajal على بعد 225 مترًا فقط، مما يوفر للسكان وصولاً سهلاً إلى الاستمتاع بالشاطئ. وسائل النقل العام متاحة بسهولة مع 8 خطوط و 50 محطة. بالإضافة إلى ذلك، فإن القرب من المطار على بعد 15 كم فقط يجعل السفر مريحًا.

الخريطة والموقع

يقع المبنى في قلب لوس بوليتشيس، مباشرة على الواجهة البحرية ومحاط بمختلف وسائل الراحة. قربه من الشواطئ ومركز المدينة يجعله جذابًا للمقيمين الذين يبحثون عن نمط حياة ساحلي نابض بالحياة.

Beachfront room with ocean view, featuring a private balcony and modern amenities.

الموقع الإقليمي

لوس بوليتشيس هو حي في فوينخيرولا، يقع في مقاطعة مالاغا، وهو جزء من كوستا ديل سول. يقع على طول الساحل، بجوار البحر الأبيض المتوسط، ويتمتع بموقع جغرافي متميز. تشتهر المنطقة ببيئتها الحضرية المريحة وجاذبية شواطئها، مما يجعلها وجهة مثالية للسكن والسياحة على كوستا ديل سول.

المرافق والوصول

يوفر موقع المبنى سهولة الوصول إلى وسائل الراحة المختلفة. يقع أقرب شاطئ، Playa Torreblanca-Carvajal، على بعد 225 مترًا فقط. كما أن المدن الرئيسية والمطار (مثل مطار مالاغا) يسهل الوصول إليها، على بعد 1.4 كم و 15 كم على التوالي. تقع ملاعب الجولف مثل Campo Los Lagos على بعد حوالي 5.6 كم، ويقع السوبر ماركت على بعد 57 مترًا، والصيدلية على بعد 89 مترًا. وسائل النقل العام متطورة، مع 8 خطوط و 50 محطة، مما يضمن سهولة التنقل.

Malaga-Costa del Sol (AGP) 16 km
Gibraltar (GIB) 81 km

المصدر: OpenStreetMap, Google Maps

Aerial view of a coastal city with a sandy beach and clear blue water.

الطبيعة والمناخ

Oceanfront apartment with balcony, city and beach views, modern amenities.

تتمتع المنطقة بمناخ البحر الأبيض المتوسط المعتدل، حيث تتراوح متوسط درجات الحرارة بين 12 درجة مئوية و 26 درجة مئوية، بمتوسط سنوي قدره 18.7 درجة مئوية. هناك ما يقرب من 3897 ساعة شمس سنويًا، مع موسم سباحة مدته 5 أشهر (درجة حرارة الماء ≥20 درجة مئوية). يبلغ الارتفاع 5 أمتار فوق مستوى سطح البحر، مع القرب من الساحل، تساهم هذه العوامل مجتمعة في خلق بيئة ساحلية لطيفة.

3897 ساعات الشمس/سنة
5 موسم السباحة (أشهر)
18.7°C متوسط الحرارة السنوي
5m الارتفاع

المصدر: Open-Meteo (2020–2025 متوسط)

الشواطئ والترفيه

يقع العقار على بعد 225 مترًا فقط من شاطئ Playa Torreblanca-Carvajal، وهو مكان مثالي للاستمتاع بأشعة الشمس والأنشطة المائية. تقع شواطئ أخرى مثل Playa de Torreblanca و Playa de los Boliches على بعد 1.5 كم. تضم المنطقة مجموعة واسعة من خيارات الترفيه، بما في ذلك ملعب الجولف Campo Los Lagos على بعد 5.6 كم، ومحطة شحن السيارات الكهربائية على بعد 2.1 كم، وحلبة Karting Mijas على بعد 1.6 كم. بالإضافة إلى ذلك، تقع ملاعب التنس والبولينغ بالقرب منها.

شواطئ

  • Playa Torreblanca-Carvajal 0.2 km
  • Playa de Torreblanca 1.2 km
  • Playa de los Boliches 1.4 km
  • Playa de San Francisco 2.4 km
  • Playa de Santa Amalia 3.4 km
  • Playa del Castillo 4.1 km

Golf

  • Campo Los Lagos 5.6 km
  • Golf Benalmadena Pitch& Putt 6 km
  • Campo Los Olivos 6.2 km
  • Cerrado del Aguila Golf 6.7 km

المصدر: OpenStreetMap

Beachfront room with ocean view, featuring a balcony and lounge chairs.

الموقع الإقليمي

لوس بوليتشيس هو حي في فوينخيرولا، يقع في مقاطعة مالاغا، وهو جزء من كوستا ديل سول. يقع على طول الساحل، بجوار البحر الأبيض المتوسط، ويتمتع بموقع جغرافي متميز. تشتهر المنطقة ببيئتها الحضرية المريحة وجاذبية شواطئها، مما يجعلها وجهة مثالية للسكن والسياحة على كوستا ديل سول.

دليل المنطقة: Los Boliches

حقائق أساسية

المناخ

الشهر متوسط الحرارة معدل الأمطار
يناير 11.9°C 56 mm
فبراير 12.3°C 57 mm
مارس 14.3°C 46 mm
أبريل 16.2°C 31 mm
مايو 18.4°C 28 mm
يونيو 22.5°C 6 mm
يوليو 25.9°C 1 mm
أغسطس 26.2°C 2 mm
سبتمبر 23.0°C 9 mm
أكتوبر 19.2°C 51 mm
نوفمبر 15.3°C 74 mm
ديسمبر 12.6°C 66 mm

المرافق القريبة

70 restaurant
7 pharmacy
7 bank
25 cafe
2 dentist

الارتفاع والتضاريس

5m الارتفاع

معالم قريبة

نقاط مشاهدة

Ev Charging

مراكز رياضية

شواطئ

موانئ ترفيهية

ملاعب الغولف

مسابح

النقل والوصول

16 km Malaga-Costa del Sol (AGP)
81 km Gibraltar (GIB)
405 km Alicante-Elche (ALC)

ملخص

  • يقع في قلب لوس بوليتشيس، على بعد 60 مترًا فقط من الشاطئ.
  • 216 مترًا مربعًا، مقسمة إلى وحدتين سكنيتين منفصلتين مع إمكانية التوسع.
  • تتطلب تجديدًا شاملاً، مما يوفر فرصة للتخصيص الشخصي.
  • تقع في بيئة حضرية مريحة، مع جميع وسائل الراحة في متناول اليد.
  • السعر 660,000 يورو، مع إمكانات للاستثمار والتجديد.

مقارنة إقليمية

مقارنة بالمشاريع المجاورة مثل Acqua Gardens في Estepona (بدءًا من 418,800 يورو) و Aby Upper في Estepona (بدءًا من 320,000 يورو)، يمثل المبنى في Los Boliches بسعر 660,000 يورو عقارًا كبيرًا في موقع حيوي. في حين أن المشاريع في Estepona تقدم شققًا جديدة، فإن هذا المبنى يقدم عرض قيمة فريدًا نظرًا لمساحته وموقعه وإمكاناته للتجديد. Alba Benalmadena في Benalmadena (بدءًا من 699,000 يورو) لديها سعر مماثل، ولكن قد يشير إلى نوع مختلف من العقارات أو مواصفاتها. تكمن الجاذبية الرئيسية للعقار في Los Boliches في قربه المباشر من الشاطئ ووسائل الراحة الحضرية، مما يميزه في سوق Marbella، خاصة لأولئك الذين يبحثون عن فرص للتجديد أو الاستخدام المتعدد.

الأسئلة الشائعة

ما هي حالة المبنى؟
المبنى يتطلب تجديدًا شاملاً.
ما هي المسافة من العقار إلى مطار مالاغا؟
تبلغ المسافة من العقار إلى مطار مالاغا حوالي 15 كم.
هل يمكن تركيب مصعد في هذا المبنى؟
يمكن تركيب مصعد من الطابق الأول.
ما هي الاستخدامات المحتملة لهذا المبنى؟
يمكن استخدام المبنى كمنزل عائلي، أو للإيجار السياحي، أو لتجديده إلى شقق مستقلة متعددة.
ما هي المرافق المتوفرة في الجوار؟
يوجد 70 مطعمًا و 7 صيدليات و 7 بنوك ضمن دائرة نصف قطرها 2 كم. يقع أقرب شاطئ على بعد 225 مترًا فقط.
ما هو سعر هذا المبنى؟
يُعرض المبنى للبيع بسعر 660,000 يورو.
ما هي عملية شراء هذا العقار؟
للحصول على تفاصيل حول عملية الشراء، يرجى الاتصال بممثل المبيعات.
ما هو نوع منطقة لوس بوليتشيس؟
لوس بوليتشيس هو حي ساحلي نابض بالحياة في فوينخيرولا، معروف ببيئته الحضرية المريحة وشواطئه.
Maiko
Maiko
خبير عقاري

مايكو خبير عقاري متخصص في سوق الإسكان الإسباني. بفضل معرفته العميقة بكوستا ديل سول وكوستا بلانكا والمناطق الساحلية الشهيرة الأخرى، يساعد المشترين في العثور على العقار المناسب. يقوم بتحليل العروض بناءً على الموقع والقيمة السوقية وجودة البناء وقابلية السكن، ويقدم نصائح صادقة ومدعومة بالبيانات طوال عملية الشراء بأكملها.

رد خلال 24 ساعة

مهتم؟

اترك بياناتك واحصل على معلومات عن التوفر، والأسعار، والمخططات.

المواصفات الفنية
تبلغ المساحة الإجمالية للمبنى 216 مترًا مربعًا.
مقسمة إلى وحدتين سكنيتين منفصلتين.
تقع على بعد 225 مترًا من الشاطئ.
تحتاج إلى تجديد.
السعر 660,000 يورو.

Conversation history

Ask a question to start