Residential Plot in Mijas Costa -de Mijas Costa — Konut Arsası
Konut Arsası

Mijas Costa Satılık Arsa - 958 m²

Mijas Costa'nın kentsel bölgesinde yer alan bu 958 metrekarelik konut arsası, Marbella yakınlarında geliştirme potansiyeli sunmaktadır. Kıyıya yakınlığı ve her yere yürüme mesafesindeki olanaklarıyla şehir yaşamını kolaylaştıran bir konuma sahiptir. Arsaların kendisi 230 metrekare olsa da, 10 dairelik onaylanmış bir inşaat projesi içermesi, yatırımcılar veya geliştiriciler için benzersiz bir fırsat sunmaktadır. Süpermarketler ve eczaneler gibi yerel olanaklara yakınlığı ve iyi ulaşım bağlantıları, burayı bölgedeki cazip bir proje haline getirmektedir.

€695,000
958 m²
Yaşam Alanı
€695,000
Prijs
1.3 km
Plaja Mesafe

Proje Analizi

Konum, evler, proje aşaması ve dikkat edilmesi gerekenler hakkında özellikler.

Konum

Arsa, kıyıya yakın, Mijas Costa'nın (Mijas Costa) kentsel ortamında yer almaktadır. Konumu, mağazalar ve restoranlar gibi çeşitli olanaklara yürüme mesafesinde erişim sağlamaktadır. Bölge ayrıca iyi ulaşım bağlantılarına sahiptir ve havaalanına (kuş uçuşu) sadece 14 km uzaklıktadır.

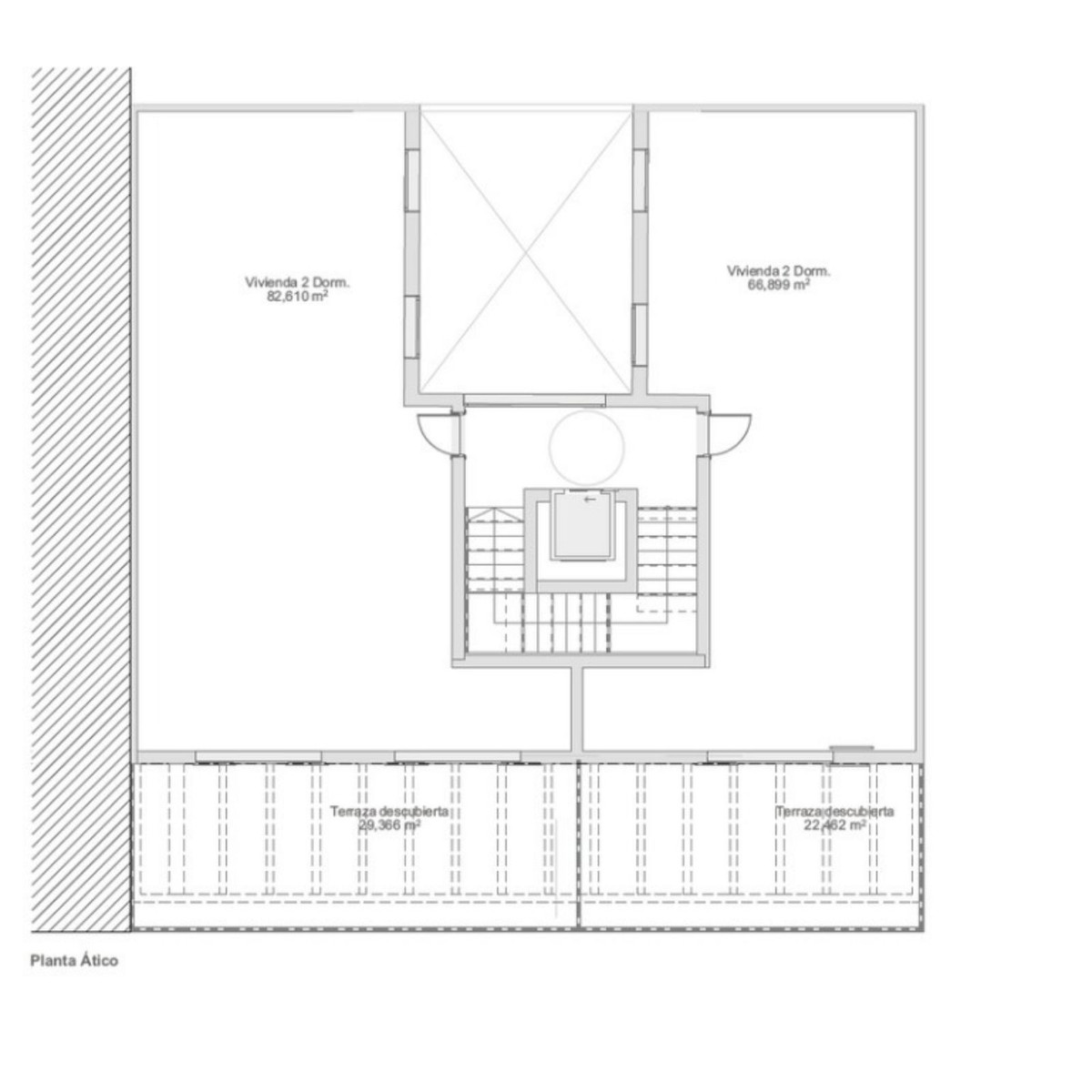
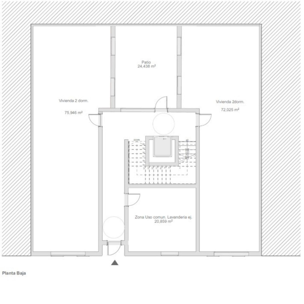
Kat Planı

Bu arsa, yeni bir konut projesi geliştirmek isteyen bireyler veya şirketler için caziptir. Konut talebini karşılayarak, yerleşik bir alanda daire inşa etme fırsatı sunar. Olanaklara yakınlığı, gelecekteki sakinler için konforlu bir yaşam tarzı sağlarken, ulaşım kolaylığı işe gidip gelmeyi ve seyahat etmeyi kolaylaştırmaktadır.

Proje Durumu

Arsa, 10 daire inşaatı için onaylanmış bir proje içermektedir. Bu, projenin ilk planlama aşamalarını geçtiği ve bir sonraki geliştirme aşamasına hazır olduğu anlamına gelir. Onaylanmış bir projeye sahip olmak, geliştirme sürecini basitleştirebilir.

Dikkat Edilmesi Gerekenler

Arsa, öncelikle daire inşaatı için tasarlanmış bir konut arsasıdır ve müstakil villa veya ticari gayrimenkul inşaatı için uygun olmayabilir. Kentsel bir ortamda olmasına rağmen, ulaşım gürültüsü olabilir. Arsa, hazır bir konut yerine, mevcut bir proje ile geliştirme fırsatı sunmaktadır.

Proje Detayları

Proje Residential Plot in Mijas Costa
Şehir Mijas Costa
Bölge Costa del Sol
Prijs €695,000
Yaşam Alanı 958 m²
m² Fiyatı €725 / m²
Otopark Hayır
Havuz Hayır
Bahçe Hayır
Yapım Durumu for_sale
Plaja Mesafe 1.3 km
Tamamlanma 1970
Yayınlanma 2026-04-20

Ref: VL952217

Kaynak: Wikipedia, Wikidata, INE, Junta de Andalucía

Yaşam Tarzı ve Çevre

Bu arsa, yeni bir konut projesi geliştirmek isteyen gayrimenkul yatırımcıları veya geliştiriciler için uygundur. Onaylanmış 10 dairelik inşaat projesi, konut talebini karşılamak için cazip bir varlık haline getirmektedir. Ayrıca, Marbella yakınlarında, iyi ulaşım bağlantıları ve olanaklara erişim sağlayan bir proje arayanlar için de iyi bir seçenektir. Süpermarketlere, eczanelere ve restoranlara yakınlığı, ayrıca plajlara (1,3 km) ve golf sahalarına (1,2 km) yakınlığı, burayı yaşam tarzı açısından çekici bir yer haline getirmektedir. Yıl boyunca 3.889 saat güneş ışığı ve 5 aylık yüzme sezonu, güneş ve açık hava aktivitelerinden hoşlananlar için idealdir.

Yapı Kalitesi ve Cila

Bu konut arsası projesinin bitiş kalitesi, planlanan 10 dairenin inşaatına ve bitişine bağlı olacaktır. Onaylanmış geliştirme projesi, modern konutlar inşa etme niyetini göstermektedir. Arsanın kendisiyle ilgili belirli malzeme veya teknoloji bilgileri sınırlıdır, çünkü temel değeri geliştirme potansiyelinde yatmaktadır. Nihai bitiş seviyesi, montajlar ve kullanılan malzemeler geliştirici tarafından belirlenecek ve gelecekteki inşaat planlarında detaylandırılacaktır.

Çevre ve Yaşam Tarzı

Fiyat ve Müsaitlik

Arsanın satış fiyatı 695.000 €'dur. Bu fiyat, Mijas Costa'daki (Mijas Costa) seçkin konumunu ve 10 daire inşa etmeyi amaçlayan onaylanmış geliştirme projesini yansıtmaktadır. Potansiyel alıcılar, inşaat maliyetlerini ve ilgili masrafları göz önünde bulundurmalıdır. Geliştirme potansiyeli göz önüne alındığında, arsa önemli bir yatırım fırsatı sunmaktadır.

€695,000
Prijs
958 m²
Yaşam Alanı

Çevre ve Yaşam Tarzı

Mijas Costa'daki (Mijas Costa) bu arsa, şehir yaşamını kıyı yaşamıyla harmanlayan bir deneyim sunar. 230 metrekarelik arsanın kendisi konut geliştirme amaçlıdır, ancak 10 daire inşaatı için onaylanmış bir proje içerir; bu da onu bir yatırım veya geliştirme etkinliği haline getirir. Süpermarket (239 m) ve eczane (265 m) gibi günlük ihtiyaçlara yürüme mesafesindedir. Yakınında 9 restoran ve 2 kafe bulunmaktadır. 15 ilkokul ve 10 ortaokulun varlığı, buranın aileler için uygun bir bölge olduğunu göstermektedir. Bölge yıl boyunca 3.889 saat güneş ışığına ve 5 aylık yüzme sezonuna sahiptir, bu da hoş bir iklim sunar. Ancak, burası kıyı veya kırsal bölgelere göre daha hareketli olabilen kentsel bir ortamdır.

Bilgi İsteyin

Konum ve Çevre: Mijas Costa

Çevre ve Ulaşım

Mijas Costa'daki (Mijas Costa) yaşam, kentsel olmasına rağmen sahile yakınlığı ile karakterize edilir. Arsa, Playa del Charcón - El Charcón plajına sadece 1,3 km, Playa de Torreblanca (4,7 km) ve Playa de los Boliches (5,3 km) gibi diğer plajlara da yakındır. Süpermarket (239 m) ve eczane (265 m) gibi olanaklar hemen elinizin altındadır. Bölgede 9 restoran ve 2 kafe bulunmaktadır. 8 toplu taşıma hattı ve 50 otobüs durağı ile ulaşım sağlanmaktadır. Bölgede 15 ilkokul ve 10 ortaokul bulunmaktadır, bu da aileler için eğitim seçenekleri sunmaktadır. Yılın ortalama sıcaklığı 18,6°C olup, bol güneş ışığı ile iklim hoş geçmektedir.

Harita ve Konum

Bu harita, Mijas Costa'daki (Mijas Costa) konut arsalarının konumunu göstermektedir. Arsanın mağazalar, restoranlar ve plajlar gibi yakındaki olanaklara yakınlığını vurgulamaktadır. Harita ayrıca Malaga havaalanına ve ana yollara olan mesafeleri de göstermekte ve bölgenin ulaşılabilirliğini vurgulamaktadır.

Oceanfront room with balcony, stunning beach and ocean view, modern amenities.

Bölgedeki Konum

Arsa, Endülüs'ün Mijas Costa bölgesinde stratejik bir konuma sahiptir. Mijas Costa (Mijas Costa), Fuengirola'nın ana ticari ve konut bölgesidir, ancak aynı zamanda Malaga ve Marbella gibi diğer popüler bölgelere açılan bir kapı görevi görür. Kosta del Sol'un kalbinde yer alır, birçok golf sahası, plaj ve eğlence mekanı ile çevrilidir, bu da onu canlı bir bölge haline getirir.

Ulaşım ve Olanaklar

Arsaya ulaşım kolaydır. Malaga-Costa del Sol Havalimanı (AGP) yaklaşık 14 km (kuş uçuşu) uzaklıktadır. En yakın plaj olan Playa del Charcón - El Charcón, 1.3 km mesafededir. Bölgede El Chaparral Golf Club (1.2 km) ve Cerrado del Aguila Golf (1.3 km) dahil olmak üzere birden fazla golf sahası bulunmaktadır. En yakın tren istasyonu Fuengirola'dır (3.6 km). Toplu taşıma, 8 hat ve 50 durak ile çevredeki bölgelere ulaşım imkanı sunmaktadır. Elektrikli araç şarj istasyonlarının yakınlığı ile araba ile ulaşım da uygundur.

Plaja Mesafe 1.3 km
Malaga-Costa del Sol (AGP) 22 km
Gibraltar (GIB) 75 km
Fuengirola 3.6 km
Carvajal 7.8 km

Kaynak: OpenStreetMap, Google Maps

Aerial view of a coastal town with a beach and clear blue sky.

Doğa ve İklim

Alt text: Panoramic view of a mountainous landscape with a small town below.

Bölge, yıllık ortalama 18,6°C sıcaklık ve yılda 3.889 saate varan güneş ışığı ile Akdeniz iklimine sahiptir, bu da onu açık hava etkinlikleri ve güneşin keyfini çıkarmak için ideal bir yer haline getirmektedir. Yüzme sezonu 5 ay sürer ve su sıcaklığı 20°C'nin üzerindedir. Arsa, deniz seviyesinden 52 metre yükseklikte ve sahile doğru %3,5'lik orta eğime sahiptir. Bölge kentsel olmasına rağmen, kıyıya yakınlığı deniz meltemi ve manzaralar sunmaktadır. Bölgede ayrıca ek eğlence seçenekleri sunan spor merkezleri ve parklar bulunmaktadır.

3889 Güneşlenme saati/yıl
5 Yüzme sezonu (ay)
18.6°C Yıllık ort. sıcaklık
52m Rakım

Kaynak: Open-Meteo (2020–2025 ortalama)

Plajlar ve Rekreasyon

Arsa, en yakın plaj olan Playa del Charcón - El Charcón'a sadece 1,3 km mesafede olmak üzere birçok plaja yakındır. Diğer plajlar arasında Playa del Charcón - Playa Marina (1,3 km) ve Playa El Chaparral - El Chaparral (1,5 km) bulunmaktadır. Bölge, Club de Pádel Cerrado del Águila (1,3 km) ve Karting Experience (2,2 km) gibi spor merkezleri dahil olmak üzere çok çeşitli eğlence seçenekleri sunmaktadır. El Chaparral Golf Club (1,2 km) ve Cerrado del Águila Golf (1,3 km) gibi birden fazla golf sahası yakındadır. Ayrıca Piscina Bellavista (1.0 km) gibi yüzme havuzları da bulunmaktadır.

Plajlar

  • Playa del Charcón - El Charcón 1.3 km
  • Playa del Charcón - Playa Marina 1.3 km
  • Playa El Chaparral - El Chaparral 1.5 km
  • Playa del Faro - Punta Calaburras 1.6 km
  • Playa del Faro - El Faro 1.7 km
  • Playa Rocas del Cura 1.9 km

Golf

  • El Chaparral Golf Club 1.2 km
  • Cerrado del Aguila Golf 1.3 km
  • Campo Los Lagos 3.7 km
  • Campo Los Olivos 4.3 km

Kaynak: OpenStreetMap

White-walled building with terracotta roof, balconies, and potted plants.

Bölgedeki Konum

Arsa, Endülüs'ün Mijas Costa bölgesinde stratejik bir konuma sahiptir. Mijas Costa (Mijas Costa), Fuengirola'nın ana ticari ve konut bölgesidir, ancak aynı zamanda Malaga ve Marbella gibi diğer popüler bölgelere açılan bir kapı görevi görür. Kosta del Sol'un kalbinde yer alır, birçok golf sahası, plaj ve eğlence mekanı ile çevrilidir, bu da onu canlı bir bölge haline getirir.

Bölge Rehberi: Mijas Costa

Mijas Costa is the main commercial and residential zone of, although not limited to, Fuengirola.

Temel Bilgiler

İklim

Ay Ort. Sıcaklık Yağış
Ocak 9.4°C 61 mm
Şubat 9.8°C 64 mm
Mart 11.8°C 53 mm
Nisan 13.7°C 37 mm
Mayıs 15.9°C 34 mm
Haziran 20.0°C 7 mm
Temmuz 23.4°C 1 mm
Ağustos 23.7°C 2 mm
Eylül 20.5°C 10 mm
Ekim 16.7°C 54 mm
Kasım 12.8°C 78 mm
Aralık 10.1°C 69 mm

Yakın Olanaklar

9 restaurant
1 pharmacy
2 cafe

Yükseklik ve Arazi

52m Rakım
1.3 km Plaja Mesafe
3.5% Plaja eğim

Orta

Yakın Çevre

Spor Merkezleri

Manzara Noktaları

Ev Charging

Plajlar

Marinalar

Golf Sahaları

Havuzlar

Ulaşım

22 km Malaga-Costa del Sol (AGP)
75 km Gibraltar (GIB)
411 km Alicante-Elche (ALC)
3.6 km Fuengirola
7.8 km Carvajal
3.7 km Terminal Autobus

Özet

  • Mijas Costa'nın (Mijas Costa) kentsel ortamında 230 m²'lik bir konut arsası.
  • 10 daire inşaatı için onaylanmış bir proje içerir.
  • Mağazalara, restoranlara ve plajlara yakın (en yakın plaj 1,3 km mesafede) mükemmel konum.
  • Malaga havaalanına (kuş uçuşu) yaklaşık 14 km mesafede iyi ulaşım bağlantıları.
  • 695.000 € fiyatla, geliştiriciler veya yatırımcılar için cazip bir fırsat.

Bölgesel Karşılaştırma

Estepona'daki Acqua Gardens (418.800 €'dan başlayan fiyatlarla) ve Benalmadena'daki Alba Benalmadena (699.000 €'dan başlayan fiyatlarla) gibi Costa del Sol'daki diğer projelerle karşılaştırıldığında, Mijas Costa'daki bu arsa, onaylanmış daire geliştirme projesiyle öne çıkmaktadır. Fiyat Alba Benalmadena ile benzer olsa da, bu proje tamamlanmış bir konut yerine belirli bir geliştirme planı sunmaktadır. Estepona'daki Acqua Gardens ve Aby Upper (Estepona, 320.000 €'dan başlayan fiyatlarla) gibi projelerle karşılaştırıldığında, Mijas Costa'daki proje, havaalanına daha yakın olması ve birçok olanağa yürüme mesafesinde olmasıyla kentsel kolaylık ve ulaşım bağlantıları açısından farklı avantajlar sunmaktadır. Estepona'daki projeler farklı bir sahil veya sakin atmosfer sunabilirken, Mijas Costa'daki arsa, canlı bir kentsel ortamda geliştirme fırsatları arayanlar için uygundur.

Sıkça Sorulan Sorular

Bu inşaata hazır bir arsa mı yoksa ruhsatlı bir proje mi?
Bu, 10 daire için onaylanmış bir inşaat projesi içeren bir konut arsasıdır. Hazır bir ev değildir.
En yakın olanaklara ne kadar mesafe var?
En yakın süpermarket 239 metre, en yakın eczane ise 265 metre mesafededir. 2 km içinde 9 restoran ve 2 kafe bulunmaktadır.
Onaylanan proje için hangi inşaat standartları geçerlidir?
Belirli inşaat standartları ve malzemeleri onaylanan inşaat projesi tarafından belirlenecektir. Daha fazla ayrıntı proje belgelerinde mevcuttur.
Bu bölgede kiralık gelir potansiyeli nedir?
Mijas Costa, yüksek doluluk oranlarına sahip popüler bir turizm merkezidir, bu da özellikle yeni daireler için kiralık gelir potansiyeli olduğunu göstermektedir.
Yakınlarda hangi spor ve eğlence tesisleri bulunmaktadır?
Club de Pádel Cerrado del Águila (1,3 km) ve Karting Experience (2,2 km) gibi spor merkezleri bulunmaktadır. Ayrıca 1,2 - 6,0 km mesafede birden fazla golf sahası bulunmaktadır.
Arsayı satın aldıktan sonra beklenen ek maliyetler nelerdir?
Ek maliyetler arasında 10 dairenin inşaatı, bağlantı ücretleri, vergiler ve olası proje geliştirme maliyetleri yer almaktadır.
Proje onaylandıktan sonra nihai inşaat ruhsatını almak ne kadar sürer?
Proje onayından sonra nihai ruhsatın alınma süresi değişiklik gösterebilir. Ruhsat durumu hakkında detaylı bilgi mevcuttur.
Arsa sahile ne kadar yakın?
En yakın plaj olan Playa del Charcón - El Charcón, 1,3 km (kuş uçuşu) mesafededir.
Maiko
Maiko
Gayrimenkul Uzmanı

Maiko, İspanyol konut piyasası konusunda uzmanlaşmış bir gayrimenkul uzmanıdır. Costa del Sol, Costa Blanca ve diğer popüler sahil bölgeleri hakkında derinlemesine bilgi birikimiyle, alıcılara doğru konutu bulmaları konusunda yardımcı olmaktadır. Konum, piyasa değeri, inşaat kalitesi ve yaşanabilirlik gibi faktörlere dayanarak teklifleri analiz eder ve tüm satın alma süreci boyunca dürüst, veri odaklı tavsiyeler sunar.

24 saat içinde yanıt

İlgileniyor musunuz?

Bilgilerinizi bırakın, müsaitlik, fiyatlar ve kat planları hakkında bilgi alın.

Teknik Bilgiler
Arsa alanı: 230 m².
Onaylanmış proje: 10 daire inşaatı.
En yakın süpermarket: 239 m.
En yakın plaj: 1,3 km.
Yıllık ortalama güneşlenme süresi: 3.889 saat.

Conversation history

Ask a question to start