Residential Plot in El Rosario في El Rosario — أرض سكنية
أرض سكنية

أرض سكنية للبيع في إل روساريو، مالاغا

يقع هذا المشروع في منطقة إل روساريو بمالاغا، ويوفر قطعة أرض سكنية بمساحة 1010 متر مربع بسعر 468,000 يورو. الأرض مستوية مع انحدار طفيف يبلغ 0.3%، وتقع على مسافة قريبة من الشاطئ وتحيط بها وسائل الراحة الحضرية، مما يجعلها مثالية لبناء منزل أحلامك. يتمتع الموقع بموقع ممتاز، حيث يبعد 1.8 كم فقط عن الشاطئ، ويوفر مناظر جزئية للبحر والجبال. يقع على بعد حوالي 7.9 كم من مطار مالاغا، مما يوفر سهولة الوصول.

€468,000
390 m²
مساحة المعيشة
€468,000
Prijs
1.8 km
مسافة الشاطئ

تحليل المشروع

أهم خصائص الموقع، والوحدات، ومراحل المشروع، ونقاط الاهتمام.

الموقع

تقع قطعة الأرض في منطقة إل روساريو، وهي منطقة حضرية متكاملة الخدمات. يتيح القرب من الشواطئ ووسائل الراحة الحضرية المختلفة مثل محلات السوبر ماركت والصيدليات والمطاعم سهولة الوصول الاستثنائية للحياة اليومية. تقع المنطقة أيضًا على مقربة من ملاعب الجولف والمراكز الرياضية، لتلبية احتياجات الترفيه.

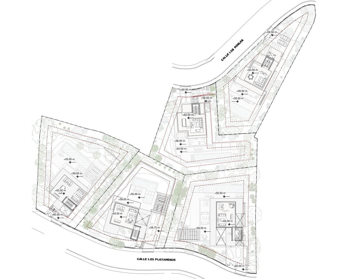
المخططات

تعد قطعة الأرض هذه مثالية للمشترين الذين يتطلعون إلى بناء منزل مخصص. توفر المساحة الواسعة البالغة 1010 متر مربع حرية تصميم كبيرة، مما يسمح بإنشاء منزل يناسب التفضيلات الشخصية. يجعل التضاريس المستوية والقرب من الشاطئها جذابة لأولئك الذين يبحثون عن نمط حياة البحر الأبيض المتوسط.

حالة المشروع

هذا مشروع لتطوير أراضٍ سكنية، يسمح للمشترين بتصميم وبناء منازلهم الخاصة. في حين أن خطط التطوير المحددة غير متوفرة في البيانات، فإن حجم الموقع وموقعه يشيران إلى إمكانات كبيرة. يشير وجود مشاريع تطوير أخرى في المنطقة المحيطة إلى حيوية المنطقة.

نقاط هامة

يتم تقديم قطعة الأرض هذه كأرض، ولا تتضمن أي مساكن مبنية. يتحمل المشترون المسؤولية الكاملة عن تكاليف تصميم المبنى والحصول على التصاريح والبناء. على الرغم من وجود مناظر جزئية للبحر، إلا أن المنظر المحدد قد يتأثر بالبناء المستقبلي في المناطق المحيطة.

نمط الحياة

تعد قطعة الأرض هذه في إل روساريو خيارًا مثاليًا لأولئك الذين يتطلعون إلى بناء منزل أحلام مخصص على ساحل جنوب إسبانيا. إنها مناسبة للأفراد الذين يبحثون عن مكان يمكنهم فيه بناء منزل وفقًا لمواصفاتهم وأسلوبهم الخاص. وهي مناسبة للأشخاص الذين يقدرون الراحة والقرب من الشواطئ وإيقاع الحياة الحضرية. علاوة على ذلك، نظرًا لموقعها المتميز وإمكانات تطويرها، فهي جذابة أيضًا للمستثمرين الذين يبحثون عن قيمة طويلة الأجل.

الجودة والتشطيبات

نظرًا لكونها قطعة أرض، فإن "الجودة والتشطيب" تعتمد كليًا على المنزل الذي سيتم بناؤه من قبل المشتري المستقبلي. قطعة الأرض نفسها مستوية، مع انحدار بنسبة 0.3٪، مما يعني أن أعمال الأساسات ستكون بسيطة نسبيًا. يمكن للمشترين المحتملين اختيار مواد البناء والتصميم والتشطيبات وفقًا لتفضيلاتهم، مما يخلق مسكنًا فريدًا حقًا. توفر مساحة قطعة الأرض (1010 متر مربع) مساحة واسعة لبناء منزل فسيح.

البيئة ونمط الحياة

السعر والتوفر

يبلغ سعر قطعة الأرض السكنية 468,000 يورو. بالنظر إلى مساحتها البالغة 1010 متر مربع، فإن السعر لكل متر مربع يبلغ حوالي 463 يورو. يعكس هذا السعر موقعها المتميز في إل روساريو، بالقرب من الشواطئ والمرافق الحضرية. لم يتم تحديد عدد القطع المتاحة، ولكن عادة ما تكون العروض من هذا النوع محدودة.

€468,000
Prijs
390 m²
مساحة المعيشة

البيئة المحيطة

توفر قطعة الأرض السكنية هذه في إل روساريو فرصة لبناء منزل أحلام في بيئة حضرية نابضة بالحياة. يبلغ متوسط درجة الحرارة اليومية 19 درجة مئوية، مع هطول أمطار معتدل على مدار العام وحوالي 3851 ساعة من أشعة الشمس، مما يخلق مناخًا ممتعًا. توفر المنطقة وسائل راحة مثل 384 مطعمًا و 124 صيدلية و 73 بنكًا، مما يوفر سهولة الوصول إلى الضروريات. القرب من الشاطئ على بعد 1.8 كم فقط مثالي لعشاق الواجهة البحرية. توفر نقاط المشاهدة على بعد 0.9 كم مناظر بانورامية خلابة.

طلب معلومات

الموقع والبيئة: El Rosario

البيئة والوصول

يمزج أسلوب الحياة في إل روساريو بين الراحة الحضرية وهدوء القرب من الشاطئ. تقع محلات السوبر ماركت على بعد 73 مترًا فقط، والصيدليات على بعد 212 مترًا، والمستشفيات على بعد 642 مترًا، مما يوفر سهولة الوصول إلى الضروريات. توفر 384 مطعمًا و 157 مقهى و 124 صيدلية مجموعة واسعة من خيارات تناول الطعام والتسوق. تلبي مسارات الدراجات على بعد 0.5 كم ومراكز العافية على بعد 0.7 كم احتياجات نمط الحياة النشط. يبلغ متوسط درجة الحرارة السنوية 19.0 درجة مئوية، و 3851 ساعة من ضوء الشمس السنوي، وموسم السباحة الذي يستمر 5 أشهر، مما يوفر ظروفًا مثالية للاستمتاع بالأنشطة الخارجية.

الخريطة والموقع

تقع قطعة الأرض هذه في منطقة إل روساريو بمقاطعة مالاغا، بالقرب من الساحل، مما يوفر موقعًا متميزًا. إنها محاطة بوسائل الراحة، بما في ذلك محلات السوبر ماركت والصيدليات والشواطئ، وهي متصلة جيدًا بالنقل، حيث تقع على بعد 7.9 كم فقط من المطار.

Alt text: Room with city view, large windows, modern decor, balcony access.

الموقع الإقليمي

يقع إل روساريو في موقع استراتيجي على ساحل مالاغا، بالقرب من المراكز الحضرية الرئيسية في المنطقة ومحاور النقل. يوفر بيئة سكنية أكثر هدوءًا مع سهولة الوصول إلى الأنشطة الثقافية والتجارية في مالاغا (حوالي 8 كم). كجزء من كوستا ديل سول، يشتهر هذا الساحل بشواطئه الجميلة وملاعب الجولف ونمط حياة البحر الأبيض المتوسط، ويقدم إل روساريو مكونًا فريدًا لهذا النمط.

المرافق والوصول

تتميز قطعة الأرض بسهولة الوصول. يقع مطار مالاغا (AGP) على بعد 7.9 كم فقط، مما يسهل السفر الدولي. يمكن الوصول بسهولة إلى العديد من وسائل الراحة، بما في ذلك شاطئ بلايا دي سان أندريس على بعد 1.8 كم، سيرًا على الأقدام أو بالدراجة. تقع ثلاث ملاعب جولف، بما في ذلك نادي مالاغا بارادور للجولف، على بعد 8.2 كم. يوفر وجود 50 خطًا من وسائل النقل العام و 50 محطة حافلات اتصالاً جيدًا بالنقل العام، مما يجعل التنقل في المنطقة أكثر ملاءمة.

مسافة الشاطئ 1.8 km
Malaga-Costa del Sol (AGP) 8 km
Gibraltar (GIB) 104 km

المصدر: OpenStreetMap, Google Maps

Modern conference room with large windows, natural light, and city view.

الطبيعة والمناخ

Two plaques on a stone wall commemorating historical figures and events.

تتمتع منطقة إل روساريو بمناخ البحر الأبيض المتوسط، مع متوسط درجة حرارة سنوية تبلغ 19.0 درجة مئوية، و 3851 ساعة رائعة من أشعة الشمس في السنة. هذا يعني أن جزءًا كبيرًا من العام مناسب للأنشطة الخارجية، بما في ذلك موسم سباحة مريح لمدة تصل إلى 5 أشهر. يوفر الارتفاع المنخفض نسبيًا للمنطقة (6 أمتار) والتضاريس المعتدلة الحماية من الظروف الجوية القاسية. تتراوح متوسطات درجات الحرارة السنوية بين 12 و 26 درجة مئوية، والتي، جنبًا إلى جنب مع 3851 ساعة من الشمس، تخلق الظروف المثالية للاستمتاع بأسلوب حياة البحر الأبيض المتوسط.

3851 ساعات الشمس/سنة
5 موسم السباحة (أشهر)
19.0°C متوسط الحرارة السنوي
6m الارتفاع

المصدر: Open-Meteo (2020–2025 متوسط)

الشواطئ والترفيه

تقع قطعة الأرض في موقع استراتيجي بالقرب من العديد من الشواطئ، أقربها بلايا دي سان أندريس على بعد 1.8 كم فقط. بلايا دي لا مالاجويتا (1.3 كم) وبلايا دي لا ميزيريكورديا (3.2 كم) يسهل الوصول إليها أيضًا. المنطقة هي جنة لعشاق الجولف، حيث تقع ثلاثة ملاعب جولف، بما في ذلك نادي مالاغا بارادور للجولف الشهير، على بعد 8.2 كم. بالإضافة إلى ذلك، توفر المراكز الرياضية على بعد 0.5 كم ومراكز العافية على بعد 0.7 كم مجموعة واسعة من خيارات الرياضة والترفيه.

شواطئ

  • Playa de San Andrés 1.8 km
  • Playa de la Misericordia 3.2 km
  • Playa de los Baños del Carmen 3.8 km
  • Playa de Pedregalejo 4.6 km
  • Playa Sacaba Beach 4.6 km

Golf

  • Club de Golf Málaga Parador 8.2 km
  • Club de Golf de Guadalhorce 9.4 km
  • Campo de Golf Miguel Ángel Jiménez 11.1 km

المصدر: OpenStreetMap

A bustling room with people in red robes, ornate lanterns, and a warm, lively atmosphere.

الموقع الإقليمي

يقع إل روساريو في موقع استراتيجي على ساحل مالاغا، بالقرب من المراكز الحضرية الرئيسية في المنطقة ومحاور النقل. يوفر بيئة سكنية أكثر هدوءًا مع سهولة الوصول إلى الأنشطة الثقافية والتجارية في مالاغا (حوالي 8 كم). كجزء من كوستا ديل سول، يشتهر هذا الساحل بشواطئه الجميلة وملاعب الجولف ونمط حياة البحر الأبيض المتوسط، ويقدم إل روساريو مكونًا فريدًا لهذا النمط.

دليل المنطقة: El Rosario

El Rosario may refer to:

حقائق أساسية

المناخ

الشهر متوسط الحرارة معدل الأمطار
يناير 11.8°C 94 mm
فبراير 12.0°C 97 mm
مارس 14.1°C 85 mm
أبريل 15.9°C 56 mm
مايو 17.8°C 43 mm
يونيو 22.0°C 11 mm
يوليو 25.9°C 1 mm
أغسطس 26.4°C 2 mm
سبتمبر 22.7°C 19 mm
أكتوبر 18.9°C 80 mm
نوفمبر 15.0°C 116 mm
ديسمبر 12.4°C 104 mm

المرافق القريبة

384 restaurant
124 pharmacy
73 bank
157 cafe
26 dentist

الارتفاع والتضاريس

6m الارتفاع
1.8 km مسافة الشاطئ
0.3% الانحدار إلى الشاطئ

مسطح

معالم قريبة

نقاط مشاهدة

مراكز رياضية

Ev Charging

ملاعب الغولف

شواطئ

موانئ ترفيهية

النقل والوصول

8 km Malaga-Costa del Sol (AGP)
104 km Gibraltar (GIB)
383 km Alicante-Elche (ALC)

تفاصيل المشروع

المشروع Residential Plot in El Rosario
المدينة El Rosario
المنطقة Costa del Sol
Prijs €468,000
مساحة المعيشة 390 m²
السعر لكل م² €1,200 / m²
موقف سيارات لا
مسبح لا
حديقة لا
حالة البناء for_sale
مسافة الشاطئ 1.8 km
تاريخ الإنجاز 1970
تاريخ النشر 2026-04-20

Ref: VL121277

المصدر: Wikipedia, Wikidata, INE, Junta de Andalucía

ملخص

  • قطعة أرض سكنية بمساحة 1010 متر مربع في إل روساريو، مالاغا.
  • بسعر 468,000 يورو، توفر إمكانية بناء منزل مخصص.
  • على بعد 1.8 كم فقط من الشاطئ، مع وسائل راحة في المنطقة المحيطة.
  • مناظر جزئية للبحر والجبل، بالقرب من ملاعب الجولف والمراكز الرياضية.
  • قريبة من مطار مالاغا (7.9 كم) لسهولة الوصول.

مقارنة إقليمية

مقارنة بـ Acqua Gardens في Estepona (بدءًا من 418,800 يورو) و Aby Upper (بدءًا من 320,000 يورو)، فإن هذه الأرض في El Rosario أعلى سعرًا قليلاً ولكنها توفر مساحة أرض أكبر (1010 م²) وفرصة لبناء منزل مباشرة بدلاً من شراء شقة جاهزة. مقارنة بـ Alba Benalmadena في Benalmadena (بدءًا من 699,000 يورو)، فهي أكثر تنافسية من حيث السعر. قد توفر المشاريع في Estepona و Benalmadena منازل جاهزة، ولكن الأرض في El Rosario توفر أقصى قدر من المرونة وإمكانيات التخصيص، خاصة لأولئك الذين يرغبون في بناء منزل وفقًا لمواصفاتهم الخاصة. موقع الأرض، بالقرب من مدينة مالاغا والمطار، يمنحها أيضًا ميزة من حيث سهولة الوصول.

الأسئلة الشائعة

ما هي البنية التحتية التي يشملها هذا المشروع؟
هذا مشروع تطوير أراضٍ سكنية، ولا يشمل بنية تحتية مبنية مثل المنازل أو الحدائق. الأرض نفسها جاهزة للبناء.
ما هي المسافة من الأرض إلى أقرب شاطئ؟
أقرب شاطئ، بلايا دي سان أندريس، يبعد 1.8 كم عن الأرض.
ما هو انحدار الأرض؟
الأرض مستوية للغاية، بانحدار يبلغ 0.3٪ فقط.
ما هي ملاعب الجولف الموجودة في الجوار؟
هناك العديد من ملاعب الجولف القريبة من المنطقة، بما في ذلك نادي مالاغا بارادور للجولف (8.2 كم)، ونادي غوادالخورسي للجولف (9.4 كم)، وملعب ميغيل أنخيل خيمينيز للجولف (11.1 كم).
ما هي المرافق القريبة؟
تقع قطعة الأرض بالقرب من مجموعة متنوعة من المرافق، بما في ذلك سوبر ماركت على بعد 73 مترًا، وصيدلية على بعد 212 مترًا، بالإضافة إلى 384 مطعمًا و 157 مقهى.
ما هي التكاليف الإضافية التي يجب مراعاتها بخلاف سعر شراء الأرض؟
بالإضافة إلى سعر شراء الأرض، يجب مراعاة تكاليف البناء ورسوم التصميم ورسوم التراخيص والضرائب ورسوم التوصيل المحتملة.
ما هي عملية شراء هذه الأرض؟
تتضمن عملية الشراء عادةً توقيع اتفاقية حجز، ثم عقد بيع خاص، وأخيرًا إتمام نقل الملكية النهائي (escritura) لدى كاتب العدل.
ما هي المسافة من الأرض إلى مطار مالاغا؟
تبعد قطعة الأرض حوالي 7.9 كم (مسافة خط مستقيم) عن مطار مالاغا (AGP).
Maiko
Maiko
خبير عقاري

مايكو خبير عقاري متخصص في سوق العقارات الإسبانية. بفضل معرفته العميقة بساحل الشمس وساحل بلانكا والمناطق الساحلية الشهيرة الأخرى، يساعد المشترين في العثور على العقار المناسب. يحلل العروض بناءً على الموقع والقيمة السوقية وجودة البناء وقابلية العيش، ويقدم نصائح صادقة تستند إلى البيانات طوال عملية الشراء.

رد خلال 24 ساعة

مهتم؟

اترك بياناتك واحصل على معلومات عن التوفر، والأسعار، والمخططات.

المواصفات الفنية
مساحة الأرض: 1010 م²
السعر: 468,000 يورو
المسافة إلى أقرب شاطئ: 1.8 كم
المسافة إلى مطار مالاغا: 7.9 كم

Conversation history

Ask a question to start