Residential Plot in El Rosario في El Rosario — قطعة أرض سكنية
قطعة أرض سكنية

قطعة أرض سكنية للبيع في إل روساريو، مالاغا

في إل روساريو، شرق مالاغا، تمثل هذه الأرض الفسيحة البالغة مساحتها 4443 مترًا مربعًا فرصة استثنائية لمشروعك التطويري. تقع الأرض في بيئة حضرية مريحة، على مسافة قريبة من الشاطئ ووسائل الراحة، وعلى بعد 7.9 كم فقط من المطار، مما يوفر سهولة الوصول. حجم الأرض وموقعها يجعلانها مثالية لبناء مساكن راقية، مع إطلالات على البحر والجبل، مع الاستفادة من البنية التحتية الراسخة للمنطقة والنمو المطرد لسوق العقارات.

€2,150,000
2086 m²
مساحة المعيشة
€2,150,000
Prijs
1.8 km
مسافة الشاطئ

تحليل المشروع

أهم خصائص الموقع، والوحدات، ومراحل المشروع، ونقاط الاهتمام.

الموقع

تقع هذه الأرض في إل روساريو، وهي منطقة حضرية راسخة، بالقرب من الشاطئ وتوفر سهولة الوصول إلى وسائل الراحة الحضرية. تتوفر 384 مطعمًا و 124 صيدلية و 73 بنكًا في المنطقة المجاورة، ويمكن الوصول إلى معظم المرافق سيرًا على الأقدام أو بالدراجة، مما يضمن مستوى عالٍ من الراحة.

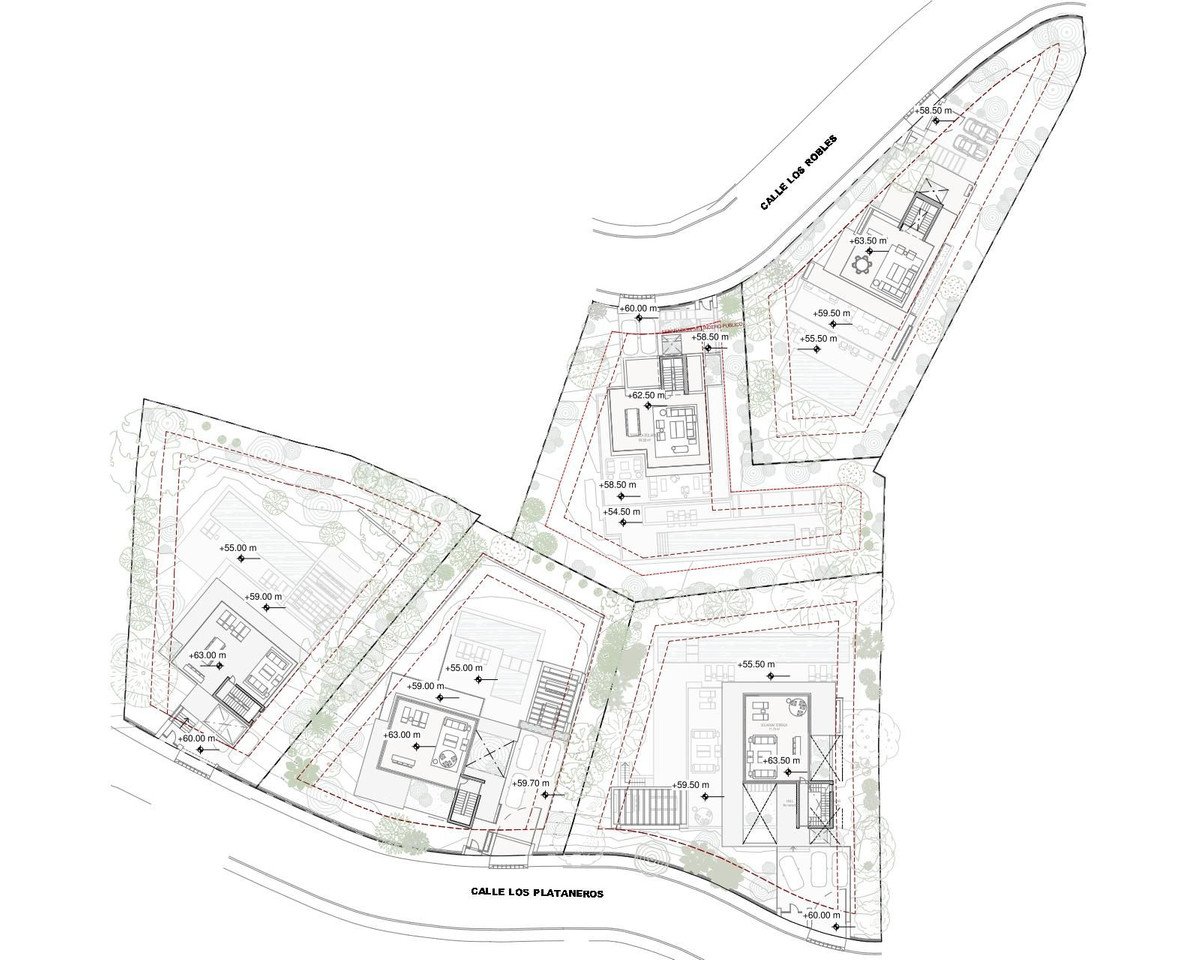
المخططات

توفر هذه الأرض التي تبلغ مساحتها 4443 مترًا مربعًا مساحة واسعة لإنشاء منزل أحلامك. مع توجيهات نحو الجنوب والشمال، وإطلالات خلابة على البحر والجبل، فهي مثالية للمشترين الذين يبحثون عن نمط حياة فاخر ويرغبون في الحصول على مساحة خارجية كافية وخصوصية.

حالة المشروع

هذه قطعة أرض سكنية مخصصة للتطوير. ستعتمد خطط التطوير المحددة والجداول الزمنية للبناء على التصميم المحدد للمشتري والحصول على التصاريح اللازمة. تسمح مساحة الأرض بتنفيذ مشروع واسع النطاق.

نقاط هامة

لا تقدم هذه الأرض منازل مبنية مسبقًا أو هياكل قائمة. إنها مجرد أرض تتطلب بناءً كاملاً من الصفر. قد تكون هناك قيود بناء معينة مفروضة محليًا، والتي يجب التحقق منها بدقة قبل الشراء.

نمط الحياة

هذه الأرض مثالية للمطورين أو الأفراد الذين يتطلعون إلى بناء منزل مخصص وفاخر في منطقة مالاغا. إذا كنت تبحث عن موقع يسمح لك بتحقيق احتياجات التصميم الفريدة الخاصة بك ويوفر إطلالات على البحر والجبل، فإن هذه الأرض هي الخيار المثالي. إنها مناسبة لأولئك الذين يرغبون في أن يكونوا على مقربة من الشواطئ وملاعب الجولف (مثل Club de Golf Málaga Parador، على بعد 8.2 كم) ومحاور النقل الرئيسية (مثل مطار مالاغا، على بعد 7.9 كم). تسمح مساحة الأرض ببناء مساكن كبيرة وتوفر مساحة خارجية خاصة وفيرة. كما أنها مناسبة للمستثمرين الذين يبحثون عن فرص، حيث أظهر سوق العقارات في المنطقة نموًا مطردًا على مدى العقد الماضي، مع تسارع في السنوات الأخيرة.

الجودة والتشطيبات

بصفتها قطعة أرض سكنية، فإن 'الجودة والتشطيب' ستعتمد على مشروع التطوير المستقبلي. توفر الأرض نفسها منصة بمساحة 4443 مترًا مربعًا للبناء وفقًا لمتطلبات المشتري. نظرًا لقربها من المراكز الحضرية الرئيسية، من المتوقع الوصول إلى مواد وخدمات بناء عالية الجودة. تميل اتجاهات البناء المعروفة في المنطقة نحو التشطيبات الحديثة وعالية الجودة، والتي تستهدف المشترين الدوليين. يمكن الاستفادة من ملاعب الجولف القريبة والشواطئ والبنية التحتية الحضرية عند التصميم والبناء. سيعتمد مستوى التشطيب النهائي على ميزانية المطور والسوق المستهدف، لكن الطلب في السوق يشير إلى إمكانية التشطيبات الراقية.

البيئة ونمط الحياة

السعر والتوفر

يبلغ سعر هذه الأرض 2,150,000 يورو لمساحة 4443 مترًا مربعًا. يعكس هذا السعر موقعها المتميز في مالاغا، بالقرب من الشواطئ والمطار وملاعب الجولف. في حين أن هذه هي القطعة الوحيدة المتاحة حاليًا، فإن حجمها وإمكانات التطوير قد تجذب المستثمرين الذين يبحثون عن مشاريع عقارية راقية. ارتفعت تكلفة المتر المربع للعقارات المبنية في المنطقة خلال العام الماضي، مما يشير إلى جاذبيتها كاستثمار.

€2,150,000
Prijs
2086 m²
مساحة المعيشة

البيئة المحيطة

تجمع الحياة في إل روساريو بين هدوء الواجهة البحرية وسهولة الوصول إلى المناطق الحضرية. تقع الأرض على بعد 1.8 كم فقط من الشاطئ، ويمكن الوصول إلى معظم الاحتياجات اليومية سيرًا على الأقدام بفضل قربها من المطاعم والمتاجر والمرافق الطبية. يبلغ متوسط ساعات السطوع الشمسي السنوي 3851 ساعة، ويستمر موسم السباحة لمدة 5 أشهر مع درجة حرارة مياه تزيد عن 20 درجة مئوية، مما يوفر فرصًا وفيرة للأنشطة الخارجية. يبلغ متوسط درجة الحرارة السنوية 19.0 درجة مئوية، تتراوح بين 12 درجة مئوية و 26 درجة مئوية، مما يخلق مناخًا لطيفًا. على الرغم من موقعها في بيئة حضرية، إلا أن حجم الأرض الكبير وقربها من المناظر الطبيعية يساهمان في خلق جو هادئ. يضمن وجود 384 مطعمًا و 124 صيدلية و 73 بنكًا في المنطقة المجاورة راحة السكان. يوفر خمسون خطًا للنقل العام و 50 محطة للحافلات سهولة التنقل في المنطقة. بشكل عام، توفر إل روساريو نمط حياة متوسطي مريحًا وحيويًا.

طلب معلومات

الموقع والبيئة: El Rosario

البيئة والوصول

توفر منطقة إل روساريو مزيجًا من وسائل الراحة الحضرية وقربها من الساحل. تقع الأرض على بعد 1.8 كم فقط من الشاطئ، ويمكن الوصول إليها سيرًا على الأقدام. يوجد 384 مطعمًا و 124 صيدلية و 73 بنكًا ضمن دائرة نصف قطرها 2 كم، مما يلبي الاحتياجات اليومية. يقع المستشفى على بعد 642 مترًا فقط، مما يوفر راحة بال للسكان. بالإضافة إلى ذلك، تحتوي المنطقة على 384 مطعمًا و 157 مقهى و 26 عيادة أسنان، مما يثري خيارات نمط الحياة. تتوفر 50 خطًا للنقل العام و 50 محطة حافلات، مما يسهل التنقل في المنطقة. تقع على بعد حوالي 8 كم من مطار مالاغا، مما يوفر سهولة السفر الدولي. كما تجاور المنطقة العديد من ملاعب الجولف، مثل Club de Golf Málaga Parador (8.2 كم)، لتلبية احتياجات عشاق الجولف.

الخريطة والموقع

تقع هذه الأرض في إل روساريو، مالاغا، محاطة بمناطق سكنية متحضرة. تظهر الخريطة موقعها المتميز بالقرب من الشواطئ والطرق الرئيسية والمرافق الحضرية. يتيح تخطيط المنطقة مساحة واسعة للتطوير مع الحفاظ على سهولة الوصول.

Alt text: Room with city view, large windows, modern decor, balcony access.

الموقع الإقليمي

تقع إل روساريو في مقاطعة مالاغا، بالقرب من مدينة مالاغا، وهي جزء من كوستا ديل سول. تشتهر المنطقة بخطها الساحلي الجميل ومناخها المعتدل وبنيتها التحتية المتطورة. يوفر الموقع الاستراتيجي للأرض إمكانية الاستمتاع براحة الحياة على الواجهة البحرية، مع سهولة الوصول إلى المراكز الثقافية والتجارية في مالاغا. كما أنها تقع على مسافة معقولة من المدن الهامة الأخرى مثل جبل طارق وأليكانتي، مع سهولة الاتصال عبر الطرق وشبكات الطيران. يجعل موقعها الاستراتيجي قاعدة مثالية لاستكشاف منطقة الأندلس وكوستا ديل سول.

المرافق والوصول

يوفر موقع الأرض سهولة وصول ممتازة. تقع الشواطئ (مثل Playa de San Andrés) على بعد 1.8 كم فقط، ويمكن الوصول إليها سيرًا على الأقدام. تقع محلات السوبر ماركت (73 مترًا) والصيدليات (212 مترًا) والمستشفيات (642 مترًا) على مسافة قريبة. يعد الوصول إلى مطار مالاغا (7.9 كم) أمرًا مريحًا للغاية للسكان الذين يسافرون بشكل متكرر أو يقومون برحلات دولية. تتوفر 50 خطًا للنقل العام و 50 محطة حافلات في المنطقة، مما يسهل التنقل. بالنسبة لعشاق الجولف، توجد العديد من الملاعب القريبة، وأقربها هو Club de Golf Málaga Parador على بعد 8.2 كم. بالإضافة إلى ذلك، فإن المسافة إلى وسط المدينة (مثل مالاغا) معتدلة، مما يسمح بالاستمتاع بمزيد من خيارات الترفيه والأنشطة الثقافية التي توفرها المدينة.

مسافة الشاطئ 1.8 km
Malaga-Costa del Sol (AGP) 8 km
Gibraltar (GIB) 104 km

المصدر: OpenStreetMap, Google Maps

Modern conference room with large windows, natural light, and city view.

الطبيعة والمناخ

Two plaques on a stone wall commemorating historical figures and events.

تتمتع منطقة إل روساريو بمناخ متوسطي يتميز بساعات سطوع شمس وفيرة وفصول متميزة. يبلغ متوسط درجة الحرارة السنوية 19.0 درجة مئوية، مع ارتفاعات تصل إلى حوالي 26 درجة مئوية في الصيف وانخفاضات إلى حوالي 12 درجة مئوية في الشتاء. يوجد ما متوسطه 3851 ساعة سطوع شمسي سنويًا، وهو مثالي للأنشطة الخارجية. يمتد موسم السباحة لمدة 5 أشهر، وتكون درجة حرارة الماء عادةً فوق 20 درجة مئوية، مما يجعلها مريحة للغاية. يبلغ ارتفاع المنطقة 6 أمتار فقط فوق مستوى سطح البحر، والتضاريس مستوية بشكل عام، مما يساهم في قربها من الساحل. يبلغ ميل المنحدر إلى الشاطئ 0.3% فقط، وهو شديد الانحدار. في حين لم يتم تحديد الغطاء النباتي المحدد، فإن المنطقة عادة ما تكون خضراء، كما أن قربها من الساحل يوفر مناخًا محليًا لطيفًا.

3851 ساعات الشمس/سنة
5 موسم السباحة (أشهر)
19.0°C متوسط الحرارة السنوي
6m الارتفاع

المصدر: Open-Meteo (2020–2025 متوسط)

الشواطئ والترفيه

تقع الأرض بالقرب من العديد من الشواطئ الممتازة، بما في ذلك Playa de San Andrés على بعد 1.8 كم و Playa de los Baños del Carmen على بعد 3.8 كم. هذه الشواطئ مثالية للاستمتاع بالشمس والرمال والأنشطة المائية. تضم المنطقة المحيطة أيضًا العديد من المراكز الرياضية، مثل Centro Municipal de Ajedrez (0.5 كم) و Centro Wellness (0.7 كم)، التي توفر مرافق رياضية وترفيهية. بالنسبة لعشاق الجولف، توجد العديد من الملاعب الشهيرة في مكان قريب، بما في ذلك Club de Golf Málaga Parador على بعد 8.2 كم. بالإضافة إلى ذلك، فإن المراسي مثل IGY Málaga Marina (1.0 كم) تقع على مقربة، مما يسهل الأنشطة البحرية.

شواطئ

  • Playa de San Andrés 1.8 km
  • Playa de la Misericordia 3.2 km
  • Playa de los Baños del Carmen 3.8 km
  • Playa de Pedregalejo 4.6 km
  • Playa Sacaba Beach 4.6 km

Golf

  • Club de Golf Málaga Parador 8.2 km
  • Club de Golf de Guadalhorce 9.4 km
  • Campo de Golf Miguel Ángel Jiménez 11.1 km

المصدر: OpenStreetMap

A bustling room with people in red robes, ornate lanterns, and a warm, lively atmosphere.

الموقع الإقليمي

تقع إل روساريو في مقاطعة مالاغا، بالقرب من مدينة مالاغا، وهي جزء من كوستا ديل سول. تشتهر المنطقة بخطها الساحلي الجميل ومناخها المعتدل وبنيتها التحتية المتطورة. يوفر الموقع الاستراتيجي للأرض إمكانية الاستمتاع براحة الحياة على الواجهة البحرية، مع سهولة الوصول إلى المراكز الثقافية والتجارية في مالاغا. كما أنها تقع على مسافة معقولة من المدن الهامة الأخرى مثل جبل طارق وأليكانتي، مع سهولة الاتصال عبر الطرق وشبكات الطيران. يجعل موقعها الاستراتيجي قاعدة مثالية لاستكشاف منطقة الأندلس وكوستا ديل سول.

دليل المنطقة: El Rosario

El Rosario may refer to:

حقائق أساسية

المناخ

الشهر متوسط الحرارة معدل الأمطار
يناير 11.8°C 94 mm
فبراير 12.0°C 97 mm
مارس 14.1°C 85 mm
أبريل 15.9°C 56 mm
مايو 17.8°C 43 mm
يونيو 22.0°C 11 mm
يوليو 25.9°C 1 mm
أغسطس 26.4°C 2 mm
سبتمبر 22.7°C 19 mm
أكتوبر 18.9°C 80 mm
نوفمبر 15.0°C 116 mm
ديسمبر 12.4°C 104 mm

المرافق القريبة

384 restaurant
124 pharmacy
73 bank
157 cafe
26 dentist

الارتفاع والتضاريس

6m الارتفاع
1.8 km مسافة الشاطئ
0.3% الانحدار إلى الشاطئ

مسطح

معالم قريبة

نقاط مشاهدة

مراكز رياضية

Ev Charging

ملاعب الغولف

شواطئ

موانئ ترفيهية

النقل والوصول

8 km Malaga-Costa del Sol (AGP)
104 km Gibraltar (GIB)
383 km Alicante-Elche (ALC)

تفاصيل المشروع

المشروع Residential Plot in El Rosario
المدينة El Rosario
المنطقة Costa del Sol
Prijs €2,150,000
مساحة المعيشة 2086 m²
السعر لكل م² €1,030 / m²
موقف سيارات لا
مسبح لا
حديقة نعم
حالة البناء for_sale
مسافة الشاطئ 1.8 km
تاريخ الإنجاز 1970
تاريخ النشر 2026-04-19

Ref: VL657527

المصدر: Wikipedia, Wikidata, INE, Junta de Andalucía

ملخص

  • فرصة تطوير ممتازة: أرض واسعة (4443 مترًا مربعًا) في إل روساريو، مالاغا.
  • موقع مريح: على مسافة قريبة من الشاطئ ووسائل الراحة الحضرية، بالقرب من المطار (7.9 كم).
  • إطلالات خلابة على البحر والجبل، مثالية لبناء مساكن راقية.
  • نمو مستقر لسوق العقارات في المنطقة يجعله استثمارًا جذابًا.
  • توفر الأرض مساحة كافية للتطوير المخصص وفقًا لاحتياجاتك.

مقارنة إقليمية

مقارنة بمشاريع مثل Acqua Gardens في إستيبونا (ابتداءً من 418,800 يورو) و Aby Upper (ابتداءً من 320,000 يورو)، و Alba Benalmadena في بينالمادينا (ابتداءً من 699,000 يورو)، فإن هذه الأرض في إل روساريو أغلى ثمنًا، وذلك بسبب مساحتها الأكبر (4443 مترًا مربعًا) وموقعها المتميز. في حين أن المشاريع الأخرى تقدم وحدات سكنية جاهزة، فإن هذه الأرض توفر إمكانية تطوير عقارات راقية مخصصة. يقع في مقاطعة مالاغا، بالقرب من المدينة الرئيسية والمطار الدولي، مما يمنحه ميزة من حيث الراحة والجاذبية الاستثمارية. شهدت المنطقة نموًا ثابتًا في أسعار العقارات على مدى العقد الماضي، مع تسارع في السنوات الأخيرة، مدفوعًا بتدفق المستثمرين الدوليين والطلب القوي على العقارات الفاخرة. لذلك، على الرغم من الاستثمار الأولي الأعلى، فإن القيمة طويلة الأجل وإمكانات التطوير لهذه الأرض قد تتجاوز العروض ذات الأسعار المنخفضة للوحدات.

الأسئلة الشائعة

ما هو نوع المسكن المناسب للبناء على هذه الأرض؟
الأرض البالغة مساحتها 4443 مترًا مربعًا مثالية لبناء منزل كبير وعالي الجودة، يمكن تصميمه وفقًا للاحتياجات الفردية ويوفر إطلالات على البحر والجبل.
ما هي المسافة من الأرض إلى محاور النقل الرئيسية؟
تقع الأرض على بعد حوالي 7.9 كم (خط مستقيم) من مطار مالاغا (AGP).
ما هو ميل الأرض؟
ميل الأرض إلى الشاطئ هو 0.3%، وهو شديد الانحدار.
ما هي الاتجاهات الأخيرة في سوق العقارات في المنطقة؟
على مدى العقد الماضي، شهد سوق العقارات في مالاغا نموًا ثابتًا في الأسعار، مع تسارع ملحوظ في السنوات الأخيرة. يعد تدفق المستثمرين الدوليين والطلب القوي على العقارات الفاخرة من الدوافع الرئيسية.
ما هي المرافق القريبة من الأرض؟
تقع الأرض على بعد 73 مترًا من السوبر ماركت، و 212 مترًا من الصيدلية، و 642 مترًا من المستشفى. في دائرة نصف قطرها 2 كم، توجد أيضًا 384 مطعمًا و 157 مقهى و 26 عيادة أسنان.
ما هو سعر هذه الأرض؟
سعر هذه الأرض هو 2,150,000 يورو.
ما هي عملية شراء هذه الأرض؟
تتضمن عملية الشراء العناية الواجبة، والتفاوض على العقد، ونقل الملكية النهائي. للحصول على تفاصيل حول الخطوات المحددة، يوصى بالتشاور مع محامٍ عقاري محلي.
كيف هي البيئة المحيطة في منطقة إل روساريو؟
تجمع منطقة إل روساريو بين وسائل الراحة الحضرية ونمط الحياة الساحلي. تتميز بوفرة أشعة الشمس، والقرب من الشواطئ والمرافق المتنوعة، بالإضافة إلى بيئة سكنية هادئة.
Maiko
Maiko
خبير عقاري

مايكو خبير عقاري متخصص في سوق الإسكان الإسباني. بفضل معرفته العميقة بسواحل كوستا ديل سول وكوستا بلانكا والمناطق الساحلية الشهيرة الأخرى، يساعد المشترين في العثور على العقار المناسب. يقوم بتحليل العروض بناءً على الموقع والقيمة السوقية وجودة البناء وإمكانية العيش، ويقدم نصائح صادقة تستند إلى البيانات طوال عملية الشراء بأكملها.

رد خلال 24 ساعة

مهتم؟

اترك بياناتك واحصل على معلومات عن التوفر، والأسعار، والمخططات.

المواصفات الفنية
مساحة الأرض: 4443 مترًا مربعًا
السعر المبدئي: 2,150,000 يورو
الموقع: إل روساريو، مالاغا
المسافة إلى الشاطئ: 1.8 كم
المسافة إلى المطار: 7.9 كم
متوسط ساعات السطوع الشمسي السنوي: 3851

Conversation history

Ask a question to start