Commercial Plot in El Paraiso في El Paraiso — قطعة أرض تجارية
قطعة أرض تجارية

إل بارايسو، مالاغا: قطعة أرض تجارية للبيع

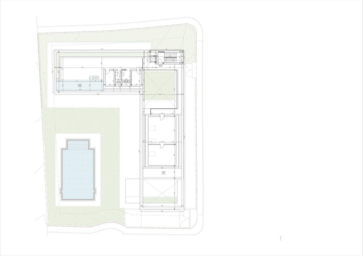
تقع في إل بارايسو، مالاغا، جنوب إسبانيا، توفر قطعة الأرض التجارية هذه التي تبلغ مساحتها 1633 مترًا مربعًا فرصة فريدة لتطوير فندق شقق. تقع الأرض في منطقة حضرية مخدومة جيدًا، على مسافة قريبة من الشاطئ، وهي خيار مثالي للمستثمرين الذين يتطلعون إلى تطوير مشاريع في منطقة منتجع شهيرة. حصلت الأرض على تصريح بناء يسمح ببناء مبنى تبلغ مساحته 1197.57 مترًا مربعًا، ويضم طابقين و 18 شقة ومطعمًا ومسبحًا وقبوًا.

€2,500,000
€2,500,000
Prijs

تحليل المشروع

أهم خصائص الموقع، والوحدات، ومراحل المشروع، ونقاط الاهتمام.

الموقع

تقع هذه الأرض في إل بارايسو، وهي منطقة معروفة بوسائل الراحة وسهولة الوصول إليها. يمكن الوصول إلى الشاطئ والعديد من المرافق سيرًا على الأقدام، بينما تقع الطرق الرئيسية على بعد دقائق قليلة. يحيط بالمنطقة ملاعب جولف ومراكز رياضية، مما يوفر مجموعة واسعة من خيارات الترفيه للسكان والزوار.

المخططات

تعتبر قطعة الأرض التجارية هذه مثالية لتطوير فندق شقق يضم 18 شقة ومطعمًا ومسبحًا. إنه يلبي احتياجات نمط الحياة الحديث، ويجمع بين سهولة الحياة الحضرية وجاذبية عطلة على الشاطئ. يسمح التصريح ببناء مجمع متعدد الوظائف يمكن أن يجذب مجموعة واسعة من العملاء.

حالة المشروع

حصلت قطعة الأرض على تصريح بناء لفندق شقق حديث يضم طابقين و 18 شقة ومطعمًا ومسبحًا وقبوًا. تم تصميم المشروع بواسطة مهندسين معماريين محترفين، ويهدف إلى إنشاء مساحات حديثة وفعالة تلبي متطلبات السوق وتضمن عائدًا جيدًا على الاستثمار.

نقاط هامة

على الرغم من موقع الأرض المتميز، فإن طبيعتها التجارية تعني أنها غير مناسبة لتطوير المساكن الخاصة. بالإضافة إلى ذلك، في حين أنها قريبة من الشاطئ، إلا أنها ليست عقارًا على الواجهة البحرية مباشرة، وبالتالي لا توفر مناظر غير معاقة للبحر. يقتصر تخطيط البناء على التصميم المعتمد وعدد الطوابق.

تفاصيل المشروع

المشروع Commercial Plot in El Paraiso
المدينة El Paraiso
المنطقة Costa del Sol
Prijs €2,500,000
موقف سيارات لا
مسبح نعم
حديقة نعم
حالة البناء for_sale
تاريخ الإنجاز 1970
تاريخ النشر 2026-04-20

Ref: VL783395

المصدر: Wikipedia, Wikidata, INE, Junta de Andalucía

نمط الحياة

تعد قطعة الأرض التجارية هذه مناسبة للمستثمرين الأذكياء الذين يتطلعون إلى تطوير فندق شقق في منطقة مرغوبة في جنوب إسبانيا. إنها موقع مثالي للمطورين الذين يرغبون في الاستفادة من أكثر من 3800 ساعة من ضوء الشمس سنويًا و 5 أشهر من المياه الدافئة لجذب السياح. القرب من ملاعب الجولف (مثل El Paraíso Golf Club، على بعد 698 مترًا فقط) والمراكز الرياضية (مثل RozaRossa Tennis and Padel Club، على بعد 0.3 كم) يجذب عشاق الرياضة. بالنسبة للعائلات التي لديها أطفال، توجد مدارس دولية في مكان قريب، في حين أن المسافة البالغة 45 كم (حوالي 45 دقيقة بالسيارة) إلى المطار تجعل السفر الدولي سهلاً. إن إمكانية التطوير متعددة الاستخدامات للأرض، بما في ذلك الشقق والمطعم والمسبح، تجعلها مشروعًا جذابًا يمكنه تلبية احتياجات كل من المصطافين والمقيمين على المدى الطويل.

الجودة والتشطيبات

في حين لا توجد معلومات تفصيلية حاليًا حول المواد المحددة أو مستوى التشطيب، فإن المشروع مصمم بواسطة مهندسين معماريين محترفين، مما يشير إلى التركيز على الجماليات الحديثة والوظائف. من المتوقع أن يلتزم فندق الشقق المزمع بناؤه بمعايير عالية لجذب الجمهور المستهدف. يسمح تخطيط البناء بطابقين، يشمل 18 شقة ومطعمًا ومسبحًا وقبوًا، مما يشير إلى مجمع مصمم بعناية مع التركيز على استخدام المساحة وراحة المقيمين. بالنظر إلى وضع المشروع في السوق، يمكن توقع أن يركز على المتانة والجاذبية والكفاءة في استخدام الطاقة.

البيئة ونمط الحياة

السعر والتوفر

يبلغ سعر قطعة الأرض التجارية هذه 2,500,000 يورو. يعكس هذا السعر موقعها المتميز، وتصريح البناء الذي تم الحصول عليه، وإمكانية تطوير فندق شقق متعدد الوظائف. في حين لم يتم تقديم نطاق سعري، فإن تكلفة الأرض لكل متر مربع تنافسية مقارنة بالمشاريع المماثلة الأخرى في المنطقة. نظرًا لأن هذه فرصة تطوير تجاري فريدة من نوعها، ولا يوجد حاليًا قطع أراضي مماثلة أخرى معروضة للبيع في وقت واحد، فإن توفر قطعة الأرض يعتبر محدودًا.

€2,500,000
Prijs

البيئة المحيطة

تُعرف إل بارايسو، والتي تعني "الجنة"، بتقديم مزيج فريد من وسائل الراحة الحضرية وأسلوب الحياة المريح على البحر الأبيض المتوسط. تقع قطعة الأرض التجارية هذه التي تبلغ مساحتها 1633 مترًا مربعًا، والتي حصلت على موافقة لبناء فندق شقق يضم 18 شقة ومطعمًا ومسبحًا (بإجمالي مساحة بناء 1197.57 مترًا مربعًا)، في منطقة حضرية ذات بنية تحتية ممتازة. تقع على مسافة قريبة سيرًا على الأقدام من محلات السوبر ماركت والصيدليات والعديد من المطاعم. تقع المدارس الدولية والمراكز الرياضية (مثل نوادي التنس والبادل) بالقرب، مما يوفر أقصى درجات الراحة للسكان والزوار. يبلغ متوسط درجة الحرارة السنوية 19.1 درجة مئوية، مع 3856 ساعة من أشعة الشمس سنويًا، وموسم سباحة يمتد لمدة 5 أشهر، فإن الظروف المناخية مثالية للاستمتاع بالأنشطة الخارجية وأسلوب الحياة المتوسطي على مدار العام. تقع الأرض على بعد 1.4 كم فقط من الساحل، بالقرب من شواطئ مثل سالدونا، بلايا إيسدابي، وبلايا ديل سالاديلو، مما يضيف إلى جاذبيتها.

طلب معلومات

الموقع والبيئة: El Paraiso

البيئة والوصول

إل بارايسو هي منطقة نابضة بالحياة تجمع بين وسائل الراحة الحضرية وأسلوب الحياة المريح على البحر الأبيض المتوسط. تقع قطعة الأرض في منطقة حضرية، ويمكن الوصول سيرًا على الأقدام إلى مجموعة متنوعة من وسائل الراحة، بما في ذلك محلات السوبر ماركت (453 مترًا) والصيدليات (1.1 كم) و 25 مطعمًا. توفر 50 محطة للنقل العام و 6 خطوط للحافلات اتصالًا جيدًا، مما يسهل على السكان الوصول إلى المناطق المحيطة. يقع الشاطئ على بعد 1.4 كم فقط، مما يجعل أنشطة الشاطئ في متناول اليد. تضم المنطقة أيضًا مرافق رياضية واسعة، بما في ذلك العديد من ملاعب الجولف والنوادي الرياضية، مما يدعم نمط الحياة النشط. وجود مدارس دولية (0.2 كم) يجعله أيضًا خيارًا مناسبًا للعائلات التي لديها أطفال.

الخريطة والموقع

يُعد الموقع الاستراتيجي لقطعة الأرض في إل بارايسو مثاليًا لتطوير فندق شقق. تقع في منطقة حضرية مع سهولة الوصول إلى الشواطئ وملاعب الجولف والمراكز الرياضية والمدارس الدولية. يقع مطار مالاغا على بعد 53 كم فقط، مما يسهل على المسافرين الدوليين الوصول إليه.

Two-story house with a view of the city, featuring a balcony and a rooftop terrace.

الموقع الإقليمي

تقع إل بارايسو على ساحل الأندلس، وهي منطقة نابضة بالحياة في مقاطعة مالاغا. وهي تقع بين ماربيا وإستيپونا، مما يوفر وصولاً سهلاً إلى هاتين الوجهتين السياحيتين الشهيرتين. تشتهر المنطقة بملاعب الجولف والشواطئ والمرافق المتطورة، مما يجعلها وجهة شهيرة للسياح الذين يبحثون عن الشمس والبحر والأنشطة الخارجية. تعتبر المنطقة جزءًا من كوستا ديل سول، وهي منطقة معروفة بمنتجعاتها الفاخرة وملاعب الجولف وشواطئها الجميلة، والتي تجذب السياح والمقيمين من جميع أنحاء العالم.

المرافق والوصول

تتمتع قطعة الأرض التجارية بموقع متميز مع سهولة الوصول إلى وسائل الراحة. يقع أقرب سوبر ماركت على بعد 453 مترًا، وصيدلية على بعد 1.1 كم، ومركز طبي على بعد 5.2 كم. تقع الشواطئ على بعد حوالي 1.4 كم، بما في ذلك سالدونا، بلايا إيسدابي، وبلايا ديل سالاديلو. يمكن لعشاق الجولف الوصول بسهولة إلى نادي إل بارايسو للجولف (698 مترًا) والعديد من الملاعب الأخرى. يقع مطار مالاغا (AGP) على بعد حوالي 53 كم (45 دقيقة بالسيارة)، مما يوفر سهولة الوصول للمسافرين الدوليين. شبكة النقل العام متطورة، مع 50 محطة للحافلات و 6 خطوط، مما يضمن اتصالًا جيدًا بالمنطقة. يمكن لسائقي السيارات الوصول بسهولة إلى الطرق الرئيسية المؤدية إلى المدن والمناطق المجاورة.

Gibraltar (GIB) 46 km
Malaga-Costa del Sol (AGP) 53 km

المصدر: OpenStreetMap, Google Maps

Alt text: Panoramic view of a small town with lush green hills and scattered clouds.

الطبيعة والمناخ

An outdoor concert scene with a pianist on stage, surrounded by a large audience.

تُعرف منطقة إل بارايسو بمناخ البحر الأبيض المتوسط المعتدل، حيث يبلغ متوسط درجة الحرارة السنوي 19.1 درجة مئوية. تتمتع المنطقة بساعات شمس وفيرة، حيث بلغ متوسطها التاريخي 3856 ساعة من أشعة الشمس سنويًا، مما يوفر ظروفًا مثالية للأنشطة الخارجية. يستمر موسم السباحة لمدة 5 أشهر تقريبًا، حيث تصل درجة حرارة المياه إلى 20 درجة مئوية. على ارتفاع 41 مترًا فوق مستوى سطح البحر، تتمتع المنطقة بمناخ معتدل خالٍ من الظروف الجوية القاسية. المنطقة محاطة بمناظر طبيعية خلابة، وعلى الرغم من عدم توفر تفاصيل محددة، إلا أن اسم "الجنة" يشير إلى جمالها الطبيعي. كما يوفر القرب من الساحل للسكان نسيم البحر المنعش وبيئة ساحلية لطيفة.

3856 ساعات الشمس/سنة
5 موسم السباحة (أشهر)
19.1°C متوسط الحرارة السنوي
41m الارتفاع

المصدر: Open-Meteo (2020–2025 متوسط)

الشواطئ والترفيه

تقدم منطقة إل بارايسو مجموعة واسعة من خيارات الترفيه. تشمل الشواطئ القريبة سالدونا (1.4 كم)، بلايا إيسدابي (1.5 كم)، وبلايا ديل سالاديلو (1.7 كم)، والتي تتميز عادةً بالرمال الناعمة والمياه الصافية. تعد المنطقة أيضًا جنة لعشاق الجولف، حيث يقع نادي إل بارايسو للجولف على بعد 698 مترًا فقط، بالإضافة إلى العديد من ملاعب الجولف الشهيرة الأخرى في مكان قريب. بالإضافة إلى ذلك، يوجد العديد من المراكز الرياضية، مثل نادي روزاروسا للتنس والبادل (0.3 كم) ونادي التنس (1.2 كم)، التي تقدم مجموعة متنوعة من المرافق الرياضية. يفتح القرب من مرسى بويرتو ديبورتيفو خوسيه بانوس (7.2 كم) أيضًا فرصًا لعشاق الرياضات المائية.

شواطئ

  • Salduna 1.4 km
  • Playa Isdabe 1.5 km
  • Playa del Saladillo 1.7 km
  • Playa Atalaya 1.9 km
  • Playa del Sol Villacana 2.3 km
  • Playa de Guadalmansa 3 km

Golf

  • El Paraíso Golf Club 0.7 km
  • El Paraiso Golf Clubhouse 0.9 km
  • El Campanario Golf Course 0.9 km
  • Tramores Golf 1.7 km

المصدر: OpenStreetMap

الموقع الإقليمي

تقع إل بارايسو على ساحل الأندلس، وهي منطقة نابضة بالحياة في مقاطعة مالاغا. وهي تقع بين ماربيا وإستيپونا، مما يوفر وصولاً سهلاً إلى هاتين الوجهتين السياحيتين الشهيرتين. تشتهر المنطقة بملاعب الجولف والشواطئ والمرافق المتطورة، مما يجعلها وجهة شهيرة للسياح الذين يبحثون عن الشمس والبحر والأنشطة الخارجية. تعتبر المنطقة جزءًا من كوستا ديل سول، وهي منطقة معروفة بمنتجعاتها الفاخرة وملاعب الجولف وشواطئها الجميلة، والتي تجذب السياح والمقيمين من جميع أنحاء العالم.

دليل المنطقة: El Paraiso

El Paraíso is Spanish for "The Paradise." The name may refer to:

حقائق أساسية

المناخ

الشهر متوسط الحرارة معدل الأمطار
يناير 12.0°C 94 mm
فبراير 12.2°C 97 mm
مارس 14.3°C 85 mm
أبريل 16.1°C 56 mm
مايو 18.1°C 43 mm
يونيو 22.4°C 11 mm
يوليو 26.3°C 1 mm
أغسطس 26.8°C 2 mm
سبتمبر 23.1°C 19 mm
أكتوبر 19.1°C 80 mm
نوفمبر 15.2°C 116 mm
ديسمبر 12.6°C 104 mm

المرافق القريبة

25 restaurant
1 school
4 pharmacy
2 bank
1 park
5 cafe
1 dentist

الارتفاع والتضاريس

41m الارتفاع

معالم قريبة

مراكز رياضية

ملاعب الغولف

شواطئ

نقاط مشاهدة

موانئ ترفيهية

مدارس دولية

Ev Charging

النقل والوصول

46 km Gibraltar (GIB)
53 km Malaga-Costa del Sol (AGP)
444 km Alicante-Elche (ALC)

ملخص

  • قطعة أرض تجارية بمساحة 1633 مترًا مربعًا في إل بارايسو، مناسبة لتطوير فندق شقق.
  • تصريح بناء قائم لبناء 1197.57 مترًا مربعًا، يشمل 18 شقة ومطعمًا ومسبحًا.
  • موقع متميز، على مسافة قريبة سيرًا على الأقدام من الشاطئ ومحلات السوبر ماركت والصيدليات والمطاعم.
  • قريب من ملاعب الجولف والمراكز الرياضية والمدارس الدولية.
  • 53 كم إلى مطار مالاغا، مع سهولة الوصول إلى وسائل النقل.

مقارنة إقليمية

مقارنة بالمشاريع المجاورة مثل Acqua Gardens (بدءًا من 418,800 يورو) و Aby Upper (بدءًا من 320,000 يورو) و Alba Benalmadena (بدءًا من 699,000 يورو)، تقدم قطعة الأرض التجارية هذه في إل بارايسو فرصة تطوير فريدة. في حين أن هذه المشاريع المقارنة هي عقارات سكنية تم بناؤها بالفعل، فإن سعر قطعة الأرض في إل بارايسو (2,500,000 يورو) يعكس قيمتها كفرصة تطوير تجاري. بالمقارنة مع مشاريع مثل Acqua Gardens و Aby Upper، فإن قطعة الأرض في إل بارايسو أكبر حجمًا وتوفر مساحة أكبر لتطوير فندق شقق. يوفر موقعها بالقرب من الشواطئ وملاعب الجولف والمدارس الدولية مزايا من حيث سهولة الوصول وجاذبية نمط الحياة. ومع ذلك، يحتاج المستثمرون إلى النظر في تكاليف التطوير والأرباح المحتملة بدلاً من مقارنة الأسعار مباشرة بوحدات سكنية مبنية بالفعل. تكمن قيمة الأرض في إمكاناتها للتطوير واسع النطاق في موقع سياحي شهير، مما يميزها عن المشاريع المجاورة التي تقدم وحدات سكنية فردية.

الأسئلة الشائعة

هل تصلح قطعة الأرض التجارية هذه للسكن الخاص؟
لا، تم تعيين الأرض للاستخدام التجاري وتسمح فقط بالتطوير التجاري، مثل فندق الشقق المخطط له.
ما هي المسافة إلى أقرب شاطئ من الأرض؟
أقرب شاطئ، سالدونا، يبعد حوالي 1.4 كم (خط مستقيم) عن الأرض.
ما هي أقصى مساحة بناء مسموح بها على هذه الأرض؟
أقصى مساحة بناء مسموح بها هي 1197.57 مترًا مربعًا.
هل توجد فرص تطوير تجارية مماثلة أخرى في المنطقة؟
توجد مشاريع سكنية أخرى في المنطقة، ولكن قطع الأراضي التجارية المخصصة خصيصًا لفنادق الشقق، مثل هذه، فريدة من نوعها.
ما هي المدارس القريبة؟
توجد مدرسة دولية قريبة، وهي المدرسة الدولية في إستيپونا، على بعد حوالي 0.2 كم.
بالإضافة إلى سعر الأرض، ما هي تكاليف التطوير الأخرى التي يجب مراعاتها؟
تشمل تكاليف التطوير البناء، والتراخيص، وتوصيلات الخدمات، وتكاليف التسويق. يوصى بالتشاور مع المتخصصين للحصول على تقديرات مفصلة.
ما هي عملية الحصول على تصريح البناء؟
حصلت الأرض على تصريح بناء، ولكن أي تعديلات أو تطويرات جديدة يجب أن تمتثل للوائح البناء المحلية والحصول على موافقة البلدية.
ما هو الوقت من السنة الذي تكون فيه المنطقة الأكثر شعبية؟
المنطقة تحظى بشعبية على مدار العام، ولكنها تشهد ذروة الزيارات خلال الأشهر الصيفية (يونيو-أغسطس)، في حين أن الربيع (مارس-مايو) والخريف (سبتمبر-نوفمبر) يوفران طقسًا لطيفًا مع عدد أقل من السياح.
Maiko
Maiko
خبير عقاري

مايكو خبير في سوق العقارات الإسبانية. معرفته العميقة بساحل الشمس (كوستا ديل سول) وساحل البياض (كوستا بلانكا) والمناطق الساحلية الشهيرة الأخرى في إسبانيا تساعد المشترين في العثور على العقار المناسب. يقوم بتحليل العرض بناءً على الموقع والقيمة السوقية وجودة البناء وقابلية السكن، ويقدم نصائح صادقة تعتمد على البيانات طوال عملية الشراء بأكملها.

رد خلال 24 ساعة

مهتم؟

اترك بياناتك واحصل على معلومات عن التوفر، والأسعار، والمخططات.

المواصفات الفنية
مساحة الأرض: 1633 مترًا مربعًا.
مساحة البناء المسموح بها: 1197.57 مترًا مربعًا.
عدد الطوابق المسموح به: 2.
عدد الشقق المسموح بها: 18.
المسافة إلى ملعب الجولف: 0.7 كم.

Conversation history

Ask a question to start