7 Bed Apartment Complex in Capuchinos في Capuchinos — مجمع سكني
مجمع سكني

مجمع سكني في كابوتشينوس، مالاغا للبيع

فرصة استثمائية تتطلب تجديدًا تقع في حي كابوتشينوس في مالاغا. يتكون المبنى من 4 طوابق ويحتوي على 7 غرف نوم و5 حمامات. المساحة الإجمالية 420 م². يوجد مصعد وسطح مشترك. الموقع في بيئة حضرية بالقرب من المركز التاريخي والمستشفى.

يبدأ من €1,200,000
7
غرف النوم
5
الحمامات
420 m²
مساحة المعيشة
يبدأ من €1,200,000
السعر المبدئي
جاهز للتسليم
حالة البناء

تحليل المشروع

أهم خصائص الموقع، والوحدات، ومراحل المشروع، ونقاط الاهتمام.

الموقع

يقع العقار في حي كابوتشينوس الحضري في مالاغا، إسبانيا. المنطقة ذات طابع حضري مع جميع الخدمات في متناول اليد. تبلغ المسافة إلى أقرب شاطئ (شاطئ مالاغيتا) حوالي 1.8 كم بالطيران، وإلى المطار 9.1 كم.

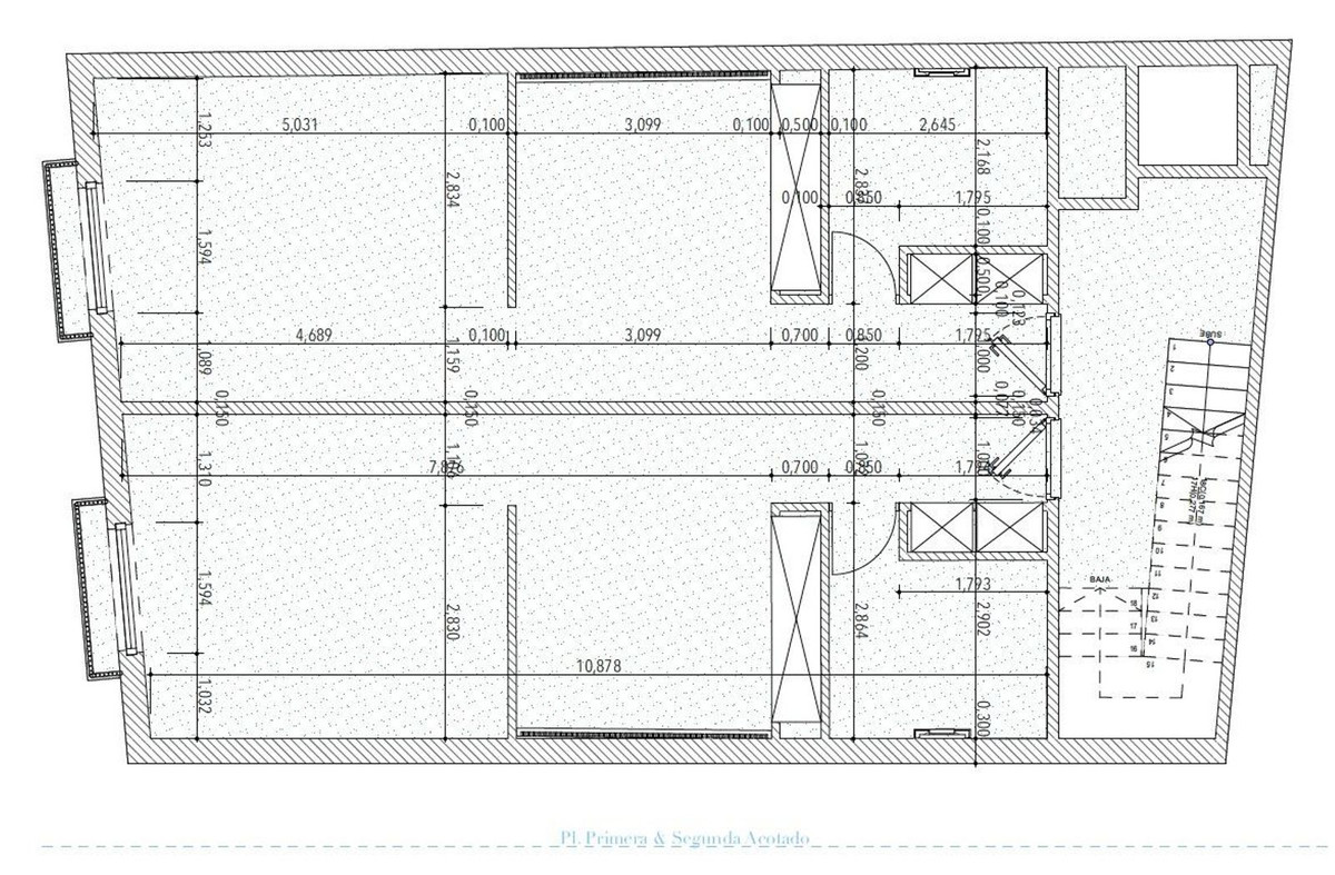
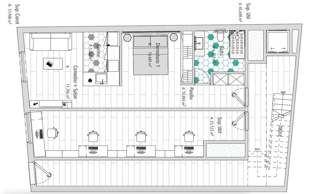
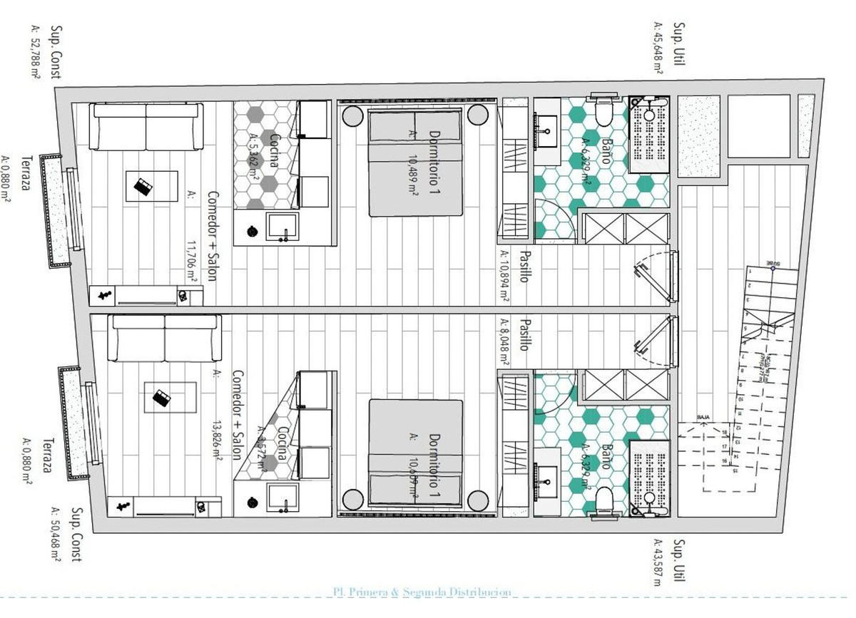
المخططات

يناسب هذا المشروع المستثمر الذي يبحث عن عقار لإعادة تطويره في قلب المدينة. نظرًا لحجمه الكبير، فهو مناسب أيضًا لنمط حياة "المشاركة في المعيشة" (coliving) أو الإيجار طويل الأمد.

حالة المشروع

هذا ليس مشروعًا جديدًا، بل مبنى قائم يحتاج إلى ترميم. من المتوقع اكتمال أعمال التجديد بحلول نهاية عام 2025. يتضمن المشروع تحسين 6 شقق موجودة وتغيير استخدام المحل التجاري الأرضي إلى سكني.

نقاط هامة

العقار لا يوفر جودة البناء الجاهزة ويحتاج إلى عمل. الموقع حضري، مما يعني وجود ضوضاء المدينة. لا يقع مباشرة على الشاطئ ولا يوفر إطلالة على ملاعب الجولف.

نمط الحياة

يناسب المستثمر المستعد لإدارة أعمال الترميم والإيجار. قد يكون مناسبًا أيضًا لعائلة كبيرة تبحث عن منزل في المدينة. غير مناسب لمن يبحث عن منزل إجازة جاهز وهادئ.

الجودة والتشطيبات

الحالة الحالية تتطلب تجديدًا شاملًا. عند الانتهاء، ستكون الشقق المرممة حديثة ومطابقة للوائح البناء الحالية. سيتم تحديث التركيبات والأنظمة بالكامل.

البيئة ونمط الحياة

السعر والتوفر

الإجمالي مع التجديد هو 1,800,000 يورو. السعر بدون التجديد هو 1,300,000 يورو. هذا يمثل استثمارًا في مبنى كامل في موقع مركزي.

€1,200,000
السعر المبدئي
7
غرف النوم
420 m²
مساحة المعيشة
5
الحمامات

البيئة المحيطة

كابوتشينوس هو منطقة حيوية في مالاغا. تتوفر الكثير من المقاهي والمطاعم في الجوار. ونظراً لقربها من الجامعة والمستشفى، فإن المنطقة تشهد طلبًا كبيرًا على الإيجارات. الحياة هنا سريعة الخطى وتتميز بالراحة الحضرية.

طلب معلومات

الموقع والبيئة: Capuchinos

البيئة والوصول

البيئة المحيطة غنية بالمرافق. يوجد سوبر ماركت على بعد 95 م وصيدلية على بعد 137 م. المستشفى على بعد 1.0 كم. تتوفر وسائل النقل العام في المنطقة.

الخريطة والموقع

توضح الخريطة موقع العقار في حي كابوتشينوس، مع الإشارة إلى الطرق الرئيسية القريبة والجامعة والمستشفى.

A green leafy plant with a unique, twisted stem growing in a rocky crevice.

الموقع الإقليمي

مالاغا هي عاصمة كوستا ديل سول. يقع كابوتشينوس في قلب المدينة، مما يجعله نقطة انطلاق مثالية لاستكشاف المنطقة.

المرافق والوصول

الموقع مركزي للغاية. المسافة إلى شاطئ مالاغيتا حوالي 1.8 كم. مطار مالاغا كوستا ديل سول على بعد 9.1 كم. ملاعب الجولف مثل نادي مالاغا بارادور تقع على بُعد 9.6 كم.

Valencia (VLC) 299 km
Alicante-Elche (ALC) 336 km

المصدر: OpenStreetMap, Google Maps

Historic stone building with clock tower, arched windows, and courtyard.

الطبيعة والمناخ

Cozy coastal lighthouse room with ocean view, featuring a balcony and stone walls.

مناخ مالاغا دافئ ومعتدل. تشير البيانات التاريخية إلى 3785 ساعة شمس سنويًا. موسم السباحة يستمر حوالي 4 أشهر. الارتفاع عن مستوى سطح البحر 237 مترًا.

3785 ساعات الشمس/سنة
4 موسم السباحة (أشهر)
17.5°C متوسط الحرارة السنوي
237m الارتفاع

المصدر: Open-Meteo (2020–2025 متوسط)

الشواطئ والترفيه

أقرب الشواطئ هي مالاغيتا وسان أندريس، وكلاهما يحمل العلم الأزرق. تتوفر فرص لممارسة الرياضة والأنشطة الترفيهية في المدينة القريبة.

المصدر: OpenStreetMap

Lighthouse on rocky coast with ocean view, winding road, and clear blue sky.

الموقع الإقليمي

مالاغا هي عاصمة كوستا ديل سول. يقع كابوتشينوس في قلب المدينة، مما يجعله نقطة انطلاق مثالية لاستكشاف المنطقة.

دليل المنطقة: Capuchinos

حقائق أساسية

1,221,403 عدد السكان
4991.7 km² المساحة

المناخ

الشهر متوسط الحرارة معدل الأمطار
يناير 11.3°C 41 mm
فبراير 11.6°C 32 mm
مارس 13.8°C 44 mm
أبريل 15.8°C 55 mm
مايو 19.0°C 21 mm
يونيو 22.8°C 13 mm
يوليو 25.7°C 3 mm
أغسطس 26.3°C 28 mm
سبتمبر 23.3°C 38 mm
أكتوبر 19.8°C 43 mm
نوفمبر 14.8°C 72 mm
ديسمبر 12.1°C 46 mm

المرافق القريبة

385 restaurant
128 pharmacy
75 bank
156 cafe
28 dentist

الارتفاع والتضاريس

237m الارتفاع

النقل والوصول

299 km Valencia (VLC)
336 km Alicante-Elche (ALC)
727 km Malaga-Costa del Sol (AGP)

تفاصيل المشروع

المشروع 7 Bed Apartment Complex in Capuchinos
المدينة Capuchinos
المنطقة Málaga Ciudad
السعر المبدئي €1,200,000
مساحة المعيشة 420 m²
السعر لكل م² €2,857 / m²
غرف النوم 7
الحمامات 5
موقف سيارات لا
مسبح لا
حديقة لا
حالة البناء key_ready
تاريخ الإنجاز 2007
تاريخ النشر 2026-04-20

Ref: VL289323

المصدر: Wikipedia, Wikidata, INE, Junta de Andalucía

ملخص

  • عقار استثماري في وسط مالاغا.
  • مساحة كبيرة تبلغ 420 م².
  • يتطلب تجديدًا (Renovation Required).
  • قرب الجامعة والمستشفى.
  • إمكانية تحويل المحل التجاري إلى شقة.

مقارنة إقليمية

مقارنة بمنتجعات مثل ميخاس (ميخاس أروسا)، فإن أسعار مالاغا تكون أعلى بسبب الموقع الحضري. يوفر هذا المشروع حجمًا واستثمارًا يختلف عن الشقق الجاهزة في المناطق الساحلية الهادئة.

الأسئلة الشائعة

لماذا يتطلب هذا المشروع تجديدًا؟
المبنى قائم ويحتاج إلى تحديثات لرفع مستوى الراحة وزيادة قيمته الاستثمارية.
هل تحتاج إلى سيارة للعيش هنا؟
لا، الموقع يسمح بالعيش دون الاعتماد الكلي على السيارة.
هل يشمل السعر موقف سيارات؟
لم يتم ذكر موقف سيارات في البيانات الأساسية.
كيف هو الطلب على الإيجار في هذه المنطقة؟
الطلب مرتفع بسبب قربهما الجامعة والمستشفيات.
هل يوجد مصعد؟
نعم، المبنى مجهز بمصعد.
Maiko
Maiko
خبير عقاري

مايكو هو خبير عقاري متخصص في سوق الإسكان الإسباني. بفضل معرفته العميقة بمنطقة كوستا ديل سول، وكوستا بلانكا، وغيرها من المناطق الساحلية الشعبية، يساعد المشترين في العثور على المنزل المناسب. يحلل العروض بناءً على الموقع والقيمة السوقية وجودة البناء وإمكانية العيش، ويقدم نصائح صريحة تعتمد على البيانات طوال عملية الشراء.

رد خلال 24 ساعة

مهتم؟

اترك بياناتك واحصل على معلومات عن التوفر، والأسعار، والمخططات.

المواصفات الفنية
يتكون من طابق أرضي + 4 طوابق علوية.
يحتوي على 6 شقق ومحل تجاري.
مساحة المحل التجاري 67 م².

Conversation history

Ask a question to start